Anuntul accesat este inactiv. Iti sugeram anunturi cu caracteristici asemanatoare.
Anunturi active sugerate
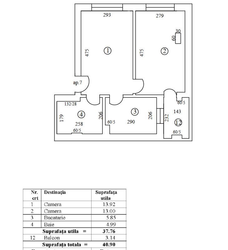
Suprafata 50 mp
An 1965
Semidecomandat
Etaj 3 din 4
Bucuresti, 19 Decembrie '25
Suprafata 54 mp
An 1970
Semidecomandat
Etaj 3 din 10
Bucuresti, 19 Decembrie '25
Suprafata 45 mp
An 1969
Semidecomandat
Etaj 2 din 10
Bucuresti, 08 Decembrie '25
Suprafata 50 mp
An 1965
Semidecomandat
Etaj 3 din 4
Bucuresti, 19 Decembrie '25
Anunt inactiv
Colentina
62.000 €
Colentina,
62.000 €
Caracteristici
Suprafata 41 mp
An 2013
Etaj 3 din 4
Optiuni interior: Apometre Balcon Centrala termica Contor gaze Inst. electrice noi Inst. sanitare noi Izolatie termica Renovat recent Termopan Usa metalica
Optiuni exterior: Interfon Reabilitat termic Structura beton
Optiuni interior: Apometre Balcon Centrala termica Contor gaze Inst. electrice noi Inst. sanitare noi Izolatie termica Renovat recent Termopan Usa metalica
Optiuni exterior: Interfon Reabilitat termic Structura beton
Descriere
proprietar, vand apartament cu 2 camere situat pe strada Maliuc, nr. 17 A, sector 2 (reper Carrefour Colentina), la etajul 3 (din 4, fara lift), in bloc constructie 2013. Apartamentul este proaspat zugravit, liber si are o suprafata totala de 41 mp. Dotari: centrala, gresie, faianta, parchet, termopan.
878 vizualizari
Bucuresti, Sector 2
Actualizat
Actualizat
Statii metrou
Statii STB
| N108 | Nicolae Cânea | 3 min |
| N108 | Cornișor | 6 min |
| 682 | Periș | 9 min |
Evolutia preturilor imobiliare in Colentina-Obor
se incarca..
Anunt inactiv
