Bragadiru Vila individuala 4 camere Diamantului Curte 250 mp | pompa caldura
206.000 €
Bragadiru Vila individuala 4 camere Diamantului Curte 250 mp | pompa caldura
206.000 €
Caracteristici
Suprafata utila 125 mp
Teren 250 mp
An 2026
4 camere
La rosu
Optiuni interior: 2+ gr. sanitare
Optiuni interior: 2+ gr. sanitare
Descriere
Daca iti doresti o casa moderna, aproape de Bucuresti, cu spatiu generos si costuri foarte eficiente de intretinere, aceasta vila individuala cu 4 camere din Bragadiru – zona Diamantului – este o alegere excelenta pentru tine si familia ta.
Proprietatea este amplasata intr-o zona rezidentiala in plina dezvoltare, cu acces rapid catre Prelungirea Ghencea si Capitala, oferind echilibrul ideal intre liniste si conectivitate urbana.
Detalii principale:
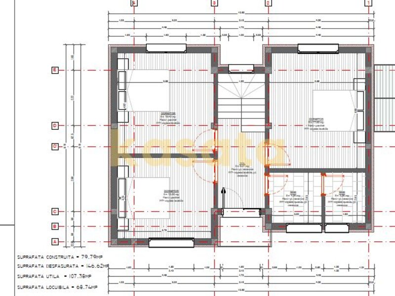
Suprafata utila: 125 mp
Suprafata construita: 155 mp
Amprenta la sol: 75 mp
Regim de inaltime: P+1
Teren: 325 mp
Curte libera: ~250 mp
Deschidere: 16 ml
Compartimentare eficienta:
Parter:
Living generos – zona centrala pentru relaxare si socializare
Bucatarie inchisa – practica si bine delimitata
Grup sanitar
Hol + spatii de depozitare
Etaj:
3 dormitoare luminoase
2 bai
Hol
Dotari si beneficii tehnice:
✔ Incalzire in pardoseala – confort termic superior
✔ Pompa de caldura – eficienta energetica si costuri reduse
✔ Constructie din caramida + izolatie exterioara
✔ Pod pentru depozitare
✔ Curent trifazic (380V)
✔ Geamuri termopan
✔ Finisaje personalizabile (in functie de stadiul lucrarii)
Utilitati:
Fosa septica
Put propriu
Exterior – un avantaj major:
Curtea proprie de aproximativ 250 mp iti ofera multiple posibilitati:
amenajare gradina
terasa / zona BBQ
loc de joaca pentru copii
parcare in curte
Localizare
Imobilul este situat in Bragadiru, strada Diamantului, intr-o zona linistita si aerisita, tot mai cautata de familii.
✔ Acces rapid catre Bucuresti
✔ Aproape de Prelungirea Ghencea/ Sos. Alexandriei
✔ Magazine, scoli, gradinite in proximitate
✔ Transport STB disponibil
Stadiu & pret:
Constructie noua (2026), in curs de finalizare
Termen estimat finalizare: iunie 2026
Pret: 206.000 € (TVA inclus)
Pret valabil pentru contractare in martie–aprilie 2026
Posibilitate alegere finisaje (avantaj major pentru cumparator)
De ce recomandam aceasta proprietate:
raport excelent pret / suprafata / locatie
eficienta energetica ridicata (pompa de caldura)
ideala pentru locuire sau investitie
zona in crestere accelerata (potential de apreciere)
📞 Programeaza acum o vizionare si descopera o casa care poate deveni „acasa” in adevaratul sens al cuvantului. Proprietatile bine pozitionate in Bragadiru se tranzactioneaza rapid.
Proprietatea este amplasata intr-o zona rezidentiala in plina dezvoltare, cu acces rapid catre Prelungirea Ghencea si Capitala, oferind echilibrul ideal intre liniste si conectivitate urbana.
Detalii principale:
Suprafata utila: 125 mp
Suprafata construita: 155 mp
Amprenta la sol: 75 mp
Regim de inaltime: P+1
Teren: 325 mp
Curte libera: ~250 mp
Deschidere: 16 ml
Compartimentare eficienta:
Parter:
Living generos – zona centrala pentru relaxare si socializare
Bucatarie inchisa – practica si bine delimitata
Grup sanitar
Hol + spatii de depozitare
Etaj:
3 dormitoare luminoase
2 bai
Hol
Dotari si beneficii tehnice:
✔ Incalzire in pardoseala – confort termic superior
✔ Pompa de caldura – eficienta energetica si costuri reduse
✔ Constructie din caramida + izolatie exterioara
✔ Pod pentru depozitare
✔ Curent trifazic (380V)
✔ Geamuri termopan
✔ Finisaje personalizabile (in functie de stadiul lucrarii)
Utilitati:
Fosa septica
Put propriu
Exterior – un avantaj major:
Curtea proprie de aproximativ 250 mp iti ofera multiple posibilitati:
amenajare gradina
terasa / zona BBQ
loc de joaca pentru copii
parcare in curte
Localizare
Imobilul este situat in Bragadiru, strada Diamantului, intr-o zona linistita si aerisita, tot mai cautata de familii.
✔ Acces rapid catre Bucuresti
✔ Aproape de Prelungirea Ghencea/ Sos. Alexandriei
✔ Magazine, scoli, gradinite in proximitate
✔ Transport STB disponibil
Stadiu & pret:
Constructie noua (2026), in curs de finalizare
Termen estimat finalizare: iunie 2026
Pret: 206.000 € (TVA inclus)
Pret valabil pentru contractare in martie–aprilie 2026
Posibilitate alegere finisaje (avantaj major pentru cumparator)
De ce recomandam aceasta proprietate:
raport excelent pret / suprafata / locatie
eficienta energetica ridicata (pompa de caldura)
ideala pentru locuire sau investitie
zona in crestere accelerata (potential de apreciere)
📞 Programeaza acum o vizionare si descopera o casa care poate deveni „acasa” in adevaratul sens al cuvantului. Proprietatile bine pozitionate in Bragadiru se tranzactioneaza rapid.
Cod oferta: 2976634

4.449 vizualizari
Ilfov, Bragadiru, 02 Mai '26
Actualizat azi; 19:32
Actualizat azi; 19:32
<img src="https://k.crmrebs.com/track/15/2976634.gif" />
