Theodor Pallady, 10 minute metrou 1 Decembrie 1918, stradal
310.000 €
Theodor Pallady, 10 minute metrou 1 Decembrie 1918, stradal
310.000 €
Caracteristici
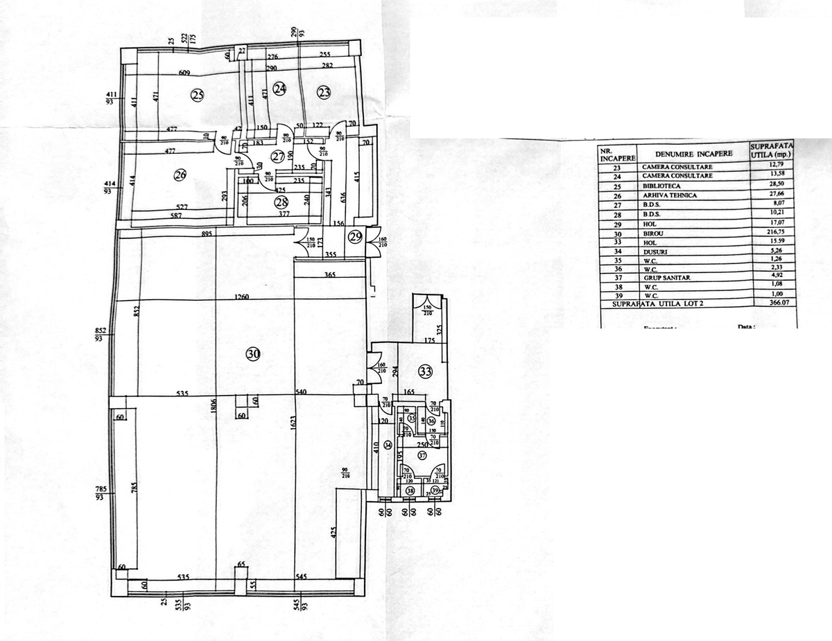
Suprafata utila 366 mp
Sp. depozitare
Detalii Suplimentare: curent electric Gaze M 8 min.
Detalii Suplimentare: curent electric Gaze M 8 min.
Descriere
Va propunem spre vanzare un spatiu de depozitare situat pe Bulevardul Theodor Pallady, la aproximativ 10 minute de statia de metrou 1 Decembrie 1918, intr-un imobil stradal cu acces facil.
Spatiul este amplasat la etajul 5 din 6 si are o suprafata generoasa, fiind compartimentat eficient, cu zone open-space si incaperi separate, ideal pentru depozitare, arhivare, productie usoara sau activitati logistice.
Anul de contructie cladire este 1984.
Caracteristici principale:
inaltime utila 2,60 m
doua grupuri sanitare
compartimentare flexibila
spatiu luminos, cu ferestre pe mai multe laturi
imobil dotat cu 3 lifturi, dintre care 2 lifturi de marfa de mare tonaj
Accesul este facil pentru marfa si personal, iar pozitionarea ofera conectivitate excelenta catre zonele industriale si comerciale din estul Capitalei.
Spatiul este disponibil imediat.
Va asteptam la vizionare!
Spatiul este amplasat la etajul 5 din 6 si are o suprafata generoasa, fiind compartimentat eficient, cu zone open-space si incaperi separate, ideal pentru depozitare, arhivare, productie usoara sau activitati logistice.
Anul de contructie cladire este 1984.
Caracteristici principale:
inaltime utila 2,60 m
doua grupuri sanitare
compartimentare flexibila
spatiu luminos, cu ferestre pe mai multe laturi
imobil dotat cu 3 lifturi, dintre care 2 lifturi de marfa de mare tonaj
Accesul este facil pentru marfa si personal, iar pozitionarea ofera conectivitate excelenta catre zonele industriale si comerciale din estul Capitalei.
Spatiul este disponibil imediat.
Va asteptam la vizionare!
6.128 vizualizari
Bucuresti, Sector 3, ieri; 20:00
Actualizat 28 Februarie '26
Actualizat 28 Februarie '26
Statii metrou
| 1 Decembrie 1918 (M3) | 8 min | |
| Nicolae Teclu | 17 min | |
| Nicolae Grigorescu | 27 min |
Statii STB
| I.O.R. 2 | 4 min | |
| Ozana | 7 min |
