Dristor 2 ...
5 min.
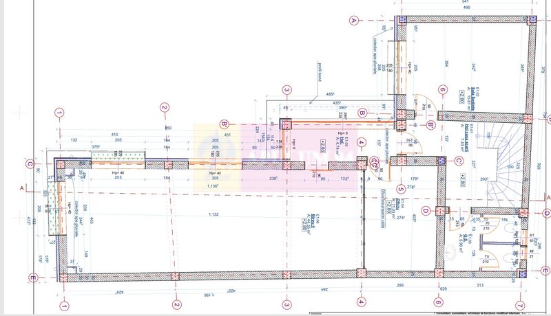
calculeaza distantaCladire individuala 260 mp, rooftop, parcare, ideal clinica/IT O cladire intreaga, pentru firma ta.
Situata langa ansamblul InCity Residence si Mall Vitan, aceasta cladire complet refacuta ofera ceea ce gasesti rar in Bucuresti: un sediu reprezentativ, independent, linistit – dar cu acces rapid la metrou si la toate facilitatile urbane care conteaza.
Ce primesti efectiv :
260 mp utili | 320 mp construiti | Teren 250 mp
- 6 camere | 3 bai | Deschidere frontala ~7 m
- 3 terase generoase: 33 mp + 16 mp + rooftop panoramic 50 mp
- Curte libera 50 mp
- 4 locuri de parcare incluse in pret
- Optional: inca 6 locuri de parcare, contra cost
Finisajele sunt in executie acum – ceea ce inseamna ca mai exista fereastra in care compartimentarea poate fi ajustata dupa nevoile tale, inainte sa fie totul finalizat. Durata aprox 2-3 luni.
De ce conteaza asta :
Nu esti la etajul 4 dintr-o cladire cu 20 de firme. Nu imparti holul sau parcarea cu nimeni.
Ai tot imobilul – intrare proprie, identitate vizuala proprie, atmosfera pe care o controlezi tu. Pentru clienti, parteneri sau echipa, diferenta se simte imediat.
Se potriveste ideal pentru:
- Clinici medicale, stomatologice sau de estetica
- Cabinete de avocatura sau firme de contabilitate
- Agentii de marketing, IT, design sau comunicare
- Orice companie care vrea sediu propriu, nu un spatiu anonim intr-o cladire de birouri
Pret si conditii :
4.990 € + TVA / luna – intreaga cladire, la cheie
Exista flexibilitate reala la negociere pentru chiriasii care preiau spatiul in faza de amenajari – inclusiv posibilitatea de a personaliza finisajele sau distributia spatiilor.
Vizionarile se fac exclusiv pe baza de programare.
Spatiul nu se preteaza vizitelor intamplatoare – si nici clientii potriviti nu sunt intamplatori.
Contactati-ma direct pentru detalii sau pentru a stabili o intalnire la fata locului.
Statii metrou |
Timp | |
![]() |
Dristor 2 | 5 min. |
![]() |
Piața Muncii M1 | 18 min. |
| 1. |
Gradinita Nr. 239 sector 3
0213245490 Str. Dristorului, nr. 102, sector 3 |
||
| 2. |
Mica Printesa - Gradinita, after school Bucuresti
0744321574; 0744703973 Str. Vulcan Judetu, nr. 16, sector 3, |
||
| 3. |
Little Princess 2 - After School / Before School Bucuresti
0744703973; 0744321574; 0756070390 Str. Vulcan Judetu, Nr. 16, Sector 3, Bucuresti |
||
| 4. |
Capsunica - Gradinita sector 3
0765516162 Str. Constantin Nottara, nr. 27, sector 3 |
||
| 5. |
Smart Steps - Gradinita , After School sector 3
0733965133 Str. Dristorului, nr. 91-95, bl. E, Parter, sector 3 |
||
| 6. |
Centrul Educational Fecioara Maria - Cresa, Gradinita Bucuresti
0799741474; 0770574645 Str. Eufrosina Popescu, Nr. 30, Sector 3, Bucuresti |
||
| 7. |
Puiutul Pufos - Gradinita Bucuresti
0740140968; 0213440010 Str. Emanoil Marius Buteica, Nr. 30, Sector 3, Bucuresti |
||
| 8. |
Little Princess 1 - Cresa, Gradinita Bucuresti
0756070390; 0744321574; 0744703973 Str. Popa Stoica Farcas, Nr. 64-66, Sector 3, Bucuresti |
||
| 9. |
Bulgarasi de Aur - Before & After School Bucuresti
0723398829 Str. Cogalnic, nr. 30, sector 3 |
||
| 10. |
Teach Little People - Centru educational, Bucuresti
0727401433 Str. Alexander von Humboldt, nr. 2, sector 3 |
||
| 11. |
Iuladi Kids - Cresa, gradinita Bucuresti
0769088777 Str. Breaza, Nr. 78, Sector 3 |
||
| 12. |
ERA Kinderland - Gradinita, after school in limba germana sector 3
0728850073; 0213207697 Str. Dristorului, nr. 67, sector 3 |
||
| 13. |
Castelul Fermecat - Gradinita, After School Bucuresti
0745770001; 0752314458; 0765957032 Drumul Murgului, Nr. 32, Sector 3, Bucuresti |
||
| 14. |
Abcdino, Gradinita - Bucuresti
0213231070; 0725929616; 0745397739 Str. Chiparosului, Nr. 31, Sector 3, Bucuresti |
||
| 15. |
Little Oaks Academy - Gradinita sector 3
0766572126; 0766572127 Sos. Mihai Bravu, Sos. Mihai Bravu nr. 286, sector 3 |
||
| 16. |
Little Star - Gradinita, After School sector 3
0745531279; 0724506631 Str. Alexandru Magatti, nr. 13 A , sector 3 |
||
| 17. |
Kiga 99 Luftballons - Gradinita, After School in limba germana Bucuresti
0722395197; 0745423467 Str. Theodor Sperantia, nr. 81, sector 3 |
||
| 18. |
Legolas - Centru Educational sector 3
0787322298; 0787460258; 0787298295 Str. Nucului, nr. 55, sector 3 |
||
| 19. |
Kids Power - Centru educational holistic pentru copii Bucuresti
0741248260 Str. Nucului, nr. 55, sector 3 |
||
| 20. |
Gradinita Floare de colt (nr. 64) sector 3
0213464899 Str. Schitului, nr. 1D, sector 3 |
||
| 21. |
Gradinita Nr.161 (Brandusa) sector 3
0314250834; 0314250835 Str. Branduselor, Nr. 37/43, sector 3 |
||
| 22. |
Bob de Grau, Gradinita si Cresa - Bucuresti
0720446942 Str. Agricultori, Nr. 142, Sector 3, Bucuresti |
||
| 23. |
Just4Kids - Scoala Gimnaziala cu nivel gimnazial, primar si prescolar Bucuresti
0739674601 Str. Vantului, Nr. 27, Sector 3, Bucuresti |
||
| 24. |
A&M afterschool Bucuresti
0723371319 Bd. Camil Ressu, Nr. 33, bl. N4, sc. 1, ap. 4, int. 4, sector 3, |
||
| 25. |
Piccolo Grande - After School, loc de joaca sector 3
0754200258 Intr. Patinoarului, nr. 52, Sector 3 |
||
| 26. |
Gradinita nr. 3 - sector 3
0213464112 Str. Plt. Nedelcu Ion, Nr. 31, sector 3 |
||
| 27. |
Arlechino & Friends - Gradinita si afterschool - Bucuresti
0723264032; 0749028820; 0213260584 Str. Cezar Boliac, Nr. 22-24, Sector 3, Bucuresti |
||
| 28. |
Centrul Educational Nectarel - Afterschool Bucuresti
0740221854 Str. Baba Novac, nr. 17, sector 3 |
||
| 29. |
Saga Kid - After School sector 3
0743266500; 0756169135 Str. Campia Libertatii, nr. 44, sector 3, |
||
| 30. |
Dumbo Kids Academy - Cresa, Gradinita, Before & After School sector 3
0722320023 Intr. Patinoarului, nr. 42A, sector 3 |
||
| 31. |
Bambi Step by Step- Gradinita Bucuresti
0213273256; 0317102928 Str. Gh. Dem Teodorescu, Nr.16 bis, Sector 3, Bucuresti |
||
| 32. |
Kids\' World Nursery School - Gradinita Bucuresti
0771242641 Bd. Basarabia, Nr. 2, Sector 3 |
||
| 33. |
Sincron - Gradinita, After School Sector 3
0722243877 Calea Vitan, nr. 206, sector 3 |
||
| 34. |
WhizKidz Hub - Afterschool, Centru educational Bucuresti
0742602260 Str. Gradinarilor, nr. 14, Sector 3 |
||
| 35. |
Aurora - Gradinita & After School sector 3
0744317320; 0213224168 Str. Moise Nicoar?, nr. 9-11, sector 3 |
||
| 36. |
International Kindergarten & Nursery - Gradinita Bucuresti
0723248978; 0314327798 Str. Claudiu, Nr. 26, Sector 2, Bucuresti |
||
| 37. |
Academia Fantastica - Gradinita, Before & After School sector 3
0731027321; 0723337393; 0213065370 Str. Moise Nicoara, Nr. 7, Sector 3 |
||
| 38. |
Letitia - After school sector 3
0733919066; 0722882558 Str. Baba Novac, nr. 19A,Belvedere Residence, sector 3 |
||
| 39. |
Plusica - Gradinita & Afterschool sector 3
0768596856 Str. Drumeagului, nr. 51, sector 3 |
||
| 40. |
Family Kids, Gradinita si After School - Bucuresti
0722565657; 0723281551 Str. Mugur Mugurel, Nr. 21, Sector 3, Bucuresti |
||
| 41. |
Gradinita nr. 24 sector 3
0213441760 Str. Locotenent Pascu Nicolae, nr. 12, sector 3 |
||
| 42. |
Dandi Kids, Gradinita & After School - Bucuresti
0726758303 Str. Rasovita, Nr. 18, Sector 3, Bucuresti |
||
| 43. |
Gradinita Nr. 255 sector 3
0213462996; 0213462994 Bd. Energeticienilor, Nr. 3, sector 3 |
||
| 44. |
OLIMPIA KIDS - gradinita particulara, cresa si after school Bucuresti
0731680372 Drumul intre Vii, Nr. 24, Sector 3 |
||
| 45. |
Mell - Gradinita cu Program Normal sector 3
0744564426; 0722958683 Str. Vlad Dracu, nr. 43, sector 3 |
||
| 46. |
Castelul Fermecat Olimpia - Gradinita, scoala primara, Afterschool, Bucuresti
0731680372 Drumul intre Vii, Nr. 24, Sector 3, Bucuresti |
||
| 47. |
Smiley After School sector 2
0727401829 Bd. Basarabia, nr. 62A, sector 2 |
||
| 48. |
Noel - Gradinita & After School Bucuresti
0728459857; 0725839363 Str. Trifoi, Nr. 10, Sector 3, Bucuresti |
||
| 49. |
Kindi - Centru de educatie timpurie Montessori, Bucuresti
0726876873 Str. Delea Veche, Nr 35, sector 2 |
||
| 50. |
Sf. Imparati Constantin si Elena, Gradinita Bucuresti
0722237110; 0722293056; 0213261361 Str. Labirint, Nr. 137 B , Sector 3, Bucuresti |
||
| 51. |
Cresa Ciobanasului
0213223085 Str. Ciobanasului, nr. 23, sector 2, |
||
| 52. |
Once Upon a Time - Centrul educational adlerian Bucuresti
0770590487 Str. Ciobanasului, Nr. 22A, Sector 2 |
||
| 53. |
Castelul Bucuriei - Gradinita Bucuresti
0730515181 Str. Vasile Voiculescu, nr. 30, sector 3 |
||
| 54. |
Palatul Copiilor - Gradinita, After School sector 3
0740673742; 0314251635 Str. Morilor, Nr. 19, sector 3 |
||
| 55. |
Piticul Curajos - Gradinita, After School sector 3
0749607276; 0314373583; 0213240124 Str. Copaceni, Nr. 64, sector 3 |
||
| 56. |
Pick Me Academy - Gradinita si scoala, Bucuresti
0726000640 Str. Slt. Pompiliu Manoliu, Nr. 7,Sector 2, Bucuresti |
||
| 57. |
Gradinita nr. 71 sector 3
0213480894 Aleea Fuiorului, nr. 9 , sector 3 |
||
| 58. |
Mihai Ionescu - Gradinita, Scoala, Liceu Bucuresti
0213235495 Str. Parfumului, Nr. 31, Sector 2, Bucuresti |
||
| 59. |
Copiii Montessori - Gradinita sector 3
0721204642 Str. Labirint, nr. 95, Sector 3 |
||
| 60. |
Centrul Educational Nordic sector 4
0786391446 Splaiul Unirii, Nr. 176, Corp D3, Sector 4 |
||
| 61. |
Kids First - Gradinita Bucuresti
0748880866; Varnavelena@gmail.com Str. Sica Alexandrescu, nr. 20, Sector 2, |
||
| 62. |
Oxigen Sport - Befor School, After School Bucuresti
0722529429 Str. Duzilor, Nr. 23, sector 2, Bucuresti |
||
| 63. |
Dreamland - Gradinita Bucuresti
0787521511 Str. Plugarilor, nr. 20-22, Sector 4, Bucuresti |
||
| 64. |
Land of Kids Afterschool sector 2
0766831831; 0726733314 Str. Constantin Tanase, Nr. 22, Sector 2 |
||
| 65. |
Max und Moritz Kinder - Gradinita limba germana & After School Bucuresti
0726374434 Str. Plugarilor, Nr. 24, Sector 4, Bucuresti |
||
| 66. |
Montessima Educational - Afterschool zona Iancului, Bucuresti
0771421104 Str. Constantin Zlatescu, nr. 12, sector 2 |
||
| 67. |
City Kids - Gradinita si afterschool Bucuresti
0756862825 Str. Ruschita, Nr. 41, sector 2 |
||
| 68. |
KeiKo AfterSchool Bucuresti
0748880866 Str. Magura Vulturului, nr. 6, Sector 2 |
||
| 69. |
Funny Clown, Gradinita & After School - Bucuresti
0740806356 Str. Ruschita, Nr. 41, Sector 2, Bucuresti |
||
| 70. |
Universul Zambetelor - Gradinita si Cresa Bucuresti
0765410512 Str. Lunca Dunarii, nr. 7, sector 3 |
||
| 71. |
Cresa Potcoava (Titan II) sector 3
0213244810; 0213244880 Str. Pictor Gheorghe Tattarescu, nr. 10, sector 3 |
||
| 72. |
Bell - Gradinita, Afterschool Bucuresti
0728694516 Str. Mecet, Nr. 53, Sector 2 |
||
| 73. |
Acorns British Style Nursery, Gradinita & After School, Bucuresti
0722476581; 0788418186 Str. Popa Soare, Nr. 63, Sector 2, Bucuresti |
||
| 74. |
Gradinita nr. 69 sector 3
0213244141; 0213240000 Bd. Pictor Nicolae Grigorescu, nr. 14, sector 3 |
||
| 75. |
PRO Academy Afterschool
0744501156 Str. Sibiel, nr. 6, Sector 4 |
||
| 76. |
Gradinita Nr. 256 Bucuresti
0212506222 Str. Atanase Ionescu, Nr. 25, Sector 2 |
||
| 77. |
Gradinita Nr. 241 (Pestisorul De Aur) sector 3
0213482910 Str. Rotunda, nr. 19, Sector 3 |
||
| 78. |
Luminita - Gradinita sector 2
0212503180 Sos. Iancului, nr. 4A, sector 2 |
||
| 79. |
Gradinita Magica, Bucuresti
0765221341; 0723892378 Str. Stefan Mihaileanu, Nr. 33, Sector 2, Bucuresti |
||
| 80. |
Robotics School - After School, ateliere de robotica Bucuresti
0721861565 Aleea Barajul Cucuteni, nr. 2, Bl M4A, sector 3 |
||
| 81. |
Lauder-Reut Kindergarten - Gradinita Bucuresti
0318055772; 0723098800; 0735505395 Str. Iuliu Barasch, Nr. 15, Sector 3, Bucuresti |
||
| 82. |
Iulia Pantazi - Centrul psihologic pentru copii Bucuresti
0745480458; 0317304741 Str. Cernauti, Nr.1, Sector 2, Bucuresti |
||
| 83. |
Central Art Studio - After School/Cursuri Pentru Copii/Scoala de Vara Bucuresti
0745633737; 0765454244 Str. Popa Soare, nr. 29, sector 2 |
||
| 84. |
Praslea cel Voinic - Gradinita & After School Bucuresti
0722773103; 0733839824 Str. Competitiei, Nr. 38, Sector 2, Bucuresti |
||
| 85. |
Ramy\'s Kids - After School sector 3
0723523721 Bd. Nicolae Grigorescu, nr. 46, sector 3 |
||
| 86. |
Clopotel - Gradinita Bucuresti
0212502197 Str. Elev Dridu Georgescu, nr. 2, sector 2 |
||
| 87. |
Licurici - Gradinita sector 4
0314377556; 0767503191 Str. Cuza Voda, nr. 141 A, Sector 4 |
||
| 88. |
Lill put - Centru de educatie nonformala pentru prescolari, Bucuresti
0722647423 Str. Sarafinesti, Nr. 29, sector 2 |
||
| 89. |
Centrul multifunctional Cresa Craiasa Zapezii sector 4
0371360117; 0371360127 Str. Oitelor, nr. 50, sector 4 |
||
| 90. |
Centrul Social Multifunctional Cresa Scufita Rosie sector 4
0733200109; 0372874267; 0372715100, 0372715101 Aleea Tohani, nr. 1, bl.30, sc. 1, parter, sector 4 |
||
| 91. |
B-Happy Afterschool sector 3
0722396590 Intr. Horbotei, nr. 12, bl. 4, parter, sector 3 |
||
| 92. |
Clubul Diandra - Gradinita si After School, Bucuresti
0745075332 Str. Prisaca Dornei, Nr. 2H, Sector 3, Bucuresti |
||
| 93. |
Maya si Prietenii - Cresa, Gradinita sector 2
0755359162 Str. Herta, nr. 32A, Sector 2, |
||
| 94. |
Montessori Edu - Centru educational, Bucuresti
0721833901 Str. Mantuleasa, nr. 21, sector 2 |
||
| 95. |
Happy Kids Project - After school si before school, Bucuresti
0745152802 Sos. Iancului, Nr. 110, Sector 2, Bucuresti |
||
| 96. |
Madi AfterSchool sector 2
0757837644 Str. Herta, nr. 32A, Sector 2 |
||
| 97. |
Garmy Kids - Gradinita si After School Bucuresti
0311060294; 0745342225; 0734784673 Sos. Vitan Birzesti, Nr. 7D-7E, sector 4 |
||
| 98. |
Gradinita Nr. 232 sector 3
0213485518 Str. Patriotilor, nr. 3, sector 3 |
||
| 99. |
Gradinita nr. 188 Castel sector 2
0212504180; 0213179946 Bd. Pierre de Coubertin, nr. 1, sector 2 |
||
| 100. |
Gradinita Nr. 191 sector 3
0213403046; 0213401059 Str. Cozla, nr. 1, sector 3 |
||
| 101. |
Puzzle Edu Center - Centru educational sector 2
0724536293 Str. Gheorghe Pop de Basesti, nr. 17, Sector 2 |
||
| 102. |
Copacelul Vietii - Gradinita Bucuresti
0721464185 Str. Radu Calomfirescu, nr. 9, sector 3 |
||
| 103. |
Gradinita nr. 30 sector 4
0213362078 Bd. Dimitrie Cantemir, nr. 16A, Sector 4 |
||
| 104. |
Strumfisor - Gradinita Bucuresti
0744709237 Bd. Nicolae Grigorescu, Nr. 105 - 109, Sector 3, Bucuresti |
||
| 105. |
Smart Children - After School Bucuresti
0774613480; 0760757410 Str. Prevederii, nr. 6, bl. D2, Ap. 1, Interfon 1, Sector 3, |
||
| 106. |
Sonnenblume Kinderinstitut - Gradinita, Cresa Montessori Bucuresti
0726471469 Str. Calusei, nr. 36, sector 2 |
||
| 107. |
Taramul Magic Voi Reusi - After School sector 2
0727540913 Bd. Chisinau, nr. 6-8, sector 2 |
||
| 108. |
Neverland Afterschool Bucuresti
0742139992 Str. Prisaca Dornei, nr. 16, sector 3 |
||
| 109. |
Clubul Boreal, Gradinita - Bucuresti
0721124249 Str. Valerian Prescurea, Nr. 5, Sector 4, Bucuresti |
||
| 110. |
Copii de Poveste - Gradinita sector 4
0740051582 Str. Poterasi, nr. 5, sector 4 |
||
| 111. |
Micii Poznasi - Cresa, Gradinita Bucuresti
0725911233 Calea Serban Voda, Nr. 22-24, Sector 4 |
||
| 112. |
Domino - Gradinita Bucuresti
0722492047 Str. Constantin Georgian,, nr. 27, sector 2, Bucuresti |
||
| 113. |
Super Start - Gradinita, After School sector 2
0720528738 Bd. Ferdinand I, nr. 156, Sector 2 |
||
| 114. |
Cei Trei Muschetari - Before si After School, Bucuresti
0724384924 Str. Vaselor, Nr. 40, Sector 2, Bucuresti |
||
| 115. |
Anna Afterschool sector 3
0733305865 Aleea Calistrat Hogas, nr. 28 D-E, Sector 3 |
||
| 116. |
Don Castor, Gradinita & After School - Bucuresti
0757073929; 0217945396 Str. Vaselor, Nr. 17A, Sector 2, Bucuresti |
||
| 117. |
Gradinita Nr. 154 sector 3
0213400130 Aleea Barajul Uzului, Nr. 9, sector 3 |
||
| 118. |
Genius Academy - Cresa, Gradinita , Scoala Primara si After School Bucuresti
0724111678; 0744638435 Calea Serban Voda, nr. 145, sector 4 |
||
| 119. |
Ina School - Gradinita si scoala primara, Bucuresti
0722500899 Str. Lacul Gorgova, nr. 2, Sector 2 |
||
| 120. |
Happy Tree - Gradinita & After School Bucuresti
0761600082; 0763630634; 0213401308 Aleea Calistrat Hogas, nr. 28A, sector 3, Bucuresti |
||
| 121. |
Aripi spre Succes - Gradinita si Afterschool sector 3
0740137944 Aleea Manastirea Agapia, nr. 32, Sector 3 |
||
| 122. |
Scufita Rosie - Gradinita sector 4
0766541207 Calea Serban Voda, nr. 170 , sector 4 |
||
| 123. |
Gradinita nr. 231 sector 3
0310699994; 0314370742 Str. Codrii Neamtului, nr. 68, sector 3 |
||
| 124. |
Melba - Centru Educational Bucuresti
0722461015 Str. Lanariei, Nr. 117 , Sector 4, Bucuresti |
||
| 125. |
Ghiocelul - Cresa sector 3
0729330319 Bd. 1 Decembrie 1918, nr. 12-14, sector 3 |
||
| 126. |
Arc-en-Ciel, Gradinita - Bucuresti
0212524665; 0725519386; 0726126808 Str. Ion Heliade Radulescu, Nr. 18, Sector 2, Bucuresti |
||
| 127. |
Dani\'s Children, Cresa, Gradinita, After School - Bucuresti
0721800099 Str. Silvestru, Nr. 42, Sector 2, Bucuresti |
||
| 128. |
BritAcademy, Gradinita in limba engleza - Bucuresti
0740329105 Str. Olimpiadei, Nr. 36, Sector 2, Bucuresti |
||
| 129. |
Martisor AfterSchool sector 4
0727017553 Str. Cararuia, nr. 1, sector 4 |
||
| 130. |
Iepurasul cel Istet - Cresa, Gradinita, After School sector 2
0731488715; 0722121779 Str. Mihai Eminescu, nr. 179, sector 2 |
||
| 131. |
Licurici - Gradinita Bucuresti
0212104790 Bd. Dacia, Nr. 134, Sector2, Bucuresti |
||
| 132. |
Gradinita nr. 216 sector 3
0213400395 Str. Barajul Rovinari, nr. 10, sector 3 |
||
| 133. |
Elite - Cresa, Gradinita Bucuresti
0766687691 Str. Lanariei, Nr. 136, Sector 4, Bucuresti |
||
| 134. |
Gradinita nr. 70 sector 3
0213400228 Str. Lucretiu Patrascanu, nr. 12, sector 3 |
||
| 135. |
Paradisul Copiilor - Gradinita & After School Bucuresti
0730007062 Str. G-ral. Haralambie Nicolae, Nr. 38, Sector 4, Bucuresti |
||
| 136. |
Prikindel - Cresa, Gradinita & After School - Bucuresti
0314059269; 0722522198 Str. Sf. Ilie, nr. 5, sector 4, |
||
| 137. |
Lumea lui Momo - Gradinita Bucuresti
0748055255 Str. Ipotesti, Nr. 23, Sector 4 |
||
| 138. |
Casuta cu ferestre - Gradinita Bucuresti
0721660052 Str. Gheorghe Lupu, nr. 19, sector 4 |
||
| 139. |
Martisor - Gradinita sector 4
0213325936 Str. Daracului, Nr. 11, Sector 4 |
||
| 140. |
Academia Gifted International, Gradinita & After School - Bucuresti
0724381661; 0722277090 Str. Sold. Simion Stefan, nr. 39, sector 4, Bucuresti |
||
| 141. |
Diamond Kids - Cresa, Gradinita si After School Bucuresti
0751048000 Str. Trapezului, nr. 44, Sector 3 |
||
| 142. |
Gradinita Nr. 211 sector 3
0213451165 Str. Trapezului, Nr. 1A, sector 3 |
||
| 143. |
Kids Palace - Gradinita & After School Bucuresti
0722612031 Str. Obolului, Nr. 10, Sector 4, Bucuresti |
||
| 144. |
Gradinita Nr. 196 sector 3
0213450636 Str. Plutonier Ionescu Petre, nr. 76, sector 3 |
||
| 145. |
Pisicile Aristocrate - Gradinita sector 4
0213350635; 0213363680 Bd. Regina Maria, nr. 28-30, Sector 4 |
||
| 146. |
La Turn - Gradinita sector 2
0212751772; 0732122336 Sos. Morarilor, Nr.1, Sector 2 |
||
| 147. |
Gradinita Nr. 280 sector 2
0212557980; 0212550205 Str. Delfinului, nr. 4, sector 2 |
||
| 148. |
Gradinita Montessori Livada cu copii sector 2
0757467127; 0721204642 Str. Toamnei, nr. 76-78, sector 2 |
||
| 149. |
Stelutele, After School - Bucuresti
0734716769 Str. Vitioara, Nr. 46, Sector 3, Bucuresti |
||
| 150. |
Mini Club Condor - Gradinita, Bucuresti
0725211112; 0722368662; 0314310407 Str. Col Iosif Albu, Nr. 80 Sector 3, Bucuresti |
||
| 151. |
Gradinita Nr. 257 Alice sector 2
0212114524 Str. Alexandru Donici, Nr. 23, sector 2 |
||
| 152. |
Cresa Greierasul sector 3
0737799585 Str. Plutonier Major Marin Pazon, nr. 2, sector 3 |
||
| 153. |
Clubul Copiilor Sector 2 - Bucuresti
0212106432 Intr. Cobilitei, Nr. 8, Sector 2, Bucuresti |
||
| 154. |
Buna Vestire - Gradinita, After School sector 4
0787435172 Str. Episcopul Chesarie, nr. 9, Sector 4 |
||
| 155. |
Elefantelul curios- Afterschool & more, sector 4
0767332115; 0727222015 Bd. Constantin Brancoveanu, Nr. 7D, sector 4 |
||
| 156. |
Bufnita din Tei - Club de educatie nonformala si activitati recreative
0751020362 Str. Sg. Nitu Vasile, nr. 26, Sector 4 |
||
| 157. |
Big Smile - Gradinita, scoala primara, After School Bucuresti
0722557333 Str. Cutitul de Argint, nr. 74, sector 4, Bucuresti |
||
| 158. |
Gradinita Nr. 203 Bucuresti
0213112352 Str. C. A. Rosetti, nr. 32, Sector 1 |
||
| 159. |
Maria Ward - Gradinita sector 4
0722789787 Calea Serban Voda, nr. 223, sector 4 |
||
| 160. |
Alice si Taramul Fermecat - Afterschool, Bucuresti
0741495713; 0748013790 Str. Jean Alexandru Steriadi, Nr. 14D, Sector 3, Bucuresti |
||
| 161. |
Ray of Light Montessori - Gradinita, Bucuresti
Str. Gladiolelor, Nr. 15, sector 4 |
||
| 162. |
Jolly Pepe - Club educational pentru copii si adulti, Before&After School sector 4
0748080088 Str. Mitropolit Grigore, nr. 4A, parter, sector 4 |
||
| 163. |
Marilank - Gradinita si cresa Bucuresti
0768316808 Strada Lemnisorului, Nr 21-27, Sector 3 |
||
| 164. |
Children\'s Joy, Gradinita & After School - Bucuresti
0731258277; 0754317732 Str. Gramont, Nr. 3, Sector 4, Bucuresti |
||
| 165. |
Castelino Baby - Gradinita Bucuresti
0731995600 Str. Prof. Ion Ursu, nr. 21, sector 2, |
||
| 166. |
Gradinita Nr. 133 sector 2
0212116749 Str. Aurel Vlaicu, nr. 30 - 32, sector 2 |
||
| 167. |
Gradinita Nr. 160 sector 3
0213453650 Aleea Perisoru, nr. 9, sector 3 |
||
| 168. |
Gradinita Nr. 189 Malaxa Bucuresti
0212554870 Sos. Vergului, Nr. 12, Sector 2, Bucuresti |
||
| 169. |
Gradinita nr. 277 Steluta sector 2
0212551195 Sos. Vergului, nr. 14, Sector 2 |
||
| 170. |
Gradinita Happy Junior - Bucuresti
0724229250; 0730309647 Sos. Berceni, Nr. 8, Sector 4, Bucuresti |
||
| 171. |
Apostol - After School sector 2
0740951411 Str. Seneslav Voievod, Nr. 55, Sector 2 |
||
| 172. |
Ingerul Albastru - Centrul educational pentru copii, Bucuresti
0727868575 Str. Serg Cuibaru Ion, Nr. 44, sector 3 |
||
| 173. |
Teddy Club - Club educational , After school Bucuresti
0732138368; 0723188995 Str. Duminicii, nr. 16, sector 4 |
||
| 174. |
Zambete Colorate - Gradinita Ilfov
0749262383 Sos. Dobroesti, Nr. 30, judetul Ilfov |
||
| 175. |
Gradinita Nr. 168 sector 5
0213363515 Sos. Viilor, nr. 99, sector 5 |
||
| 176. |
Roxy Baby - Cresa Particulara Bucuresti
0314254309; 0723274924 Str. Slobozia, Nr. 29 , Sector 4, Bucuresti |
||
| 177. |
Junior School - Gradinita Bucuresti
0751223159 Str. Calimachi, nr. 17, Sector 2, |
||
| 178. |
Ioanid - Gradinita Bucuresti
0758054441 Str. Polona, Nr. 4, Sector 1, |
||
| 179. |
Centrul social multifunctional cresa Degetica sector 4
0733200060 Aleea Mirea Mioara Luiza, nr. 1A, sector 4 |
||
| 180. |
Veverita Jucausa - Gradinita sector 2
0726224859 Str. Litovoi Voievod, Nr. 38, Sector 2 |
||
| 181. |
Tom Sawyer - Gradinita sector 2
0722529958 Str. Bratului, nr. 14, sector 2 |
||
| 182. |
Gradinita nr. 68, sector 3
0213450038; 0213450030 Str. Gura Ialomitei, nr. 20, sector 3 |
||
| 183. |
BBIS Bucharest-Beirut International School
0744309199; 0314381572 Sos. Vergului, Nr. 14, Sector 2, Bucuresti |
||
| 184. |
Zoom Kids Academy - Afterschool Sector 4
0756155660 Str. Stejarisului, nr. 13, Sector 4 |
||
| 185. |
Gradinita cu program prelungit Nr. 135
0212421805 Str. Masina de Paine, nr. 65, sector 2 |
||
| 186. |
Iepurasul Bocanila - Scoala si Gradinita sector 4
0722320773; 0722239508; 0214602246 Str. Iarba Campului, nr. 91, sector 4, judetul Brasov |
||
| 187. |
Gradinita nr. 269 sector 5
0213354544 Str. Constantin Miculescu, nr. 12, sector 5 |
||
| 188. |
Ana Lugojana - Gradinite, Scoala Primara, Gimnaziala si After School Bucuresti
0724342409 Str. Constantin Miculescu, nr. 10, sector 5, Bucuresti |
||
| 189. |
Little Primary Education - Gradinita Bucuresti
0733331333 Intr. Docherilor, Nr. 3, Sector 2 |
||
| 190. |
Nicoland - Cresa, Gradinita Bucuresti
0766237114 Str. Raspantiilor, Nr. 7, Sector 2 |
||
| 191. |
Gradinita nr. 23 sector 2
0216275013; 0212550840 Str. Soldat Gheorghe Raduta, nr. 1, sector 2 |
||
| 192. |
Alfred Fronius - Gradinita si afterschool in limba germana Bucuresti
0729699619; 0726715499 Str. Tunari, Nr. 39, Sector 2, Bucuresti |
||
| 193. |
Alfred Fronius - Gradinita si afterschool in limba germana Bucuresti
0372978427; 0726715499 Str. Tunari, Nr. 39 (zona Stefan Cel Mare), sector 2 |
||
| 194. |
RosaMaria - Gradinita, cresa Bucuresti
0746808080 Str. Silvia, Nr. 18, Sector 2 |
||
| 195. |
Casuta cu Pitici Mari si Mici - Gradinita, Afterschool Bucuresti
0722626268 Str. Silvia, nr. 11, Sector 2, Bucuresti |
||
| 196. |
Centrul Educational BUBU
0735531156 Sos. Pantelimon, Nr. 355, sector 2 |
||
| 197. |
Evia Kids Afterschool Bucuresti
0734464388 Str. Bradetului, nr. 7, sector 4 |
||
| 198. |
Copil Dorit - Gradinita Bucuresti
0736820068; 0722166358 Sos. Viilor, Nr. 33, Sector 5, Bucuresti |
||
| 199. |
Gradinita nr. 276 Bucuresti
0212423280 Str. Corabia, nr. 57, sector 2 |
||
| 200. |
Gradinita nr. 138 sector 2
0212106377 Str. Tunari, nr. 52, sector 2 |
||
| 201. |
Centrul Multifunctional Cresa Dumbrava Minunata sector 4
0733200115; 0372715100; 0372715101 Str. Stoian Militaru, nr. 84, sector 4 |
||
| 202. |
Maria International School - Gradinita, Scoala primara si afterschool Bucuresti
0730432092 Str. Piata Amzei, Nr. 6, Sector 1, Bucuresti |
||
| 203. |
Gradinita nr. 262 Alba ca Zapada si Piticii sector 4
0213324435 Str. Crisul Alb, nr. 30, sector 4 |
||
| 204. |
Step Up After School
0723795703; 0723544019 Str. Vultureni, nr. 85, Sector 4 |
||
| 205. |
Ciupercuta - Gradinita sector 4
0213324431 Str. Stoian Militaru, nr. 86-90, sector 4 |
||
| 206. |
Cartea cu Povesti - Gradinita Bucuresti
0766237114 Str. Aurel Vlaicu, nr. 127A, sector 2, |
||
| 207. |
Gradinita nr. 73 sector 5
0213154355 Splaiul Independentei, nr. 68, sector 5 |
||
| 208. |
Iilo - Gradinita & After School Bucuresti
0720702910 Str. Iarba Campului, Nr. 4, Sector 4, Bucuresti |
||
| 209. |
Centrul Social Multifunctional Cresa Mica Sirena sector 4
0371360124; 0733200077 Aleea Emil Racovita, nr. 2B, sector 4 |
||
| 210. |
Springfield Education - Gradinita si After School Bucuresti
0734710573; 0721707879 Str. Soltuzului, Nr. 10, Sector 2, Bucuresti |
||
| 211. |
Gradinita nr. 233 sector 2
0216884518 Str. Antonescu Petre, nr. 20, Sector 2 |
||
| 212. |
Gradinita Dumbrava Minunata (nr 193) sector 4
0214608287 Aleea Terasei, nr. 8, sector 4 |
||
| 213. |
Waldorf Christophori - Gradinita Bucuresti
0770861602 Str. Putul cu Plopi, Nr. 8, (langa Parcul Cismigiu) - sector 1, Bucuresti |
||
| 214. |
Tic-Pitic, Gradinita & After School - Bucuresti
0729119398; 0722769224; 0314377383 Str. Cap. Costescu Petre, Nr. 26, Sector 4, Bucuresti |
||
| 215. |
Club Clever Kids - After School sector 4
0723791058 Str. Preda Buzescu, nr. 12, Sector 4 |
||
| 216. |
Gradinita Strop de Roua nr. 199 sector 4
0214610336 Str. Emil Racovita, nr. 23, Sector 4 |
||
| 217. |
Sarida Kids Club - Prescolari, After school, Scoala de vara, Cursuri, Bucuresti
0726528844; 0760132301 Str. Crisul Alb, Nr. 9-13, Sector 4, Bucuresti |
||
| 218. |
Smart Kinder Villa - Before & After School Bucuresti
0726285699; 0728472197 Str. Nicolae Beldiceanu, nr. 2, sector 1 |
||
| 219. |
Liebe Kinder - Gradinita, Bucuresti
0785378672; 0726349658 Str. Petre Costescu, Nr. 42, sector 4 |
||
| 220. |
Puisor - Gradinita Nr. 268 Bucuresti
0214104010 Str. Ion Creanga, Nr. 8, Sector 5, Bucuresti |
||
| 221. |
Taramul Cunoasterii - Cresa si Gradinita Bucuresti
0724278826 Str. Ioan G. Bibicescu, Nr. 11, Sector 1, Bucuresti |
||
| 222. |
Don Quijote - Afterschool Bucuresti
0725737793 Str. Ioan Slavici, nr. 4, sector 1 |
||
| 223. |
Gradinita Nr. 252 Bucuresti
0212302296 Calea Dorobantilor, nr. 60, sector 1 |
||
| 224. |
Zuppy - Gradinita, After School sector 2
0753915058 Str. Otesani, nr. 69, Sector 2 |
||
| 225. |
Rainbow Kids - Gradinita si scoala primara Bucuresti
0737081690; 0773349170 Str. Ion Dragalina, Nr. 8, Sector 5, Bucuresti |
||
| 226. |
Dora - gradinita particulara, After School Bucuresti
0740156885; 0744644705 Str. Farului, nr. 3, sector 4, Bucuresti |
||
| 227. |
IQ-Est - Gradinita & After School Popesti Leordeni
0726758183 Str. Sfantul Gheorghe, nr. 5B, Popesti Leordeni, judetul Ilfov |
||
| 228. |
Castelul Copiilor din Tei, Gradinita - Bucuresti
0212109962; 0764738888; 0739770707 Str. Sfanta Treime, Nr. 28, Sector 2, Bucuresti |
||
| 229. |
Sfanta Agnes - Gradinita cu program prelungit Popesti Leordeni
0213615041 Str. Oltenitei, nr. 6, Popesti-Leorden, judetul Ilfov |
||
| 230. |
Gradinita nr. 225 Veseliei sector 4
0214502917; 0214502915 Str. Izvorul Muresului, nr. 6, sector 4 |
||
| 231. |
Centrul Social Multifunctional Cresa Micii Magicieni sector 4
0371360128 Str. Izvorul Muresului, nr. 4 |
||
| 232. |
Sfantul Nicolae, Gradinita & After School - Bucuresti
0729611918 Str. Sirenelor, Nr. 56-58, Sector 5, Bucuresti |
||
| 233. |
Gargarita - Gradinita sector 4
0744393654 Str. Dumbr?veni, nr. 35, Sector 4, judetul Brasov |
||
| 234. |
Gradinita cu Program Normal si Prelungit nr. 242 sector 5
0214502538 Str. Magurei, nr. 8, sector 5 |
||
| 235. |
Fridolin - Gradinita, Scoala Germana Bucuresti
0723219616; 0723584872 Str. Temisana, Nr. 1, Sector 1, Bucuresti |
||
| 236. |
Cresa Sinaia sector 2
0212403528 Aleea Sinaia, nr. 4, sector 2 |
||
| 237. |
Gradinita MAPN Nr. 2 Bucuresti
0213156889 Str. Constantin Cristescu, nr. 5, sector 1 |
||
| 238. |
Edu Friends - Before & After School Bucuresti
0783080096 Str. Berzei, Nr. 5, Sector 1 |
||
| 239. |
Gradinita Nr. 7 Bucuresti
0212421714 Str. Maica Domnului, Nr. 61 - 63, Sector 2 |
||
| 240. |
Prichindel, Gradinita & After School - Bucuresti
0216861856; 0745022748 Str. Grigore Voda, Nr. 28, Sector 4, Bucuresti |
||
| 241. |
Gradinita Nr. 187 sector 3
0212560038 Str. Magnetului, nr. 1, sector 3 |
||
| 242. |
Clubul Micul Print - afterschool Bucuresti
0733750795 Str. Dr. Nicolae Staicovici, Nr. 51, Sector 5, Bucuresti |
||
| 243. |
Gradinita nr. 264 101 Dalmatieni sector 4
0214608206; 0732723053 Str. Aliorului, nr. 5, sector 4 |
||
| 244. |
Lumea Cocoricilor - Centru educational Bucuresti
0728855236 Intrarea Balaci, nr. 9-11, sector 4 |
||
| 245. |
Scoala Italiana Aldo Moro - Gradinita,scoala, liceu, Bucuresti
0212104684 Intr. Blaj, nr. 1, Sector 1, Bucuresti |
||
| 246. |
Cresa Teiul Doamnei Bucuresti
0314104891 Str. Teiul Doamnei, nr. 99, Sector 2 |
||
| 247. |
Electromagnetica - Gradinita sector 5
0218915699; 0214232110 Calea Rahovei, nr. 266, sector 5 |
||
| 248. |
I-kids - Club & Afterschool sector 3
0743355355 Sos. Dudesti - Pantelimon, nr. 99A, sector 3 |
||
| 249. |
Primii Pasi - Gradinita si Cresa Fundeni
0212400469; 0722522898 Str. Sucidava, nr. 27, Sector 2, Bucuresti |
||
| 250. |
Rio - Gradinita & After School Bucuresti
0740025434; 0748633314 Str. Luigi Galvani, Nr. 13A, Sector 2, Bucuresti |
||
| 251. |
Mami si Tati - Gradinita, Before & After School Bucuresti
0721177543; 0762616442 Str. Grigore Alexandrescu, Nr. 58, sector 1, Bucuresti |
||
| 252. |
Gradinita nr. 54 sector 5
0214231217 Calea Ferentari, nr. 96, sector 5 |
||
| 253. |
My Universe - Afterschool si gradinita, Bucuresti
0788416164 Str. Costache Negri, Nr. 9-11, sector 5 |
||
| 254. |
Gradinita nr. 1 Dobroesti
0212556121; 0212553765 Str. Nicolae Balcescu, nr. 16-18, Dobroesti, judetul Ilfov |
||
| 255. |
Kinderakademie - Gradinita & After School Bucuresti
0724661760; 0727427004 Str. Sfintii Voievozi, Nr. 28, Sector 1, Bucuresti |
||
| 256. |
Gradinita nr. 4 sector 4
0214500079 Str. Cetatea Veche, nr. 1, sector 4 |
||
| 257. |
Aron\'s Education Center - Gradinita si After School, Bucuresti
0734709613 Str. Luminoasa, Nr. 8, sector 4, Bucuresti |
||
| 258. |
BeMindful Kids - Gradinita si cresa Bucuresti
0775259518 Str. Nicolae Florescu, Nr. 126, Sector 4 |
||
| 259. |
Paglia - After School sector 4
0745209769 Intr. Gilaului, nr. 5, Sector 4 |
||
| vezi mai multe | |||
| 1. |
Policlinica Baba Novac
0770218336; 0748175572 Str. Baba Novac, nr. 2, sector 3 |
||
| 2. |
Gral Medical - Centrul Medical, Bucuresti
0213230000; 0724242259 (programari radiologie); Fax 0213230002 Str.Traian Popovici (fosta Unitatii), Nr. 79-91, Sector 3, Bucuresti |
||
| 3. |
Centrul Medical Rom Med 2000
0726366370; 0213270441; Tel/Fax 0213206087 Intr. Baba Novac, nr. 4 A, Sector 3, |
||
| 4. |
Clinica Memento Med-Bucuresti
0213260081 Str. Brailita, nr. 1, sector 3, |
||
| 5. |
Cabinet Medical Persepolis- Bucuresti
0749065961; 0751011893 Str. Vasile Toneanu , nr. 20, sector 3, |
||
| 6. |
Vitan Policlinica, Grupare de cabinete medicale - Bucuresti
0727451211; 0213234970; 0213221208 Calea Dudesti, Nr. 104-124, sector 3, Bucuresti |
||
| 7. |
Emergency Medical Care - Servicii medicale de urgenta la domiciliu Bucuresti & Ilfov
0799058058; 0732528136; 0314250213 Calea Vitan, Nr. 109B-109D, Sector 3, Bucuresti |
||
| 8. |
Spitalul Clinic de Boli Infectioase si Tropicale Dr. Victor Babes
0213172727 / .28 / .29/ .30 (Centrala); 0213172721 Sos. Mihai Bravu, nr. 281, sector 3, |
||
| 9. |
Dr. Victor Babes, Spitalul Clinic de Boli Infectioase si Tropicale Bucuresti
0213172727 / .28 / .29/ .30 (Centrala); Fax 021 3172721 Sos. Mihai Bravu, nr. 281, sector 3 , |
||
| 10. |
Centrul Medical Dr. Victor Babes-Bucuresti
0213179503; Fax: 0213179502 Sos. Mihai Bravu nr. 281, sector 3 , |
||
| 11. |
Professional Klinic, Bucuresti - Tratament si analize
0314250805 ; 0742207755 Str.Agricultori, Nr. 115, bloc 79, Parter, Sector 3, Bucuresti |
||
| 12. |
Dr. V. Gomoiu, Spitalul de Copii - Ambulatoriul de specialitate Bucuresti
0314136700; 0314136701; 0314136706 Bd. Basarabia, nr. 21, sector 2, |
||
| 13. |
Spitalul clinic de copii Dr. Victor Gomoiu
0314136700; 0314136701 Bd. Basarabia nr. 21, sector 2, |
||
| 14. |
Clinica Nova ORL - Dr. Voda Ioana Alexandra-Bucuresti
0213254422; 0799848484 Str. Pictor Gh. Tattarascu , nr. 2, subsol Policlinica Globului, in spatele cinematografului Gloria, Baba Novac, sector 3, |
||
| 15. |
Centrul Medical Endocenter-Bucuresti
Tel.0764671233; Fax 0213267660 Str. Arh. G. Sterian, nr. 8, sector 2, |
||
| 16. |
Institutul National de Medicina Sportiva
0213184704 ; 0213184705 ; 0213184706 Bd. Basarabia, nr. 37-39, sector 2, Bucuresti |
||
| 17. |
Omnia Medical Center - Clinica medicala, Bucuresti
0213230034; 0728841841 Bd. Octavian Goga, Nr. 14, Bl. M61, Parter, Sector 3, Bucuresti |
||
| 18. |
Clinica Life-Med-Bucuresti
0319981 Str. Plugarilor , nr. 18,sector 4, |
||
| 19. |
Medisan Family Clinic - Clinica medicala Bucuresti
0217955980 Str. Dr. Calin Ottoi, nr. 20-22, sector 2 |
||
| 20. |
Centrul Medical Veridia-Bucuresti
0213029434 Str. Matei Basarab, nr. 45, sector 3, |
||
| 21. |
Clinica Medicala Medlife-Bucuresti
0219646; 0742299843 Str.Liviu Rebreanu, nr. 8,sector 3, |
||
| 22. |
Spitalul Prof. Dr. Constantin Angelescu
0213233040; 0213233041 Aleea Cauzasi, nr. 49 - 51 sector 3, |
||
| 23. |
SPITALUL PROF. DR. CONSTANTIN ANGELESCU
0213233040; 0213233041 Aleea Cauzasi, nr. 49-51, sector 3, |
||
| 24. |
Village Medical Clinic - Centru medical Bucuresti
0212323580 Str. Constantin Kiritescu, nr. 27, sector 2, |
||
| 25. |
Spitalul Clinic Judetean de Urgenta Ilfov
Tel.0213243312; 0213241161; Fax 0213243296 Bd. Basarabia nr. 49-51, sector 2, |
||
| 26. |
Spitalul Clinic Judetean de Urgenta Ilfov + ambulatoriu-Bucuresti
Tel.021.3243312; 0213241161; Fax .0213243296 Bd. Basarabia nr. 49-51, sector 2 , |
||
| 27. |
Policlinica Titan
0213400335; Fax 0213400745 Bd. Nicolae Grigorescu, nr. 41, sector 3, |
||
| 28. |
Policlinica Iancului-Bucuresti
Tel.0314255277 (laborator); 0212508490 (O.R.L.); 0212503333 Sos. Iancului , nr. 3, sector 2 , |
||
| 29. |
Centrul de Diagnostic romano-german Medinst
0319902 Str.Sfanta Vineri, nr. 29, sector 3, |
||
| 30. |
Centrul Medical Amicus Med
Tel. 0766424841; Tel/Fax 0212508585 Sos. Iancului nr. 17, bl. 106C, sc. 1, ap. 4, sector 2, |
||
| 31. |
Spitalul de Urgenta Prof. Doctor Dimitrie Gerota
0212523334; Fax 0212522829 Str. Vasile Vasilievici Stroescu, nr. 29-31, sector 2, |
||
| 32. |
Prof. Dr. Dimitrie Gerota, Spitalul de Urgenta MAI - Bucuresti
0212523334 Str. Vasile Vasilievici Stroescu, nr. 29-31, sector 2, |
||
| 33. |
Cron Phoenix - Centru de Reabilitare Ortopedica si Neurologica pentru copii Bucuresti
0721567186; 0790667941 Piata Pache Protopopescu, nr. 9, sector 2 |
||
| 34. |
Spitalul Clinic de Ortopedie Traumatologie Foisor-Bucuresti
Tel.0212520057; Fax.0212521387; 0310056786(progamari consultatii) Bd. Ferdinand, nr. 35-37, sector 2 , |
||
| 35. |
Spitalul Clinic de Ortopedie Traumatologie \"Foisor\" + ambulatoriu
Tel. 0310056786; 0212520057; Fax 0212521387 Bd. Ferdinand, nr. 35-37, sector 2, |
||
| 36. |
Policlinica Regina Maria Sun Plaza
0219268 Calea Vacaresti, nr.391, sector 4, mall Sun Plaza, etaj 2, intrarea prin mall, |
||
| 37. |
Podologica - Salon tratament pentru afectiunile picioarelor sector 4
0771458874 Bd. Dimitrie Cantemir, nr. 15, bl.9, sc.6, sector 4, |
||
| 38. |
Hipocrat 2000-clinica medicala-Bucuresti
0219605 Bd. Chisinau, nr. 16, sector 2, |
||
| 39. |
Dr. V. Gomoiu, Centrul Medical Bucuresti
0314136700; 0314136701 Bd. Basarabia nr. 21, sector 2, |
||
| 40. |
Clinica Medicala On
.0213017676 Bd. Dimitrie Cantemir nr. 1, bl. B2, sc. 3, et. 2, sector 4, |
||
| 41. |
Centrul Medical Proctoline-Bucuresti
0213017686- programari Bd. Dimitrie Cantemir , nr. 1, bl. B2, sc. 3, et. 2, sector 4, |
||
| 42. |
Centrul Medical Psoremiss-Bucuresti
0213017696 Bd. Dimitrie Cantemir, nr. 1, bl. B2, sc. 3, et. 2, sector 4, |
||
| 43. |
Centrul Medical Hiperdia-Bucuresti
0219338; Fax 0212507320 Str.Ritmului, nr. 24, sector 2, Bucuresti |
||
| 44. |
Clinica Medicala Estet Laser Medical Center
Tel/Fax 0212531797; 0721241772; 0733625687 Str. Calusei nr. 11, sector 2, |
||
| 45. |
Standard Med-Bucuresti
0722435435; 0314053950 Bd. Carol, nr. 45, ap.5, parter, sector 2, |
||
| 46. |
Donna Medical Center-Bucuresti
0219732 Str. Traian , nr. 234, et.1, sector 2, |
||
| 47. |
Euromedics Stem Life
0800.800.855 (Apel gratuit); 021 311 55 92 Str. Lipscani, Nr. 90A, et. 3, Sector 3 , |
||
| 48. |
Pandora Medical Center - Bucuresti
0213413098; 0732263626 Aleea Calistrat Hogas, Nr. 45B, sector 3 |
||
| 49. |
Spitalul Clinic Coltea
Tel. 0213874100; Fax 0213874101 Bd. I.C. Bratianu, nr. 1, sector 3, |
||
| 50. |
Centrul Medical Focus
Tel. 0317111515; 0733072910 Bd. Ferdinand nr. 141, sector 2, |
||
| 51. |
Spitalul Clinic Coltea
Tel. 0213874100; Fax 0213874101 Bd. I.C. Bratianu, nr. 1, sector 3, |
||
| 52. |
Optim Sano - Centrul Medical Dr. Ion Socoteanu-Bucuresti
0728955844 Str. Salcamilor, Nr. 6A, sector 2, |
||
| 53. |
Institutul National de Recuperare, Medicina Fizica si Balneologie
Tel.0311302300 Str. Sf. Dumitru, nr. 2 - ambulatoriu de recuperare clinica I si II, sector 3, |
||
| 54. |
POLICLINICA CU PLATA NR. 1
Tel. 021.314.81.15; Fax 021.314.81.14 Str. Bati?tei nr. 27, sector 2, |
||
| 55. |
Cabinet Medical Alfa
Tel.0319495 Sos. Oltenitei, nr. 220, bl. 8, sc. 2, ap. 58, sector 4, |
||
| 56. |
CENTRUL MEDICAL BATISTEI
021.313.34.80; 021.313.14.55; 021.315.46.05 Str. Tudor Arghezi nr. 28, sector 2 , |
||
| 57. |
Centrul Medical Dr. Stoia Ion- Bucuresti
0212116848 int.219; 0213175025 Str. Thomas Masaryk , nr. 5, sector 2 , |
||
| 58. |
Societatea Civila Medicala Doctor Popescu Daniel si Asociatii
Tel/Fax 021.336.55.03 Calea Serban Voda, nr. 211, sector 4 , |
||
| 59. |
Spitalul Clinic de Urgenta \"Sf. Ioan\" Bucuresti
Tel. 0213345190; 0213345170; Fax 0213345970 Sos. Vitan Barzesti, nr.13, sector 4, |
||
| 60. |
Institutul National de Diabet, Nutritie si Boli Metabolice \"Prof. Dr. N. Paulescu\"
Tel. 0212108499 (centrala); 0212106460 (secretariat); Fax 0212109092 Str. Ion Movila, nr. 5-7, sector 2 , |
||
| 61. |
Clinica Medicala Sfantul Spiridon Vechi-Bucuresti
0213351378; 0213351379; 0787820066 Piata Natiunilor Unite, nr 5-7, sector 4, Bucuresti |
||
| 62. |
Spitalul Clinic Dr. I. Cantacuzino
Tel. 0212107100; 0212108499 (diabetologie) Str. Ioan Movila, nr. 5-7, sector 2, Bucuresti |
||
| 63. |
Institutul National de Diabet, Nutritie si Boli Metabolice \"Prof. Dr. N. Paulescu\"
0212106460 (secretariat); 0212109092 Str. Ion Movila, nr.5-7, sector 2, |
||
| 64. |
Spitalul Clinic Dr. I. Cantacuzino-Bucuresti
Tel.0212107100; Fax.0212106435 Str. Ion Movila nr. 5-7, sector 2 , |
||
| 65. |
Spitalul Clinic de Urgenta \"Sf. Ioan\" Bucuresti
Tel. 0213345190; 0213345170; Tel/Fax 0213345970 Sos. Vitan-Barzesti nr. 13, sector 4, |
||
| 66. |
Centrul Medical Romedical Int
Tel. 0212100381; 0723288108 Str. Fainari nr. 35, sector 2, |
||
| 67. |
Spitalul Clinic de Urgenta Sfantul Ioan Bucuresti
Tel. 0213345190; 0213345170 Sos. Vitan Barzesti, nr. 13, sector 4, Bucuresti |
||
| 68. |
Policlinica Eforie-Bucuresti
Tel. 0213139922 Str. Eforie, nr. 4, sector 5, |
||
| 69. |
Prof. Dr. Mina Minovici, Institutul de Medicina Legala Bucuresti
0314230700 ; 0213346260 Sos. Vitan Barzesti, nr. 9, sector 4, |
||
| 70. |
Ambulatoriul spitalului Sf. Pantelimon
0212554090; Fax 0212554025 Sos. Pantelimon nr. 340-342, sector 2, |
||
| 71. |
Prof. Dr. Mina Minovici, Institutul de Medicina Legala Bucuresti
0314230708; 0213321156 Sos. Vitan Barzesti, nr. 9-11, sector 4, |
||
| 72. |
Spitalul de Urgenta Sf. Pantelimon + ambulatoriu
0212554090; 0212554025 Sos. Pantelimon nr. 340-342, sector 2, |
||
| 73. |
Spitalul de Urgenta Sf. Pantelimon + ambulatoriu
0212554090; Fax .0212554099 Sos. Pantelimon nr. 340-342, sector 2, |
||
| 74. |
Spitalul Clinic Nicolae Malaxa + Ambulatoriu
0212555405; Fax: 0212555275 Sos. Vergului, Nr. 12, Sector 2 , Bucuresti |
||
| 75. |
Centrul Medical Hiperdia
0213021160; Tel/Fax: 0213340030 Sos. Berceni, Nr. 10-12, sector 4 (incinta Spitalului de Urgenta Bagdasar Arseni), Bucuresti |
||
| 76. |
POLICLINICA MASINA DE PAINE
Tel.021. 242.07.82 ; 021.242.00.96 (oftalmologie); 021.242.67.04 (neuropsihiatrie) Str. Masina de Paine nr. 47, sector 2 , |
||
| 77. |
Spitalul Clinic Nicolae Malaxa + Ambulatoriu
Tel. 0212555405; Fax 0212555275 Sos. Vergului, nr. 12, sector 2, |
||
| 78. |
Spitalul de Boli Cronice Sf. Luca
0213343010; 0213343014 Sose. Berceni, nr. 12, sector 4, |
||
| 79. |
Institutul National de Neurologie si Boli Neurovasculare Bucuresti
Tel. 0213343004 interior 1150, 1151 Sos. Berceni nr. 10-12, sector 4, |
||
| 80. |
Spitalul de Urgente Oftalmologice + Ambulatoriu
0213192751; 0213192752 P-ta Lahovari nr. 1, sector 1, |
||
| 81. |
Spitalul de Urgente Oftalmologice + Ambulatoriu
0213192751; 0213192753 P-ta Lahovari, nr. 1, sector 1, |
||
| 82. |
Spitalul de Urgenta prof. dr. Bagdasar Arseni
Tel. 0213343025; Fax 0213347350; 0213343027 Sos. Berceni nr. 10-12, sector 4, |
||
| 83. |
Policlinica Regina Maria - Enescu
0219268 Str. George Enescu, nr.12, sector 1, |
||
| 84. |
RomGerMed - Clinica Medicala Bucuresti
Tel. 0213110075; 0725302475 Calea Plevnei, nr. 137C, sector 6, |
||
| 85. |
Ambulatoriul Spitalului Clinic Colentina
0213167320 ; 0213173245 / interior 5732; Fax: 0213161952 Sos.Stefan cel Mare, nr. 19-21, sector 2, Bucuresti |
||
| 86. |
Spitalul Clinic Colentina + Ambulatoriu
0213167320; 0213173245 ; Fax: 0213161952 Sos. Stefan cel Mare, nr. 19-21, sector 2 , |
||
| 87. |
Spitalul Clinic Colentina + Ambulatoriu
Tel. 0213167320; 0213173245; 0213165895 Sos. Stefan cel Mare, nr. 19-21, sector 2, |
||
| 88. |
Spitalul Clinic de Urgenta prof. dr. Bagdasar Arseni
0213343025; 0213343026; 0213343027 Sos. Berceni, nr. 10-12, sector 4, Bucuresti |
||
| 89. |
Spitalul Clinic de Urgenta pentru Copii - M.S. Curie (Budimex) + ambulatoriu
0214603026; 0214601035 (Primiri Urgente); 0214604260 (Ambulatoriul) Bd. Constantin Brancoveanu, Nr. 20, Sector 4, Bucuresti |
||
| 90. |
Bioderm Medical Cente- Bucuresti
Tel. 0722338383 Str. Mihai Eminescu, nr. 42, sector 1, |
||
| 91. |
Spitalul de Psihiatrie Prof. Dr. Alexandru Obregia
Tel. 0213320411; 0213321304; 0213347164 Sos. Berceni, nr. 10-12, sector 4 , |
||
| 92. |
Spitalul de Psihiatrie Prof. Dr. Alexandru Obregia-Bucuresti
Tel. 0213320411; 0213321304; 0213347164 Sos. Berceni, nr. 10-12, sector 4 , |
||
| 93. |
Institutul National de Boli Infectioase Prof. Dr. Matei Bals
Tel.0212010980; 0213186091 Str. Dr. Calistrat Grozovici, nr. 1, sector 2, |
||
| 94. |
Marius Nasta, Institutul de Pneumoftiziologie Bucuresti
0213356910; Fax 0213373801 Sos.Viilor , nr. 90, sector 5 , |
||
| 95. |
Marius Nasta, Institutul de Pneumoftiziologie + Ambulatoriu Bucuresti
0213356910; 0213373801 Sos.Viilor nr. 90, sector 5 , |
||
| 96. |
Spitalul Clinic de Urgenta pentru Copii M.S. Curie + ambulatoriu
Tel. 0214604260; 0214603026 Bd. Constantin Brancoveanu, nr. 20, sector 4, |
||
| 97. |
Centru Medical Stb-Bucuresti
0213183430 (centrala); Str. Dr. Grozovici, nr. 6, sector 2 , |
||
| 98. |
Institutul National de Boli Infectioase Prof. Dr. Matei Bals
0212010980 (centrala); 0213186090 Str. Dr. Grozovici, Nr. 1, sector 2, |
||
| 99. |
Spitalul Clinic de Chirurgie Oro-Maxilo-Faciala -Bucuresti
Tel/Fax. 0213158855; 0213155217 Calea Plevnei, nr. 17-21, sector 1 , |
||
| 100. |
Spitalul Clinic de Chirurgie Oro-Maxilo-Faciala \"Prof. Dr. Dan Theodorescu\"
Tel/Fax. 0213158855; 0213155217 Calea Plevnei, nr. 17-21, sector 1, |
||
| 101. |
Policlinica Alfa Medical
0214604144; 0319495 Izvorul Rece, Nr. 18A, Sector 4, Bucuresti |
||
| 102. |
SPITALUL SF. STEFAN + ambulatoriu
021.210.39.36 Sos. Stefan cel Mare nr. 11, sector 2, |
||
| 103. |
SPITALUL SF. STEFAN + ambulatoriu
0212103936 Sos. Stefan cel Mare, nr. 11, sector 2, |
||
| 104. |
Centrul Medical Bio Terra Med- Bucuresti
0726243473; 0724262110; 0774022961 Calea Grivitei, nr. 3, Sector 1, |
||
| 105. |
Spitalul Clinic de Nefrologie - Dr. Carol Davila
Tel. 0213189184 (centrala) Calea Grivitei, nr. 4, sector 1, |
||
| 106. |
Clinica Medicala Data Plus-Bucuresti
0213131491 Str.Cobalcescu Grigore, nr. 35,sector 1, |
||
| 107. |
Spitalul de Urgenta Floreasca
Tel. 0215992300; 0215992308; Fax.0215992257 Calea Floreasca nr. 8, sector 1, |
||
| 108. |
Spitalul de Urgenta Floreasca + ambulatoriu-Bucuresti
Tel.021.5992300; Fax.021.5992257 Calea Floreasca, nr. 8, sector 1, |
||
| 109. |
Euroclinic
0219268; 0219208 Calea Floreasca, 14 A, Sector 1, Bucuresti |
||
| 110. |
Ambulatoriul Spitalului Euroclinic
0219208; Call Center:0219268 Calea Floreasca, nr. 14A, sector 1, Bucuresti |
||
| 111. |
Spitalul Euroclinic + ambulatoriu
0219208 Calea Floreasca, nr. 14 A, sector 1, Bucuresti |
||
| 112. |
Alfred Rusescu, Institutul pentru ocrotirea mamei si copilului (I.O.M.C.) Bucuresti
Tel.0219365 Bd. Lacul Tei, nr. 120, sector 2 , |
||
| 113. |
Rytmomed - Clinica medicala Bucuresti
0737181511 Str. Popa Tatu, nr. 35, Sector 1 |
||
| 114. |
Policlinica pentru copii Regina Maria - Opera
0219268 Str. Costache Negri, nr. 1-5, sector 5, |
||
| 115. |
Institutul national pentru sanatatea mamei si copilului Alfred Rusescu
Tel.0219365 Bd. Lacul Tei, nr. 120, sector 2, |
||
| 116. |
Clinica Medicala Blaj Stefan-Bucuresti
0742010636 Str.Ciprian Porumbescu, nr. 12, sector 1, |
||
| 117. |
Centrul Medical Apolo- Bucuresti
Tel. 0214101770; 0214101615; 0744377034 Str. Coriolan Caius Marcius, nr. 41 (lang? benzinaria MOL Tudor Vladimirescu), sector 5, |
||
| 118. |
Spitalul Clinic de Urgenta pentru Copii \"Grigore Alexandrescu\"
0213169366:Centrala telefonica; 0213110994:Unitatea Primiri Urgente Bd.Iancu de Hunedoara, nr. 30-32, sector 1, Bucuresti |
||
| 119. |
Spitalul Clinic de Urgenta pentru Copii \"Grigore Alexandrescu\"
Tel. 0213169366; 0213169366 int. 133/155; UPU.0213110994 Bd. Iancu de Hunedoara, nr. 30-32, sector 1 , |
||
| 120. |
Spitalul Clinic de Urgenta pentru Copii \"Grigore Alexandrescu\"
0213169366:Centrala telefonica; 0213110994 :Unitatea Primiri Urgente Bd. Iancu de Hunedoara, nr. 30-32, sector 1, Bucuresti |
||
| 121. |
Institutul Clinic Fundeni
0212750500; Fax.0213180444; 0212750700 Sos.Fundeni, nr. 258, sector 2, |
||
| 122. |
Institutul Clinic Fundeni
Tel. 0212750500; Fax.0212750700 Sos.Fundeni, nr. 258, sector 2, Bucuresti |
||
| vezi mai multe | |||
| 1. |
Scoala Gimnaziala Nr. 80 - Bucuresti
0213214256 Calea Dudesti, Nr. 191, Sector 3, Bucuresti |
||
| 2. |
Colegiul Tehnic Mihai Bravu - Bucuresti
0213217699 Sos. Mihai Bravu, Nr. 428, Sector 3 |
||
| 3. |
Scoala Generala nr. 84 Nicolae Balcescu - Bucuresti
0213216391 Calea Vitan, Nr. 135, sector 3 |
||
| 4. |
Liceul Teoretic Hyperion - Bucuresti
0311032803 Sos. Mihai Bravu, nr. 288C, sector 2 |
||
| 5. |
Cezar Bolliac, Scoala Gimnaziala Nr. 70 - Bucuresti
0314040172 Intr. Tiglina, Nr. 37, Sector 3, Bucuresti |
||
| 6. |
Scoala Gimnaziala Nr. 86 - Bucuresti
0314250608 Intr. Reconstructiei, Nr. 6A, Sector 3, Bucuresti |
||
| 7. |
Magia Copilariei - After-school Bucuresti
0761912892 Strada Nucului, Nr. 55, Sector 3 |
||
| 8. |
Mihai Botez, Scoala Gimnaziala Nr. 87 - Bucuresti
0213462361 Str. Ramnicu Valcea, Nr. 32, Sector 3, Bucuresti |
||
| 9. |
Scoala Gimnaziala Nr. 88 - Bucuresti
0213480445 Str. Odobesti, Nr. 3, Sector 3, |
||
| 10. |
Victoria, Liceu Teoretic - Bucuresti
0314250543; 0759478014 Str. Turturelelor, nr. 11A, sector 3, Bucuresti |
||
| 11. |
Scoala Gimnaziala Nr. 54 - Bucuresti
0213465143; 0310699824 Str. Istriei, Nr. 19, Sector 3 |
||
| 12. |
Scoala Gimnaziala Nr. 95 - Bucuresti
0770503408; 0213235185 Str. Foisorului, Nr. 111-113, Sector 3, Bucuresti |
||
| 13. |
Leonardo Da Vinci, Scoala Gimnaziala Nr.75 - Bucuresti
0213248676 Str. Pictor Gheorghe Petrascu, Nr. 55, Sector 3, Bucuresti |
||
| 14. |
Mirunette Education, Consiliere si Programe Educationale - Bucuresti
0212101602 Valeriu Braniste, Nr. 37-39, Etaj 1, Ap. 3, Cam. 3, Sector 3, Bucuresti |
||
| 15. |
About Scoala Metropolitana A.R.C
0314254343; 0722522198 Str. Esarfei, nr. 63-71, sector 3, |
||
| 16. |
Benjamin Franklin, Liceu teoretic - Bucuresti
0213244890; 0213243010 Str. Pictor Gh. Tattarescu, Nr. 1, sector 3, Bucuresti |
||
| 17. |
Decebal, Liceul Bilingv - Bucuresti
0213469233 Bd. Energeticienilor, Nr. 9-11, Sector 3, Bucuresti |
||
| 18. |
Pick Me Academy - Scoala Primara Bucuresti
0726000640; 0722391000 Strada Agricultori, Nr. 79, Sector 2, Scoala Primara |
||
| 19. |
Emil Racovita, Colegiul National - Bucuresti
0213217092; Fax 0213217092 Sos. Mihai Bravu , nr. 169, sector 2, |
||
| 20. |
Kids Kingdom - Before & After School Bucuresti
0799199627 Intrarea Traian Demetrescu, Nr. 8, sector 3 |
||
| 21. |
Scoala Gimnaziala Nr. 81 - Bucuresti
0213263220 Str. Nerva Traian, Nr. 33, Sector 3, Bucuresti |
||
| 22. |
Dante Alighieri, Liceu teoretic - Bucuresti
0213481950; 0213481545 Aleea Fuiorului, Nr. 9, Sector 3, Bucuresti |
||
| 23. |
Montessano - Scoala primara si gradinita, Bucuresti
0724924070; 0724919711 Str. Labirint, nr. 97-99, sector 3 |
||
| 24. |
Montessori - Scoala si gradinita, Bucuresti
0754054402 Str. Maior Ion Coravu, Nr. 53, Sector 2 |
||
| 25. |
Colegiul Tehnic Petru Rares - Bucuresti
0213304001 Str. V. V. Stanciu, nr. 6, sector 4 |
||
| 26. |
Sweet Babies - Cresa, gradinita, after school, Bucuresti
0785810011 Strada Teleajen, 26B, sector 2 |
||
| 27. |
Serban, Scoala de Meserii - Bucuresti
0722302252; 0212520382 Intrarea Baritonului, Nr. 9 (prin Str. Matei Voievod Nr. 81-83), Sector 2, Bucuresti |
||
| 28. |
Mihai Eminescu, Colegiul National - Bucuresti
0213304001 Str. V.V. Stanciu, Nr. 6 , Sector 4, Bucuresti |
||
| 29. |
Anastasia Popescu, Liceu Pedagogic Ortodox - Bucuresti
0212524665; 0725519386; 0722805777 Popa Nan, 47 B, Sector 2, Bucuresti |
||
| 30. |
Hamburg, Scoala Gimnaziala Nr.195 - Bucuresti
0318058603 Str. Lunca Bradului, Nr. 2, sector 3, Bucuresti |
||
| 31. |
Carol Davila, Scoala Sanitara Postliceala - Bucuresti
0216107068 Str. Agricultori, nr. 35, 37-39 (cladirea Codecs), sector 2, |
||
| 32. |
Nicolae Labis, Scoala Gimnaziala Nr. 89 - Bucuresti
0213486271 Str. Firidei, Nr. 2, Sector 3, Bucuresti |
||
| 33. |
Scoala Gimnaziala Nr. 85
0212524520 Str. Dr. Constantin Zlatescu, Nr. 7A, sector 2, Bucuresti |
||
| 34. |
Dimitrie Leonida, Colegiul Tehnic - Bucuresti
0213243294; 0213243295; 0213243293; 0213246902 Bd. Basarabia, Nr. 47, Sector 2, Bucuresti |
||
| 35. |
Mihai Ionescu, Gradinita, Gimnaziu si Liceu - Bucuresti
0213235495; 0314054929 Cauzasi, Nr. 43, Sector 3 , Bucuresti |
||
| 36. |
International British School - Bucuresti
0212531698; 0745340841 Str. Agricultori, Nr. 21-25, Sector 2, Bucuresti |
||
| 37. |
Mihai Ionescu, Scoala Primara, Gimnaziu, Liceu - Bucuresti
0213235495 Str. Cauzasi, Nr. 43, Sector 3, Bucuresti |
||
| 38. |
Matei Basarab, Colegiul National - Bucuresti
0213216640 Str. Matei Basarab, Nr. 32, Sector 3, Bucuresti |
||
| 39. |
Alexandru Ioan Cuza, Scoala Gimnaziala Nr. 199 - Bucuresti
0213243970 Bd. Nicolae Grigorescu, Nr. 14, Sector 3, Bucuresti |
||
| 40. |
Sfantul Ioan, Scoala Postliceala Sanitara - Bucuresti
0724355298; 0787889809 Str. Ilioara, nr. 16, et. 2, sector 3, Bucuresti |
||
| 41. |
Scoala Gimnaziala Nr. 97 - Bucuresti
0213302545 Str. Viorele, Nr. 7, Sector 4, Bucuresti |
||
| 42. |
Anghel Saligny, Colegiu Tehnic - Bucuresti
0213402654 Bd. Nicolae Grigorescu, Nr. 12, Sector 3, Bucuresti |
||
| 43. |
Profesia, Liceu profil Economic - Bucuresti
0213486638; 0787889809 Ilioara , Nr. 16 (in cladirea Scolii de Soferi), et. 2, sector 3 , Bucuresti |
||
| 44. |
Mihai Viteazu, Colegiul National - Bucuresti
0212525700; 0212525871 Bd. Pache Protopopescu, Nr. 62, Sector 2, Bucuresti |
||
| 45. |
Scoala Gimnaziala Nr. 49 - Bucuresti
0212502444 Str. Vatra Luminoasa, Nr. 99, Sector 2, Bucuresti |
||
| 46. |
Barbu Delavrancea, Scoala Gimnaziala Nr.73 - Bucuresti
0213237390 Str. Matei Basarab, Nr. 28-30, Sector 3, Bucuresti |
||
| 47. |
Laude-Reut, Complex Educational Bucuresti
0314382046; 0318055772 Str. Clucerul Udricani, Nr. 12, Sector 3, Bucuresti |
||
| 48. |
Scoala Gimnaziala Iancului Nr. 52
0212522260 Bd. Pache Protopopescu, Nr. 50, Sector 2, Bucuresti |
||
| 49. |
A.D. Xenopol, Colegiul Economic - Bucuresti
0213205719 Str. Traian, Nr. 165, Sector 2, Bucuresti |
||
| 50. |
Ghelmez Petre, Scoala gimnaziala Nr. 58 - Bucuresti
0213245135 Str. Pescarusului, Nr. 124, Sector 2, Bucuresti |
||
| 51. |
Kidos - Before & after school, Bucuresti
0770775730 Bulevardul Nicolae Grigorescu, nr. 2 D, sector 3 |
||
| 52. |
Scoala Gimnaziala Nr. 56 - Bucuresti
0212524125; 0733087815 Bd. Pache Protopopescu, Nr. 109A, Sector 2, Bucuresti |
||
| 53. |
Seminarul Teologic Ortodox Bucuresti
0213305754; 0731205629; 0213305754 Str. Radu Voda, Nr. 24 A, Sector 4, Bucuresti |
||
| 54. |
Liceul tehnologic special Regina Elisabeta - Bucuresti
0212506220 Str. Vatra Luminoasa, Nr. 108, sector 2 |
||
| 55. |
Scoala Gimnaziala Nr. 79 - Bucuresti
0314257884 Str. Cuza Voda, Nr. 51, Sector 4, Bucuresti |
||
| 56. |
Penticostal Emanuel, Liceul Teologic - Bucuresti
0213311669 Str. Cuza Voda, Nr. 116, Sector 4, Bucuresti |
||
| 57. |
Ion Creanga Colegiu National - Bucuresti
0213362695 Str. Cuza Voda, Nr. 51, sector 4, Bucuresti |
||
| 58. |
Scoala Gimnaziala Nr. 4 - Bucuresti
0212556425 Str. Herta, Nr. 14 A, Sector 2, Bucuresti |
||
| 59. |
Scoala Gimnaziala Nr. 112
0213483331 Str. Patulului, Nr. 2, Sector 3, Bucuresti |
||
| 60. |
Scoala de Arta Bucuresti
0213306700 Str. Cuza Voda, nr. 100, |
||
| 61. |
Scoala Gimnaziala Nr. 46 - Bucuresti
0212502527 Str. Stanescu Gheorghe, Nr. 2-18, sector 2 |
||
| 62. |
Liceul Tehnologic Sfantul Pantelimon - Bucuresti
0212559943 Str. Hambarului, Nr. 12A, sector 2 |
||
| 63. |
George Cosbuc, Colegiul National Bilingv - Bucuresti
0212528080 Str. Olari, Nr. 29-31, Sector 2, Bucuresti |
||
| 64. |
Kretzulescu Nicolae, Scoala Superioara Comerciala - Bucuresti
0213139082 Bd. Hriso Botev, Nr. 17, Sector 3, Bucuresti |
||
| 65. |
Ady Endre, Liceu Teoretic - Bucuresti
0212520192 Bd. Ferdinand I, Nr. 89, Sector 2, Bucuresti |
||
| 66. |
Hermes, Colegiul Economic - Bucuresti
0213147645 Calea Mosilor, Nr. 152, Sector 2, Bucuresti |
||
| 67. |
Iulia Hasdeu, Colegiu National - Bucuresti
0212524508 Bd. Ferdinand, Nr. 91, Sector 2, Bucuresti |
||
| 68. |
Scoala Gimnaziala de Arte nr. 2 - Bucuresti
0212525703 Bd. Ferdinand I, Nr. 128, Sectorul 2 |
||
| 69. |
Scoala Gimnaziala Nr. 71 - Bucuresti
0213141395; 0213141391 Calea Mosilor, Nr. 148, Sector 2, Bucuresti |
||
| 70. |
Neagoe Basarab Voievod, Scoala Gimnaziala (fosta Nr.16) - Bucuresti
0213403313; 0374464076 Intr. Constantin Brancusi, nr. 7, sector 3, Bucuresti |
||
| 71. |
Scoala Gimnaziala Nr. 200 - Bucuresti
0213453119 Str. Postavarul, Nr. 13, Sector 3, Bucuresti |
||
| 72. |
Alexandru Ioan Cuza, Liceu Teoretic - Bucuresti
0213404811 Aleea Barajul Dunarii, Nr. 5, sector 3, Bucuresti |
||
| 73. |
Federico Garcia Lorca, Scoala Gimnaziala Nr.196
0213403710 Str. Cozla, nr. 2, sector 3, Bucuresti |
||
| 74. |
Gheorghe Sincai, Colegiul National - Bucuresti
0213369004; 0213361455 Calea Serban Voda, Nr. 167, Sector 4, Bucuresti |
||
| 75. |
Scoala Gimnaziala Nr. 51 - Bucuresti
0212554060 Str. Herta, Nr. 1, Sector 2, Bucuresti |
||
| 76. |
Scoala Gimnaziala Ienachita Vacarescu, Bucuresti
0213355705 Calea Serban Voda, Nr. 62-64, sector 4, Bucuresti |
||
| 77. |
Mihail Sadoveanu, Liceu teoretic - Bucuresti
0212527856 Str. Popa Lazar, Nr. 8A, Sector 2, Bucuresti |
||
| 78. |
Scoala Gimnaziala Nr. 92 - Bucuresti
0213480375 Aleea Vlahita, Nr. 1A, sector 3 |
||
| 79. |
Ion I.C. Bratianu, Liceu Tehnologic - Bucuresti
0310699448 Str. Popa Lazar, Nr. 8A, Sector 2, Bucuresti |
||
| 80. |
Waldorf, Liceul Teoretic - Bucuresti
0212553051 Str. Sold. Marin Savu, Nr. 29, Sector 2, Bucuresti |
||
| 81. |
Liviu Rebreanu, Scoala Gimnaziala - Bucuresti
0213401845 Aleea Barajul Rovinari, Nr. 1, Sector 3, Bucuresti |
||
| 82. |
Sfantul Silvestru, Scoala Gimnaziala Nr. 23 - Bucuresti
0212102045 Str. Oltarului, Nr. 11, Sector 2, Bucuresti |
||
| 83. |
Scoala Gimnaziala Nr. 64 Ferdinand I - Bucuresti
0213351410 Bd. Garii Obor, Nr. 16, Sector 2 |
||
| 84. |
Maica Domnului, Scoala Gimnaziala Nr. 50 - Bucuresti
0212520310 Str. Ion Maiorescu, Nr. 32, Sector 2, Bucuresti |
||
| 85. |
Liceul Teoretic Nichita Stanescu - Bucuresti
0213400440 Str. Lucretiu Patrascanu, Nr. 12, Sector 3, Bucuresti |
||
| 86. |
Liceul Tehnologic Nikola Tesla - Bucuresti
0212527886 Sos. Pantelimon, Nr. 25, sector 2 |
||
| 87. |
AWEsome Primary School - Scoala clasele primare Bucuresti
0750460737 Str. Ienachita Vacarescu, nr. 22B, sector 4 |
||
| 88. |
Spiru Haret, Colegiu National - Bucuresti
0213136462 Str. Italiana, Nr. 17, Sector 2, Bucuresti |
||
| 89. |
Scoala Gimnaziala SEB - Bucuresti
0314249675; 074502274 Str. Martisor, Nr. 22, sector 4 |
||
| 90. |
Scoala Gimnaziala Nr. 120 Martisor - Bucuresti
0213325811 Str. Martisor, Nr. 39, sector 4 |
||
| 91. |
Floria Capsali, Liceul de Coregrafie - Bucuresti
0213363792 Str. Capitan Preotescu, Nr. 9, Sector 4, Bucuresti |
||
| 92. |
Colegiul National de Arte Dinu Lipatti - Bucuresti
0213363588 Str. Principatele Unite, Nr. 63, Sector 4, Bucuresti |
||
| 93. |
Liceul Economic nr. 1 - Bucuresti
0371417419 Sos. Vitan Barzesti, Nr. 11, Sector 4, Bucuresti |
||
| 94. |
Traian Vuia, Liceu Tehnologic de Metrologie - Bucuresti
0213345915; 0372942097 Sos. Vitan Barzesti, Nr. 11, Sector 4, Bucuresti |
||
| 95. |
Scoala Gimnaziala Mexic - Bucuresti
0213401124 Bd. 1 Decembrie 1918, Nr. 34, sector 3 |
||
| 96. |
Mexic, Scoala Gimnaziala Nr. 22 - Bucuresti
0213401124 Bd. 1 Decembie 1918, Nr. 34, Sector 3, Bucuresti |
||
| 97. |
Scoala Gimnaziala Nr. 62 - Bucuresti
0212553635 Str. Potarnichii, Nr. 3, Sector 2, Bucuresti |
||
| 98. |
Monterra - Scoala primara Bucuresti
0743119481 Str. Vasile Lascar, nr. 87, sector 2 |
||
| 99. |
Cantemir Voda, Colegiul National - Bucuresti
0212106935 Str. Viitorului, Nr. 60, Sector 2, Bucuresti |
||
| 100. |
Scoala Gimnaziala Nr. 20 - Bucuresti
0213452485 Str. Prevederii, Nr. 19, Sector 3, Bucuresti |
||
| 101. |
Liceul Teologic Baptist Logos Bucuresti
0213451072 Bd. Theodor Pallady, Nr. 26, sector 3, Bucuresti |
||
| 102. |
Costin D. Nenitescu, Colegiul Tehnic - Bucuresti
0213450920 Bd. Theodor Pallady, Nr. 26, Sector 3, Bucuresti |
||
| 103. |
Scoala Gimnaziala Nr. 82 - Bucuresti
0213450962 Jean Steriad, Nr. 17, Sector 3, Bucuresti |
||
| 104. |
Scoala Gimnaziala Nr. 307 - Bucuresti
0212100012 Str. Luncsoara, Nr. 3, Sector 2, Bucuresti |
||
| 105. |
Scoala Gimnaziala Nr. 113
0213322347 Str. Parincea, Nr. 4, Sector 4, Bucuresti |
||
| 106. |
Tudor Arghezi, Scoala Gimnaziala Nr. 19 - Bucuresti
0213169187 Str. Tudor Arghezi, Nr. 46-50, Sector 2, Bucuresti |
||
| 107. |
Scoala Gimnaziala Nr. 190 - Bucuresti
0213324689 Str. Nitu Vasile, Nr. 16, Sector 4, Bucuresti |
||
| 108. |
Colegiul National - Scoala Centrala - Bucuresti
0212118484; 0787288528 Str. Icoanei, Nr. 3-5, Sector 2, Bucuresti |
||
| 109. |
Cuib - After school, Bucuresti
0751088396 Str. Fainari, Nr. 45A, sector 2 |
||
| 110. |
Colegiul Romano-Catolic Sfantul Iosif - Bucuresti
0213326602 Sos. Oltenitei, Nr. 3-7, Sector 4, Bucuresti |
||
| 111. |
Scoala Gimnaziala Nr. 77 - Bucuresti
0212553945 Sos. Pantelimon, Nr. 289, sector 2 |
||
| 112. |
Scoala Gimnaziala Nr. 149 - Bucuresti
0213451985 Aleea Perisoru, nr. 4, Sector 3, Bucuresti |
||
| 113. |
Scoala Gimaziala Nr. 133 - Bucuresti
0213325837 Str. Stanjeneilor, Nr. 3, sector 4, Bucuresti |
||
| 114. |
Grigore Chercez, Colegiul Tehnologic - Bucuresti
0213365890 Calea Serban Voda, Nr. 280, Sector 5, Bucuresti |
||
| 115. |
Scoala Gimnaziala Nr. 145 - Bucuresti
0212407036 Str. Heliade Intre Vii, Nr. 36, sector 2 |
||
| 116. |
Scoala Gimnaziala Nr. 25 - Bucuresti
0212422695 Str. Silvia, Nr. 54 Sector 2 |
||
| 117. |
Scoala Gimnaziala Nr. 116
0213450102 Str. Gura Ialomitei, Nr. 20, Sector 3, Bucuresti |
||
| 118. |
Scoala Gimnaziala Nr. 96 Bucuresti
0214610108 Str. Rezonantei, nr. 2, sector 4, |
||
| 119. |
FEG, Scoala Postliceala in domeniului medical - Bucuresti
0213111054; 0314050362; 0788424314 Walter Maracineanu, Nr. 1-3, Intrarea 2, Etaj. 2,, Bucuresti |
||
| 120. |
BBIS Bucharest - Beirut International School
0744309199 Sos. Vergului, Nr. 14, Sector 2, Bucuresti |
||
| 121. |
Scoala Gimnaziala Nr. 66 - Bucuresti
0212554580 Str. Logofatul Dan, Nr. 1, Sector 2, Bucuresti |
||
| 122. |
Scoala 114 Principesa Margareta - Bucuresti
0735679210/ 0213351405 Str. Pandele Rosca, Nr. 2-4, sector 5 |
||
| 123. |
Gheorghe Lazar, Colegiu National - Bucuresti
0213134756 Bd. Regina Elisabeta, Nr. 48, Sector 5, Bucuresti |
||
| 124. |
Scoala Gimnaziala Nr. 27 Principesa Ileana - Bucuresti
0212421645 Str. Masina de Paine, nr. 65, sector 2 |
||
| 125. |
Virgil Madgearu, Colegiul Economic - Bucuresti
0212117256 Bd. Dacia, Nr. 34, Sector 1, Bucuresti |
||
| 126. |
Scoala Gimnaziala George Bacovia - Bucuresti
0213323396 Str. Stoian Militaru, nr. 72, Sector 4 |
||
| 127. |
Viilor, Colegiul Economic - Bucuresti
0213160973; 0213160966 Sos. Viilor, Nr. 38, Sector 5, Bucuresti |
||
| 128. |
Scoala Gimnaziala Nr. 24 - Bucuresti
0212107185 Str. Tunari, Nr. 52, Sector 2, Bucuresti |
||
| 129. |
Marin Sorescu, Scoala Gimnaziala Nr. 194 - Bucuresti
0214610790 Bd. Alexandru Obregia, Nr. 3A, Sector 4, Bucuresti |
||
| 130. |
Scoala Gimnaziala nr. 5 - Bucuresti
0213169918 Calea Victoriei, Nr. 114, Sector 1, Bucuresti |
||
| 131. |
Lucian Blaga, Liceu teoretic - Bucuresti
0212551265; 0786108825 Sos. Pantelimon, Nr. 355, Sector 2, Bucuresti |
||
| 132. |
Vasile Alecsandri, Scoala Gimnaziala (fosta Nr. 118) - Bucuresti
0213138287 Str. Stirbei Voda, Nr. 32-34, Sector 1, Bucuresti |
||
| 133. |
Colegiul National Octav Onicescu - Bucuresti
0214603544 Str. Trivale, Nr. 29, Sector 4 |
||
| 134. |
Scoala Gimnaziala Nr. 28 - Bucuresti
0212105910 Aleea Circului, Nr. 1, sector 2 |
||
| 135. |
Sf. Sava, Colegiul National - Bucuresti
0213149294; 0213126821 Str. G-ral Berthelot, Nr. 23, Sector 1, Bucuresti |
||
| 136. |
Scoala Gimnaziala Nr. 128 - Bucuresti
0214102219 Str. Ion Creanga, Nr. 6, Sector 5, Bucuresti |
||
| 137. |
Emil Racovita, Scoala Gimnaziala Nr. 93 - Bucuresti
0214610831 Aleea Emil Racovita, Nr. 1, Sector 4, Bucuresti |
||
| 138. |
Elena Vacarescu, Scoala Gimnaziala - Bucuresti
0213163630 Str. Stanislav Cihoschi, nr. 15, sector 1, Bucuresti |
||
| 139. |
EFI Bucarest - Scoala Franceza Internationala din Bucuresti
0749098867 Bulevardul Dacia, Nr. 12, Sector 1 |
||
| 140. |
Goethe, Colegiul German - Bucuresti
0212113425 Str. Stanislav Cihoschi, Nr. 17, Sector 1, Bucuresti |
||
| 141. |
Eremia Grigorescu, Scoala Gimnaziala - Bucuresti
0213349243 Str. Capitan Eremia Popescu, Nr. 27, Sector 4, Bucuresti |
||
| 142. |
International Premium School of Bucharest
0745028876; 0213345324 Soseaua Berceni, Nr. 24, Sector 4 |
||
| 143. |
Liceul Tehnologic Dragomir Hurmuzescu - Bucuresti
0212560083 Bd. Basarabia, Nr. 256, sector 3 |
||
| 144. |
Scoala Gimnaziala Nr.188 - Bucuresti
0214500161 Str. Tufisului, Nr. 13, Sector 5, Bucuresti |
||
| 145. |
Scoala Gimnaziala Nr. 189 - Bucuresti
0214610040 Aleea Ciceu, Nr. 12, Sector 4, Bucuresti |
||
| 146. |
Colegiul Tehnic de Industrie Alimentara Dumitru Motoc - Bucuresti
0215552876 Str. Spatarul Preda, Nr. 16, sector 5 |
||
| 147. |
Miguel de Cervantes, Liceul Bilingv - Bucuresti
0213149311 Calea Plevnei, Nr. 38-40, Sector 1, Bucuresti |
||
| 148. |
Scoala Ioanid, Gradinita, Gimnaziu, Liceu - Bucuresti
0758054401 Str. Nicolae Iorga, nr. 21, Sector 1, Bucuresti |
||
| 149. |
Institutul de matematica Simion Stoilow
0213196506; 0213117780; Fax: 0213196505 Calea Grivitei, Nr. 21, Sector 1, Bucuresti |
||
| 150. |
George Toparceanu, Scoala Gimnaziala Nr. 110 - Bucuresti
0214503823 Str. Argeselu, Nr. 6, sector 4, Bucuresti |
||
| 151. |
Scoala Gimnaziala Nr. 108 - Bucuresti
0214610039 Str. Vatra Dornei, Nr. 8, sector 4 |
||
| 152. |
Scoala Gimnaziala Nr. 108
0214610039 Str. Vatra Dornei, nr. 8, sector 4, Bucuresti |
||
| 153. |
Liceul tehnologic Dacia - Bucuresti
0213344434 Str. Cap. Grigore Marin, Nr. 42-44, sector 4 |
||
| 154. |
Scoala Gimnaziala Nr. 129 - Elena Farago
0214503775 Str. Izvorul Crisului, Nr. 6, Sector 4, Bucuresti |
||
| 155. |
Happy Drive Lucky - Scoala de soferi, Bucuresti
0755766849 Strada Inginerilor Tei, Nr.9, sector 2 |
||
| 156. |
Scoala Gimnaziala de Arte nr. 4 - Bucuresti
0212421450 Str. Maica Domnului, Nr. 61-63, Sector 2 |
||
| 157. |
Scoala Gimnaziala Nr. 31 - Bucuresti
0212421712; 0736613908 Bd. Lacul Tei, Nr. 116, sector 2 |
||
| 158. |
Scoala Gimnaziala Luceafarul - Bucuresti
0214230480 Str. Doina, Nr. 1, sector 5 |
||
| 159. |
Aldo Moro, Scoala Italiana - Bucuresti
0212104684 Intr. Blaj, nr. 1, Sector 1, Bucuresti |
||
| 160. |
Grigore Ghica Voievod, Scoala Gimnaziala Nr. 30 - Bucuresti
0212421160 Str. Laptari Tei, Nr. 23, Sector 2, Bucuresti |
||
| 161. |
Scoala Gimnaziala Nr. 67 - Bucuresti
0212560040 Str. Magnetului, Nr. 1-3, Sector 3, Bucuresti |
||
| 162. |
Traian, Liceu Teoretic - Bucuresti
0212106598; 0212105920 Str. Luigi Galvani, Nr. 20, sector 2, Bucuresti |
||
| 163. |
Serban Voda, Scoala Gimnaziala - Bucuresti
0214503450 Str. Petre Tutea, Nr. 3, Sector 4, Bucuresti |
||
| 164. |
Alexandra Kids, Gradinita, After School - Bucuresti
0788461573; 0214206927 Calea Rahovei, Nr. 266-268, Sector 5, Bucuresti |
||
| 165. |
Victor Babes, Colegiul National - Bucuresti
0212407870 Sos. Fundeni, Nr. 254, Sector 2, Bucuresti |
||
| 166. |
Scoala Gimnaziala Nr. 99 - Bucuresti
0214501372 Str. Huedin, Nr. 13, Sector 4, Bucuresti |
||
| 167. |
George Enescu, Colegiu National de Muzica - Bucuresti
0760665312; 0213108871 Str. General Gheorghe Manu, Nr. 30, Sector 1, Bucuresti |
||
| vezi mai multe | |||
| 1. |
Casa Tosca, Cofetarie - Bucuresti
0213461297 Bd. Camil Ressu, Nr. 1, Sector 3, Bucuresti |
||
| 2. |
Casa Dragonului, Restaurant Bucuresti
0213202666; 0761929019 Calea Dudesti, nr. 198, sector 3, Bucuresti |
||
| 3. |
Mateo Fast Food
0728199827; 0752777333; 0314362033 Strada Dristorului, Nr. 87, sector 3 |
||
| 4. |
Qian Bao, Restaurant chinezesc - Bucuresti
0722622865; 0314306616 Intrarea Baba Novac, Nr. 2, Sector 3, Bucuresti |
||
| 5. |
Erra - Restaurant cu specific european modern, Bucuresti
0734983984 Str. Constantin Nottara, Nr 13, sector 3 |
||
| 6. |
Taverna Baba Novac, Restaurant - Bucuresti
0771544334; 0760010784 Intrarea Baba Novac, Nr. 3, Sector 3, Bucuresti |
||
| 7. |
Papaciu - Bistro, Bucuresti
0724200070; 0724955952 Strada Complexului, Nr 3A, sector 3 |
||
| 8. |
Pizza Apetito - Bucuresti
0770225215 Eufrosina Popescu, Nr. 57, sector 3, |
||
| 9. |
Cofetariile Georgy\'s, Cofetarie,torturi - Bucuresti
0733060230; 0730618742 Ramnicu Valcea, Nr. 14, Sector 3, Bucuresti |
||
| 10. |
Gustul Pasiunii Cofetarie - Bucuresti
0728941816 Racari, Nr. 5, sector 3, Bucuresti |
||
| 11. |
Pizza Venetia, Pizzerie si catering - Bucuresti
0720800100; 0213204424; Fax: 0720800100 Dristorului, Nr.59, Sector 3, Bucuresti |
||
| 12. |
Rainbow - Bar & Grill, Bucuresti
0743205054 Cornul Caprei, nr.53, sector 3 |
||
| 13. |
Giorginio Cofetarie - Bucuresti
0722434002 Calea Dudesti, Nr. 129 (colt cu str. Scoala Ciocanul) Sector 3, Bucuresti |
||
| 14. |
El Bacha, Restaurant - Bucuresti
0212691392; 0722833333 P-ta Alba Iulia, nr.6 bl.15, sector 3, |
||
| 15. |
Gio Cafe - Bucuresti
0730030757 Bd. Burebista, Nr.2 , Sector 3, Bucuresti |
||
| 16. |
Bravu Burger & Crepes - Restaurant fast-food, Bucuresti
0722118100 Soseaua Mihai Bravu, Nr 452 - 460, sector 2 |
||
| 17. |
Nikos Greek Taverna, Restaurant - Bucuresti
0730001008 (Restaurant); 0215999099 (Livrari) B-dul Burebista, Nr 2 (Piata Alba Iulia), Sector 3, Bucuresti |
||
| 18. |
Chef Gabrielle - Restaurant, Bucuresti
0766066406 Strada Tomis, Nr. 5A, Sector 3 |
||
| 19. |
Gili Pizza - Bucuresti
0213242387 Str. Baba Novac, Nr. 9-11, Sector 3 |
||
| 20. |
Arogant - Restaurant & Lounge, Bucuresti
0732764268 Piata Alba Iulia Piata Alba Iulia, nr 8, sector 3 |
||
| 21. |
Resto Aperto, Restaurant - Bucuresti
0738741118 Calea Vitan , Nr.55-59(Bucuresti Mall) Sector 3, Bucuresti |
||
| 22. |
Strada Rustica - Pizzerie Bucuresti
0213248303; 0768676765; 0728886914 Str. Baba Novac, Nr 9, Complex Rucar, Sector 3 |
||
| 23. |
Stejarului 57 - Social Bar, Bucuresti
0748701058 Strada Fildesului, Nr. 2, sector 3 |
||
| 24. |
Resto Aperto, Restaurant - Bucuresti
0738741118 Calea Vitan, Nr.55-59 (Bucuresti Mall) Sector 3, Bucuresti |
||
| 25. |
Lotus Cafe - Cafenea restaurant Bucuresti
0722808389 Bd. Decebal, Nr 1, sector 3 |
||
| 26. |
Tress Caffe&Lounge - Bucuresti
0721988801 Bulevardul Decebal, Nr 3, sector 3 |
||
| 27. |
Gallo Nero, Restaurant - Bucuresti
0726544889; 0213268128 Bd. Decebal, Nr. 12, Sector 3, Bucuresti |
||
| 28. |
La Patrascu - Restaurant Bucuresti
0771635003; 0767561149; 0754422491 Str. Prof. Stefan Nicolau, Nr. 2A, Sector 3 |
||
| 29. |
XO Lounge - Restaurant Bucuresti
0725585388 B-dul Decebal, Nr. 5, sector 3 |
||
| 30. |
Casa Lica - Cofetarie Bucuresti
0725761188 Bulevardul Decebal, Nr. 5, Sector 3 |
||
| 31. |
Padthai - Restaurant Bucuresti
0726637747 Bulevardul Decebal, Nr. 3, sector 3 |
||
| 32. |
Agio Bistrot - Bistro, Bucuresti
0763528818 Bd. Decebal, Nr. 9, sector 3 |
||
| 33. |
Turquoise - Restaurant cu specific oriental, Bucuresti
0731826222 Strada Theodor D. Sperantia, Nr. 96, sector 3 |
||
| 34. |
Rich Vip Lounge - Restaurant Bucuresti
0771790764 Bd.Decebal, Nr 9, sector 3 |
||
| 35. |
Funky Lounge - Terasa, Bucuresti
0755505505 Bd. Decebal, nr 9, sector 3 |
||
| 36. |
Cofetaria Andreea
0213228845; 0728877033 Sos. Mihai Bravu , Nr. 286, sector 3, Bucuresti |
||
| 37. |
Greekos Urban Food - Restaurant fast-food, Bucuresti
0726646976 Soseaua Mihai Bravu, Nr. 247, sector 3 |
||
| 38. |
Andreea, Cofetarie, torturi si patiserie - Bucuresti
0728877033; 0213228845 Bulevardul Mihai Bravu, Nr. 286, Sector 3, Bucuresti |
||
| 39. |
Cartofisserie - Restaurant cu bufet Bucuresti
0726330960;0740215433 Liviu Rebreanu, Nr. 4 (ParkLake Shopping Center Mall) |
||
| 40. |
Snap - Restaurant, Bucuresti
0738888885 Bulevard Decebal, nr. 13, sector 3 |
||
| 41. |
Casa Jienilor Agricultori, Restaurant - Bucuresti
0735994994 Agricultori, Nr.12, Sector 2, Bucuresti |
||
| 42. |
Duman - Restaurant cu specific oriental, Bucuresti
0738170063 Bulevardul Decebal, Nr. 13, sector 3 |
||
| 43. |
Gloria Jean\'s Coffees Romania
0760107884 Bd.Liviu Rebreanu, nr. 4, sector 3 - Mall Park Lake, Bucuresti |
||
| 44. |
King Rolls - Fast Food Bucuresti
0747887206 Calea Vitan, Nr. 17A, sector 3 |
||
| 45. |
Bellagio Villa Restaurant - Bucuresti
0213440661; 0771120177 Vrejului, Nr. 21, Sector 3, Bucuresti |
||
| 46. |
Ressu Restaurant & Lounge - Bucuresti
0723774485; 0731607646; B-dul Camil Ressu, Nr. 70 A, Sector 3, Bucuresti |
||
| 47. |
La Sediu - Restaurant Bucuresti
0760729007 Campia Libertatii, Nr. 54, sector 3 |
||
| 48. |
Bistro Turturelelor - Restaurant, Bucuresti
0726310583; 0758887454 Strada Turturelelor, 11A, corpC, Parter, Sector 3 |
||
| 49. |
Armonia Cofetarie - Bucuresti
0213244020 ; 0722616180 Campia Libertatii, Nr. 46 , bl. 52 , Parter , Sector 3, Bucuresti |
||
| 50. |
La Tramvai - Terasa Bucuresti
0729166021 Parcul Alexandru Ioan Cuza (I.O.R). intersectie Campia Libertatii, sector 3 |
||
| 51. |
Din Fu - Restaurant chinezesc Bucuresti
0729313338; 0213260127 Str. Alexandru Moruzzi, Nr. 76A, Sector 3 |
||
| 52. |
Restaurant Grill Verdetei 5 - Restaurant cu preparate la gratar, Bucuresti
0766411338 Strada Verdetei, nr. 5, sector 3 |
||
| 53. |
Pizzeria Florina - Bucuresti
0219285 Strada Nicolae Pascu, nr.1A, sectorul 3 |
||
| 54. |
Trattoria Fresca - Restaurant cu specific italian, Bucuresti
0731333410 Str.Popa Nan, nr.140, Sector 2 |
||
| 55. |
La Machedoni - Restaurant cu specific traditional romanesc si american
0721512236 Anastasie Panu, nr. 10, sector 3 |
||
| 56. |
Restaurant Ali Baba - Specific oriental, Bucuresti
0213274810; 0722707208 Sos. Mihai Bravu, Nr. 213, sector 2, Bucuresti |
||
| 57. |
Santorini - Restaurant specific grecesc Bucuresti
0748333334 Bulevardul Mihai Bravu, Nr. 209, Sector 2 |
||
| 58. |
7 Days - Restaurant cu terasa, organizari evenimente, Bucuresti
0769042751; 0213241358 Str. Campia Libertatii, Nr. 23, Sector 3, Bucuresti |
||
| 59. |
La Mama - Restaurant Bucuresti
0721526262 Strada Delea Veche, Nr. 51, sector 2 |
||
| 60. |
Jerry\'s Pizza - Bucuresti
0373303030 Calea Vitan, Nr. 236, Sector 3, Bucuresti |
||
| 61. |
Arancini - Restaurant cu specific sicilian
0756490490 Str. Papadiei, Nr. 16-18, sector 3 |
||
| 62. |
Old Mike Pub si Restaurant - Bucuresti
0787366166 Morilor, Nr. 46 Sector 3, Bucuresti |
||
| 63. |
Riviera Park, Restaurant - Bucuresti
0732408408 Bd. Basarabia , Nr. 23 (Parcul National), Sector 2, Bucuresti |
||
| 64. |
Green Bistro - Terasa Bucuresti
0728237731 Parcul Gheorghe Patrascu, |
||
| 65. |
Beraria Centrala - Restaurant Bucuresti
0740959311 Strada Nerva Traian, Nr. 2, Sector 3 |
||
| 66. |
Comics Club - Stand Up, Bucuresti
0741426426 Str. Nerva Traian, Numarul 4. sector 3 |
||
| 67. |
MagiCake - Atelier de dulciuri artizanale, Bucuresti
0772072072 Strada Alexandru Moruzzi, Nr. 4A, sector 3 |
||
| 68. |
Koffeev - Cafenea, Bucuresti
0767195222 Bulevardul Unirii, Nr. 57, sector 3 |
||
| 69. |
Monza, Trattorie si Restaurant - Bucuresti
0722661166; 0769200002; 0724802802 Baba Novac, Nr. 25, Sector 3, Bucuresti |
||
| 70. |
Oktoberfest Pub - Bucuresti
0724333233 Popa Nan, Nr. 95, Sector 3, Bucuresti |
||
| 71. |
Monza, Trattorie si Restaurant - Bucuresti
0724802802; 0722661166; 0769200002 Baba Novac, Nr. 25, Sector 3, Bucuresti |
||
| 72. |
Efes - Restaurant cu specific turcesc, Bucuresti
0737018590 Bulevardul Nerva Traian, Nr. 17 - 19, sector 3 |
||
| 73. |
Pajo Garden - Restaurant Bucuresti
0751227228 Bulevardul Basarabiei, Nt. 37-39, sector 2 |
||
| 74. |
Hop Garden - Restaurant cu preparate la gratar, Bucuresti
0770448443 Splaiul Unirii, Nr. 225, sector 3 |
||
| 75. |
Ubuntu Coffee - Terasa, Bucuresti
0758635771 Splaiul Unirii, Nr. 195, sector 3 |
||
| 76. |
Alouette - Restaurant cu specific international, Bucuresti
0746339793 Splaiul Unirii, Nr. 168, sector 4, |
||
| 77. |
Mazzaj Cafe - Restaurant cu specific libanez, Bucuresti
0757292398 Splaiul Unirii, Nr. 162, sector 4 |
||
| 78. |
Sham Sweet, Cofetarie - Bucuresti
0748242455 Bd. Basarabia, Nr.98, Sector 3, Bucuresti |
||
| 79. |
Maroon - Maroon Restaurant Cafe
0742420000; 0764900000 Bulevardul Unirii, Nr. 47 C, Sector 3 |
||
| 80. |
Tarab - Restaurant cu specific libanez, Bucuresti
0774411111 Strada Nerva Traian, Sector 3 |
||
| 81. |
Friends Pub - Bucuresti
0728197287 Bucovina , Nr. 6, Sector 3, Bucuresti |
||
| 82. |
Modelier - Bistro, cocktails Bucuresti
0799630693 Strada Duzilor, Nr. 12, sector 2 |
||
| 83. |
Cristal - Cofetarie
0760090324 Str. Matei Voievod, nr. 108, sector 2 |
||
| 84. |
Dada Restaurant - Bucuresti
0729997405; 0724015800 Str. Matei Voievod , nr. 94bis, sector 2, |
||
| 85. |
Casa Dante - Restaurant cu specific italian, Bucuresti
0314358069 Strada Rotunda, nr 4C, sector 3 |
||
| 86. |
Terasa Sport House - Restaurant fast-food, Bucuresti
0755080224 Maior Ion Coravu, numarul 34, sector 2 |
||
| 87. |
Chaya TeaHouse - Ceainarie Bucuresti
0755331000 Strada Radu Ceaus, Nr. 7, sector 3 |
||
| 88. |
Turquoise Bakery - Bucuresti
0739037919 Str. Matei Voievod, nr.101, Sector 2 |
||
| 89. |
Noeme - Restaurant Bucuresti
0721490270 Anton Pann, Nr. 29, sector 3 |
||
| 90. |
Bistro 37-39 - Restaurant Bucuresti
0731355939 Bulevardul Basarabia, Nr. 37-39 , Sector 3 |
||
| 91. |
Quartier - Restaurant, Bucuresti
0758222244 Bd. Mircea Voda, Nr. 43, sector 3 |
||
| 92. |
Damascus Palace - Restaurant Bucuresti
0746696666; 0756616666 Bld. Basarabia, Nr. 98, sector 2, |
||
| 93. |
Club Art Papillon Restaurant - Bucuresti
0212522520; 0732582278; 0722240930 Matei Voievod , Nr. 66A Sector 2, Bucuresti |
||
| 94. |
Alceva - Restaurant, Bucuresti
0770844125 Matei Voievod, Nr. 79, sector 2, |
||
| 95. |
Berestroika - Beer Revolution - Bucuresti
0722560300; 0721100000; 0733200000 Aleea Cauzasi, Nr. 57, Sector 2, Bucuresti |
||
| 96. |
Sardin - Restaurant cu specific italian, Bucuresti
0729520111 Bulevardul Mircea Voda, Nr. 39H sector 3, Bucuresti |
||
| 97. |
Cofetaria Madlene - Bucuresti
0753223222 Str. Traian, Nr.103, sector 2 |
||
| 98. |
Trofic - Restaurant pentru mic dejun si brunch
0751276600 Bd. Mircea Voda, nr. 52, sector 3 |
||
| 99. |
Delice Grill - Restaurant fast-food Bucuresti
0721112244 Soseaua Mihai Bravu, Nr 139-145, sector 2 |
||
| 100. |
La Coana Mare - Cofetarie Bucuresti
0771512035 Strada Magura Vulturului, Nr. 2, sector 2 |
||
| 101. |
Madame B - Tea & Pancake House, Bucuresti
0746030670 Splaiul Unirii, nr.49,sector 3, |
||
| 102. |
Politica si Delicateturi Bucuresti - Restaurant cu specific romanesc
0785516681 Str. Prof. Dr. Mihail Georgescu, Nr. 24, sector 2 |
||
| 103. |
KLANdestin - Restaurant Bucuresti
0731954592 Str. Liviu Rebreanu, Nr. 6A, Sector 3 |
||
| 104. |
Burger Peter - Restaurant cu burgeri Bucuresti
0799981031 Strada Popa Nan, Nr. 48, sector 2 |
||
| 105. |
Casa Lefter - Restaurant Bucuresti
0723568402; 0743127330 Strada Lt. Ionescu Baican, Nr. 57, sector 2 |
||
| 106. |
Volare - Pizzerie, Bucuresti
0730622600 Calea Vacaresti, Nr.203B, sector 4 |
||
| 107. |
Alice, Cofetarie - Bucuresti
0744486465 Sos. Mihai Bravu, Nr. 123-135, Sector 2, (zona Piata Iancului - langa Sectia 8 de Politie), Bucuresti |
||
| 108. |
Sare si Piper - Restaurant cu specific italian, Bucuresti
0744663451 Str. Viorele, nr. 26, zona Timpuri Noi, sector 4, Bucuresti |
||
| 109. |
Sabatini Pizza, Restaurant - Bucuresti
0314266069; 0737148520; 0784699751 B-dul Basarabia, Nr. 108, Bucuresti |
||
| 110. |
Sfeir Lebanese Cuisine - Bar & Grill
0722311805 Mircea Voda, Nr. 36, sector 3 |
||
| 111. |
Trattoria Adagio - Restaurant cu specific italian Bucuresti
0311061067; 0751218482 Bd. Mircea Voda, Nr. 34, sector 3 |
||
| 112. |
Green Tea Ceainarie - Bucuresti
0213209396; 0749090202 Dr. Burghelea, Nr. 24, Sector 2, Bucuresti |
||
| 113. |
La Nenea Iancu - Restaurant cu specific romanesc, Bucuresti
0745140786 Str. Romulus, nr. 55, sector 3 |
||
| 114. |
Tarta Ta - Delicii traditionale, Bucuresti
0771522117 Bulevardul Mircea Voda, Nr. 52, sector 3 |
||
| 115. |
Cucina di casa - Pizzerie, Bucuresti
0735868318 Calea Vacaresti, Nr. 230, sector 4 |
||
| 116. |
Allegro Restaurant - Bucuresti
0751055536; 0744649177 Bd. Nicolae Grigorescu, Nr. 20A, Sector 3, Bucuresti |
||
| 117. |
Contesa, Restaurant - Bucuresti
0731831891; 0722244214; 0213317171 Sibiel, Nr. 5, sector 4, Bucuresti |
||
| 118. |
Vio Cofetarie - Bucuresti
0213412082 Bd. Nicolae Grigorescu, Nr. 20, Sector 3, Bucuresti |
||
| 119. |
Borgo Stagioni - Restaurant Bucuresti
0732163287; 0722220223 Calea Calarasi, Nr. 78, Sector 3 |
||
| 120. |
BaKings - Cofetarie Bucuresti
0744642929 Strada Ilarie Chendi, Nr. 28, sector 2 |
||
| 121. |
Shaormeria Titan - Fast food Bucuresti
0771332861; 0755864686 Bd. Nicolae Grigorescu, Nr. 20, Sector 3 |
||
| 122. |
Sweet Sophie - Cofetarie
0748309063 Strada Popa Nan, Nr. 22, sector 2 |
||
| 123. |
Sale Dolce, Restaurant - Bucuresti
0736858430; 0735123687 Matei Voievod, Nr. 20, Sector 2, Bucuresti |
||
| 124. |
Ribs Bar&Grill - Restaurant american, Bucuresti
0720788818 Str. Constantin Brancusi, Nr. 13, Complex Potcoava, sector 3 |
||
| 125. |
Casa Brancoveanu Restaurant - Bucuresti
0724640000; 0314245890; 0762643010 Caramidarii de Jos, Nr.14, Sector 5, Bucuresti |
||
| 126. |
Ilioara - Restaurant si piscina Bucuresti
0766379289; 0721244247 Strada Ilioara, Nr. 16L, sector 3 |
||
| 127. |
Restaurant Paunita - Bucuresti
0724145707 Bulevardul Nicolae Grigorescu, Nr. 31A, sector 3 |
||
| 128. |
Urban Bistro - Restaurant cu fripturi, Bucuresti
0769918510 Strada Piata Sfantu Stefan, Nr 6, sector 2 |
||
| 129. |
No10 - Restaurant cu specific italian
0741210003 Strada Austrului, Nr. 10, sector 2 |
||
| 130. |
Coftale Coffee Shop - Cafenea, Bucuresti
0746420874 Strada Profesor Stefan Mihaileanu, Nr.42, sector 2 |
||
| 131. |
Trattoria Della Nonna - Restaurant cu specific italian, Bucuresti
0771697503 Strada Popa Nan, Nr. 5, sector 2 |
||
| 132. |
Noua - Restaurant cu specific romanesc, Bucuresti
0217943294 Strada Popa Nan, Nr. 7, sector 2 |
||
| 133. |
Restaurant Karta - Bucuresti
0744391111 Bd. Unirii, Nr. 22, sector 3 |
||
| 134. |
Gran Gelato Italiano - Gelaterie Bucuresti
0730057909 Str. Radu Voda, Nr 28 A, Sector 4 |
||
| 135. |
Nabu - Bar Bucuresti
0787407043 Pache Protopopescu, Nr. 97, sector 2 |
||
| 136. |
La Birlic - Terasa, Bucuresti
0722318168; 0752318168; 0212525151 Bulevardul Pache Protopopescu, Nr. 125, sector 2 |
||
| 137. |
La Calinescu - Restaurant cu specific romanesc, Bucuresti
0788472725; 0213310750 Strada Piscului, Nr. 16, sector 4 |
||
| 138. |
Paque Bistro - Restaurant cu bar, Bucuresti
0722330607 Bulevardul Pache Protopopescu, nr.60, sector 2 |
||
| 139. |
Irina Casa cu Prajituri, Cofetarie - Bucuresti
0731323192 Liviu Rebreanu, Nr.12, bl. K2, Cartier Titan Sector 3, Bucuresti |
||
| 140. |
Cuptorul cu Lemne, Pizza - Bucuresti
021.9363; 0212524493; (021) 9363 - tasta 0 Bd. Pache Protopopescu, Nr. 63, Sector 2, Bucuresti |
||
| 141. |
Taverna Fierarilor - Restaurant Bucuresti
0758105629 Str.Ilioara, Nr. 18, Sector 3, |
||
| 142. |
De Cartier - Restaurant de tip familial, Bucuresti
0213305556 Str. Viorele, Nr. 57A, sector 4 |
||
| 143. |
Cuptorul cu Lemne - Restaurant pizzerie Bucuresti
0219363 Bd. Pache Protopopescu, Nr 65, sector 2 |
||
| 144. |
La Giuggiola - Gelateria artizanala italiana Bucuresti
0770107183 Bulevardul Pache Protopopescu, Nr. 57, Sector 2 |
||
| 145. |
Intermacedonia, Restaurant - Bucuresti
0212522010; 0212527331; 0212522190 Sos. Mihai Bravu, Nr.95-100, Sector 2 (P-ta Iancului) , Bucuresti |
||
| 146. |
#Aici - Bar, Bucuresti
0799124330 Bulevardul Unirii, Nr 35, Sector 3, Bucuresti |
||
| 147. |
Belli Siciliani - Restaurant autentic sicilian, Bucuresti
0799090601 Str. Matasari, Nr. 47, sevtor 2, |
||
| 148. |
Barfly Bucuresti
0727394131; 0721652899 Olteni , Nr. 3, Sector 3, Bucuresti |
||
| 149. |
Tabiet 41 - Restaurant, Bucuresti
0314260278 Strada Viorele, nr.59, sector 4 |
||
| 150. |
Chong Qing - Restaurant cu specific chinezesc, Bucuresti
0212525095; 0731383952 B-dul Pache Protopopescu, Nr.28, sector 2 |
||
| 151. |
Le Boutique Food Concept Store - Bucuresti
0722538274; 0314380044 Str. Sfantul Stefan, Nr. 13, sector 2 |
||
| 152. |
Bistro HB - Restaurant Bucuresti
0735011736; 0735011735; 0735011737 Strada Matasari, Nr. 49 Sector2 |
||
| 153. |
Posh Birt Select - Pub, Bucuresti
0724004376 Strada Plantelor, Nr. 26, sector 2 |
||
| 154. |
La Dolceria, Cofetarie - Bucuresti
0724315256 Basarabia, Nr.55, M22, Sector 3, Bucuresti |
||
| 155. |
Bucatarasul cel Dibaci - Restaurant cu specific romanesc, Bucuresti
0730340436;0760966360 Strada Olteni, Nr 3, sector 3 |
||
| 156. |
GinOteca - Bar, Bucuresti
0751446446 Strada Plantelor, Nr. 25, sector 2 |
||
| 157. |
JO Lounge - Bar, Bucuresti
0721811995 Bd. Unirii, sector 3 |
||
| 158. |
Pizza PPH - Pizza si catering, Bucuresti
0319441 Str. Lirei, Nr. 13, sector 2 |
||
| 159. |
Zatara - Restaurant cu influente mediteraneene, Bucuresti
0771670756 Vatra Luminoasa, Nr. 108, sector 2 |
||
| 160. |
Human Coffee - Cafenea Bucuresti
0734744429 Str. Elena Cuza, Nr. 8, Sector 4 |
||
| 161. |
Pe Baricade
Radu Voda, nr. 23A, sector 4 |
||
| 162. |
Casa Diham - Restaurant Bucuresti
0213406006; 0727171220 Bd. Nicolae Grigorescu, Nr. 1 A, Sector 3 |
||
| 163. |
Get Naked by Bordello - Restaurant pentru mic dejun si brunch, Bucuresti
0748881086 Bd. Unirii, intre Bd Dimitrie Cantemir si Bd Mircea Voda |
||
| 164. |
Naser - Restaurant specific libanez Bucuresti
0799980001; 0799980002; 0213135060 Str. Fluierului, Nr. 18, sector 2 (colt cu Str. Matasari, in spatele PRO TV) |
||
| 165. |
Thalia - Restaurant cu bucatarie internationala
0219993 Strada Cuza Voda, Nr. 147, sector 4 |
||
| 166. |
Bistro Cafe Carbon 14 - Bucuresti
0790408777 Str. Dimitrie Racovita, Nr. 18, Sector 2 |
||
| 167. |
Cofetaria Ina - Bucuresti
0723300213 Str. C-tin Radulescu Motru, Nr. 6, Sector 4 |
||
| 168. |
Benjamins Restaurant - Nunti, botezuri, evenimente, Bucuresti
0724248428 Sos.Vitan-Barzesti, Nr. 5, Sector 4, Bucuresti |
||
| 169. |
Nori Sushi - Restaurant cu specific japonez, Bucuresti
0771179714 Splaiul Unirii, nr 6, bl B3A, etaj 7-8 |
||
| 170. |
Hanul Hangitei, Restaurant - Bucuresti
0744827323; 0758043355 Bd. Marasesti, Nr.70-72, Sector 4 , Bucuresti |
||
| 171. |
The Dock - Lounge, Bucuresti
0743680336 Bulevardul Unirii, nr. 30, sector 3 |
||
| 172. |
Casa Veche - Restaurant, Ramnicu Valcea
0747875045 ; 0748702238; 0350418155 Stirbei Voda, Nr.162, Ramnicu Valcea, judetul Vilcea |
||
| 173. |
Pizza Bar - Pizzerie, Bucuresti
0746013623 Lanariei, nr. 5, sector 4 |
||
| 174. |
Laur Express Food - Restaurant fast-food, Bucuresti
0732455089 Bulevardul Ferdinand I, Nr. 60, sector 2 |
||
| 175. |
Robescu 14 - Bar specializat in cocktailuri
0773741922 Strada Robescu F. Constantin, Nr. 14, sector 3 |
||
| 176. |
Moon Brasserie - Restaurant Bucuresti
0723093170 Bulevardul Unirii, Nr. 33, sector 3 |
||
| 177. |
Simbio - Restaurant Bucuresti
0756746246 Str Negustori, nr. 26, sector 2 |
||
| 178. |
Mantuleasa 40 - Restaurant Bucuresti
0754045450; 0751133141 Str. Mantuleasa, Nr. 40, sector 2 |
||
| 179. |
Bragageria Bogdania - Bistro, Bucuresti
0787877985 Str. Olari, Nr. 20, Sector 2 |
||
| 180. |
Zoomserie - Cofetarie Bucuresti
0751222265 Sf. Vineri, Nr. 23, sector 3, intersectia Coposu (Calarasilor), |
||
| 181. |
Gedi, Restaurant - Bucuresti
0371119901; 0734207029 Bd. Basarabia, Nr. 176 B, Sector 2, Bucuresti |
||
| 182. |
Jack Pot - Bar specializat in cocktailuri, Bucuresti
0372916947; 0770776777 Zborului, nr. 2, sector 3 |
||
| 183. |
Fabrica de mancare - Restaurant cu supe si ciorbe, Bucuresti
0744123123 B-dul Unirii, nr. 31, sector 3 |
||
| 184. |
Ivan\'s bar & grill - Restaurant traditional, Bucuresti
0723893545;0737276284 Bulevardul Basarabia, Nr. 170 - 174, sector 2 |
||
| 185. |
The Clique Bistro - Restaurant cu specific international, Bucuresti
0784901000 Splaiul Unirii, sector 3 |
||
| 186. |
Bouzouki - Restaurant specific grecesc, Bucuresti
0787528003 Bulevardul Sincai Gheorghe, Nr. 3, sector 4 |
||
| 187. |
Gradina Olari - Terasa, Bucuresti
0770147410 Strada Olari, nr.8, Sector 2 |
||
| 188. |
Sarazin - Carol Fast food Bucuresti
0787625505 Bulevardul Carol I, Nr. 66, Sector 2, |
||
| 189. |
Karishma, Restaurant indian - Bucuresti
0212525157; 0737519953 Iancu Capitanu, Nr. 36, Sector 2, Bucuresti |
||
| 190. |
SwitchEat - Restaurant cu burgeri Bucuresti
0726023881 Strada Horei, Nr 34, sector 2 ( la doi pasi de Foisorul de Foc) |
||
| 191. |
Time Out Cafe - Bar & Cafenea Bucuresti
0744644400 Strada Olari, Nr. 7, sector 2 , |
||
| 192. |
Patiseria Tineretului - Bucuresti
0761116622 Bd. Gheorghe Sincai, Nr 2A, sector 4 |
||
| 193. |
Vis a Vis - Restaurant Bucuresti
0722102223 Bd. I. C. Bratianu, |
||
| 194. |
EXPRESS Food & Drink - Restaurant fast-food, Bucuresti
0732669922 Bd. CAROL I, Nr. 62, Sector 2 |
||
| 195. |
Willy\'s Coffee Art - Bucuresti
0769911077 Bulevardul Carol I, Nr 62, sector 2, |
||
| 196. |
Miss Ale - Bar specializat in cocktailuri
0745089700 Constantin F Robescu, Nr 2, sector 3 |
||
| 197. |
Camizo, Restaurant - Bucuresti
0733018778 Prisaca Dornei, Nr.10A, Sector 3, Bucuresti |
||
| 198. |
Rawyal brunch & cakes - Bucuresti
0730777221 Calea Mosilor, Nr 105, Sector 2 |
||
| 199. |
Manasia Hub - Bar Bucuresti
0736760063 Str. Stelea Spatarul, Nr. 13, sector 3 |
||
| 200. |
Horoscop, Restaurant, Pizzerie - Bucuresti
0767562215 Bd.Dimitrie Cantemir, Nr 2, Sector 4, Bucuresti |
||
| 201. |
Terasa Marius - Bar & Grill, Bucuresti
0745777799 Sos. Pantelimon, Nr. 115-117, sector 2 |
||
| 202. |
Level Up - Restaurant raw vegan, Bucuresti
0721085582 Str Sf. Vineri, Nr 10, sector 3 |
||
| 203. |
Restaurant Burebista Traditional - Bucuresti
0755041484; 0212109704 Calea Mosilor, Nr 195, sector 2 |
||
| 204. |
Wicked Bar - Bucuresti
0722615188; 0723574895 Strada Spatarului, Nr. 4, Sector 2, Bucuresti |
||
| 205. |
Vanilla, Cofetarie - Bucuresti
0733058058 Mihai Bravu, Nr. 47, Parter, Sector 2, Bucuresti |
||
| 206. |
Time to Lunch
0763200900 Strada Patriei, Nr 4, sector 3 |
||
| 207. |
Banjo Jack - Restaurant cu burgeri, Bucuresti
0770653341 Strada Iancu Capitanu, Nr 26, sector 2 |
||
| 208. |
Hanul Haiducilor, Restaurant - Bucuresti
0213307207; 0771756566 Pridvorului, Nr. 25 (In incinta Strandul Copiilor Vacaresti) , Sector 4, Bucuresti |
||
| 209. |
McDonald\'s
0372701091 Piata Unirii 1, Unirea Shopping Center, Bucuresti |
||
| 210. |
Hanul Vacaresti - Restaurant fast-food, Bucuresti
0786200300 Strada Pridvorului, nr. 23, sector 4 |
||
| 211. |
El Torito, Restaurant - Bucuresti
0212526688; 0728176059 Iancu Capitanu , Nr. 30, Sector 2, Bucuresti |
||
| 212. |
L\'Amande - Deserturi fara gluten, Bucuresti
0744639549 Str. Lanariei, Nr. 93-95, sector 4 |
||
| 213. |
Surubelnita - Club, Bucuresti
0768743593 Str. Calea Mosilor, nr. 100, sector 2 |
||
| 214. |
Casa Ede - Restaurant & Beauty - Barber Salon Bucuresti
0772019516 Strada Armeneasca, Nr. 8, sector 2 |
||
| 215. |
The Temple Social Pub - Bucuresti
0723469118 Bd. Marasesti, Nr. 71-73 sector 4 |
||
| 216. |
L\'incontro, Restaurant - Bucuresti
0732113702; 0751906137; 0767241745 Postavarul, Nr. 92, Sector 3, Bucuresti |
||
| 217. |
Cald si Bun, Catering - Bucuresti
0212339457; 0737526215 Hatmanul Arbore, Nr. 11, Sector 1, Bucuresti |
||
| 218. |
Eleven - Restaurant Bucuresti
0723211222; 0786112411 Strada Postavarul, Nr. 86-90, sector 3 |
||
| 219. |
SanThe Fitoceainarie - Ceainarie, Bucuresti
0730370290 Lipscani, nr 104, sector 3, |
||
| 220. |
Sugarography - Atelier de dulciuri Bucuresti
Bucuresti, |
||
| 221. |
Cofetaria Macarons - Bucuresti
0771425575 Bucuresti, |
||
| 222. |
Papila Kitchen - Restaurant, Bucuresti
0753087799 Strada Sfintilor, Nr 6, sector 2 |
||
| 223. |
Events by Tonyo - Restaurant Bucuresti
0723170007 Aleea Hobita, Nr 1 Sector 2 |
||
| 224. |
Tosca Food - Pizzerie Bucuresti
0756435785;0757170957 Strada Intrarea Muncii, Nr. 23, sector 3 |
||
| 225. |
Kuma Bar - Bucuresti
0766440936 Strada Coltei, Nr. 50, sector 3 |
||
| 226. |
Alba, Restaurant - Bucuresti
0213404491; 0722820287 Liviu Rebreanu , Nr. 29 A, Sector. 3, Bucuresti |
||
| 227. |
Vibes Cafe - Restaurant terasa Bucuresti
0788221270 Liviu Rebreanu, Nr. 29, Sector 3 |
||
| 228. |
Emozia coffee manifesto - Cafenea, Bucuresti
0742023590;0726201527 Strada Halelor, nr. 17, sector 3 |
||
| 229. |
Borsalino - Pizzerie Bucuresti
0729954911; 0729954912 Bulevardul Ion C. Bratianu, Nr. 44, Sector 3 |
||
| 230. |
Trattoria Venti - Restaurant Bucuresti
0731315513 Str Postavarului, Nr. 84, Sector 3 |
||
| 231. |
Lacrimi si Sfinti, Restaurant - Bucuresti
0725558286; 0372773999 Sepcari, Nr.16 (Centrul Vechi) Sector 3, Bucuresti |
||
| 232. |
La 100 de Beri - Bar specializat in bere, Bucuresti
0733282598 Str. Gabroveni, Nr.61, sector 3 |
||
| 233. |
Industry Wine Bar- Bar cu vinuri, Bucuresti
0722777222 str. Sepcari, Nr. 19, sector 3 |
||
| 234. |
Zen Garden - Restaurant cu specific chinezesc, Bucuresti
0745102272 Strada Silvestru, Nr. 3, sector 2 |
||
| 235. |
Botanic - Fine dining, Bucuresti
0721261262 Calea Piscului, sector 4 |
||
| 236. |
Hanul lui Manuc, Restaurant - Bucuresti
0213131411; 0769075844; 0730188653 Franceza, Nr. 62-64, Sector 3, Bucuresti |
||
| 237. |
Hanul lui Manuc, Restaurant si Cafenea - Bucuresti
0213131411; 0769075844; 0730188653 Franceza, Nr. 62-64, Sector 3 , Bucuresti |
||
| 238. |
Mica Elvetie Restaurant - Bucuresti
0212245017 Franceza, Nr. 60-62, Sector 3, Bucuresti |
||
| 239. |
Naive - Restaurant cu bar, Bucuresti
0725550333 Bd. I.C. Bratianu, Nr. 36, sector 3 |
||
| 240. |
Legere - Bar, Bucuresti
0730534373 Piata Rosetti, nr 5, sector 2 |
||
| 241. |
Hanul lui Manuc, Restaurant - Bucuresti
0730188653; 0213122811; 0769075844 Franceza , Nr. 62-64, Sector 3 , Bucuresti |
||
| 242. |
Lloyds Pub - Bucuresti
0723133786 Str. Coltei, Nr. 16, Sector 3 |
||
| 243. |
Aria Gourmet Burger - Fast food Bucuresti
0773778860; 0773778860 Strada Slanic, Nr. 2, Sector 3 |
||
| 244. |
Latin Pizza - Pizzerie, Bucuresti
0751896358 Bulevardul Ion C. Bratianu, Nr. 34, sector 3 |
||
| 245. |
The Urbanist - Bar specializat in cocktailuri, Bucuresti
0741392558 Strada Caldarari, Nr. 3, sector 3 |
||
| 246. |
Prajituri de Casa - Cofetarie Bucuresti
0751135153 Calea Mosilor, Nr. 225, sector 2 |
||
| 247. |
FoodVibe - Serviciu de livrare mancare
0371333222 Strada Sperantei, nr. 7, sector 2 |
||
| 248. |
Restaurant La Teu - Bucuresti
0723642022 Strada Titu Maiorescu, Nr.18, sector 2 |
||
| 249. |
Mojo Music Club - Bucuresti
0737220220 Gabroveni, Nr.14, Sector 3, Bucuresti |
||
| 250. |
Hashtag Pub - Bucuresti
0771555444 Soseaua Mihai Bravu, Nr 32, sector 2 |
||
| 251. |
Buoni e Bravi - Pizzerie, Bucuresti
0735215224 Piata C. A. Rosetti, nr. 3, sector 2 |
||
| 252. |
Bazaar - Restaurant Bucuresti
0721999999 Strada Covaci, Nr. 10, sector 3 |
||
| 253. |
Nice Touch - Restaurant cu meniu international, Bucuresti
0771568361 Strada Sperantei, nr.7, sector 2 |
||
| 254. |
Mica Elvetie Restaurant
0212245017 Franceza, Nr. 60-62, Sector 3, Bucuresti |
||
| 255. |
1974 Niste Domni si Fii - Bar Restaurant Bucuresti
0721551099; 0723629306 Covaci, Nr. 7, Sector 3, Bucuresti |
||
| 256. |
Fatafit - Restaurant cu specific libanez, Bucuresti
0760445555 Calea Mosilor, Nr. 225, Sector 2 |
||
| 257. |
Zeppelin Pub - Bucuresti
0722170024 Strada Marin Serghiescu, Nr. 7, sector 2 |
||
| 258. |
Extra Time - Pub Bucuresti
0732166605 Strada Lipscani, Nr. 82A, sector 3 |
||
| 259. |
Bodega La Mahala - Restaurant Bucuresti
0732166606 Covaci, Nr. 8, Sector 3 |
||
| 260. |
Fire Club Pub - Bucuresti
0732166604 Covaci, Nr. 7, Sector 3, Bucuresti |
||
| 261. |
Mao Pub - Bucuresti
0771305995 Str. Lipscani, Nr. 69, Sector 3 |
||
| 262. |
Gambino\'s Pizza - Bucuresti
0731707070; 0725271471; 0310050209 Vasile Lascar, Nr.24, Sector 2, Bucuresti |
||
| 263. |
Ivy - Cafenea, Bucuresti
0755210748 Bulevardul Carol I, Nr. 23, sector 2 |
||
| 264. |
Bistro Fum de Vorbe - Restaurant Bucuresti
0748628830; 0723686292 Vasile Lascar, Nr. 24, Sectorul 2 |
||
| 265. |
Xanadu Restaurant, Pub - Bucuresti
0726212114; 0722621717 Postavarului, Nr. 102, Sector 3, Bucuresti |
||
| 266. |
Private Hell - Club, Bucuresti
0757508336 Str. Soarelui, nr. 5, Sector 3 |
||
| 267. |
Thors Hammer - Bar Bucuresti
0729176724 Str Blanari, Nr. 12, sector 3 |
||
| 268. |
Xanadu Restaurant - Bucuresti
0726212114; 0722621717 Postavarul, Nr. 102, Sector 3, Bucuresti |
||
| 269. |
Blunch Bistro - Restaurant, Bucuresti
0736898990 Mihai Eminescu, Nr.181, sector 2 |
||
| 270. |
Savi - Restaurant si club biliard Bucuresti
0775123051; 0722418555 B-dul 1 Decembrie 1918, Nr. 56L, Sector 3 |
||
| 271. |
Armand, Cofetarie - Bucuresti
0310051187; 0741276263 Armand Calinescu , Nr. 25, Sector 2, Bucuresti |
||
| 272. |
DolciConi - Gelaterie Bucuresti
0753762549 Vasile Lascar, Nr 26-28, sector 2 |
||
| 273. |
Pizzeria La Coco - Bucuresti
0731744444 Str. Gabroveni, Nr. 31, Sector 3 |
||
| 274. |
Nicoresti, Restaurant - Bucuresti
0212112480; 0724290550 Toamnei, Nr. 13 (colt cu Maria Rosetti nr. 40), Sector 2, Bucuresti |
||
| 275. |
Il Destino, Restaurant italian - Bucuresti
0212103039; 0758836278; 0744318094 (Pentru evenimente) Silvestru, Nr. 67, Sector 2, Bucuresti |
||
| 276. |
Boulevard Pub - Bucuresti
0753966961 Strada Covaci, Nr. 4, sector 3 |
||
| 277. |
Bruno Wine Bar - Bar cu vinuri, Bucuresti
0751220229 Strada Covaci, Nr. 3, Centrul Vechi |
||
| 278. |
Bere si Bere - Pub, bere craft si muzica rock
0723280040 Str. Gabroveni, Nr. 4, sector 3 |
||
| 279. |
Trenta Pizza - Bucuresti
0219645 Bd.Chisinau, Nr.5 , sector 2 , Bucuresti |
||
| 280. |
Trattoria la Nave - Restaurant Bucuresti
0743454626 Sos. Pantelimon, Nr. 264, Sector 2 |
||
| 281. |
Ciao Niki - Restaurant cu specific italian, Bucuresti
0734356217;0756044805 Strada Bocsa, Nr 4, sector 2 |
||
| 282. |
Big Ben - Pub cu specific britanic, Bucuresti
0756110089 Str. Franceza, nr. 52, sector 3 |
||
| 283. |
Taverna Covaci - Restaurant cu specific romanesc, Bucuresti
0747226677 Str. Covaci, Nr. 1, sector 3 |
||
| 284. |
Argentin - Restaurant Bucuresti
0774462430; 0774462431 Strada Blanari, Nr. 11-15, Sector 3 |
||
| 285. |
Curtea Berarilor, Restaurant terasa - Bucuresti
0213137532 Selari, Nr.9-11, sector 3, Bucuresti |
||
| 286. |
Shoteria - Shotbar, Bucuresti
0721203039; 0372916947 Strada Selari, Nr. 17, sector 3 |
||
| 287. |
Leonidas Cofetarie - Bucuresti
0740014695; 0213141377 Doamnei, Nr. 27 , Sector 3, Bucuresti |
||
| 288. |
Calif - Restaurant fast-food, Bucuresti
0756200325 Selari, Nr. 19, sector 3, |
||
| 289. |
Terasa Florilor - Restaurant cu terasa, Bucuresti
0755097931 Str. Ion Maiorescu, nr. 42, sector 2 |
||
| 290. |
Haveli, Restaurant - Bucuresti
0212110390; 0721721640 Episcopul Radu, Nr. 3, Sector 2, Bucuresti |
||
| 291. |
Curtea Berarilor, Bar & Grill - Bucuresti
0213137532; 0735861682 (Radu); 0735861681 (Sorina) Selari, Nr. 9-11,Sector 3 (Zona Lipscani), Bucuresti |
||
| 292. |
Sinners - Pub, Bucuresti
0737343210 Covaci, nr.2 , Centrul Vechi, sector 3 |
||
| 293. |
Kentucky Fried Chicken KFC, Fast Food - Bucuresti
0757015948; 0212039030; 0213120023 Soseaua Oltenitei, Nr.85, Sector 4, Bucuresti |
||
| 294. |
Kane - Noua bucatarie romaneasca fina
0314100016 Str. Dianei, nr. 9 (Piata Rosetti), sector 2 |
||
| 295. |
BEAT bar umanist - Bar, Bucuresti
0720854187 Vasile Lascar, Nr. 29, sector 2 |
||
| 296. |
Kiosque des Douceurs - Cofetarie Bucuresti
0758090763 Str. Selari, Nr. 3, Sector. 3, Centrul Vechi |
||
| 297. |
UAU Il Gelato - Gelaterie Bucuresti
0723135015 Str. Gabroveni, Nr. 1-3, sector 3, |
||
| 298. |
Gyros Thessalonikis
0770302148 Strada Gabroveni, Nr. 2,sector 3 |
||
| 299. |
Gilda Music Lounge - Restaurant club Bucuresti
0786770941 Strada Lipscani, Nr. 53, sector 3 |
||
| 300. |
Old Habits - Club de noapte si de dans
0728776699 Strada Lipscani, Nr. 38, sector 3 |
||
| 301. |
Efendi Doner - Restaurant fast-food, Bucuresti
0730578472 Str. Selari, nr. 2, sector 3 |
||
| 302. |
Casa Anca 72, Restaurant - Bucuresti
0724334499; 0744777499 Bd. 1 Decembrie 1918 , Nr. 56A, Sector 3, Bucuresti |
||
| 303. |
Kilkenny Irish Pub - Bucuresti
0751041110 Str Franceza, Nr. 46-48, sector 3 |
||
| 304. |
iDracula - Restaurant tematic, Bucuresti
0753476142;0752559457 Str. Selari, Nr. 10-12, Centrul Vechi, sector 3 |
||
| 305. |
Nomad Skybar - Restaurant, bar, club, Bucuresti
0735448080 Strada Smardan, Nr 30, sector 3 |
||
| 306. |
Delicii Libaneze - Gelaterie, cofetarie, ciocolaterie Bucuresti
0725115811 Str. Franceza, Nr. 13, sector 3 |
||
| 307. |
Trattoria Angoli - Restaurant cu specific italian, Bucuresti
0728264654 Calea Piscului, Oraselul Copiilor, Sector 4 |
||
| 308. |
Calderon 18 - Restaurant cu terasa, Bucuresti
0731886789 Str. Jean Louis Calderon, Nr.18, sector 2, |
||
| 309. |
Xclusive Pub - Bar & Grill, Bucuresti
0723166463 Str. Lipscani, nr. 36, sector 3 |
||
| 310. |
Arcade Cafe - Bucuresti
0722777674 Smardan, Nr.30, (Centrul vechi), Sector 4, Bucuresti |
||
| 311. |
The Drunken Lords - Pub, Bucuresti
0736238815 Intr. Selari, Nr. 3-5, sector 3 |
||
| 312. |
Times Cocktail Bar - Pub, Bucuresti
0731032330 Intrarea Nicolae Selari, nr.1,sector 3, |
||
| 313. |
Burger si Scoici - Restaurant cu burgeri Bucuresti
0753300333 Strada Smardan, Nr. 41, Sector 3 |
||
| 314. |
Artist Cafe - Cafenea Bucuresti
0756777577 Str. Lipscani, Nr. 30-34, sector 3 |
||
| 315. |
Les Bourgeois - Bucuresti
0720132994; 0213106052 Smardan, Nr. 20, Sector 3, Bucuresti |
||
| 316. |
Freddo Pub - Club de noapte si de dans, Bucuresti
0722373336 Str Smardan, nr 24, sector 3, |
||
| 317. |
Storage Room - Bar, Bucuresti
0732363712 Strada Smardan, Nr. 35, sector 3 |
||
| 318. |
Sublimmme - Restaurant vegetarian/vegan, Bucuresti
0771135605 Splaiul Independentei, NR 2F, sector 3 |
||
| 319. |
Aubergine Healthy Food - Restaurant cu mancare sanatoasa, Bucuresti
0213137548 (Smardan); 0771358661 (Aviatorilor) Strada Smardan, Nr 33, sector 3, Bucuresti |
||
| 320. |
Marenka - Cofetarie Bucuresti
0728028827; 0736273652 Bulevardul Theodor Pallady, Nr. 21, Sector 3 |
||
| 321. |
Babylon Fast Food - Bucuresti
0799666267 Soseaua Pantelimon, nr. 255, sector 2 |
||
| 322. |
St. Patrick Irish Pub - Berarie & Sports Bar
0772272420 Str. Smardan, nr. 23-25, sector 3, Bucuresti |
||
| 323. |
Patrick Irish Pub & Restaurant - Bucuresti
0213130336; 0314360112; 0755110008 Smardan, Nr. 23-25, sector 3, Bucuresti |
||
| 324. |
OPUS TNB - Bar specializat in cocktailuri
0771595407 Bulevardul Nicolae Balcescu, Nr. 2, sector 1 |
||
| 325. |
Distrikt 42 - Restaurant Bucuresti
0213156699 Str. Sfantul Dumitru, Nr. 3, sector 3 |
||
| 326. |
Elzada - Restaurant Bucuresti
0724519898; 0722214001; 0723019747 Soseaua Oltenitei, Nr. 13-15, Sector 4 |
||
| 327. |
Tag Aperitivo Bar - Bucuresti
0721888522 Strada Lipscani, nr. 27, sector 3 |
||
| 328. |
Grapes - Bar cu vinuri, Bucuresti
0770463287 Bdul. Marasesti, nr.2B, sector 4 |
||
| 329. |
Photo Cake Cofetarie Bucuresti
0729737619 ; 0723564103 Obolului, Nr.9, Sector 4, Bucuresti |
||
| 330. |
Angelo Grasso - Restaurant cu specific italian, Bucuresti
0739955555 Strada Tudor Arghezi, 12-16, sector 2 |
||
| 331. |
Jos Palaria Cafe - Bucuresti
0314321029 Toma Caragiu , Nr. 3, Sector 3 , Bucuresti |
||
| 332. |
Il Peccato, Restaurant - Bucuresti
0213116767; 0765301300 Franceza, Nr. 30,Sector 3, Bucuresti |
||
| 333. |
Andy Park Ballroom - Salon de evenimente Bucuresti
0724607607 Soseaua Oltenitei, Nr. 13-15, Sector 4 |
||
| 334. |
Casa Jienilor, Restaurant - Bucuresti
0212121951; 0722916111 Fainari, Nr. 5, Sector 2, Bucuresti |
||
| 335. |
Luna Cafe & Bistro - Bucuresti
0771609431; 0771211246 Str. Viitorului, Nr. 32, sector 2, |
||
| 336. |
Myti Pizza - Pizzerie, Bucuresti
0734378358; 0744478578 Bulevardul 1 Decembrie, Nr 7 D, sector 3 |
||
| 337. |
B3ton - RestoBar, Bucuresti
0217963684 Bulevardul Marasesti, Nr. 2B, sector 4 |
||
| 338. |
Casa Jienilor, Restaurant - Bucuresti
0212121951; 0722916111; Fax 0212121951 Fainari, N. 5, Sector 2, Bucuresti |
||
| 339. |
Casa Jienilor Fainari, Restaurant - Bucuresti
0212121951; 0735994994 Fainari, Nr. 5, Sector 2, Bucuresti |
||
| 340. |
Velluto - Gelaterie, Bucuresti
0728991969 Splaiul Independentei, Nr 2J, sector 3 |
||
| 341. |
Casa Morarilor - Restaurant, Bucuresti
0765064409 Soseaua Morarilor, Nr. 2 |
||
| 342. |
Beautyfood - Bistro, Bucuresti
0759030609 Jean Louis Calderon, Nr. 34, sector 2 |
||
| 343. |
Influence - Restaurant, Bucuresti
0745172403 Soseaua Oltenitei, Nr. 39-41, sector 4 |
||
| 344. |
Altfel, Cofetarie - Bucuresti
0213454005; 0744347848; 0741553448 Bd 1 Decembrie 1918, Nr 21 ,Sector 3, Bucuresti |
||
| 345. |
Imperial Turkish Cuisine & Steakhouse- Restaurant Bucuresti
0720102222 Strada Jean Louis Calderon, Nr. 33, Sector 2 |
||
| 346. |
Amnezia Caffe - Bistrou romanesc Bucuresti
0770917737; 0724140931 Str. Sf. Apostoli, Nr. 21, sector 4, |
||
| 347. |
Gradina Urbana - Restaurant cu specific american, Bucuresti
0745250077 Strada Batistei, Nr. 14, sector 2 |
||
| 348. |
Encore Club - Bar specializat in bere
0786247745 Nicolae Tonitza, nr. 13, sector 3 |
||
| 349. |
Vilacrosse, Restaurant Cafe Bistro - Bucuresti
0728358304 Str. Eugen Carada, nr. 7, sector 3, |
||
| 350. |
The Pub - Bucuresti
0728843782 Bulevardul Regina Elisabeta, Nr. 9, sector 3 |
||
| 351. |
Anika - Restaurant cu specific romanesc Bucuresti
0726400148 Str. Pictor Nicolae Tonitza, Nr.10, sector 3 |
||
| 352. |
Club B52 - Bucuresti
0753315563 11 Iunie, N. 50, Sector 5, Bucuresti |
||
| 353. |
Vilacrosse, Bistro, Restaurant - Bucuresti
0728358304; 0744796894 Eugeniu Carada, Nr. 7, Sector 3, Bucuresti |
||
| 354. |
Q Marttinez - Restaurant cu specific european, Bucuresti
0725682944 Eugeniu Carada, Nr. 7, sector 3 |
||
| 355. |
WHYS - Bar, Bucuresti
0785059173 Pasajul Macca-Villacrosse, sector 3 |
||
| 356. |
Caru\' cu Bere, Restaurant - Bucuresti
0213137560; 0726cubere; 0726282373 Stavropoleos , Nr. 3-5, Sector 3, Bucuresti |
||
| 357. |
Saray - Restaurant cu specific turcesc, Bucuresti
0733135834 Lipscani, Nr. 21, sector 3 |
||
| 358. |
Bemolle Cafe - Bucuresti
0213118382; 0723188953 Calea Victoriei , Nr.16-18-20 (Pasaj Villacrosse), Sector 3, Bucuresti |
||
| 359. |
Hatz Burger Studio - Restaurant cu burgeri
0770920018 Soseaua Stefan cel Mare, Nr. 240, Bl. 59A, Sector 2 |
||
| 360. |
Pekin, Restaurant chinezesc - Bucuresti
0213103160; 0723233169; 0769414020 Calea Victoriei, Nr. 16-20, pasaj Villa Cross, Sector 3, Bucuresti |
||
| 361. |
Osteria Zucca - Restaurant cu specific italian, Bucuresti
0770287979; 0314206814 Jean-Louis Calderon, Nr. 41, Sector 2, Bucuresti |
||
| 362. |
Fabrica, Club,Pub, Tersa - Bucuresti
0753227422; 0753315563; 0749116508 11 iunie, Nr,50, Sector 5, Bucuresti |
||
| 363. |
QP Pub - Bucuresti
0736405451 Str. General David Praporgescu, Nr. 13, sector 2 |
||
| 364. |
Valea Regilor - Cafenea, Bucuresti
0213112969 Calea Victoriei, 16-20, Centrul Vechi, sector 3 |
||
| 365. |
Frufru, Fresh, natural, yummy , Fast food - Bucuresti
0212221111; 0765346715 Batistei , Nr. 1-3, Sector 2, Bucuresti |
||
| 366. |
Unico Vero - Restaurant cu specific italian, Bucuresti
0212123338;0758110265 Strada Viitorului, Nr. 8, sector 2 |
||
| 367. |
Hugo Bar - Cafenea cu narghilele, Bucuresti
0732397953 Calea Victoriei, 16-18-20, sector 3 |
||
| 368. |
Casual Pub - Restaurant Bucuresti
0770841212 Bd. Dacia, Nr. 104, Sector 2 |
||
| 369. |
Gelato D\'Amore - Magazin de inghetata Bucuresti
0771727627 Strada Maria Rosetti, Nr. 13, Sector 2 |
||
| 370. |
Jaristea, Restaurant - Bucuresti
0721961936 ; 0775609233 ; 0770948868 George Georgescu, Nr. 50-52, Sector 4, Bucuresti |
||
| 371. |
Noa Restoclub - Restaurant Bucuresti
0799747557 Calea Victoriei, Nr 26 Sector 3 |
||
| 372. |
Scovergaria Micai - Patiserie, cofetarie Bucuresti
0314253670 Calea Victoriei, Nr. 14 colt cu Lipscani 19, sector 3 |
||
| 373. |
Suento - Restaurant cu specific european modern, Bucuresti
0787605362 Strada Toamnei, Nr. 101, sector 2 |
||
| 374. |
M&I Clasic Cuisine - Fast-food si catering Bucuresti
0732948408 Strada Baicului, Nr 104 Sector 2 |
||
| 375. |
Hygge - Restaurant Bucuresti
0771114875 Calea Victoriei, Nr. 21, sector 3 |
||
| 376. |
Newton Bar, Bucuresti
0770718303; 0213150217 Jean Louis Calderon, Nr. 56 (Universitate), Sector 2, Bucuresti |
||
| 377. |
Fadel - Patiserie Bucuresti
0786309530; 0722919132 Strada Jean Louis Calderon, Nr. 56, Sector 2 |
||
| 378. |
Mr. Cigkofte - Restaurant fast-food, Bucuresti
0720802181 Nicolae Balcescu, Nr. 18, sector 1 |
||
| 379. |
Tip Top, Cofetarii - Bucuresti
0212422414 Soseaua Colentina, Nr. 2, Sector 2 (magazinul Bucur-Obor), Bucuresti |
||
| 380. |
Fast Food Eminescu - Bucuresti
0723161166 Str. Mihai Eminescu, nr 137, sector 2 |
||
| 381. |
Linea - Closer To The Moon, Bucuresti
0757824298 Calea Victoriei, nr. 17, sector 3 |
||
| 382. |
La Cena - Restaurant cu specific italian, Bucuresti
0212116717;0730210014 Maria Rosetti, Nr. 1, sector 2 |
||
| 383. |
Hanul Berarilor Interbelic, Restaurant - Bucuresti
0213368009; 0729400800 Poenaru Bordea , Nr. 2, Sector 5, Bucuresti |
||
| 384. |
Carina Sweets - Cofetarie Bucuresti
0771261485 Sos Oltenitei, Nr. 230, Sector 4 |
||
| 385. |
Casa Jienilor, Restaurant - Bucuresti
0735994994; 0722916111 Str. Fainari, nr. 5, sector 2, |
||
| 386. |
BigBoy - Pizzerie Bucuresti
0725570450; 0760925495 Soseaua Vergului, Nr. 8, Sector 3 |
||
| 387. |
Ergo - Restaurant vegan, Bucuresti
0770747559 Bd. Unirii, Nr 5, sector 4 |
||
| 388. |
China Town Restaurant - Bucuresti
0726130138; 0788671161; Tel/Fax:0212120239 Viitorului, Nr. 98, Sector 2, Bucuresti |
||
| 389. |
Capsa Cofetarie Bucuresti
0213134038; 0213135999 Calea Victoriei, Nr. 36, Sector 1, Bucuresti |
||
| 390. |
Casa Capsa, Restaurant - Bucuresti
0213134038; Fax: 0213135999 Calea Victoriei, Nr. 36, Sector 1, Bucuresti |
||
| 391. |
Colosseum Pizza - Bucuresti
0721243613; 0213131860; 0213121020 Calea Victoriei, Nr. 48-50 (Pasajul Victoria), Sector 1, Bucuresti |
||
| 392. |
Trattoria Soleto - Restaurant cu specific italian
0734382419 Soseaua Colentina, nr. 1, sector 2 |
||
| 393. |
Pizzicato, Pizzerie si catering - Bucuresti
0212111213 Strada Icoanei, Nr. 2, Sector 2, Bucuresti |
||
| 394. |
Capitol Hotel si Restaurant - Bucuresti
0213158030; 0317107007 Calea Victoriei , Nr. 29, Sector 1 , Bucuresti |
||
| 395. |
Ramada Majestic, Hotel si Restaurant - Bucuresti
0213102715 Calea Victoriei, Nr. 38-40, Sector 1 , Bucuresti |
||
| 396. |
Il Cantuccio, Restaurant - Bucuresti
0722572957 (Sef unitate: Baieticu Ioana); 0735281669 (Sef unitate: Otvos Gabriela); 0724540839 (Manager: Florea Valentin) Fabrica de Chibrituri , Nr. 2, Rond Autogara Filaret, sector 4, Bucuresti |
||
| 397. |
Colosseum, Restaurant - Bucuresti
0721243613; 0213131860; 0219689 Calea Victoriei , Nr. 48-50 (Pasajul Victoria), sector 1, Bucuresti |
||
| 398. |
Il Cantuccio, Restaurant - Bucuresti
0722572957 (Sef unitate: Baieticu Ioana); 0735281669 (Sef unitate: Otvos Gabriela); 0724540839 Manager: Florea Valentin) Fabrica de Chibrituri, Nr. 2, Rond Autogara Filaret, sector 4, Bucuresti |
||
| 399. |
Cercul Militar National, Restaurant - Bucuresti
0213143735; 0213149551; Fax: 0372874921 Constantin Mille, Nr.1-3, Sector 1, Bucuresti |
||
| 400. |
Haute Pepper - Restaurant cu specific international, Bucuresti
0726284280 Bd. Unirii, nr 2, sector 4 |
||
| 401. |
Saint Gelato - Gelaterie Bucuresti
0745205405 Bulevardul Regina Elisabeta, Nr. 26, Sector 3 |
||
| 402. |
Origo Coffee Shop - Bucuresti
0757086689 Lipscani, Nr. 9,Sector 3, Bucuresti |
||
| 403. |
Boutique Du Pain - Restaurant cu specific francez, Bucuresti
0728443300 Academiei, Nr. 28-30, sector 1 |
||
| 404. |
Big Mic - Restaurant, terasa si pizzerie, Bucuresti
0739244642 Str. Gospodinelor, Nr. 31, sectorul 4 |
||
| 405. |
Energiea - Pub Bucuresti
0736374432 Str. Actor Ion Brezoianu, Nr. 4, Sector 5 |
||
| 406. |
Paine si Vin - Bar cu vinuri, Bucuresti
0755028448 Str. Actor Ion Brezoianu, Nr. 4, sector 5 |
||
| 407. |
Cofetaria Lush - Bucuresti
0720976019?; 0721605303 Soseaua Stefan cel Mare, Nr. 226, bloc.44, parter, sector 2 |
||
| 408. |
La Mosu - Restaurant Bucuresti
0765523208; 0314382508 Soseaua Oltenitei, Nr. 197, Sector 4 |
||
| 409. |
Excalibur, Restaurant - Bucuresti
0730190364; Tel Fax: 0213145670 Academiei, Nr. 39-41, Sector 1 , Bucuresti |
||
| 410. |
The Old Sibiu - Restaurant evenimente Bucuresti
0723602560; 0723637769; 0721172390 Str. Ion Otetelesanu,, Nr. 3A-3B, Sector 1 |
||
| 411. |
Dines, Restaurant evenimente - Bucuresti
0213362474; 0723634741; 0727968325 (Predescu Constantin) Cutitul de Argint, Nr.12 (langa Arenele Romane) Sector 4, Bucuresti |
||
| 412. |
El Pato - Restaurant Bucuresti
0730344810; 0311072033 Strada Dionisie Lupu, Nr. 48, sector 1 |
||
| 413. |
Barocco Bar - Bucuresti
0755028028; 0740114132 Domnita Anastasia, Nr.10 (In spatele McDonalds Regina Elsiabeta), Bucuresti |
||
| 414. |
Michelle - Cofetarie, Bucuresti
0213340084; 0723384312 Soseaua Berceni, Nr. 35, bl. 104, sector 4 |
||
| 415. |
Restaurant Home - Bucatarie internationala, Bucuresti
0722509794; 0728708216; 0729811130 Str. Alexandru Xenopol, Nr. 1 (zona Gradina Icoanei), Sector 1, Bucuresti |
||
| 416. |
Pizza Hut - Bucuresti
0740121903 Bd. Regina Elisabeta, nr. 15-19, sector 3 , |
||
| 417. |
Elisabeta, Restaurant - Bucuresti
0727703703; 0724323132 Bd. Regina Elisabeta, Nr. 45, Sector, Bucuresti |
||
| 418. |
Mon Paris Restaurant & Lounge - Restaurant cu specific european, Bucuresti
0799973783 Bd Dacia, Nr. 62, sector 2 |
||
| 419. |
Sweet by MarVio - Cofetarie Bucuresti
0212105291 Soseaua Stefan cel Mare, Nr 31, sector 2 |
||
| 420. |
Ici et La - Restaurant cu specific francez Bucuresti
0731453608 Strada Domnita Ruxandra, Nr. 7, Sector 2 |
||
| 421. |
Bomb Doner Kebap - Restaurant fast-food, Bucuresti
0727771549 Strada Lizeanu, Nr. 5, sector 2 |
||
| 422. |
Ambasador, Bar si Restaurant - Bucuresti
0213159080; Fax 0213123595 Bd. G-ral Gh. Magheru, Nr. 8-10, Sector 1, Bucuresti |
||
| 423. |
Ceai la Vlaicu - Ceainarie Bucuresti
0727609699 Str. Aurel Vlaicu, Nr. 47, sector 2 |
||
| 424. |
NoName, Restaurant - Bucuresti
0761280642 (Mioara); 0732381801 (Adrian) Mariuca, Nr 1A,Sector 4, Bucuresti |
||
| 425. |
NoName, Restaurant si Terasa - Bucuresti
0761280642 Mariuca, Nr 1A,Sector 4, Bucuresti |
||
| 426. |
Point Hub - Hub Cultural, Bucuresti
0748291815 Str. General Eremia Grigorescu, nr. 10, sector 1, |
||
| 427. |
La Copac - Carciuma de jupani, Bucuresti
0722704445 str. Pitar Mos, nr. 23, sector 1 |
||
| 428. |
French Bakery, Cofetarie - Bucuresti
0213114518 Benjamin Franklin, Nr. 9, Sector 1, Bucuresti |
||
| 429. |
Athos Pizza & Bistro - Livrare non stop, Bucuresti
0213344287; 0728276192 Sos Oltenitei, Nr. 250 Berceni Ira |
||
| 430. |
Prajiturel - Cofetarie Bucuresti
0760858880 Strada Stoian Militaru, Nr. 63, sector 4 |
||
| 431. |
Creamier - Cafenea Bucuresti
0741234567 Strada Benjamin Franklin, Nr. 5, Sector 1 |
||
| 432. |
DA Giulio - Pizzerie, Bucuresti
0212420385 Colentina, Nr. 23 A, sector 2 |
||
| 433. |
Shift Pub - Bucuresti
0212112272 Str. General Eremia Grigorescu, Nr.17 |
||
| 434. |
Lente - Restaurant pentru mic dejun si brunch, Bucuresti
0314107585 Dionisie Lupu, Nr 78, sector 1 |
||
| 435. |
Queen Events - Salon evenimente
0723154564; 0724605209 Splaiul Unirii, Nr. 773-777, Sector 3 |
||
| 436. |
Shiva Coffee&Tea - Cafenea Bucuresti
0748874482 Strada Mihai Eminescu, Nr. 73, sector 2 |
||
| 437. |
VINO - Bar de vinuri, Bucuresti
0799944999 Strada Mihai Eminescu, Nr. 71 |
||
| 438. |
CAJU by Joseph Hadad - Braserie, Bucuresti
0751144545 Nicolae Golescu, Nr. 16, sector 1 |
||
| 439. |
La Impinge Tava - Bucuresti
0721150452 Str. Mihai Eminescu, Nr. 73, Sector 2 |
||
| 440. |
La Ciurucuri - Restaurant cu specific international, Bucuresti
0752850850 Piata Valter Maracineanu, Nr 1-3, sector 1 |
||
| 441. |
Mahala - Restaurant Bucuresti
0729003002 Calea Rahovei, Nr. 147- 153, sector 5 |
||
| 442. |
Simple - Restaurant cu preparate la gratar, Bucuresti
0799779988 Strada Frumusani, Nr. 8A, Sector 4 |
||
| 443. |
Chocolat Ateneu - Boutique restaurant cu livrare de prajituri in Bucuresti
0743777807; 0744507506 Strada Episcopiei, Nr. 6, Sector 1, Bucuresti |
||
| 444. |
Costelaria, Restaurant - Bucuresti
0314055095 Calea Rahovei, Nr. 147-150 , Sector 5, Bucuresti |
||
| 445. |
Nicola Cofetarie - Bucuresti
0214603678 Nitu Vasile , Nr. 50-54, in Complexul Pajistei (langa Taxe si Impozite) Sector 4 , Bucuresti |
||
| 446. |
Cafe Verona - Cafenea Bucuresti
0732003060 Str. Arthur Verona, Nr. 13, sector 1, |
||
| 447. |
Krisperie - Restaurant fast-food, Bucuresti
0762888844 Strada Doamna Ghica, Nr. 235, sector 2 |
||
| 448. |
Casa Luminita, Restaurant - Bucuresti
0749202000 (Lucian Ionescu); 0723500565 Theodor Pallady, Nr. 287, Sector 3 (zona Ozana), Bucuresti |
||
| 449. |
Casa Nica, Restaurant - Bucuresti
0724373558; 0723641985 Peroni, Nr. 28 (vis-a-vis de benzinaria Lukoil), sector 4, Bucuresti |
||
| 450. |
Lolita - Boutique de dulciuri Bucuresti
0757013453 Strada Vasile Lascar, Nr. 212, sector 2 |
||
| 451. |
Della Casa Pizza - Bucuresti
0721312666; 0746577383; 0768720228 Sos. Gherase, Nr. 96, (Zona Doamna Ghica) Sector 2, Bucuresti |
||
| 452. |
Athénée Palace Hilton,Cafenea,Baruri - Bucuresti
0213033777; 0213152121; Fax: 0213152121 Episcopiei, Nr. 1-3, Sector 1 , Bucuresti |
||
| 453. |
Flair Angel - Bar specializat in cocktailuri, Bucuresti
0769771991 Calea Rahovei, Nr. 147-153, sector 5 |
||
| 454. |
Casa Pizza - Pizzerie, Bucuresti
0746544815; 0720923622 Str. Mariuca, nr. 23A, sector 4 |
||
| 455. |
Templul Soarelui, Restaurant chinezesc - Bucuresti
0212111693; 0723743878 Vasile Lascar, Nr. 205, Sector 2, Bucuresti |
||
| 456. |
Templul Soarelui, Restaurant chinezesc - Bucuresti
0212111693; 0723743878 Vasile Lascar, Nr. 205, Sector 2, Bucuresti |
||
| 457. |
Baroque Events & Garden - Restaurant Bucuresti
0726350802 Calea Rahovei, Nr. 145, Sector 5 |
||
| 458. |
Salon Golescu - Bar specializat in cocktailuri, Bucuresti
0314360338 Strada Nicolae Golescu, Nr 17, sector 1 |
||
| 459. |
Pasticceria Giuseppina Cofetarie - Bucuresti
0730283947 Soseaua Stefan cel Mare, Nr.46, Sector 2, Bucuresti |
||
| 460. |
Ambasador, Restaurant - Hotel Ambasador, Bucuresti
0213159080 Bd. G-ral Ghe. Magheru, Nr. 8-10, Sector 1, Bucuresti |
||
| 461. |
Suzana Ribs & Wings - Restaurant cu specialitati texane, Bucuresti
0785444466 Calea Rahovei, Nr. 147-153, Sector 5, Palatul Bragadiru |
||
| 462. |
Torna Fratre Restaurant - Bucuresti
0212103557; 0784111890 Tunari, Nr. 34, Sector 2, Bucuresti |
||
| 463. |
Journey Pub - Bucuresti
0752285286 Strada George Enescu, Nr. 25, sector 1 |
||
| 464. |
Gemenii Pizza - Bucuresti
0766633686 Strada Fetesti, Nr. 11A, Sector 3 |
||
| 465. |
Lugo - Restaurant cu specific mediteranean, Bucuresti
0785238910 George Enescu, Nr. 23, sector 1 |
||
| 466. |
Paradis, Cofetarie - Bucuresti
0724398400 Sos Pantelimon, Nr.354,Bloc 2, Sector 2, Bucuresti |
||
| 467. |
M60 - Cafenea Bucuresti
0314100010 Strada Mendeleev, Nr 2, sector 1 |
||
| 468. |
Miss Ale - Espresso Bar, Bucuresti
0371394059 Calea Victoriei, Nr. 100, sector 1 |
||
| 469. |
Trattoria Don Vito - Restaurant Bucuresti
0733333021 Str. Mendeleev, Nr. 1, Sector 1 |
||
| 470. |
Savart - Arta savorilor Gourmet, Bucuresti
0743575757 Str. George Enescu, Nr. 2-4, sector 1 |
||
| 471. |
Panik & Pub - Pub, Bucuresti
0728264360 Str. Mihai Eminescu, Nr. 33 |
||
| 472. |
Wine Ambassador - Bar de vinuri, Bucuresti
0733182037 Intrarea Biserica Alba, nr.1, sector 1 |
||
| 473. |
Casa Oamenilor de Stiinta - Restaurant, Bucuresti
0726664227; 0722926012; 0769293579 P-ta Lahovari, nr. 9, Sector 1 |
||
| 474. |
Terminus - Pub, Bucuresti
0730222555 Str. George Enescu, nr. 5, sector 1, |
||
| 475. |
Maison des Crepes - Clatitarie Bucuresti
0770802524 Strada Mihai Eminescu, Nr. 38, Sector 2 |
||
| 476. |
Primus Pub - Bucuresti
0732222666 George Enescu, Nr. 3, sector 1 |
||
| 477. |
Acuarela Bufet - Bucuresti
0745662889; 0741403238; 0721483051 Polona, Nr. 40,Sector 1, Bucuresti |
||
| 478. |
Camera din fata - Ceainaria Bucuresti
0213111512 Str. Mendeleev, Nr. 22, sector 1, langa Piata Amzei |
||
| 479. |
Dolce Principessa Cofetarie - Bucuresti
0212115155; 0735213101 Calea Dorobanti, nr. 50A, sector 1, Bucuresti |
||
| 480. |
Cofetaria Casandra - Bucuresti
0757252466 B-dul. Magheru, Nr. 32-36, Sector 1 |
||
| 481. |
Benihana - Restaurant cu specific japonez
0751169889 Calea Dorobantilor, Nr. 5-7 Hotel Howard Johnson, sector 1, |
||
| 482. |
KFC Romana, Fast Food - Bucuresti
0740121904 Bd. G-ral Gh. Magheru , Nr. 28-30, Sector 1 , Bucuresti |
||
| 483. |
Amareto, Cofetarie - Bucuresti
0736659592; 0723830104; 0723830104 whatsapp Sos. Stefan cel Mare , Nr. 36, Sector 2 (vis-a-vis de Circul Metropolitan Bucuresti), Bucuresti |
||
| 484. |
Red Angus Steakhouse - Restaurant Bucuresti
0756600000 Piata Amzei, Nr. 10-22Sector 1, |
||
| 485. |
Naser 2 - Restaurant traditional libanez Bucuresti
0799997111 Str. Maica Domnului, Nr. 5B, Sector 2 |
||
| 486. |
Turkish Clasis - Restaurant, Bucuresti
0721503011 Sos Viilor, nr.27, sector 5 |
||
| 487. |
Cofetaria Eduard - Bucuresti
0760944165 Bulevardul Pieptanari, Nr. 53, sector 4 |
||
| 488. |
Trei Camile - Restaurant Bucuresti
0747641564 Blv. Pieptanari, Nr. 43, sector 5 |
||
| 489. |
Paninaro - Restaurant pentru mic dejun si brunch
0771783619 Strada Luterana, Nr 3, sector 1 |
||
| 490. |
Tropicana, Restaurant - Bucuresti
0724614723 (Niculae Adrian); 0724571502 (Niculae Valentina) Grigore Ionescu, Nr 94, Sector 2, Bucuresti |
||
| 491. |
Pizza Hut - Bucuresti
0740121901 Calea Dorobantilor , Nr. 5-7, Sector 1 , Bucuresti |
||
| 492. |
Bohemia Tea House, Ceainarie - Bucuresti
0727333631 Poiana Narciselor, Nr. 1 (vizavi de Conservator), Sector 1, Bucuresti |
||
| 493. |
Talla - Cofetarie Bucuresti
0728314326 Str. Aleea Mizil, Sector 3 |
||
| 494. |
Galeto - Restaurant Bucuresti
0765253555 Strada Nitu Vasile, Nr 61, sector 4 |
||
| 495. |
Gusto e Passione - Gelateria Artigianale, Bucuresti
0755555453 Calea Victoriei, Nr. 87, sector 1 |
||
| 496. |
Monte Carlo Cismigiu, Restaurant - Bucuresti
0213131344 Parcul Cismigiu, Parcul Cismigiu, Sector 1 , Bucuresti |
||
| 497. |
Cofetaria Zora - Bucuresti
0771119563 Strada Uranus, Nr. 100, Sector 5 |
||
| 498. |
You & Me - Restaurant cu specific international, Bucuresti
0733918474 Bd. Constantin Brancoveanu, Nr. 110 D (langa Spitalul de copii Marie Curie), Bucuresti |
||
| 499. |
Monte Carlo Cismigiu, Restaurant - Bucuresti
0213131344 Parc Cismigiu, Sector 1, Bucuresti |
||
| 500. |
Barrio - Restaurant & bar, Bucuresti
0733222777 Biserica Amzei, Nr. 30, sector 1 |
||
| 501. |
Ivan Pescar & Scrumbia Bar - Restaurant pescaresc, Bucuresti
0729384828 Str. Uranus, nr 150, cladirea The Ark, parter, sector 5 |
||
| 502. |
La Baraca - Bar & Grill Bucuresti
0758986045 Str. Pargarilor, Nr. 17bis, sector 2 |
||
| 503. |
Sweetology - Gelaterie, Bucuresti
0734444889 Calea Victoriei, Nr. 122, sector 1 |
||
| 504. |
Tonka Soul Café - Bucuresti
0371445255 Biserica Amzei , Nr. 19, Sector 1, Bucuresti |
||
| 505. |
Velocita - Gelaterie, Bucuresti
0739889189 Calea Victoriei, Nr. 122, sector 1 |
||
| 506. |
Bar A1 - Bucuresti
0770901409 Piata Amzei, Nr 1, sector 1 |
||
| 507. |
Fika18 - Croissanterie, Bucuresti
0770663982 Calea Victoriei, Nr. 101, sector 1 |
||
| 508. |
Krishna Caffe - Cafenea Bucuresti
0729745988;0740133254 Bd. Mihail Kogalniceanu, Nr. 17, sector 5, |
||
| 509. |
Boema 33 - Restaurant, Bucuresti
0722295463 Bd. Dacia, nr. 33, sector 1 (Piata Romana) |
||
| 510. |
Gradina Eden - Terasa Bucuresti
0722185368 Calea Dorobanti, Nr. 44-46 sector 1 |
||
| 511. |
Joy House - Restaurant Bucuresti
0730443232 Str. Teiul Doamnei, Nr. 9A, Sector 2 |
||
| 512. |
Coolinart - Gastropub Bucuresti
0772017955 Calea Victoriei, Nr. 142-148, sector 1 |
||
| 513. |
Gelato Mio - Magazin de inghetata Bucuresti
0765799379; 0720044495; 0744555599 Str. Polona, Nr. 76, sector 1 |
||
| 514. |
Sweet Moments - Cofetarie artizanala Bucuresti
0745199938 Aleea Emil Racovita, Nr. 25, sector 4 |
||
| 515. |
Trattoria Mezzaluna - Restaurant specific italian Bucuresti
0729591469 Calea Dorobanti, Nr. 63, sector 1 |
||
| 516. |
Tulin, Restaurant libanez - Bucuresti
0213144001; 0762212675 Pictor Constantin Stahi, Nr. 2, Sector 1, Bucuresti |
||
| 517. |
Animaletto Pizza Bar - Bucuresti
0755019098 Strada Visarion, Nr 10, sector 1 |
||
| 518. |
Nicolai To Go - Bistro Bucuresti
0741600006 Calea Dorobantilor, Nr. 67, sector 1 |
||
| 519. |
Minimal Cofetarie - Bucuresti
0212751765 Straduintei , Nr. 1, Sector 4 , Bucuresti |
||
| 520. |
Trafalgar Pub - Bucuresti
0212113151; 0766625805 David Emanuel , Nr. 4A, Sector 1, Bucuresti |
||
| 521. |
Bellini Garden - Restaurant cu specific italian, Bucuresti
0722100111; 0314278776 str. General Henri Mathias Berthelot, nr. 44, sector 1 |
||
| 522. |
Ciorbarie - Restaurant cu supe si ciorbe, Bucuresti
0785610628 Calea Dorobanti, Nr. 73, sector 1 |
||
| 523. |
Edo Sushi - Restaurant cu specific japonez, Bucuresti
0735111095 Stirbei Voda, Nr 84A, sector 1 |
||
| 524. |
Sabatini Pizza - Bucuresti
0770227880; 0766606637; 0731876441 Teiul Doamnei, Nr. 15, Sector 2, Bucuresti |
||
| 525. |
Sabatini Pizza - Bucuresti
0212428725; 0731876441; 0766606637 Teiul Doamnei , Nr 15, Sector 2, Bucuresti |
||
| 526. |
Ceramic Cafe - Bucuresti
0774007364 I.C. Visarion, Nr 20, sector 1 |
||
| 527. |
Nasu & Finu, Restaurant - Bucuresti
0727933656 ; 0768101345; 0214602572 Cimpoierilor, Nr. 12, Sector 4, Bucuresti |
||
| 528. |
Bellini Pizza - Bucuresti
0314278776 General Henri Matias Berthelot, Nr. 44,Sector 1, Bucuresti |
||
| 529. |
Refugiu - Restaurant Bucuresti
0763478438;0727626981 Strada Otesani, Nr 73 , Sector 2 |
||
| 530. |
Nasu & Finu, Restaurant
0739648277; 0727933656; 0768101345 Cimpoierilor , Nr. 12, Sector 4, Bucuresti |
||
| 531. |
Parliament, Restaurant - Bucuresti
0214119990; 0214119991; 0721332397 Izvor , Nr. 106, Sector 5 , Bucuresti |
||
| 532. |
Provence, Restaurant - Bucuresti
0724212282; 0722683629; 0799683683 B-dul Alexandru Obregia, Nr 25A, sector 4 (Langa Mega Image), Bucuresti |
||
| 533. |
Parliament, Restaurant - Bucuresti
0214119990; 0214119991; 0721332397 Str. Izvor, Nr. 106, Sector 5 , Bucuresti |
||
| 534. |
Decadence - Bar & Restaurant
0741828489 Strada Constantin Daniel, nr. 11, sector 1 |
||
| 535. |
Restaurant Ceaun
0756090680 Strada Maica Domnului, Nr. 54-56, sector 2 |
||
| 536. |
Ciccio - Pizzerie Bucuresti
0745515510 Strada Henri Coanda, Nr. 28 sector 1 |
||
| 537. |
La Gafe - Restaurant traditional Bucuresti
0721389446 Str Dorin Pavel, Nr 1, sector 2 |
||
| 538. |
Bacania Veche - Bistro si pravalie Bucuresti
0752202103; 0212101222 Barbu Vacarescu, Nr. 49, sector 2 |
||
| 539. |
Rocca by The Jar - Gastropub Bucuresti
0770857841 Str. Pictor Theodor Aman, Nr. 36, sector 1 |
||
| 540. |
The Canteen - Restaurant Bucuresti
0735517630 Str. Barbu Vacarescu, Nr. 44, Bl. 7 Sector 2 |
||
| 541. |
The Owl Cocktail House - Bar specializat in cocktailuri, Bucuresti
0743260923 str. Stirbei Voda, Nr. 104-106, sector 1 |
||
| 542. |
Friddi - Gelaterie, Bucuresti
0314313295 Str. Vasile Alecsandri, Nr. 4, sector 1 |
||
| 543. |
AVA Bistro - Restaurant si catering, Bucuresti
0770888222 Strada Dorin Pavel, Nr. 15, sector 2 |
||
| 544. |
Ciorbe si Placinte - Restaurant cu specific romanesc, Bucuresti
0755993070 B-dul Iancu de Hunedoara, Nr. 64, sector 1 |
||
| 545. |
Arome - Restaurant vegetarian/vegan, Bucuresti
0749109639 Luigi Cazzavillan, Nr. 25, sector 1 |
||
| 546. |
Ganesha Caffe & Garden - Bucuresti
0764263742 Str. Barbu Vacarescu, nr. 71, sector 2, |
||
| 547. |
Circus Pub - Restaurant cu burgeri, Bucuresti
0725180680 Bulevardul Lacul Tei, Nr 65, sector 2 |
||
| 548. |
La Cantine de Nicolai, Restaurant - Bucuresti
0725210608 Povernei, Nr. 15-17, Sector 1, Bucresti |
||
| 549. |
Bistro raw vegan, Restaurant - Bucuresti
0726605501 Transilvaniei, Nr. 11, Sector 1, Bucuresti |
||
| 550. |
Kicen - Ciorbe de casa, Bucuresti
0751012221 str. Dr. Staicovici, nr. 43, sector 5 |
||
| 551. |
Brigitte - Cofetarie Bucuresti
0727891345; 0745779722 str. Cristea Mateescu, Nr.77, Sector 2 |
||
| 552. |
Capital Plaza, Hotel si Restaurant - Bucuresti
0372080050; 0372080081 Bd.Iancu de Hunedoara, Nr. 54, Sector 1, Bucuresti |
||
| 553. |
Capital Plaza, Hotel si Restaurant - Bucuresti
0372080080; Fax: 0372080081 Bd. Iancu de Hunedoara, Nr. 54, Sector 1, Bucuresti |
||
| 554. |
Dabeef - Restaurant Bucuresti
0739835658 Calea Floreasca, Nr. 111-113, Sector 1 |
||
| 555. |
E3 by Entourage - Restaurant Bucuresti
0734966889 Calea Floreasca, Nr. 111-113, Sector 1 |
||
| 556. |
Blue Margarita - Restaurant cu specific mexican Bucuresti
0770944822 Strada Povernei, Nr. 15-17, sector 1 |
||
| 557. |
Castronul Gustos - Restaurant, Bucuresti
0749011588 Str. Nasaud, nr. 97, Sector 5 |
||
| 558. |
La Finca by Alioli - Restaurant Bucuresti
0767150500 Str. Caderea Bastiliei, Nr. 78, Sector 1, |
||
| 559. |
Nan Jing, Restaurant chinezesc - Bucuresti
0213181285; 0726103407 G-ral Gheorghe Manu, Nr. 2-4 (Hotel Minerva), Sector 1, Bucuresti |
||
| 560. |
Citylicious - Restaurant Bucuresti
0771707709 Bld Tudor Vladimirescu, Nr. 29, sector 5 |
||
| 561. |
Carols - Restaurant Bucuresti
0763331270 Soseaua Berceni, Nr. 62, Sector 4 |
||
| 562. |
La Taifas, Bistro - Bucuresti
0723197156; 0212127788 Mihail Moxa, Nr. 12, Sector 1 , Bucuresti |
||
| 563. |
Restaurant Sole - Bucuresti
0722587589 Bd. Iancu de Hunedoara, Nr. 48, etaj 15, sector 1 |
||
| 564. |
The President, Restaurant - Bucuresti
0720047541; 0760087384; 0766747379 Bd. Lacul Tei, nr. 145 (in Parcul Tei - pe malul lacului), Sector 2, Bucuresti |
||
| 565. |
Die Deutsche Kneipe - Restaurant cu specific german
0722284560 Str. Stockholm, nr. 9, sector 1, |
||
| 566. |
J\'ai Bistrot - Gastropub, Bucuresti
0790229922 Calea Grivitei, nr. 55, sector 1 |
||
| 567. |
Atelierul de dulciuri - Torturi de casa, Ilfov
0761622331 Sos.Oltenitei, nr 24, Popesti Leordeni, judetul Ilfov |
||
| 568. |
Bistro La Taifas, Restaurant - Bucuresti
0212127788; 0723197156 Gheorghe Manu, Nr. 16, Sector 1, Bucuresti |
||
| 569. |
Fire House Restaurant
0790409234 Drumul Gura Crivatului, nr. 80, Sector 3, Bucharest |
||
| 570. |
Oby - Fast Food, Bucuresti
0768955169 Calea Ferentari, nr. 177, sector 5 |
||
| 571. |
La Taifas, Restaurant - Bucuresti
0212127788; 0723197156 Gheorghe Manu, Nr. 16, sector 1 , Bucuresti |
||
| 572. |
Old School, Restaurant - Bucuresti
0744105445; 0745110362 Calea Plevnei, Nr. 61, Sector 6, Bucuresti |
||
| 573. |
La Paraul Rece, Restaurant - Popesti Leordeni
0731003133; 0731003132 Soseaua Oltenitei , Nr.26A, Popesti-Leordeni , judetul Ilfov |
||
| 574. |
Bocca Lupo - Restaurant cu specific italian, Bucuresti
0314050050 Strada Dr. Lister, nr. 1, sector 5 |
||
| 575. |
Veranda Casa Frumoasa - Restaurant Bucuresti
0733735932 Str. Clopotarii Vechi, Nr. 5, sector 1 |
||
| 576. |
Domino\'s Pizza - Bucuresti
0736500200 Bd. Iancu de Hunedoara, Nr. 38, Sector 1 , Bucuresti |
||
| 577. |
Domino\'s Pizza, Fast food - Bucuresti
0736500200 Bd. Iancu de Hunedoara, nr. 38, sector 1 , Bucuresti |
||
| 578. |
Japanos - Restaurant cu specific japonez, Bucuresti
0771621192 Calea Dorobantilor, nr. 116-122, spatiul comercial nr. 3, parter, sector 1 |
||
| 579. |
Black Habit - Cafenea
0770357382 Calea Grivitei, Nr. 77, sector 1 |
||
| 580. |
La Grasi - Restaurant & Fast-food, Bucuresti
0771620619 Strada Huedin, Nr 21, Sector 4, Bucuresti |
||
| 581. |
Cofetaria Dinalex - Bucuresti
0214237928; 0785137937 Calea Ferentari, Nr. 162, sector 5 |
||
| 582. |
Pasterra - Restaurant cu mancare specifica din Abruzzo, Bucuresti
0751222668 strada Comandor Eugen Botez, Nr. 27, sector 2 |
||
| 583. |
Sara Green - Restaurant vegan, Bucuresti
0774962246;0765191076 Bulevardul Lascar Catargiu, Nr 43, Sector 1 |
||
| vezi mai multe | |||
| 1. |
BUCURESTI MALL
Tel. 021.327.67.00; 021.327.61.00; 021.327.61.02; Fax 021.320.92.09 Calea Vitan nr. 55-59, sector 3, |
||
| 2. |
SUPERMARKET MAICOM
Tel. 0722.322.573; Fax 321.78.36 Str. Vitan nr. 104, sector 3 |
||
| 3. |
GMARKET
Bucuresti |
||
| 4. |
CONCORD 2002
Tel/Fax 323.90.87 Bd. Decebal nr. 7, sector 3 |
||
| 5. |
FOR YOU
Tel. 0745.094.433 Bd. Decebal nr. 24, sector 3 |
||
| 6. |
Ava Center
0769240700; 0213201626; 0730096166 Mihai Bravu, Nr. 540-564, Sector 3, Bucuresti |
||
| 7. |
AUCHAN
Tel. 0750.014.150 Calea Vitan nr. 236, sector 3, |
||
| 8. |
FONZI SUPERMARKET
Tel. 0729.005.260; Tel/Fax 021.323.67.52 Str. Nerva Traian, nr. 17-19, sector 3, |
||
| 9. |
TITAN
Tel. 0732.995.515 Str. Liviu Rebreanu nr. 6A, sector 3, |
||
| 10. |
Wini Imobili
Tel.021.307.60.50; 0742.144.034, 0755.068.669; Fax.021.307.60.51 Pierre de Coubertin, nr. 3-5, sector 2, Bucuresti |
||
| 11. |
MEGA MALL
Str. Pierre de Coubertin, nr. 3-5, langa Arena Nationala, |
||
| 12. |
CARREFOUR
Tel. 0374.145.800; Fax 021.307.66.96 Bd. Corneliu Coposu nr. 2, sector 3, |
||
| 13. |
BILLA
Tel. 021.345.27.51; Fax 021.345.26.46 Str. Postavarul 24-52, sector 3 |
||
| 14. |
COCOR
Tel. 021.313.14.03; 021.313.92.39; 021.314.96.64; 021.314.96.65; Fax 021.313.98.48 Bd. I.C. Bratianu nr. 29-33, sector 3, |
||
| 15. |
Cocor Luxury Store
021.312.43.10; Fax: 021.313.98.48 Bd. I.C. Bratianu, nr. 29-33, sector 3, |
||
| 16. |
Vitantis Shopping Center Bucuresti - Magazine retail Praktiker, Diego si Casa Rusu
0213104513; Fax: 0213150813 Soseaua Vitan-Barzesti, nr. 7A, sector 4, Bucuresti |
||
| 17. |
IRIS SHOPPING CENTER
0314.38.29.70 Cine Grand Bd. 1 Decembrie 1918, nr. 33A, sector 3, Bucuresti |
||
| 18. |
Penny Market
0800.110.111 Bd.1 Decembrie 1918, nr. 33, sector 3, |
||
| 19. |
IRIS SHOPPING CENTER
021.345.01.29 Bd. 1 Decembrie 1918, nr. 33A, sector 3, Bucuresti |
||
| 20. |
AUCHAN
Tel. 021.408.01.07; 021.408.01.08 Bd. 1 Decembrie 1918 nr. 33A, sector 3, |
||
| 21. |
SUN PLAZA MALL
021.233.17.45; 0720.200.582 Calea Vacaresti, nr. 391, Piata Sudului, sector 4, Bucuresti |
||
| 22. |
BUCUR OBOR
021.252.59.34; 021.252.59.35; 021.252.63.82 Sos.Colentina, nr. 2, sector 2 , Bucuresti |
||
| 23. |
DENISA MARKET
Tel. 021.211.71.70; 0722.691.595; 0749.263.036; Fax 021.211.71.70 Str. Rasuri nr. 1, sector 2 |
||
| 24. |
KIKA
0372330501; 0372330630; 0372330637 Bulevardul Theodor Pallady, 51 D ,Sector 3, Bucuresti |
||
| 25. |
CITY MALL
Tel. 021.319.35.22; Fax 021.319.35.21 Sos.Oltenitei nr. 2, sector 4 |
||
| 26. |
CORA
Tel. 021.205.35.00 Sos. Vergului, nr. 20, sector 2, |
||
| 27. |
LIBERTY CENTER
0213699871; 0213699835 Sos. Progresului, nr. 151-171, sector 5, Bucuresti |
||
| 28. |
INTERHOME
Tel. 021.456.31.85; Fax 021.456.31.80; 021.456.31.83 Str. Nasaud, nr. 97, sector 5, |
||
| 29. |
CENTER HUEDIN
Tel. 021.405.58.00; 0720.237.237 Str. Huedin nr. 19, sector 4 |
||
| 30. |
Penny Market XXL
0800.110.111 Sos.Fundeni, nr. 38-40, sector 2, Bucuresti |
||
| 31. |
GRAND ARENA MALL
Tel. 031 42.57.514; Fax 031.425.05.17 Bd. Metalurgiei nr. 12-18, sector 4, |
||
| 32. |
SONMEZ MARKT 4
Tel. 211.65.39; Fax 210.13.25 Bd. Iancu de Hunedoara nr. 64, sector 1 |
||
| vezi mai multe | |||
Sunteti de acord sa fiti contactat prin mesageria Anuntul.ro
de persoana care a adaugat acest anunt?
Vezi istoricul preţurilor din zona
Vezi email
Distribuie Facebook
Anunţurile utilizatorului
Pagina pe care doriti sa o accesati poate sa contina elemente care nu sunt recomandate minorilor!
Va rugam sa confirmati ca aveti peste 18 ani!
