Ștefan cel Mare ...
5 min.
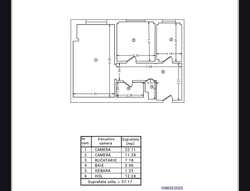
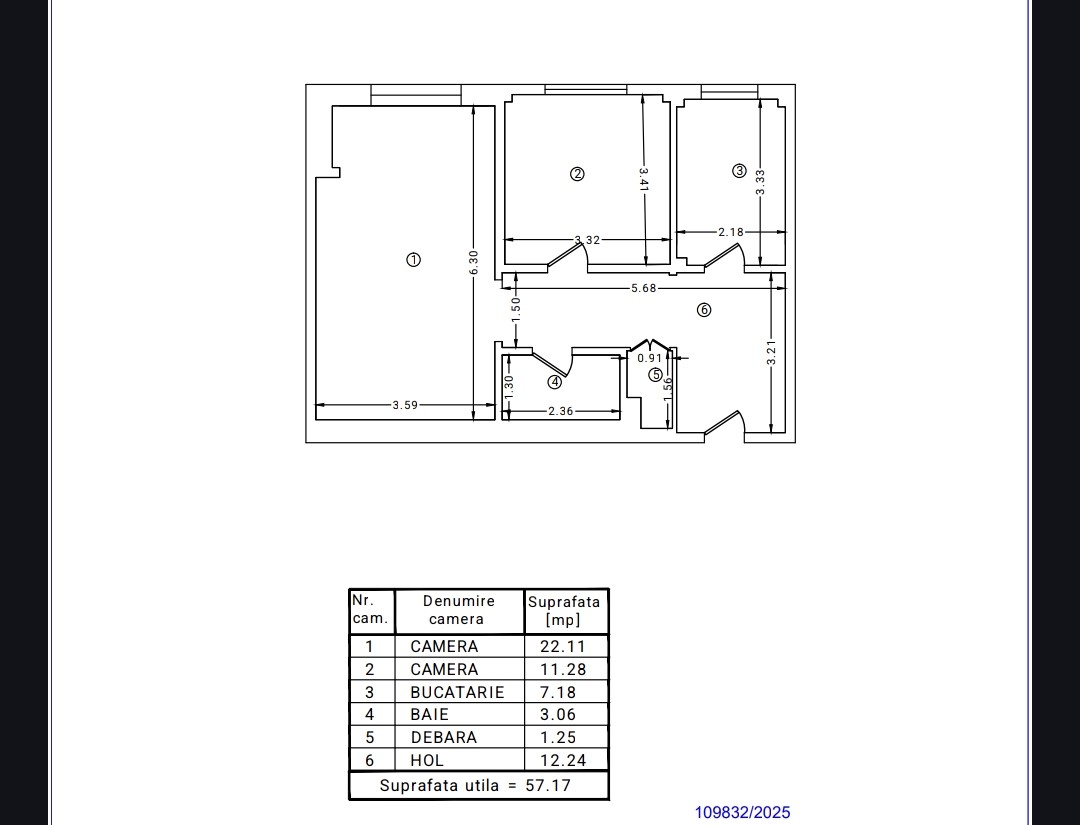
calculeaza distantaFloreasca, Stefan cel Mare, apartament 2 camere renovat. Va prezint spre vanzare un apartament cu 2 camere, situat intr-o zona premium a Capitalei – Floreasca – Stefan cel Mare.
Cu o suprafata de 57 mp, apartamentul este amplasat la Parter din 8 al unui imobil construit in 1983.
Proprietatea a fost renovata, oferind un spatiu modern, bine organizat si pregatit pentru mutare. Compartimentarea este eficienta, fiind potrivita atat pentru locuinta proprie, cat si pentru investitie.
Localizare excelenta:
📍 Floreasca – Stefan cel Mare
Acces rapid catre metrou, centre de business, restaurante, parcuri si alte facilitati urbane.
Aceasta proprietate reprezinta o oportunitate excelenta intr-una dintre cele mai cautate zone din Bucuresti.
💶 Pret: 175.000 euro
📞 Pentru mai multe informatii si programarea unei vizionari sunati;
Statii metrou |
Timp | |
![]() |
Ștefan cel Mare | 5 min. |
![]() |
Piața Romană | 18 min. |
![]() |
Piața Victoriei - M1 M2 | 19 min. |
Statii STB |
Timp |
|
Șoseaua Ștefan cel Mare
131
,135
,301
,330
,331
,335
,461
|
2 min. |
|
Calea Dorobanților
1
46
182
|
4 min. |
|
Stadionul Dinamo
135
,182
|
5 min. |
|
Perla
301
,331
,335
,461
,N119
|
5 min. |
|
Stadion Dinamo
1
46
182
,330
,335
|
5 min. |
|
Ștefan cel Mare
|
6 min. |
|
Barbu Văcărescu
|
7 min. |
|
Roma
1
46
|
9 min. |
|
Bd. Lacul Tei
182
,330
|
10 min. |
| 1. |
Gradinita Nr. 252 Bucuresti
0212302296 Calea Dorobantilor, nr. 60, sector 1 |
||
| 2. |
Cartea cu Povesti - Gradinita Bucuresti
0766237114 Str. Aurel Vlaicu, nr. 127A, sector 2, |
||
| 3. |
Smart Kinder Villa - Before & After School Bucuresti
0726285699; 0728472197 Str. Nicolae Beldiceanu, nr. 2, sector 1 |
||
| 4. |
Gradinita nr. 138 sector 2
0212106377 Str. Tunari, nr. 52, sector 2 |
||
| 5. |
Alfred Fronius - Gradinita si afterschool in limba germana Bucuresti
0372978427; 0726715499 Str. Tunari, Nr. 39 (zona Stefan Cel Mare), sector 2 |
||
| 6. |
Happy Kids - Gradinita si after school Bucuresti
0770708392 Str. Scoala Floreasca, Nr. 3, Sector 1, Bucuresti |
||
| 7. |
Alfred Fronius - Gradinita si afterschool in limba germana Bucuresti
0729699619; 0726715499 Str. Tunari, Nr. 39, Sector 2, Bucuresti |
||
| 8. |
Mami si Tati - Gradinita, Before & After School Bucuresti
0721177543; 0762616442 Str. Grigore Alexandrescu, Nr. 58, sector 1, Bucuresti |
||
| 9. |
Nicoland - Cresa, Gradinita Bucuresti
0766237114 Str. Raspantiilor, Nr. 7, Sector 2 |
||
| 10. |
Scoala Italiana Aldo Moro - Gradinita,scoala, liceu, Bucuresti
0212104684 Intr. Blaj, nr. 1, Sector 1, Bucuresti |
||
| 11. |
Little Primary Education - Gradinita Bucuresti
0733331333 Intr. Docherilor, Nr. 3, Sector 2 |
||
| 12. |
Tom Sawyer - Gradinita sector 2
0722529958 Str. Bratului, nr. 14, sector 2 |
||
| 13. |
Analesia - Gradinita & AfterSchool in limba germana Bucuresti
0741332222; 0741332226 Str. Paris, nr. 57, sector 1 |
||
| 14. |
Ioanid - Gradinita Bucuresti
0758054441 Str. Polona, Nr. 4, Sector 1, |
||
| 15. |
Edu & Care - After School, cursuri pentru copii Bucuresti
0721571086 Str. Chopin, nr. 2 B, sector 2 |
||
| 16. |
Sofia - Gradinita Bucuresti
0721006006; 0212311505 Str. Sofia, Nr. 20, Sector 1 |
||
| 17. |
Gradinita Nr. 251 Bucuresti
0212301417 Str. Venezuela, nr. 11, sector 1 |
||
| 18. |
Steaua Nordului - Before and Afterschool Bucuresti
0745040940 Str. Andrei Muresanu, nr. 27, sector 1 |
||
| 19. |
Gradinita Nr. 133 sector 2
0212116749 Str. Aurel Vlaicu, nr. 30 - 32, sector 2 |
||
| 20. |
Castelino Baby - Gradinita Bucuresti
0731995600 Str. Prof. Ion Ursu, nr. 21, sector 2, |
||
| 21. |
Springfield Education - Gradinita si After School Bucuresti
0734710573; 0721707879 Str. Soltuzului, Nr. 10, Sector 2, Bucuresti |
||
| 22. |
Albinuta - Gradinita sector 2
0212303377 Str. Dinu Lipatti, nr. 1, sector 2 |
||
| 23. |
Rio - Gradinita & After School Bucuresti
0740025434; 0748633314 Str. Luigi Galvani, Nr. 13A, Sector 2, Bucuresti |
||
| 24. |
Maria International School - Gradinita, Scoala primara si afterschool Bucuresti
0730432092 Str. Piata Amzei, Nr. 6, Sector 1, Bucuresti |
||
| 25. |
INNA Kids Academy - Before & Afterschool Bucuresti
0723290372 Str. Johann Sebastian Bach, nr. 10, Sector 2 |
||
| 26. |
Gradinita Nr. 257 Alice sector 2
0212114524 Str. Alexandru Donici, Nr. 23, sector 2 |
||
| 27. |
Kinderakademie - Gradinita & After School Bucuresti
0724661760; 0727427004 Str. Sfintii Voievozi, Nr. 28, Sector 1, Bucuresti |
||
| 28. |
Gradinita Nr. 203 Bucuresti
0213112352 Str. C. A. Rosetti, nr. 32, Sector 1 |
||
| 29. |
Oskar - Before and After School Piata Victoriei
0730948470 Str. Monetariei, Nr. 14, Sector 1, Bucuresti |
||
| 30. |
Gradinita Montessori Livada cu copii sector 2
0757467127; 0721204642 Str. Toamnei, nr. 76-78, sector 2 |
||
| 31. |
Oskar - Before&After School Bucuresti
0734040227; 0730948470 Str. Monetariei, nr. 12, sector 1 |
||
| 32. |
Clubul Copiilor Sector 2 - Bucuresti
0212106432 Intr. Cobilitei, Nr. 8, Sector 2, Bucuresti |
||
| 33. |
LTN Liceul Teoretic National - Gradinita, Gimnaziu, Liceu - Bucuresti
0720000171; 0732151931 Str. Dr. Iacob Felix, nr. 49, Sector 1, Bucuresti |
||
| 34. |
Castelul Copiilor din Tei, Gradinita - Bucuresti
0212109962; 0764738888; 0739770707 Str. Sfanta Treime, Nr. 28, Sector 2, Bucuresti |
||
| 35. |
Licurici - Gradinita Bucuresti
0212104790 Bd. Dacia, Nr. 134, Sector2, Bucuresti |
||
| 36. |
Gradinita Nr. 7 Bucuresti
0212421714 Str. Maica Domnului, Nr. 61 - 63, Sector 2 |
||
| 37. |
Dani\'s Children, Cresa, Gradinita, After School - Bucuresti
0721800099 Str. Silvestru, Nr. 42, Sector 2, Bucuresti |
||
| 38. |
Aristokids, Gradinita & After School - Bucuresti
0722648885 Str. Lebedei, Nr. 25, Sector 1, Bucuresti |
||
| 39. |
Fridolin - Gradinita, Scoala Germana Bucuresti
0723219616; 0723584872 Str. Temisana, Nr. 1, Sector 1, Bucuresti |
||
| 40. |
Iepurasul cel Istet - Cresa, Gradinita, After School sector 2
0731488715; 0722121779 Str. Mihai Eminescu, nr. 179, sector 2 |
||
| 41. |
Waldorf Christophori - Gradinita Bucuresti
0770861602 Str. Putul cu Plopi, Nr. 8, (langa Parcul Cismigiu) - sector 1, Bucuresti |
||
| 42. |
Zuppy - Gradinita, After School sector 2
0753915058 Str. Otesani, nr. 69, Sector 2 |
||
| 43. |
Monteclaris - Gradinita, before si afterschool Bucuresti
0724671560; 0784606075 Str. Maria Hagi Moscu, Nr. 29, Sector 1 |
||
| 44. |
CoolTure MindS - After School Bucuresti
0743359307 Bd. Alexandru Ioan Cuza, nr. 37, Sector 1 |
||
| 45. |
Gradinita Nr. 248 Bucuresti
0212224120 Str. Artur Vartejeanu, Nr. 15, Sector 1 |
||
| 46. |
Olga Gudynn International School - Gradinita, scoala si liceu, Bucuresti
0734411359; 0212311202 Str. Ancuta Baneasa, Nr. 8, sector 1, Bucuresti |
||
| 47. |
Luca - Gradinita si Cresa, After school, Scoala primara si gimnaziala, Liceu teoretic, Bucuresti
0721335161; 0744894206 Str. Sanmedru, Nr. 25, Sector 2, Bucuresti |
||
| 48. |
Gradinita nr. 206 - Gradinita cu program prelungit Bucuresti
0212229287 Str. Constantin Disescu, nr. 37, sector 1 |
||
| 49. |
Amadeus - Afterschool Bucuresti
0770896313; 0721841416 Str. Amidonul, nr. 2, Sector 2 |
||
| 50. |
Don Castor, Gradinita & After School - Bucuresti
0757073929; 0217945396 Str. Vaselor, Nr. 17A, Sector 2, Bucuresti |
||
| 51. |
Ina School - Gradinita si scoala primara, Bucuresti
0722500899 Str. Lacul Gorgova, nr. 2, Sector 2 |
||
| 52. |
Go Kids Go - Before and After-School Bucuresti
0723076434; 0766480774 Str. Clucerului, nr. 21, sector 1 |
||
| 53. |
Gradinita MAPN Nr. 2 Bucuresti
0213156889 Str. Constantin Cristescu, nr. 5, sector 1 |
||
| 54. |
Creative Minds Kindergarten - Gradinita Bucuresti
0726152551 Str. Alexandru Deparateanu, nr. 38, sector 1 |
||
| 55. |
Gradinita cu program prelungit Nr. 135
0212421805 Str. Masina de Paine, nr. 65, sector 2 |
||
| 56. |
Cei Trei Muschetari - Before si After School, Bucuresti
0724384924 Str. Vaselor, Nr. 40, Sector 2, Bucuresti |
||
| 57. |
Puzzle Edu Center - Centru educational sector 2
0724536293 Str. Gheorghe Pop de Basesti, nr. 17, Sector 2 |
||
| 58. |
Sonnenblume Kinderinstitut - Gradinita, Cresa Montessori Bucuresti
0726471469 Str. Calusei, nr. 36, sector 2 |
||
| 59. |
Montessori Edu - Centru educational, Bucuresti
0721833901 Str. Mantuleasa, nr. 21, sector 2 |
||
| 60. |
Don Quijote - Afterschool Bucuresti
0725737793 Str. Ioan Slavici, nr. 4, sector 1 |
||
| 61. |
Cresa Teiul Doamnei Bucuresti
0314104891 Str. Teiul Doamnei, nr. 99, Sector 2 |
||
| 62. |
Edu Friends - Before & After School Bucuresti
0783080096 Str. Berzei, Nr. 5, Sector 1 |
||
| 63. |
The Little Artist - Gradinita Bucuresti
0737365283; 0743814767; 0722680765 Str. Ing. Zablovschi, Nr. 7, Sector 1, Bucuresti |
||
| 64. |
Junior School - Gradinita Bucuresti
0751223159 Str. Calimachi, nr. 17, Sector 2, |
||
| 65. |
Central Art Studio - After School/Cursuri Pentru Copii/Scoala de Vara Bucuresti
0745633737; 0765454244 Str. Popa Soare, nr. 29, sector 2 |
||
| 66. |
Olga Gudynn, Gradinita si Scoala Cotroceni - Bucuresti
0734411332; 0214106995 Str. Fagaras, Nr. 6, Sector 1, Bucuresti |
||
| 67. |
Gradinita nr. 233 sector 2
0216884518 Str. Antonescu Petre, nr. 20, Sector 2 |
||
| 68. |
Taramul Cunoasterii - Cresa si Gradinita Bucuresti
0724278826 Str. Ioan G. Bibicescu, Nr. 11, Sector 1, Bucuresti |
||
| 69. |
Gradinita Quiz
0751425562 Str. Abrud, nr. 134-136, sector 1 |
||
| 70. |
Gradinita Magica, Bucuresti
0765221341; 0723892378 Str. Stefan Mihaileanu, Nr. 33, Sector 2, Bucuresti |
||
| 71. |
Arc-en-Ciel, Gradinita - Bucuresti
0212524665; 0725519386; 0726126808 Str. Ion Heliade Radulescu, Nr. 18, Sector 2, Bucuresti |
||
| 72. |
Copacelul Vietii - Gradinita Bucuresti
0721464185 Str. Radu Calomfirescu, nr. 9, sector 3 |
||
| 73. |
Pitiricky - Clubul celor mici - Bucuresti
0724648513 Str. Ialomicioarei, Nr. 13, Sector 1, Bucuresti |
||
| 74. |
Gradinita nr. 73 sector 5
0213154355 Splaiul Independentei, nr. 68, sector 5 |
||
| 75. |
Zum Zum - Gradinita Bucuresti
0745685556; 0740704922 Str. Vespasian, Nr. 37, Sector 1, Bucuresti |
||
| 76. |
Veverita Jucausa - Gradinita sector 2
0726224859 Str. Litovoi Voievod, Nr. 38, Sector 2 |
||
| 77. |
Apostol - After School sector 2
0740951411 Str. Seneslav Voievod, Nr. 55, Sector 2 |
||
| 78. |
Casuta cu Pitici Mari si Mici - Gradinita, Afterschool Bucuresti
0722626268 Str. Silvia, nr. 11, Sector 2, Bucuresti |
||
| 79. |
Acorns British Style Nursery, Gradinita & After School, Bucuresti
0722476581; 0788418186 Str. Popa Soare, Nr. 63, Sector 2, Bucuresti |
||
| 80. |
RosaMaria - Gradinita, cresa Bucuresti
0746808080 Str. Silvia, Nr. 18, Sector 2 |
||
| 81. |
Gradinita din Povesti - Bucuresti
0724987747 Str. Costache Marinescu, Nr. 1A, Sector 1 |
||
| 82. |
Gradinita M.Ap.N. nr. 1 sector 6
0213196009; 0766298724 Calea Plevnei, nr. 137B, sector 6 |
||
| 83. |
Bell - Gradinita, Afterschool Bucuresti
0728694516 Str. Mecet, Nr. 53, Sector 2 |
||
| 84. |
Discover Me- Gradinita Bucuresti
0747774809 Str. Constantin Noica, Nr. 120, sector 6, Bucuresti |
||
| 85. |
Avenor - Gradinita Bucuresti
0737043475 Str. Alexandru Constantinescu, nr. 65, sector 1 |
||
| 86. |
Cami - Gradinita particulara si afterschool Bucuresti
0757402573 Str. Carol Knappe, nr. 45,sector 1, Bucuresti |
||
| 87. |
Teddybar - Gradinita, Bucuresti
0212224455; 0723048602 Str. Soimarestilor, nr. 29, sector 1, Bucuresti |
||
| 88. |
Lauder-Reut Kindergarten - Gradinita Bucuresti
0318055772; 0723098800; 0735505395 Str. Iuliu Barasch, Nr. 15, Sector 3, Bucuresti |
||
| 89. |
Cami Gradinita & After School - Bucuresti
0757402573; 0749018642 Str. Carol Knappe, Nr. 45, Sector 1, Bucuresti |
||
| 90. |
Gradinita nr. 276 Bucuresti
0212423280 Str. Corabia, nr. 57, sector 2 |
||
| 91. |
Ingenius Club - After School Bucuresti
0729164275; 0733975456 Str. Virgil Plesoianu, nr. 108, sector 1 |
||
| 92. |
Super Start - Gradinita, After School sector 2
0720528738 Bd. Ferdinand I, nr. 156, Sector 2 |
||
| 93. |
Hänsel und Gretel - Gradinita & After School Bucuresti
0212247704; 0743332447 Str. Mr. Av. Stefan Sanatescu, Nr. 19, sector 1, Bucuresti |
||
| 94. |
Montessori Orizonturi Libere - Gradinita si scoala, Bucuresti
0726766663; 0733914286; 0787829354 Str. Unditei, nr. 11, Sector 1 |
||
| 95. |
My Universe - Afterschool si gradinita, Bucuresti
0788416164 Str. Costache Negri, Nr. 9-11, sector 5 |
||
| 96. |
Gradinita nr. 97 Bucuresti
0212241162 Str. Islaz, nr. 13, Sector 1 |
||
| 97. |
Cresa Sinaia sector 2
0212403528 Aleea Sinaia, nr. 4, sector 2 |
||
| 98. |
Copiii Montessori - Gradinita sector 3
0721204642 Str. Labirint, nr. 95, Sector 3 |
||
| 99. |
Rainbow Kids - Gradinita si scoala primara Bucuresti
0737081690; 0773349170 Str. Ion Dragalina, Nr. 8, Sector 5, Bucuresti |
||
| 100. |
Oxigen Sport - Befor School, After School Bucuresti
0722529429 Str. Duzilor, Nr. 23, sector 2, Bucuresti |
||
| 101. |
Orhideea Kids - Gradinita & After School Bucuresti
0748595311 Calea Plevnei, Nr. 145B, sector 1, Bucuresti |
||
| 102. |
Gradinita nr. 137 sector 2
0212407581; 0217960289 Str. Plumbuita, nr. 5, sector 2 |
||
| 103. |
Sfera Kinderzentrum - Gradinita, Before & After School Bucuresti
0728024897 Calea Grivitei, nr. 194, sector 1 |
||
| 104. |
Kinderträume - Gradinita Bucuresti
0744507988 Splaiul Independentei, Nr. 195, sector 6, Bucuresti |
||
| 105. |
Prikindel - Cresa, Gradinita & After School - Bucuresti
0314059269; 0722522198 Str. Sf. Ilie, nr. 5, sector 4, |
||
| 106. |
Mihai Ionescu - Gradinita, Scoala, Liceu Bucuresti
0213235495 Str. Parfumului, Nr. 31, Sector 2, Bucuresti |
||
| 107. |
Sf. Imparati Constantin si Elena, Gradinita Bucuresti
0722237110; 0722293056; 0213261361 Str. Labirint, Nr. 137 B , Sector 3, Bucuresti |
||
| 108. |
Montessima Educational - Afterschool zona Iancului, Bucuresti
0771421104 Str. Constantin Zlatescu, nr. 12, sector 2 |
||
| 109. |
Clubul Micul Print - afterschool Bucuresti
0733750795 Str. Dr. Nicolae Staicovici, Nr. 51, Sector 5, Bucuresti |
||
| 110. |
Noel - Gradinita & After School Bucuresti
0728459857; 0725839363 Str. Trifoi, Nr. 10, Sector 3, Bucuresti |
||
| 111. |
Bergman Nature Kindergarten - Bucuresti
0743918743 Str. Elena Caragiani, Nr. 21C, sector 1 |
||
| 112. |
Luminita - Gradinita sector 2
0212503180 Sos. Iancului, nr. 4A, sector 2 |
||
| 113. |
Kindi - Centru de educatie timpurie Montessori, Bucuresti
0726876873 Str. Delea Veche, Nr 35, sector 2 |
||
| 114. |
Pisicile Aristocrate - Gradinita sector 4
0213350635; 0213363680 Bd. Regina Maria, nr. 28-30, Sector 4 |
||
| 115. |
Young Academics - AfterSchool Bucuresti
0755095974 Str. Trotusului, nr. 39, sector 1 |
||
| 116. |
Clopotel - Gradinita Bucuresti
0212502197 Str. Elev Dridu Georgescu, nr. 2, sector 2 |
||
| 117. |
Micii Poznasi - Cresa, Gradinita Bucuresti
0725911233 Calea Serban Voda, Nr. 22-24, Sector 4 |
||
| 118. |
Academia Fantastica - Gradinita, Before & After School sector 3
0731027321; 0723337393; 0213065370 Str. Moise Nicoara, Nr. 7, Sector 3 |
||
| 119. |
Gradinita nr. 271 sector 5
0214109024 Bd. Eroii Sanitari, nr. 77, sector 5 |
||
| 120. |
Smiley Kindergarten, Gradinita & After School - Bucuresti
0314366138; 0722541744 Str. Gabriel Cioran, nr. 6, sector 6, |
||
| 121. |
Aurora - Gradinita & After School sector 3
0744317320; 0213224168 Str. Moise Nicoar?, nr. 9-11, sector 3 |
||
| 122. |
Ray of Light Montessori - Gradinita, Bucuresti
Str. Gladiolelor, Nr. 15, sector 4 |
||
| 123. |
Once Upon a Time - Centrul educational adlerian Bucuresti
0770590487 Str. Ciobanasului, Nr. 22A, Sector 2 |
||
| 124. |
Domino - Gradinita Bucuresti
0722492047 Str. Constantin Georgian,, nr. 27, sector 2, Bucuresti |
||
| 125. |
Gradinita lui David - Bucuresti
0751103010; 0769245552 Intr. Catedrei, Nr. 10, sector 1, Bucuresti |
||
| 126. |
Cresa Ciobanasului
0213223085 Str. Ciobanasului, nr. 23, sector 2, |
||
| 127. |
Bambi Step by Step- Gradinita Bucuresti
0213273256; 0317102928 Str. Gh. Dem Teodorescu, Nr.16 bis, Sector 3, Bucuresti |
||
| 128. |
Arlechino & Friends - Gradinita si afterschool - Bucuresti
0723264032; 0749028820; 0213260584 Str. Cezar Boliac, Nr. 22-24, Sector 3, Bucuresti |
||
| 129. |
Karin\'s Kids Academy - Gradinita Bucuresti
0212250005 Str. Hermann Oberth, Nr. 33, Sector 1, Bucuresti |
||
| 130. |
Asociatia Conil - Gradinita pentru copii cu nevoi speciale Bucuresti
0784412222; 0217466704; 0735847526 Str. Dr. Victor Poloni , nr 14, Sector 5, Bucuresti |
||
| 131. |
Innababy - Cresa, gradinita, afterschool Bucuresti
0722403847 Str. Tintasului, Nr. 3, Sector 1, Bucuresti |
||
| 132. |
KeiKo AfterSchool Bucuresti
0748880866 Str. Magura Vulturului, nr. 6, Sector 2 |
||
| 133. |
Gradinita Nr. 256 Bucuresti
0212506222 Str. Atanase Ionescu, Nr. 25, Sector 2 |
||
| 134. |
Mary Poppins - Gradinita & After School Bucuresti
0212333868; 0723597206; 0745285826 Str. Aron Cotrus, Nr. 69 E, Sector 1, Bucuresti |
||
| 135. |
Happy Angel Academy - Cresa, Gradinita, Afterschool
0743344344; 0745515253 Strada Smaranda Braescu, nr.36, sector 1 |
||
| 136. |
Centrul multifunctional Cresa Craiasa Zapezii sector 4
0371360117; 0371360127 Str. Oitelor, nr. 50, sector 4 |
||
| 137. |
Montessori Kids at work - Gradinita Bucuresti
0723357063 Str. Smaranda Braescu, nr. 40A-42, sector 1 |
||
| 138. |
Pick Me Academy - Gradinita si scoala, Bucuresti
0726000640 Str. Slt. Pompiliu Manoliu, Nr. 7,Sector 2, Bucuresti |
||
| 139. |
Praslea cel Voinic - Gradinita & After School Bucuresti
0722773103; 0733839824 Str. Competitiei, Nr. 38, Sector 2, Bucuresti |
||
| 140. |
Bob de Grau, Gradinita si Cresa - Bucuresti
0720446942 Str. Agricultori, Nr. 142, Sector 3, Bucuresti |
||
| 141. |
Buna Vestire - Gradinita, After School sector 4
0787435172 Str. Episcopul Chesarie, nr. 9, Sector 4 |
||
| 142. |
International Kindergarten & Nursery - Gradinita Bucuresti
0723248978; 0314327798 Str. Claudiu, Nr. 26, Sector 2, Bucuresti |
||
| 143. |
Lumea lui Momo - Gradinita Bucuresti
0748055255 Str. Ipotesti, Nr. 23, Sector 4 |
||
| 144. |
Children\'s Joy, Gradinita & After School - Bucuresti
0731258277; 0754317732 Str. Gramont, Nr. 3, Sector 4, Bucuresti |
||
| 145. |
Kiga 99 Luftballons - Gradinita, After School in limba germana Bucuresti
0722395197; 0745423467 Str. Theodor Sperantia, nr. 81, sector 3 |
||
| 146. |
Puisor - Gradinita Nr. 268 Bucuresti
0214104010 Str. Ion Creanga, Nr. 8, Sector 5, Bucuresti |
||
| 147. |
Sfantul Nicolae, Gradinita & After School - Bucuresti
0729611918 Str. Sirenelor, Nr. 56-58, Sector 5, Bucuresti |
||
| 148. |
BritAcademy, Gradinita in limba engleza - Bucuresti
0740329105 Str. Olimpiadei, Nr. 36, Sector 2, Bucuresti |
||
| 149. |
Gradinita nr. 30 sector 4
0213362078 Bd. Dimitrie Cantemir, nr. 16A, Sector 4 |
||
| 150. |
Copii de Poveste - Gradinita sector 4
0740051582 Str. Poterasi, nr. 5, sector 4 |
||
| 151. |
Fundatia School and Fun - Gradinita Sotron
0216555398 ; 0721727323 Str. Gherghitei, Nr.7, Sector 2 (Cartier Colentina), Bucuresti |
||
| 152. |
Happy Kids Project - After school si before school, Bucuresti
0745152802 Sos. Iancului, Nr. 110, Sector 2, Bucuresti |
||
| 153. |
Sunshine Edu - After School Bucuresti
0741123340 Str. Lt. Av. Vasile Fuica, nr. 42, Sector 1 |
||
| 154. |
Good Family - Gradinita Bucuresti
0748224225 Str. Nicolae Filimon, Nr. 73A, sector 6 |
||
| 155. |
Le Carrousel - Gradinita in limba franceza Bucuresti
0745101783 Str. Grigore Gafencu, nr. 14, sector 1 |
||
| 156. |
Abcdino, Gradinita - Bucuresti
0213231070; 0725929616; 0745397739 Str. Chiparosului, Nr. 31, Sector 3, Bucuresti |
||
| 157. |
Roxy Baby - Cresa Particulara Bucuresti
0314254309; 0723274924 Str. Slobozia, Nr. 29 , Sector 4, Bucuresti |
||
| 158. |
Clubul Boreal, Gradinita - Bucuresti
0721124249 Str. Valerian Prescurea, Nr. 5, Sector 4, Bucuresti |
||
| 159. |
City Kids - Gradinita si afterschool Bucuresti
0756862825 Str. Ruschita, Nr. 41, sector 2 |
||
| 160. |
Land of Kids Afterschool sector 2
0766831831; 0726733314 Str. Constantin Tanase, Nr. 22, Sector 2 |
||
| 161. |
Funny Clown, Gradinita & After School - Bucuresti
0740806356 Str. Ruschita, Nr. 41, Sector 2, Bucuresti |
||
| 162. |
Kids First - Gradinita Bucuresti
0748880866; Varnavelena@gmail.com Str. Sica Alexandrescu, nr. 20, Sector 2, |
||
| 163. |
Alegra, Gradinita - Bucuresti
0746167291 Str. Finta, Nr. 25, Sector 6, Bucuresti |
||
| 164. |
Mell - Gradinita cu Program Normal sector 3
0744564426; 0722958683 Str. Vlad Dracu, nr. 43, sector 3 |
||
| 165. |
Little Oaks Academy - Gradinita sector 3
0766572126; 0766572127 Sos. Mihai Bravu, Sos. Mihai Bravu nr. 286, sector 3 |
||
| 166. |
Kids\' World Nursery School - Gradinita Bucuresti
0771242641 Bd. Basarabia, Nr. 2, Sector 3 |
||
| 167. |
Gradinita nr. 40 sector 6
0212203340 Str. Tabla Butii, nr. 60, sector 6 |
||
| 168. |
Adnan, Gradinita - Bucuresti
0744606010; 0722205243 Intr. Buturugeni, Nr. 7 Sector 5, Bucuresti |
||
| 169. |
Lill put - Centru de educatie nonformala pentru prescolari, Bucuresti
0722647423 Str. Sarafinesti, Nr. 29, sector 2 |
||
| 170. |
Equilibrum - Gradinita Bucuresti
0724064503; 0724862068 Bd. Expozitiei, Nr. 2, Sector 1 |
||
| 171. |
Iboo - Gradinita Bucuresti
0770325689; 0773975780 Bd. Expozitiei, nr. 2, sector 1 |
||
| 172. |
ERA Kinderland - Gradinita, after school in limba germana sector 3
0728850073; 0213207697 Str. Dristorului, nr. 67, sector 3 |
||
| 173. |
Scufita Rosie - Gradinita sector 4
0766541207 Calea Serban Voda, nr. 170 , sector 4 |
||
| 174. |
Licurici - Gradinita sector 4
0314377556; 0767503191 Str. Cuza Voda, nr. 141 A, Sector 4 |
||
| 175. |
Little Star - Gradinita, After School sector 3
0745531279; 0724506631 Str. Alexandru Magatti, nr. 13 A , sector 3 |
||
| 176. |
Gradinita nr. 188 Castel sector 2
0212504180; 0213179946 Bd. Pierre de Coubertin, nr. 1, sector 2 |
||
| 177. |
Bulgarasi de Aur - Before & After School Bucuresti
0723398829 Str. Cogalnic, nr. 30, sector 3 |
||
| 178. |
Genius Academy - Cresa, Gradinita , Scoala Primara si After School Bucuresti
0724111678; 0744638435 Calea Serban Voda, nr. 145, sector 4 |
||
| 179. |
Ana Lugojana - Gradinite, Scoala Primara, Gimnaziala si After School Bucuresti
0724342409 Str. Constantin Miculescu, nr. 10, sector 5, Bucuresti |
||
| 180. |
Little Princess 1 - Cresa, Gradinita Bucuresti
0756070390; 0744321574; 0744703973 Str. Popa Stoica Farcas, Nr. 64-66, Sector 3, Bucuresti |
||
| 181. |
Gradinita nr. 269 sector 5
0213354544 Str. Constantin Miculescu, nr. 12, sector 5 |
||
| 182. |
Melba - Centru Educational Bucuresti
0722461015 Str. Lanariei, Nr. 117 , Sector 4, Bucuresti |
||
| 183. |
Smiley After School sector 2
0727401829 Bd. Basarabia, nr. 62A, sector 2 |
||
| 184. |
Hands-On - Centru educational Bucuresti
0725977815 Bd. Iuliu Maniu, nr. 7, Cotroceni Business Center, Corp U, parter, sector 6 |
||
| 185. |
Elite - Cresa, Gradinita Bucuresti
0766687691 Str. Lanariei, Nr. 136, Sector 4, Bucuresti |
||
| 186. |
Smart & Fun After School Crangasi
0765518746; 0766891844 Intr. Sipetului, Nr. 3, Sector 6 |
||
| 187. |
Fulg de Nea - Gradinita sector 6
0212203132 Sos. Ciurel, Nr. 9-11, sector 6 |
||
| 188. |
Dumbo Kids Academy - Cresa, Gradinita, Before & After School sector 3
0722320023 Intr. Patinoarului, nr. 42A, sector 3 |
||
| 189. |
Little Team - Gradinita / After School Bucuresti
0799774767 Calea 13 Septembrie, nr. 191, sector 5 |
||
| 190. |
Palatul Copiilor - Gradinita, After School sector 3
0740673742; 0314251635 Str. Morilor, Nr. 19, sector 3 |
||
| 191. |
Piccolo Grande - After School, loc de joaca sector 3
0754200258 Intr. Patinoarului, nr. 52, Sector 3 |
||
| 192. |
Mickey\'s House - Before & After School sector 6
0785539018 Str. Pietrele Doamnei, nr. 18, Sector 6 |
||
| 193. |
Mica Printesa - Gradinita, after school Bucuresti
0744321574; 0744703973 Str. Vulcan Judetu, nr. 16, sector 3, |
||
| 194. |
Family Kids, Gradinita si After School - Bucuresti
0722565657; 0723281551 Str. Mugur Mugurel, Nr. 21, Sector 3, Bucuresti |
||
| 195. |
Little Princess 2 - After School / Before School Bucuresti
0744703973; 0744321574; 0756070390 Str. Vulcan Judetu, Nr. 16, Sector 3, Bucuresti |
||
| 196. |
Copil Dorit - Gradinita Bucuresti
0736820068; 0722166358 Sos. Viilor, Nr. 33, Sector 5, Bucuresti |
||
| 197. |
Gradinita nr. 283 Bucuresti
0212322093 Bd. Ficusului, nr. 25, sector 1 |
||
| 198. |
Gradinita Nr.161 (Brandusa) sector 3
0314250834; 0314250835 Str. Branduselor, Nr. 37/43, sector 3 |
||
| 199. |
Teach Little People - Centru educational, Bucuresti
0727401433 Str. Alexander von Humboldt, nr. 2, sector 3 |
||
| 200. |
Centrul Educational Nordic sector 4
0786391446 Splaiul Unirii, Nr. 176, Corp D3, Sector 4 |
||
| 201. |
Gradinita nr. 222 Bucuresti
0721345993; 0216673480 Str. Arad, nr. 38 , sector 1 |
||
| 202. |
Centrul Social Multifunctional Cresa Scufita Rosie sector 4
0733200109; 0372874267; 0372715100, 0372715101 Aleea Tohani, nr. 1, bl.30, sc. 1, parter, sector 4 |
||
| 203. |
Insula Copilariei - Gradinita, After School sector 2
0722642428 Str. Ropotului, nr. 25, sector 2 |
||
| 204. |
PRO Academy Afterschool
0744501156 Str. Sibiel, nr. 6, Sector 4 |
||
| 205. |
Smart Steps - Gradinita , After School sector 3
0733965133 Str. Dristorului, nr. 91-95, bl. E, Parter, sector 3 |
||
| 206. |
Maya si Prietenii - Cresa, Gradinita sector 2
0755359162 Str. Herta, nr. 32A, Sector 2, |
||
| 207. |
Smart Kids - Scoala Gimnaziala, Scoala Primara si Gradinita Bucuresti
0745022714 Str. C-tin Dobrogeanu Gherea, Nr. 22A, Sector 1, Bucuresti |
||
| 208. |
Primii Pasi - Gradinita si Cresa Fundeni
0212400469; 0722522898 Str. Sucidava, nr. 27, Sector 2, Bucuresti |
||
| 209. |
Madi AfterSchool sector 2
0757837644 Str. Herta, nr. 32A, Sector 2 |
||
| 210. |
Saga Kid - After School sector 3
0743266500; 0756169135 Str. Campia Libertatii, nr. 44, sector 3, |
||
| 211. |
Capsunica - Gradinita sector 3
0765516162 Str. Constantin Nottara, nr. 27, sector 3 |
||
| 212. |
Electromagnetica - Gradinita sector 5
0218915699; 0214232110 Calea Rahovei, nr. 266, sector 5 |
||
| 213. |
Taramul Magic Voi Reusi - After School sector 2
0727540913 Bd. Chisinau, nr. 6-8, sector 2 |
||
| 214. |
Paradisul Copiilor - Gradinita & After School Bucuresti
0730007062 Str. G-ral. Haralambie Nicolae, Nr. 38, Sector 4, Bucuresti |
||
| 215. |
Rose Mary - Gradinita & After School Bucuresti
0747179897 Str. Baneasa, Nr. 27B, vila 3, Sector 1, Bucuresti |
||
| 216. |
After School Sector 1
0747179897 Str. Baneasa, Nr. 27, Sector 1, Bucuresti |
||
| 217. |
Centrul Educational Fecioara Maria - Cresa, Gradinita Bucuresti
0799741474; 0770574645 Str. Eufrosina Popescu, Nr. 30, Sector 3, Bucuresti |
||
| 218. |
Academia Gifted International, Gradinita & After School - Bucuresti
0724381661; 0722277090 Str. Sold. Simion Stefan, nr. 39, sector 4, Bucuresti |
||
| 219. |
Castelul Bucuriei - Gradinita Bucuresti
0730515181 Str. Vasile Voiculescu, nr. 30, sector 3 |
||
| 220. |
Gradinita nr. 274 sector 6
0213163345 Bd. Iuliu Maniu, nr. 11D, sector 6 |
||
| 221. |
Academia Einstein Afterschool & Beforeschool Bucuresti
0734193424 Str. Somesul Rece, nr. 9, Sector 1 |
||
| 222. |
Brightivity Montessori - Gradinita, Bucuresti
0753111065 Str. Somesul Rece, Nr. 9 Sector 1 |
||
| 223. |
Gradinita Nr. 239 sector 3
0213245490 Str. Dristorului, nr. 102, sector 3 |
||
| 224. |
Iulia Pantazi - Centrul psihologic pentru copii Bucuresti
0745480458; 0317304741 Str. Cernauti, Nr.1, Sector 2, Bucuresti |
||
| 225. |
WhizKidz Hub - Afterschool, Centru educational Bucuresti
0742602260 Str. Gradinarilor, nr. 14, Sector 3 |
||
| 226. |
Iuladi Kids - Cresa, gradinita Bucuresti
0769088777 Str. Breaza, Nr. 78, Sector 3 |
||
| 227. |
Max und Moritz Kinder - Gradinita limba germana & After School Bucuresti
0726374434 Str. Plugarilor, Nr. 24, Sector 4, Bucuresti |
||
| 228. |
Kids Club Baneasa, Gradinita & After School - Bucuresti
0746030320 Str. Neagoe Voda, Nr. 58, Sector 1, Bucuresti |
||
| 229. |
Dreamland - Gradinita Bucuresti
0787521511 Str. Plugarilor, nr. 20-22, Sector 4, Bucuresti |
||
| 230. |
Casuta cu ferestre - Gradinita Bucuresti
0721660052 Str. Gheorghe Lupu, nr. 19, sector 4 |
||
| 231. |
Legolas - Centru Educational sector 3
0787322298; 0787460258; 0787298295 Str. Nucului, nr. 55, sector 3 |
||
| 232. |
Kids Power - Centru educational holistic pentru copii Bucuresti
0741248260 Str. Nucului, nr. 55, sector 3 |
||
| 233. |
Happy Planet Kids - Gradinita Bucuresti
0214106984; 0722319863; 0740843914 Str. Lt. Col. C-tin Marinescu, Nr. 17B, Sector 6, Bucuresti |
||
| 234. |
Genius - Afterschool Bucuresti
0745045180 Intrarea Craiovei, Nr. 21, Sector 6 |
||
| 235. |
Centrul Educational Nectarel - Afterschool Bucuresti
0740221854 Str. Baba Novac, nr. 17, sector 3 |
||
| 236. |
Tichiuta - Cresa, Gradinita Bucuresti
0212333661; 0727384401 Str. Garlei, nr. 64, sector 1 |
||
| 237. |
Dandi Kids, Gradinita & After School - Bucuresti
0726758303 Str. Rasovita, Nr. 18, Sector 3, Bucuresti |
||
| 238. |
Puiutul Pufos - Gradinita Bucuresti
0740140968; 0213440010 Str. Emanoil Marius Buteica, Nr. 30, Sector 3, Bucuresti |
||
| 239. |
Big Smile - Gradinita, scoala primara, After School Bucuresti
0722557333 Str. Cutitul de Argint, nr. 74, sector 4, Bucuresti |
||
| 240. |
Kinderium - Before & After School Bucuresti
0726177868 Drumul Sarii, nr. 4A, sector 6 |
||
| vezi mai multe | |||
| 1. |
Euroclinic
0219268; 0219208 Calea Floreasca, 14 A, Sector 1, Bucuresti |
||
| 2. |
Spitalul de Urgenta Floreasca + ambulatoriu-Bucuresti
Tel.021.5992300; Fax.021.5992257 Calea Floreasca, nr. 8, sector 1, |
||
| 3. |
Spitalul de Urgenta Floreasca
Tel. 0215992300; 0215992308; Fax.0215992257 Calea Floreasca nr. 8, sector 1, |
||
| 4. |
Spitalul Euroclinic + ambulatoriu
0219208 Calea Floreasca, nr. 14 A, sector 1, Bucuresti |
||
| 5. |
Ambulatoriul Spitalului Euroclinic
0219208; Call Center:0219268 Calea Floreasca, nr. 14A, sector 1, Bucuresti |
||
| 6. |
SPITALUL SF. STEFAN + ambulatoriu
021.210.39.36 Sos. Stefan cel Mare nr. 11, sector 2, |
||
| 7. |
SPITALUL SF. STEFAN + ambulatoriu
0212103936 Sos. Stefan cel Mare, nr. 11, sector 2, |
||
| 8. |
Centrul Medical Prain
0212113430; 0212108476; 0723237430 Calea Dorobantilor, nr. 32A,7,ET 1, |
||
| 9. |
Clinica Medicala Blaj Stefan-Bucuresti
0742010636 Str.Ciprian Porumbescu, nr. 12, sector 1, |
||
| 10. |
LookClinic, Bucuresti - Centre de diagnosticare,preventie si implant de par
0213203477 Calea Dorobantilor, nr.188-190, sector 1, |
||
| 11. |
Spitalul Clinic de Urgenta pentru Copii \"Grigore Alexandrescu\"
Tel. 0213169366; 0213169366 int. 133/155; UPU.0213110994 Bd. Iancu de Hunedoara, nr. 30-32, sector 1 , |
||
| 12. |
Spitalul Clinic de Urgenta pentru Copii \"Grigore Alexandrescu\"
0213169366:Centrala telefonica; 0213110994 :Unitatea Primiri Urgente Bd. Iancu de Hunedoara, nr. 30-32, sector 1, Bucuresti |
||
| 13. |
Spitalul Clinic de Urgenta pentru Copii \"Grigore Alexandrescu\"
0213169366:Centrala telefonica; 0213110994:Unitatea Primiri Urgente Bd.Iancu de Hunedoara, nr. 30-32, sector 1, Bucuresti |
||
| 14. |
Bioderm Medical Cente- Bucuresti
Tel. 0722338383 Str. Mihai Eminescu, nr. 42, sector 1, |
||
| 15. |
Clinica Medicala Elite-Bucuresti
Tel. 0720260024; 0212339776 Str. Tudor Stefan, nr. 42-44, sector 1, |
||
| 16. |
Centrul Medical de Diagnostic, Tratament Ambulator si Medicina Preventiva
0212300402; 0212302980; 0212305923 Str. Washington, nr. 8-10, sector 1, |
||
| 17. |
Clinica Regina Maria - Perla-Bucuresti
0219268 Calea Dorobanti, nr. 126-130, sector 1, |
||
| 18. |
Spitalul de Urgente Oftalmologice + Ambulatoriu
0213192751; 0213192753 P-ta Lahovari, nr. 1, sector 1, |
||
| 19. |
Spitalul de Urgente Oftalmologice + Ambulatoriu
0213192751; 0213192752 P-ta Lahovari nr. 1, sector 1, |
||
| 20. |
Ambulatoriul Spitalului Clinic Colentina
0213167320 ; 0213173245 / interior 5732; Fax: 0213161952 Sos.Stefan cel Mare, nr. 19-21, sector 2, Bucuresti |
||
| 21. |
Spitalul Clinic Colentina + Ambulatoriu
0213167320; 0213173245 ; Fax: 0213161952 Sos. Stefan cel Mare, nr. 19-21, sector 2 , |
||
| 22. |
Clinica Psiho-Armonie-Bucuresti
0730028680; 0311063523 Str. N. Constantinescu, nr. 11, bl.11, sc.1, parter, ap.2, interfon 02,sector 1, |
||
| 23. |
Spitalul Clinic Colentina + Ambulatoriu
Tel. 0213167320; 0213173245; 0213165895 Sos. Stefan cel Mare, nr. 19-21, sector 2, |
||
| 24. |
Institutul National de Boli Infectioase Prof. Dr. Matei Bals
Tel.0212010980; 0213186091 Str. Dr. Calistrat Grozovici, nr. 1, sector 2, |
||
| 25. |
Institutul National de Endocrinologie C. I. Parhon
Tel. 0213172041; 0213172042; Fax 0213170607 Bd. Aviatorilor nr. 34-36, sector 1 , |
||
| 26. |
Centru Medical Stb-Bucuresti
0213183430 (centrala); Str. Dr. Grozovici, nr. 6, sector 2 , |
||
| 27. |
Spitalul Clinic Dr. I. Cantacuzino-Bucuresti
Tel.0212107100; Fax.0212106435 Str. Ion Movila nr. 5-7, sector 2 , |
||
| 28. |
Institutul National de Boli Infectioase Prof. Dr. Matei Bals
0212010980 (centrala); 0213186090 Str. Dr. Grozovici, Nr. 1, sector 2, |
||
| 29. |
Policlinica Regina Maria - Enescu
0219268 Str. George Enescu, nr.12, sector 1, |
||
| 30. |
Spitalul Clinic Dr. I. Cantacuzino
Tel. 0212107100; 0212108499 (diabetologie) Str. Ioan Movila, nr. 5-7, sector 2, Bucuresti |
||
| 31. |
Institutul National de Diabet, Nutritie si Boli Metabolice \"Prof. Dr. N. Paulescu\"
0212106460 (secretariat); 0212109092 Str. Ion Movila, nr.5-7, sector 2, |
||
| 32. |
Institutul National de Diabet, Nutritie si Boli Metabolice \"Prof. Dr. N. Paulescu\"
Tel. 0212108499 (centrala); 0212106460 (secretariat); Fax 0212109092 Str. Ion Movila, nr. 5-7, sector 2 , |
||
| 33. |
Centrul Medical Bio Terra Med- Bucuresti
0726243473; 0724262110; 0774022961 Calea Grivitei, nr. 3, Sector 1, |
||
| 34. |
Institutul National de Endocrinologie C. I. Parhon
Tel. 0213172041; 0213172042; Fax 0213170607 Bd. Aviatorilor, nr. 34-36, sector 1 , |
||
| 35. |
Spitalul Clinic de Nefrologie - Dr. Carol Davila
Tel. 0213189184 (centrala) Calea Grivitei, nr. 4, sector 1, |
||
| 36. |
Centrul Medical Cutera Medical Center-Bucuresti
Tel. 0746141620 Str. Giacomo Puccini , nr. 8 A, sector 1, |
||
| 37. |
Optim Sano - Centrul Medical Dr. Ion Socoteanu-Bucuresti
0728955844 Str. Salcamilor, Nr. 6A, sector 2, |
||
| 38. |
Spitalul Euroclinic
Tel. 0219268; 0219208 Calea Floreasca nr. 14 A, sector 1, |
||
| 39. |
Centrul Medical Dr. Stoia Ion- Bucuresti
0212116848 int.219; 0213175025 Str. Thomas Masaryk , nr. 5, sector 2 , |
||
| 40. |
Medicine Park International by Tuncay Öztürk - Centru de kinetoterapie si recuperare
0727464464 Str. Grigore Mora, nr. 19, Sector 1 |
||
| 41. |
Centrul Medical Sanador-Bucuresti
Tel. 0219699 |
||
| 42. |
Centrul Medical Sana-Bucuresti
0212128222 Str. Dr. Sergiu Dumitru, nr. 3, sector 1, |
||
| 43. |
Centrul Medical Romedical Int
Tel. 0212100381; 0723288108 Str. Fainari nr. 35, sector 2, |
||
| 44. |
Cord Blood Center-Bucuresti
0739853208 Str. Ramuri Tei, nr. 20, sector 2, |
||
| 45. |
CENTRUL MEDICAL BATISTEI
021.313.34.80; 021.313.14.55; 021.315.46.05 Str. Tudor Arghezi nr. 28, sector 2 , |
||
| 46. |
POLICLINICA CU PLATA NR. 1
Tel. 021.314.81.15; Fax 021.314.81.14 Str. Bati?tei nr. 27, sector 2, |
||
| 47. |
Centrul de Transfuzie Sanguina Bucuresti
Tel. 0314053660; 0314053661; 0314053662 Str. Constantin Caracas nr. 2-8, sector 1, |
||
| 48. |
Clinica Medicala Alco San
021.211.41.12; 0755.050.055; Fax 021.211.41.13 Str. Barbu Vacarescu, nr. 67, sector 2, |
||
| 49. |
Spitalul Clinic Sfanta Maria + ambulatoriu-Bucuresti
Tel. 0212223550; 0212223553 Bd. Ion Mihalache nr. 37-39, sector 1, |
||
| 50. |
Prof.Dr. Agrippa Ionescu, Spitalul Clinic de Urgenta Bucuresti
0377720000; Fax 0377726169 Str. Arh. Ion Mincu , nr. 7, sector 1, |
||
| 51. |
Spitalul Clinic Sfanta Maria + ambulatoriu
Tel. 0212223553; 0212223550 Bd. Ion Mihalache, nr. 37-39, sector 1, |
||
| 52. |
Rytmomed - Clinica medicala Bucuresti
0737181511 Str. Popa Tatu, nr. 35, Sector 1 |
||
| 53. |
Cabinet Medical dr. Jovin
Tel. 0746418043; Tel/Fax 0212312116 Str. Wolfgang Amadeus Mozart nr. 31, sector 2, |
||
| 54. |
Clinica Medicala Provita Diagnostic si Tratament-Bucuresti
Tel. 0219432 Str.Alexandrina, nr. 20 , sector 1, |
||
| 55. |
POLICLINICA MASINA DE PAINE
Tel.021. 242.07.82 ; 021.242.00.96 (oftalmologie); 021.242.67.04 (neuropsihiatrie) Str. Masina de Paine nr. 47, sector 2 , |
||
| 56. |
Donna Medical Center-Bucuresti
0219732 Str. Traian , nr. 234, et.1, sector 2, |
||
| 57. |
Standard Med-Bucuresti
0722435435; 0314053950 Bd. Carol, nr. 45, ap.5, parter, sector 2, |
||
| 58. |
Alfred Rusescu, Institutul pentru ocrotirea mamei si copilului (I.O.M.C.) Bucuresti
Tel.0219365 Bd. Lacul Tei, nr. 120, sector 2 , |
||
| 59. |
Institutul national pentru sanatatea mamei si copilului Alfred Rusescu
Tel.0219365 Bd. Lacul Tei, nr. 120, sector 2, |
||
| 60. |
Centrul Medical Ioana-Bucuresti
0212233810; 0786486156 Str. Alexandru Ioan Cuza, nr. 81,, et. 1,sector 1, Bucuresti |
||
| 61. |
Ioana Medical Center
0212233810; 0786486156 Bd. Alexandru Ioan Cuza, nr 81, et 1, sector 1 |
||
| 62. |
PriMed - Clinica Medicala Bucuresti
0219986; 0720034774 Bd. Dinicu Golescu, nr.10, sector 1 |
||
| 63. |
Clinica Medicala Data Plus-Bucuresti
0213131491 Str.Cobalcescu Grigore, nr. 35,sector 1, |
||
| 64. |
Spitalul Clinic Coltea
Tel. 0213874100; Fax 0213874101 Bd. I.C. Bratianu, nr. 1, sector 3, |
||
| 65. |
Clinica Medicala Estet Laser Medical Center
Tel/Fax 0212531797; 0721241772; 0733625687 Str. Calusei nr. 11, sector 2, |
||
| 66. |
Cron Phoenix - Centru de Reabilitare Ortopedica si Neurologica pentru copii Bucuresti
0721567186; 0790667941 Piata Pache Protopopescu, nr. 9, sector 2 |
||
| 67. |
Spitalul Clinic Coltea
Tel. 0213874100; Fax 0213874101 Bd. I.C. Bratianu, nr. 1, sector 3, |
||
| 68. |
Spitalul Clinic de Ortopedie Traumatologie Foisor-Bucuresti
Tel.0212520057; Fax.0212521387; 0310056786(progamari consultatii) Bd. Ferdinand, nr. 35-37, sector 2 , |
||
| 69. |
Spitalul Clinic de Ortopedie Traumatologie \"Foisor\" + ambulatoriu
Tel. 0310056786; 0212520057; Fax 0212521387 Bd. Ferdinand, nr. 35-37, sector 2, |
||
| 70. |
Policlinica Eforie-Bucuresti
Tel. 0213139922 Str. Eforie, nr. 4, sector 5, |
||
| 71. |
Spitalul Clinic de Chirurgie Oro-Maxilo-Faciala -Bucuresti
Tel/Fax. 0213158855; 0213155217 Calea Plevnei, nr. 17-21, sector 1 , |
||
| 72. |
Spitalul de Urgenta Prof. Doctor Dimitrie Gerota
0212523334; Fax 0212522829 Str. Vasile Vasilievici Stroescu, nr. 29-31, sector 2, |
||
| 73. |
Spitalul Clinic de Chirurgie Oro-Maxilo-Faciala \"Prof. Dr. Dan Theodorescu\"
Tel/Fax. 0213158855; 0213155217 Calea Plevnei, nr. 17-21, sector 1, |
||
| 74. |
RomGerMed - Clinica Medicala Bucuresti
Tel. 0213110075; 0725302475 Calea Plevnei, nr. 137C, sector 6, |
||
| 75. |
Centrul Medical M Hospital-Bucuresti
0219136; 0744812330; 0213162049 Str.Witting, nr. 10-12, sector 1, Bucurestu |
||
| 76. |
Centrul Medical M Hospital-Bucuresti
Tel.0219136 Str. Witing, nr. 10-12, sector 1 , |
||
| 77. |
Imuno Medica - Centrul de preventie, diagnostic si tratament Sf. Ioan Botezatorul
0314050350; 0771771333 Str. Virgiliu nr. 81, sector 1 |
||
| 78. |
Village Medical Clinic - Centru medical Bucuresti
0212323580 Str. Constantin Kiritescu, nr. 27, sector 2, |
||
| 79. |
Prof. Dr. Dimitrie Gerota, Spitalul de Urgenta MAI - Bucuresti
0212523334 Str. Vasile Vasilievici Stroescu, nr. 29-31, sector 2, |
||
| 80. |
Institutul National de Recuperare, Medicina Fizica si Balneologie
Tel.0311302300 Str. Sf. Dumitru, nr. 2 - ambulatoriu de recuperare clinica I si II, sector 3, |
||
| 81. |
Spitalul Clinic de Nefrologie - Dr. Carol Davila
Tel. 0213189184 (centrala); Fax 0213189184 Calea Grivitei nr. 4, sector 1, |
||
| 82. |
Dr. Carol Davila, Spitalul Universitar de Urgenta Militar Central Bucuresti + ambulatoriu
Tel. 0213193052/60; 0213193030 Str. Calea Plevnei , nr. 134, sector 1, |
||
| 83. |
Euromedics Stem Life
0800.800.855 (Apel gratuit); 021 311 55 92 Str. Lipscani, Nr. 90A, et. 3, Sector 3 , |
||
| 84. |
Spitalul Universitar de Urgenta Elias
0213161600; Fax 0213161602 Bd.Marasti, nr. 17, sector 1, |
||
| 85. |
Spitalul Clinic CF Witting + ambulatoriu
Tel. 0213129530; 0213129531; 0213176280 Calea Plevnei nr. 142-144, sector 6, |
||
| 86. |
Centrul Medical Focus
0753035038 Str. Dinicu Golescu, nr. 23-25 , sector 1, |
||
| 87. |
RomGerMed - Clinica Medicala Bucuresti
Tel. 0213110075; 0727999602 Calea Plevnei, 137 C, sector 6, |
||
| 88. |
Spitalul Universitar de Urgenta Militar Central Dr. Carol Davila
Tel. 0213193052/60; Fax.0213193030 Str. Calea Plevnei, nr. 134, sector 1, Bucuresti |
||
| 89. |
Spitalul Universitar de Urgenta Elias
0213161600; Fax 0213161602; 0213112444 Bd. Marasti nr. 17, sector 1, |
||
| 90. |
Clinica Medicala Sfantul Spiridon Vechi-Bucuresti
0213351378; 0213351379; 0787820066 Piata Natiunilor Unite, nr 5-7, sector 4, Bucuresti |
||
| 91. |
Centrul Medical Veridia-Bucuresti
0213029434 Str. Matei Basarab, nr. 45, sector 3, |
||
| 92. |
Centrul Medical Hiperdia-Bucuresti
0219338; Fax 0212507320 Str.Ritmului, nr. 24, sector 2, Bucuresti |
||
| 93. |
Centrul de Diagnostic romano-german Medinst
0319902 Str.Sfanta Vineri, nr. 29, sector 3, |
||
| 94. |
Ambulatoriul Spitalului Universitar de Urgenta
Tel. 0213180519/29; 0212026147 Splaiul Independentei, nr. 169, sector 5 , |
||
| 95. |
Clinica Sanamed-Bucuresti
0219442 Calea Plevnei, Nr. 159,corpul B ,Sector 6, |
||
| 96. |
Policlinica pentru copii Regina Maria - Opera
0219268 Str. Costache Negri, nr. 1-5, sector 5, |
||
| 97. |
Spitalul Universitar de Urgenta Bucuresti - SUUB
Tel. 0213180519; Fax 0213180554 Splaiul Independentei, nr. 169, sector 5 , |
||
| 98. |
Spitalul Universitar de Urgenta Bucuresti - SUUB
Tel. 0213180519; 0213180554 Splaiul Independentei nr. 169, sector 5, |
||
| 99. |
SPITALUL PROF. DR. CONSTANTIN ANGELESCU
0213233040; 0213233041 Aleea Cauzasi, nr. 49-51, sector 3, |
||
| 100. |
Spitalul Prof. Dr. Constantin Angelescu
0213233040; 0213233041 Aleea Cauzasi, nr. 49 - 51 sector 3, |
||
| 101. |
Clinica Regina Maria - Pipera-Bucuresti
0219268 Bd. Dimitrie Pompeiu, nr. 9-9A, cladirea 1, parter, sector 2, |
||
| 102. |
Miko Med
021.233.44.66; 0722.525.472 Str. Nicolae Caramfil, nr.51,sector 1, |
||
| 103. |
Policlinica Iancului-Bucuresti
Tel.0314255277 (laborator); 0212508490 (O.R.L.); 0212503333 Sos. Iancului , nr. 3, sector 2 , |
||
| 104. |
Centrul Medical Focus
Tel. 0317111515; 0733072910 Bd. Ferdinand nr. 141, sector 2, |
||
| 105. |
Centrul Medical Proctoline-Bucuresti
0213017686- programari Bd. Dimitrie Cantemir , nr. 1, bl. B2, sc. 3, et. 2, sector 4, |
||
| 106. |
Centrul Medical Psoremiss-Bucuresti
0213017696 Bd. Dimitrie Cantemir, nr. 1, bl. B2, sc. 3, et. 2, sector 4, |
||
| 107. |
Prof. Dr. Panait Sirbu, Spitalul Clinic de Obstetrica-Ginecologie Bucuresti
0213161281; 0213161283 Calea Giulesti, nr. 5, sector 6 , |
||
| 108. |
Prof. Dr. Panait Sirbu, Spitalul Clinic de Obstetrica-Ginecologie Bucuresti
0213161281; 0213161283; 0213161287 Calea Giulesti, nr. 5, sector 6, bucuresti |
||
| 109. |
Clinica de Excelenta in Patologia Somnului Somnolog-Bucuresti
0213118822; 0784442277 Str.Dr.Leonte Anastasievici, nr.11, sector 5, |
||
| 110. |
Centru Medical Mediclass - Cotroceni
0214102727; 0214120128; 0214120129 Str. Elefterie, nr. 47-49 (Complex Comercial Cotroceni), sector 5, |
||
| 111. |
Centrul Medical Amicus Med
Tel. 0766424841; Tel/Fax 0212508585 Sos. Iancului nr. 17, bl. 106C, sc. 1, ap. 4, sector 2, |
||
| 112. |
Spitalul Clinic C.F. 2 - Bucuresti + ambulatoriu
Tel. 0372298711; Fax 0372298761 Bd. Marasti nr. 63, sector 1 , |
||
| 113. |
Spitalul Clinic C.F. 2 - Bucuresti
Tel. 0372298711 Bd. Marasti nr. 63, sector 1, |
||
| 114. |
Centrul Medical Ponderas-Bucuresti
0219886 Str. Nicolae Caramfil, nr. 85A, sector 1, |
||
| 115. |
Clinica Medicover-Bucuresti
0219896 Str. Sergent Constantin Ghercu,, nr. 1A, sector 1, |
||
| 116. |
Policlinica Regina Maria - Cotroceni
0219268 Sos. Cotroceni, nr. 20, sector 6, |
||
| 117. |
Omnia Medical Center - Clinica medicala, Bucuresti
0213230034; 0728841841 Bd. Octavian Goga, Nr. 14, Bl. M61, Parter, Sector 3, Bucuresti |
||
| 118. |
Professional Klinic, Bucuresti - Tratament si analize
0314250805 ; 0742207755 Str.Agricultori, Nr. 115, bloc 79, Parter, Sector 3, Bucuresti |
||
| 119. |
Spitalul de Urgenta de Chirurgie Plastica, Reparatorie si Arsuri
0212240946; 0212240947; Tel/Fax 0212241800 Calea Grivitei nr. 218, sector 1, |
||
| 120. |
Clinica Medicala On
.0213017676 Bd. Dimitrie Cantemir nr. 1, bl. B2, sc. 3, et. 2, sector 4, |
||
| 121. |
Podologica - Salon tratament pentru afectiunile picioarelor sector 4
0771458874 Bd. Dimitrie Cantemir, nr. 15, bl.9, sc.6, sector 4, |
||
| 122. |
Centrul Medical Endocenter-Bucuresti
Tel.0764671233; Fax 0213267660 Str. Arh. G. Sterian, nr. 8, sector 2, |
||
| 123. |
Spitalul Clinic \"Prof. Dr. Theodor Burghele\" + Ambulatoriu
Tel. 0214106910; Fax 0214111055 Sos. Panduri nr. 20, sector 5, |
||
| 124. |
Spitalul de Urgenta de Chirurgie Plastica, Reparatorie si Arsuri-Bucuresti
0212240946; 02.2240947; Tel/Fax 0212241800 Calea Grivitei , nr. 218, sector 1 , |
||
| 125. |
Centrul Medical Nicomed-Bucuresti
0216372458; 0731338524 Calea Crangasi, nr. 23, ap.1, sector 6, |
||
| 126. |
Centrul Medical Panduri-Bucuresti
0731806118; 0219901 Str. Dr. Ioan Atanasiu, nr. 34, sector 5, |
||
| 127. |
Centrul Medical Nicomed
0216372458; 0731338524 Calea Crangasi nr. 23, bl. 13, sc. 2, ap. 1, sector 6, |
||
| 128. |
Clinica Regina Maria - Aviatiei-Bucuresti
0219268 Sos.Pipera, nr. 43,Floreasca Park, sector 1, |
||
| 129. |
Medisan Family Clinic - Clinica medicala Bucuresti
0217955980 Str. Dr. Calin Ottoi, nr. 20-22, sector 2 |
||
| 130. |
Spitalul Clinic \"Prof. Dr. Theodor Burghele\" + Ambulatoriu
Tel.0214106910; Fax.0214111055 Sos. Panduri, nr. 20, sector 5, |
||
| 131. |
Institutul National pentru medicina complementara si alternativa
Tel.0783002934; 0214102419 Sos. Panduri , nr. 22, sector 5, |
||
| 132. |
Spitalul clinic de copii Dr. Victor Gomoiu
0314136700; 0314136701 Bd. Basarabia nr. 21, sector 2, |
||
| 133. |
Scanmed - Clinica Medicala Bucuresti
0219215; 0317100141; 0729202202 Sos. Panduri, nr. 71, Parter, Sector 5 |
||
| 134. |
Dr. V. Gomoiu, Spitalul de Copii - Ambulatoriul de specialitate Bucuresti
0314136700; 0314136701; 0314136706 Bd. Basarabia, nr. 21, sector 2, |
||
| 135. |
Centrul Medical Apolo- Bucuresti
Tel. 0214101770; 0214101615; 0744377034 Str. Coriolan Caius Marcius, nr. 41 (lang? benzinaria MOL Tudor Vladimirescu), sector 5, |
||
| 136. |
Vitan Policlinica, Grupare de cabinete medicale - Bucuresti
0727451211; 0213234970; 0213221208 Calea Dudesti, Nr. 104-124, sector 3, Bucuresti |
||
| 137. |
Cabinet Medical Persepolis- Bucuresti
0749065961; 0751011893 Str. Vasile Toneanu , nr. 20, sector 3, |
||
| 138. |
Spitalul Clinic de Boli Infectioase si Tropicale Dr. Victor Babes
0213172727 / .28 / .29/ .30 (Centrala); 0213172721 Sos. Mihai Bravu, nr. 281, sector 3, |
||
| 139. |
Dr. Victor Babes, Spitalul Clinic de Boli Infectioase si Tropicale Bucuresti
0213172727 / .28 / .29/ .30 (Centrala); Fax 021 3172721 Sos. Mihai Bravu, nr. 281, sector 3 , |
||
| 140. |
Centrul Medical Dr. Victor Babes-Bucuresti
0213179503; Fax: 0213179502 Sos. Mihai Bravu nr. 281, sector 3 , |
||
| 141. |
Gral Medical - Centrul Medical, Bucuresti
0213230000; 0724242259 (programari radiologie); Fax 0213230002 Str.Traian Popovici (fosta Unitatii), Nr. 79-91, Sector 3, Bucuresti |
||
| 142. |
Emergency Medical Care - Servicii medicale de urgenta la domiciliu Bucuresti & Ilfov
0799058058; 0732528136; 0314250213 Calea Vitan, Nr. 109B-109D, Sector 3, Bucuresti |
||
| 143. |
Policlinica Baba Novac
0770218336; 0748175572 Str. Baba Novac, nr. 2, sector 3 |
||
| 144. |
Institutul National de Medicina Sportiva
0213184704 ; 0213184705 ; 0213184706 Bd. Basarabia, nr. 37-39, sector 2, Bucuresti |
||
| 145. |
Clinica Memento Med-Bucuresti
0213260081 Str. Brailita, nr. 1, sector 3, |
||
| 146. |
Centrul Medical Rom Med 2000
0726366370; 0213270441; Tel/Fax 0213206087 Intr. Baba Novac, nr. 4 A, Sector 3, |
||
| 147. |
Institutul Clinic Fundeni
Tel. 0212750500; Fax.0212750700 Sos.Fundeni, nr. 258, sector 2, Bucuresti |
||
| 148. |
Institutul Clinic Fundeni
0212750500; Fax.0213180444; 0212750700 Sos.Fundeni, nr. 258, sector 2, |
||
| 149. |
Doris - centru de testare COVID 19 Bucuresti
0732684319 Bd. Iuliu Maniu, nr. 11, sector 6, |
||
| 150. |
Clinica Life-Med-Bucuresti
0319981 Str. Plugarilor , nr. 18,sector 4, |
||
| 151. |
Societatea Civila Medicala Doctor Popescu Daniel si Asociatii
Tel/Fax 021.336.55.03 Calea Serban Voda, nr. 211, sector 4 , |
||
| 152. |
Hipocrat 2000-clinica medicala-Bucuresti
0219605 Bd. Chisinau, nr. 16, sector 2, |
||
| 153. |
Clinica Nova ORL - Dr. Voda Ioana Alexandra-Bucuresti
0213254422; 0799848484 Str. Pictor Gh. Tattarascu , nr. 2, subsol Policlinica Globului, in spatele cinematografului Gloria, Baba Novac, sector 3, |
||
| 154. |
Spitalul Clinic Judetean de Urgenta Ilfov + ambulatoriu-Bucuresti
Tel.021.3243312; 0213241161; Fax .0213243296 Bd. Basarabia nr. 49-51, sector 2 , |
||
| 155. |
Spitalul Clinic Judetean de Urgenta Ilfov
Tel.0213243312; 0213241161; Fax 0213243296 Bd. Basarabia nr. 49-51, sector 2, |
||
| vezi mai multe | |||
| 1. |
Goethe, Colegiul German - Bucuresti
0212113425 Str. Stanislav Cihoschi, Nr. 17, Sector 1, Bucuresti |
||
| 2. |
Scoala Gimnaziala Nr. 24 - Bucuresti
0212107185 Str. Tunari, Nr. 52, Sector 2, Bucuresti |
||
| 3. |
Elena Vacarescu, Scoala Gimnaziala - Bucuresti
0213163630 Str. Stanislav Cihoschi, nr. 15, sector 1, Bucuresti |
||
| 4. |
Liceul Teoretic Alexandru Vlahuta Bucuresti
0212305292 Str. Scoala Floreasca, nr. 5, sector 1 |
||
| 5. |
Aldo Moro, Scoala Italiana - Bucuresti
0212104684 Intr. Blaj, nr. 1, Sector 1, Bucuresti |
||
| 6. |
I.L. Caragiale, Colegiul National - Bucuresti
0212301021 Calea Dorobantilor, nr. 163, sector 1, Bucurersti |
||
| 7. |
Nicolae Tonitza, Liceu de Arte Plastice - Bucuresti
0212302793 Bd. Iancu de Hunedoara, Nr. 27, Sector 1, Bucuresti |
||
| 8. |
Titu Maiorescu, Scoala Gimnaziala Nr.45 - Bucuresti
0212301673 Calea Dorobantilor, Nr. 163, Sector 1, Bucuresti |
||
| 9. |
Virgil Madgearu, Colegiul Economic - Bucuresti
0212117256 Bd. Dacia, Nr. 34, Sector 1, Bucuresti |
||
| 10. |
Scoala Gimnaziala Nr. 28 - Bucuresti
0212105910 Aleea Circului, Nr. 1, sector 2 |
||
| 11. |
Scoala Ioanid, Gradinita, Gimnaziu, Liceu - Bucuresti
0758054401 Str. Nicolae Iorga, nr. 21, Sector 1, Bucuresti |
||
| 12. |
EFI Bucarest - Scoala Franceza Internationala din Bucuresti
0749098867 Bulevardul Dacia, Nr. 12, Sector 1 |
||
| 13. |
Colegiul National - Scoala Centrala - Bucuresti
0212118484; 0787288528 Str. Icoanei, Nr. 3-5, Sector 2, Bucuresti |
||
| 14. |
Scoala Gimnaziala Luca Bucuresti
0721335161; 0744894206 Str. Sfantul Petru Tei, Nr. 67 A- 71, Sector 2, Bucuresti |
||
| 15. |
Maria Rosetti, Scoala Gimnaziala - Bucuresti
0212305276 Str. Garibaldi, nr. 3, Sector 2, Bucuresti |
||
| 16. |
Scoala Gimnaziala nr. 5 - Bucuresti
0213169918 Calea Victoriei, Nr. 114, Sector 1, Bucuresti |
||
| 17. |
George Enescu, Colegiu National de Muzica - Bucuresti
0760665312; 0213108871 Str. General Gheorghe Manu, Nr. 30, Sector 1, Bucuresti |
||
| 18. |
Monterra - Scoala primara Bucuresti
0743119481 Str. Vasile Lascar, nr. 87, sector 2 |
||
| 19. |
Cantemir Voda, Colegiul National - Bucuresti
0212106935 Str. Viitorului, Nr. 60, Sector 2, Bucuresti |
||
| 20. |
Traian, Liceu Teoretic - Bucuresti
0212106598; 0212105920 Str. Luigi Galvani, Nr. 20, sector 2, Bucuresti |
||
| 21. |
Heliade Radulescu, Scoala Gimnaziala Nr. 11 - Bucuresti
0213163633 Sos. Kiseleff, nr. 5, sector 1, Bucuresti |
||
| 22. |
Institutul de matematica Simion Stoilow
0213196506; 0213117780; Fax: 0213196505 Calea Grivitei, Nr. 21, Sector 1, Bucuresti |
||
| 23. |
Jean Monnet, Liceu teoretic - Bucuresti
0212305078 Str. Jean Monnet, Nr. 2, Sector 1, Bucuresti |
||
| 24. |
Tudor Arghezi, Scoala Gimnaziala Nr. 19 - Bucuresti
0213169187 Str. Tudor Arghezi, Nr. 46-50, Sector 2, Bucuresti |
||
| 25. |
I.N.Socolescu, Colegiul Tehnic de Arhitectura si Lucrari Publice - Bucuresti
0213108958 Occidentului, Nr. 12, Sector 1, Bucuresti |
||
| 26. |
Cuib - After school, Bucuresti
0751088396 Str. Fainari, Nr. 45A, sector 2 |
||
| 27. |
Sf. Sava, Colegiul National - Bucuresti
0213149294; 0213126821 Str. G-ral Berthelot, Nr. 23, Sector 1, Bucuresti |
||
| 28. |
C.A. Rosetti, Liceu teoretic - Bucuresti
0212304873 Str. Giuseppe Garibaldi, Nr. 11, Sector 2, Bucuresti |
||
| 29. |
Vasile Alecsandri, Scoala Gimnaziala (fosta Nr. 118) - Bucuresti
0213138287 Str. Stirbei Voda, Nr. 32-34, Sector 1, Bucuresti |
||
| 30. |
Liceul Teoretic National
0720000171 Str. Buzesti, Nr. 14-18; Sector 1, Bucuresti |
||
| 31. |
Scoala Gimnaziala de Arte nr. 4 - Bucuresti
0212421450 Str. Maica Domnului, Nr. 61-63, Sector 2 |
||
| 32. |
Sfantul Silvestru, Scoala Gimnaziala Nr. 23 - Bucuresti
0212102045 Str. Oltarului, Nr. 11, Sector 2, Bucuresti |
||
| 33. |
Tudor Vianu, Colegiul National de Informatica - Bucuresti
0212226670 Str. Arh. Ion Mincu, Nr. 10, sector 1, Bucuresti |
||
| 34. |
Scoala Gimnaziala Nr. 307 - Bucuresti
0212100012 Str. Luncsoara, Nr. 3, Sector 2, Bucuresti |
||
| 35. |
Scoala Gimnaziala Nr. 31 - Bucuresti
0212421712; 0736613908 Bd. Lacul Tei, Nr. 116, sector 2 |
||
| 36. |
Spiru Haret, Colegiu National - Bucuresti
0213136462 Str. Italiana, Nr. 17, Sector 2, Bucuresti |
||
| 37. |
FEG, Scoala Postliceala in domeniului medical - Bucuresti
0213111054; 0314050362; 0788424314 Walter Maracineanu, Nr. 1-3, Intrarea 2, Etaj. 2,, Bucuresti |
||
| 38. |
Nicolae Titulescu, Scoala Gimnaziala - Bucuresti
0212236393 Sos. Nicolae Titulescu, nr. 50-52, Sector 1, Bucuresti |
||
| 39. |
Iosif Sava, Scoala Gimnaziala de Arte - Bucuresti
0212312470 Str. Constantin Disescu, Nr. 37, Sector 1, Bucuresti |
||
| 40. |
Scoala Gimnaziala Nr. 1 - Sfintii Voievozi
0213127572; 0213164206; 0213179916 Str. Atelierului, Nr. 25, Sector 1, Bucuresti |
||
| 41. |
Happy Drive Lucky - Scoala de soferi, Bucuresti
0755766849 Strada Inginerilor Tei, Nr.9, sector 2 |
||
| 42. |
Pia Bratianu - Scoala Gimnaziala Nr. 17
0212226590 Str. Petofi Sandor, Nr. 14-16, Sector 1, Bucuresti |
||
| 43. |
Maica Domnului, Scoala Gimnaziala Nr. 50 - Bucuresti
0212520310 Str. Ion Maiorescu, Nr. 32, Sector 2, Bucuresti |
||
| 44. |
Liceul Teoretic Sfintii Trei Ierarhi - Bucuresti
0763688448 Str. Oltetului, nr. 15, sector 2 |
||
| 45. |
George Cosbuc, Colegiul National Bilingv - Bucuresti
0212528080 Str. Olari, Nr. 29-31, Sector 2, Bucuresti |
||
| 46. |
Scoala Gimnaziala Nr. 71 - Bucuresti
0213141395; 0213141391 Calea Mosilor, Nr. 148, Sector 2, Bucuresti |
||
| 47. |
Hermes, Colegiul Economic - Bucuresti
0213147645 Calea Mosilor, Nr. 152, Sector 2, Bucuresti |
||
| 48. |
Scoala Gimnaziala Nr. 27 Principesa Ileana - Bucuresti
0212421645 Str. Masina de Paine, nr. 65, sector 2 |
||
| 49. |
Ion Neculce, Colegiul National Bucuresti
0212224145; 0212224179 Str. Ion Neculce, Nr. 2, Sector 1, Bucuresti |
||
| 50. |
Gheorghe Lazar, Colegiu National - Bucuresti
0213134756 Bd. Regina Elisabeta, Nr. 48, Sector 5, Bucuresti |
||
| 51. |
Miguel de Cervantes, Liceul Bilingv - Bucuresti
0213149311 Calea Plevnei, Nr. 38-40, Sector 1, Bucuresti |
||
| 52. |
A.D. Xenopol, Colegiul Economic - Bucuresti
0213205719 Str. Traian, Nr. 165, Sector 2, Bucuresti |
||
| 53. |
Kretzulescu Nicolae, Scoala Superioara Comerciala - Bucuresti
0213139082 Bd. Hriso Botev, Nr. 17, Sector 3, Bucuresti |
||
| 54. |
Ady Endre, Liceu Teoretic - Bucuresti
0212520192 Bd. Ferdinand I, Nr. 89, Sector 2, Bucuresti |
||
| 55. |
Scoala Gimnaziala Iancului Nr. 52
0212522260 Bd. Pache Protopopescu, Nr. 50, Sector 2, Bucuresti |
||
| 56. |
Iulia Hasdeu, Colegiu National - Bucuresti
0212524508 Bd. Ferdinand, Nr. 91, Sector 2, Bucuresti |
||
| 57. |
Phoenix, Liceu Teoretic - Bucuresti
0214341364; 0770911516 Virgiliu, Nr. 40, Sector 1, Bucuresti |
||
| 58. |
Uruguay, Scoala Gimnaziala - Bucuresti
0216370361 Str. Virgiliu, Nr. 40, Sector 1, Bucuresti |
||
| 59. |
Fridolin, scoala primara si gimnaziala germana - Bucuresti
0723584872 (Adina Stoenescu); 0722502522 (Christian Comsa) Fagaras, Nr. 9-13, Sector 1, Bucuresti |
||
| 60. |
Grigore Ghica Voievod, Scoala Gimnaziala Nr. 30 - Bucuresti
0212421160 Str. Laptari Tei, Nr. 23, Sector 2, Bucuresti |
||
| 61. |
Mihai Viteazu, Colegiul National - Bucuresti
0212525700; 0212525871 Bd. Pache Protopopescu, Nr. 62, Sector 2, Bucuresti |
||
| 62. |
Ion I.C. Bratianu, Liceu Tehnologic - Bucuresti
0310699448 Str. Popa Lazar, Nr. 8A, Sector 2, Bucuresti |
||
| 63. |
Scoala Gimnaziala Nr. 56 - Bucuresti
0212524125; 0733087815 Bd. Pache Protopopescu, Nr. 109A, Sector 2, Bucuresti |
||
| 64. |
Mihail Sadoveanu, Liceu teoretic - Bucuresti
0212527856 Str. Popa Lazar, Nr. 8A, Sector 2, Bucuresti |
||
| 65. |
Little Genius - Scoala primara Bucuresti
0724245249 Str. Carol Knappe, Nr. 95, sector 1 |
||
| 66. |
Scoala Gimnaziala de Arte nr. 2 - Bucuresti
0212525703 Bd. Ferdinand I, Nr. 128, Sectorul 2 |
||
| 67. |
Barbu Delavrancea, Scoala Gimnaziala Nr.73 - Bucuresti
0213237390 Str. Matei Basarab, Nr. 28-30, Sector 3, Bucuresti |
||
| 68. |
Anastasia Popescu, Liceu Pedagogic Ortodox - Bucuresti
0212524665; 0725519386; 0722805777 Popa Nan, 47 B, Sector 2, Bucuresti |
||
| 69. |
Laude-Reut, Complex Educational Bucuresti
0314382046; 0318055772 Str. Clucerul Udricani, Nr. 12, Sector 3, Bucuresti |
||
| 70. |
Matei Basarab, Colegiul National - Bucuresti
0213216640 Str. Matei Basarab, Nr. 32, Sector 3, Bucuresti |
||
| 71. |
Scoala Gimnaziala Nr. 25 - Bucuresti
0212422695 Str. Silvia, Nr. 54 Sector 2 |
||
| 72. |
Mihai Ionescu, Scoala Primara, Gimnaziu, Liceu - Bucuresti
0213235495 Str. Cauzasi, Nr. 43, Sector 3, Bucuresti |
||
| 73. |
Liceul Tehnologic Nikola Tesla - Bucuresti
0212527886 Sos. Pantelimon, Nr. 25, sector 2 |
||
| 74. |
Mihai Ionescu, Gradinita, Gimnaziu si Liceu - Bucuresti
0213235495; 0314054929 Cauzasi, Nr. 43, Sector 3 , Bucuresti |
||
| 75. |
Liceul Tehnologic Constantin Brancusi - Bucuresti
0212321275; 0787298171 Bd. Dimitrie Pompei, Nr. 1, Sector 2 |
||
| 76. |
Sweet Babies - Cresa, gradinita, after school, Bucuresti
0785810011 Strada Teleajen, 26B, sector 2 |
||
| 77. |
Montessano - Scoala primara si gradinita, Bucuresti
0724924070; 0724919711 Str. Labirint, nr. 97-99, sector 3 |
||
| 78. |
Petre Ispirescu - Scoala Gimnaziala Nr. 171 - Bucuresti
0212241163 Str. Vasile Gherghel, Nr. 2, Sector 1, Bucuresti |
||
| 79. |
Geo Bogza, Scoala Gimnaziala Nr. 170 - Bucuresti
0212223072 Str. Barbu Lautaru, Nr. 4, Sector 1, Bucuresti |
||
| 80. |
International British School - Bucuresti
0212531698; 0745340841 Str. Agricultori, Nr. 21-25, Sector 2, Bucuresti |
||
| 81. |
Edmond Nicolau, Colegiul Tehnic - Bucuresti
0212331541; 0212331910 Bd. Dimitrie Pompeiu, Nr. 3, Sector 2, Bucuresti |
||
| 82. |
Liceul Teoretic Bilingv Ita Wegman - Bucuresti
0769060529; 0212103391 Bd. Dimitrie Pompeiu, Nr. 3, CORP B, sector 2 |
||
| 83. |
Serban, Scoala de Meserii - Bucuresti
0722302252; 0212520382 Intrarea Baritonului, Nr. 9 (prin Str. Matei Voievod Nr. 81-83), Sector 2, Bucuresti |
||
| 84. |
Scoala Gimnaziala Nr. 85
0212524520 Str. Dr. Constantin Zlatescu, Nr. 7A, sector 2, Bucuresti |
||
| 85. |
Carol Davila, Scoala Sanitara Postliceala - Bucuresti
0216107068 Str. Agricultori, nr. 35, 37-39 (cladirea Codecs), sector 2, |
||
| 86. |
Scoala Gimnaziala Nr. 150 - Bucuresti
0214108408 Bd. Eroii Sanitari, Nr. 29-31, Sector 5, Bucuresti |
||
| 87. |
Scoala Gimnaziala Herastrau, Bucuresti
0212326613 Str. Borsa, Nr. 27, Sector 1 |
||
| 88. |
Mirunette Education, Consiliere si Programe Educationale - Bucuresti
0212101602 Valeriu Braniste, Nr. 37-39, Etaj 1, Ap. 3, Cam. 3, Sector 3, Bucuresti |
||
| 89. |
Ada School - Bucuresti
0723595916; 0721424485 Dr. Carol Davila, Nr. 101, Bucuresti |
||
| 90. |
Pick Me Academy - Scoala Primara Bucuresti
0726000640; 0722391000 Strada Agricultori, Nr. 79, Sector 2, Scoala Primara |
||
| 91. |
AWEsome Primary School - Scoala clasele primare Bucuresti
0750460737 Str. Ienachita Vacarescu, nr. 22B, sector 4 |
||
| 92. |
Colegiul Tehnic Dinicu Golescu - Bucuresti
0216370484 Calea Giulesti, Nr. 10, Sector 1 |
||
| 93. |
Ion Creanga Colegiu National - Bucuresti
0213362695 Str. Cuza Voda, Nr. 51, sector 4, Bucuresti |
||
| 94. |
Scoala Gimnaziala Nr. 64 Ferdinand I - Bucuresti
0213351410 Bd. Garii Obor, Nr. 16, Sector 2 |
||
| 95. |
Seminarul Teologic Ortodox Bucuresti
0213305754; 0731205629; 0213305754 Str. Radu Voda, Nr. 24 A, Sector 4, Bucuresti |
||
| 96. |
Scoala Gimnaziala Nr. 79 - Bucuresti
0314257884 Str. Cuza Voda, Nr. 51, Sector 4, Bucuresti |
||
| 97. |
Scoala Gimnaziala Nr. 168 - Bucuresti
0314326090 Str. Alizeului, Nr. 9, Sector 6, Bucuresti |
||
| 98. |
Emil Racovita, Colegiul National - Bucuresti
0213217092; Fax 0213217092 Sos. Mihai Bravu , nr. 169, sector 2, |
||
| 99. |
Colegiul National de Arte Dinu Lipatti - Bucuresti
0213363588 Str. Principatele Unite, Nr. 63, Sector 4, Bucuresti |
||
| 100. |
Scoala Gimnaziala Nr. 145 - Bucuresti
0212407036 Str. Heliade Intre Vii, Nr. 36, sector 2 |
||
| 101. |
Victoria, Liceu Teoretic - Bucuresti
0314250543; 0759478014 Str. Turturelelor, nr. 11A, sector 3, Bucuresti |
||
| 102. |
Scoala Gimnaziala Ienachita Vacarescu, Bucuresti
0213355705 Calea Serban Voda, Nr. 62-64, sector 4, Bucuresti |
||
| 103. |
Floria Capsali, Liceul de Coregrafie - Bucuresti
0213363792 Str. Capitan Preotescu, Nr. 9, Sector 4, Bucuresti |
||
| 104. |
Scoala Gimnaziala Nr. 39 - Bucuresti
0783292969; 0212403025; 0212400034 Sos. Colentina, Nr. 91, Sector 2, Bucuresti |
||
| 105. |
Scoala Gimnaziala Nr. 128 - Bucuresti
0214102219 Str. Ion Creanga, Nr. 6, Sector 5, Bucuresti |
||
| 106. |
Scoala Gimnaziala Nr. 46 - Bucuresti
0212502527 Str. Stanescu Gheorghe, Nr. 2-18, sector 2 |
||
| 107. |
Eugen Barbu, Scoala Gimnaziala Nr. 173 - Bucuresti
0212240937 Str. Ivan Petrovici Pavlov, Nr. 2-4, Sector 1, Bucuresti |
||
| 108. |
Complex Scoalr Cronos Bucuresti
0212225050; 0758107705 Str. Chibzuintei, Nr. 15-17, Sector 1, Bucuresti |
||
| 109. |
Spectrum Colentina, Scoala Primara - Bucuresti
0314338500; 0733314741 Sos. Colentina, Nr. 64B, Sector 2, Bucuresti |
||
| 110. |
Colegiul Tehnic Mircea cel Batran - Bucuresti
0212242376 Str. Feroviarilor, Nr. 37, Sector 1 |
||
| 111. |
Arkedo - Gradinita, scoala si after school, Bucuresti
0753275336 Str. Daniel Danielopolu, nr. 42-44, sector 1 |
||
| 112. |
Alegra - After-school Bucuresti
0729987920; 0726487124 Str. Portaresti, Nr. 11, etaj 1, sector 6 |
||
| 113. |
Sfantul Nicolae, Scoala Gimnaziala Nr. 175 - Bucuresti
0212241846 Str. Lainici, Nr. 4-8, Sector 1, Bucuresti |
||
| 114. |
Kids Kingdom - Before & After School Bucuresti
0799199627 Intrarea Traian Demetrescu, Nr. 8, sector 3 |
||
| 115. |
Scoala Gimnaziala Nr. 49 - Bucuresti
0212502444 Str. Vatra Luminoasa, Nr. 99, Sector 2, Bucuresti |
||
| 116. |
Scoala Gimnaziala Nr. 81 - Bucuresti
0213263220 Str. Nerva Traian, Nr. 33, Sector 3, Bucuresti |
||
| 117. |
UCECOM, Colegiul Spiru Haret - Bucuresti
0213166195; 0213166196 Str. Economu Cezarescu, Nr. 47-59, Sector 6, Bucuresti |
||
| 118. |
Scoala de Arta Bucuresti
0213306700 Str. Cuza Voda, nr. 100, |
||
| 119. |
I.G. Duca, Scoala Gimnaziala 146 - Bucuresti
0214100881 Sos. Panduri, Nr. 42, Sector 5, Bucuresti |
||
| 120. |
Carol I, Colegiu Tehnic - Bucuresti
0212202750 Str. Porumbacu, Nr. 52, Sector 6, Bucuresti |
||
| 121. |
Cezar Bolliac, Scoala Gimnaziala Nr. 70 - Bucuresti
0314040172 Intr. Tiglina, Nr. 37, Sector 3, Bucuresti |
||
| 122. |
Penticostal Emanuel, Liceul Teologic - Bucuresti
0213311669 Str. Cuza Voda, Nr. 116, Sector 4, Bucuresti |
||
| 123. |
Liceul Teoretic Hyperion - Bucuresti
0311032803 Sos. Mihai Bravu, nr. 288C, sector 2 |
||
| 124. |
Smart Koala Kids Club
0771638419; 0771638425 Calea 13 Septembrie, Nr.126A, bl.P43, sc.1, parter, ap. 2, sector 5, Bucuresti |
||
| 125. |
Montessori - Scoala si gradinita, Bucuresti
0754054402 Str. Maior Ion Coravu, Nr. 53, Sector 2 |
||
| 126. |
SEB, Scoala Europeana, Invatamant primar, gimnazial si liceal - Bucuresti
0314381212; 0720068490 Bd. Expozitiei, Nr. 24D, sector 1, Bucuresti |
||
| 127. |
Colegiul Tehnic Mecanic Grivita - Bucuresti
0212240770 Calea Grivitei, Nr. 363, Sector 1, Bucuresti |
||
| 128. |
Scoala Mea, Liceu Teoretic - Bucuresti
0376203079 Str. Valiug, Nr. 12-18, Sector 1, Bucuresti |
||
| 129. |
Liceul tehnologic special Regina Elisabeta - Bucuresti
0212506220 Str. Vatra Luminoasa, Nr. 108, sector 2 |
||
| 130. |
Liceul cu Program Sportiv Mircea Eliade - Bucuresti
0213141389 Splaiul Independentei, Nr. 315-317, Sector 6 |
||
| 131. |
Viaceslav Harnaj, Colegiul Tehnologic - Bucuresti
0212327165 Bd. Ficusului, Nr. 20-26, Sector 1, Bucuresti |
||
| 132. |
Scoala Gimnaziala Nr. 115
0213163793; 0786401588 Calea 13 Septembrie, Nr. 177, Sector 5, Bucuresti |
||
| 133. |
Gheorghe Sincai, Colegiul National - Bucuresti
0213369004; 0213361455 Calea Serban Voda, Nr. 167, Sector 4, Bucuresti |
||
| 134. |
Dimitrie Paciurea, Liceu Vocational Artistic - Bucuresti
0216670195 Str. Baiculesti, Nr. 29, Sector 1, Bucuresti |
||
| 135. |
Scoala Gimnaziala Nr.163 - Bucuresti
0212201018 Calea Giulesti, Nr. 54, Sector 6, Bucuresti |
||
| 136. |
Liceul Tehnologic Sfantul Pantelimon - Bucuresti
0212559943 Str. Hambarului, Nr. 12A, sector 2 |
||
| 137. |
Scoala Gimnaziala Nr. 97 - Bucuresti
0213302545 Str. Viorele, Nr. 7, Sector 4, Bucuresti |
||
| 138. |
Leonardo Da Vinci, Scoala Gimnaziala Nr.75 - Bucuresti
0213248676 Str. Pictor Gheorghe Petrascu, Nr. 55, Sector 3, Bucuresti |
||
| 139. |
Henri Coanda, Colegiul Tehnic de Aeronautica - Bucuresti
0212323616 Bd. Ficusului, Nr. 44, sector 1, Bucuresti |
||
| 140. |
Scoala Gimnaziala Nr. 80 - Bucuresti
0213214256 Calea Dudesti, Nr. 191, Sector 3, Bucuresti |
||
| 141. |
Scoala Gimnaziala nr. 32 - Bucuresti
0216556240 Str. Sportului, Nr. 21, sector 2 |
||
| 142. |
Scoala Gimnaziala Nr. 51 - Bucuresti
0212554060 Str. Herta, Nr. 1, Sector 2, Bucuresti |
||
| 143. |
Scoala Gimnaziala Nr. 95 - Bucuresti
0770503408; 0213235185 Str. Foisorului, Nr. 111-113, Sector 3, Bucuresti |
||
| 144. |
Scoala Gimnaziala nr 180 - Bucuresti
0216671835 Bucegi, nr. 97, sector 1 |
||
| 145. |
Timotei Cipariu, Liceul Greco-Catolic - Bucuresti
0216678434 Str. Bucegi, Nr. 97, Sector 1, Bucuresti |
||
| 146. |
Mihai Eminescu, Colegiul National - Bucuresti
0213304001 Str. V.V. Stanciu, Nr. 6 , Sector 4, Bucuresti |
||
| 147. |
Scoala Gimnaziala Nr. 4 - Bucuresti
0212556425 Str. Herta, Nr. 14 A, Sector 2, Bucuresti |
||
| 148. |
Colegiul Tehnic Petru Rares - Bucuresti
0213304001 Str. V. V. Stanciu, nr. 6, sector 4 |
||
| 149. |
Marin Preda, Liceu teoretic - Bucuresti
0212202344 Str. Rusetu, Nr. 17, Sector 6, Bucuresti |
||
| 150. |
Viilor, Colegiul Economic - Bucuresti
0213160973; 0213160966 Sos. Viilor, Nr. 38, Sector 5, Bucuresti |
||
| 151. |
Scoala Gimnaziala Nr. 7 - Bucuresti
0212321531 Str. Neagoe Voda, Nr. 11, Sector 1, Bucuresti |
||
| 152. |
Dimitrie Gusti, Liceu Tehnologic - Bucuresti
0214562050 Str. Samuil Vulcan, Nr. 8, Sector 5, Bucuresti |
||
| 153. |
Colegiul Tehnic Mihai Bravu - Bucuresti
0213217699 Sos. Mihai Bravu, Nr. 428, Sector 3 |
||
| 154. |
Scoala Gimnaziala Nr. 40 - Bucuresti
0212406545 Str. Peris, Nr. 27, Sector 2, Bucuresti |
||
| 155. |
Victor Babes, Colegiul National - Bucuresti
0212407870 Sos. Fundeni, Nr. 254, Sector 2, Bucuresti |
||
| 156. |
Scoala Postliceala Sanitara Fundeni - Bucuresti
0212405135 Sos. Fundeni, Nr. 254, Sector 2, Bucuresti |
||
| 157. |
Alexandra Kids, Gradinita, After School - Bucuresti
0788461573; 0214206927 Calea Rahovei, Nr. 266-268, Sector 5, Bucuresti |
||
| 158. |
Waldorf, Liceul Teoretic - Bucuresti
0212553051 Str. Sold. Marin Savu, Nr. 29, Sector 2, Bucuresti |
||
| 159. |
Ion Barbu, Liceu Teoretic - Bucuresti
0214102332 Str. Nabucului, Nr. 18, Sector 5, Bucuresti |
||
| 160. |
Colegiul Tehnic Media Arta si Tehnologie - Bucuresti
0216675585 Str. Jiului, Nr. 163, Sector 1 |
||
| 161. |
Scoala Gimnaziala Nr. 167 - Bucuresti
0212205770 Calea Crangasi, Nr. 140, Sector 6, Bucuresti |
||
| 162. |
Scoala Gimnaziala Grigore Tocilescu - Bucuresti
0214231140 Str. Grigore Tocilescu, Nr. 20, sector 5 |
||
| 163. |
Colegiul Tehnic Petru Maior - Bucuresti
0736627798 Bd. Timisoara, Nr. 6, Sector 6 |
||
| 164. |
Dimitrie Leonida, Colegiul Tehnic - Bucuresti
0213243294; 0213243295; 0213243293; 0213246902 Bd. Basarabia, Nr. 47, Sector 2, Bucuresti |
||
| 165. |
Allyna - After School, Bucuresti
0724017926 Str. Cornisei, Nr.23, sector 2 |
||
| 166. |
Magia Copilariei - After-school Bucuresti
0761912892 Strada Nucului, Nr. 55, Sector 3 |
||
| 167. |
Benjamin Franklin, Liceu teoretic - Bucuresti
0213244890; 0213243010 Str. Pictor Gh. Tattarescu, Nr. 1, sector 3, Bucuresti |
||
| 168. |
Ghelmez Petre, Scoala gimnaziala Nr. 58 - Bucuresti
0213245135 Str. Pescarusului, Nr. 124, Sector 2, Bucuresti |
||
| 169. |
Scoala Generala nr. 84 Nicolae Balcescu - Bucuresti
0213216391 Calea Vitan, Nr. 135, sector 3 |
||
| 170. |
Orizont, Scoala Gimnaziala Nr. 193 - Bucuresti
0214132355 Str. Mihaela Ruxandra Marcu, Nr. 3, Sector 6, Bucuresti |
||
| 171. |
Scoala Gimnaziala Nr. 178 - Bucuresti
0216670335 Str. Dridu, Nr. 2, Sector 1, Bucuresti |
||
| vezi mai multe | |||
| 1. |
Dabeef - Restaurant Bucuresti
0739835658 Calea Floreasca, Nr. 111-113, Sector 1 |
||
| 2. |
E3 by Entourage - Restaurant Bucuresti
0734966889 Calea Floreasca, Nr. 111-113, Sector 1 |
||
| 3. |
Ciorbe si Placinte - Restaurant cu specific romanesc, Bucuresti
0755993070 B-dul Iancu de Hunedoara, Nr. 64, sector 1 |
||
| 4. |
Trafalgar Pub - Bucuresti
0212113151; 0766625805 David Emanuel , Nr. 4A, Sector 1, Bucuresti |
||
| 5. |
Die Deutsche Kneipe - Restaurant cu specific german
0722284560 Str. Stockholm, nr. 9, sector 1, |
||
| 6. |
Ciorbarie - Restaurant cu supe si ciorbe, Bucuresti
0785610628 Calea Dorobanti, Nr. 73, sector 1 |
||
| 7. |
Capital Plaza, Hotel si Restaurant - Bucuresti
0372080050; 0372080081 Bd.Iancu de Hunedoara, Nr. 54, Sector 1, Bucuresti |
||
| 8. |
Japanos - Restaurant cu specific japonez, Bucuresti
0771621192 Calea Dorobantilor, nr. 116-122, spatiul comercial nr. 3, parter, sector 1 |
||
| 9. |
Nicolai To Go - Bistro Bucuresti
0741600006 Calea Dorobantilor, Nr. 67, sector 1 |
||
| 10. |
Capital Plaza, Hotel si Restaurant - Bucuresti
0372080080; Fax: 0372080081 Bd. Iancu de Hunedoara, Nr. 54, Sector 1, Bucuresti |
||
| 11. |
Trattoria Mezzaluna - Restaurant specific italian Bucuresti
0729591469 Calea Dorobanti, Nr. 63, sector 1 |
||
| 12. |
Restaurant Sole - Bucuresti
0722587589 Bd. Iancu de Hunedoara, Nr. 48, etaj 15, sector 1 |
||
| 13. |
Gradina Eden - Terasa Bucuresti
0722185368 Calea Dorobanti, Nr. 44-46 sector 1 |
||
| 14. |
Bacania Veche - Bistro si pravalie Bucuresti
0752202103; 0212101222 Barbu Vacarescu, Nr. 49, sector 2 |
||
| 15. |
La Finca by Alioli - Restaurant Bucuresti
0767150500 Str. Caderea Bastiliei, Nr. 78, Sector 1, |
||
| 16. |
Dorobanti 140, Cofetarie - Bucuresti
0723500025 Calea Dorobantilor, Nr.140,Sector 1, Bucuresti |
||
| 17. |
Marshal Garden, Restaurant - Bucuresti
0213194444; 0213194445; 0758105310 Calea Dorobantilor, Nr. 50 B, Sector 1, Bucuresti |
||
| 18. |
Cannoleria - Cafenea Bucuresti
0753325071 Str.Cornescu, Nr. 4, sector 1, |
||
| 19. |
Acuarela Bufet - Bucuresti
0745662889; 0741403238; 0721483051 Polona, Nr. 40,Sector 1, Bucuresti |
||
| 20. |
Ganesha Caffe & Garden - Bucuresti
0764263742 Str. Barbu Vacarescu, nr. 71, sector 2, |
||
| 21. |
The Canteen - Restaurant Bucuresti
0735517630 Str. Barbu Vacarescu, Nr. 44, Bl. 7 Sector 2 |
||
| 22. |
Skybar - Bucuresti
0724759227 Calea Dorobanti, Nr. 155, Etaj 5, sector 1 |
||
| 23. |
Decadence - Bar & Restaurant
0741828489 Strada Constantin Daniel, nr. 11, sector 1 |
||
| 24. |
Friddi - Gelaterie, Bucuresti
0314313295 Str. Vasile Alecsandri, Nr. 4, sector 1 |
||
| 25. |
Domino\'s Pizza - Bucuresti
0736500200 Bd. Iancu de Hunedoara, Nr. 38, Sector 1 , Bucuresti |
||
| 26. |
Torna Fratre Restaurant - Bucuresti
0212103557; 0784111890 Tunari, Nr. 34, Sector 2, Bucuresti |
||
| 27. |
Domino\'s Pizza, Fast food - Bucuresti
0736500200 Bd. Iancu de Hunedoara, nr. 38, sector 1 , Bucuresti |
||
| 28. |
Game On - Restaurant Bucuresti
0745055137 Calea Floreasca, Nr. 91-111, sector 1 |
||
| 29. |
Ceramic Cafe - Bucuresti
0774007364 I.C. Visarion, Nr 20, sector 1 |
||
| 30. |
Panik & Pub - Pub, Bucuresti
0728264360 Str. Mihai Eminescu, Nr. 33 |
||
| 31. |
Maison des Crepes - Clatitarie Bucuresti
0770802524 Strada Mihai Eminescu, Nr. 38, Sector 2 |
||
| 32. |
Amareto, Cofetarie - Bucuresti
0736659592; 0723830104; 0723830104 whatsapp Sos. Stefan cel Mare , Nr. 36, Sector 2 (vis-a-vis de Circul Metropolitan Bucuresti), Bucuresti |
||
| 33. |
VacaMuuu - Restaurant si bacanie Bucuresti
0731351135 Calea Floreasca, Nr. 111, sector 1 |
||
| 34. |
VacaMuuu - Restaurant cu specific american, Bucuresti
0731351135 Calea Floreasca, Nr.111, sector 1 |
||
| 35. |
Sara, Restaurant si Bacanie - Bucuresti
0749770770 Calea Floreasca, Nr. 111-113, Sector 2, Bucuresti |
||
| 36. |
Aphrodisia - Ceainarie Bucuresti
0788129291 Intrarea Tudor Stefan, nr. 39, sector 1 |
||
| 37. |
Animaletto Pizza Bar - Bucuresti
0755019098 Strada Visarion, Nr 10, sector 1 |
||
| 38. |
Mon Cheri, Restaurant - Bucuresti
0748750029; 0771693817; 0212310908 Tudor Stefan, Nr. 16 (langa P-ta Dorobanti), sector 1, Bucuresti |
||
| 39. |
Shiva Coffee&Tea - Cafenea Bucuresti
0748874482 Strada Mihai Eminescu, Nr. 73, sector 2 |
||
| 40. |
VINO - Bar de vinuri, Bucuresti
0799944999 Strada Mihai Eminescu, Nr. 71 |
||
| 41. |
La Impinge Tava - Bucuresti
0721150452 Str. Mihai Eminescu, Nr. 73, Sector 2 |
||
| 42. |
Dolce Principessa Cofetarie - Bucuresti
0212115155; 0735213101 Calea Dorobanti, nr. 50A, sector 1, Bucuresti |
||
| 43. |
Blue Margarita - Restaurant cu specific mexican Bucuresti
0770944822 Strada Povernei, Nr. 15-17, sector 1 |
||
| 44. |
Pata Negra - Restaurant cu specific spaniol, Bucuresti
0734349076 Strada Washington, Nr 11, sector 1 |
||
| 45. |
BistroMar - Restaurant pescaresc, Bucuresti
0740085088 Strada Banul Antonache, Nr. 55-27, sector 1 |
||
| 46. |
Benihana - Restaurant cu specific japonez
0751169889 Calea Dorobantilor, Nr. 5-7 Hotel Howard Johnson, sector 1, |
||
| 47. |
La Cantine de Nicolai, Restaurant - Bucuresti
0725210608 Povernei, Nr. 15-17, Sector 1, Bucresti |
||
| 48. |
Pizza Hut - Bucuresti
0740121901 Calea Dorobantilor , Nr. 5-7, Sector 1 , Bucuresti |
||
| 49. |
Geste - Cofetarie Bucuresti
0730743783 Strada Dobrota, Nr. 16, Sector 2 |
||
| 50. |
Rekolta - Restaurant, Bucuresti
0721334564 Calea Floreasca, Nr. 102, sector 1 |
||
| 51. |
Pasterra - Restaurant cu mancare specifica din Abruzzo, Bucuresti
0751222668 strada Comandor Eugen Botez, Nr. 27, sector 2 |
||
| 52. |
Pot Stories - Restaurant, Bucuresti
0753348248 Calea Floreasca, nr. 111-113, sector 1 |
||
| 53. |
Ceai la Vlaicu - Ceainarie Bucuresti
0727609699 Str. Aurel Vlaicu, Nr. 47, sector 2 |
||
| 54. |
Grano - Restaurant cu specific italian, Bucuresti
0212312386 Strada Putul lui Zamfir, Nr. 40, sector 1 |
||
| 55. |
Veranda Casa Frumoasa - Restaurant Bucuresti
0733735932 Str. Clopotarii Vechi, Nr. 5, sector 1 |
||
| 56. |
Tasting Room by Ethic Wine - Restaurant Bucuresti
0754993953 Putul lui Zamfir, Nr. 64, sector 1 |
||
| 57. |
Yoshi Sushi & Teppanyaky - Restaurant japonez Bucuresti
0314290280; 0749979521 Str. Banu Antonache, Nr. 40-44, sector 1 |
||
| 58. |
Boema 33 - Restaurant, Bucuresti
0722295463 Bd. Dacia, nr. 33, sector 1 (Piata Romana) |
||
| 59. |
Casa Oamenilor de Stiinta - Restaurant, Bucuresti
0726664227; 0722926012; 0769293579 P-ta Lahovari, nr. 9, Sector 1 |
||
| 60. |
Templul Soarelui, Restaurant chinezesc - Bucuresti
0212111693; 0723743878 Vasile Lascar, Nr. 205, Sector 2, Bucuresti |
||
| 61. |
Mozzafiato - Restaurant Bucuresti
0741190190 Calea Floreasca, Nr. 133-137, Sector 1 |
||
| 62. |
Gabbiano - Restaurant cu specific italian Bucuresti
0757115272 Str. Banul Antonache, Nr. 40-44, sector 1 |
||
| 63. |
Nan Jing, Restaurant chinezesc - Bucuresti
0213181285; 0726103407 G-ral Gheorghe Manu, Nr. 2-4 (Hotel Minerva), Sector 1, Bucuresti |
||
| 64. |
Tuk Tuk - Restaurant cu specific thailandez, Bucuresti
0311099670;0741422489 Putul lui Zamfir, nr. 15, sector 1 |
||
| 65. |
Templul Soarelui, Restaurant chinezesc - Bucuresti
0212111693; 0723743878 Vasile Lascar, Nr. 205, Sector 2, Bucuresti |
||
| 66. |
Cofetaria Casandra - Bucuresti
0757252466 B-dul. Magheru, Nr. 32-36, Sector 1 |
||
| 67. |
Lolita - Boutique de dulciuri Bucuresti
0757013453 Strada Vasile Lascar, Nr. 212, sector 2 |
||
| 68. |
Delicii Gelato - Gelaterie artizanala Bucuresti
0721632019 Str. Constantin Aricescu, Nr. 65, sector 1 |
||
| 69. |
Ciccio - Pizzerie Bucuresti
0745515510 Strada Henri Coanda, Nr. 28 sector 1 |
||
| 70. |
Mon Paris Restaurant & Lounge - Restaurant cu specific european, Bucuresti
0799973783 Bd Dacia, Nr. 62, sector 2 |
||
| 71. |
Ici et La - Restaurant cu specific francez Bucuresti
0731453608 Strada Domnita Ruxandra, Nr. 7, Sector 2 |
||
| 72. |
Shift Pub - Bucuresti
0212112272 Str. General Eremia Grigorescu, Nr.17 |
||
| 73. |
Sara Green - Restaurant vegan, Bucuresti
0774962246;0765191076 Bulevardul Lascar Catargiu, Nr 43, Sector 1 |
||
| 74. |
Ana Cofetarie Bucuresti
0212300436; 0735554986 Lt. Av. Radu Beller, Nr. 6 Sector 1, Bucuresti |
||
| 75. |
Maccheroni - Restaurant Bucuresti
0722259360 Str. George Calinescu, Nr. 51, Sector 1, |
||
| 76. |
Kanpai Bistro, Restaurant japonez si catering - Bucuresti
0755526724; 0371184961 George Calinescu, Nr.49, Sector 1, Bucuresti |
||
| 77. |
KFC Romana, Fast Food - Bucuresti
0740121904 Bd. G-ral Gh. Magheru , Nr. 28-30, Sector 1 , Bucuresti |
||
| 78. |
White Horse Pub & Restaurant - Bucuresti
0212312795; Fax.0212302151 George Calinescu , Nr. 4A, Sector 1 , Bucuresti |
||
| 79. |
White Horse Pub & Restaurant - Bucuresti
0212312795 George Calinescu , Nr. 4A, Sector 1, Bucuresti |
||
| 80. |
Zen Sushi - Restaurant japonez, Bucuresti
0722161718 Str. George Calinescu, nr. 15, Sector 1 |
||
| 81. |
Donerboom - Fast food Bucuresti
0749043440 Str.Barbu Vacarescu, Nr. 102, Sector 2, |
||
| 82. |
City Grill Restaurant - Bucuresti
0722446766; 0724599886 Bulevardul Lascar Catargiu, Nr. 56, Sector 1, Bucuresti |
||
| 83. |
Trattoria Buongiorno - Restaurant cu specific italian, Bucuresti
0722446766 Bdul. Lascar Catargiu, Nr. 56, sector 1 |
||
| 84. |
Pasticceria Giuseppina Cofetarie - Bucuresti
0730283947 Soseaua Stefan cel Mare, Nr.46, Sector 2, Bucuresti |
||
| 85. |
Lente - Restaurant pentru mic dejun si brunch, Bucuresti
0314107585 Dionisie Lupu, Nr 78, sector 1 |
||
| 86. |
Point Hub - Hub Cultural, Bucuresti
0748291815 Str. General Eremia Grigorescu, nr. 10, sector 1, |
||
| 87. |
Tonka Soul Café - Bucuresti
0371445255 Biserica Amzei , Nr. 19, Sector 1, Bucuresti |
||
| 88. |
Biscotto - Cofetarie Bucuresti
0212314099 Strada Nicolae Constantinescu, Nr. 8, Sector 1 |
||
| 89. |
Barrio - Restaurant & bar, Bucuresti
0733222777 Biserica Amzei, Nr. 30, sector 1 |
||
| 90. |
Bistro La Taifas, Restaurant - Bucuresti
0212127788; 0723197156 Gheorghe Manu, Nr. 16, Sector 1, Bucuresti |
||
| 91. |
Nuba Cafe - Restaurant pentru mic dejun si brunch, Bucuresti
0736300000 Street Locotenent Aviator Radu Beller, Nr. 13, sector 1 |
||
| 92. |
Moritz Eis - Gelaterie Bucuresti
0722363122 Strada Frederic Chopin, Nr. 10-12, Sector 2 |
||
| 93. |
Circus Pub - Restaurant cu burgeri, Bucuresti
0725180680 Bulevardul Lacul Tei, Nr 65, sector 2 |
||
| 94. |
Camera din fata - Ceainaria Bucuresti
0213111512 Str. Mendeleev, Nr. 22, sector 1, langa Piata Amzei |
||
| 95. |
Za Lokal - Restaurant pentru mic dejun si brunch, Bucuresti
0770557931 Calea Victoriei, Nr 214, sector 1 |
||
| 96. |
Ambasador, Restaurant - Hotel Ambasador, Bucuresti
0213159080 Bd. G-ral Ghe. Magheru, Nr. 8-10, Sector 1, Bucuresti |
||
| 97. |
5ENSI by BeanZ Cafe - Bucuresti
0733888555 Bd. Aviatorilor, Nr. 8A, sector 1, Bucuresti |
||
| 98. |
Nido Kitchen & Wine - Restaurant cu specific international, Bucuresti
0374004488 Aleea Alexandru, Nr. 35 |
||
| 99. |
Refresh - Restaurant Bucuresti
0771189347 Strada Johann Sebastian Bach, Nr. 3, sector 2 |
||
| 100. |
The Artist Restaurant - Bucuresti
0728318871 Calea Victoriei, Nr.147, sector 1 |
||
| 101. |
Springtime, Restaurant - Bucuresti
0742224736; 0742224743; 0742224739 Piata Victoriei, Bl. A6 Sector 1, Bucuresti |
||
| 102. |
La Copac - Carciuma de jupani, Bucuresti
0722704445 str. Pitar Mos, nr. 23, sector 1 |
||
| 103. |
Coclinta Brasserie- Restaurant cu specific romanesc, Bucuresti
0770238774 Calea Victoriei, Nr. 153, sector 1 |
||
| 104. |
Gelato Mio - Magazin de inghetata Bucuresti
0765799379; 0720044495; 0744555599 Str. Polona, Nr. 76, sector 1 |
||
| 105. |
La Taifas, Restaurant - Bucuresti
0212127788; 0723197156 Gheorghe Manu, Nr. 16, sector 1 , Bucuresti |
||
| 106. |
Journey Pub - Bucuresti
0752285286 Strada George Enescu, Nr. 25, sector 1 |
||
| 107. |
Restaurant Home - Bucatarie internationala, Bucuresti
0722509794; 0728708216; 0729811130 Str. Alexandru Xenopol, Nr. 1 (zona Gradina Icoanei), Sector 1, Bucuresti |
||
| 108. |
M60 - Cafenea Bucuresti
0314100010 Strada Mendeleev, Nr 2, sector 1 |
||
| 109. |
Coolinart - Gastropub Bucuresti
0772017955 Calea Victoriei, Nr. 142-148, sector 1 |
||
| 110. |
Red Angus Steakhouse - Restaurant Bucuresti
0756600000 Piata Amzei, Nr. 10-22Sector 1, |
||
| 111. |
Trattoria Don Vito - Restaurant Bucuresti
0733333021 Str. Mendeleev, Nr. 1, Sector 1 |
||
| 112. |
Lugo - Restaurant cu specific mediteranean, Bucuresti
0785238910 George Enescu, Nr. 23, sector 1 |
||
| 113. |
Cafe Verona - Cafenea Bucuresti
0732003060 Str. Arthur Verona, Nr. 13, sector 1, |
||
| 114. |
Salon Golescu - Bar specializat in cocktailuri, Bucuresti
0314360338 Strada Nicolae Golescu, Nr 17, sector 1 |
||
| 115. |
Mercato Kultur - Restaurant cu specific international, Bucuresti
0759134767 Gheorghe Demetriade, nr. 6-10, Aviatorilor, sector 1 |
||
| 116. |
El Pato - Restaurant Bucuresti
0730344810; 0311072033 Strada Dionisie Lupu, Nr. 48, sector 1 |
||
| 117. |
La Baraca - Bar & Grill Bucuresti
0758986045 Str. Pargarilor, Nr. 17bis, sector 2 |
||
| 118. |
Pizzicato, Pizzerie si catering - Bucuresti
0212111213 Strada Icoanei, Nr. 2, Sector 2, Bucuresti |
||
| 119. |
B4 Market - Restaurant pentru mic dejun si brunch Bucuresti
0724588591 Strada Locotenent Aviator Radu Beller, Nr. 54, sector 1 |
||
| 120. |
Casual Pub - Restaurant Bucuresti
0770841212 Bd. Dacia, Nr. 104, Sector 2 |
||
| 121. |
Bar A1 - Bucuresti
0770901409 Piata Amzei, Nr 1, sector 1 |
||
| 122. |
Sweetology - Gelaterie, Bucuresti
0734444889 Calea Victoriei, Nr. 122, sector 1 |
||
| 123. |
Fast Food Eminescu - Bucuresti
0723161166 Str. Mihai Eminescu, nr 137, sector 2 |
||
| 124. |
La Taifas, Bistro - Bucuresti
0723197156; 0212127788 Mihail Moxa, Nr. 12, Sector 1 , Bucuresti |
||
| 125. |
China Town Restaurant - Bucuresti
0726130138; 0788671161; Tel/Fax:0212120239 Viitorului, Nr. 98, Sector 2, Bucuresti |
||
| 126. |
Velocita - Gelaterie, Bucuresti
0739889189 Calea Victoriei, Nr. 122, sector 1 |
||
| 127. |
Fika18 - Croissanterie, Bucuresti
0770663982 Calea Victoriei, Nr. 101, sector 1 |
||
| 128. |
Unico Vero - Restaurant cu specific italian, Bucuresti
0212123338;0758110265 Strada Viitorului, Nr. 8, sector 2 |
||
| 129. |
Ambasador, Bar si Restaurant - Bucuresti
0213159080; Fax 0213123595 Bd. G-ral Gh. Magheru, Nr. 8-10, Sector 1, Bucuresti |
||
| 130. |
Wine Ambassador - Bar de vinuri, Bucuresti
0733182037 Intrarea Biserica Alba, nr.1, sector 1 |
||
| 131. |
La Cena - Restaurant cu specific italian, Bucuresti
0212116717;0730210014 Maria Rosetti, Nr. 1, sector 2 |
||
| 132. |
CAJU by Joseph Hadad - Braserie, Bucuresti
0751144545 Nicolae Golescu, Nr. 16, sector 1 |
||
| 133. |
Savart - Arta savorilor Gourmet, Bucuresti
0743575757 Str. George Enescu, Nr. 2-4, sector 1 |
||
| 134. |
Terminus - Pub, Bucuresti
0730222555 Str. George Enescu, nr. 5, sector 1, |
||
| 135. |
Chocolat Ateneu - Boutique restaurant cu livrare de prajituri in Bucuresti
0743777807; 0744507506 Strada Episcopiei, Nr. 6, Sector 1, Bucuresti |
||
| 136. |
Gusto e Passione - Gelateria Artigianale, Bucuresti
0755555453 Calea Victoriei, Nr. 87, sector 1 |
||
| 137. |
Primus Pub - Bucuresti
0732222666 George Enescu, Nr. 3, sector 1 |
||
| 138. |
Gelato D\'Amore - Magazin de inghetata Bucuresti
0771727627 Strada Maria Rosetti, Nr. 13, Sector 2 |
||
| 139. |
French Bakery, Cofetarie - Bucuresti
0213114518 Benjamin Franklin, Nr. 9, Sector 1, Bucuresti |
||
| 140. |
Creamier - Cafenea Bucuresti
0741234567 Strada Benjamin Franklin, Nr. 5, Sector 1 |
||
| 141. |
Suento - Restaurant cu specific european modern, Bucuresti
0787605362 Strada Toamnei, Nr. 101, sector 2 |
||
| 142. |
Miss Ale - Espresso Bar, Bucuresti
0371394059 Calea Victoriei, Nr. 100, sector 1 |
||
| 143. |
Luna Cafe & Bistro - Bucuresti
0771609431; 0771211246 Str. Viitorului, Nr. 32, sector 2, |
||
| 144. |
Newton Bar, Bucuresti
0770718303; 0213150217 Jean Louis Calderon, Nr. 56 (Universitate), Sector 2, Bucuresti |
||
| 145. |
Fadel - Patiserie Bucuresti
0786309530; 0722919132 Strada Jean Louis Calderon, Nr. 56, Sector 2 |
||
| 146. |
KALI - Restaurant cu bufet, Bucuresti
0725988889 Strada Buzesti, Nr. 71, Sector 1 |
||
| 147. |
Fayn Urban Eatery - Restaurant, Bucuresti
0723257692 Strada Buzesti, nr. 71, sector 1 |
||
| 148. |
Athénée Palace Hilton,Cafenea,Baruri - Bucuresti
0213033777; 0213152121; Fax: 0213152121 Episcopiei, Nr. 1-3, Sector 1 , Bucuresti |
||
| 149. |
Rocca by The Jar - Gastropub Bucuresti
0770857841 Str. Pictor Theodor Aman, Nr. 36, sector 1 |
||
| 150. |
Refill - Bistro cu specific international, Bucuresti
0786372856 Bulevardul Mihalache, Nr. 12, sector 1 |
||
| 151. |
ChefBox - Restaurant, Bucuresti
0728800528 Buzesti, Nr. 57-59, sector 1 |
||
| 152. |
Coppa - Bar cu vinuri si cafea, Bucuresti
0741594545; 0756080004 Bd. Nicolae Titulescu, nr. 3, sector 1 |
||
| 153. |
Trattoria Verdi, Restaurant italian - Bucuresti
0212225098 ; 0731333411 Bd. Aviatorilor, Nr. 19, Sector 1, Bucuresti |
||
| 154. |
Casa Doina, Restaurant - Bucuresti
0745009009; 0212226717; 0212223179 Soseaua Pavel D. Kiseleff, Nr. 4, Sector 1, Bucuresti |
||
| 155. |
Sweet by MarVio - Cofetarie Bucuresti
0212105291 Soseaua Stefan cel Mare, Nr 31, sector 2 |
||
| 156. |
Casa Doina, Restaurant - Bucuresti
0212226717; 0745009009 Soseaua. Kiseleff , Nr. 4, Sector 1, Bucuresti |
||
| 157. |
PengYou - Restaurant specific chinezesc Bucuresti
0787748272 Str. Occidenului, Nr. 11, Sector 1 |
||
| 158. |
Old Kitchen - Restaurant Bucuresti
0732773537 Str. Sfintii Voievozi, Nr. 13, Sector 1 |
||
| 159. |
Bomb Doner Kebap - Restaurant fast-food, Bucuresti
0727771549 Strada Lizeanu, Nr. 5, sector 2 |
||
| 160. |
Osteria Zucca - Restaurant cu specific italian, Bucuresti
0770287979; 0314206814 Jean-Louis Calderon, Nr. 41, Sector 2, Bucuresti |
||
| 161. |
J\'ai Bistrot - Gastropub, Bucuresti
0790229922 Calea Grivitei, nr. 55, sector 1 |
||
| 162. |
Hambar Brasserie - Bucuresti
0212226422;0787896547 Aviatorilor, nr. 31, sector 1 |
||
| 163. |
Paninaro - Restaurant pentru mic dejun si brunch
0771783619 Strada Luterana, Nr 3, sector 1 |
||
| 164. |
QP Pub - Bucuresti
0736405451 Str. General David Praporgescu, Nr. 13, sector 2 |
||
| 165. |
Angeline Cake Boutique - Cofetarie, Bucuresti
0753652144 Str. Doctor Iacob Felix, Nr. 59, Sector 1 |
||
| 166. |
Black Habit - Cafenea
0770357382 Calea Grivitei, Nr. 77, sector 1 |
||
| 167. |
Claus, Cofetarie Bucuresti
0212220218; 0721264900 Bd. Banu Manta, Nr. 21A, Sector 1, Bucuresti |
||
| 168. |
Nicoresti, Restaurant - Bucuresti
0212112480; 0724290550 Toamnei, Nr. 13 (colt cu Maria Rosetti nr. 40), Sector 2, Bucuresti |
||
| 169. |
Imperial Turkish Cuisine & Steakhouse- Restaurant Bucuresti
0720102222 Strada Jean Louis Calderon, Nr. 33, Sector 2 |
||
| 170. |
Cofetaria Lush - Bucuresti
0720976019?; 0721605303 Soseaua Stefan cel Mare, Nr. 226, bloc.44, parter, sector 2 |
||
| 171. |
Il Destino, Restaurant italian - Bucuresti
0212103039; 0758836278; 0744318094 (Pentru evenimente) Silvestru, Nr. 67, Sector 2, Bucuresti |
||
| 172. |
Beautyfood - Bistro, Bucuresti
0759030609 Jean Louis Calderon, Nr. 34, sector 2 |
||
| 173. |
Ciao Niki - Restaurant cu specific italian, Bucuresti
0734356217;0756044805 Strada Bocsa, Nr 4, sector 2 |
||
| 174. |
Naser 2 - Restaurant traditional libanez Bucuresti
0799997111 Str. Maica Domnului, Nr. 5B, Sector 2 |
||
| 175. |
Arome - Restaurant vegetarian/vegan, Bucuresti
0749109639 Luigi Cazzavillan, Nr. 25, sector 1 |
||
| 176. |
Casa Jienilor, Restaurant - Bucuresti
0735994994; 0722916111 Str. Fainari, nr. 5, sector 2, |
||
| 177. |
Mio Cuisine - Restaurant & Home Delivery, Bucuresti
0743287437 Pictor Barbu Iscovescu, Nr. 19 ,Sector 1, Bucuresti |
||
| 178. |
Pain Plaisir - Patiserie Bucuresti
0745645555 Strada Barbu Delavrancea, Nr. 1, sector 1 Pain Plaisir Kiseleff |
||
| 179. |
Caro, Restaurant - Bucuresti
0212086128; 0212086100; 0212086196 Barbu Vacarescu, Nr. 164A, Sector 2, Bucuresti |
||
| 180. |
Haveli, Restaurant - Bucuresti
0212110390; 0721721640 Episcopul Radu, Nr. 3, Sector 2, Bucuresti |
||
| 181. |
Casa Victor, hotel si Restaurant - Bucuresti
0212225723; 0733953910 Emanoil Porumbaru, Nr. 44, Sector 1 , Bucuresti |
||
| 182. |
The Soup Carousel - Restaurant cu supe si ciorbe, Bucuresti
0725356907 Sos. Nicolae Titulescu, Nr. 12, sector 1 |
||
| 183. |
BEAT bar umanist - Bar, Bucuresti
0720854187 Vasile Lascar, Nr. 29, sector 2 |
||
| 184. |
Zeppelin Pub - Bucuresti
0722170024 Strada Marin Serghiescu, Nr. 7, sector 2 |
||
| 185. |
Restaurant Ceaun
0756090680 Strada Maica Domnului, Nr. 54-56, sector 2 |
||
| 186. |
Armand, Cofetarie - Bucuresti
0310051187; 0741276263 Armand Calinescu , Nr. 25, Sector 2, Bucuresti |
||
| 187. |
Blunch Bistro - Restaurant, Bucuresti
0736898990 Mihai Eminescu, Nr.181, sector 2 |
||
| 188. |
Bone - Restaurant Bucuresti
0733198200 Calea Floreasca, Nr. 198, sector 1 |
||
| 189. |
Bohemia Tea House, Ceainarie - Bucuresti
0727333631 Poiana Narciselor, Nr. 1 (vizavi de Conservator), Sector 1, Bucuresti |
||
| 190. |
Mr. Cigkofte - Restaurant fast-food, Bucuresti
0720802181 Nicolae Balcescu, Nr. 18, sector 1 |
||
| 191. |
Zexe Braserie - Bucuresti
0786778777 B-dul Aviatorilor, Nr. 65, Sector 1 |
||
| 192. |
Bolta Rece Restaurant - Bucuresti
0212227258; 0722527077 Popa Savu, Nr. 53-55, Sector 1, Bucuresti |
||
| 193. |
Bistro raw vegan, Restaurant - Bucuresti
0726605501 Transilvaniei, Nr. 11, Sector 1, Bucuresti |
||
| 194. |
Gradina Urbana - Restaurant cu specific american, Bucuresti
0745250077 Strada Batistei, Nr. 14, sector 2 |
||
| 195. |
Excalibur, Restaurant - Bucuresti
0730190364; Tel Fax: 0213145670 Academiei, Nr. 39-41, Sector 1 , Bucuresti |
||
| 196. |
Zen Garden - Restaurant cu specific chinezesc, Bucuresti
0745102272 Strada Silvestru, Nr. 3, sector 2 |
||
| 197. |
Bolta Rece, Restaurant, Terasa - Bucuresti
0212227258; 0722527077 Popa Savu, Nr..53- 55, Sector 1, Bucuresti |
||
| 198. |
Bellini Garden - Restaurant cu specific italian, Bucuresti
0722100111; 0314278776 str. General Henri Mathias Berthelot, nr. 44, sector 1 |
||
| 199. |
Tropicana, Restaurant - Bucuresti
0724614723 (Niculae Adrian); 0724571502 (Niculae Valentina) Grigore Ionescu, Nr 94, Sector 2, Bucuresti |
||
| 200. |
DolciConi - Gelaterie Bucuresti
0753762549 Vasile Lascar, Nr 26-28, sector 2 |
||
| 201. |
Frufru, Fresh, natural, yummy , Fast food - Bucuresti
0212221111; 0765346715 Batistei , Nr. 1-3, Sector 2, Bucuresti |
||
| 202. |
Bellini Pizza - Bucuresti
0314278776 General Henri Matias Berthelot, Nr. 44,Sector 1, Bucuresti |
||
| 203. |
Boutique Du Pain - Restaurant cu specific francez, Bucuresti
0728443300 Academiei, Nr. 28-30, sector 1 |
||
| 204. |
SupaDupa - Restaurant cu supe si ciorbe, Bucuresti
0739344281 Strada Popa Tatu, Nr. 94, sector 1 |
||
| 205. |
The Mark - Restaurant pub Bucuresti
0758505500 Calea Grivitei, Nr. 84-98, sector 1 |
||
| 206. |
Refugiu - Restaurant Bucuresti
0763478438;0727626981 Strada Otesani, Nr 73 , Sector 2 |
||
| 207. |
La Gafe - Restaurant traditional Bucuresti
0721389446 Str Dorin Pavel, Nr 1, sector 2 |
||
| 208. |
Calderon 18 - Restaurant cu terasa, Bucuresti
0731886789 Str. Jean Louis Calderon, Nr.18, sector 2, |
||
| 209. |
Casa Jienilor Fainari, Restaurant - Bucuresti
0212121951; 0735994994 Fainari, Nr. 5, Sector 2, Bucuresti |
||
| 210. |
Bistro Fum de Vorbe - Restaurant Bucuresti
0748628830; 0723686292 Vasile Lascar, Nr. 24, Sectorul 2 |
||
| 211. |
AVA Bistro - Restaurant si catering, Bucuresti
0770888222 Strada Dorin Pavel, Nr. 15, sector 2 |
||
| 212. |
Angelo Grasso - Restaurant cu specific italian, Bucuresti
0739955555 Strada Tudor Arghezi, 12-16, sector 2 |
||
| 213. |
Casa Jienilor, Restaurant - Bucuresti
0212121951; 0722916111; Fax 0212121951 Fainari, N. 5, Sector 2, Bucuresti |
||
| 214. |
Gambino\'s Pizza - Bucuresti
0731707070; 0725271471; 0310050209 Vasile Lascar, Nr.24, Sector 2, Bucuresti |
||
| 215. |
Casa Jienilor, Restaurant - Bucuresti
0212121951; 0722916111 Fainari, Nr. 5, Sector 2, Bucuresti |
||
| 216. |
Le Bab - Restaurant cu specific oriental, Bucuresti
0743179555 Charles de Gaulle, Nr. 3, sector 3-1, |
||
| 217. |
Kane - Noua bucatarie romaneasca fina
0314100016 Str. Dianei, nr. 9 (Piata Rosetti), sector 2 |
||
| 218. |
Seneca Anticafe - Cafenea, Bucuresti
0720331100 Strada Arhitect Ion Mincu, nr. 1, sector 1 |
||
| 219. |
Prajituri de Casa - Cofetarie Bucuresti
0751135153 Calea Mosilor, Nr. 225, sector 2 |
||
| 220. |
Edo Sushi - Restaurant cu specific japonez, Bucuresti
0735111095 Stirbei Voda, Nr 84A, sector 1 |
||
| 221. |
Fatafit - Restaurant cu specific libanez, Bucuresti
0760445555 Calea Mosilor, Nr. 225, Sector 2 |
||
| 222. |
Nice Touch - Restaurant cu meniu international, Bucuresti
0771568361 Strada Sperantei, nr.7, sector 2 |
||
| 223. |
La Matache Restaurant (comenzi online si livrari la domiciliu)
0213107327; 0213107337; 0213118888 P-ta. Dr. Haralambie Botescu, Nr. 2, Sector 1, Bucuresti |
||
| 224. |
FoodVibe - Serviciu de livrare mancare
0371333222 Strada Sperantei, nr. 7, sector 2 |
||
| 225. |
OPUS TNB - Bar specializat in cocktailuri
0771595407 Bulevardul Nicolae Balcescu, Nr. 2, sector 1 |
||
| 226. |
Club Floreasca, Restaurant - Bucuresti
0213198177; 0755085967; Fax 0212307979 Mircea Eliade, Nr. 1, Sector 1, Bucuresti |
||
| 227. |
Fior di Latte - Restaurant cu specific italian, Bucuresti
0784420555 Bulevardul Primaverii, Nr. 19-21 |
||
| 228. |
Osho - Restaurant cu fripturi, Bucuresti
0758758750 Bulevardul Primaverii, Nr. 19-21, sector 1 |
||
| 229. |
Neopolis Family Pizza - Bucuresti
0734895330; 0770995973 Gheorghe Titeica, Nr. 101, Sector 2 |
||
| 230. |
Poesia - Restaurant cu specific mediteranean, Bucuresti
0744502000 Bulevardul Aviatorilor, Nr. 76, sector 1 |
||
| 231. |
La Samuelle - Restaurant cu specific international, Bucuresti
0730173180 Piata Charles de Gaulle, Nr. 3-5, Sector 1 |
||
| 232. |
Club Floreasca Restaurant - Bucuresti
0213198177; 0755085967; Fax 0212307979 Mircea Eliade, Nr. 1, Sector 1, Bucuresti |
||
| 233. |
Hatz Burger Studio - Restaurant cu burgeri
0770920018 Soseaua Stefan cel Mare, Nr. 240, Bl. 59A, Sector 2 |
||
| 234. |
Pandoras Food - Restaurant fast-food Bucuresti
0760102012 Strada Gheorghe Titeica, Nr. 138, Sector 2 |
||
| 235. |
Colosseum Pizza - Bucuresti
0721243613; 0213131860; 0213121020 Calea Victoriei, Nr. 48-50 (Pasajul Victoria), Sector 1, Bucuresti |
||
| 236. |
Tip Top, Cofetarii - Bucuresti
0212422414 Soseaua Colentina, Nr. 2, Sector 2 (magazinul Bucur-Obor), Bucuresti |
||
| 237. |
La Ciurucuri - Restaurant cu specific international, Bucuresti
0752850850 Piata Valter Maracineanu, Nr 1-3, sector 1 |
||
| 238. |
Tulin, Restaurant libanez - Bucuresti
0213144001; 0762212675 Pictor Constantin Stahi, Nr. 2, Sector 1, Bucuresti |
||
| 239. |
Restaurant Burebista Traditional - Bucuresti
0755041484; 0212109704 Calea Mosilor, Nr 195, sector 2 |
||
| 240. |
The Owl Cocktail House - Bar specializat in cocktailuri, Bucuresti
0743260923 str. Stirbei Voda, Nr. 104-106, sector 1 |
||
| 241. |
Grivita - Pub&Grill, Bucuresti
0724748482 Calea Grivita, Nr. 130 (Parter Eurohotels), |
||
| 242. |
Buoni e Bravi - Pizzerie, Bucuresti
0735215224 Piata C. A. Rosetti, nr. 3, sector 2 |
||
| 243. |
Colosseum, Restaurant - Bucuresti
0721243613; 0213131860; 0219689 Calea Victoriei , Nr. 48-50 (Pasajul Victoria), sector 1, Bucuresti |
||
| 244. |
Trattoria Soleto - Restaurant cu specific italian
0734382419 Soseaua Colentina, nr. 1, sector 2 |
||
| 245. |
Ivy - Cafenea, Bucuresti
0755210748 Bulevardul Carol I, Nr. 23, sector 2 |
||
| 246. |
Don Daniel Pizza
0737444999; 0766771117; Tel/Fax: 0212225034 Bd. Ion Mihalache, Nr. 60, Sector 1, Bucuresti |
||
| 247. |
Monte Carlo Cismigiu, Restaurant - Bucuresti
0213131344 Parc Cismigiu, Sector 1, Bucuresti |
||
| 248. |
Piccolo Mondo, Restaurant - Bucuresti
0722205020; 0212225755 Clucerului, Nr. 9, Sector 1 , Bucuresti |
||
| 249. |
Piccolo Mondo, Restaurant - Bucuresti
0722205020; 0212225755 Clucerului , Nr. 9, Sector 1 , Bucuresti |
||
| 250. |
Monte Carlo Cismigiu, Restaurant - Bucuresti
0213131344 Parcul Cismigiu, Parcul Cismigiu, Sector 1 , Bucuresti |
||
| 251. |
Wicked Bar - Bucuresti
0722615188; 0723574895 Strada Spatarului, Nr. 4, Sector 2, Bucuresti |
||
| 252. |
Legere - Bar, Bucuresti
0730534373 Piata Rosetti, nr 5, sector 2 |
||
| 253. |
Ramada Majestic, Hotel si Restaurant - Bucuresti
0213102715 Calea Victoriei, Nr. 38-40, Sector 1 , Bucuresti |
||
| 254. |
The President, Restaurant - Bucuresti
0720047541; 0760087384; 0766747379 Bd. Lacul Tei, nr. 145 (in Parcul Tei - pe malul lacului), Sector 2, Bucuresti |
||
| 255. |
The Old Sibiu - Restaurant evenimente Bucuresti
0723602560; 0723637769; 0721172390 Str. Ion Otetelesanu,, Nr. 3A-3B, Sector 1 |
||
| 256. |
Time Out Cafe - Bar & Cafenea Bucuresti
0744644400 Strada Olari, Nr. 7, sector 2 , |
||
| 257. |
La Cristi - Fast Food si catering, Bucuresti
0729266850 Strada Frosa Sarandy, Nr. 17, Sector 1 |
||
| 258. |
Fratelli Social Club - Bucuresti
0722115115; 0730878300 Goldeni, Nr. 1-3, Sector 2, Bucuresti |
||
| 259. |
The Place Pub - Pub, Bucuresti
0743951281 Mr. Alexandru Campeanu, nr.36, sector 1 |
||
| 260. |
Capitol Hotel si Restaurant - Bucuresti
0213158030; 0317107007 Calea Victoriei , Nr. 29, Sector 1 , Bucuresti |
||
| 261. |
El Torito, Restaurant - Bucuresti
0212526688; 0728176059 Iancu Capitanu , Nr. 30, Sector 2, Bucuresti |
||
| 262. |
Casa Ede - Restaurant & Beauty - Barber Salon Bucuresti
0772019516 Strada Armeneasca, Nr. 8, sector 2 |
||
| 263. |
Capsa Cofetarie Bucuresti
0213134038; 0213135999 Calea Victoriei, Nr. 36, Sector 1, Bucuresti |
||
| 264. |
Divan, Restaurant - Bucuresti
0316404450 Barbu Vacarescu, Nr.241A, Sector 1, Bucuresti |
||
| 265. |
Willy\'s Coffee Art - Bucuresti
0769911077 Bulevardul Carol I, Nr 62, sector 2, |
||
| 266. |
Casa Capsa, Restaurant - Bucuresti
0213134038; Fax: 0213135999 Calea Victoriei, Nr. 36, Sector 1, Bucuresti |
||
| 267. |
Banjo Jack - Restaurant cu burgeri, Bucuresti
0770653341 Strada Iancu Capitanu, Nr 26, sector 2 |
||
| 268. |
EXPRESS Food & Drink - Restaurant fast-food, Bucuresti
0732669922 Bd. CAROL I, Nr. 62, Sector 2 |
||
| 269. |
Terasa Florilor - Restaurant cu terasa, Bucuresti
0755097931 Str. Ion Maiorescu, nr. 42, sector 2 |
||
| 270. |
Gradina Olari - Terasa, Bucuresti
0770147410 Strada Olari, nr.8, Sector 2 |
||
| 271. |
Brigitte - Cofetarie Bucuresti
0727891345; 0745779722 str. Cristea Mateescu, Nr.77, Sector 2 |
||
| 272. |
Sarazin - Carol Fast food Bucuresti
0787625505 Bulevardul Carol I, Nr. 66, Sector 2, |
||
| 273. |
Mesogios, Restaurant - Bucuresti
0722200232 Helesteului, Nr. 30, Sector 1, Bucuresti |
||
| 274. |
Rawyal brunch & cakes - Bucuresti
0730777221 Calea Mosilor, Nr 105, Sector 2 |
||
| 275. |
Ublo Bistro - Bucuresti
0743447476 Clucerului, Nr. 54, sector 1 |
||
| 276. |
Cercul Militar National, Restaurant - Bucuresti
0213143735; 0213149551; Fax: 0372874921 Constantin Mille, Nr.1-3, Sector 1, Bucuresti |
||
| 277. |
Dancing Lobster - Restaurant cu specific portughez, Bucuresti
0770690886 Str. Glodeni, Nr . 3 Cladirea C22, Sector 2, Bucuresti |
||
| 278. |
The Pub - Bucuresti
0728843782 Bulevardul Regina Elisabeta, Nr. 9, sector 3 |
||
| 279. |
Bragageria Bogdania - Bistro, Bucuresti
0787877985 Str. Olari, Nr. 20, Sector 2 |
||
| 280. |
Restaurant La Teu - Bucuresti
0723642022 Strada Titu Maiorescu, Nr.18, sector 2 |
||
| 281. |
Buenasado SteakHouse - Restaurant Bucuresti
0747865210 Strada Glodeni, Nr. 3, sector 2 |
||
| 282. |
Saint Gelato - Gelaterie Bucuresti
0745205405 Bulevardul Regina Elisabeta, Nr. 26, Sector 3 |
||
| 283. |
Jos Palaria Cafe - Bucuresti
0314321029 Toma Caragiu , Nr. 3, Sector 3 , Bucuresti |
||
| 284. |
Hashtag Pub - Bucuresti
0771555444 Soseaua Mihai Bravu, Nr 32, sector 2 |
||
| 285. |
Zexe Restaurant romanesc - Bucuresti
0722210844 Oltetului, Nr. 30, Sector 2, Bucuresti |
||
| 286. |
Papila Kitchen - Restaurant, Bucuresti
0753087799 Strada Sfintilor, Nr 6, sector 2 |
||
| 287. |
Gastronomika - Restaurant cu specific international, Bucuresti
0737940512 Str. Ion Neculce, Nr. 63, Sector 1 |
||
| 288. |
Mantuleasa 40 - Restaurant Bucuresti
0754045450; 0751133141 Str. Mantuleasa, Nr. 40, sector 2 |
||
| 289. |
Kuma Bar - Bucuresti
0766440936 Strada Coltei, Nr. 50, sector 3 |
||
| 290. |
Pizza Hut - Bucuresti
0740121903 Bd. Regina Elisabeta, nr. 15-19, sector 3 , |
||
| 291. |
Karishma, Restaurant indian - Bucuresti
0212525157; 0737519953 Iancu Capitanu, Nr. 36, Sector 2, Bucuresti |
||
| 292. |
Surubelnita - Club, Bucuresti
0768743593 Str. Calea Mosilor, nr. 100, sector 2 |
||
| 293. |
Jadoo Restaurant - Bucuresti
0724365583; 0212220502 Nicolae Racota, Nr. 3, Sector 1, Bucuresti |
||
| 294. |
Elisabeta, Restaurant - Bucuresti
0727703703; 0724323132 Bd. Regina Elisabeta, Nr. 45, Sector, Bucuresti |
||
| 295. |
Jadoo Restaurant - Bucuresti
0212220502; 0724365583 Nicolae Racota, Nr. 3, Sector 1, Bucuresti |
||
| 296. |
Joy House - Restaurant Bucuresti
0730443232 Str. Teiul Doamnei, Nr. 9A, Sector 2 |
||
| 297. |
DA Giulio - Pizzerie, Bucuresti
0212420385 Colentina, Nr. 23 A, sector 2 |
||
| 298. |
Casa Veche - Restaurant, Ramnicu Valcea
0747875045 ; 0748702238; 0350418155 Stirbei Voda, Nr.162, Ramnicu Valcea, judetul Vilcea |
||
| 299. |
Bistro Cafe Carbon 14 - Bucuresti
0790408777 Str. Dimitrie Racovita, Nr. 18, Sector 2 |
||
| 300. |
Beirut Restaurant - Bucuresti
0722302320; Tel/Fax: 0212220169 Nicolae Racota, Nr. 3A, Sector 1, Bucuresti |
||
| 301. |
Leonidas Cofetarie - Bucuresti
0740014695; 0213141377 Doamnei, Nr. 27 , Sector 3, Bucuresti |
||
| 302. |
Aria Gourmet Burger - Fast food Bucuresti
0773778860; 0773778860 Strada Slanic, Nr. 2, Sector 3 |
||
| 303. |
Sabatini Pizza - Bucuresti
0770227880; 0766606637; 0731876441 Teiul Doamnei, Nr. 15, Sector 2, Bucuresti |
||
| 304. |
Sabatini Pizza - Bucuresti
0212428725; 0731876441; 0766606637 Teiul Doamnei , Nr 15, Sector 2, Bucuresti |
||
| 305. |
Noa Restoclub - Restaurant Bucuresti
0799747557 Calea Victoriei, Nr 26 Sector 3 |
||
| 306. |
Rowa Garden - Locatie pentru spectacole si evenimente
0766666600 Parc Herastrau, |
||
| 307. |
Lloyds Pub - Bucuresti
0723133786 Str. Coltei, Nr. 16, Sector 3 |
||
| 308. |
Barocco Bar - Bucuresti
0755028028; 0740114132 Domnita Anastasia, Nr.10 (In spatele McDonalds Regina Elsiabeta), Bucuresti |
||
| 309. |
Hygge - Restaurant Bucuresti
0771114875 Calea Victoriei, Nr. 21, sector 3 |
||
| 310. |
Simbio - Restaurant Bucuresti
0756746246 Str Negustori, nr. 26, sector 2 |
||
| 311. |
So! Coffee, Cafenea - Bucuresti
0372285718; 0314078250 Piata Garii de Nord, Nr.1-5 (In fata peroanelor 4-5), Sector 1, Bucuresti |
||
| 312. |
Valea Regilor - Cafenea, Bucuresti
0213112969 Calea Victoriei, 16-20, Centrul Vechi, sector 3 |
||
| 313. |
SwitchEat - Restaurant cu burgeri Bucuresti
0726023881 Strada Horei, Nr 34, sector 2 ( la doi pasi de Foisorul de Foc) |
||
| 314. |
Vilacrosse, Bistro, Restaurant - Bucuresti
0728358304; 0744796894 Eugeniu Carada, Nr. 7, Sector 3, Bucuresti |
||
| 315. |
Q Marttinez - Restaurant cu specific european, Bucuresti
0725682944 Eugeniu Carada, Nr. 7, sector 3 |
||
| 316. |
GinOteca - Bar, Bucuresti
0751446446 Strada Plantelor, Nr. 25, sector 2 |
||
| 317. |
Hugo Bar - Cafenea cu narghilele, Bucuresti
0732397953 Calea Victoriei, 16-18-20, sector 3 |
||
| 318. |
Bemolle Cafe - Bucuresti
0213118382; 0723188953 Calea Victoriei , Nr.16-18-20 (Pasaj Villacrosse), Sector 3, Bucuresti |
||
| 319. |
WHYS - Bar, Bucuresti
0785059173 Pasajul Macca-Villacrosse, sector 3 |
||
| 320. |
Vilacrosse, Restaurant Cafe Bistro - Bucuresti
0728358304 Str. Eugen Carada, nr. 7, sector 3, |
||
| 321. |
Energiea - Pub Bucuresti
0736374432 Str. Actor Ion Brezoianu, Nr. 4, Sector 5 |
||
| 322. |
Paine si Vin - Bar cu vinuri, Bucuresti
0755028448 Str. Actor Ion Brezoianu, Nr. 4, sector 5 |
||
| 323. |
Origo Coffee Shop - Bucuresti
0757086689 Lipscani, Nr. 9,Sector 3, Bucuresti |
||
| 324. |
Posh Birt Select - Pub, Bucuresti
0724004376 Strada Plantelor, Nr. 26, sector 2 |
||
| 325. |
Laur Express Food - Restaurant fast-food, Bucuresti
0732455089 Bulevardul Ferdinand I, Nr. 60, sector 2 |
||
| 326. |
Pekin, Restaurant chinezesc - Bucuresti
0213103160; 0723233169; 0769414020 Calea Victoriei, Nr. 16-20, pasaj Villa Cross, Sector 3, Bucuresti |
||
| 327. |
Linea - Closer To The Moon, Bucuresti
0757824298 Calea Victoriei, nr. 17, sector 3 |
||
| 328. |
Scovergaria Micai - Patiserie, cofetarie Bucuresti
0314253670 Calea Victoriei, Nr. 14 colt cu Lipscani 19, sector 3 |
||
| 329. |
Le Boutique Food Concept Store - Bucuresti
0722538274; 0314380044 Str. Sfantul Stefan, Nr. 13, sector 2 |
||
| 330. |
Chong Qing - Restaurant cu specific chinezesc, Bucuresti
0212525095; 0731383952 B-dul Pache Protopopescu, Nr.28, sector 2 |
||
| 331. |
Thors Hammer - Bar Bucuresti
0729176724 Str Blanari, Nr. 12, sector 3 |
||
| 332. |
Argentin - Restaurant Bucuresti
0774462430; 0774462431 Strada Blanari, Nr. 11-15, Sector 3 |
||
| 333. |
Saray - Restaurant cu specific turcesc, Bucuresti
0733135834 Lipscani, Nr. 21, sector 3 |
||
| 334. |
Jack Pot - Bar specializat in cocktailuri, Bucuresti
0372916947; 0770776777 Zborului, nr. 2, sector 3 |
||
| 335. |
The Drunken Lords - Pub, Bucuresti
0736238815 Intr. Selari, Nr. 3-5, sector 3 |
||
| 336. |
Tag Aperitivo Bar - Bucuresti
0721888522 Strada Lipscani, nr. 27, sector 3 |
||
| 337. |
Times Cocktail Bar - Pub, Bucuresti
0731032330 Intrarea Nicolae Selari, nr.1,sector 3, |
||
| 338. |
Ana Pan Cofetarie - Bucuresti
0216373536; 0730262726; 0212332241 Stirbei Voda, Nr. 166,Sector 1, Bucuresti |
||
| 339. |
Miss Ale - Bar specializat in cocktailuri
0745089700 Constantin F Robescu, Nr 2, sector 3 |
||
| 340. |
SanThe Fitoceainarie - Ceainarie, Bucuresti
0730370290 Lipscani, nr 104, sector 3, |
||
| 341. |
Coftale Coffee Shop - Cafenea, Bucuresti
0746420874 Strada Profesor Stefan Mihaileanu, Nr.42, sector 2 |
||
| 342. |
Latin Pizza - Pizzerie, Bucuresti
0751896358 Bulevardul Ion C. Bratianu, Nr. 34, sector 3 |
||
| 343. |
Gilda Music Lounge - Restaurant club Bucuresti
0786770941 Strada Lipscani, Nr. 53, sector 3 |
||
| 344. |
Artist Cafe - Cafenea Bucuresti
0756777577 Str. Lipscani, Nr. 30-34, sector 3 |
||
| 345. |
Mao Pub - Bucuresti
0771305995 Str. Lipscani, Nr. 69, Sector 3 |
||
| 346. |
Caru\' cu Bere, Restaurant - Bucuresti
0213137560; 0726cubere; 0726282373 Stavropoleos , Nr. 3-5, Sector 3, Bucuresti |
||
| 347. |
Velveto Ballrooms - Centru pentru evenimente Bucuresti
0752182255; 0734810385; 0764118347 Str. Oltetului, Nr. 30, sector 2 |
||
| 348. |
Xclusive Pub - Bar & Grill, Bucuresti
0723166463 Str. Lipscani, nr. 36, sector 3 |
||
| 349. |
Vanilla, Cofetarie - Bucuresti
0733058058 Mihai Bravu, Nr. 47, Parter, Sector 2, Bucuresti |
||
| 350. |
Krishna Caffe - Cafenea Bucuresti
0729745988;0740133254 Bd. Mihail Kogalniceanu, Nr. 17, sector 5, |
||
| 351. |
Old Habits - Club de noapte si de dans
0728776699 Strada Lipscani, Nr. 38, sector 3 |
||
| 352. |
Extra Time - Pub Bucuresti
0732166605 Strada Lipscani, Nr. 82A, sector 3 |
||
| 353. |
La Giuggiola - Gelateria artizanala italiana Bucuresti
0770107183 Bulevardul Pache Protopopescu, Nr. 57, Sector 2 |
||
| 354. |
Pizza PPH - Pizza si catering, Bucuresti
0319441 Str. Lirei, Nr. 13, sector 2 |
||
| 355. |
Pizzeria La Coco - Bucuresti
0731744444 Str. Gabroveni, Nr. 31, Sector 3 |
||
| 356. |
Hard Rock Cafe Bucharest
0212066261; 0754400900 Sos. Kiseleff, Nr. 32C, Sector 1, Bucuresti |
||
| 357. |
UAU Il Gelato - Gelaterie Bucuresti
0723135015 Str. Gabroveni, Nr. 1-3, sector 3, |
||
| 358. |
Pescarus, Restaurant - Bucuresti
0731330034; 0731491849 Aleea Pescarus, Parcul Herastrau), Sector 1 , Bucuresti |
||
| 359. |
Pescarus, Restaurant - Bucuresti
0731330034; 0731491849 Aleea Pescarus (Parcul Herastrau), Sector 1 , Bucuresti |
||
| 360. |
Robescu 14 - Bar specializat in cocktailuri
0773741922 Strada Robescu F. Constantin, Nr. 14, sector 3 |
||
| 361. |
Patrick Irish Pub & Restaurant - Bucuresti
0213130336; 0314360112; 0755110008 Smardan, Nr. 23-25, sector 3, Bucuresti |
||
| 362. |
Gyros Thessalonikis
0770302148 Strada Gabroveni, Nr. 2,sector 3 |
||
| 363. |
Naive - Restaurant cu bar, Bucuresti
0725550333 Bd. I.C. Bratianu, Nr. 36, sector 3 |
||
| 364. |
Noua - Restaurant cu specific romanesc, Bucuresti
0217943294 Strada Popa Nan, Nr. 7, sector 2 |
||
| 365. |
Trattoria Della Nonna - Restaurant cu specific italian, Bucuresti
0771697503 Strada Popa Nan, Nr. 5, sector 2 |
||
| 366. |
No10 - Restaurant cu specific italian
0741210003 Strada Austrului, Nr. 10, sector 2 |
||
| 367. |
Bere si Bere - Pub, bere craft si muzica rock
0723280040 Str. Gabroveni, Nr. 4, sector 3 |
||
| 368. |
St. Patrick Irish Pub - Berarie & Sports Bar
0772272420 Str. Smardan, nr. 23-25, sector 3, Bucuresti |
||
| 369. |
Kiosque des Douceurs - Cofetarie Bucuresti
0758090763 Str. Selari, Nr. 3, Sector. 3, Centrul Vechi |
||
| 370. |
Paque Bistro - Restaurant cu bar, Bucuresti
0722330607 Bulevardul Pache Protopopescu, nr.60, sector 2 |
||
| 371. |
Manasia Hub - Bar Bucuresti
0736760063 Str. Stelea Spatarul, Nr. 13, sector 3 |
||
| 372. |
Taverna Racilor - Restaurant pescaresc Bucuresti
0729825528 Parc Herastrau, Nr. 2, sector 1, |
||
| 373. |
Cuptorul cu Lemne - Restaurant pizzerie Bucuresti
0219363 Bd. Pache Protopopescu, Nr 65, sector 2 |
||
| 374. |
Cuptorul cu Lemne, Pizza - Bucuresti
021.9363; 0212524493; (021) 9363 - tasta 0 Bd. Pache Protopopescu, Nr. 63, Sector 2, Bucuresti |
||
| 375. |
Urban Bistro - Restaurant cu fripturi, Bucuresti
0769918510 Strada Piata Sfantu Stefan, Nr 6, sector 2 |
||
| 376. |
Mojo Music Club - Bucuresti
0737220220 Gabroveni, Nr.14, Sector 3, Bucuresti |
||
| 377. |
Aubergine Healthy Food - Restaurant cu mancare sanatoasa, Bucuresti
0213137548 (Smardan); 0771358661 (Aviatorilor) Strada Smardan, Nr 33, sector 3, Bucuresti |
||
| 378. |
Taverna Covaci - Restaurant cu specific romanesc, Bucuresti
0747226677 Str. Covaci, Nr. 1, sector 3 |
||
| 379. |
iDracula - Restaurant tematic, Bucuresti
0753476142;0752559457 Str. Selari, Nr. 10-12, Centrul Vechi, sector 3 |
||
| 380. |
Bruno Wine Bar - Bar cu vinuri, Bucuresti
0751220229 Strada Covaci, Nr. 3, Centrul Vechi |
||
| 381. |
La 100 de Beri - Bar specializat in bere, Bucuresti
0733282598 Str. Gabroveni, Nr.61, sector 3 |
||
| 382. |
Sinners - Pub, Bucuresti
0737343210 Covaci, nr.2 , Centrul Vechi, sector 3 |
||
| 383. |
Storage Room - Bar, Bucuresti
0732363712 Strada Smardan, Nr. 35, sector 3 |
||
| 384. |
Les Bourgeois - Bucuresti
0720132994; 0213106052 Smardan, Nr. 20, Sector 3, Bucuresti |
||
| 385. |
Boulevard Pub - Bucuresti
0753966961 Strada Covaci, Nr. 4, sector 3 |
||
| 386. |
Distrikt 42 - Restaurant Bucuresti
0213156699 Str. Sfantul Dumitru, Nr. 3, sector 3 |
||
| 387. |
Sweet Sophie - Cofetarie
0748309063 Strada Popa Nan, Nr. 22, sector 2 |
||
| 388. |
Curtea Berarilor, Bar & Grill - Bucuresti
0213137532; 0735861682 (Radu); 0735861681 (Sorina) Selari, Nr. 9-11,Sector 3 (Zona Lipscani), Bucuresti |
||
| 389. |
Freddo Pub - Club de noapte si de dans, Bucuresti
0722373336 Str Smardan, nr 24, sector 3, |
||
| 390. |
Old School, Restaurant - Bucuresti
0744105445; 0745110362 Calea Plevnei, Nr. 61, Sector 6, Bucuresti |
||
| 391. |
Naser - Restaurant specific libanez Bucuresti
0799980001; 0799980002; 0213135060 Str. Fluierului, Nr. 18, sector 2 (colt cu Str. Matasari, in spatele PRO TV) |
||
| 392. |
Fire Club Pub - Bucuresti
0732166604 Covaci, Nr. 7, Sector 3, Bucuresti |
||
| 393. |
1974 Niste Domni si Fii - Bar Restaurant Bucuresti
0721551099; 0723629306 Covaci, Nr. 7, Sector 3, Bucuresti |
||
| 394. |
Burger si Scoici - Restaurant cu burgeri Bucuresti
0753300333 Strada Smardan, Nr. 41, Sector 3 |
||
| 395. |
Mezze, Restaurant libanez - Bucuresti
0213116633; 0720044469 Mircea Vulcanescu, Nr.153 B,Sector 1 , Bucuresti |
||
| 396. |
Zaitoone - Restaurant cu specific libanez, Bucuresti
0737299900;0376203741;0376203742 Strada Nicolae Caramfil, Nr.2, sector 1 |
||
| 397. |
Arcade Cafe - Bucuresti
0722777674 Smardan, Nr.30, (Centrul vechi), Sector 4, Bucuresti |
||
| 398. |
Bodega La Mahala - Restaurant Bucuresti
0732166606 Covaci, Nr. 8, Sector 3 |
||
| 399. |
Level Up - Restaurant raw vegan, Bucuresti
0721085582 Str Sf. Vineri, Nr 10, sector 3 |
||
| 400. |
Curtea Berarilor, Restaurant terasa - Bucuresti
0213137532 Selari, Nr.9-11, sector 3, Bucuresti |
||
| 401. |
Private Hell - Club, Bucuresti
0757508336 Str. Soarelui, nr. 5, Sector 3 |
||
| 402. |
Sale Dolce, Restaurant - Bucuresti
0736858430; 0735123687 Matei Voievod, Nr. 20, Sector 2, Bucuresti |
||
| 403. |
Bazaar - Restaurant Bucuresti
0721999999 Strada Covaci, Nr. 10, sector 3 |
||
| 404. |
Industry Wine Bar- Bar cu vinuri, Bucuresti
0722777222 str. Sepcari, Nr. 19, sector 3 |
||
| 405. |
Il Peccato, Restaurant - Bucuresti
0213116767; 0765301300 Franceza, Nr. 30,Sector 3, Bucuresti |
||
| 406. |
Nomad Skybar - Restaurant, bar, club, Bucuresti
0735448080 Strada Smardan, Nr 30, sector 3 |
||
| 407. |
Borsalino - Pizzerie Bucuresti
0729954911; 0729954912 Bulevardul Ion C. Bratianu, Nr. 44, Sector 3 |
||
| 408. |
Lacrimi si Sfinti, Restaurant - Bucuresti
0725558286; 0372773999 Sepcari, Nr.16 (Centrul Vechi) Sector 3, Bucuresti |
||
| 409. |
Green Tea Ceainarie - Bucuresti
0213209396; 0749090202 Dr. Burghelea, Nr. 24, Sector 2, Bucuresti |
||
| 410. |
Shoteria - Shotbar, Bucuresti
0721203039; 0372916947 Strada Selari, Nr. 17, sector 3 |
||
| 411. |
Delicii Libaneze - Gelaterie, cofetarie, ciocolaterie Bucuresti
0725115811 Str. Franceza, Nr. 13, sector 3 |
||
| 412. |
Borgo Stagioni - Restaurant Bucuresti
0732163287; 0722220223 Calea Calarasi, Nr. 78, Sector 3 |
||
| 413. |
Bistro HB - Restaurant Bucuresti
0735011736; 0735011735; 0735011737 Strada Matasari, Nr. 49 Sector2 |
||
| 414. |
Calif - Restaurant fast-food, Bucuresti
0756200325 Selari, Nr. 19, sector 3, |
||
| 415. |
Anika - Restaurant cu specific romanesc Bucuresti
0726400148 Str. Pictor Nicolae Tonitza, Nr.10, sector 3 |
||
| 416. |
Belli Siciliani - Restaurant autentic sicilian, Bucuresti
0799090601 Str. Matasari, Nr. 47, sevtor 2, |
||
| 417. |
Kilkenny Irish Pub - Bucuresti
0751041110 Str Franceza, Nr. 46-48, sector 3 |
||
| 418. |
Godai - Restaurant cu specific asiatic fusion, Bucuresti
0786030888; 0785300555 Str.Fabrica de Glucoza, nr. 7, sector 2 |
||
| 419. |
Encore Club - Bar specializat in bere
0786247745 Nicolae Tonitza, nr. 13, sector 3 |
||
| 420. |
Velluto - Gelaterie, Bucuresti
0728991969 Splaiul Independentei, Nr 2J, sector 3 |
||
| 421. |
Nabu - Bar Bucuresti
0787407043 Pache Protopopescu, Nr. 97, sector 2 |
||
| 422. |
Hanul lui Manuc, Restaurant - Bucuresti
0730188653; 0213122811; 0769075844 Franceza , Nr. 62-64, Sector 3 , Bucuresti |
||
| 423. |
Sublimmme - Restaurant vegetarian/vegan, Bucuresti
0771135605 Splaiul Independentei, NR 2F, sector 3 |
||
| 424. |
Efendi Doner - Restaurant fast-food, Bucuresti
0730578472 Str. Selari, nr. 2, sector 3 |
||
| 425. |
Mica Elvetie Restaurant
0212245017 Franceza, Nr. 60-62, Sector 3, Bucuresti |
||
| 426. |
Hanul lui Manuc, Restaurant si Cafenea - Bucuresti
0213131411; 0769075844; 0730188653 Franceza, Nr. 62-64, Sector 3 , Bucuresti |
||
| 427. |
Big Ben - Pub cu specific britanic, Bucuresti
0756110089 Str. Franceza, nr. 52, sector 3 |
||
| 428. |
Triana - Cofetarie, Bucuresti
0740302404 Soseaua Orhideelor, Nr. 46, sector 1 |
||
| 429. |
Fabio Pizza - Bucuresti
0372188330 Turda, Nr. 117, Sector 1, Bucuresti |
||
| 430. |
Mica Elvetie Restaurant - Bucuresti
0212245017 Franceza, Nr. 60-62, Sector 3, Bucuresti |
||
| 431. |
Hanul lui Manuc, Restaurant - Bucuresti
0213131411; 0769075844; 0730188653 Franceza, Nr. 62-64, Sector 3, Bucuresti |
||
| 432. |
The Urbanist - Bar specializat in cocktailuri, Bucuresti
0741392558 Strada Caldarari, Nr. 3, sector 3 |
||
| 433. |
Zoomserie - Cofetarie Bucuresti
0751222265 Sf. Vineri, Nr. 23, sector 3, intersectia Coposu (Calarasilor), |
||
| 434. |
Burger Peter - Restaurant cu burgeri Bucuresti
0799981031 Strada Popa Nan, Nr. 48, sector 2 |
||
| 435. |
Politica si Delicateturi Bucuresti - Restaurant cu specific romanesc
0785516681 Str. Prof. Dr. Mihail Georgescu, Nr. 24, sector 2 |
||
| 436. |
Emozia coffee manifesto - Cafenea, Bucuresti
0742023590;0726201527 Strada Halelor, nr. 17, sector 3 |
||
| 437. |
Cofetaria Madlene - Bucuresti
0753223222 Str. Traian, Nr.103, sector 2 |
||
| 438. |
Time to Lunch
0763200900 Strada Patriei, Nr 4, sector 3 |
||
| 439. |
Nor Sky Casual Restaurant - Bucuresti
0310056056 Barbu Vacarescu, Nr. 201, Sector 2, Bucuresti |
||
| 440. |
Dulce a la Radu - Cofetarie
0726465690 Bucuresti, |
||
| 441. |
La Nenea Iancu - Restaurant cu specific romanesc, Bucuresti
0745140786 Str. Romulus, nr. 55, sector 3 |
||
| 442. |
Bucatarasul cel Dibaci - Restaurant cu specific romanesc, Bucuresti
0730340436;0760966360 Strada Olteni, Nr 3, sector 3 |
||
| 443. |
Hanul Berarilor Interbelic, Restaurant - Bucuresti
0213368009; 0729400800 Poenaru Bordea , Nr. 2, Sector 5, Bucuresti |
||
| 444. |
La Birlic - Terasa, Bucuresti
0722318168; 0752318168; 0212525151 Bulevardul Pache Protopopescu, Nr. 125, sector 2 |
||
| 445. |
Barfly Bucuresti
0727394131; 0721652899 Olteni , Nr. 3, Sector 3, Bucuresti |
||
| 446. |
McDonald\'s
0372701091 Piata Unirii 1, Unirea Shopping Center, Bucuresti |
||
| 447. |
Bocca Lupo - Restaurant cu specific italian, Bucuresti
0314050050 Strada Dr. Lister, nr. 1, sector 5 |
||
| 448. |
Fast Food Plevnei - Restaurant Fast Food Bucuresti
0761046444 Calea Plevnei, Nr. 230, sector 1 |
||
| 449. |
Vivo Fusion Food Bar - Restaurant cu specific american, Bucuresti
0787709154 Strada Calea Floreasca, numarul 246, cladirea Globalworth Tower, parter, sector 1 |
||
| 450. |
Amnezia Caffe - Bistrou romanesc Bucuresti
0770917737; 0724140931 Str. Sf. Apostoli, Nr. 21, sector 4, |
||
| 451. |
Bread & Spices - Restaurant pentru mic dejun si brunch
0770695416; 0314147777 Soseaua Pipera, Nr. 4, sector 1 |
||
| 452. |
Pasta Del Popolo - Restaurant cu specific italian, Bucuresti
0752010583 Zagazului, 21-25, sector 1 |
||
| 453. |
Seoul - Restaurant cu specific coreean Bucuresti
0216672119; 0725498366 Str. Lt. Av. Mircea Zorileanu, Nr. 89, sector 1 |
||
| 454. |
Restaurant La Senna - Bucuresti
0212333738; 0756199774 Bulevardul Nicolae Caramfil, Nr 33, sector 1 |
||
| 455. |
Isoletta, Restaurant - Bucuresti
0212322188; 0212323223 Sos. Nordului, Nr. 7-9, Sector 1, Bucuresti |
||
| 456. |
Modelier - Bistro, cocktails Bucuresti
0799630693 Strada Duzilor, Nr. 12, sector 2 |
||
| 457. |
Intermacedonia, Restaurant - Bucuresti
0212522010; 0212527331; 0212522190 Sos. Mihai Bravu, Nr.95-100, Sector 2 (P-ta Iancului) , Bucuresti |
||
| 458. |
Ergo - Restaurant vegan, Bucuresti
0770747559 Bd. Unirii, Nr 5, sector 4 |
||
| 459. |
Maria & Constance Cofetarie - Bucuresti
0212330360 ; 0787512520 Soseaua Pipera, Nr. 5, bl. 1E, Parter, Sector 1, Bucuresti |
||
| 460. |
BaKings - Cofetarie Bucuresti
0744642929 Strada Ilarie Chendi, Nr. 28, sector 2 |
||
| 461. |
Club Art Papillon Restaurant - Bucuresti
0212522520; 0732582278; 0722240930 Matei Voievod , Nr. 66A Sector 2, Bucuresti |
||
| 462. |
Chaya TeaHouse - Ceainarie Bucuresti
0755331000 Strada Radu Ceaus, Nr. 7, sector 3 |
||
| 463. |
Fabrica de mancare - Restaurant cu supe si ciorbe, Bucuresti
0744123123 B-dul Unirii, nr. 31, sector 3 |
||
| 464. |
Alceva - Restaurant, Bucuresti
0770844125 Matei Voievod, Nr. 79, sector 2, |
||
| 465. |
Murad - Cafe-Restaurant, Bucuresti
0725777000 Str. Panait Istrati, nr, 101, sector 1 |
||
| 466. |
Sugarography - Atelier de dulciuri Bucuresti
Bucuresti, |
||
| 467. |
Cofetaria Macarons - Bucuresti
0771425575 Bucuresti, |
||
| 468. |
The Gate, Restaurant si Cafenea Bucuresti
0728434283; 0314259425 Aleea Primo Nebiolo , Nr. 1, (vis-a-vis Agronomie), sector 1, Bucuresti |
||
| 469. |
Stadio Restaurant - Bucuresti
0733444800 Soseaua Nordului , Nr.7-9, Parcul Herastrau, Sector 1, Bucuresti |
||
| 470. |
Casa Mara, Restaurant evenimente - Bucuresti
0722675766; 0768793155 Primo Nebiolo , Nr.1, Sector 1, Bucuresti |
||
| 471. |
Kicen - Ciorbe de casa, Bucuresti
0751012221 str. Dr. Staicovici, nr. 43, sector 5 |
||
| 472. |
Stadio Park, Restaurant - Bucuresti
0733444800 Soseaua Nordului, Nr.7-9, Parcul Herastrau, Sector 1, Bucuresti |
||
| 473. |
Oktoberfest Pub - Bucuresti
0724333233 Popa Nan, Nr. 95, Sector 3, Bucuresti |
||
| 474. |
Dodo Pizza - Bucuresti
0760263636 Sos. Pipera, Nr. 44, Sector 1 |
||
| 475. |
Haute Pepper - Restaurant cu specific international, Bucuresti
0726284280 Bd. Unirii, nr 2, sector 4 |
||
| 476. |
Hangar by Ground Zero - Pub, Bucuresti
0742642749 Soseaua Pipera, Nr 44 |
||
| 477. |
The Clique Bistro - Restaurant cu specific international, Bucuresti
0784901000 Splaiul Unirii, sector 3 |
||
| 478. |
Vis a Vis - Restaurant Bucuresti
0722102223 Bd. I. C. Bratianu, |
||
| 479. |
Burgeria Cotroceni - Restaurant fast-food, Bucuresti
0314214777 Soseaua Cotroceni, Nr. 9, sector 6 |
||
| 480. |
Complex Herastrau, Restaurant - Bucuresti
0212322128 (Restaurant); 0786778800 (Evenimente); 0729080686 (Hotel) Soseaua Nordului , Nr. 7-9, Sector 1, Bucuresti |
||
| 481. |
Moon Brasserie - Restaurant Bucuresti
0723093170 Bulevardul Unirii, Nr. 33, sector 3 |
||
| 482. |
Turquoise Bakery - Bucuresti
0739037919 Str. Matei Voievod, nr.101, Sector 2 |
||
| 483. |
Coin Vert - Restaurant cu specific libanez, Bucuresti
0721331465; 0744518200 Str. Sandu Aldeea, nr. 75, sector 1 |
||
| 484. |
The Dock - Lounge, Bucuresti
0743680336 Bulevardul Unirii, nr. 30, sector 3 |
||
| 485. |
Get Naked by Bordello - Restaurant pentru mic dejun si brunch, Bucuresti
0748881086 Bd. Unirii, intre Bd Dimitrie Cantemir si Bd Mircea Voda |
||
| 486. |
JO Lounge - Bar, Bucuresti
0721811995 Bd. Unirii, sector 3 |
||
| 487. |
Tarta Ta - Delicii traditionale, Bucuresti
0771522117 Bulevardul Mircea Voda, Nr. 52, sector 3 |
||
| 488. |
#Aici - Bar, Bucuresti
0799124330 Bulevardul Unirii, Nr 35, Sector 3, Bucuresti |
||
| 489. |
Della Casa Pizza - Bucuresti
0721312666; 0746577383; 0768720228 Sos. Gherase, Nr. 96, (Zona Doamna Ghica) Sector 2, Bucuresti |
||
| 490. |
Dada Restaurant - Bucuresti
0729997405; 0724015800 Str. Matei Voievod , nr. 94bis, sector 2, |
||
| 491. |
Noeme - Restaurant Bucuresti
0721490270 Anton Pann, Nr. 29, sector 3 |
||
| 492. |
Berestroika - Beer Revolution - Bucuresti
0722560300; 0721100000; 0733200000 Aleea Cauzasi, Nr. 57, Sector 2, Bucuresti |
||
| 493. |
Lucky Point Pub
0742181263 Splaiul Independentei, 204,sect.6, Bucuresti |
||
| 494. |
Parliament, Restaurant - Bucuresti
0214119990; 0214119991; 0721332397 Izvor , Nr. 106, Sector 5 , Bucuresti |
||
| 495. |
Cherhanaua Ancora - Restaurant pescaresc, Bucuresti
0721335555 Soseaua Nordului, Nr. 7-9, sector 1 |
||
| 496. |
Parliament, Restaurant - Bucuresti
0214119990; 0214119991; 0721332397 Str. Izvor, Nr. 106, Sector 5 , Bucuresti |
||
| 497. |
Horoscop, Restaurant, Pizzerie - Bucuresti
0767562215 Bd.Dimitrie Cantemir, Nr 2, Sector 4, Bucuresti |
||
| 498. |
Nori Sushi - Restaurant cu specific japonez, Bucuresti
0771179714 Splaiul Unirii, nr 6, bl B3A, etaj 7-8 |
||
| 499. |
Victoria, Cofetarie Bucuresti
0212242033 Bd. Ion Mihalache, Nr. 233, Sector 1, Bucuresti |
||
| 500. |
Si-Lounge - Restaurant, Bucuresti
0799919911 Str. George Constantinescu, Nr 2-4, sector 2 |
||
| 501. |
Cristal - Cofetarie
0760090324 Str. Matei Voievod, nr. 108, sector 2 |
||
| 502. |
Jaristea, Restaurant - Bucuresti
0721961936 ; 0775609233 ; 0770948868 George Georgescu, Nr. 50-52, Sector 4, Bucuresti |
||
| 503. |
Restaurant Karta - Bucuresti
0744391111 Bd. Unirii, Nr. 22, sector 3 |
||
| 504. |
BOA, Beat of Angels Club - Bucuresti
0736300700 Soseaua Pavel D. Kiseleff , N.32, Sector 1, Bucuresti |
||
| 505. |
La petite bouffe - Cafenea, Bucuresti
0733669344 Strada Doctor Louis Pasteur, nr 38, sector 5 |
||
| 506. |
Alice, Cofetarie - Bucuresti
0744486465 Sos. Mihai Bravu, Nr. 123-135, Sector 2, (zona Piata Iancului - langa Sectia 8 de Politie), Bucuresti |
||
| 507. |
Maroon - Maroon Restaurant Cafe
0742420000; 0764900000 Bulevardul Unirii, Nr. 47 C, Sector 3 |
||
| 508. |
Beraria H, Restaurant - Bucuresti
0743345345; 0725345345 Soseaua Pavel D. Kiseleff, Nr.32, (Parc Herastrau, fostul Pavilion H), Sector 1, Bucuresti |
||
| 509. |
Pe Baricade
Radu Voda, nr. 23A, sector 4 |
||
| 510. |
Hong Kong - Restaurant chinezesc, Ilfov
0213107134; 0727834877 Calea Grivitei, nr. 81 (langa Biserica Sf. Voievozi), sector 1, , judetul Ilfov |
||
| 511. |
Delice Grill - Restaurant fast-food Bucuresti
0721112244 Soseaua Mihai Bravu, Nr 139-145, sector 2 |
||
| 512. |
Meadows - Restaurant & Events Bucuresti
0732302303 Kiseleff, Nr. 32, sector 1, in parcul Herastrau |
||
| 513. |
Jazz Book - Club de jazz si blues, Bucuresti
0752206746 Doctor Carol Davila, Nr. 1, Cotroceni, sector 5 |
||
| 514. |
La Mama - Restaurant Bucuresti
0721526262 Strada Delea Veche, Nr. 51, sector 2 |
||
| 515. |
Kvala - Restaurant grecesc, Bucuresti
0726731663 str Louis Pasteur, nr 63, sector 5 |
||
| 516. |
Krisperie - Restaurant fast-food, Bucuresti
0762888844 Strada Doamna Ghica, Nr. 235, sector 2 |
||
| 517. |
Derby Pub & Restaurant - Bucuresti
0214108545 Bd. Eroilor Sanitari , Nr. 49A,sector 5, Bucuresti |
||
| 518. |
La Ceaunu Crapat - Restaurant Bucuresti
0730614108; 0724744953 Bld. Pavel Dimitrievici Kiseleff, Nr. 32, sector 1 |
||
| 519. |
Herastrau, Restaurant - Bucuresti
0786042404; 0212322182 Soseau Nordului, Nr. 7-9, Sector 1, Bucuresti |
||
| 520. |
Koffeev - Cafenea, Bucuresti
0767195222 Bulevardul Unirii, Nr. 57, sector 3 |
||
| 521. |
Galletto Ristorante, Restaurant italian, catering - Bucuresti
0212112276; 0770407519 Soseaua Orhideelor, Nr.1 (podul nou Basarab,langa cladirile de birouri The Bridge, Sector 6, Bucuresti |
||
| 522. |
Trattoria Fresca - Restaurant cu specific italian, Bucuresti
0731333410 Str.Popa Nan, nr.140, Sector 2 |
||
| 523. |
14th Lane - Restaurant cu mancaruri fine, organizare evenimente, Bucuresti
0737776777 Sos. Orhideelor, Nr. 15D, sector 6, Bucuresti |
||
| 524. |
Graffiti Urban Food, Bucuresti
0749433433; 0733695443; 0769180180 Str.Carol Davila, Nr. 56A, Sector 5, Bucuresti |
||
| 525. |
Kunnai - Restaurant cu specific thailandez
0722687343; 0722687454 Strada Copilului, Nr. 6-12, sector 1 |
||
| 526. |
Player Club de noapte si de dans - Bucuresti
0720734734 Piata.Montreal, Nr.1, sector 1, Bucuresti |
||
| 527. |
Restaurant Grill Verdetei 5 - Restaurant cu preparate la gratar, Bucuresti
0766411338 Strada Verdetei, nr. 5, sector 3 |
||
| 528. |
Gran Gelato Italiano - Gelaterie Bucuresti
0730057909 Str. Radu Voda, Nr 28 A, Sector 4 |
||
| 529. |
Mandaloun - Restaurant specific libanez, Bucuresti
0314336557; 0747020469 Strada Nicolae G. Caramfil, Nr. 89, Sector 1 |
||
| 530. |
Bike Boutique and More - Magazin, terasa, service, Bucuresti
0752405152 Strada Profesor Doctor Victor Babes, Nr. 2, sector 5 |
||
| 531. |
Twillight Events - Restaurant, evenimente Bucuresti
0786386435 Strada Piata Montreal, Nr. 10, sector 1 |
||
| 532. |
La Coana Mare - Cofetarie Bucuresti
0771512035 Strada Magura Vulturului, Nr. 2, sector 2 |
||
| 533. |
Bistro Turturelelor - Restaurant, Bucuresti
0726310583; 0758887454 Strada Turturelelor, 11A, corpC, Parter, Sector 3 |
||
| 534. |
Trattoria Adagio - Restaurant cu specific italian Bucuresti
0311061067; 0751218482 Bd. Mircea Voda, Nr. 34, sector 3 |
||
| 535. |
Comics Club - Stand Up, Bucuresti
0741426426 Str. Nerva Traian, Numarul 4. sector 3 |
||
| 536. |
Cofetaria Zora - Bucuresti
0771119563 Strada Uranus, Nr. 100, Sector 5 |
||
| 537. |
Il Capo, Restaurant italian - Bucuresti
0314121121 Virgil Madgearu, Nr.11, Sector 1, Bucuresti |
||
| 538. |
Aristocrat Events Hall - Organizare evenimente - Bucuresti
0733880757; 0733880756 Soseaua Pipera, Nr. 48, Sector 2, Bucuresti |
||
| 539. |
18 Lounge - Restaurant cu specific european modern, Bucuresti
0312294675; 0738869093; 0312294675 Piata Presei Libere, Nr. 3-5, Sector 1 (City Gate - South Tower, et. 18), Bucuresti |
||
| 540. |
Casa Lefter - Restaurant Bucuresti
0723568402; 0743127330 Strada Lt. Ionescu Baican, Nr. 57, sector 2 |
||
| 541. |
Agora Restaurant - Bucuresti
0212242482; 0722304431 Str. Tintasului , Nr. 27, Sector 1, Bucuresti |
||
| 542. |
Beraria Centrala - Restaurant Bucuresti
0740959311 Strada Nerva Traian, Nr. 2, Sector 3 |
||
| 543. |
Nadasan - Restaurant de sushi, Bucuresti
0745042042 Strada Virgil Madgearu, Nr. 27, sector 1 |
||
| 544. |
Sfeir Lebanese Cuisine - Bar & Grill
0722311805 Mircea Voda, Nr. 36, sector 3 |
||
| 545. |
Hanul Hangitei, Restaurant - Bucuresti
0744827323; 0758043355 Bd. Marasesti, Nr.70-72, Sector 4 , Bucuresti |
||
| 546. |
Yesterday, Hotel si Restaurant - Bucuresti
0213408585; 0737001008 Economu Cezarescu, Nr. 8, Sector 6, Bucuresti |
||
| 547. |
Terasa Marius - Bar & Grill, Bucuresti
0745777799 Sos. Pantelimon, Nr. 115-117, sector 2 |
||
| 548. |
The Temple Social Pub - Bucuresti
0723469118 Bd. Marasesti, Nr. 71-73 sector 4 |
||
| 549. |
Roxy Pub - Bucuresti
0742033944; 0723327117; 0785224508 Splaiul Independentei, Nr. 290, Complex Studentesc Regie, Bucuresti |
||
| 550. |
Ceainaria Infinitea
0723175300 Str. Dr. Grigore Romniceanu, Nr.7, ap.2, sector 5 |
||
| 551. |
Casa Jienilor Agricultori, Restaurant - Bucuresti
0735994994 Agricultori, Nr.12, Sector 2, Bucuresti |
||
| 552. |
TrickSHOT Food Market - Restaurant Bucuresti
0755056556;0755056558 Bd. Dimitrie Pompeiu, 9-9A, Iride Business Park, cladirea 20, sector 2 |
||
| 553. |
Potcoava 9 Mai, Restaurant - Bucuresti
0212202208; 0721065347 Str. 9 Mai , Nr. 51, Sector 6, Bucuresti |
||
| 554. |
Mahala - Restaurant Bucuresti
0729003002 Calea Rahovei, Nr. 147- 153, sector 5 |
||
| 555. |
Costelaria, Restaurant - Bucuresti
0314055095 Calea Rahovei, Nr. 147-150 , Sector 5, Bucuresti |
||
| 556. |
Quantic Pub - Bucuresti
0314321742 Soseaua Grozavesti, Nr. 82, sector 6 |
||
| 557. |
Turquoise - Restaurant cu specific oriental, Bucuresti
0731826222 Strada Theodor D. Sperantia, Nr. 96, sector 3 |
||
| 558. |
Baroque Events & Garden - Restaurant Bucuresti
0726350802 Calea Rahovei, Nr. 145, Sector 5 |
||
| 559. |
Flair Angel - Bar specializat in cocktailuri, Bucuresti
0769771991 Calea Rahovei, Nr. 147-153, sector 5 |
||
| 560. |
Club B52 - Bucuresti
0753315563 11 Iunie, N. 50, Sector 5, Bucuresti |
||
| 561. |
Padthai - Restaurant Bucuresti
0726637747 Bulevardul Decebal, Nr. 3, sector 3 |
||
| 562. |
Tress Caffe&Lounge - Bucuresti
0721988801 Bulevardul Decebal, Nr 3, sector 3 |
||
| 563. |
Lotus Cafe - Cafenea restaurant Bucuresti
0722808389 Bd. Decebal, Nr 1, sector 3 |
||
| 564. |
Casa Lica - Cofetarie Bucuresti
0725761188 Bulevardul Decebal, Nr. 5, Sector 3 |
||
| 565. |
Suzana Ribs & Wings - Restaurant cu specialitati texane, Bucuresti
0785444466 Calea Rahovei, Nr. 147-153, Sector 5, Palatul Bragadiru |
||
| 566. |
Agio Bistrot - Bistro, Bucuresti
0763528818 Bd. Decebal, Nr. 9, sector 3 |
||
| 567. |
XO Lounge - Restaurant Bucuresti
0725585388 B-dul Decebal, Nr. 5, sector 3 |
||
| 568. |
Fabrica, Club,Pub, Tersa - Bucuresti
0753227422; 0753315563; 0749116508 11 iunie, Nr,50, Sector 5, Bucuresti |
||
| 569. |
Funky Lounge - Terasa, Bucuresti
0755505505 Bd. Decebal, nr 9, sector 3 |
||
| 570. |
Duman - Restaurant cu specific oriental, Bucuresti
0738170063 Bulevardul Decebal, Nr. 13, sector 3 |
||
| 571. |
Rich Vip Lounge - Restaurant Bucuresti
0771790764 Bd.Decebal, Nr 9, sector 3 |
||
| 572. |
Restaurant Ali Baba - Specific oriental, Bucuresti
0213274810; 0722707208 Sos. Mihai Bravu, Nr. 213, sector 2, Bucuresti |
||
| 573. |
Santorini - Restaurant specific grecesc Bucuresti
0748333334 Bulevardul Mihai Bravu, Nr. 209, Sector 2 |
||
| 574. |
Snap - Restaurant, Bucuresti
0738888885 Bulevard Decebal, nr. 13, sector 3 |
||
| 575. |
Trattoria 20 - Restaurant Bucuresti
0757534928; 0751267451 Splaiul Independentei, Nr. 290, Campus Regie, sector 6 |
||
| 576. |
Gallo Nero, Restaurant - Bucuresti
0726544889; 0213268128 Bd. Decebal, Nr. 12, Sector 3, Bucuresti |
||
| 577. |
MagiCake - Atelier de dulciuri artizanale, Bucuresti
0772072072 Strada Alexandru Moruzzi, Nr. 4A, sector 3 |
||
| 578. |
Human Coffee - Cafenea Bucuresti
0734744429 Str. Elena Cuza, Nr. 8, Sector 4 |
||
| 579. |
Pui de Urs, Restaurant - Bucuresti
0213166289; 0724622226; 0765166266 Econom Cezarescu, Nr. 42 (Grozavesti), Sector 6 , Bucuresti |
||
| 580. |
Sardin - Restaurant cu specific italian, Bucuresti
0729520111 Bulevardul Mircea Voda, Nr. 39H sector 3, Bucuresti |
||
| 581. |
Restaurant Diplomat
0720880330 Bucuresti-Ploiesti, nr 2B, |
||
| 582. |
La Maria si Ion, Restaurant - Bucuresti
0762295737; 0753473781 Splaiul Independentei, Nr. 290, Complex Studentesc Regie, Sector 6, Bucuresti |
||
| 583. |
Arogant - Restaurant & Lounge, Bucuresti
0732764268 Piata Alba Iulia Piata Alba Iulia, nr 8, sector 3 |
||
| 584. |
Grapes - Bar cu vinuri, Bucuresti
0770463287 Bdul. Marasesti, nr.2B, sector 4 |
||
| 585. |
Efes - Restaurant cu specific turcesc, Bucuresti
0737018590 Bulevardul Nerva Traian, Nr. 17 - 19, sector 3 |
||
| 586. |
King Rolls - Fast Food Bucuresti
0747887206 Calea Vitan, Nr. 17A, sector 3 |
||
| 587. |
Shorley Restaurant - Bucuresti
0765377308; 0724710385; 0213124312 Econom Cezarescu, Nr. 50, Sector 6 , Bucuresti |
||
| 588. |
Pub 18 Restaurant - Bucuresti
0722441586 (Manager Pub Oana Valeanu) Splaiul Independentei, Nr. 290, bl. P18, parter, Sector 6, Bucuresti |
||
| 589. |
Kral CigKofte - Restaurant vegan, Bucuresti
0725025700 Soseaua Andronache, Nr. 5, sector 2 |
||
| 590. |
Pub 18 Restaurant - Bucuresti
0722441586 Splaiul Independentei, Nr. 290, bl. P18, parter, sector 6 , Bucuresti |
||
| 591. |
Mechano Pub - Bucuresti
0722990992 Splaiul Independentei, Nr. 290, sector 6 |
||
| 592. |
Rainbow - Bar & Grill, Bucuresti
0743205054 Cornul Caprei, nr.53, sector 3 |
||
| 593. |
El Bacha, Restaurant - Bucuresti
0212691392; 0722833333 P-ta Alba Iulia, nr.6 bl.15, sector 3, |
||
| 594. |
Events by Tonyo - Restaurant Bucuresti
0723170007 Aleea Hobita, Nr 1 Sector 2 |
||
| 595. |
Nikos Greek Taverna, Restaurant - Bucuresti
0730001008 (Restaurant); 0215999099 (Livrari) B-dul Burebista, Nr 2 (Piata Alba Iulia), Sector 3, Bucuresti |
||
| 596. |
Victorita Pescarita - Restaurant pescaresc, Bucuresti
0764400437 Sos Andronache, Nr 17, sector 2 |
||
| 597. |
B3ton - RestoBar, Bucuresti
0217963684 Bulevardul Marasesti, Nr. 2B, sector 4 |
||
| 598. |
Din Fu - Restaurant chinezesc Bucuresti
0729313338; 0213260127 Str. Alexandru Moruzzi, Nr. 76A, Sector 3 |
||
| 599. |
La Machedoni - Restaurant cu specific traditional romanesc si american
0721512236 Anastasie Panu, nr. 10, sector 3 |
||
| 600. |
Gio Cafe - Bucuresti
0730030757 Bd. Burebista, Nr.2 , Sector 3, Bucuresti |
||
| 601. |
Quartier - Restaurant, Bucuresti
0758222244 Bd. Mircea Voda, Nr. 43, sector 3 |
||
| 602. |
Vecchia Napoli Pizzeria - Bucuresti
0723970317; 0212246629; 0754043666 Calea Grivitei, Nr. 371, Sector 1, Bucuresti |
||
| 603. |
Andreea, Cofetarie, torturi si patiserie - Bucuresti
0728877033; 0213228845 Bulevardul Mihai Bravu, Nr. 286, Sector 3, Bucuresti |
||
| 604. |
Madame B - Tea & Pancake House, Bucuresti
0746030670 Splaiul Unirii, nr.49,sector 3, |
||
| 605. |
Cofetaria Andreea
0213228845; 0728877033 Sos. Mihai Bravu , Nr. 286, sector 3, Bucuresti |
||
| 606. |
La Nasu, Restaurant - Bucuresti
0212214285; 0722257923; 0728984754 Calea Crangasi, Nr. 29, Sector 6, Bucuresti |
||
| 607. |
Ivan Pescar & Scrumbia Bar - Restaurant pescaresc, Bucuresti
0729384828 Str. Uranus, nr 150, cladirea The Ark, parter, sector 5 |
||
| 608. |
M&I Clasic Cuisine - Fast-food si catering Bucuresti
0732948408 Strada Baicului, Nr 104 Sector 2 |
||
| 609. |
Pizza Venetia, Pizzerie si catering - Bucuresti
0720800100; 0213204424; Fax: 0720800100 Dristorului, Nr.59, Sector 3, Bucuresti |
||
| 610. |
Trofic - Restaurant pentru mic dejun si brunch
0751276600 Bd. Mircea Voda, nr. 52, sector 3 |
||
| 611. |
Margineni, Restaurant - Bucuresti
0733986867; 0212405631; 0720679350 Sos. Fundeni , Nr. 185, Sector 2, Bucuresti |
||
| 612. |
Giorginio Cofetarie - Bucuresti
0722434002 Calea Dudesti, Nr. 129 (colt cu str. Scoala Ciocanul) Sector 3, Bucuresti |
||
| 613. |
Greekos Urban Food - Restaurant fast-food, Bucuresti
0726646976 Soseaua Mihai Bravu, Nr. 247, sector 3 |
||
| 614. |
Crowne Plaza, Restaurant - Bucuresti
0372135000; 0212240034 Bd. Poligrafiei, Nr. 1, Sector 1, Bucuresti |
||
| 615. |
Zatara - Restaurant cu influente mediteraneene, Bucuresti
0771670756 Vatra Luminoasa, Nr. 108, sector 2 |
||
| 616. |
Edessa - Restaurant cu specific turcesc
0735636363;0723656325 Soseaua Colentina, Nr. 281A, sector 2 |
||
| 617. |
Tarab - Restaurant cu specific libanez, Bucuresti
0774411111 Strada Nerva Traian, Sector 3 |
||
| 618. |
Riviera Park, Restaurant - Bucuresti
0732408408 Bd. Basarabia , Nr. 23 (Parcul National), Sector 2, Bucuresti |
||
| 619. |
Aleppo Sweet - Cofetarie specializata in briose, Bucuresti
0731800000; 0767609329 Soseaua Andronache, nr. 53, sector 2 |
||
| 620. |
Il Cantuccio, Restaurant - Bucuresti
0722572957 (Sef unitate: Baieticu Ioana); 0735281669 (Sef unitate: Otvos Gabriela); 0724540839 (Manager: Florea Valentin) Fabrica de Chibrituri , Nr. 2, Rond Autogara Filaret, sector 4, Bucuresti |
||
| 621. |
Terasa Sport House - Restaurant fast-food, Bucuresti
0755080224 Maior Ion Coravu, numarul 34, sector 2 |
||
| 622. |
D&L Cuisine - Restaurant, Bucuresti
0740305159 Bd. Expozitiei, nr. 2, corp C3, etaj 1, sector 1 |
||
| 623. |
Il Cantuccio, Restaurant - Bucuresti
0722572957 (Sef unitate: Baieticu Ioana); 0735281669 (Sef unitate: Otvos Gabriela); 0724540839 Manager: Florea Valentin) Fabrica de Chibrituri, Nr. 2, Rond Autogara Filaret, sector 4, Bucuresti |
||
| 624. |
Thalia - Restaurant cu bucatarie internationala
0219993 Strada Cuza Voda, Nr. 147, sector 4 |
||
| 625. |
Naan Project - Restaurant, Bucuresti
0730707119 Strada Progresului, Nr. 1-3 (Razoare), sector 5 |
||
| 626. |
Golden Blitz, Restaurant - Bucuresti
0214105100 Razoare , Nr. 32, Sector 6 , Bucuresti |
||
| 627. |
Pizzeria Alessandro - Bucuresti
0721886488; 0721887488 Drumul Sarii, Nr.150, sector 6 |
||
| 628. |
Taverna Sarbului, Restaurant - Bucuresti
0214906050; 0743353353 Tipografilor, Nr. 31, Sector 1 , Bucuresti |
||
| 629. |
Golden Blitz, Restaurant - Bucuresti
0214105100 Razoare , Nr. 32, Sector 6 , Bucuresti |
||
| 630. |
La Patrascu - Restaurant Bucuresti
0771635003; 0767561149; 0754422491 Str. Prof. Stefan Nicolau, Nr. 2A, Sector 3 |
||
| 631. |
Gusteau\'s - Restaurant Baneasa
0722966072 Strada Pechea, Nr 20, Sector 1 |
||
| 632. |
Resto Aperto, Restaurant - Bucuresti
0738741118 Calea Vitan, Nr.55-59 (Bucuresti Mall) Sector 3, Bucuresti |
||
| 633. |
Kungfu Pizza - Bucuresti
0774428631; 0216656866; 0314251995 Ceahlau, Nr.17 B, Sector 6, Bucuresti |
||
| 634. |
Pizza Dobrogea - Pizzerie, Bucuresti
0736615212 Bulevardul Ficusului, nr 5-7, sector 1 |
||
| 635. |
Pizza Bar - Pizzerie, Bucuresti
0746013623 Lanariei, nr. 5, sector 4 |
||
| 636. |
Resto Aperto, Restaurant - Bucuresti
0738741118 Calea Vitan , Nr.55-59(Bucuresti Mall) Sector 3, Bucuresti |
||
| 637. |
Cald si Bun, Catering - Bucuresti
0212339457; 0737526215 Hatmanul Arbore, Nr. 11, Sector 1, Bucuresti |
||
| 638. |
L\'Amande - Deserturi fara gluten, Bucuresti
0744639549 Str. Lanariei, Nr. 93-95, sector 4 |
||
| 639. |
Citylicious - Restaurant Bucuresti
0771707709 Bld Tudor Vladimirescu, Nr. 29, sector 5 |
||
| 640. |
Bouzouki - Restaurant specific grecesc, Bucuresti
0787528003 Bulevardul Sincai Gheorghe, Nr. 3, sector 4 |
||
| 641. |
Kitchen - Restaurant Baneasa
0733305989 Str. Pechea, Nr. 32-36, Parter, Sector 1 |
||
| 642. |
Pizza Real - Delivery Bucuresti
0760170649; 0725470701 Calea Crangasi, Nr. 90, Sector 6 |
||
| 643. |
IDM Club Sportiv - Bucuresti
0213161052; 0722454273 Splaiul Independentei, Nr. 319 B, (Vizavi de campusul studentesc Regie) Sector 6, Bucuresti |
||
| 644. |
Adore Cakes - Cofetarie Bucuresti
0744440787; 0740231123 Strada Baiculesti, Nr 1, sector 1 |
||
| 645. |
Saidoun - Restaurant cu specific libanez, Bucuresti
0755132812 Bulevardul Alexandru Serbanescu, nr. 87, sector 1 |
||
| 646. |
Old Mike Pub si Restaurant - Bucuresti
0787366166 Morilor, Nr. 46 Sector 3, Bucuresti |
||
| 647. |
Christine -Cofetarie Bucuresti
0728212199 Strada George Valentin Bibescu, Nr. 49, sector 1 (colt cu Bd-ul Ficusului) |
||
| 648. |
Patiseria Tineretului - Bucuresti
0761116622 Bd. Gheorghe Sincai, Nr 2A, sector 4 |
||
| 649. |
Sare si Piper - Restaurant cu specific italian, Bucuresti
0744663451 Str. Viorele, nr. 26, zona Timpuri Noi, sector 4, Bucuresti |
||
| 650. |
Cofetaria Ina - Bucuresti
0723300213 Str. C-tin Radulescu Motru, Nr. 6, Sector 4 |
||
| 651. |
Voievodal - Restaurant cu specific romanesc, Bucuresti
0212324582;0737202492;0733159846 Sos Bucuresti-Ploiesti, nr. 10, Sector 1 |
||
| 652. |
7 Days - Restaurant cu terasa, organizari evenimente, Bucuresti
0769042751; 0213241358 Str. Campia Libertatii, Nr. 23, Sector 3, Bucuresti |
||
| 653. |
Pajo Garden - Restaurant Bucuresti
0751227228 Bulevardul Basarabiei, Nt. 37-39, sector 2 |
||
| 654. |
Turkish Clasis - Restaurant, Bucuresti
0721503011 Sos Viilor, nr.27, sector 5 |
||
| 655. |
De Cartier - Restaurant de tip familial, Bucuresti
0213305556 Str. Viorele, Nr. 57A, sector 4 |
||
| 656. |
Tabiet 41 - Restaurant, Bucuresti
0314260278 Strada Viorele, nr.59, sector 4 |
||
| 657. |
Taverna Baba Novac, Restaurant - Bucuresti
0771544334; 0760010784 Intrarea Baba Novac, Nr. 3, Sector 3, Bucuresti |
||
| 658. |
Mateo Fast Food
0728199827; 0752777333; 0314362033 Strada Dristorului, Nr. 87, sector 3 |
||
| 659. |
Qian Bao, Restaurant chinezesc - Bucuresti
0722622865; 0314306616 Intrarea Baba Novac, Nr. 2, Sector 3, Bucuresti |
||
| 660. |
Dum Dum Food - Restaurant fast food, Bucuresti
0735 270 402 Calea Giulesti, Nr. 123, sector 6 |
||
| 661. |
Dines, Restaurant evenimente - Bucuresti
0213362474; 0723634741; 0727968325 (Predescu Constantin) Cutitul de Argint, Nr.12 (langa Arenele Romane) Sector 4, Bucuresti |
||
| 662. |
Casa Dragonului, Restaurant Bucuresti
0213202666; 0761929019 Calea Dudesti, nr. 198, sector 3, Bucuresti |
||
| 663. |
Stejarului 57 - Social Bar, Bucuresti
0748701058 Strada Fildesului, Nr. 2, sector 3 |
||
| 664. |
Colosal - Fast Food, Bucuresti
0737698255 Strada Mihail Sebastian, Nr. 133, sector 5 |
||
| 665. |
Contesa, Restaurant - Bucuresti
0731831891; 0722244214; 0213317171 Sibiel, Nr. 5, sector 4, Bucuresti |
||
| 666. |
Erra - Restaurant cu specific european modern, Bucuresti
0734983984 Str. Constantin Nottara, Nr 13, sector 3 |
||
| 667. |
Bistro 37-39 - Restaurant Bucuresti
0731355939 Bulevardul Basarabia, Nr. 37-39 , Sector 3 |
||
| 668. |
La Placinte - Restaurant cu specific romanesc, Bucuresti
0756207005 Bd. Vasile Milea, 4F (Afi Park 2) |
||
| 669. |
Terasa Oasis - Restaurant Bucuresti
0733638577 Mihail Sebastian, Nr.102. Sector 5, Bucuresti |
||
| 670. |
Ubuntu Coffee - Terasa, Bucuresti
0758635771 Splaiul Unirii, Nr. 195, sector 3 |
||
| 671. |
Gili Pizza - Bucuresti
0213242387 Str. Baba Novac, Nr. 9-11, Sector 3 |
||
| 672. |
Pizza Apetito - Bucuresti
0770225215 Eufrosina Popescu, Nr. 57, sector 3, |
||
| 673. |
Armonia Cofetarie - Bucuresti
0213244020 ; 0722616180 Campia Libertatii, Nr. 46 , bl. 52 , Parter , Sector 3, Bucuresti |
||
| 674. |
Strada Rustica - Pizzerie Bucuresti
0213248303; 0768676765; 0728886914 Str. Baba Novac, Nr 9, Complex Rucar, Sector 3 |
||
| 675. |
La Sediu - Restaurant Bucuresti
0760729007 Campia Libertatii, Nr. 54, sector 3 |
||
| 676. |
Trenta Pizza - Bucuresti
0219645 Bd.Chisinau, Nr.5 , sector 2 , Bucuresti |
||
| 677. |
Green Bistro - Terasa Bucuresti
0728237731 Parcul Gheorghe Patrascu, |
||
| 678. |
Passione - Restaurant Ilfov
0799584104 Sos. Bucuresti Nord, Voluntari |
||
| 679. |
Casa Tosca, Cofetarie - Bucuresti
0213461297 Bd. Camil Ressu, Nr. 1, Sector 3, Bucuresti |
||
| 680. |
La Gil, Restaurant - Bucuresti
0722534117 Bd. Aerogarii, Nr. 21-23, Sector 1, Bucuresti |
||
| 681. |
Damascus Palace - Restaurant Bucuresti
0746696666; 0756616666 Bld. Basarabia, Nr. 98, sector 2, |
||
| 682. |
Sham Sweet, Cofetarie - Bucuresti
0748242455 Bd. Basarabia, Nr.98, Sector 3, Bucuresti |
||
| 683. |
Casa Bia - Restaurant Bucuresti
0761241623 Str. Sebastian Mihail, Nr. 19, sector 5 |
||
| 684. |
Cucina di casa - Pizzerie, Bucuresti
0735868318 Calea Vacaresti, Nr. 230, sector 4 |
||
| 685. |
La Cocosatu, Restaurant romanesc - Bucuresti
0212328796; 0736445737 Str. Neagoe Voda, nr. 52A, |
||
| 686. |
Friends Pub - Bucuresti
0728197287 Bucovina , Nr. 6, Sector 3, Bucuresti |
||
| 687. |
Volare - Pizzerie, Bucuresti
0730622600 Calea Vacaresti, Nr.203B, sector 4 |
||
| 688. |
Casa Antonie, Cofetarie - Bucuresti
0212202530; 0740150736; 0212202510 Mehadia, Nr. 39A, Sector 6, Bucuresti |
||
| 689. |
Papaciu - Bistro, Bucuresti
0724200070; 0724955952 Strada Complexului, Nr 3A, sector 3 |
||
| 690. |
Fresh Chicken - Restaurant cu preparate la gratar
0724392216 Str Mihail Sebastian, nr 48, sector 5 |
||
| 691. |
La Calinescu - Restaurant cu specific romanesc, Bucuresti
0788472725; 0213310750 Strada Piscului, Nr. 16, sector 4 |
||
| 692. |
Sabatini Pizza, Restaurant - Bucuresti
0314266069; 0737148520; 0784699751 B-dul Basarabia, Nr. 108, Bucuresti |
||
| 693. |
Mazzaj Cafe - Restaurant cu specific libanez, Bucuresti
0757292398 Splaiul Unirii, Nr. 162, sector 4 |
||
| 694. |
Leos Burger - Restaurant fast-food, Bucuresti
0721377575 Strada Jiului, Nr. 159A, sector 1 |
||
| 695. |
Trattoria la Nave - Restaurant Bucuresti
0743454626 Sos. Pantelimon, Nr. 264, Sector 2 |
||
| 696. |
Bravu Burger & Crepes - Restaurant fast-food, Bucuresti
0722118100 Soseaua Mihai Bravu, Nr 452 - 460, sector 2 |
||
| 697. |
Casa Brancoveanu Restaurant - Bucuresti
0724640000; 0314245890; 0762643010 Caramidarii de Jos, Nr.14, Sector 5, Bucuresti |
||
| vezi mai multe | |||
| 1. |
SONMEZ MARKT 4
Tel. 211.65.39; Fax 210.13.25 Bd. Iancu de Hunedoara nr. 64, sector 1 |
||
| 2. |
GALERIA MARIO PLAZA
Tel/Fax. 021.230.47.71 Calea Dorobantilor, nr. 172, sector 1, Bucuresti |
||
| 3. |
SUPERMARKET LA NEA NICU
Tel. 230.64.80 Str. Putul lui Zamfir nr. 59, sector 1 |
||
| 4. |
DENISA MARKET
Tel. 021.211.71.70; 0722.691.595; 0749.263.036; Fax 021.211.71.70 Str. Rasuri nr. 1, sector 2 |
||
| 5. |
PRESTIGE SHOPPING CENTER
Tel. 230.16.12; 230.17.13; Fax 230.67.53 Calea Floreasca nr. 111-113, sector 1 |
||
| 6. |
GEMINI
Tel/Fax 230.25.49 Calea Floreasca nr. 111-113 (Complex Prestige), sector 1 |
||
| 7. |
FONZI
Tel. 260.21.28; 0729.005.261; Fax 260.15.31 Sos. Nicolae Titulescu nr. 121 (Fonzi Junior), sector 1 |
||
| 8. |
BUCUR OBOR
021.252.59.34; 021.252.59.35; 021.252.63.82 Sos.Colentina, nr. 2, sector 2 , Bucuresti |
||
| 9. |
Cocor Luxury Store
021.312.43.10; Fax: 021.313.98.48 Bd. I.C. Bratianu, nr. 29-33, sector 3, |
||
| 10. |
CARREFOUR
Tel. 0374.145.800; Fax 021.307.66.96 Bd. Corneliu Coposu nr. 2, sector 3, |
||
| 11. |
COCOR
Tel. 021.313.14.03; 021.313.92.39; 021.314.96.64; 021.314.96.65; Fax 021.313.98.48 Bd. I.C. Bratianu nr. 29-33, sector 3, |
||
| 12. |
Mobexpert, Bucuresti - Mobilier si decoratiuni exterioare
0316305333 (Comenzi online); 0212421040 Sos. Fabrica de Glucoza, Nr. 21, Sector 2, Bucuresti |
||
| 13. |
WORLD TRADE PLAZA SHOPPING GALLERY
Tel. 202.44.50; Fax 202.43.11 P-ta Montreal nr10, sector 1 |
||
| 14. |
CONCORD 2002
Tel/Fax 323.90.87 Bd. Decebal nr. 7, sector 3 |
||
| 15. |
KAUFLAND
Tel. 0372.091.001 Sos. Colentina nr. 6, sector 2, |
||
| 16. |
FOR YOU
Tel. 0745.094.433 Bd. Decebal nr. 24, sector 3 |
||
| 17. |
FONZI SUPERMARKET
Tel. 0729.005.260; Tel/Fax 021.323.67.52 Str. Nerva Traian, nr. 17-19, sector 3, |
||
| 18. |
NICK CENTER
Tel. 410.06.14; Fax 410.18.94 Calea 13 Septembrie nr. 190, sector 5 |
||
| 19. |
THE GRAND AVENUE AT BUCHAREST MARRIOTT GRAND HOTEL
Tel.021. 403.40.98 Calea 13 Septembrie nr. 90, sector 5 , |
||
| 20. |
GRANT SHOPPING CENTER
Tel/Fax 021.220.42.65 Sos.Virtutii, nr. 148, sector 6, Bucuresti |
||
| 21. |
MEGA MALL
Str. Pierre de Coubertin, nr. 3-5, langa Arena Nationala, |
||
| 22. |
Wini Imobili
Tel.021.307.60.50; 0742.144.034, 0755.068.669; Fax.021.307.60.51 Pierre de Coubertin, nr. 3-5, sector 2, Bucuresti |
||
| 23. |
GMARKET
Bucuresti |
||
| 24. |
LIBERTY CENTER
0213699871; 0213699835 Sos. Progresului, nr. 151-171, sector 5, Bucuresti |
||
| 25. |
AFI Cotroceni - Mall, Bucuresti
0314257510; 0314257511; Fax 0314257513 Vasile Milea, Nr. 4, Sector 6 (intersectia Bd. Timisoara cu Str. Vasile Milea), Bucuresti |
||
| 26. |
Penny Market XXL
0800.110.111 Sos.Fundeni, nr. 38-40, sector 2, Bucuresti |
||
| 27. |
BUCURESTI MALL
Tel. 021.327.67.00; 021.327.61.00; 021.327.61.02; Fax 021.320.92.09 Calea Vitan nr. 55-59, sector 3, |
||
| 28. |
SUPERMARKET MAICOM
Tel. 0722.322.573; Fax 321.78.36 Str. Vitan nr. 104, sector 3 |
||
| 29. |
SUPERMARKET PRIMiVARA
Tel. 031.402.58.20; Fax 021.410.96.96 Calea 13 Septembrie nr. 221-225, sector 5 - Complex Prosper, |
||
| 30. |
INTERHOME
Tel. 021.456.31.85; Fax 021.456.31.80; 021.456.31.83 Str. Nasaud, nr. 97, sector 5, |
||
| vezi mai multe | |||
Sunteti de acord sa fiti contactat prin mesageria Anuntul.ro
de persoana care a adaugat acest anunt?
Vezi istoricul preţurilor din zona
Distribuie Facebook
Anunţurile utilizatoruluiPagina pe care doriti sa o accesati poate sa contina elemente care nu sunt recomandate minorilor!
Va rugam sa confirmati ca aveti peste 18 ani!

131
,135
,301
,330
,331
,335
,461
2 min.
1
46