Nicolae Grigorescu ...
9 min.
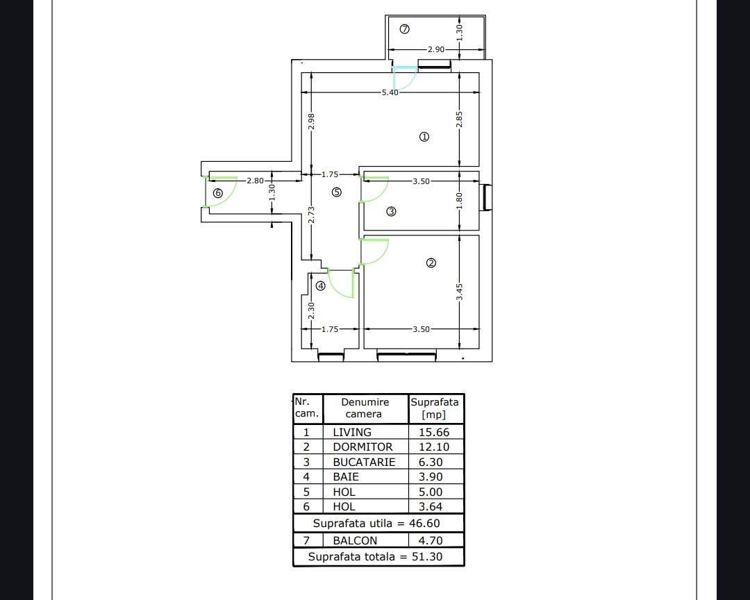
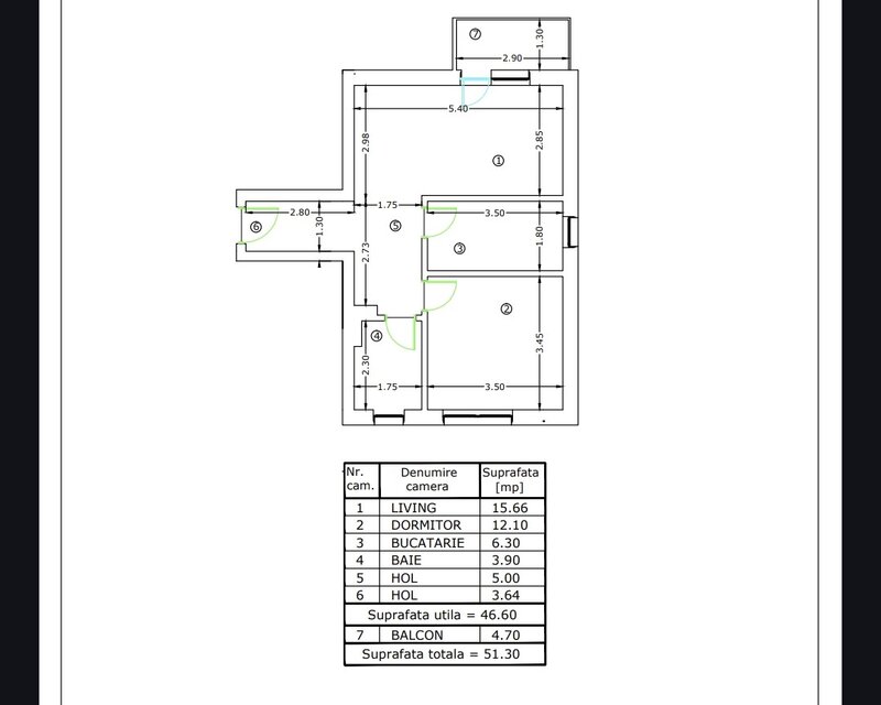
calculeaza distantaNicolae Grigorescu, 15 min. metrou, apartament 2 camere imobil nou 2025, etaj 2. Va prezint spre vanzare un apartament modern cu 2 camere, situat intr-un imobil nou, construit in 2025, in zona Nicolae Grigorescu – Salajan – Trapezului. 15 min metrou Grigorescu.
Cu o suprafata de 51 mp, apartamentul este pozitionat la etajul 2 din 3, oferind un echilibru ideal intre confort, intimitate si accesibilitate.
Proprietatea beneficiaza de compartimentare eficienta si finisaje moderne, fiind ideala pentru un stil de viata urban sau pentru investitie.
Localizare excelenta:
📍 Nicolae Grigorescu – Salajan – Trapezului 15 min Metrou Grigorescu
Acces facil catre metrou, mijloace de transport, centre comerciale si alte puncte de interes.
Aceasta proprietate reprezinta o oportunitate excelenta pentru cei care isi doresc un apartament nou, intr-o zona bine conectata.
💶 Pret: 119.999 euro
📞 Pentru mai multe informatii si programarea unei vizionari sunati.
Statii metrou |
Timp | |
![]() |
Nicolae Grigorescu | 9 min. |
![]() |
1 Decembrie 1918 | 15 min. |
| 1. |
Smart Children - After School Bucuresti
0774613480; 0760757410 Str. Prevederii, nr. 6, bl. D2, Ap. 1, Interfon 1, Sector 3, |
||
| 2. |
Ramy\'s Kids - After School sector 3
0723523721 Bd. Nicolae Grigorescu, nr. 46, sector 3 |
||
| 3. |
Strumfisor - Gradinita Bucuresti
0744709237 Bd. Nicolae Grigorescu, Nr. 105 - 109, Sector 3, Bucuresti |
||
| 4. |
Gradinita Nr. 232 sector 3
0213485518 Str. Patriotilor, nr. 3, sector 3 |
||
| 5. |
Aripi spre Succes - Gradinita si Afterschool sector 3
0740137944 Aleea Manastirea Agapia, nr. 32, Sector 3 |
||
| 6. |
Diamond Kids - Cresa, Gradinita si After School Bucuresti
0751048000 Str. Trapezului, nr. 44, Sector 3 |
||
| 7. |
Stelutele, After School - Bucuresti
0734716769 Str. Vitioara, Nr. 46, Sector 3, Bucuresti |
||
| 8. |
Gradinita Nr. 211 sector 3
0213451165 Str. Trapezului, Nr. 1A, sector 3 |
||
| 9. |
Gradinita Nr. 241 (Pestisorul De Aur) sector 3
0213482910 Str. Rotunda, nr. 19, Sector 3 |
||
| 10. |
Cresa Greierasul sector 3
0737799585 Str. Plutonier Major Marin Pazon, nr. 2, sector 3 |
||
| 11. |
Gradinita Nr. 196 sector 3
0213450636 Str. Plutonier Ionescu Petre, nr. 76, sector 3 |
||
| 12. |
Gradinita nr. 71 sector 3
0213480894 Aleea Fuiorului, nr. 9 , sector 3 |
||
| 13. |
Marilank - Gradinita si cresa Bucuresti
0768316808 Strada Lemnisorului, Nr 21-27, Sector 3 |
||
| 14. |
Clubul Diandra - Gradinita si After School, Bucuresti
0745075332 Str. Prisaca Dornei, Nr. 2H, Sector 3, Bucuresti |
||
| 15. |
Alice si Taramul Fermecat - Afterschool, Bucuresti
0741495713; 0748013790 Str. Jean Alexandru Steriadi, Nr. 14D, Sector 3, Bucuresti |
||
| 16. |
Gradinita nr. 3 - sector 3
0213464112 Str. Plt. Nedelcu Ion, Nr. 31, sector 3 |
||
| 17. |
Gradinita Nr. 160 sector 3
0213453650 Aleea Perisoru, nr. 9, sector 3 |
||
| 18. |
A&M afterschool Bucuresti
0723371319 Bd. Camil Ressu, Nr. 33, bl. N4, sc. 1, ap. 4, int. 4, sector 3, |
||
| 19. |
Gradinita nr. 24 sector 3
0213441760 Str. Locotenent Pascu Nicolae, nr. 12, sector 3 |
||
| 20. |
Universul Zambetelor - Gradinita si Cresa Bucuresti
0765410512 Str. Lunca Dunarii, nr. 7, sector 3 |
||
| 21. |
Gradinita nr. 231 sector 3
0310699994; 0314370742 Str. Codrii Neamtului, nr. 68, sector 3 |
||
| 22. |
Mini Club Condor - Gradinita, Bucuresti
0725211112; 0722368662; 0314310407 Str. Col Iosif Albu, Nr. 80 Sector 3, Bucuresti |
||
| 23. |
Gradinita Floare de colt (nr. 64) sector 3
0213464899 Str. Schitului, nr. 1D, sector 3 |
||
| 24. |
Neverland Afterschool Bucuresti
0742139992 Str. Prisaca Dornei, nr. 16, sector 3 |
||
| 25. |
Anna Afterschool sector 3
0733305865 Aleea Calistrat Hogas, nr. 28 D-E, Sector 3 |
||
| 26. |
Happy Tree - Gradinita & After School Bucuresti
0761600082; 0763630634; 0213401308 Aleea Calistrat Hogas, nr. 28A, sector 3, Bucuresti |
||
| 27. |
Gradinita Nr. 255 sector 3
0213462996; 0213462994 Bd. Energeticienilor, Nr. 3, sector 3 |
||
| 28. |
Gradinita Nr. 191 sector 3
0213403046; 0213401059 Str. Cozla, nr. 1, sector 3 |
||
| 29. |
Gradinita nr. 68, sector 3
0213450038; 0213450030 Str. Gura Ialomitei, nr. 20, sector 3 |
||
| 30. |
Castelul Fermecat - Gradinita, After School Bucuresti
0745770001; 0752314458; 0765957032 Drumul Murgului, Nr. 32, Sector 3, Bucuresti |
||
| 31. |
Garmy Kids - Gradinita si After School Bucuresti
0311060294; 0745342225; 0734784673 Sos. Vitan Birzesti, Nr. 7D-7E, sector 4 |
||
| 32. |
Ingerul Albastru - Centrul educational pentru copii, Bucuresti
0727868575 Str. Serg Cuibaru Ion, Nr. 44, sector 3 |
||
| 33. |
Castelul Fermecat Olimpia - Gradinita, scoala primara, Afterschool, Bucuresti
0731680372 Drumul intre Vii, Nr. 24, Sector 3, Bucuresti |
||
| 34. |
OLIMPIA KIDS - gradinita particulara, cresa si after school Bucuresti
0731680372 Drumul intre Vii, Nr. 24, Sector 3 |
||
| 35. |
Robotics School - After School, ateliere de robotica Bucuresti
0721861565 Aleea Barajul Cucuteni, nr. 2, Bl M4A, sector 3 |
||
| 36. |
Sincron - Gradinita, After School Sector 3
0722243877 Calea Vitan, nr. 206, sector 3 |
||
| 37. |
Letitia - After school sector 3
0733919066; 0722882558 Str. Baba Novac, nr. 19A,Belvedere Residence, sector 3 |
||
| 38. |
Centrul Educational Nectarel - Afterschool Bucuresti
0740221854 Str. Baba Novac, nr. 17, sector 3 |
||
| 39. |
Puiutul Pufos - Gradinita Bucuresti
0740140968; 0213440010 Str. Emanoil Marius Buteica, Nr. 30, Sector 3, Bucuresti |
||
| 40. |
Gradinita nr. 216 sector 3
0213400395 Str. Barajul Rovinari, nr. 10, sector 3 |
||
| 41. |
Dandi Kids, Gradinita & After School - Bucuresti
0726758303 Str. Rasovita, Nr. 18, Sector 3, Bucuresti |
||
| 42. |
Plusica - Gradinita & Afterschool sector 3
0768596856 Str. Drumeagului, nr. 51, sector 3 |
||
| 43. |
Gradinita Nr. 154 sector 3
0213400130 Aleea Barajul Uzului, Nr. 9, sector 3 |
||
| 44. |
Centrul Educational Fecioara Maria - Cresa, Gradinita Bucuresti
0799741474; 0770574645 Str. Eufrosina Popescu, Nr. 30, Sector 3, Bucuresti |
||
| 45. |
Gradinita Nr. 239 sector 3
0213245490 Str. Dristorului, nr. 102, sector 3 |
||
| 46. |
Cresa Potcoava (Titan II) sector 3
0213244810; 0213244880 Str. Pictor Gheorghe Tattarescu, nr. 10, sector 3 |
||
| 47. |
Ghiocelul - Cresa sector 3
0729330319 Bd. 1 Decembrie 1918, nr. 12-14, sector 3 |
||
| 48. |
Gradinita nr. 69 sector 3
0213244141; 0213240000 Bd. Pictor Nicolae Grigorescu, nr. 14, sector 3 |
||
| 49. |
Piticul Curajos - Gradinita, After School sector 3
0749607276; 0314373583; 0213240124 Str. Copaceni, Nr. 64, sector 3 |
||
| 50. |
Smart Steps - Gradinita , After School sector 3
0733965133 Str. Dristorului, nr. 91-95, bl. E, Parter, sector 3 |
||
| 51. |
Saga Kid - After School sector 3
0743266500; 0756169135 Str. Campia Libertatii, nr. 44, sector 3, |
||
| 52. |
Just4Kids - Scoala Gimnaziala cu nivel gimnazial, primar si prescolar Bucuresti
0739674601 Str. Vantului, Nr. 27, Sector 3, Bucuresti |
||
| 53. |
Iuladi Kids - Cresa, gradinita Bucuresti
0769088777 Str. Breaza, Nr. 78, Sector 3 |
||
| 54. |
Capsunica - Gradinita sector 3
0765516162 Str. Constantin Nottara, nr. 27, sector 3 |
||
| 55. |
B-Happy Afterschool sector 3
0722396590 Intr. Horbotei, nr. 12, bl. 4, parter, sector 3 |
||
| 56. |
Mica Printesa - Gradinita, after school Bucuresti
0744321574; 0744703973 Str. Vulcan Judetu, nr. 16, sector 3, |
||
| 57. |
Little Princess 2 - After School / Before School Bucuresti
0744703973; 0744321574; 0756070390 Str. Vulcan Judetu, Nr. 16, Sector 3, Bucuresti |
||
| 58. |
Piccolo Grande - After School, loc de joaca sector 3
0754200258 Intr. Patinoarului, nr. 52, Sector 3 |
||
| 59. |
Gradinita nr. 70 sector 3
0213400228 Str. Lucretiu Patrascanu, nr. 12, sector 3 |
||
| 60. |
Legolas - Centru Educational sector 3
0787322298; 0787460258; 0787298295 Str. Nucului, nr. 55, sector 3 |
||
| 61. |
Kids Power - Centru educational holistic pentru copii Bucuresti
0741248260 Str. Nucului, nr. 55, sector 3 |
||
| 62. |
Dumbo Kids Academy - Cresa, Gradinita, Before & After School sector 3
0722320023 Intr. Patinoarului, nr. 42A, sector 3 |
||
| 63. |
Teach Little People - Centru educational, Bucuresti
0727401433 Str. Alexander von Humboldt, nr. 2, sector 3 |
||
| 64. |
Bulgarasi de Aur - Before & After School Bucuresti
0723398829 Str. Cogalnic, nr. 30, sector 3 |
||
| 65. |
Little Star - Gradinita, After School sector 3
0745531279; 0724506631 Str. Alexandru Magatti, nr. 13 A , sector 3 |
||
| 66. |
Little Princess 1 - Cresa, Gradinita Bucuresti
0756070390; 0744321574; 0744703973 Str. Popa Stoica Farcas, Nr. 64-66, Sector 3, Bucuresti |
||
| 67. |
IQ-Est - Gradinita & After School Popesti Leordeni
0726758183 Str. Sfantul Gheorghe, nr. 5B, Popesti Leordeni, judetul Ilfov |
||
| 68. |
ERA Kinderland - Gradinita, after school in limba germana sector 3
0728850073; 0213207697 Str. Dristorului, nr. 67, sector 3 |
||
| 69. |
Smiley After School sector 2
0727401829 Bd. Basarabia, nr. 62A, sector 2 |
||
| 70. |
Little Oaks Academy - Gradinita sector 3
0766572126; 0766572127 Sos. Mihai Bravu, Sos. Mihai Bravu nr. 286, sector 3 |
||
| 71. |
Kids\' World Nursery School - Gradinita Bucuresti
0771242641 Bd. Basarabia, Nr. 2, Sector 3 |
||
| 72. |
Sfanta Agnes - Gradinita cu program prelungit Popesti Leordeni
0213615041 Str. Oltenitei, nr. 6, Popesti-Leorden, judetul Ilfov |
||
| 73. |
Iulia Pantazi - Centrul psihologic pentru copii Bucuresti
0745480458; 0317304741 Str. Cernauti, Nr.1, Sector 2, Bucuresti |
||
| 74. |
Rose Garden Kids - Gradinita, Ilfov
0727130130; 0762432222 Sos. Oltenitei, Nr. 32C-32G, Popesti-Leordeni, judetul Ilfov |
||
| 75. |
Gradinita Nr.161 (Brandusa) sector 3
0314250834; 0314250835 Str. Branduselor, Nr. 37/43, sector 3 |
||
| 76. |
Abcdino, Gradinita - Bucuresti
0213231070; 0725929616; 0745397739 Str. Chiparosului, Nr. 31, Sector 3, Bucuresti |
||
| 77. |
WhizKidz Hub - Afterschool, Centru educational Bucuresti
0742602260 Str. Gradinarilor, nr. 14, Sector 3 |
||
| 78. |
Gradinita Nr. 189 Malaxa Bucuresti
0212554870 Sos. Vergului, Nr. 12, Sector 2, Bucuresti |
||
| 79. |
Gradinita nr. 277 Steluta sector 2
0212551195 Sos. Vergului, nr. 14, Sector 2 |
||
| 80. |
Kiga 99 Luftballons - Gradinita, After School in limba germana Bucuresti
0722395197; 0745423467 Str. Theodor Sperantia, nr. 81, sector 3 |
||
| 81. |
Kids First - Gradinita Bucuresti
0748880866; Varnavelena@gmail.com Str. Sica Alexandrescu, nr. 20, Sector 2, |
||
| 82. |
Bob de Grau, Gradinita si Cresa - Bucuresti
0720446942 Str. Agricultori, Nr. 142, Sector 3, Bucuresti |
||
| 83. |
Maya si Prietenii - Cresa, Gradinita sector 2
0755359162 Str. Herta, nr. 32A, Sector 2, |
||
| 84. |
International Kindergarten & Nursery - Gradinita Bucuresti
0723248978; 0314327798 Str. Claudiu, Nr. 26, Sector 2, Bucuresti |
||
| 85. |
Madi AfterSchool sector 2
0757837644 Str. Herta, nr. 32A, Sector 2 |
||
| 86. |
Family Kids, Gradinita si After School - Bucuresti
0722565657; 0723281551 Str. Mugur Mugurel, Nr. 21, Sector 3, Bucuresti |
||
| 87. |
La Turn - Gradinita sector 2
0212751772; 0732122336 Sos. Morarilor, Nr.1, Sector 2 |
||
| 88. |
Montessori Yes Place - Gradinita Corbeanca
0731050108 Str. Fermei, nr. 26, Corbeanca, judetul Ilfov |
||
| 89. |
Land of Kids Afterschool sector 2
0766831831; 0726733314 Str. Constantin Tanase, Nr. 22, Sector 2 |
||
| 90. |
Maria Natalia - Gradinita, After School Ilfov
0742596945 Drumul Fermei, Nr. 27E, Popesti-Leordeni, judetul Ilfov |
||
| 91. |
Liebe Kinder - Gradinita, Bucuresti
0785378672; 0726349658 Str. Petre Costescu, Nr. 42, sector 4 |
||
| 92. |
Tic-Pitic, Gradinita & After School - Bucuresti
0729119398; 0722769224; 0314377383 Str. Cap. Costescu Petre, Nr. 26, Sector 4, Bucuresti |
||
| 93. |
Gradinita Nr. 187 sector 3
0212560038 Str. Magnetului, nr. 1, sector 3 |
||
| 94. |
Funny Clown, Gradinita & After School - Bucuresti
0740806356 Str. Ruschita, Nr. 41, Sector 2, Bucuresti |
||
| 95. |
City Kids - Gradinita si afterschool Bucuresti
0756862825 Str. Ruschita, Nr. 41, sector 2 |
||
| 96. |
BBIS Bucharest-Beirut International School
0744309199; 0314381572 Sos. Vergului, Nr. 14, Sector 2, Bucuresti |
||
| 97. |
Castelul Bucuriei - Gradinita Bucuresti
0730515181 Str. Vasile Voiculescu, nr. 30, sector 3 |
||
| 98. |
Taramul Magic Voi Reusi - After School sector 2
0727540913 Bd. Chisinau, nr. 6-8, sector 2 |
||
| 99. |
Pick Me Academy - Gradinita si scoala, Bucuresti
0726000640 Str. Slt. Pompiliu Manoliu, Nr. 7,Sector 2, Bucuresti |
||
| 100. |
Arlechino & Friends - Gradinita si afterschool - Bucuresti
0723264032; 0749028820; 0213260584 Str. Cezar Boliac, Nr. 22-24, Sector 3, Bucuresti |
||
| 101. |
Bambi Step by Step- Gradinita Bucuresti
0213273256; 0317102928 Str. Gh. Dem Teodorescu, Nr.16 bis, Sector 3, Bucuresti |
||
| 102. |
Spectrum - Gradinita, Scoala, After School Bucuresti
0213443344; 0722654161 Str. Balta Albina, Nr. 9, Sector 3, Bucuresti |
||
| 103. |
Dreamland - Gradinita Bucuresti
0787521511 Str. Plugarilor, nr. 20-22, Sector 4, Bucuresti |
||
| 104. |
Max und Moritz Kinder - Gradinita limba germana & After School Bucuresti
0726374434 Str. Plugarilor, Nr. 24, Sector 4, Bucuresti |
||
| 105. |
Cresa Ciobanasului
0213223085 Str. Ciobanasului, nr. 23, sector 2, |
||
| 106. |
Once Upon a Time - Centrul educational adlerian Bucuresti
0770590487 Str. Ciobanasului, Nr. 22A, Sector 2 |
||
| 107. |
Magic Land After School Ilfov
0799258976 Str. Sfanta Agnes, nr. 204, Popesti Leordeni, , judetul Ilfov |
||
| 108. |
Palatul Copiilor - Gradinita, After School sector 3
0740673742; 0314251635 Str. Morilor, Nr. 19, sector 3 |
||
| 109. |
Mell - Gradinita cu Program Normal sector 3
0744564426; 0722958683 Str. Vlad Dracu, nr. 43, sector 3 |
||
| 110. |
Gradinita Happy Junior - Bucuresti
0724229250; 0730309647 Sos. Berceni, Nr. 8, Sector 4, Bucuresti |
||
| 111. |
Aurora - Gradinita & After School sector 3
0744317320; 0213224168 Str. Moise Nicoar?, nr. 9-11, sector 3 |
||
| 112. |
Lill put - Centru de educatie nonformala pentru prescolari, Bucuresti
0722647423 Str. Sarafinesti, Nr. 29, sector 2 |
||
| 113. |
Gradinita nr. 188 Castel sector 2
0212504180; 0213179946 Bd. Pierre de Coubertin, nr. 1, sector 2 |
||
| 114. |
Academia Fantastica - Gradinita, Before & After School sector 3
0731027321; 0723337393; 0213065370 Str. Moise Nicoara, Nr. 7, Sector 3 |
||
| 115. |
AYN RAND - After School, Ilfov
0722710933 Str. Pavlicheni, Nr. 96, Popesti Leordeni, judetul Ilfov |
||
| 116. |
Centrul Educational BUBU
0735531156 Sos. Pantelimon, Nr. 355, sector 2 |
||
| 117. |
Centrul Educational Nordic sector 4
0786391446 Splaiul Unirii, Nr. 176, Corp D3, Sector 4 |
||
| 118. |
BeMindful Kids - Gradinita si cresa Bucuresti
0775259518 Str. Nicolae Florescu, Nr. 126, Sector 4 |
||
| 119. |
Gradinita Nr. 280 sector 2
0212557980; 0212550205 Str. Delfinului, nr. 4, sector 2 |
||
| 120. |
KeiKo AfterSchool Bucuresti
0748880866 Str. Magura Vulturului, nr. 6, Sector 2 |
||
| 121. |
Gradinita nr. 23 sector 2
0216275013; 0212550840 Str. Soldat Gheorghe Raduta, nr. 1, sector 2 |
||
| 122. |
Kids Adventures - Gradinita Popesti Leordeni
0745532546 Str. Sfanta Agnes, nr. 180, Popesti-Leordeni, judetul Ilfov |
||
| 123. |
Gradinita Nr. 256 Bucuresti
0212506222 Str. Atanase Ionescu, Nr. 25, Sector 2 |
||
| 124. |
Kindi - Centru de educatie timpurie Montessori, Bucuresti
0726876873 Str. Delea Veche, Nr 35, sector 2 |
||
| 125. |
Bufnita din Tei - Club de educatie nonformala si activitati recreative
0751020362 Str. Sg. Nitu Vasile, nr. 26, Sector 4 |
||
| 126. |
Noel - Gradinita & After School Bucuresti
0728459857; 0725839363 Str. Trifoi, Nr. 10, Sector 3, Bucuresti |
||
| 127. |
Happy Kids Project - After school si before school, Bucuresti
0745152802 Sos. Iancului, Nr. 110, Sector 2, Bucuresti |
||
| 128. |
Praslea cel Voinic - Gradinita & After School Bucuresti
0722773103; 0733839824 Str. Competitiei, Nr. 38, Sector 2, Bucuresti |
||
| 129. |
I-kids - Club & Afterschool sector 3
0743355355 Sos. Dudesti - Pantelimon, nr. 99A, sector 3 |
||
| 130. |
PRO Academy Afterschool
0744501156 Str. Sibiel, nr. 6, Sector 4 |
||
| 131. |
Martisor - Gradinita sector 4
0213325936 Str. Daracului, Nr. 11, Sector 4 |
||
| 132. |
Martisor AfterSchool sector 4
0727017553 Str. Cararuia, nr. 1, sector 4 |
||
| 133. |
Sf. Imparati Constantin si Elena, Gradinita Bucuresti
0722237110; 0722293056; 0213261361 Str. Labirint, Nr. 137 B , Sector 3, Bucuresti |
||
| 134. |
Lumea Cocoricilor - Centru educational Bucuresti
0728855236 Intrarea Balaci, nr. 9-11, sector 4 |
||
| 135. |
Centrul Social Multifunctional Cresa Mica Sirena sector 4
0371360124; 0733200077 Aleea Emil Racovita, nr. 2B, sector 4 |
||
| 136. |
Montessima Educational - Afterschool zona Iancului, Bucuresti
0771421104 Str. Constantin Zlatescu, nr. 12, sector 2 |
||
| 137. |
Zambete Colorate - Gradinita Ilfov
0749262383 Sos. Dobroesti, Nr. 30, judetul Ilfov |
||
| 138. |
Oxigen Sport - Befor School, After School Bucuresti
0722529429 Str. Duzilor, Nr. 23, sector 2, Bucuresti |
||
| 139. |
Academia Olimpicilor - After School Popesti Leordeni
0725546338; 0746111458 Str. Amurgului, nr. 36A, Popesti-Leordeni, judetul Ilfov |
||
| 140. |
Luminita - Gradinita sector 2
0212503180 Sos. Iancului, nr. 4A, sector 2 |
||
| 141. |
Gradinita Strop de Roua nr. 199 sector 4
0214610336 Str. Emil Racovita, nr. 23, Sector 4 |
||
| 142. |
Kids Palace - Gradinita & After School Bucuresti
0722612031 Str. Obolului, Nr. 10, Sector 4, Bucuresti |
||
| 143. |
Magic Years - Gradinita si After School Bucuresti
0733333399 Sos. Berceni, Nr. 80, sector 4, Bucuresti |
||
| 144. |
Clopotel - Gradinita Bucuresti
0212502197 Str. Elev Dridu Georgescu, nr. 2, sector 2 |
||
| 145. |
Mihai Ionescu - Gradinita, Scoala, Liceu Bucuresti
0213235495 Str. Parfumului, Nr. 31, Sector 2, Bucuresti |
||
| 146. |
Copiii Montessori - Gradinita sector 3
0721204642 Str. Labirint, nr. 95, Sector 3 |
||
| 147. |
Centrul social multifunctional cresa Degetica sector 4
0733200060 Aleea Mirea Mioara Luiza, nr. 1A, sector 4 |
||
| 148. |
Iepurasul Bocanila - Scoala si Gradinita sector 4
0722320773; 0722239508; 0214602246 Str. Iarba Campului, nr. 91, sector 4, judetul Brasov |
||
| 149. |
Bell - Gradinita, Afterschool Bucuresti
0728694516 Str. Mecet, Nr. 53, Sector 2 |
||
| 150. |
Anais & Criss for kids - Centru educational Ilfov
0799750776; 0721071523 Str. Posada, nr 5C, Popesti Leordeni, judetul Ilfov |
||
| 151. |
Elefantelul curios- Afterschool & more, sector 4
0767332115; 0727222015 Bd. Constantin Brancoveanu, Nr. 7D, sector 4 |
||
| 152. |
Centrul Social Multifunctional Cresa Scufita Rosie sector 4
0733200109; 0372874267; 0372715100, 0372715101 Aleea Tohani, nr. 1, bl.30, sc. 1, parter, sector 4 |
||
| 153. |
Gradinita Dumbrava Minunata (nr 193) sector 4
0214608287 Aleea Terasei, nr. 8, sector 4 |
||
| 154. |
BritAcademy, Gradinita in limba engleza - Bucuresti
0740329105 Str. Olimpiadei, Nr. 36, Sector 2, Bucuresti |
||
| 155. |
Domino - Gradinita Bucuresti
0722492047 Str. Constantin Georgian,, nr. 27, sector 2, Bucuresti |
||
| 156. |
Acorns British Style Nursery, Gradinita & After School, Bucuresti
0722476581; 0788418186 Str. Popa Soare, Nr. 63, Sector 2, Bucuresti |
||
| 157. |
Licurici - Gradinita sector 4
0314377556; 0767503191 Str. Cuza Voda, nr. 141 A, Sector 4 |
||
| 158. |
Hai- Hui - Gradinita Popesti Leordeni
0740424484 Str. Oituz, Nr. 5, Popesti Leordeni, judetul Ilfov |
||
| 159. |
Kid2Kids - After School Ilfov
0771257386 Str. Amurgului, Nr. 63 Popesti-Leordeni, judetul Ilfov |
||
| 160. |
Casuta lui Ipi - Gradinita
0762288744 Drumul Fermei, nr. 78, Popesti-Leordeni, judetul Ilfov |
||
| 161. |
Gradinita Magica, Bucuresti
0765221341; 0723892378 Str. Stefan Mihaileanu, Nr. 33, Sector 2, Bucuresti |
||
| 162. |
Gradinita nr. 264 101 Dalmatieni sector 4
0214608206; 0732723053 Str. Aliorului, nr. 5, sector 4 |
||
| 163. |
Paglia - After School sector 4
0745209769 Intr. Gilaului, nr. 5, Sector 4 |
||
| 164. |
Prietenii Mei - Gradinita cu program prelungit Bucuresti
0212224642; 0745028876 Bd. Metalurgiei, nr. 87, Sector 4, Bucuresti |
||
| 165. |
Super Start - Gradinita, After School sector 2
0720528738 Bd. Ferdinand I, nr. 156, Sector 2 |
||
| 166. |
Centrul multifunctional Cresa Craiasa Zapezii sector 4
0371360117; 0371360127 Str. Oitelor, nr. 50, sector 4 |
||
| 167. |
Lauder-Reut Kindergarten - Gradinita Bucuresti
0318055772; 0723098800; 0735505395 Str. Iuliu Barasch, Nr. 15, Sector 3, Bucuresti |
||
| 168. |
Teddy Club - Club educational , After school Bucuresti
0732138368; 0723188995 Str. Duminicii, nr. 16, sector 4 |
||
| 169. |
Iilo - Gradinita & After School Bucuresti
0720702910 Str. Iarba Campului, Nr. 4, Sector 4, Bucuresti |
||
| 170. |
Central Art Studio - After School/Cursuri Pentru Copii/Scoala de Vara Bucuresti
0745633737; 0765454244 Str. Popa Soare, nr. 29, sector 2 |
||
| 171. |
Sapte Ani - Gradinita, After School Bucuresti
0762259115; 0762259116 Drumul Gilaului, nr. 7E, sector 4 |
||
| 172. |
Clubul Boreal, Gradinita - Bucuresti
0721124249 Str. Valerian Prescurea, Nr. 5, Sector 4, Bucuresti |
||
| 173. |
Puzzle Edu Center - Centru educational sector 2
0724536293 Str. Gheorghe Pop de Basesti, nr. 17, Sector 2 |
||
| 174. |
Gradinita nr. 30 sector 4
0213362078 Bd. Dimitrie Cantemir, nr. 16A, Sector 4 |
||
| vezi mai multe | |||
| 1. |
Policlinica Titan
0213400335; Fax 0213400745 Bd. Nicolae Grigorescu, nr. 41, sector 3, |
||
| 2. |
Pandora Medical Center - Bucuresti
0213413098; 0732263626 Aleea Calistrat Hogas, Nr. 45B, sector 3 |
||
| 3. |
Clinica Medicala Medlife-Bucuresti
0219646; 0742299843 Str.Liviu Rebreanu, nr. 8,sector 3, |
||
| 4. |
Clinica Nova ORL - Dr. Voda Ioana Alexandra-Bucuresti
0213254422; 0799848484 Str. Pictor Gh. Tattarascu , nr. 2, subsol Policlinica Globului, in spatele cinematografului Gloria, Baba Novac, sector 3, |
||
| 5. |
Spitalul Clinic de Urgenta \"Sf. Ioan\" Bucuresti
Tel. 0213345190; 0213345170; Tel/Fax 0213345970 Sos. Vitan-Barzesti nr. 13, sector 4, |
||
| 6. |
Spitalul Clinic de Urgenta Sfantul Ioan Bucuresti
Tel. 0213345190; 0213345170 Sos. Vitan Barzesti, nr. 13, sector 4, Bucuresti |
||
| 7. |
Centrul Medical Rom Med 2000
0726366370; 0213270441; Tel/Fax 0213206087 Intr. Baba Novac, nr. 4 A, Sector 3, |
||
| 8. |
Spitalul Clinic de Urgenta \"Sf. Ioan\" Bucuresti
Tel. 0213345190; 0213345170; Fax 0213345970 Sos. Vitan Barzesti, nr.13, sector 4, |
||
| 9. |
Policlinica Baba Novac
0770218336; 0748175572 Str. Baba Novac, nr. 2, sector 3 |
||
| 10. |
Prof. Dr. Mina Minovici, Institutul de Medicina Legala Bucuresti
0314230708; 0213321156 Sos. Vitan Barzesti, nr. 9-11, sector 4, |
||
| 11. |
Prof. Dr. Mina Minovici, Institutul de Medicina Legala Bucuresti
0314230700 ; 0213346260 Sos. Vitan Barzesti, nr. 9, sector 4, |
||
| 12. |
Dr. Victor Babes, Spitalul Clinic de Boli Infectioase si Tropicale Bucuresti
0213172727 / .28 / .29/ .30 (Centrala); Fax 021 3172721 Sos. Mihai Bravu, nr. 281, sector 3 , |
||
| 13. |
Centrul Medical Dr. Victor Babes-Bucuresti
0213179503; Fax: 0213179502 Sos. Mihai Bravu nr. 281, sector 3 , |
||
| 14. |
Spitalul Clinic de Boli Infectioase si Tropicale Dr. Victor Babes
0213172727 / .28 / .29/ .30 (Centrala); 0213172721 Sos. Mihai Bravu, nr. 281, sector 3, |
||
| 15. |
Gral Medical - Centrul Medical, Bucuresti
0213230000; 0724242259 (programari radiologie); Fax 0213230002 Str.Traian Popovici (fosta Unitatii), Nr. 79-91, Sector 3, Bucuresti |
||
| 16. |
Spitalul Clinic Judetean de Urgenta Ilfov + ambulatoriu-Bucuresti
Tel.021.3243312; 0213241161; Fax .0213243296 Bd. Basarabia nr. 49-51, sector 2 , |
||
| 17. |
Spitalul Clinic Judetean de Urgenta Ilfov
Tel.0213243312; 0213241161; Fax 0213243296 Bd. Basarabia nr. 49-51, sector 2, |
||
| 18. |
Institutul National de Medicina Sportiva
0213184704 ; 0213184705 ; 0213184706 Bd. Basarabia, nr. 37-39, sector 2, Bucuresti |
||
| 19. |
Clinica Memento Med-Bucuresti
0213260081 Str. Brailita, nr. 1, sector 3, |
||
| 20. |
Dr. V. Gomoiu, Centrul Medical Bucuresti
0314136700; 0314136701 Bd. Basarabia nr. 21, sector 2, |
||
| 21. |
Emergency Medical Care - Servicii medicale de urgenta la domiciliu Bucuresti & Ilfov
0799058058; 0732528136; 0314250213 Calea Vitan, Nr. 109B-109D, Sector 3, Bucuresti |
||
| 22. |
Dr. V. Gomoiu, Spitalul de Copii - Ambulatoriul de specialitate Bucuresti
0314136700; 0314136701; 0314136706 Bd. Basarabia, nr. 21, sector 2, |
||
| 23. |
Cabinet Medical Persepolis- Bucuresti
0749065961; 0751011893 Str. Vasile Toneanu , nr. 20, sector 3, |
||
| 24. |
Vitan Policlinica, Grupare de cabinete medicale - Bucuresti
0727451211; 0213234970; 0213221208 Calea Dudesti, Nr. 104-124, sector 3, Bucuresti |
||
| 25. |
Spitalul clinic de copii Dr. Victor Gomoiu
0314136700; 0314136701 Bd. Basarabia nr. 21, sector 2, |
||
| 26. |
Hipocrat 2000-clinica medicala-Bucuresti
0219605 Bd. Chisinau, nr. 16, sector 2, |
||
| 27. |
Spitalul Clinic Nicolae Malaxa + Ambulatoriu
0212555405; Fax: 0212555275 Sos. Vergului, Nr. 12, Sector 2 , Bucuresti |
||
| 28. |
Professional Klinic, Bucuresti - Tratament si analize
0314250805 ; 0742207755 Str.Agricultori, Nr. 115, bloc 79, Parter, Sector 3, Bucuresti |
||
| 29. |
Centrul Medical Endocenter-Bucuresti
Tel.0764671233; Fax 0213267660 Str. Arh. G. Sterian, nr. 8, sector 2, |
||
| 30. |
Policlinica Regina Maria Sun Plaza
0219268 Calea Vacaresti, nr.391, sector 4, mall Sun Plaza, etaj 2, intrarea prin mall, |
||
| 31. |
Spitalul Clinic Nicolae Malaxa + Ambulatoriu
Tel. 0212555405; Fax 0212555275 Sos. Vergului, nr. 12, sector 2, |
||
| 32. |
Medisan Family Clinic - Clinica medicala Bucuresti
0217955980 Str. Dr. Calin Ottoi, nr. 20-22, sector 2 |
||
| 33. |
Ambulatoriul spitalului Sf. Pantelimon
0212554090; Fax 0212554025 Sos. Pantelimon nr. 340-342, sector 2, |
||
| 34. |
Spitalul de Urgenta Sf. Pantelimon + ambulatoriu
0212554090; 0212554025 Sos. Pantelimon nr. 340-342, sector 2, |
||
| 35. |
Spitalul de Urgenta Sf. Pantelimon + ambulatoriu
0212554090; Fax .0212554099 Sos. Pantelimon nr. 340-342, sector 2, |
||
| 36. |
Spitalul de Boli Cronice Sf. Luca
0213343010; 0213343014 Sose. Berceni, nr. 12, sector 4, |
||
| 37. |
Cabinet Medical Alfa
Tel.0319495 Sos. Oltenitei, nr. 220, bl. 8, sc. 2, ap. 58, sector 4, |
||
| 38. |
Centrul Medical Hiperdia
0213021160; Tel/Fax: 0213340030 Sos. Berceni, Nr. 10-12, sector 4 (incinta Spitalului de Urgenta Bagdasar Arseni), Bucuresti |
||
| 39. |
Clinica Life-Med-Bucuresti
0319981 Str. Plugarilor , nr. 18,sector 4, |
||
| 40. |
Institutul National de Neurologie si Boli Neurovasculare Bucuresti
Tel. 0213343004 interior 1150, 1151 Sos. Berceni nr. 10-12, sector 4, |
||
| 41. |
Spitalul de Urgenta prof. dr. Bagdasar Arseni
Tel. 0213343025; Fax 0213347350; 0213343027 Sos. Berceni nr. 10-12, sector 4, |
||
| 42. |
Spitalul Clinic de Urgenta prof. dr. Bagdasar Arseni
0213343025; 0213343026; 0213343027 Sos. Berceni, nr. 10-12, sector 4, Bucuresti |
||
| 43. |
Spitalul de Psihiatrie Prof. Dr. Alexandru Obregia
Tel. 0213320411; 0213321304; 0213347164 Sos. Berceni, nr. 10-12, sector 4 , |
||
| 44. |
Spitalul de Psihiatrie Prof. Dr. Alexandru Obregia-Bucuresti
Tel. 0213320411; 0213321304; 0213347164 Sos. Berceni, nr. 10-12, sector 4 , |
||
| 45. |
Omnia Medical Center - Clinica medicala, Bucuresti
0213230034; 0728841841 Bd. Octavian Goga, Nr. 14, Bl. M61, Parter, Sector 3, Bucuresti |
||
| 46. |
Centrul Medical Amicus Med
Tel. 0766424841; Tel/Fax 0212508585 Sos. Iancului nr. 17, bl. 106C, sc. 1, ap. 4, sector 2, |
||
| 47. |
Policlinica Iancului-Bucuresti
Tel.0314255277 (laborator); 0212508490 (O.R.L.); 0212503333 Sos. Iancului , nr. 3, sector 2 , |
||
| 48. |
Centrul Medical Veridia-Bucuresti
0213029434 Str. Matei Basarab, nr. 45, sector 3, |
||
| 49. |
Spitalul Prof. Dr. Constantin Angelescu
0213233040; 0213233041 Aleea Cauzasi, nr. 49 - 51 sector 3, |
||
| 50. |
SPITALUL PROF. DR. CONSTANTIN ANGELESCU
0213233040; 0213233041 Aleea Cauzasi, nr. 49-51, sector 3, |
||
| 51. |
Village Medical Clinic - Centru medical Bucuresti
0212323580 Str. Constantin Kiritescu, nr. 27, sector 2, |
||
| 52. |
Centrul Medical Hiperdia-Bucuresti
0219338; Fax 0212507320 Str.Ritmului, nr. 24, sector 2, Bucuresti |
||
| 53. |
Da Vinci Medical Center
0791435957 Str. Amurgului, nr. 66M, Popesti-Leordeni, judetul Ilfov |
||
| 54. |
Centrul Medical Medcenter - Bucuresti
0800800599; 0213310599; Fax.0213310592 Sos.Berceni, nr.8, sector 4, |
||
| 55. |
Spitalul Clinic de Urgenta pentru Copii - M.S. Curie (Budimex) + ambulatoriu
0214603026; 0214601035 (Primiri Urgente); 0214604260 (Ambulatoriul) Bd. Constantin Brancoveanu, Nr. 20, Sector 4, Bucuresti |
||
| 56. |
Spitalul de Urgenta Prof. Doctor Dimitrie Gerota
0212523334; Fax 0212522829 Str. Vasile Vasilievici Stroescu, nr. 29-31, sector 2, |
||
| 57. |
Centrul Medical Focus
Tel. 0317111515; 0733072910 Bd. Ferdinand nr. 141, sector 2, |
||
| 58. |
Centrul de Diagnostic romano-german Medinst
0319902 Str.Sfanta Vineri, nr. 29, sector 3, |
||
| 59. |
Spitalul Clinic de Urgenta pentru Copii M.S. Curie + ambulatoriu
Tel. 0214604260; 0214603026 Bd. Constantin Brancoveanu, nr. 20, sector 4, |
||
| 60. |
Spitalul Clinic de Ortopedie Traumatologie Foisor-Bucuresti
Tel.0212520057; Fax.0212521387; 0310056786(progamari consultatii) Bd. Ferdinand, nr. 35-37, sector 2 , |
||
| 61. |
Spitalul Clinic de Ortopedie Traumatologie \"Foisor\" + ambulatoriu
Tel. 0310056786; 0212520057; Fax 0212521387 Bd. Ferdinand, nr. 35-37, sector 2, |
||
| 62. |
Podologica - Salon tratament pentru afectiunile picioarelor sector 4
0771458874 Bd. Dimitrie Cantemir, nr. 15, bl.9, sc.6, sector 4, |
||
| 63. |
Clinica Medicala On
.0213017676 Bd. Dimitrie Cantemir nr. 1, bl. B2, sc. 3, et. 2, sector 4, |
||
| 64. |
Cron Phoenix - Centru de Reabilitare Ortopedica si Neurologica pentru copii Bucuresti
0721567186; 0790667941 Piata Pache Protopopescu, nr. 9, sector 2 |
||
| 65. |
Prof. Dr. Dimitrie Gerota, Spitalul de Urgenta MAI - Bucuresti
0212523334 Str. Vasile Vasilievici Stroescu, nr. 29-31, sector 2, |
||
| vezi mai multe | |||
| 1. |
Profesia, Liceu profil Economic - Bucuresti
0213486638; 0787889809 Ilioara , Nr. 16 (in cladirea Scolii de Soferi), et. 2, sector 3 , Bucuresti |
||
| 2. |
Sfantul Ioan, Scoala Postliceala Sanitara - Bucuresti
0724355298; 0787889809 Str. Ilioara, nr. 16, et. 2, sector 3, Bucuresti |
||
| 3. |
Scoala Gimnaziala Nr. 92 - Bucuresti
0213480375 Aleea Vlahita, Nr. 1A, sector 3 |
||
| 4. |
Scoala Gimnaziala Nr. 112
0213483331 Str. Patulului, Nr. 2, Sector 3, Bucuresti |
||
| 5. |
Nicolae Labis, Scoala Gimnaziala Nr. 89 - Bucuresti
0213486271 Str. Firidei, Nr. 2, Sector 3, Bucuresti |
||
| 6. |
Scoala Gimnaziala Nr. 20 - Bucuresti
0213452485 Str. Prevederii, Nr. 19, Sector 3, Bucuresti |
||
| 7. |
Costin D. Nenitescu, Colegiul Tehnic - Bucuresti
0213450920 Bd. Theodor Pallady, Nr. 26, Sector 3, Bucuresti |
||
| 8. |
Liceul Teologic Baptist Logos Bucuresti
0213451072 Bd. Theodor Pallady, Nr. 26, sector 3, Bucuresti |
||
| 9. |
Dante Alighieri, Liceu teoretic - Bucuresti
0213481950; 0213481545 Aleea Fuiorului, Nr. 9, Sector 3, Bucuresti |
||
| 10. |
Scoala Gimnaziala Nr. 200 - Bucuresti
0213453119 Str. Postavarul, Nr. 13, Sector 3, Bucuresti |
||
| 11. |
Decebal, Liceul Bilingv - Bucuresti
0213469233 Bd. Energeticienilor, Nr. 9-11, Sector 3, Bucuresti |
||
| 12. |
Scoala Gimnaziala Nr. 149 - Bucuresti
0213451985 Aleea Perisoru, nr. 4, Sector 3, Bucuresti |
||
| 13. |
Scoala Gimnaziala Nr. 54 - Bucuresti
0213465143; 0310699824 Str. Istriei, Nr. 19, Sector 3 |
||
| 14. |
Scoala Gimnaziala Nr. 82 - Bucuresti
0213450962 Jean Steriad, Nr. 17, Sector 3, Bucuresti |
||
| 15. |
Hamburg, Scoala Gimnaziala Nr.195 - Bucuresti
0318058603 Str. Lunca Bradului, Nr. 2, sector 3, Bucuresti |
||
| 16. |
Scoala Gimnaziala Nr. 88 - Bucuresti
0213480445 Str. Odobesti, Nr. 3, Sector 3, |
||
| 17. |
Federico Garcia Lorca, Scoala Gimnaziala Nr.196
0213403710 Str. Cozla, nr. 2, sector 3, Bucuresti |
||
| 18. |
Scoala Gimnaziala Nr. 116
0213450102 Str. Gura Ialomitei, Nr. 20, Sector 3, Bucuresti |
||
| 19. |
Mihai Botez, Scoala Gimnaziala Nr. 87 - Bucuresti
0213462361 Str. Ramnicu Valcea, Nr. 32, Sector 3, Bucuresti |
||
| 20. |
Scoala Gimnaziala Nr. 86 - Bucuresti
0314250608 Intr. Reconstructiei, Nr. 6A, Sector 3, Bucuresti |
||
| 21. |
Mexic, Scoala Gimnaziala Nr. 22 - Bucuresti
0213401124 Bd. 1 Decembie 1918, Nr. 34, Sector 3, Bucuresti |
||
| 22. |
Scoala Gimnaziala Mexic - Bucuresti
0213401124 Bd. 1 Decembrie 1918, Nr. 34, sector 3 |
||
| 23. |
Alexandru Ioan Cuza, Liceu Teoretic - Bucuresti
0213404811 Aleea Barajul Dunarii, Nr. 5, sector 3, Bucuresti |
||
| 24. |
Liviu Rebreanu, Scoala Gimnaziala - Bucuresti
0213401845 Aleea Barajul Rovinari, Nr. 1, Sector 3, Bucuresti |
||
| 25. |
Traian Vuia, Liceu Tehnologic de Metrologie - Bucuresti
0213345915; 0372942097 Sos. Vitan Barzesti, Nr. 11, Sector 4, Bucuresti |
||
| 26. |
Liceul Economic nr. 1 - Bucuresti
0371417419 Sos. Vitan Barzesti, Nr. 11, Sector 4, Bucuresti |
||
| 27. |
Alexandru Ioan Cuza, Scoala Gimnaziala Nr. 199 - Bucuresti
0213243970 Bd. Nicolae Grigorescu, Nr. 14, Sector 3, Bucuresti |
||
| 28. |
Benjamin Franklin, Liceu teoretic - Bucuresti
0213244890; 0213243010 Str. Pictor Gh. Tattarescu, Nr. 1, sector 3, Bucuresti |
||
| 29. |
Colegiul Tehnic Mihai Bravu - Bucuresti
0213217699 Sos. Mihai Bravu, Nr. 428, Sector 3 |
||
| 30. |
Scoala Generala nr. 84 Nicolae Balcescu - Bucuresti
0213216391 Calea Vitan, Nr. 135, sector 3 |
||
| 31. |
Anghel Saligny, Colegiu Tehnic - Bucuresti
0213402654 Bd. Nicolae Grigorescu, Nr. 12, Sector 3, Bucuresti |
||
| 32. |
Scoala Gimnaziala Nr. 80 - Bucuresti
0213214256 Calea Dudesti, Nr. 191, Sector 3, Bucuresti |
||
| 33. |
Leonardo Da Vinci, Scoala Gimnaziala Nr.75 - Bucuresti
0213248676 Str. Pictor Gheorghe Petrascu, Nr. 55, Sector 3, Bucuresti |
||
| 34. |
Liceul Teoretic Nichita Stanescu - Bucuresti
0213400440 Str. Lucretiu Patrascanu, Nr. 12, Sector 3, Bucuresti |
||
| 35. |
Neagoe Basarab Voievod, Scoala Gimnaziala (fosta Nr.16) - Bucuresti
0213403313; 0374464076 Intr. Constantin Brancusi, nr. 7, sector 3, Bucuresti |
||
| 36. |
Magia Copilariei - After-school Bucuresti
0761912892 Strada Nucului, Nr. 55, Sector 3 |
||
| 37. |
About Scoala Metropolitana A.R.C
0314254343; 0722522198 Str. Esarfei, nr. 63-71, sector 3, |
||
| 38. |
Kidos - Before & after school, Bucuresti
0770775730 Bulevardul Nicolae Grigorescu, nr. 2 D, sector 3 |
||
| 39. |
Dimitrie Leonida, Colegiul Tehnic - Bucuresti
0213243294; 0213243295; 0213243293; 0213246902 Bd. Basarabia, Nr. 47, Sector 2, Bucuresti |
||
| 40. |
Liceul Teoretic Hyperion - Bucuresti
0311032803 Sos. Mihai Bravu, nr. 288C, sector 2 |
||
| 41. |
Ghelmez Petre, Scoala gimnaziala Nr. 58 - Bucuresti
0213245135 Str. Pescarusului, Nr. 124, Sector 2, Bucuresti |
||
| 42. |
Cezar Bolliac, Scoala Gimnaziala Nr. 70 - Bucuresti
0314040172 Intr. Tiglina, Nr. 37, Sector 3, Bucuresti |
||
| 43. |
Radu Popescu, Liceu Teoretic, Clasele I-XII si Gradinita - Popesti-Leordeni
0214673423; Fax 0213614022 Leordeni, Nr. 52, Popesti-Leordeni, judetul Ilfov |
||
| 44. |
Liceul Tehnologic Theodor Pallady - Bucuresti
0213453080 Bd. Theodor Pallady, Nr. 250, sector 3 |
||
| 45. |
Scoala Gimnaziala Nr. 95 - Bucuresti
0770503408; 0213235185 Str. Foisorului, Nr. 111-113, Sector 3, Bucuresti |
||
| 46. |
Liceul Tehnologic Dragomir Hurmuzescu - Bucuresti
0212560083 Bd. Basarabia, Nr. 256, sector 3 |
||
| 47. |
Montessori - Scoala si gradinita, Bucuresti
0754054402 Str. Maior Ion Coravu, Nr. 53, Sector 2 |
||
| 48. |
Scoala Gimnaziala Nr. 4 - Bucuresti
0212556425 Str. Herta, Nr. 14 A, Sector 2, Bucuresti |
||
| 49. |
Scoala Gimaziala Nr. 133 - Bucuresti
0213325837 Str. Stanjeneilor, Nr. 3, sector 4, Bucuresti |
||
| 50. |
BBIS Bucharest - Beirut International School
0744309199 Sos. Vergului, Nr. 14, Sector 2, Bucuresti |
||
| 51. |
Liceul Tehnologic Sfantul Pantelimon - Bucuresti
0212559943 Str. Hambarului, Nr. 12A, sector 2 |
||
| 52. |
Scoala Gimnaziala Nr. 113
0213322347 Str. Parincea, Nr. 4, Sector 4, Bucuresti |
||
| 53. |
Waldorf, Liceul Teoretic - Bucuresti
0212553051 Str. Sold. Marin Savu, Nr. 29, Sector 2, Bucuresti |
||
| 54. |
Victoria, Liceu Teoretic - Bucuresti
0314250543; 0759478014 Str. Turturelelor, nr. 11A, sector 3, Bucuresti |
||
| 55. |
Scoala Gimnaziala Nr. 67 - Bucuresti
0212560040 Str. Magnetului, Nr. 1-3, Sector 3, Bucuresti |
||
| 56. |
Liceul Teoretic International de Informatica Bucuresti
0213275443; 0213276570 Str. Balta Albina, Nr. 9, Sector 3, Bucuresti |
||
| 57. |
Liceul tehnologic special Regina Elisabeta - Bucuresti
0212506220 Str. Vatra Luminoasa, Nr. 108, sector 2 |
||
| 58. |
Scoala Gimnaziala Nr. 66 - Bucuresti
0212554580 Str. Logofatul Dan, Nr. 1, Sector 2, Bucuresti |
||
| 59. |
Liceul tehnologic Dacia - Bucuresti
0213344434 Str. Cap. Grigore Marin, Nr. 42-44, sector 4 |
||
| 60. |
Spectrum, Scoala primara - Bucuresti
0213443344; 0722654161 Str. Balta Albina, Nr. 9, Sector 3, Bucuresti |
||
| 61. |
Emil Racovita, Colegiul National - Bucuresti
0213217092; Fax 0213217092 Sos. Mihai Bravu , nr. 169, sector 2, |
||
| 62. |
Eremia Grigorescu, Scoala Gimnaziala - Bucuresti
0213349243 Str. Capitan Eremia Popescu, Nr. 27, Sector 4, Bucuresti |
||
| 63. |
Scoala Gimnaziala Nr. 51 - Bucuresti
0212554060 Str. Herta, Nr. 1, Sector 2, Bucuresti |
||
| 64. |
Scoala Gimnaziala Nr. 49 - Bucuresti
0212502444 Str. Vatra Luminoasa, Nr. 99, Sector 2, Bucuresti |
||
| 65. |
Scoala Gimnaziala Nr. 55 - Bucuresti
0212561066 Sos. Industriilor, Nr. 46, Sector 3, Bucuresti |
||
| 66. |
Scoala Gimnaziala SEB - Bucuresti
0314249675; 074502274 Str. Martisor, Nr. 22, sector 4 |
||
| 67. |
Scoala Gimnaziala Nr. 62 - Bucuresti
0212553635 Str. Potarnichii, Nr. 3, Sector 2, Bucuresti |
||
| 68. |
Scoala Gimnaziala Nr. 77 - Bucuresti
0212553945 Sos. Pantelimon, Nr. 289, sector 2 |
||
| 69. |
Colegiul Tehnic Petru Rares - Bucuresti
0213304001 Str. V. V. Stanciu, nr. 6, sector 4 |
||
| 70. |
Pick Me Academy - Scoala Primara Bucuresti
0726000640; 0722391000 Strada Agricultori, Nr. 79, Sector 2, Scoala Primara |
||
| 71. |
Lucian Blaga, Liceu teoretic - Bucuresti
0212551265; 0786108825 Sos. Pantelimon, Nr. 355, Sector 2, Bucuresti |
||
| 72. |
Mihai Eminescu, Colegiul National - Bucuresti
0213304001 Str. V.V. Stanciu, Nr. 6 , Sector 4, Bucuresti |
||
| 73. |
International Premium School of Bucharest
0745028876; 0213345324 Soseaua Berceni, Nr. 24, Sector 4 |
||
| 74. |
Scoala Gimnaziala Nr. 190 - Bucuresti
0213324689 Str. Nitu Vasile, Nr. 16, Sector 4, Bucuresti |
||
| 75. |
Scoala Gimnaziala Nr. 120 Martisor - Bucuresti
0213325811 Str. Martisor, Nr. 39, sector 4 |
||
| 76. |
Mirunette Education, Consiliere si Programe Educationale - Bucuresti
0212101602 Valeriu Braniste, Nr. 37-39, Etaj 1, Ap. 3, Cam. 3, Sector 3, Bucuresti |
||
| 77. |
Kids Kingdom - Before & After School Bucuresti
0799199627 Intrarea Traian Demetrescu, Nr. 8, sector 3 |
||
| 78. |
Scoala Gimnaziala Nr. 81 - Bucuresti
0213263220 Str. Nerva Traian, Nr. 33, Sector 3, Bucuresti |
||
| 79. |
Serban, Scoala de Meserii - Bucuresti
0722302252; 0212520382 Intrarea Baritonului, Nr. 9 (prin Str. Matei Voievod Nr. 81-83), Sector 2, Bucuresti |
||
| 80. |
Scoala Gimnaziala Nr. 46 - Bucuresti
0212502527 Str. Stanescu Gheorghe, Nr. 2-18, sector 2 |
||
| 81. |
Carol Davila, Scoala Sanitara Postliceala - Bucuresti
0216107068 Str. Agricultori, nr. 35, 37-39 (cladirea Codecs), sector 2, |
||
| 82. |
Emil Racovita, Scoala Gimnaziala Nr. 93 - Bucuresti
0214610831 Aleea Emil Racovita, Nr. 1, Sector 4, Bucuresti |
||
| 83. |
Scoala Gimnaziala Nr. 78 - Bucuresti
0212563261 Sos. Gara Catelu, Nr. 50, Sector 3, Bucuresti |
||
| 84. |
Scoala Gimnaziala Nr. 85
0212524520 Str. Dr. Constantin Zlatescu, Nr. 7A, sector 2, Bucuresti |
||
| 85. |
Scoala Gimnaziala Nr. 78 - Bucuresti
0212563261 Sos. Garii Catelu, Nr. 50, Sector 3 |
||
| 86. |
Sweet Babies - Cresa, gradinita, after school, Bucuresti
0785810011 Strada Teleajen, 26B, sector 2 |
||
| 87. |
Scoala Gimnaziala Nr. 97 - Bucuresti
0213302545 Str. Viorele, Nr. 7, Sector 4, Bucuresti |
||
| 88. |
International British School - Bucuresti
0212531698; 0745340841 Str. Agricultori, Nr. 21-25, Sector 2, Bucuresti |
||
| 89. |
Marin Sorescu, Scoala Gimnaziala Nr. 194 - Bucuresti
0214610790 Bd. Alexandru Obregia, Nr. 3A, Sector 4, Bucuresti |
||
| 90. |
Anastasia Popescu, Liceu Pedagogic Ortodox - Bucuresti
0212524665; 0725519386; 0722805777 Popa Nan, 47 B, Sector 2, Bucuresti |
||
| 91. |
Montessano - Scoala primara si gradinita, Bucuresti
0724924070; 0724919711 Str. Labirint, nr. 97-99, sector 3 |
||
| 92. |
Scoala Gimnaziala Nr. 96 Bucuresti
0214610108 Str. Rezonantei, nr. 2, sector 4, |
||
| 93. |
Scoala Gimnaziala Nr. 47 - Bucuresti
0212564666; 0212561512 Sos. Garii Catelu, Nr. 132, Sector 3, Bucuresti |
||
| 94. |
Scoala Gimnaziala Nr. 189 - Bucuresti
0214610040 Aleea Ciceu, Nr. 12, Sector 4, Bucuresti |
||
| 95. |
Scoala Gimnaziala Nr. 56 - Bucuresti
0212524125; 0733087815 Bd. Pache Protopopescu, Nr. 109A, Sector 2, Bucuresti |
||
| 96. |
Mihai Ionescu, Gradinita, Gimnaziu si Liceu - Bucuresti
0213235495; 0314054929 Cauzasi, Nr. 43, Sector 3 , Bucuresti |
||
| 97. |
Scoala Gimnaziala Nr. 64 Ferdinand I - Bucuresti
0213351410 Bd. Garii Obor, Nr. 16, Sector 2 |
||
| 98. |
Colegiul National Octav Onicescu - Bucuresti
0214603544 Str. Trivale, Nr. 29, Sector 4 |
||
| 99. |
Mihai Viteazu, Colegiul National - Bucuresti
0212525700; 0212525871 Bd. Pache Protopopescu, Nr. 62, Sector 2, Bucuresti |
||
| 100. |
Mihai Ionescu, Scoala Primara, Gimnaziu, Liceu - Bucuresti
0213235495 Str. Cauzasi, Nr. 43, Sector 3, Bucuresti |
||
| 101. |
Liceul Teologic Adventist Stefan Demetrescu Bucuresti
0213345015 Bd. Metalurgiei, nr. 89, sector 4 |
||
| 102. |
Scoala Gimnaziala Nr. 3 - Popesti Leordeni
0374090370 Str. Domnita Balasa, Nr. 13, Popesti Leordeni, judetul Ilfov |
||
| 103. |
Matei Basarab, Colegiul National - Bucuresti
0213216640 Str. Matei Basarab, Nr. 32, Sector 3, Bucuresti |
||
| 104. |
Penticostal Emanuel, Liceul Teologic - Bucuresti
0213311669 Str. Cuza Voda, Nr. 116, Sector 4, Bucuresti |
||
| 105. |
Scoala Gimnaziala Iancului Nr. 52
0212522260 Bd. Pache Protopopescu, Nr. 50, Sector 2, Bucuresti |
||
| 106. |
Scoala Gimnaziala de Arte nr. 2 - Bucuresti
0212525703 Bd. Ferdinand I, Nr. 128, Sectorul 2 |
||
| 107. |
International School of Bucharest - Liceu
0213069530; 0213069534; 0213069544 Soseaua Garii Catelu, Nr. 1R, Bucuresti |
||
| 108. |
Miron Nicolescu, Colegiul Tehnic - Bucuresti
0213344117 Bd. Metalurgiei, Nr. 89, Sector 4, Bucuresti |
||
| 109. |
Scoala de Arta Bucuresti
0213306700 Str. Cuza Voda, nr. 100, |
||
| 110. |
A.D. Xenopol, Colegiul Economic - Bucuresti
0213205719 Str. Traian, Nr. 165, Sector 2, Bucuresti |
||
| 111. |
Apollo Kids - Scoala Primara si Gradinita Ilfov
0730742782 Drumul Fermei, Nr. 101, Popesti Leordeni, judetul Ilfov |
||
| 112. |
Barbu Delavrancea, Scoala Gimnaziala Nr.73 - Bucuresti
0213237390 Str. Matei Basarab, Nr. 28-30, Sector 3, Bucuresti |
||
| 113. |
Seminarul Teologic Ortodox Bucuresti
0213305754; 0731205629; 0213305754 Str. Radu Voda, Nr. 24 A, Sector 4, Bucuresti |
||
| 114. |
Laude-Reut, Complex Educational Bucuresti
0314382046; 0318055772 Str. Clucerul Udricani, Nr. 12, Sector 3, Bucuresti |
||
| 115. |
Gheorghe Sincai, Colegiul National - Bucuresti
0213369004; 0213361455 Calea Serban Voda, Nr. 167, Sector 4, Bucuresti |
||
| 116. |
Iulia Hasdeu, Colegiu National - Bucuresti
0212524508 Bd. Ferdinand, Nr. 91, Sector 2, Bucuresti |
||
| 117. |
Mihail Sadoveanu, Liceu teoretic - Bucuresti
0212527856 Str. Popa Lazar, Nr. 8A, Sector 2, Bucuresti |
||
| 118. |
Ady Endre, Liceu Teoretic - Bucuresti
0212520192 Bd. Ferdinand I, Nr. 89, Sector 2, Bucuresti |
||
| 119. |
Scoala Gimnaziala Nr. 79 - Bucuresti
0314257884 Str. Cuza Voda, Nr. 51, Sector 4, Bucuresti |
||
| 120. |
Ion Creanga Colegiu National - Bucuresti
0213362695 Str. Cuza Voda, Nr. 51, sector 4, Bucuresti |
||
| 121. |
Ion I.C. Bratianu, Liceu Tehnologic - Bucuresti
0310699448 Str. Popa Lazar, Nr. 8A, Sector 2, Bucuresti |
||
| 122. |
Liceul Tehnologic Nikola Tesla - Bucuresti
0212527886 Sos. Pantelimon, Nr. 25, sector 2 |
||
| 123. |
Scoala Gimnaziala Nr. 108
0214610039 Str. Vatra Dornei, nr. 8, sector 4, Bucuresti |
||
| 124. |
Scoala Gimnaziala Nr. 108 - Bucuresti
0214610039 Str. Vatra Dornei, Nr. 8, sector 4 |
||
| vezi mai multe | |||
| 1. |
Taverna Fierarilor - Restaurant Bucuresti
0758105629 Str.Ilioara, Nr. 18, Sector 3, |
||
| 2. |
Ilioara - Restaurant si piscina Bucuresti
0766379289; 0721244247 Strada Ilioara, Nr. 16L, sector 3 |
||
| 3. |
Marenka - Cofetarie Bucuresti
0728028827; 0736273652 Bulevardul Theodor Pallady, Nr. 21, Sector 3 |
||
| 4. |
Casa Dante - Restaurant cu specific italian, Bucuresti
0314358069 Strada Rotunda, nr 4C, sector 3 |
||
| 5. |
Savi - Restaurant si club biliard Bucuresti
0775123051; 0722418555 B-dul 1 Decembrie 1918, Nr. 56L, Sector 3 |
||
| 6. |
Eleven - Restaurant Bucuresti
0723211222; 0786112411 Strada Postavarul, Nr. 86-90, sector 3 |
||
| 7. |
L\'incontro, Restaurant - Bucuresti
0732113702; 0751906137; 0767241745 Postavarul, Nr. 92, Sector 3, Bucuresti |
||
| 8. |
Trattoria Venti - Restaurant Bucuresti
0731315513 Str Postavarului, Nr. 84, Sector 3 |
||
| 9. |
Xanadu Restaurant - Bucuresti
0726212114; 0722621717 Postavarul, Nr. 102, Sector 3, Bucuresti |
||
| 10. |
Casa Anca 72, Restaurant - Bucuresti
0724334499; 0744777499 Bd. 1 Decembrie 1918 , Nr. 56A, Sector 3, Bucuresti |
||
| 11. |
Xanadu Restaurant, Pub - Bucuresti
0726212114; 0722621717 Postavarului, Nr. 102, Sector 3, Bucuresti |
||
| 12. |
Ressu Restaurant & Lounge - Bucuresti
0723774485; 0731607646; B-dul Camil Ressu, Nr. 70 A, Sector 3, Bucuresti |
||
| 13. |
Vio Cofetarie - Bucuresti
0213412082 Bd. Nicolae Grigorescu, Nr. 20, Sector 3, Bucuresti |
||
| 14. |
Allegro Restaurant - Bucuresti
0751055536; 0744649177 Bd. Nicolae Grigorescu, Nr. 20A, Sector 3, Bucuresti |
||
| 15. |
Shaormeria Titan - Fast food Bucuresti
0771332861; 0755864686 Bd. Nicolae Grigorescu, Nr. 20, Sector 3 |
||
| 16. |
Queen Events - Salon evenimente
0723154564; 0724605209 Splaiul Unirii, Nr. 773-777, Sector 3 |
||
| 17. |
Camizo, Restaurant - Bucuresti
0733018778 Prisaca Dornei, Nr.10A, Sector 3, Bucuresti |
||
| 18. |
Casa Luminita, Restaurant - Bucuresti
0749202000 (Lucian Ionescu); 0723500565 Theodor Pallady, Nr. 287, Sector 3 (zona Ozana), Bucuresti |
||
| 19. |
Talla - Cofetarie Bucuresti
0728314326 Str. Aleea Mizil, Sector 3 |
||
| 20. |
Gloria Jean\'s Coffees Romania
0760107884 Bd.Liviu Rebreanu, nr. 4, sector 3 - Mall Park Lake, Bucuresti |
||
| 21. |
KLANdestin - Restaurant Bucuresti
0731954592 Str. Liviu Rebreanu, Nr. 6A, Sector 3 |
||
| 22. |
Cartofisserie - Restaurant cu bufet Bucuresti
0726330960;0740215433 Liviu Rebreanu, Nr. 4 (ParkLake Shopping Center Mall) |
||
| 23. |
Chef Gabrielle - Restaurant, Bucuresti
0766066406 Strada Tomis, Nr. 5A, Sector 3 |
||
| 24. |
Irina Casa cu Prajituri, Cofetarie - Bucuresti
0731323192 Liviu Rebreanu, Nr.12, bl. K2, Cartier Titan Sector 3, Bucuresti |
||
| 25. |
Gemenii Pizza - Bucuresti
0766633686 Strada Fetesti, Nr. 11A, Sector 3 |
||
| 26. |
Pizzeria Florina - Bucuresti
0219285 Strada Nicolae Pascu, nr.1A, sectorul 3 |
||
| 27. |
Jerry\'s Pizza - Bucuresti
0373303030 Calea Vitan, Nr. 236, Sector 3, Bucuresti |
||
| 28. |
Restaurant Paunita - Bucuresti
0724145707 Bulevardul Nicolae Grigorescu, Nr. 31A, sector 3 |
||
| 29. |
Alba, Restaurant - Bucuresti
0213404491; 0722820287 Liviu Rebreanu , Nr. 29 A, Sector. 3, Bucuresti |
||
| 30. |
Vibes Cafe - Restaurant terasa Bucuresti
0788221270 Liviu Rebreanu, Nr. 29, Sector 3 |
||
| 31. |
La Tramvai - Terasa Bucuresti
0729166021 Parcul Alexandru Ioan Cuza (I.O.R). intersectie Campia Libertatii, sector 3 |
||
| 32. |
Benjamins Restaurant - Nunti, botezuri, evenimente, Bucuresti
0724248428 Sos.Vitan-Barzesti, Nr. 5, Sector 4, Bucuresti |
||
| 33. |
Altfel, Cofetarie - Bucuresti
0213454005; 0744347848; 0741553448 Bd 1 Decembrie 1918, Nr 21 ,Sector 3, Bucuresti |
||
| 34. |
Cofetariile Georgy\'s, Cofetarie,torturi - Bucuresti
0733060230; 0730618742 Ramnicu Valcea, Nr. 14, Sector 3, Bucuresti |
||
| 35. |
Monza, Trattorie si Restaurant - Bucuresti
0724802802; 0722661166; 0769200002 Baba Novac, Nr. 25, Sector 3, Bucuresti |
||
| 36. |
Papaciu - Bistro, Bucuresti
0724200070; 0724955952 Strada Complexului, Nr 3A, sector 3 |
||
| 37. |
Arancini - Restaurant cu specific sicilian
0756490490 Str. Papadiei, Nr. 16-18, sector 3 |
||
| 38. |
Monza, Trattorie si Restaurant - Bucuresti
0722661166; 0769200002; 0724802802 Baba Novac, Nr. 25, Sector 3, Bucuresti |
||
| 39. |
Ribs Bar&Grill - Restaurant american, Bucuresti
0720788818 Str. Constantin Brancusi, Nr. 13, Complex Potcoava, sector 3 |
||
| 40. |
Gustul Pasiunii Cofetarie - Bucuresti
0728941816 Racari, Nr. 5, sector 3, Bucuresti |
||
| 41. |
Pizza Apetito - Bucuresti
0770225215 Eufrosina Popescu, Nr. 57, sector 3, |
||
| 42. |
Myti Pizza - Pizzerie, Bucuresti
0734378358; 0744478578 Bulevardul 1 Decembrie, Nr 7 D, sector 3 |
||
| 43. |
Strada Rustica - Pizzerie Bucuresti
0213248303; 0768676765; 0728886914 Str. Baba Novac, Nr 9, Complex Rucar, Sector 3 |
||
| 44. |
Casa Tosca, Cofetarie - Bucuresti
0213461297 Bd. Camil Ressu, Nr. 1, Sector 3, Bucuresti |
||
| 45. |
Gili Pizza - Bucuresti
0213242387 Str. Baba Novac, Nr. 9-11, Sector 3 |
||
| 46. |
La Sediu - Restaurant Bucuresti
0760729007 Campia Libertatii, Nr. 54, sector 3 |
||
| 47. |
Armonia Cofetarie - Bucuresti
0213244020 ; 0722616180 Campia Libertatii, Nr. 46 , bl. 52 , Parter , Sector 3, Bucuresti |
||
| 48. |
Stejarului 57 - Social Bar, Bucuresti
0748701058 Strada Fildesului, Nr. 2, sector 3 |
||
| 49. |
Bravu Burger & Crepes - Restaurant fast-food, Bucuresti
0722118100 Soseaua Mihai Bravu, Nr 452 - 460, sector 2 |
||
| 50. |
Qian Bao, Restaurant chinezesc - Bucuresti
0722622865; 0314306616 Intrarea Baba Novac, Nr. 2, Sector 3, Bucuresti |
||
| 51. |
Mateo Fast Food
0728199827; 0752777333; 0314362033 Strada Dristorului, Nr. 87, sector 3 |
||
| 52. |
Taverna Baba Novac, Restaurant - Bucuresti
0771544334; 0760010784 Intrarea Baba Novac, Nr. 3, Sector 3, Bucuresti |
||
| 53. |
Fire House Restaurant
0790409234 Drumul Gura Crivatului, nr. 80, Sector 3, Bucharest |
||
| 54. |
Bellagio Villa Restaurant - Bucuresti
0213440661; 0771120177 Vrejului, Nr. 21, Sector 3, Bucuresti |
||
| 55. |
Green Bistro - Terasa Bucuresti
0728237731 Parcul Gheorghe Patrascu, |
||
| 56. |
Casa Dragonului, Restaurant Bucuresti
0213202666; 0761929019 Calea Dudesti, nr. 198, sector 3, Bucuresti |
||
| 57. |
Erra - Restaurant cu specific european modern, Bucuresti
0734983984 Str. Constantin Nottara, Nr 13, sector 3 |
||
| 58. |
Friends Pub - Bucuresti
0728197287 Bucovina , Nr. 6, Sector 3, Bucuresti |
||
| 59. |
Sham Sweet, Cofetarie - Bucuresti
0748242455 Bd. Basarabia, Nr.98, Sector 3, Bucuresti |
||
| 60. |
7 Days - Restaurant cu terasa, organizari evenimente, Bucuresti
0769042751; 0213241358 Str. Campia Libertatii, Nr. 23, Sector 3, Bucuresti |
||
| 61. |
Sabatini Pizza, Restaurant - Bucuresti
0314266069; 0737148520; 0784699751 B-dul Basarabia, Nr. 108, Bucuresti |
||
| 62. |
Damascus Palace - Restaurant Bucuresti
0746696666; 0756616666 Bld. Basarabia, Nr. 98, sector 2, |
||
| 63. |
La Patrascu - Restaurant Bucuresti
0771635003; 0767561149; 0754422491 Str. Prof. Stefan Nicolau, Nr. 2A, Sector 3 |
||
| 64. |
Casa Diham - Restaurant Bucuresti
0213406006; 0727171220 Bd. Nicolae Grigorescu, Nr. 1 A, Sector 3 |
||
| 65. |
Ivan\'s bar & grill - Restaurant traditional, Bucuresti
0723893545;0737276284 Bulevardul Basarabia, Nr. 170 - 174, sector 2 |
||
| 66. |
Gedi, Restaurant - Bucuresti
0371119901; 0734207029 Bd. Basarabia, Nr. 176 B, Sector 2, Bucuresti |
||
| 67. |
La Dolceria, Cofetarie - Bucuresti
0724315256 Basarabia, Nr.55, M22, Sector 3, Bucuresti |
||
| 68. |
Bistro 37-39 - Restaurant Bucuresti
0731355939 Bulevardul Basarabia, Nr. 37-39 , Sector 3 |
||
| 69. |
Pajo Garden - Restaurant Bucuresti
0751227228 Bulevardul Basarabiei, Nt. 37-39, sector 2 |
||
| 70. |
Tosca Food - Pizzerie Bucuresti
0756435785;0757170957 Strada Intrarea Muncii, Nr. 23, sector 3 |
||
| 71. |
Greekos Urban Food - Restaurant fast-food, Bucuresti
0726646976 Soseaua Mihai Bravu, Nr. 247, sector 3 |
||
| 72. |
Pizza Venetia, Pizzerie si catering - Bucuresti
0720800100; 0213204424; Fax: 0720800100 Dristorului, Nr.59, Sector 3, Bucuresti |
||
| 73. |
Cofetaria Andreea
0213228845; 0728877033 Sos. Mihai Bravu , Nr. 286, sector 3, Bucuresti |
||
| 74. |
Andreea, Cofetarie, torturi si patiserie - Bucuresti
0728877033; 0213228845 Bulevardul Mihai Bravu, Nr. 286, Sector 3, Bucuresti |
||
| 75. |
Alouette - Restaurant cu specific international, Bucuresti
0746339793 Splaiul Unirii, Nr. 168, sector 4, |
||
| 76. |
Agapi Bistro - Restaurant cu specific international, Popesti-Leordeni
0721462102 Sos. Oltenitei, Nr. 45, Popesti-Leordeni, , judetul Ilfov |
||
| 77. |
Riviera Park, Restaurant - Bucuresti
0732408408 Bd. Basarabia , Nr. 23 (Parcul National), Sector 2, Bucuresti |
||
| 78. |
Atelierul de dulciuri - Torturi de casa, Ilfov
0761622331 Sos.Oltenitei, nr 24, Popesti Leordeni, judetul Ilfov |
||
| 79. |
Rainbow - Bar & Grill, Bucuresti
0743205054 Cornul Caprei, nr.53, sector 3 |
||
| 80. |
Giorginio Cofetarie - Bucuresti
0722434002 Calea Dudesti, Nr. 129 (colt cu str. Scoala Ciocanul) Sector 3, Bucuresti |
||
| 81. |
La Paraul Rece, Restaurant - Popesti Leordeni
0731003133; 0731003132 Soseaua Oltenitei , Nr.26A, Popesti-Leordeni , judetul Ilfov |
||
| 82. |
Athos Pizza & Bistro - Livrare non stop, Bucuresti
0213344287; 0728276192 Sos Oltenitei, Nr. 250 Berceni Ira |
||
| 83. |
El Bacha, Restaurant - Bucuresti
0212691392; 0722833333 P-ta Alba Iulia, nr.6 bl.15, sector 3, |
||
| 84. |
Resto Aperto, Restaurant - Bucuresti
0738741118 Calea Vitan , Nr.55-59(Bucuresti Mall) Sector 3, Bucuresti |
||
| 85. |
Gio Cafe - Bucuresti
0730030757 Bd. Burebista, Nr.2 , Sector 3, Bucuresti |
||
| 86. |
La Mosu - Restaurant Bucuresti
0765523208; 0314382508 Soseaua Oltenitei, Nr. 197, Sector 4 |
||
| 87. |
NoName, Restaurant - Bucuresti
0761280642 (Mioara); 0732381801 (Adrian) Mariuca, Nr 1A,Sector 4, Bucuresti |
||
| 88. |
NoName, Restaurant si Terasa - Bucuresti
0761280642 Mariuca, Nr 1A,Sector 4, Bucuresti |
||
| 89. |
Nikos Greek Taverna, Restaurant - Bucuresti
0730001008 (Restaurant); 0215999099 (Livrari) B-dul Burebista, Nr 2 (Piata Alba Iulia), Sector 3, Bucuresti |
||
| 90. |
Resto Aperto, Restaurant - Bucuresti
0738741118 Calea Vitan, Nr.55-59 (Bucuresti Mall) Sector 3, Bucuresti |
||
| 91. |
Gallo Nero, Restaurant - Bucuresti
0726544889; 0213268128 Bd. Decebal, Nr. 12, Sector 3, Bucuresti |
||
| 92. |
Snap - Restaurant, Bucuresti
0738888885 Bulevard Decebal, nr. 13, sector 3 |
||
| 93. |
BigBoy - Pizzerie Bucuresti
0725570450; 0760925495 Soseaua Vergului, Nr. 8, Sector 3 |
||
| 94. |
Duman - Restaurant cu specific oriental, Bucuresti
0738170063 Bulevardul Decebal, Nr. 13, sector 3 |
||
| 95. |
Rich Vip Lounge - Restaurant Bucuresti
0771790764 Bd.Decebal, Nr 9, sector 3 |
||
| 96. |
Terasa Sport House - Restaurant fast-food, Bucuresti
0755080224 Maior Ion Coravu, numarul 34, sector 2 |
||
| 97. |
Agio Bistrot - Bistro, Bucuresti
0763528818 Bd. Decebal, Nr. 9, sector 3 |
||
| 98. |
Funky Lounge - Terasa, Bucuresti
0755505505 Bd. Decebal, nr 9, sector 3 |
||
| 99. |
Casa Lica - Cofetarie Bucuresti
0725761188 Bulevardul Decebal, Nr. 5, Sector 3 |
||
| 100. |
Arogant - Restaurant & Lounge, Bucuresti
0732764268 Piata Alba Iulia Piata Alba Iulia, nr 8, sector 3 |
||
| 101. |
XO Lounge - Restaurant Bucuresti
0725585388 B-dul Decebal, Nr. 5, sector 3 |
||
| 102. |
Tress Caffe&Lounge - Bucuresti
0721988801 Bulevardul Decebal, Nr 3, sector 3 |
||
| 103. |
Lotus Cafe - Cafenea restaurant Bucuresti
0722808389 Bd. Decebal, Nr 1, sector 3 |
||
| 104. |
Il Bocconcino
0729451049 Miraslau, 26, Popesti Leordeni, judetul Ilfov |
||
| 105. |
Restaurant Ali Baba - Specific oriental, Bucuresti
0213274810; 0722707208 Sos. Mihai Bravu, Nr. 213, sector 2, Bucuresti |
||
| 106. |
Hop Garden - Restaurant cu preparate la gratar, Bucuresti
0770448443 Splaiul Unirii, Nr. 225, sector 3 |
||
| 107. |
Padthai - Restaurant Bucuresti
0726637747 Bulevardul Decebal, Nr. 3, sector 3 |
||
| 108. |
Santorini - Restaurant specific grecesc Bucuresti
0748333334 Bulevardul Mihai Bravu, Nr. 209, Sector 2 |
||
| 109. |
Casa Jienilor Agricultori, Restaurant - Bucuresti
0735994994 Agricultori, Nr.12, Sector 2, Bucuresti |
||
| 110. |
Casa Pizza - Pizzerie, Bucuresti
0746544815; 0720923622 Str. Mariuca, nr. 23A, sector 4 |
||
| 111. |
Turquoise - Restaurant cu specific oriental, Bucuresti
0731826222 Strada Theodor D. Sperantia, Nr. 96, sector 3 |
||
| 112. |
Carina Sweets - Cofetarie Bucuresti
0771261485 Sos Oltenitei, Nr. 230, Sector 4 |
||
| 113. |
King Rolls - Fast Food Bucuresti
0747887206 Calea Vitan, Nr. 17A, sector 3 |
||
| 114. |
Mazzaj Cafe - Restaurant cu specific libanez, Bucuresti
0757292398 Splaiul Unirii, Nr. 162, sector 4 |
||
| 115. |
Kentucky Fried Chicken KFC, Fast Food - Bucuresti
0757015948; 0212039030; 0213120023 Soseaua Oltenitei, Nr.85, Sector 4, Bucuresti |
||
| 116. |
Simple - Restaurant cu preparate la gratar, Bucuresti
0799779988 Strada Frumusani, Nr. 8A, Sector 4 |
||
| 117. |
La Ciotoianu - Restaurant cu preparate la gratar, Ilfov
0744505073 Strada Miraslau, 37-39, Popesti-Leordeni, judetul Ilfov |
||
| 118. |
Restaurant La Sulea
0728670862; 0722265639 Soseaua Oltenitei, Nr. 133, Popesti Leordeni, judetul Ilfov |
||
| 119. |
Din Fu - Restaurant chinezesc Bucuresti
0729313338; 0213260127 Str. Alexandru Moruzzi, Nr. 76A, Sector 3 |
||
| 120. |
Hanul Vacaresti - Restaurant fast-food, Bucuresti
0786200300 Strada Pridvorului, nr. 23, sector 4 |
||
| 121. |
Old Mike Pub si Restaurant - Bucuresti
0787366166 Morilor, Nr. 46 Sector 3, Bucuresti |
||
| 122. |
Hanul Haiducilor, Restaurant - Bucuresti
0213307207; 0771756566 Pridvorului, Nr. 25 (In incinta Strandul Copiilor Vacaresti) , Sector 4, Bucuresti |
||
| 123. |
Casa Morarilor - Restaurant, Bucuresti
0765064409 Soseaua Morarilor, Nr. 2 |
||
| 124. |
Cofetaria Harissa - Cofetarie specializata in briose, Ilfov
0767979934;0764444428 Soseaua Oltenitei, nr. 91, Popesti Leordeni, judetul Ilfov |
||
| 125. |
La Machedoni - Restaurant cu specific traditional romanesc si american
0721512236 Anastasie Panu, nr. 10, sector 3 |
||
| 126. |
Bistro Turturelelor - Restaurant, Bucuresti
0726310583; 0758887454 Strada Turturelelor, 11A, corpC, Parter, Sector 3 |
||
| 127. |
Ubuntu Coffee - Terasa, Bucuresti
0758635771 Splaiul Unirii, Nr. 195, sector 3 |
||
| 128. |
Zatara - Restaurant cu influente mediteraneene, Bucuresti
0771670756 Vatra Luminoasa, Nr. 108, sector 2 |
||
| 129. |
Casa Pedro, Restaurant - Bucuresti
0722502715; 0212560209; 0722533499 Soseaua Industriilor, Nr. 30 (colt cu Str. Rodnei) ,Sector 3 , Bucuresti |
||
| 130. |
Trattoria la Nave - Restaurant Bucuresti
0743454626 Sos. Pantelimon, Nr. 264, Sector 2 |
||
| 131. |
Paradis, Cofetarie - Bucuresti
0724398400 Sos Pantelimon, Nr.354,Bloc 2, Sector 2, Bucuresti |
||
| 132. |
Casa Pedro - Restaurant si salon evenimente Bucuresti
0726456687 Strada Industriilor, Nr 30, sector 3 |
||
| 133. |
Trattoria Fresca - Restaurant cu specific italian, Bucuresti
0731333410 Str.Popa Nan, nr.140, Sector 2 |
||
| 134. |
Michelle - Cofetarie, Bucuresti
0213340084; 0723384312 Soseaua Berceni, Nr. 35, bl. 104, sector 4 |
||
| 135. |
La Mama - Restaurant Bucuresti
0721526262 Strada Delea Veche, Nr. 51, sector 2 |
||
| 136. |
Babylon Fast Food - Bucuresti
0799666267 Soseaua Pantelimon, nr. 255, sector 2 |
||
| 137. |
Restaurant Grill Verdetei 5 - Restaurant cu preparate la gratar, Bucuresti
0766411338 Strada Verdetei, nr. 5, sector 3 |
||
| 138. |
Casa Lefter - Restaurant Bucuresti
0723568402; 0743127330 Strada Lt. Ionescu Baican, Nr. 57, sector 2 |
||
| 139. |
La Coana Mare - Cofetarie Bucuresti
0771512035 Strada Magura Vulturului, Nr. 2, sector 2 |
||
| 140. |
Pizzeria Da Constantino - Bucuresti
0763032712 Strada Oituz, Nr 85, Popesti-Leordeni, judetul Ilfov |
||
| 141. |
Volare - Pizzerie, Bucuresti
0730622600 Calea Vacaresti, Nr.203B, sector 4 |
||
| 142. |
Casa Brancoveanu Restaurant - Bucuresti
0724640000; 0314245890; 0762643010 Caramidarii de Jos, Nr.14, Sector 5, Bucuresti |
||
| 143. |
Trenta Pizza - Bucuresti
0219645 Bd.Chisinau, Nr.5 , sector 2 , Bucuresti |
||
| 144. |
MagiCake - Atelier de dulciuri artizanale, Bucuresti
0772072072 Strada Alexandru Moruzzi, Nr. 4A, sector 3 |
||
| 145. |
Cucina di casa - Pizzerie, Bucuresti
0735868318 Calea Vacaresti, Nr. 230, sector 4 |
||
| 146. |
Cristal - Cofetarie
0760090324 Str. Matei Voievod, nr. 108, sector 2 |
||
| 147. |
Delice Grill - Restaurant fast-food Bucuresti
0721112244 Soseaua Mihai Bravu, Nr 139-145, sector 2 |
||
| 148. |
Efes - Restaurant cu specific turcesc, Bucuresti
0737018590 Bulevardul Nerva Traian, Nr. 17 - 19, sector 3 |
||
| 149. |
Beraria Centrala - Restaurant Bucuresti
0740959311 Strada Nerva Traian, Nr. 2, Sector 3 |
||
| 150. |
Mandarin House Stick It - Restaurant cu specific chinezesc, Ilfov
0771286842 Strada Amurgului, nr 30, Popesti-Leordeni, judetul Ilfov |
||
| 151. |
Comics Club - Stand Up, Bucuresti
0741426426 Str. Nerva Traian, Numarul 4. sector 3 |
||
| 152. |
Dada Restaurant - Bucuresti
0729997405; 0724015800 Str. Matei Voievod , nr. 94bis, sector 2, |
||
| 153. |
Tarab - Restaurant cu specific libanez, Bucuresti
0774411111 Strada Nerva Traian, Sector 3 |
||
| 154. |
Oktoberfest Pub - Bucuresti
0724333233 Popa Nan, Nr. 95, Sector 3, Bucuresti |
||
| 155. |
Carols - Restaurant Bucuresti
0763331270 Soseaua Berceni, Nr. 62, Sector 4 |
||
| 156. |
Alice, Cofetarie - Bucuresti
0744486465 Sos. Mihai Bravu, Nr. 123-135, Sector 2, (zona Piata Iancului - langa Sectia 8 de Politie), Bucuresti |
||
| 157. |
Sara - Cofetarie Ilfov
0734383118 Str. Amurgului, nr. 27, Popesti Leordeni, judetul Ilfov |
||
| 158. |
Turquoise Bakery - Bucuresti
0739037919 Str. Matei Voievod, nr.101, Sector 2 |
||
| 159. |
Contesa, Restaurant - Bucuresti
0731831891; 0722244214; 0213317171 Sibiel, Nr. 5, sector 4, Bucuresti |
||
| 160. |
La Calinescu - Restaurant cu specific romanesc, Bucuresti
0788472725; 0213310750 Strada Piscului, Nr. 16, sector 4 |
||
| 161. |
Koffeev - Cafenea, Bucuresti
0767195222 Bulevardul Unirii, Nr. 57, sector 3 |
||
| 162. |
Pui la Jar - Restaurant, Ilfov
0764340000 Strada Amurgului, nr 34, Popesti Leordeni, judetul Ilfov |
||
| 163. |
Sare si Piper - Restaurant cu specific italian, Bucuresti
0744663451 Str. Viorele, nr. 26, zona Timpuri Noi, sector 4, Bucuresti |
||
| 164. |
Alceva - Restaurant, Bucuresti
0770844125 Matei Voievod, Nr. 79, sector 2, |
||
| 165. |
Mandaloo - Restaurant lounge Ilfov
0767222301; 0313335154 Amurgului, Nr. 34, Popesti-Leordeni, judetul Ilfov |
||
| 166. |
Influence - Restaurant, Bucuresti
0745172403 Soseaua Oltenitei, Nr. 39-41, sector 4 |
||
| 167. |
Quartier - Restaurant, Bucuresti
0758222244 Bd. Mircea Voda, Nr. 43, sector 3 |
||
| 168. |
Club Art Papillon Restaurant - Bucuresti
0212522520; 0732582278; 0722240930 Matei Voievod , Nr. 66A Sector 2, Bucuresti |
||
| 169. |
Trofic - Restaurant pentru mic dejun si brunch
0751276600 Bd. Mircea Voda, nr. 52, sector 3 |
||
| 170. |
Modelier - Bistro, cocktails Bucuresti
0799630693 Strada Duzilor, Nr. 12, sector 2 |
||
| 171. |
Events by Tonyo - Restaurant Bucuresti
0723170007 Aleea Hobita, Nr 1 Sector 2 |
||
| 172. |
Madame B - Tea & Pancake House, Bucuresti
0746030670 Splaiul Unirii, nr.49,sector 3, |
||
| 173. |
Sardin - Restaurant cu specific italian, Bucuresti
0729520111 Bulevardul Mircea Voda, Nr. 39H sector 3, Bucuresti |
||
| 174. |
Photo Cake Cofetarie Bucuresti
0729737619 ; 0723564103 Obolului, Nr.9, Sector 4, Bucuresti |
||
| 175. |
Sweet Moments - Cofetarie artizanala Bucuresti
0745199938 Aleea Emil Racovita, Nr. 25, sector 4 |
||
| 176. |
BaKings - Cofetarie Bucuresti
0744642929 Strada Ilarie Chendi, Nr. 28, sector 2 |
||
| 177. |
Botanic - Fine dining, Bucuresti
0721261262 Calea Piscului, sector 4 |
||
| 178. |
Terasa Marius - Bar & Grill, Bucuresti
0745777799 Sos. Pantelimon, Nr. 115-117, sector 2 |
||
| 179. |
Anysan, Restaurant Bucuresti
0723123853 Soseaua Berceni, Nr. 82A, Sector 4, Bucuresti |
||
| 180. |
Maroon - Maroon Restaurant Cafe
0742420000; 0764900000 Bulevardul Unirii, Nr. 47 C, Sector 3 |
||
| 181. |
De Cartier - Restaurant de tip familial, Bucuresti
0213305556 Str. Viorele, Nr. 57A, sector 4 |
||
| 182. |
Check in Lounge - Restaurant, Ilfov
0771074913 Strada Amurgului, nr. 46, Popesti Leordeni, judetul Ilfov |
||
| 183. |
Nicola Cofetarie - Bucuresti
0214603678 Nitu Vasile , Nr. 50-54, in Complexul Pajistei (langa Taxe si Impozite) Sector 4 , Bucuresti |
||
| 184. |
Tabiet 41 - Restaurant, Bucuresti
0314260278 Strada Viorele, nr.59, sector 4 |
||
| 185. |
Big Mic - Restaurant, terasa si pizzerie, Bucuresti
0739244642 Str. Gospodinelor, Nr. 31, sectorul 4 |
||
| 186. |
Intermacedonia, Restaurant - Bucuresti
0212522010; 0212527331; 0212522190 Sos. Mihai Bravu, Nr.95-100, Sector 2 (P-ta Iancului) , Bucuresti |
||
| 187. |
Burger Peter - Restaurant cu burgeri Bucuresti
0799981031 Strada Popa Nan, Nr. 48, sector 2 |
||
| 188. |
Noeme - Restaurant Bucuresti
0721490270 Anton Pann, Nr. 29, sector 3 |
||
| 189. |
Chaya TeaHouse - Ceainarie Bucuresti
0755331000 Strada Radu Ceaus, Nr. 7, sector 3 |
||
| 190. |
Cofetaria Madlene - Bucuresti
0753223222 Str. Traian, Nr.103, sector 2 |
||
| 191. |
Trattoria Angoli - Restaurant cu specific italian, Bucuresti
0728264654 Calea Piscului, Oraselul Copiilor, Sector 4 |
||
| 192. |
Berestroika - Beer Revolution - Bucuresti
0722560300; 0721100000; 0733200000 Aleea Cauzasi, Nr. 57, Sector 2, Bucuresti |
||
| 193. |
La Birlic - Terasa, Bucuresti
0722318168; 0752318168; 0212525151 Bulevardul Pache Protopopescu, Nr. 125, sector 2 |
||
| 194. |
Solitoo - Restaurant, pizza, grill, Ilfov
0728542122 Str. Drumul Fermei, Nr. 87, Popesti-Leordeni |
||
| 195. |
Andy Park Ballroom - Salon de evenimente Bucuresti
0724607607 Soseaua Oltenitei, Nr. 13-15, Sector 4 |
||
| 196. |
Sfeir Lebanese Cuisine - Bar & Grill
0722311805 Mircea Voda, Nr. 36, sector 3 |
||
| 197. |
Politica si Delicateturi Bucuresti - Restaurant cu specific romanesc
0785516681 Str. Prof. Dr. Mihail Georgescu, Nr. 24, sector 2 |
||
| 198. |
Trattoria Adagio - Restaurant cu specific italian Bucuresti
0311061067; 0751218482 Bd. Mircea Voda, Nr. 34, sector 3 |
||
| 199. |
Cofetaria Ina - Bucuresti
0723300213 Str. C-tin Radulescu Motru, Nr. 6, Sector 4 |
||
| 200. |
Nabu - Bar Bucuresti
0787407043 Pache Protopopescu, Nr. 97, sector 2 |
||
| 201. |
Sale Dolce, Restaurant - Bucuresti
0736858430; 0735123687 Matei Voievod, Nr. 20, Sector 2, Bucuresti |
||
| 202. |
Sweet Sophie - Cofetarie
0748309063 Strada Popa Nan, Nr. 22, sector 2 |
||
| 203. |
Belli Siciliani - Restaurant autentic sicilian, Bucuresti
0799090601 Str. Matasari, Nr. 47, sevtor 2, |
||
| 204. |
Green Tea Ceainarie - Bucuresti
0213209396; 0749090202 Dr. Burghelea, Nr. 24, Sector 2, Bucuresti |
||
| 205. |
Tarta Ta - Delicii traditionale, Bucuresti
0771522117 Bulevardul Mircea Voda, Nr. 52, sector 3 |
||
| 206. |
Bistro HB - Restaurant Bucuresti
0735011736; 0735011735; 0735011737 Strada Matasari, Nr. 49 Sector2 |
||
| 207. |
Minimal Cofetarie - Bucuresti
0212751765 Straduintei , Nr. 1, Sector 4 , Bucuresti |
||
| 208. |
La Nenea Iancu - Restaurant cu specific romanesc, Bucuresti
0745140786 Str. Romulus, nr. 55, sector 3 |
||
| 209. |
Thalia - Restaurant cu bucatarie internationala
0219993 Strada Cuza Voda, Nr. 147, sector 4 |
||
| 210. |
Elzada - Restaurant Bucuresti
0724519898; 0722214001; 0723019747 Soseaua Oltenitei, Nr. 13-15, Sector 4 |
||
| 211. |
Pizza Bar - Pizzerie, Bucuresti
0746013623 Lanariei, nr. 5, sector 4 |
||
| 212. |
Cuptorul cu Lemne, Pizza - Bucuresti
021.9363; 0212524493; (021) 9363 - tasta 0 Bd. Pache Protopopescu, Nr. 63, Sector 2, Bucuresti |
||
| 213. |
Noua - Restaurant cu specific romanesc, Bucuresti
0217943294 Strada Popa Nan, Nr. 7, sector 2 |
||
| 214. |
Trattoria Della Nonna - Restaurant cu specific italian, Bucuresti
0771697503 Strada Popa Nan, Nr. 5, sector 2 |
||
| 215. |
No10 - Restaurant cu specific italian
0741210003 Strada Austrului, Nr. 10, sector 2 |
||
| 216. |
Borgo Stagioni - Restaurant Bucuresti
0732163287; 0722220223 Calea Calarasi, Nr. 78, Sector 3 |
||
| 217. |
Paque Bistro - Restaurant cu bar, Bucuresti
0722330607 Bulevardul Pache Protopopescu, nr.60, sector 2 |
||
| 218. |
Cuptorul cu Lemne - Restaurant pizzerie Bucuresti
0219363 Bd. Pache Protopopescu, Nr 65, sector 2 |
||
| 219. |
Naser - Restaurant specific libanez Bucuresti
0799980001; 0799980002; 0213135060 Str. Fluierului, Nr. 18, sector 2 (colt cu Str. Matasari, in spatele PRO TV) |
||
| 220. |
Human Coffee - Cafenea Bucuresti
0734744429 Str. Elena Cuza, Nr. 8, Sector 4 |
||
| 221. |
La Giuggiola - Gelateria artizanala italiana Bucuresti
0770107183 Bulevardul Pache Protopopescu, Nr. 57, Sector 2 |
||
| 222. |
Gran Gelato Italiano - Gelaterie Bucuresti
0730057909 Str. Radu Voda, Nr 28 A, Sector 4 |
||
| 223. |
Patiseria Tineretului - Bucuresti
0761116622 Bd. Gheorghe Sincai, Nr 2A, sector 4 |
||
| 224. |
M&I Clasic Cuisine - Fast-food si catering Bucuresti
0732948408 Strada Baicului, Nr 104 Sector 2 |
||
| 225. |
Pizza PPH - Pizza si catering, Bucuresti
0319441 Str. Lirei, Nr. 13, sector 2 |
||
| 226. |
Bouzouki - Restaurant specific grecesc, Bucuresti
0787528003 Bulevardul Sincai Gheorghe, Nr. 3, sector 4 |
||
| 227. |
Coftale Coffee Shop - Cafenea, Bucuresti
0746420874 Strada Profesor Stefan Mihaileanu, Nr.42, sector 2 |
||
| 228. |
Restaurant Karta - Bucuresti
0744391111 Bd. Unirii, Nr. 22, sector 3 |
||
| 229. |
Urban Bistro - Restaurant cu fripturi, Bucuresti
0769918510 Strada Piata Sfantu Stefan, Nr 6, sector 2 |
||
| 230. |
Galeto - Restaurant Bucuresti
0765253555 Strada Nitu Vasile, Nr 61, sector 4 |
||
| 231. |
Chong Qing - Restaurant cu specific chinezesc, Bucuresti
0212525095; 0731383952 B-dul Pache Protopopescu, Nr.28, sector 2 |
||
| 232. |
#Aici - Bar, Bucuresti
0799124330 Bulevardul Unirii, Nr 35, Sector 3, Bucuresti |
||
| 233. |
Provence, Restaurant - Bucuresti
0724212282; 0722683629; 0799683683 B-dul Alexandru Obregia, Nr 25A, sector 4 (Langa Mega Image), Bucuresti |
||
| 234. |
House of Burger - Ilfov
0771778773; 0770778825 Str. Amurgului, Nr. 72, Popesti Leordeni, judetul Ilfov |
||
| 235. |
Nod Urban Food - Gastronomie italiana si romaneasca, Ilfov
0732301311 Str.Biruintei, nr.31, Popesti Leordeni, judetul Ilfov |
||
| 236. |
Pe Baricade
Radu Voda, nr. 23A, sector 4 |
||
| 237. |
Laur Express Food - Restaurant fast-food, Bucuresti
0732455089 Bulevardul Ferdinand I, Nr. 60, sector 2 |
||
| 238. |
Hanul Hangitei, Restaurant - Bucuresti
0744827323; 0758043355 Bd. Marasesti, Nr.70-72, Sector 4 , Bucuresti |
||
| 239. |
Le Boutique Food Concept Store - Bucuresti
0722538274; 0314380044 Str. Sfantul Stefan, Nr. 13, sector 2 |
||
| 240. |
JO Lounge - Bar, Bucuresti
0721811995 Bd. Unirii, sector 3 |
||
| 241. |
Posh Birt Select - Pub, Bucuresti
0724004376 Strada Plantelor, Nr. 26, sector 2 |
||
| 242. |
Barfly Bucuresti
0727394131; 0721652899 Olteni , Nr. 3, Sector 3, Bucuresti |
||
| 243. |
L\'Amande - Deserturi fara gluten, Bucuresti
0744639549 Str. Lanariei, Nr. 93-95, sector 4 |
||
| 244. |
You & Me - Restaurant cu specific international, Bucuresti
0733918474 Bd. Constantin Brancoveanu, Nr. 110 D (langa Spitalul de copii Marie Curie), Bucuresti |
||
| 245. |
GinOteca - Bar, Bucuresti
0751446446 Strada Plantelor, Nr. 25, sector 2 |
||
| 246. |
Vanilla, Cofetarie - Bucuresti
0733058058 Mihai Bravu, Nr. 47, Parter, Sector 2, Bucuresti |
||
| 247. |
Casa Veche - Restaurant, Ramnicu Valcea
0747875045 ; 0748702238; 0350418155 Stirbei Voda, Nr.162, Ramnicu Valcea, judetul Vilcea |
||
| 248. |
Get Naked by Bordello - Restaurant pentru mic dejun si brunch, Bucuresti
0748881086 Bd. Unirii, intre Bd Dimitrie Cantemir si Bd Mircea Voda |
||
| 249. |
Bucatarasul cel Dibaci - Restaurant cu specific romanesc, Bucuresti
0730340436;0760966360 Strada Olteni, Nr 3, sector 3 |
||
| 250. |
Bistro Cafe - Cafenea, Ilfov
0733311622 Strada Drumul Fermei, Nr 111 bis, Popesti-Leordeni, judetul Ilfov |
||
| 251. |
Cald si Bun, Catering - Bucuresti
0212339457; 0737526215 Hatmanul Arbore, Nr. 11, Sector 1, Bucuresti |
||
| 252. |
SwitchEat - Restaurant cu burgeri Bucuresti
0726023881 Strada Horei, Nr 34, sector 2 ( la doi pasi de Foisorul de Foc) |
||
| 253. |
Nori Sushi - Restaurant cu specific japonez, Bucuresti
0771179714 Splaiul Unirii, nr 6, bl B3A, etaj 7-8 |
||
| 254. |
Bistro Cafe Carbon 14 - Bucuresti
0790408777 Str. Dimitrie Racovita, Nr. 18, Sector 2 |
||
| 255. |
Karishma, Restaurant indian - Bucuresti
0212525157; 0737519953 Iancu Capitanu, Nr. 36, Sector 2, Bucuresti |
||
| 256. |
The Dock - Lounge, Bucuresti
0743680336 Bulevardul Unirii, nr. 30, sector 3 |
||
| 257. |
Nasu & Finu, Restaurant - Bucuresti
0727933656 ; 0768101345; 0214602572 Cimpoierilor, Nr. 12, Sector 4, Bucuresti |
||
| vezi mai multe | |||
| 1. |
BILLA
Tel. 021.345.27.51; Fax 021.345.26.46 Str. Postavarul 24-52, sector 3 |
||
| 2. |
KIKA
0372330501; 0372330630; 0372330637 Bulevardul Theodor Pallady, 51 D ,Sector 3, Bucuresti |
||
| 3. |
IRIS SHOPPING CENTER
0314.38.29.70 Cine Grand Bd. 1 Decembrie 1918, nr. 33A, sector 3, Bucuresti |
||
| 4. |
IRIS SHOPPING CENTER
021.345.01.29 Bd. 1 Decembrie 1918, nr. 33A, sector 3, Bucuresti |
||
| 5. |
TITAN
Tel. 0732.995.515 Str. Liviu Rebreanu nr. 6A, sector 3, |
||
| 6. |
AUCHAN
Tel. 0750.014.150 Calea Vitan nr. 236, sector 3, |
||
| 7. |
Vitantis Shopping Center Bucuresti - Magazine retail Praktiker, Diego si Casa Rusu
0213104513; Fax: 0213150813 Soseaua Vitan-Barzesti, nr. 7A, sector 4, Bucuresti |
||
| 8. |
Penny Market
0800.110.111 Bd.1 Decembrie 1918, nr. 33, sector 3, |
||
| 9. |
BUCURESTI MALL
Tel. 021.327.67.00; 021.327.61.00; 021.327.61.02; Fax 021.320.92.09 Calea Vitan nr. 55-59, sector 3, |
||
| 10. |
SUPERMARKET MAICOM
Tel. 0722.322.573; Fax 321.78.36 Str. Vitan nr. 104, sector 3 |
||
| 11. |
AUCHAN
Tel. 021.408.01.07; 021.408.01.08 Bd. 1 Decembrie 1918 nr. 33A, sector 3, |
||
| 12. |
Ava Center
0769240700; 0213201626; 0730096166 Mihai Bravu, Nr. 540-564, Sector 3, Bucuresti |
||
| 13. |
GMARKET
Bucuresti |
||
| 14. |
CONCORD 2002
Tel/Fax 323.90.87 Bd. Decebal nr. 7, sector 3 |
||
| 15. |
FOR YOU
Tel. 0745.094.433 Bd. Decebal nr. 24, sector 3 |
||
| 16. |
CORA
Tel. 021.205.35.00 Sos. Vergului, nr. 20, sector 2, |
||
| 17. |
SUN PLAZA MALL
021.233.17.45; 0720.200.582 Calea Vacaresti, nr. 391, Piata Sudului, sector 4, Bucuresti |
||
| 18. |
Wini Imobili
Tel.021.307.60.50; 0742.144.034, 0755.068.669; Fax.021.307.60.51 Pierre de Coubertin, nr. 3-5, sector 2, Bucuresti |
||
| 19. |
MEGA MALL
Str. Pierre de Coubertin, nr. 3-5, langa Arena Nationala, |
||
| 20. |
FONZI SUPERMARKET
Tel. 0729.005.260; Tel/Fax 021.323.67.52 Str. Nerva Traian, nr. 17-19, sector 3, |
||
| 21. |
GRAND ARENA MALL
Tel. 031 42.57.514; Fax 031.425.05.17 Bd. Metalurgiei nr. 12-18, sector 4, |
||
| vezi mai multe | |||
Sunteti de acord sa fiti contactat prin mesageria Anuntul.ro
de persoana care a adaugat acest anunt?
Vezi istoricul preţurilor din zona
Distribuie Facebook
Anunţurile utilizatoruluiPagina pe care doriti sa o accesati poate sa contina elemente care nu sunt recomandate minorilor!
Va rugam sa confirmati ca aveti peste 18 ani!
