Ștefan cel Mare ...
3 min.
calculeaza distantaStefan cel Mare De vanzare - Apartament in vila Metrou Stefan cel Mare Comision 0% Cumparator!.
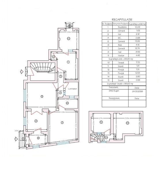
Am placerea a va prezenta spre tranzactionare un apartament in vila situat la Parterul unui imobil din Strada Nastase Pamfil 16.
Apartamentul are Suprafata Utila Totala de aproximativ 100mp dispusi astfel:
Parterul este compus din 2 camere semidecomandate, hol, birou, 2 grupuri sanitare, bucatarie si terasa. La demisolul imobilului mai regasim 2 incaperi ce pot fi folosite pentru depozitare sau alta intrebuintare.
Incalzirea se face cu Centrala Termica Proprie.
Apartamentul necesita renovare.
Apartamentul detine in Proprietate si 140mp din curtea imobilului.
Terenul in Proprietate este in indiviziune cu Statul Roman.
Etajul imobilului este locuit de o familie in varsta ce are inchiriat de la Statul Roman tot 150mp din terenul in indiviziune.
Terenul aferent, aflat in proprietate exclusiva, adauga un avantaj major, oferind independenta si multiple posibilitati de utilizare: gradina amenajata, terasa, zona de barbecue sau chiar extinderi viitoare inclusiv achizitie de la Statul Roman pe restul terenului inchiriat de vecini.
Pentru mai multe detalii si stabilire vizionari, nu ezitati a ma contacta.
Vizionarile vor avea loc in weekend!.
Cheile proprietatii se afla la Agentie!.
Statii metrou |
Timp | |
![]() |
Ștefan cel Mare | 3 min. |
Statii STB |
Timp |
|
Șoseaua Ștefan cel Mare
135
,461
|
2 min. |
|
Bd. Lacul Tei
182
,282
,330
|
3 min. |
|
Barbu Văcărescu
|
3 min. |
|
Bulevardul Lacul Tei
|
3 min. |
|
Stadionul Dinamo
135
,182
|
4 min. |
|
Ștefan cel Mare
|
4 min. |
|
Stadion Dinamo
1
46
182
,330
,335
|
4 min. |
|
Circul București
182
,282
|
7 min. |
|
Calea Dorobanților
182
|
10 min. |
| 1. |
Gradinita nr. 138 sector 2
0212106377 Str. Tunari, nr. 52, sector 2 |
||
| 2. |
Cartea cu Povesti - Gradinita Bucuresti
0766237114 Str. Aurel Vlaicu, nr. 127A, sector 2, |
||
| 3. |
Alfred Fronius - Gradinita si afterschool in limba germana Bucuresti
0372978427; 0726715499 Str. Tunari, Nr. 39 (zona Stefan Cel Mare), sector 2 |
||
| 4. |
Alfred Fronius - Gradinita si afterschool in limba germana Bucuresti
0729699619; 0726715499 Str. Tunari, Nr. 39, Sector 2, Bucuresti |
||
| 5. |
Nicoland - Cresa, Gradinita Bucuresti
0766237114 Str. Raspantiilor, Nr. 7, Sector 2 |
||
| 6. |
Little Primary Education - Gradinita Bucuresti
0733331333 Intr. Docherilor, Nr. 3, Sector 2 |
||
| 7. |
Gradinita Nr. 252 Bucuresti
0212302296 Calea Dorobantilor, nr. 60, sector 1 |
||
| 8. |
Tom Sawyer - Gradinita sector 2
0722529958 Str. Bratului, nr. 14, sector 2 |
||
| 9. |
Edu & Care - After School, cursuri pentru copii Bucuresti
0721571086 Str. Chopin, nr. 2 B, sector 2 |
||
| 10. |
Happy Kids - Gradinita si after school Bucuresti
0770708392 Str. Scoala Floreasca, Nr. 3, Sector 1, Bucuresti |
||
| 11. |
Smart Kinder Villa - Before & After School Bucuresti
0726285699; 0728472197 Str. Nicolae Beldiceanu, nr. 2, sector 1 |
||
| 12. |
Springfield Education - Gradinita si After School Bucuresti
0734710573; 0721707879 Str. Soltuzului, Nr. 10, Sector 2, Bucuresti |
||
| 13. |
Rio - Gradinita & After School Bucuresti
0740025434; 0748633314 Str. Luigi Galvani, Nr. 13A, Sector 2, Bucuresti |
||
| 14. |
Castelino Baby - Gradinita Bucuresti
0731995600 Str. Prof. Ion Ursu, nr. 21, sector 2, |
||
| 15. |
Mami si Tati - Gradinita, Before & After School Bucuresti
0721177543; 0762616442 Str. Grigore Alexandrescu, Nr. 58, sector 1, Bucuresti |
||
| 16. |
Scoala Italiana Aldo Moro - Gradinita,scoala, liceu, Bucuresti
0212104684 Intr. Blaj, nr. 1, Sector 1, Bucuresti |
||
| 17. |
Albinuta - Gradinita sector 2
0212303377 Str. Dinu Lipatti, nr. 1, sector 2 |
||
| 18. |
Ioanid - Gradinita Bucuresti
0758054441 Str. Polona, Nr. 4, Sector 1, |
||
| 19. |
Gradinita Nr. 133 sector 2
0212116749 Str. Aurel Vlaicu, nr. 30 - 32, sector 2 |
||
| 20. |
Analesia - Gradinita & AfterSchool in limba germana Bucuresti
0741332222; 0741332226 Str. Paris, nr. 57, sector 1 |
||
| 21. |
INNA Kids Academy - Before & Afterschool Bucuresti
0723290372 Str. Johann Sebastian Bach, nr. 10, Sector 2 |
||
| 22. |
Steaua Nordului - Before and Afterschool Bucuresti
0745040940 Str. Andrei Muresanu, nr. 27, sector 1 |
||
| 23. |
Sofia - Gradinita Bucuresti
0721006006; 0212311505 Str. Sofia, Nr. 20, Sector 1 |
||
| 24. |
Castelul Copiilor din Tei, Gradinita - Bucuresti
0212109962; 0764738888; 0739770707 Str. Sfanta Treime, Nr. 28, Sector 2, Bucuresti |
||
| 25. |
Gradinita Nr. 251 Bucuresti
0212301417 Str. Venezuela, nr. 11, sector 1 |
||
| 26. |
Clubul Copiilor Sector 2 - Bucuresti
0212106432 Intr. Cobilitei, Nr. 8, Sector 2, Bucuresti |
||
| 27. |
Gradinita Nr. 7 Bucuresti
0212421714 Str. Maica Domnului, Nr. 61 - 63, Sector 2 |
||
| 28. |
Gradinita Montessori Livada cu copii sector 2
0757467127; 0721204642 Str. Toamnei, nr. 76-78, sector 2 |
||
| 29. |
Gradinita Nr. 257 Alice sector 2
0212114524 Str. Alexandru Donici, Nr. 23, sector 2 |
||
| 30. |
Zuppy - Gradinita, After School sector 2
0753915058 Str. Otesani, nr. 69, Sector 2 |
||
| 31. |
Licurici - Gradinita Bucuresti
0212104790 Bd. Dacia, Nr. 134, Sector2, Bucuresti |
||
| 32. |
Maria International School - Gradinita, Scoala primara si afterschool Bucuresti
0730432092 Str. Piata Amzei, Nr. 6, Sector 1, Bucuresti |
||
| 33. |
Gradinita Nr. 203 Bucuresti
0213112352 Str. C. A. Rosetti, nr. 32, Sector 1 |
||
| 34. |
Iepurasul cel Istet - Cresa, Gradinita, After School sector 2
0731488715; 0722121779 Str. Mihai Eminescu, nr. 179, sector 2 |
||
| 35. |
Dani\'s Children, Cresa, Gradinita, After School - Bucuresti
0721800099 Str. Silvestru, Nr. 42, Sector 2, Bucuresti |
||
| 36. |
Luca - Gradinita si Cresa, After school, Scoala primara si gimnaziala, Liceu teoretic, Bucuresti
0721335161; 0744894206 Str. Sanmedru, Nr. 25, Sector 2, Bucuresti |
||
| 37. |
Olga Gudynn International School - Gradinita, scoala si liceu, Bucuresti
0734411359; 0212311202 Str. Ancuta Baneasa, Nr. 8, sector 1, Bucuresti |
||
| 38. |
Amadeus - Afterschool Bucuresti
0770896313; 0721841416 Str. Amidonul, nr. 2, Sector 2 |
||
| 39. |
Kinderakademie - Gradinita & After School Bucuresti
0724661760; 0727427004 Str. Sfintii Voievozi, Nr. 28, Sector 1, Bucuresti |
||
| 40. |
Gradinita cu program prelungit Nr. 135
0212421805 Str. Masina de Paine, nr. 65, sector 2 |
||
| 41. |
Oskar - Before and After School Piata Victoriei
0730948470 Str. Monetariei, Nr. 14, Sector 1, Bucuresti |
||
| 42. |
Oskar - Before&After School Bucuresti
0734040227; 0730948470 Str. Monetariei, nr. 12, sector 1 |
||
| 43. |
Don Castor, Gradinita & After School - Bucuresti
0757073929; 0217945396 Str. Vaselor, Nr. 17A, Sector 2, Bucuresti |
||
| 44. |
Cresa Teiul Doamnei Bucuresti
0314104891 Str. Teiul Doamnei, nr. 99, Sector 2 |
||
| 45. |
Cei Trei Muschetari - Before si After School, Bucuresti
0724384924 Str. Vaselor, Nr. 40, Sector 2, Bucuresti |
||
| 46. |
LTN Liceul Teoretic National - Gradinita, Gimnaziu, Liceu - Bucuresti
0720000171; 0732151931 Str. Dr. Iacob Felix, nr. 49, Sector 1, Bucuresti |
||
| 47. |
Sonnenblume Kinderinstitut - Gradinita, Cresa Montessori Bucuresti
0726471469 Str. Calusei, nr. 36, sector 2 |
||
| 48. |
Gradinita nr. 233 sector 2
0216884518 Str. Antonescu Petre, nr. 20, Sector 2 |
||
| 49. |
Puzzle Edu Center - Centru educational sector 2
0724536293 Str. Gheorghe Pop de Basesti, nr. 17, Sector 2 |
||
| 50. |
Aristokids, Gradinita & After School - Bucuresti
0722648885 Str. Lebedei, Nr. 25, Sector 1, Bucuresti |
||
| 51. |
Junior School - Gradinita Bucuresti
0751223159 Str. Calimachi, nr. 17, Sector 2, |
||
| 52. |
Fridolin - Gradinita, Scoala Germana Bucuresti
0723219616; 0723584872 Str. Temisana, Nr. 1, Sector 1, Bucuresti |
||
| 53. |
Waldorf Christophori - Gradinita Bucuresti
0770861602 Str. Putul cu Plopi, Nr. 8, (langa Parcul Cismigiu) - sector 1, Bucuresti |
||
| 54. |
Monteclaris - Gradinita, before si afterschool Bucuresti
0724671560; 0784606075 Str. Maria Hagi Moscu, Nr. 29, Sector 1 |
||
| 55. |
Ina School - Gradinita si scoala primara, Bucuresti
0722500899 Str. Lacul Gorgova, nr. 2, Sector 2 |
||
| 56. |
CoolTure MindS - After School Bucuresti
0743359307 Bd. Alexandru Ioan Cuza, nr. 37, Sector 1 |
||
| 57. |
Arc-en-Ciel, Gradinita - Bucuresti
0212524665; 0725519386; 0726126808 Str. Ion Heliade Radulescu, Nr. 18, Sector 2, Bucuresti |
||
| 58. |
Casuta cu Pitici Mari si Mici - Gradinita, Afterschool Bucuresti
0722626268 Str. Silvia, nr. 11, Sector 2, Bucuresti |
||
| 59. |
Veverita Jucausa - Gradinita sector 2
0726224859 Str. Litovoi Voievod, Nr. 38, Sector 2 |
||
| 60. |
Apostol - After School sector 2
0740951411 Str. Seneslav Voievod, Nr. 55, Sector 2 |
||
| 61. |
Gradinita Nr. 248 Bucuresti
0212224120 Str. Artur Vartejeanu, Nr. 15, Sector 1 |
||
| 62. |
RosaMaria - Gradinita, cresa Bucuresti
0746808080 Str. Silvia, Nr. 18, Sector 2 |
||
| 63. |
Montessori Edu - Centru educational, Bucuresti
0721833901 Str. Mantuleasa, nr. 21, sector 2 |
||
| 64. |
Go Kids Go - Before and After-School Bucuresti
0723076434; 0766480774 Str. Clucerului, nr. 21, sector 1 |
||
| 65. |
Gradinita nr. 206 - Gradinita cu program prelungit Bucuresti
0212229287 Str. Constantin Disescu, nr. 37, sector 1 |
||
| 66. |
Gradinita Magica, Bucuresti
0765221341; 0723892378 Str. Stefan Mihaileanu, Nr. 33, Sector 2, Bucuresti |
||
| 67. |
Central Art Studio - After School/Cursuri Pentru Copii/Scoala de Vara Bucuresti
0745633737; 0765454244 Str. Popa Soare, nr. 29, sector 2 |
||
| 68. |
Gradinita MAPN Nr. 2 Bucuresti
0213156889 Str. Constantin Cristescu, nr. 5, sector 1 |
||
| 69. |
Gradinita nr. 276 Bucuresti
0212423280 Str. Corabia, nr. 57, sector 2 |
||
| 70. |
Creative Minds Kindergarten - Gradinita Bucuresti
0726152551 Str. Alexandru Deparateanu, nr. 38, sector 1 |
||
| 71. |
Acorns British Style Nursery, Gradinita & After School, Bucuresti
0722476581; 0788418186 Str. Popa Soare, Nr. 63, Sector 2, Bucuresti |
||
| 72. |
Cresa Sinaia sector 2
0212403528 Aleea Sinaia, nr. 4, sector 2 |
||
| 73. |
Don Quijote - Afterschool Bucuresti
0725737793 Str. Ioan Slavici, nr. 4, sector 1 |
||
| 74. |
Copacelul Vietii - Gradinita Bucuresti
0721464185 Str. Radu Calomfirescu, nr. 9, sector 3 |
||
| 75. |
Super Start - Gradinita, After School sector 2
0720528738 Bd. Ferdinand I, nr. 156, Sector 2 |
||
| 76. |
Bell - Gradinita, Afterschool Bucuresti
0728694516 Str. Mecet, Nr. 53, Sector 2 |
||
| 77. |
The Little Artist - Gradinita Bucuresti
0737365283; 0743814767; 0722680765 Str. Ing. Zablovschi, Nr. 7, Sector 1, Bucuresti |
||
| 78. |
Gradinita nr. 137 sector 2
0212407581; 0217960289 Str. Plumbuita, nr. 5, sector 2 |
||
| 79. |
Edu Friends - Before & After School Bucuresti
0783080096 Str. Berzei, Nr. 5, Sector 1 |
||
| 80. |
Gradinita Quiz
0751425562 Str. Abrud, nr. 134-136, sector 1 |
||
| 81. |
Taramul Cunoasterii - Cresa si Gradinita Bucuresti
0724278826 Str. Ioan G. Bibicescu, Nr. 11, Sector 1, Bucuresti |
||
| 82. |
Olga Gudynn, Gradinita si Scoala Cotroceni - Bucuresti
0734411332; 0214106995 Str. Fagaras, Nr. 6, Sector 1, Bucuresti |
||
| 83. |
Gradinita nr. 73 sector 5
0213154355 Splaiul Independentei, nr. 68, sector 5 |
||
| 84. |
Pitiricky - Clubul celor mici - Bucuresti
0724648513 Str. Ialomicioarei, Nr. 13, Sector 1, Bucuresti |
||
| 85. |
Oxigen Sport - Befor School, After School Bucuresti
0722529429 Str. Duzilor, Nr. 23, sector 2, Bucuresti |
||
| 86. |
Lauder-Reut Kindergarten - Gradinita Bucuresti
0318055772; 0723098800; 0735505395 Str. Iuliu Barasch, Nr. 15, Sector 3, Bucuresti |
||
| 87. |
Montessori Orizonturi Libere - Gradinita si scoala, Bucuresti
0726766663; 0733914286; 0787829354 Str. Unditei, nr. 11, Sector 1 |
||
| 88. |
Copiii Montessori - Gradinita sector 3
0721204642 Str. Labirint, nr. 95, Sector 3 |
||
| 89. |
Zum Zum - Gradinita Bucuresti
0745685556; 0740704922 Str. Vespasian, Nr. 37, Sector 1, Bucuresti |
||
| 90. |
Montessima Educational - Afterschool zona Iancului, Bucuresti
0771421104 Str. Constantin Zlatescu, nr. 12, sector 2 |
||
| 91. |
Avenor - Gradinita Bucuresti
0737043475 Str. Alexandru Constantinescu, nr. 65, sector 1 |
||
| 92. |
Luminita - Gradinita sector 2
0212503180 Sos. Iancului, nr. 4A, sector 2 |
||
| 93. |
Clopotel - Gradinita Bucuresti
0212502197 Str. Elev Dridu Georgescu, nr. 2, sector 2 |
||
| 94. |
Bergman Nature Kindergarten - Bucuresti
0743918743 Str. Elena Caragiani, Nr. 21C, sector 1 |
||
| 95. |
Gradinita din Povesti - Bucuresti
0724987747 Str. Costache Marinescu, Nr. 1A, Sector 1 |
||
| 96. |
Sf. Imparati Constantin si Elena, Gradinita Bucuresti
0722237110; 0722293056; 0213261361 Str. Labirint, Nr. 137 B , Sector 3, Bucuresti |
||
| 97. |
Kindi - Centru de educatie timpurie Montessori, Bucuresti
0726876873 Str. Delea Veche, Nr 35, sector 2 |
||
| 98. |
Noel - Gradinita & After School Bucuresti
0728459857; 0725839363 Str. Trifoi, Nr. 10, Sector 3, Bucuresti |
||
| 99. |
Cami - Gradinita particulara si afterschool Bucuresti
0757402573 Str. Carol Knappe, nr. 45,sector 1, Bucuresti |
||
| 100. |
Gradinita M.Ap.N. nr. 1 sector 6
0213196009; 0766298724 Calea Plevnei, nr. 137B, sector 6 |
||
| 101. |
Cami Gradinita & After School - Bucuresti
0757402573; 0749018642 Str. Carol Knappe, Nr. 45, Sector 1, Bucuresti |
||
| 102. |
Ingenius Club - After School Bucuresti
0729164275; 0733975456 Str. Virgil Plesoianu, nr. 108, sector 1 |
||
| 103. |
Hänsel und Gretel - Gradinita & After School Bucuresti
0212247704; 0743332447 Str. Mr. Av. Stefan Sanatescu, Nr. 19, sector 1, Bucuresti |
||
| 104. |
Discover Me- Gradinita Bucuresti
0747774809 Str. Constantin Noica, Nr. 120, sector 6, Bucuresti |
||
| 105. |
Domino - Gradinita Bucuresti
0722492047 Str. Constantin Georgian,, nr. 27, sector 2, Bucuresti |
||
| 106. |
Mihai Ionescu - Gradinita, Scoala, Liceu Bucuresti
0213235495 Str. Parfumului, Nr. 31, Sector 2, Bucuresti |
||
| 107. |
Teddybar - Gradinita, Bucuresti
0212224455; 0723048602 Str. Soimarestilor, nr. 29, sector 1, Bucuresti |
||
| 108. |
Gradinita nr. 97 Bucuresti
0212241162 Str. Islaz, nr. 13, Sector 1 |
||
| 109. |
Once Upon a Time - Centrul educational adlerian Bucuresti
0770590487 Str. Ciobanasului, Nr. 22A, Sector 2 |
||
| 110. |
My Universe - Afterschool si gradinita, Bucuresti
0788416164 Str. Costache Negri, Nr. 9-11, sector 5 |
||
| 111. |
Cresa Ciobanasului
0213223085 Str. Ciobanasului, nr. 23, sector 2, |
||
| 112. |
Academia Fantastica - Gradinita, Before & After School sector 3
0731027321; 0723337393; 0213065370 Str. Moise Nicoara, Nr. 7, Sector 3 |
||
| 113. |
Prikindel - Cresa, Gradinita & After School - Bucuresti
0314059269; 0722522198 Str. Sf. Ilie, nr. 5, sector 4, |
||
| 114. |
Rainbow Kids - Gradinita si scoala primara Bucuresti
0737081690; 0773349170 Str. Ion Dragalina, Nr. 8, Sector 5, Bucuresti |
||
| 115. |
KeiKo AfterSchool Bucuresti
0748880866 Str. Magura Vulturului, nr. 6, Sector 2 |
||
| 116. |
Aurora - Gradinita & After School sector 3
0744317320; 0213224168 Str. Moise Nicoar?, nr. 9-11, sector 3 |
||
| 117. |
Gradinita Nr. 256 Bucuresti
0212506222 Str. Atanase Ionescu, Nr. 25, Sector 2 |
||
| 118. |
Gradinita lui David - Bucuresti
0751103010; 0769245552 Intr. Catedrei, Nr. 10, sector 1, Bucuresti |
||
| 119. |
Bambi Step by Step- Gradinita Bucuresti
0213273256; 0317102928 Str. Gh. Dem Teodorescu, Nr.16 bis, Sector 3, Bucuresti |
||
| 120. |
Orhideea Kids - Gradinita & After School Bucuresti
0748595311 Calea Plevnei, Nr. 145B, sector 1, Bucuresti |
||
| 121. |
Sfera Kinderzentrum - Gradinita, Before & After School Bucuresti
0728024897 Calea Grivitei, nr. 194, sector 1 |
||
| 122. |
Arlechino & Friends - Gradinita si afterschool - Bucuresti
0723264032; 0749028820; 0213260584 Str. Cezar Boliac, Nr. 22-24, Sector 3, Bucuresti |
||
| 123. |
Praslea cel Voinic - Gradinita & After School Bucuresti
0722773103; 0733839824 Str. Competitiei, Nr. 38, Sector 2, Bucuresti |
||
| 124. |
Pisicile Aristocrate - Gradinita sector 4
0213350635; 0213363680 Bd. Regina Maria, nr. 28-30, Sector 4 |
||
| 125. |
Pick Me Academy - Gradinita si scoala, Bucuresti
0726000640 Str. Slt. Pompiliu Manoliu, Nr. 7,Sector 2, Bucuresti |
||
| 126. |
Kinderträume - Gradinita Bucuresti
0744507988 Splaiul Independentei, Nr. 195, sector 6, Bucuresti |
||
| 127. |
Clubul Micul Print - afterschool Bucuresti
0733750795 Str. Dr. Nicolae Staicovici, Nr. 51, Sector 5, Bucuresti |
||
| 128. |
Micii Poznasi - Cresa, Gradinita Bucuresti
0725911233 Calea Serban Voda, Nr. 22-24, Sector 4 |
||
| 129. |
Fundatia School and Fun - Gradinita Sotron
0216555398 ; 0721727323 Str. Gherghitei, Nr.7, Sector 2 (Cartier Colentina), Bucuresti |
||
| 130. |
Happy Angel Academy - Cresa, Gradinita, Afterschool
0743344344; 0745515253 Strada Smaranda Braescu, nr.36, sector 1 |
||
| 131. |
BritAcademy, Gradinita in limba engleza - Bucuresti
0740329105 Str. Olimpiadei, Nr. 36, Sector 2, Bucuresti |
||
| 132. |
Young Academics - AfterSchool Bucuresti
0755095974 Str. Trotusului, nr. 39, sector 1 |
||
| 133. |
Mary Poppins - Gradinita & After School Bucuresti
0212333868; 0723597206; 0745285826 Str. Aron Cotrus, Nr. 69 E, Sector 1, Bucuresti |
||
| 134. |
International Kindergarten & Nursery - Gradinita Bucuresti
0723248978; 0314327798 Str. Claudiu, Nr. 26, Sector 2, Bucuresti |
||
| 135. |
Montessori Kids at work - Gradinita Bucuresti
0723357063 Str. Smaranda Braescu, nr. 40A-42, sector 1 |
||
| 136. |
Bob de Grau, Gradinita si Cresa - Bucuresti
0720446942 Str. Agricultori, Nr. 142, Sector 3, Bucuresti |
||
| 137. |
Ray of Light Montessori - Gradinita, Bucuresti
Str. Gladiolelor, Nr. 15, sector 4 |
||
| 138. |
Happy Kids Project - After school si before school, Bucuresti
0745152802 Sos. Iancului, Nr. 110, Sector 2, Bucuresti |
||
| 139. |
Kiga 99 Luftballons - Gradinita, After School in limba germana Bucuresti
0722395197; 0745423467 Str. Theodor Sperantia, nr. 81, sector 3 |
||
| 140. |
Karin\'s Kids Academy - Gradinita Bucuresti
0212250005 Str. Hermann Oberth, Nr. 33, Sector 1, Bucuresti |
||
| 141. |
Smiley Kindergarten, Gradinita & After School - Bucuresti
0314366138; 0722541744 Str. Gabriel Cioran, nr. 6, sector 6, |
||
| 142. |
Gradinita nr. 271 sector 5
0214109024 Bd. Eroii Sanitari, nr. 77, sector 5 |
||
| 143. |
Centrul multifunctional Cresa Craiasa Zapezii sector 4
0371360117; 0371360127 Str. Oitelor, nr. 50, sector 4 |
||
| 144. |
Innababy - Cresa, gradinita, afterschool Bucuresti
0722403847 Str. Tintasului, Nr. 3, Sector 1, Bucuresti |
||
| 145. |
City Kids - Gradinita si afterschool Bucuresti
0756862825 Str. Ruschita, Nr. 41, sector 2 |
||
| 146. |
Funny Clown, Gradinita & After School - Bucuresti
0740806356 Str. Ruschita, Nr. 41, Sector 2, Bucuresti |
||
| 147. |
Land of Kids Afterschool sector 2
0766831831; 0726733314 Str. Constantin Tanase, Nr. 22, Sector 2 |
||
| 148. |
Kids First - Gradinita Bucuresti
0748880866; Varnavelena@gmail.com Str. Sica Alexandrescu, nr. 20, Sector 2, |
||
| 149. |
Asociatia Conil - Gradinita pentru copii cu nevoi speciale Bucuresti
0784412222; 0217466704; 0735847526 Str. Dr. Victor Poloni , nr 14, Sector 5, Bucuresti |
||
| 150. |
Lill put - Centru de educatie nonformala pentru prescolari, Bucuresti
0722647423 Str. Sarafinesti, Nr. 29, sector 2 |
||
| 151. |
Abcdino, Gradinita - Bucuresti
0213231070; 0725929616; 0745397739 Str. Chiparosului, Nr. 31, Sector 3, Bucuresti |
||
| 152. |
Le Carrousel - Gradinita in limba franceza Bucuresti
0745101783 Str. Grigore Gafencu, nr. 14, sector 1 |
||
| 153. |
Lumea lui Momo - Gradinita Bucuresti
0748055255 Str. Ipotesti, Nr. 23, Sector 4 |
||
| 154. |
Buna Vestire - Gradinita, After School sector 4
0787435172 Str. Episcopul Chesarie, nr. 9, Sector 4 |
||
| 155. |
Kids\' World Nursery School - Gradinita Bucuresti
0771242641 Bd. Basarabia, Nr. 2, Sector 3 |
||
| 156. |
Children\'s Joy, Gradinita & After School - Bucuresti
0731258277; 0754317732 Str. Gramont, Nr. 3, Sector 4, Bucuresti |
||
| 157. |
Little Oaks Academy - Gradinita sector 3
0766572126; 0766572127 Sos. Mihai Bravu, Sos. Mihai Bravu nr. 286, sector 3 |
||
| 158. |
Gradinita nr. 188 Castel sector 2
0212504180; 0213179946 Bd. Pierre de Coubertin, nr. 1, sector 2 |
||
| 159. |
Gradinita nr. 30 sector 4
0213362078 Bd. Dimitrie Cantemir, nr. 16A, Sector 4 |
||
| 160. |
Copii de Poveste - Gradinita sector 4
0740051582 Str. Poterasi, nr. 5, sector 4 |
||
| 161. |
Puisor - Gradinita Nr. 268 Bucuresti
0214104010 Str. Ion Creanga, Nr. 8, Sector 5, Bucuresti |
||
| 162. |
ERA Kinderland - Gradinita, after school in limba germana sector 3
0728850073; 0213207697 Str. Dristorului, nr. 67, sector 3 |
||
| 163. |
Little Star - Gradinita, After School sector 3
0745531279; 0724506631 Str. Alexandru Magatti, nr. 13 A , sector 3 |
||
| 164. |
Sfantul Nicolae, Gradinita & After School - Bucuresti
0729611918 Str. Sirenelor, Nr. 56-58, Sector 5, Bucuresti |
||
| 165. |
Sunshine Edu - After School Bucuresti
0741123340 Str. Lt. Av. Vasile Fuica, nr. 42, Sector 1 |
||
| 166. |
Mell - Gradinita cu Program Normal sector 3
0744564426; 0722958683 Str. Vlad Dracu, nr. 43, sector 3 |
||
| 167. |
Clubul Boreal, Gradinita - Bucuresti
0721124249 Str. Valerian Prescurea, Nr. 5, Sector 4, Bucuresti |
||
| 168. |
Bulgarasi de Aur - Before & After School Bucuresti
0723398829 Str. Cogalnic, nr. 30, sector 3 |
||
| 169. |
Smiley After School sector 2
0727401829 Bd. Basarabia, nr. 62A, sector 2 |
||
| 170. |
Roxy Baby - Cresa Particulara Bucuresti
0314254309; 0723274924 Str. Slobozia, Nr. 29 , Sector 4, Bucuresti |
||
| 171. |
Little Princess 1 - Cresa, Gradinita Bucuresti
0756070390; 0744321574; 0744703973 Str. Popa Stoica Farcas, Nr. 64-66, Sector 3, Bucuresti |
||
| 172. |
Dumbo Kids Academy - Cresa, Gradinita, Before & After School sector 3
0722320023 Intr. Patinoarului, nr. 42A, sector 3 |
||
| 173. |
Good Family - Gradinita Bucuresti
0748224225 Str. Nicolae Filimon, Nr. 73A, sector 6 |
||
| 174. |
Insula Copilariei - Gradinita, After School sector 2
0722642428 Str. Ropotului, nr. 25, sector 2 |
||
| 175. |
Piccolo Grande - After School, loc de joaca sector 3
0754200258 Intr. Patinoarului, nr. 52, Sector 3 |
||
| 176. |
Primii Pasi - Gradinita si Cresa Fundeni
0212400469; 0722522898 Str. Sucidava, nr. 27, Sector 2, Bucuresti |
||
| 177. |
Iboo - Gradinita Bucuresti
0770325689; 0773975780 Bd. Expozitiei, nr. 2, sector 1 |
||
| 178. |
Equilibrum - Gradinita Bucuresti
0724064503; 0724862068 Bd. Expozitiei, Nr. 2, Sector 1 |
||
| 179. |
Licurici - Gradinita sector 4
0314377556; 0767503191 Str. Cuza Voda, nr. 141 A, Sector 4 |
||
| 180. |
Alegra, Gradinita - Bucuresti
0746167291 Str. Finta, Nr. 25, Sector 6, Bucuresti |
||
| 181. |
Scufita Rosie - Gradinita sector 4
0766541207 Calea Serban Voda, nr. 170 , sector 4 |
||
| 182. |
Gradinita nr. 40 sector 6
0212203340 Str. Tabla Butii, nr. 60, sector 6 |
||
| 183. |
Maya si Prietenii - Cresa, Gradinita sector 2
0755359162 Str. Herta, nr. 32A, Sector 2, |
||
| 184. |
Madi AfterSchool sector 2
0757837644 Str. Herta, nr. 32A, Sector 2 |
||
| 185. |
Taramul Magic Voi Reusi - After School sector 2
0727540913 Bd. Chisinau, nr. 6-8, sector 2 |
||
| 186. |
Genius Academy - Cresa, Gradinita , Scoala Primara si After School Bucuresti
0724111678; 0744638435 Calea Serban Voda, nr. 145, sector 4 |
||
| 187. |
Adnan, Gradinita - Bucuresti
0744606010; 0722205243 Intr. Buturugeni, Nr. 7 Sector 5, Bucuresti |
||
| 188. |
Mica Printesa - Gradinita, after school Bucuresti
0744321574; 0744703973 Str. Vulcan Judetu, nr. 16, sector 3, |
||
| 189. |
Little Princess 2 - After School / Before School Bucuresti
0744703973; 0744321574; 0756070390 Str. Vulcan Judetu, Nr. 16, Sector 3, Bucuresti |
||
| 190. |
Gradinita nr. 283 Bucuresti
0212322093 Bd. Ficusului, nr. 25, sector 1 |
||
| 191. |
Melba - Centru Educational Bucuresti
0722461015 Str. Lanariei, Nr. 117 , Sector 4, Bucuresti |
||
| 192. |
Palatul Copiilor - Gradinita, After School sector 3
0740673742; 0314251635 Str. Morilor, Nr. 19, sector 3 |
||
| 193. |
Ana Lugojana - Gradinite, Scoala Primara, Gimnaziala si After School Bucuresti
0724342409 Str. Constantin Miculescu, nr. 10, sector 5, Bucuresti |
||
| 194. |
Saga Kid - After School sector 3
0743266500; 0756169135 Str. Campia Libertatii, nr. 44, sector 3, |
||
| 195. |
Elite - Cresa, Gradinita Bucuresti
0766687691 Str. Lanariei, Nr. 136, Sector 4, Bucuresti |
||
| 196. |
Smart Steps - Gradinita , After School sector 3
0733965133 Str. Dristorului, nr. 91-95, bl. E, Parter, sector 3 |
||
| 197. |
Gradinita nr. 269 sector 5
0213354544 Str. Constantin Miculescu, nr. 12, sector 5 |
||
| 198. |
Teach Little People - Centru educational, Bucuresti
0727401433 Str. Alexander von Humboldt, nr. 2, sector 3 |
||
| 199. |
Family Kids, Gradinita si After School - Bucuresti
0722565657; 0723281551 Str. Mugur Mugurel, Nr. 21, Sector 3, Bucuresti |
||
| 200. |
Gradinita Nr.161 (Brandusa) sector 3
0314250834; 0314250835 Str. Branduselor, Nr. 37/43, sector 3 |
||
| 201. |
Iulia Pantazi - Centrul psihologic pentru copii Bucuresti
0745480458; 0317304741 Str. Cernauti, Nr.1, Sector 2, Bucuresti |
||
| 202. |
Centrul Educational Fecioara Maria - Cresa, Gradinita Bucuresti
0799741474; 0770574645 Str. Eufrosina Popescu, Nr. 30, Sector 3, Bucuresti |
||
| 203. |
Capsunica - Gradinita sector 3
0765516162 Str. Constantin Nottara, nr. 27, sector 3 |
||
| 204. |
After School Sector 1
0747179897 Str. Baneasa, Nr. 27, Sector 1, Bucuresti |
||
| 205. |
Smart Kids - Scoala Gimnaziala, Scoala Primara si Gradinita Bucuresti
0745022714 Str. C-tin Dobrogeanu Gherea, Nr. 22A, Sector 1, Bucuresti |
||
| 206. |
Rose Mary - Gradinita & After School Bucuresti
0747179897 Str. Baneasa, Nr. 27B, vila 3, Sector 1, Bucuresti |
||
| 207. |
Centrul Educational Nordic sector 4
0786391446 Splaiul Unirii, Nr. 176, Corp D3, Sector 4 |
||
| 208. |
Smart & Fun After School Crangasi
0765518746; 0766891844 Intr. Sipetului, Nr. 3, Sector 6 |
||
| 209. |
Hands-On - Centru educational Bucuresti
0725977815 Bd. Iuliu Maniu, nr. 7, Cotroceni Business Center, Corp U, parter, sector 6 |
||
| 210. |
Gradinita Nr. 239 sector 3
0213245490 Str. Dristorului, nr. 102, sector 3 |
||
| 211. |
Fulg de Nea - Gradinita sector 6
0212203132 Sos. Ciurel, Nr. 9-11, sector 6 |
||
| 212. |
Centrul Social Multifunctional Cresa Scufita Rosie sector 4
0733200109; 0372874267; 0372715100, 0372715101 Aleea Tohani, nr. 1, bl.30, sc. 1, parter, sector 4 |
||
| 213. |
PRO Academy Afterschool
0744501156 Str. Sibiel, nr. 6, Sector 4 |
||
| 214. |
Little Team - Gradinita / After School Bucuresti
0799774767 Calea 13 Septembrie, nr. 191, sector 5 |
||
| 215. |
Brightivity Montessori - Gradinita, Bucuresti
0753111065 Str. Somesul Rece, Nr. 9 Sector 1 |
||
| 216. |
Copil Dorit - Gradinita Bucuresti
0736820068; 0722166358 Sos. Viilor, Nr. 33, Sector 5, Bucuresti |
||
| 217. |
Academia Einstein Afterschool & Beforeschool Bucuresti
0734193424 Str. Somesul Rece, nr. 9, Sector 1 |
||
| 218. |
Iuladi Kids - Cresa, gradinita Bucuresti
0769088777 Str. Breaza, Nr. 78, Sector 3 |
||
| 219. |
Castelul Bucuriei - Gradinita Bucuresti
0730515181 Str. Vasile Voiculescu, nr. 30, sector 3 |
||
| 220. |
Gradinita Nr. 280 sector 2
0212557980; 0212550205 Str. Delfinului, nr. 4, sector 2 |
||
| 221. |
Mickey\'s House - Before & After School sector 6
0785539018 Str. Pietrele Doamnei, nr. 18, Sector 6 |
||
| 222. |
Kids Club Baneasa, Gradinita & After School - Bucuresti
0746030320 Str. Neagoe Voda, Nr. 58, Sector 1, Bucuresti |
||
| 223. |
WhizKidz Hub - Afterschool, Centru educational Bucuresti
0742602260 Str. Gradinarilor, nr. 14, Sector 3 |
||
| 224. |
Dandi Kids, Gradinita & After School - Bucuresti
0726758303 Str. Rasovita, Nr. 18, Sector 3, Bucuresti |
||
| 225. |
Centrul Educational Nectarel - Afterschool Bucuresti
0740221854 Str. Baba Novac, nr. 17, sector 3 |
||
| 226. |
Gradinita nr. 222 Bucuresti
0721345993; 0216673480 Str. Arad, nr. 38 , sector 1 |
||
| 227. |
Paradisul Copiilor - Gradinita & After School Bucuresti
0730007062 Str. G-ral. Haralambie Nicolae, Nr. 38, Sector 4, Bucuresti |
||
| 228. |
Academia Gifted International, Gradinita & After School - Bucuresti
0724381661; 0722277090 Str. Sold. Simion Stefan, nr. 39, sector 4, Bucuresti |
||
| 229. |
Letitia - After school sector 3
0733919066; 0722882558 Str. Baba Novac, nr. 19A,Belvedere Residence, sector 3 |
||
| 230. |
Max und Moritz Kinder - Gradinita limba germana & After School Bucuresti
0726374434 Str. Plugarilor, Nr. 24, Sector 4, Bucuresti |
||
| 231. |
Piticul Curajos - Gradinita, After School sector 3
0749607276; 0314373583; 0213240124 Str. Copaceni, Nr. 64, sector 3 |
||
| 232. |
Legolas - Centru Educational sector 3
0787322298; 0787460258; 0787298295 Str. Nucului, nr. 55, sector 3 |
||
| 233. |
Kids Power - Centru educational holistic pentru copii Bucuresti
0741248260 Str. Nucului, nr. 55, sector 3 |
||
| 234. |
Dreamland - Gradinita Bucuresti
0787521511 Str. Plugarilor, nr. 20-22, Sector 4, Bucuresti |
||
| 235. |
Electromagnetica - Gradinita sector 5
0218915699; 0214232110 Calea Rahovei, nr. 266, sector 5 |
||
| 236. |
Puiutul Pufos - Gradinita Bucuresti
0740140968; 0213440010 Str. Emanoil Marius Buteica, Nr. 30, Sector 3, Bucuresti |
||
| 237. |
Educarium - Gradinita, Ilfov
0745234528 Str. George Bacovia, nr. 23, Pipera, judetul Ilfov |
||
| 238. |
Tichiuta - Cresa, Gradinita Bucuresti
0212333661; 0727384401 Str. Garlei, nr. 64, sector 1 |
||
| vezi mai multe | |||
| 1. |
SPITALUL SF. STEFAN + ambulatoriu
021.210.39.36 Sos. Stefan cel Mare nr. 11, sector 2, |
||
| 2. |
SPITALUL SF. STEFAN + ambulatoriu
0212103936 Sos. Stefan cel Mare, nr. 11, sector 2, |
||
| 3. |
Ambulatoriul Spitalului Euroclinic
0219208; Call Center:0219268 Calea Floreasca, nr. 14A, sector 1, Bucuresti |
||
| 4. |
Spitalul de Urgenta Floreasca
Tel. 0215992300; 0215992308; Fax.0215992257 Calea Floreasca nr. 8, sector 1, |
||
| 5. |
Spitalul de Urgenta Floreasca + ambulatoriu-Bucuresti
Tel.021.5992300; Fax.021.5992257 Calea Floreasca, nr. 8, sector 1, |
||
| 6. |
Spitalul Euroclinic + ambulatoriu
0219208 Calea Floreasca, nr. 14 A, sector 1, Bucuresti |
||
| 7. |
Euroclinic
0219268; 0219208 Calea Floreasca, 14 A, Sector 1, Bucuresti |
||
| 8. |
Ambulatoriul Spitalului Clinic Colentina
0213167320 ; 0213173245 / interior 5732; Fax: 0213161952 Sos.Stefan cel Mare, nr. 19-21, sector 2, Bucuresti |
||
| 9. |
Spitalul Clinic Colentina + Ambulatoriu
0213167320; 0213173245 ; Fax: 0213161952 Sos. Stefan cel Mare, nr. 19-21, sector 2 , |
||
| 10. |
Centrul Medical Prain
0212113430; 0212108476; 0723237430 Calea Dorobantilor, nr. 32A,7,ET 1, |
||
| 11. |
Spitalul Clinic Colentina + Ambulatoriu
Tel. 0213167320; 0213173245; 0213165895 Sos. Stefan cel Mare, nr. 19-21, sector 2, |
||
| 12. |
Clinica Medicala Elite-Bucuresti
Tel. 0720260024; 0212339776 Str. Tudor Stefan, nr. 42-44, sector 1, |
||
| 13. |
Institutul National de Boli Infectioase Prof. Dr. Matei Bals
Tel.0212010980; 0213186091 Str. Dr. Calistrat Grozovici, nr. 1, sector 2, |
||
| 14. |
LookClinic, Bucuresti - Centre de diagnosticare,preventie si implant de par
0213203477 Calea Dorobantilor, nr.188-190, sector 1, |
||
| 15. |
Centru Medical Stb-Bucuresti
0213183430 (centrala); Str. Dr. Grozovici, nr. 6, sector 2 , |
||
| 16. |
Institutul National de Boli Infectioase Prof. Dr. Matei Bals
0212010980 (centrala); 0213186090 Str. Dr. Grozovici, Nr. 1, sector 2, |
||
| 17. |
Clinica Medicala Blaj Stefan-Bucuresti
0742010636 Str.Ciprian Porumbescu, nr. 12, sector 1, |
||
| 18. |
Bioderm Medical Cente- Bucuresti
Tel. 0722338383 Str. Mihai Eminescu, nr. 42, sector 1, |
||
| 19. |
Spitalul Clinic de Urgenta pentru Copii \"Grigore Alexandrescu\"
Tel. 0213169366; 0213169366 int. 133/155; UPU.0213110994 Bd. Iancu de Hunedoara, nr. 30-32, sector 1 , |
||
| 20. |
Spitalul Clinic de Urgenta pentru Copii \"Grigore Alexandrescu\"
0213169366:Centrala telefonica; 0213110994 :Unitatea Primiri Urgente Bd. Iancu de Hunedoara, nr. 30-32, sector 1, Bucuresti |
||
| 21. |
Clinica Regina Maria - Perla-Bucuresti
0219268 Calea Dorobanti, nr. 126-130, sector 1, |
||
| 22. |
Clinica Psiho-Armonie-Bucuresti
0730028680; 0311063523 Str. N. Constantinescu, nr. 11, bl.11, sc.1, parter, ap.2, interfon 02,sector 1, |
||
| 23. |
Spitalul Clinic de Urgenta pentru Copii \"Grigore Alexandrescu\"
0213169366:Centrala telefonica; 0213110994:Unitatea Primiri Urgente Bd.Iancu de Hunedoara, nr. 30-32, sector 1, Bucuresti |
||
| 24. |
Centrul Medical de Diagnostic, Tratament Ambulator si Medicina Preventiva
0212300402; 0212302980; 0212305923 Str. Washington, nr. 8-10, sector 1, |
||
| 25. |
Spitalul de Urgente Oftalmologice + Ambulatoriu
0213192751; 0213192753 P-ta Lahovari, nr. 1, sector 1, |
||
| 26. |
Spitalul de Urgente Oftalmologice + Ambulatoriu
0213192751; 0213192752 P-ta Lahovari nr. 1, sector 1, |
||
| 27. |
Centrul Medical Cutera Medical Center-Bucuresti
Tel. 0746141620 Str. Giacomo Puccini , nr. 8 A, sector 1, |
||
| 28. |
Spitalul Clinic Dr. I. Cantacuzino-Bucuresti
Tel.0212107100; Fax.0212106435 Str. Ion Movila nr. 5-7, sector 2 , |
||
| 29. |
Spitalul Clinic Dr. I. Cantacuzino
Tel. 0212107100; 0212108499 (diabetologie) Str. Ioan Movila, nr. 5-7, sector 2, Bucuresti |
||
| 30. |
Institutul National de Diabet, Nutritie si Boli Metabolice \"Prof. Dr. N. Paulescu\"
0212106460 (secretariat); 0212109092 Str. Ion Movila, nr.5-7, sector 2, |
||
| 31. |
Institutul National de Diabet, Nutritie si Boli Metabolice \"Prof. Dr. N. Paulescu\"
Tel. 0212108499 (centrala); 0212106460 (secretariat); Fax 0212109092 Str. Ion Movila, nr. 5-7, sector 2 , |
||
| 32. |
Cord Blood Center-Bucuresti
0739853208 Str. Ramuri Tei, nr. 20, sector 2, |
||
| 33. |
Spitalul Euroclinic
Tel. 0219268; 0219208 Calea Floreasca nr. 14 A, sector 1, |
||
| 34. |
Centrul Medical Romedical Int
Tel. 0212100381; 0723288108 Str. Fainari nr. 35, sector 2, |
||
| 35. |
Optim Sano - Centrul Medical Dr. Ion Socoteanu-Bucuresti
0728955844 Str. Salcamilor, Nr. 6A, sector 2, |
||
| 36. |
Institutul National de Endocrinologie C. I. Parhon
Tel. 0213172041; 0213172042; Fax 0213170607 Bd. Aviatorilor nr. 34-36, sector 1 , |
||
| 37. |
Clinica Medicala Alco San
021.211.41.12; 0755.050.055; Fax 021.211.41.13 Str. Barbu Vacarescu, nr. 67, sector 2, |
||
| 38. |
Policlinica Regina Maria - Enescu
0219268 Str. George Enescu, nr.12, sector 1, |
||
| 39. |
Cabinet Medical dr. Jovin
Tel. 0746418043; Tel/Fax 0212312116 Str. Wolfgang Amadeus Mozart nr. 31, sector 2, |
||
| 40. |
Centrul Medical Dr. Stoia Ion- Bucuresti
0212116848 int.219; 0213175025 Str. Thomas Masaryk , nr. 5, sector 2 , |
||
| 41. |
Institutul National de Endocrinologie C. I. Parhon
Tel. 0213172041; 0213172042; Fax 0213170607 Bd. Aviatorilor, nr. 34-36, sector 1 , |
||
| 42. |
Centrul Medical Bio Terra Med- Bucuresti
0726243473; 0724262110; 0774022961 Calea Grivitei, nr. 3, Sector 1, |
||
| 43. |
POLICLINICA MASINA DE PAINE
Tel.021. 242.07.82 ; 021.242.00.96 (oftalmologie); 021.242.67.04 (neuropsihiatrie) Str. Masina de Paine nr. 47, sector 2 , |
||
| 44. |
Alfred Rusescu, Institutul pentru ocrotirea mamei si copilului (I.O.M.C.) Bucuresti
Tel.0219365 Bd. Lacul Tei, nr. 120, sector 2 , |
||
| 45. |
Medicine Park International by Tuncay Öztürk - Centru de kinetoterapie si recuperare
0727464464 Str. Grigore Mora, nr. 19, Sector 1 |
||
| 46. |
Institutul national pentru sanatatea mamei si copilului Alfred Rusescu
Tel.0219365 Bd. Lacul Tei, nr. 120, sector 2, |
||
| 47. |
Spitalul Clinic de Nefrologie - Dr. Carol Davila
Tel. 0213189184 (centrala) Calea Grivitei, nr. 4, sector 1, |
||
| 48. |
CENTRUL MEDICAL BATISTEI
021.313.34.80; 021.313.14.55; 021.315.46.05 Str. Tudor Arghezi nr. 28, sector 2 , |
||
| 49. |
POLICLINICA CU PLATA NR. 1
Tel. 021.314.81.15; Fax 021.314.81.14 Str. Bati?tei nr. 27, sector 2, |
||
| 50. |
Donna Medical Center-Bucuresti
0219732 Str. Traian , nr. 234, et.1, sector 2, |
||
| 51. |
Centrul Medical Sanador-Bucuresti
Tel. 0219699 |
||
| 52. |
Centrul Medical Sana-Bucuresti
0212128222 Str. Dr. Sergiu Dumitru, nr. 3, sector 1, |
||
| 53. |
Clinica Medicala Estet Laser Medical Center
Tel/Fax 0212531797; 0721241772; 0733625687 Str. Calusei nr. 11, sector 2, |
||
| 54. |
Prof.Dr. Agrippa Ionescu, Spitalul Clinic de Urgenta Bucuresti
0377720000; Fax 0377726169 Str. Arh. Ion Mincu , nr. 7, sector 1, |
||
| 55. |
Centrul de Transfuzie Sanguina Bucuresti
Tel. 0314053660; 0314053661; 0314053662 Str. Constantin Caracas nr. 2-8, sector 1, |
||
| 56. |
Standard Med-Bucuresti
0722435435; 0314053950 Bd. Carol, nr. 45, ap.5, parter, sector 2, |
||
| 57. |
Clinica Medicala Provita Diagnostic si Tratament-Bucuresti
Tel. 0219432 Str.Alexandrina, nr. 20 , sector 1, |
||
| 58. |
Spitalul Clinic Sfanta Maria + ambulatoriu
Tel. 0212223553; 0212223550 Bd. Ion Mihalache, nr. 37-39, sector 1, |
||
| 59. |
Spitalul Clinic Sfanta Maria + ambulatoriu-Bucuresti
Tel. 0212223550; 0212223553 Bd. Ion Mihalache nr. 37-39, sector 1, |
||
| 60. |
Spitalul Clinic de Ortopedie Traumatologie Foisor-Bucuresti
Tel.0212520057; Fax.0212521387; 0310056786(progamari consultatii) Bd. Ferdinand, nr. 35-37, sector 2 , |
||
| 61. |
Spitalul Clinic de Ortopedie Traumatologie \"Foisor\" + ambulatoriu
Tel. 0310056786; 0212520057; Fax 0212521387 Bd. Ferdinand, nr. 35-37, sector 2, |
||
| 62. |
Rytmomed - Clinica medicala Bucuresti
0737181511 Str. Popa Tatu, nr. 35, Sector 1 |
||
| 63. |
Cron Phoenix - Centru de Reabilitare Ortopedica si Neurologica pentru copii Bucuresti
0721567186; 0790667941 Piata Pache Protopopescu, nr. 9, sector 2 |
||
| 64. |
Spitalul de Urgenta Prof. Doctor Dimitrie Gerota
0212523334; Fax 0212522829 Str. Vasile Vasilievici Stroescu, nr. 29-31, sector 2, |
||
| 65. |
Spitalul Clinic Coltea
Tel. 0213874100; Fax 0213874101 Bd. I.C. Bratianu, nr. 1, sector 3, |
||
| 66. |
Spitalul Clinic Coltea
Tel. 0213874100; Fax 0213874101 Bd. I.C. Bratianu, nr. 1, sector 3, |
||
| 67. |
Village Medical Clinic - Centru medical Bucuresti
0212323580 Str. Constantin Kiritescu, nr. 27, sector 2, |
||
| 68. |
Centrul Medical Ioana-Bucuresti
0212233810; 0786486156 Str. Alexandru Ioan Cuza, nr. 81,, et. 1,sector 1, Bucuresti |
||
| 69. |
Ioana Medical Center
0212233810; 0786486156 Bd. Alexandru Ioan Cuza, nr 81, et 1, sector 1 |
||
| 70. |
PriMed - Clinica Medicala Bucuresti
0219986; 0720034774 Bd. Dinicu Golescu, nr.10, sector 1 |
||
| 71. |
Policlinica Eforie-Bucuresti
Tel. 0213139922 Str. Eforie, nr. 4, sector 5, |
||
| 72. |
Clinica Medicala Data Plus-Bucuresti
0213131491 Str.Cobalcescu Grigore, nr. 35,sector 1, |
||
| 73. |
Prof. Dr. Dimitrie Gerota, Spitalul de Urgenta MAI - Bucuresti
0212523334 Str. Vasile Vasilievici Stroescu, nr. 29-31, sector 2, |
||
| 74. |
Centrul Medical Hiperdia-Bucuresti
0219338; Fax 0212507320 Str.Ritmului, nr. 24, sector 2, Bucuresti |
||
| 75. |
Spitalul Clinic de Chirurgie Oro-Maxilo-Faciala -Bucuresti
Tel/Fax. 0213158855; 0213155217 Calea Plevnei, nr. 17-21, sector 1 , |
||
| 76. |
Spitalul Clinic de Chirurgie Oro-Maxilo-Faciala \"Prof. Dr. Dan Theodorescu\"
Tel/Fax. 0213158855; 0213155217 Calea Plevnei, nr. 17-21, sector 1, |
||
| 77. |
RomGerMed - Clinica Medicala Bucuresti
Tel. 0213110075; 0725302475 Calea Plevnei, nr. 137C, sector 6, |
||
| 78. |
Euromedics Stem Life
0800.800.855 (Apel gratuit); 021 311 55 92 Str. Lipscani, Nr. 90A, et. 3, Sector 3 , |
||
| 79. |
Institutul National de Recuperare, Medicina Fizica si Balneologie
Tel.0311302300 Str. Sf. Dumitru, nr. 2 - ambulatoriu de recuperare clinica I si II, sector 3, |
||
| 80. |
Spitalul Universitar de Urgenta Elias
0213161600; Fax 0213161602 Bd.Marasti, nr. 17, sector 1, |
||
| 81. |
Centrul Medical M Hospital-Bucuresti
0219136; 0744812330; 0213162049 Str.Witting, nr. 10-12, sector 1, Bucurestu |
||
| 82. |
Clinica Regina Maria - Pipera-Bucuresti
0219268 Bd. Dimitrie Pompeiu, nr. 9-9A, cladirea 1, parter, sector 2, |
||
| 83. |
Centrul Medical M Hospital-Bucuresti
Tel.0219136 Str. Witing, nr. 10-12, sector 1 , |
||
| 84. |
Imuno Medica - Centrul de preventie, diagnostic si tratament Sf. Ioan Botezatorul
0314050350; 0771771333 Str. Virgiliu nr. 81, sector 1 |
||
| 85. |
Centrul Medical Veridia-Bucuresti
0213029434 Str. Matei Basarab, nr. 45, sector 3, |
||
| 86. |
Centrul Medical Focus
Tel. 0317111515; 0733072910 Bd. Ferdinand nr. 141, sector 2, |
||
| 87. |
Policlinica Iancului-Bucuresti
Tel.0314255277 (laborator); 0212508490 (O.R.L.); 0212503333 Sos. Iancului , nr. 3, sector 2 , |
||
| 88. |
Spitalul Universitar de Urgenta Elias
0213161600; Fax 0213161602; 0213112444 Bd. Marasti nr. 17, sector 1, |
||
| 89. |
Spitalul Clinic de Nefrologie - Dr. Carol Davila
Tel. 0213189184 (centrala); Fax 0213189184 Calea Grivitei nr. 4, sector 1, |
||
| 90. |
Dr. Carol Davila, Spitalul Universitar de Urgenta Militar Central Bucuresti + ambulatoriu
Tel. 0213193052/60; 0213193030 Str. Calea Plevnei , nr. 134, sector 1, |
||
| 91. |
Clinica Medicala Sfantul Spiridon Vechi-Bucuresti
0213351378; 0213351379; 0787820066 Piata Natiunilor Unite, nr 5-7, sector 4, Bucuresti |
||
| 92. |
Spitalul Clinic CF Witting + ambulatoriu
Tel. 0213129530; 0213129531; 0213176280 Calea Plevnei nr. 142-144, sector 6, |
||
| 93. |
Centrul Medical Focus
0753035038 Str. Dinicu Golescu, nr. 23-25 , sector 1, |
||
| 94. |
RomGerMed - Clinica Medicala Bucuresti
Tel. 0213110075; 0727999602 Calea Plevnei, 137 C, sector 6, |
||
| 95. |
Centrul de Diagnostic romano-german Medinst
0319902 Str.Sfanta Vineri, nr. 29, sector 3, |
||
| 96. |
Spitalul Universitar de Urgenta Militar Central Dr. Carol Davila
Tel. 0213193052/60; Fax.0213193030 Str. Calea Plevnei, nr. 134, sector 1, Bucuresti |
||
| 97. |
Miko Med
021.233.44.66; 0722.525.472 Str. Nicolae Caramfil, nr.51,sector 1, |
||
| 98. |
Spitalul Prof. Dr. Constantin Angelescu
0213233040; 0213233041 Aleea Cauzasi, nr. 49 - 51 sector 3, |
||
| 99. |
SPITALUL PROF. DR. CONSTANTIN ANGELESCU
0213233040; 0213233041 Aleea Cauzasi, nr. 49-51, sector 3, |
||
| 100. |
Centrul Medical Amicus Med
Tel. 0766424841; Tel/Fax 0212508585 Sos. Iancului nr. 17, bl. 106C, sc. 1, ap. 4, sector 2, |
||
| 101. |
Ambulatoriul Spitalului Universitar de Urgenta
Tel. 0213180519/29; 0212026147 Splaiul Independentei, nr. 169, sector 5 , |
||
| 102. |
Clinica Sanamed-Bucuresti
0219442 Calea Plevnei, Nr. 159,corpul B ,Sector 6, |
||
| 103. |
Policlinica pentru copii Regina Maria - Opera
0219268 Str. Costache Negri, nr. 1-5, sector 5, |
||
| 104. |
Centrul Medical Proctoline-Bucuresti
0213017686- programari Bd. Dimitrie Cantemir , nr. 1, bl. B2, sc. 3, et. 2, sector 4, |
||
| 105. |
Centrul Medical Psoremiss-Bucuresti
0213017696 Bd. Dimitrie Cantemir, nr. 1, bl. B2, sc. 3, et. 2, sector 4, |
||
| 106. |
Centrul Medical Ponderas-Bucuresti
0219886 Str. Nicolae Caramfil, nr. 85A, sector 1, |
||
| 107. |
Spitalul Universitar de Urgenta Bucuresti - SUUB
Tel. 0213180519; Fax 0213180554 Splaiul Independentei, nr. 169, sector 5 , |
||
| 108. |
Spitalul Universitar de Urgenta Bucuresti - SUUB
Tel. 0213180519; 0213180554 Splaiul Independentei nr. 169, sector 5, |
||
| 109. |
Professional Klinic, Bucuresti - Tratament si analize
0314250805 ; 0742207755 Str.Agricultori, Nr. 115, bloc 79, Parter, Sector 3, Bucuresti |
||
| 110. |
Spitalul Clinic C.F. 2 - Bucuresti + ambulatoriu
Tel. 0372298711; Fax 0372298761 Bd. Marasti nr. 63, sector 1 , |
||
| 111. |
Prof. Dr. Panait Sirbu, Spitalul Clinic de Obstetrica-Ginecologie Bucuresti
0213161281; 0213161283 Calea Giulesti, nr. 5, sector 6 , |
||
| 112. |
Spitalul Clinic C.F. 2 - Bucuresti
Tel. 0372298711 Bd. Marasti nr. 63, sector 1, |
||
| 113. |
Centrul Medical Endocenter-Bucuresti
Tel.0764671233; Fax 0213267660 Str. Arh. G. Sterian, nr. 8, sector 2, |
||
| 114. |
Prof. Dr. Panait Sirbu, Spitalul Clinic de Obstetrica-Ginecologie Bucuresti
0213161281; 0213161283; 0213161287 Calea Giulesti, nr. 5, sector 6, bucuresti |
||
| 115. |
Omnia Medical Center - Clinica medicala, Bucuresti
0213230034; 0728841841 Bd. Octavian Goga, Nr. 14, Bl. M61, Parter, Sector 3, Bucuresti |
||
| 116. |
Clinica de Excelenta in Patologia Somnului Somnolog-Bucuresti
0213118822; 0784442277 Str.Dr.Leonte Anastasievici, nr.11, sector 5, |
||
| 117. |
Centru Medical Mediclass - Cotroceni
0214102727; 0214120128; 0214120129 Str. Elefterie, nr. 47-49 (Complex Comercial Cotroceni), sector 5, |
||
| 118. |
Clinica Regina Maria - Aviatiei-Bucuresti
0219268 Sos.Pipera, nr. 43,Floreasca Park, sector 1, |
||
| 119. |
Medisan Family Clinic - Clinica medicala Bucuresti
0217955980 Str. Dr. Calin Ottoi, nr. 20-22, sector 2 |
||
| 120. |
Spitalul clinic de copii Dr. Victor Gomoiu
0314136700; 0314136701 Bd. Basarabia nr. 21, sector 2, |
||
| 121. |
Clinica Medicover-Bucuresti
0219896 Str. Sergent Constantin Ghercu,, nr. 1A, sector 1, |
||
| 122. |
Policlinica Regina Maria - Cotroceni
0219268 Sos. Cotroceni, nr. 20, sector 6, |
||
| 123. |
Clinica Medicala On
.0213017676 Bd. Dimitrie Cantemir nr. 1, bl. B2, sc. 3, et. 2, sector 4, |
||
| 124. |
Podologica - Salon tratament pentru afectiunile picioarelor sector 4
0771458874 Bd. Dimitrie Cantemir, nr. 15, bl.9, sc.6, sector 4, |
||
| 125. |
Dr. V. Gomoiu, Spitalul de Copii - Ambulatoriul de specialitate Bucuresti
0314136700; 0314136701; 0314136706 Bd. Basarabia, nr. 21, sector 2, |
||
| 126. |
Spitalul de Urgenta de Chirurgie Plastica, Reparatorie si Arsuri
0212240946; 0212240947; Tel/Fax 0212241800 Calea Grivitei nr. 218, sector 1, |
||
| 127. |
Spitalul de Urgenta de Chirurgie Plastica, Reparatorie si Arsuri-Bucuresti
0212240946; 02.2240947; Tel/Fax 0212241800 Calea Grivitei , nr. 218, sector 1 , |
||
| 128. |
Spitalul Clinic de Boli Infectioase si Tropicale Dr. Victor Babes
0213172727 / .28 / .29/ .30 (Centrala); 0213172721 Sos. Mihai Bravu, nr. 281, sector 3, |
||
| 129. |
Spitalul Clinic \"Prof. Dr. Theodor Burghele\" + Ambulatoriu
Tel. 0214106910; Fax 0214111055 Sos. Panduri nr. 20, sector 5, |
||
| 130. |
Dr. Victor Babes, Spitalul Clinic de Boli Infectioase si Tropicale Bucuresti
0213172727 / .28 / .29/ .30 (Centrala); Fax 021 3172721 Sos. Mihai Bravu, nr. 281, sector 3 , |
||
| 131. |
Centrul Medical Dr. Victor Babes-Bucuresti
0213179503; Fax: 0213179502 Sos. Mihai Bravu nr. 281, sector 3 , |
||
| 132. |
Vitan Policlinica, Grupare de cabinete medicale - Bucuresti
0727451211; 0213234970; 0213221208 Calea Dudesti, Nr. 104-124, sector 3, Bucuresti |
||
| 133. |
Cabinet Medical Persepolis- Bucuresti
0749065961; 0751011893 Str. Vasile Toneanu , nr. 20, sector 3, |
||
| 134. |
Centrul Medical Nicomed-Bucuresti
0216372458; 0731338524 Calea Crangasi, nr. 23, ap.1, sector 6, |
||
| 135. |
Institutul Clinic Fundeni
Tel. 0212750500; Fax.0212750700 Sos.Fundeni, nr. 258, sector 2, Bucuresti |
||
| 136. |
Gral Medical - Centrul Medical, Bucuresti
0213230000; 0724242259 (programari radiologie); Fax 0213230002 Str.Traian Popovici (fosta Unitatii), Nr. 79-91, Sector 3, Bucuresti |
||
| 137. |
Centrul Medical Panduri-Bucuresti
0731806118; 0219901 Str. Dr. Ioan Atanasiu, nr. 34, sector 5, |
||
| 138. |
Centrul Medical Nicomed
0216372458; 0731338524 Calea Crangasi nr. 23, bl. 13, sc. 2, ap. 1, sector 6, |
||
| 139. |
Spitalul Clinic \"Prof. Dr. Theodor Burghele\" + Ambulatoriu
Tel.0214106910; Fax.0214111055 Sos. Panduri, nr. 20, sector 5, |
||
| 140. |
Institutul National pentru medicina complementara si alternativa
Tel.0783002934; 0214102419 Sos. Panduri , nr. 22, sector 5, |
||
| 141. |
Institutul National de Medicina Sportiva
0213184704 ; 0213184705 ; 0213184706 Bd. Basarabia, nr. 37-39, sector 2, Bucuresti |
||
| 142. |
Policlinica Baba Novac
0770218336; 0748175572 Str. Baba Novac, nr. 2, sector 3 |
||
| 143. |
Institutul Clinic Fundeni
0212750500; Fax.0213180444; 0212750700 Sos.Fundeni, nr. 258, sector 2, |
||
| 144. |
Scanmed - Clinica Medicala Bucuresti
0219215; 0317100141; 0729202202 Sos. Panduri, nr. 71, Parter, Sector 5 |
||
| 145. |
Emergency Medical Care - Servicii medicale de urgenta la domiciliu Bucuresti & Ilfov
0799058058; 0732528136; 0314250213 Calea Vitan, Nr. 109B-109D, Sector 3, Bucuresti |
||
| 146. |
Centrul Medical Rom Med 2000
0726366370; 0213270441; Tel/Fax 0213206087 Intr. Baba Novac, nr. 4 A, Sector 3, |
||
| 147. |
Centrul Medical Apolo- Bucuresti
Tel. 0214101770; 0214101615; 0744377034 Str. Coriolan Caius Marcius, nr. 41 (lang? benzinaria MOL Tudor Vladimirescu), sector 5, |
||
| 148. |
Clinica Memento Med-Bucuresti
0213260081 Str. Brailita, nr. 1, sector 3, |
||
| 149. |
Hipocrat 2000-clinica medicala-Bucuresti
0219605 Bd. Chisinau, nr. 16, sector 2, |
||
| 150. |
Spitalul Clinic Judetean de Urgenta Ilfov + ambulatoriu-Bucuresti
Tel.021.3243312; 0213241161; Fax .0213243296 Bd. Basarabia nr. 49-51, sector 2 , |
||
| 151. |
Spitalul Clinic Judetean de Urgenta Ilfov
Tel.0213243312; 0213241161; Fax 0213243296 Bd. Basarabia nr. 49-51, sector 2, |
||
| 152. |
Clinica Nova ORL - Dr. Voda Ioana Alexandra-Bucuresti
0213254422; 0799848484 Str. Pictor Gh. Tattarascu , nr. 2, subsol Policlinica Globului, in spatele cinematografului Gloria, Baba Novac, sector 3, |
||
| 153. |
Clinica Life-Med-Bucuresti
0319981 Str. Plugarilor , nr. 18,sector 4, |
||
| 154. |
L.E.M. Medical Center - servicii medicale Bucuresti
0219051; 072184622 Sos. Andronache, nr. 236, Sector 2 |
||
| vezi mai multe | |||
| 1. |
Scoala Gimnaziala Nr. 24 - Bucuresti
0212107185 Str. Tunari, Nr. 52, Sector 2, Bucuresti |
||
| 2. |
Scoala Gimnaziala Nr. 28 - Bucuresti
0212105910 Aleea Circului, Nr. 1, sector 2 |
||
| 3. |
Liceul Teoretic Alexandru Vlahuta Bucuresti
0212305292 Str. Scoala Floreasca, nr. 5, sector 1 |
||
| 4. |
Goethe, Colegiul German - Bucuresti
0212113425 Str. Stanislav Cihoschi, Nr. 17, Sector 1, Bucuresti |
||
| 5. |
I.L. Caragiale, Colegiul National - Bucuresti
0212301021 Calea Dorobantilor, nr. 163, sector 1, Bucurersti |
||
| 6. |
Elena Vacarescu, Scoala Gimnaziala - Bucuresti
0213163630 Str. Stanislav Cihoschi, nr. 15, sector 1, Bucuresti |
||
| 7. |
Scoala Gimnaziala Luca Bucuresti
0721335161; 0744894206 Str. Sfantul Petru Tei, Nr. 67 A- 71, Sector 2, Bucuresti |
||
| 8. |
Titu Maiorescu, Scoala Gimnaziala Nr.45 - Bucuresti
0212301673 Calea Dorobantilor, Nr. 163, Sector 1, Bucuresti |
||
| 9. |
Virgil Madgearu, Colegiul Economic - Bucuresti
0212117256 Bd. Dacia, Nr. 34, Sector 1, Bucuresti |
||
| 10. |
Traian, Liceu Teoretic - Bucuresti
0212106598; 0212105920 Str. Luigi Galvani, Nr. 20, sector 2, Bucuresti |
||
| 11. |
Aldo Moro, Scoala Italiana - Bucuresti
0212104684 Intr. Blaj, nr. 1, Sector 1, Bucuresti |
||
| 12. |
Maria Rosetti, Scoala Gimnaziala - Bucuresti
0212305276 Str. Garibaldi, nr. 3, Sector 2, Bucuresti |
||
| 13. |
Nicolae Tonitza, Liceu de Arte Plastice - Bucuresti
0212302793 Bd. Iancu de Hunedoara, Nr. 27, Sector 1, Bucuresti |
||
| 14. |
Scoala Ioanid, Gradinita, Gimnaziu, Liceu - Bucuresti
0758054401 Str. Nicolae Iorga, nr. 21, Sector 1, Bucuresti |
||
| 15. |
Cantemir Voda, Colegiul National - Bucuresti
0212106935 Str. Viitorului, Nr. 60, Sector 2, Bucuresti |
||
| 16. |
Colegiul National - Scoala Centrala - Bucuresti
0212118484; 0787288528 Str. Icoanei, Nr. 3-5, Sector 2, Bucuresti |
||
| 17. |
Cuib - After school, Bucuresti
0751088396 Str. Fainari, Nr. 45A, sector 2 |
||
| 18. |
Monterra - Scoala primara Bucuresti
0743119481 Str. Vasile Lascar, nr. 87, sector 2 |
||
| 19. |
Scoala Gimnaziala de Arte nr. 4 - Bucuresti
0212421450 Str. Maica Domnului, Nr. 61-63, Sector 2 |
||
| 20. |
EFI Bucarest - Scoala Franceza Internationala din Bucuresti
0749098867 Bulevardul Dacia, Nr. 12, Sector 1 |
||
| 21. |
Scoala Gimnaziala Nr. 31 - Bucuresti
0212421712; 0736613908 Bd. Lacul Tei, Nr. 116, sector 2 |
||
| 22. |
C.A. Rosetti, Liceu teoretic - Bucuresti
0212304873 Str. Giuseppe Garibaldi, Nr. 11, Sector 2, Bucuresti |
||
| 23. |
Scoala Gimnaziala Nr. 307 - Bucuresti
0212100012 Str. Luncsoara, Nr. 3, Sector 2, Bucuresti |
||
| 24. |
Jean Monnet, Liceu teoretic - Bucuresti
0212305078 Str. Jean Monnet, Nr. 2, Sector 1, Bucuresti |
||
| 25. |
Scoala Gimnaziala nr. 5 - Bucuresti
0213169918 Calea Victoriei, Nr. 114, Sector 1, Bucuresti |
||
| 26. |
Happy Drive Lucky - Scoala de soferi, Bucuresti
0755766849 Strada Inginerilor Tei, Nr.9, sector 2 |
||
| 27. |
Tudor Arghezi, Scoala Gimnaziala Nr. 19 - Bucuresti
0213169187 Str. Tudor Arghezi, Nr. 46-50, Sector 2, Bucuresti |
||
| 28. |
Sfantul Silvestru, Scoala Gimnaziala Nr. 23 - Bucuresti
0212102045 Str. Oltarului, Nr. 11, Sector 2, Bucuresti |
||
| 29. |
George Enescu, Colegiu National de Muzica - Bucuresti
0760665312; 0213108871 Str. General Gheorghe Manu, Nr. 30, Sector 1, Bucuresti |
||
| 30. |
Heliade Radulescu, Scoala Gimnaziala Nr. 11 - Bucuresti
0213163633 Sos. Kiseleff, nr. 5, sector 1, Bucuresti |
||
| 31. |
Liceul Teoretic Sfintii Trei Ierarhi - Bucuresti
0763688448 Str. Oltetului, nr. 15, sector 2 |
||
| 32. |
Scoala Gimnaziala Nr. 27 Principesa Ileana - Bucuresti
0212421645 Str. Masina de Paine, nr. 65, sector 2 |
||
| 33. |
Institutul de matematica Simion Stoilow
0213196506; 0213117780; Fax: 0213196505 Calea Grivitei, Nr. 21, Sector 1, Bucuresti |
||
| 34. |
Maica Domnului, Scoala Gimnaziala Nr. 50 - Bucuresti
0212520310 Str. Ion Maiorescu, Nr. 32, Sector 2, Bucuresti |
||
| 35. |
Sf. Sava, Colegiul National - Bucuresti
0213149294; 0213126821 Str. G-ral Berthelot, Nr. 23, Sector 1, Bucuresti |
||
| 36. |
Spiru Haret, Colegiu National - Bucuresti
0213136462 Str. Italiana, Nr. 17, Sector 2, Bucuresti |
||
| 37. |
I.N.Socolescu, Colegiul Tehnic de Arhitectura si Lucrari Publice - Bucuresti
0213108958 Occidentului, Nr. 12, Sector 1, Bucuresti |
||
| 38. |
Vasile Alecsandri, Scoala Gimnaziala (fosta Nr. 118) - Bucuresti
0213138287 Str. Stirbei Voda, Nr. 32-34, Sector 1, Bucuresti |
||
| 39. |
George Cosbuc, Colegiul National Bilingv - Bucuresti
0212528080 Str. Olari, Nr. 29-31, Sector 2, Bucuresti |
||
| 40. |
Tudor Vianu, Colegiul National de Informatica - Bucuresti
0212226670 Str. Arh. Ion Mincu, Nr. 10, sector 1, Bucuresti |
||
| 41. |
Liceul Teoretic National
0720000171 Str. Buzesti, Nr. 14-18; Sector 1, Bucuresti |
||
| 42. |
Hermes, Colegiul Economic - Bucuresti
0213147645 Calea Mosilor, Nr. 152, Sector 2, Bucuresti |
||
| 43. |
Scoala Gimnaziala Nr. 71 - Bucuresti
0213141395; 0213141391 Calea Mosilor, Nr. 148, Sector 2, Bucuresti |
||
| 44. |
Grigore Ghica Voievod, Scoala Gimnaziala Nr. 30 - Bucuresti
0212421160 Str. Laptari Tei, Nr. 23, Sector 2, Bucuresti |
||
| 45. |
FEG, Scoala Postliceala in domeniului medical - Bucuresti
0213111054; 0314050362; 0788424314 Walter Maracineanu, Nr. 1-3, Intrarea 2, Etaj. 2,, Bucuresti |
||
| 46. |
Ady Endre, Liceu Teoretic - Bucuresti
0212520192 Bd. Ferdinand I, Nr. 89, Sector 2, Bucuresti |
||
| 47. |
Iulia Hasdeu, Colegiu National - Bucuresti
0212524508 Bd. Ferdinand, Nr. 91, Sector 2, Bucuresti |
||
| 48. |
Pia Bratianu - Scoala Gimnaziala Nr. 17
0212226590 Str. Petofi Sandor, Nr. 14-16, Sector 1, Bucuresti |
||
| 49. |
A.D. Xenopol, Colegiul Economic - Bucuresti
0213205719 Str. Traian, Nr. 165, Sector 2, Bucuresti |
||
| 50. |
Nicolae Titulescu, Scoala Gimnaziala - Bucuresti
0212236393 Sos. Nicolae Titulescu, nr. 50-52, Sector 1, Bucuresti |
||
| 51. |
Scoala Gimnaziala Iancului Nr. 52
0212522260 Bd. Pache Protopopescu, Nr. 50, Sector 2, Bucuresti |
||
| 52. |
Iosif Sava, Scoala Gimnaziala de Arte - Bucuresti
0212312470 Str. Constantin Disescu, Nr. 37, Sector 1, Bucuresti |
||
| 53. |
Scoala Gimnaziala Nr. 1 - Sfintii Voievozi
0213127572; 0213164206; 0213179916 Str. Atelierului, Nr. 25, Sector 1, Bucuresti |
||
| 54. |
Ion I.C. Bratianu, Liceu Tehnologic - Bucuresti
0310699448 Str. Popa Lazar, Nr. 8A, Sector 2, Bucuresti |
||
| 55. |
Mihai Viteazu, Colegiul National - Bucuresti
0212525700; 0212525871 Bd. Pache Protopopescu, Nr. 62, Sector 2, Bucuresti |
||
| 56. |
Mihail Sadoveanu, Liceu teoretic - Bucuresti
0212527856 Str. Popa Lazar, Nr. 8A, Sector 2, Bucuresti |
||
| 57. |
Kretzulescu Nicolae, Scoala Superioara Comerciala - Bucuresti
0213139082 Bd. Hriso Botev, Nr. 17, Sector 3, Bucuresti |
||
| 58. |
Scoala Gimnaziala Nr. 56 - Bucuresti
0212524125; 0733087815 Bd. Pache Protopopescu, Nr. 109A, Sector 2, Bucuresti |
||
| 59. |
Scoala Gimnaziala de Arte nr. 2 - Bucuresti
0212525703 Bd. Ferdinand I, Nr. 128, Sectorul 2 |
||
| 60. |
Scoala Gimnaziala Nr. 25 - Bucuresti
0212422695 Str. Silvia, Nr. 54 Sector 2 |
||
| 61. |
Gheorghe Lazar, Colegiu National - Bucuresti
0213134756 Bd. Regina Elisabeta, Nr. 48, Sector 5, Bucuresti |
||
| 62. |
Ion Neculce, Colegiul National Bucuresti
0212224145; 0212224179 Str. Ion Neculce, Nr. 2, Sector 1, Bucuresti |
||
| 63. |
Liceul Tehnologic Nikola Tesla - Bucuresti
0212527886 Sos. Pantelimon, Nr. 25, sector 2 |
||
| 64. |
Miguel de Cervantes, Liceul Bilingv - Bucuresti
0213149311 Calea Plevnei, Nr. 38-40, Sector 1, Bucuresti |
||
| 65. |
Anastasia Popescu, Liceu Pedagogic Ortodox - Bucuresti
0212524665; 0725519386; 0722805777 Popa Nan, 47 B, Sector 2, Bucuresti |
||
| 66. |
Liceul Tehnologic Constantin Brancusi - Bucuresti
0212321275; 0787298171 Bd. Dimitrie Pompei, Nr. 1, Sector 2 |
||
| 67. |
International British School - Bucuresti
0212531698; 0745340841 Str. Agricultori, Nr. 21-25, Sector 2, Bucuresti |
||
| 68. |
Sweet Babies - Cresa, gradinita, after school, Bucuresti
0785810011 Strada Teleajen, 26B, sector 2 |
||
| 69. |
Edmond Nicolau, Colegiul Tehnic - Bucuresti
0212331541; 0212331910 Bd. Dimitrie Pompeiu, Nr. 3, Sector 2, Bucuresti |
||
| 70. |
Liceul Teoretic Bilingv Ita Wegman - Bucuresti
0769060529; 0212103391 Bd. Dimitrie Pompeiu, Nr. 3, CORP B, sector 2 |
||
| 71. |
Barbu Delavrancea, Scoala Gimnaziala Nr.73 - Bucuresti
0213237390 Str. Matei Basarab, Nr. 28-30, Sector 3, Bucuresti |
||
| 72. |
Phoenix, Liceu Teoretic - Bucuresti
0214341364; 0770911516 Virgiliu, Nr. 40, Sector 1, Bucuresti |
||
| 73. |
Fridolin, scoala primara si gimnaziala germana - Bucuresti
0723584872 (Adina Stoenescu); 0722502522 (Christian Comsa) Fagaras, Nr. 9-13, Sector 1, Bucuresti |
||
| 74. |
Uruguay, Scoala Gimnaziala - Bucuresti
0216370361 Str. Virgiliu, Nr. 40, Sector 1, Bucuresti |
||
| 75. |
Scoala Gimnaziala Nr. 85
0212524520 Str. Dr. Constantin Zlatescu, Nr. 7A, sector 2, Bucuresti |
||
| 76. |
Carol Davila, Scoala Sanitara Postliceala - Bucuresti
0216107068 Str. Agricultori, nr. 35, 37-39 (cladirea Codecs), sector 2, |
||
| 77. |
Serban, Scoala de Meserii - Bucuresti
0722302252; 0212520382 Intrarea Baritonului, Nr. 9 (prin Str. Matei Voievod Nr. 81-83), Sector 2, Bucuresti |
||
| 78. |
Laude-Reut, Complex Educational Bucuresti
0314382046; 0318055772 Str. Clucerul Udricani, Nr. 12, Sector 3, Bucuresti |
||
| 79. |
Matei Basarab, Colegiul National - Bucuresti
0213216640 Str. Matei Basarab, Nr. 32, Sector 3, Bucuresti |
||
| 80. |
Montessano - Scoala primara si gradinita, Bucuresti
0724924070; 0724919711 Str. Labirint, nr. 97-99, sector 3 |
||
| 81. |
Mihai Ionescu, Scoala Primara, Gimnaziu, Liceu - Bucuresti
0213235495 Str. Cauzasi, Nr. 43, Sector 3, Bucuresti |
||
| 82. |
Mihai Ionescu, Gradinita, Gimnaziu si Liceu - Bucuresti
0213235495; 0314054929 Cauzasi, Nr. 43, Sector 3 , Bucuresti |
||
| 83. |
Little Genius - Scoala primara Bucuresti
0724245249 Str. Carol Knappe, Nr. 95, sector 1 |
||
| 84. |
Nicolae Iorga, Liceu teoretic - Bucuresti
0212242026 Bd. Ion Mihalache, Nr. 126, Sector 1, Bucuresti |
||
| 85. |
Scoala Gimnaziala Herastrau, Bucuresti
0212326613 Str. Borsa, Nr. 27, Sector 1 |
||
| 86. |
Pick Me Academy - Scoala Primara Bucuresti
0726000640; 0722391000 Strada Agricultori, Nr. 79, Sector 2, Scoala Primara |
||
| 87. |
Scoala Gimnaziala Nr. 64 Ferdinand I - Bucuresti
0213351410 Bd. Garii Obor, Nr. 16, Sector 2 |
||
| 88. |
Mirunette Education, Consiliere si Programe Educationale - Bucuresti
0212101602 Valeriu Braniste, Nr. 37-39, Etaj 1, Ap. 3, Cam. 3, Sector 3, Bucuresti |
||
| 89. |
Scoala Gimnaziala Nr. 145 - Bucuresti
0212407036 Str. Heliade Intre Vii, Nr. 36, sector 2 |
||
| 90. |
Petre Ispirescu - Scoala Gimnaziala Nr. 171 - Bucuresti
0212241163 Str. Vasile Gherghel, Nr. 2, Sector 1, Bucuresti |
||
| 91. |
Geo Bogza, Scoala Gimnaziala Nr. 170 - Bucuresti
0212223072 Str. Barbu Lautaru, Nr. 4, Sector 1, Bucuresti |
||
| 92. |
Scoala Gimnaziala Nr. 39 - Bucuresti
0783292969; 0212403025; 0212400034 Sos. Colentina, Nr. 91, Sector 2, Bucuresti |
||
| 93. |
Emil Racovita, Colegiul National - Bucuresti
0213217092; Fax 0213217092 Sos. Mihai Bravu , nr. 169, sector 2, |
||
| 94. |
Spectrum Colentina, Scoala Primara - Bucuresti
0314338500; 0733314741 Sos. Colentina, Nr. 64B, Sector 2, Bucuresti |
||
| 95. |
Scoala Gimnaziala Nr. 150 - Bucuresti
0214108408 Bd. Eroii Sanitari, Nr. 29-31, Sector 5, Bucuresti |
||
| 96. |
Scoala Gimnaziala Nr. 46 - Bucuresti
0212502527 Str. Stanescu Gheorghe, Nr. 2-18, sector 2 |
||
| 97. |
AWEsome Primary School - Scoala clasele primare Bucuresti
0750460737 Str. Ienachita Vacarescu, nr. 22B, sector 4 |
||
| 98. |
Ion Creanga Colegiu National - Bucuresti
0213362695 Str. Cuza Voda, Nr. 51, sector 4, Bucuresti |
||
| 99. |
Victoria, Liceu Teoretic - Bucuresti
0314250543; 0759478014 Str. Turturelelor, nr. 11A, sector 3, Bucuresti |
||
| 100. |
Seminarul Teologic Ortodox Bucuresti
0213305754; 0731205629; 0213305754 Str. Radu Voda, Nr. 24 A, Sector 4, Bucuresti |
||
| 101. |
Scoala Gimnaziala Nr. 79 - Bucuresti
0314257884 Str. Cuza Voda, Nr. 51, Sector 4, Bucuresti |
||
| 102. |
Ada School - Bucuresti
0723595916; 0721424485 Dr. Carol Davila, Nr. 101, Bucuresti |
||
| 103. |
Scoala Gimnaziala Nr. 49 - Bucuresti
0212502444 Str. Vatra Luminoasa, Nr. 99, Sector 2, Bucuresti |
||
| 104. |
Colegiul National de Arte Dinu Lipatti - Bucuresti
0213363588 Str. Principatele Unite, Nr. 63, Sector 4, Bucuresti |
||
| 105. |
Colegiul Tehnic Dinicu Golescu - Bucuresti
0216370484 Calea Giulesti, Nr. 10, Sector 1 |
||
| 106. |
Arkedo - Gradinita, scoala si after school, Bucuresti
0753275336 Str. Daniel Danielopolu, nr. 42-44, sector 1 |
||
| 107. |
Scoala Gimnaziala Ienachita Vacarescu, Bucuresti
0213355705 Calea Serban Voda, Nr. 62-64, sector 4, Bucuresti |
||
| 108. |
Floria Capsali, Liceul de Coregrafie - Bucuresti
0213363792 Str. Capitan Preotescu, Nr. 9, Sector 4, Bucuresti |
||
| 109. |
Scoala Gimnaziala Nr. 168 - Bucuresti
0314326090 Str. Alizeului, Nr. 9, Sector 6, Bucuresti |
||
| 110. |
Montessori - Scoala si gradinita, Bucuresti
0754054402 Str. Maior Ion Coravu, Nr. 53, Sector 2 |
||
| 111. |
Cezar Bolliac, Scoala Gimnaziala Nr. 70 - Bucuresti
0314040172 Intr. Tiglina, Nr. 37, Sector 3, Bucuresti |
||
| 112. |
Kids Kingdom - Before & After School Bucuresti
0799199627 Intrarea Traian Demetrescu, Nr. 8, sector 3 |
||
| 113. |
Liceul tehnologic special Regina Elisabeta - Bucuresti
0212506220 Str. Vatra Luminoasa, Nr. 108, sector 2 |
||
| 114. |
Scoala Gimnaziala Nr. 128 - Bucuresti
0214102219 Str. Ion Creanga, Nr. 6, Sector 5, Bucuresti |
||
| 115. |
Liceul Teoretic Hyperion - Bucuresti
0311032803 Sos. Mihai Bravu, nr. 288C, sector 2 |
||
| 116. |
Eugen Barbu, Scoala Gimnaziala Nr. 173 - Bucuresti
0212240937 Str. Ivan Petrovici Pavlov, Nr. 2-4, Sector 1, Bucuresti |
||
| 117. |
Scoala Gimnaziala Nr. 81 - Bucuresti
0213263220 Str. Nerva Traian, Nr. 33, Sector 3, Bucuresti |
||
| 118. |
Colegiul Tehnic Mircea cel Batran - Bucuresti
0212242376 Str. Feroviarilor, Nr. 37, Sector 1 |
||
| 119. |
Scoala de Arta Bucuresti
0213306700 Str. Cuza Voda, nr. 100, |
||
| 120. |
Scoala Mea, Liceu Teoretic - Bucuresti
0376203079 Str. Valiug, Nr. 12-18, Sector 1, Bucuresti |
||
| 121. |
Complex Scoalr Cronos Bucuresti
0212225050; 0758107705 Str. Chibzuintei, Nr. 15-17, Sector 1, Bucuresti |
||
| 122. |
Sfantul Nicolae, Scoala Gimnaziala Nr. 175 - Bucuresti
0212241846 Str. Lainici, Nr. 4-8, Sector 1, Bucuresti |
||
| 123. |
Alegra - After-school Bucuresti
0729987920; 0726487124 Str. Portaresti, Nr. 11, etaj 1, sector 6 |
||
| 124. |
Penticostal Emanuel, Liceul Teologic - Bucuresti
0213311669 Str. Cuza Voda, Nr. 116, Sector 4, Bucuresti |
||
| 125. |
Scoala Gimnaziala nr. 32 - Bucuresti
0216556240 Str. Sportului, Nr. 21, sector 2 |
||
| 126. |
Liceul Tehnologic Sfantul Pantelimon - Bucuresti
0212559943 Str. Hambarului, Nr. 12A, sector 2 |
||
| 127. |
UCECOM, Colegiul Spiru Haret - Bucuresti
0213166195; 0213166196 Str. Economu Cezarescu, Nr. 47-59, Sector 6, Bucuresti |
||
| 128. |
I.G. Duca, Scoala Gimnaziala 146 - Bucuresti
0214100881 Sos. Panduri, Nr. 42, Sector 5, Bucuresti |
||
| 129. |
Viaceslav Harnaj, Colegiul Tehnologic - Bucuresti
0212327165 Bd. Ficusului, Nr. 20-26, Sector 1, Bucuresti |
||
| 130. |
Carol I, Colegiu Tehnic - Bucuresti
0212202750 Str. Porumbacu, Nr. 52, Sector 6, Bucuresti |
||
| 131. |
Scoala Gimnaziala Nr. 51 - Bucuresti
0212554060 Str. Herta, Nr. 1, Sector 2, Bucuresti |
||
| 132. |
SEB, Scoala Europeana, Invatamant primar, gimnazial si liceal - Bucuresti
0314381212; 0720068490 Bd. Expozitiei, Nr. 24D, sector 1, Bucuresti |
||
| 133. |
Leonardo Da Vinci, Scoala Gimnaziala Nr.75 - Bucuresti
0213248676 Str. Pictor Gheorghe Petrascu, Nr. 55, Sector 3, Bucuresti |
||
| 134. |
Scoala Gimnaziala Nr. 4 - Bucuresti
0212556425 Str. Herta, Nr. 14 A, Sector 2, Bucuresti |
||
| 135. |
Scoala Gimnaziala Nr. 40 - Bucuresti
0212406545 Str. Peris, Nr. 27, Sector 2, Bucuresti |
||
| 136. |
Victor Babes, Colegiul National - Bucuresti
0212407870 Sos. Fundeni, Nr. 254, Sector 2, Bucuresti |
||
| 137. |
Scoala Postliceala Sanitara Fundeni - Bucuresti
0212405135 Sos. Fundeni, Nr. 254, Sector 2, Bucuresti |
||
| 138. |
Colegiul Tehnic Mecanic Grivita - Bucuresti
0212240770 Calea Grivitei, Nr. 363, Sector 1, Bucuresti |
||
| 139. |
Smart Koala Kids Club
0771638419; 0771638425 Calea 13 Septembrie, Nr.126A, bl.P43, sc.1, parter, ap. 2, sector 5, Bucuresti |
||
| 140. |
Henri Coanda, Colegiul Tehnic de Aeronautica - Bucuresti
0212323616 Bd. Ficusului, Nr. 44, sector 1, Bucuresti |
||
| 141. |
Gheorghe Sincai, Colegiul National - Bucuresti
0213369004; 0213361455 Calea Serban Voda, Nr. 167, Sector 4, Bucuresti |
||
| 142. |
Scoala Gimnaziala Nr. 80 - Bucuresti
0213214256 Calea Dudesti, Nr. 191, Sector 3, Bucuresti |
||
| 143. |
Allyna - After School, Bucuresti
0724017926 Str. Cornisei, Nr.23, sector 2 |
||
| 144. |
Waldorf, Liceul Teoretic - Bucuresti
0212553051 Str. Sold. Marin Savu, Nr. 29, Sector 2, Bucuresti |
||
| 145. |
Dimitrie Paciurea, Liceu Vocational Artistic - Bucuresti
0216670195 Str. Baiculesti, Nr. 29, Sector 1, Bucuresti |
||
| 146. |
Liceul cu Program Sportiv Mircea Eliade - Bucuresti
0213141389 Splaiul Independentei, Nr. 315-317, Sector 6 |
||
| 147. |
Scoala Gimnaziala Nr. 95 - Bucuresti
0770503408; 0213235185 Str. Foisorului, Nr. 111-113, Sector 3, Bucuresti |
||
| 148. |
Scoala Gimnaziala Nr. 97 - Bucuresti
0213302545 Str. Viorele, Nr. 7, Sector 4, Bucuresti |
||
| 149. |
Scoala Gimnaziala Nr. 7 - Bucuresti
0212321531 Str. Neagoe Voda, Nr. 11, Sector 1, Bucuresti |
||
| 150. |
Dimitrie Leonida, Colegiul Tehnic - Bucuresti
0213243294; 0213243295; 0213243293; 0213246902 Bd. Basarabia, Nr. 47, Sector 2, Bucuresti |
||
| 151. |
Scoala Gimnaziala Nr. 115
0213163793; 0786401588 Calea 13 Septembrie, Nr. 177, Sector 5, Bucuresti |
||
| 152. |
Colegiul Tehnic Mihai Bravu - Bucuresti
0213217699 Sos. Mihai Bravu, Nr. 428, Sector 3 |
||
| 153. |
Ghelmez Petre, Scoala gimnaziala Nr. 58 - Bucuresti
0213245135 Str. Pescarusului, Nr. 124, Sector 2, Bucuresti |
||
| 154. |
Mihai Eminescu, Colegiul National - Bucuresti
0213304001 Str. V.V. Stanciu, Nr. 6 , Sector 4, Bucuresti |
||
| 155. |
Benjamin Franklin, Liceu teoretic - Bucuresti
0213244890; 0213243010 Str. Pictor Gh. Tattarescu, Nr. 1, sector 3, Bucuresti |
||
| 156. |
Colegiul Tehnic Petru Rares - Bucuresti
0213304001 Str. V. V. Stanciu, nr. 6, sector 4 |
||
| 157. |
Scoala Gimnaziala Nr.163 - Bucuresti
0212201018 Calea Giulesti, Nr. 54, Sector 6, Bucuresti |
||
| 158. |
Scoala Gimnaziala nr 180 - Bucuresti
0216671835 Bucegi, nr. 97, sector 1 |
||
| 159. |
Timotei Cipariu, Liceul Greco-Catolic - Bucuresti
0216678434 Str. Bucegi, Nr. 97, Sector 1, Bucuresti |
||
| 160. |
Scoala Gimnaziala Nr. 62 - Bucuresti
0212553635 Str. Potarnichii, Nr. 3, Sector 2, Bucuresti |
||
| 161. |
Viilor, Colegiul Economic - Bucuresti
0213160973; 0213160966 Sos. Viilor, Nr. 38, Sector 5, Bucuresti |
||
| 162. |
Scoala Generala nr. 84 Nicolae Balcescu - Bucuresti
0213216391 Calea Vitan, Nr. 135, sector 3 |
||
| 163. |
Magia Copilariei - After-school Bucuresti
0761912892 Strada Nucului, Nr. 55, Sector 3 |
||
| 164. |
Scoala Gimnaziala Nr. 86 - Bucuresti
0314250608 Intr. Reconstructiei, Nr. 6A, Sector 3, Bucuresti |
||
| 165. |
Colegiul Tehnic Media Arta si Tehnologie - Bucuresti
0216675585 Str. Jiului, Nr. 163, Sector 1 |
||
| 166. |
Kidos - Before & after school, Bucuresti
0770775730 Bulevardul Nicolae Grigorescu, nr. 2 D, sector 3 |
||
| 167. |
Marin Preda, Liceu teoretic - Bucuresti
0212202344 Str. Rusetu, Nr. 17, Sector 6, Bucuresti |
||
| vezi mai multe | |||
| 1. |
Bacania Veche - Bistro si pravalie Bucuresti
0752202103; 0212101222 Barbu Vacarescu, Nr. 49, sector 2 |
||
| 2. |
The Canteen - Restaurant Bucuresti
0735517630 Str. Barbu Vacarescu, Nr. 44, Bl. 7 Sector 2 |
||
| 3. |
Ganesha Caffe & Garden - Bucuresti
0764263742 Str. Barbu Vacarescu, nr. 71, sector 2, |
||
| 4. |
Dabeef - Restaurant Bucuresti
0739835658 Calea Floreasca, Nr. 111-113, Sector 1 |
||
| 5. |
E3 by Entourage - Restaurant Bucuresti
0734966889 Calea Floreasca, Nr. 111-113, Sector 1 |
||
| 6. |
Amareto, Cofetarie - Bucuresti
0736659592; 0723830104; 0723830104 whatsapp Sos. Stefan cel Mare , Nr. 36, Sector 2 (vis-a-vis de Circul Metropolitan Bucuresti), Bucuresti |
||
| 7. |
Cannoleria - Cafenea Bucuresti
0753325071 Str.Cornescu, Nr. 4, sector 1, |
||
| 8. |
Trafalgar Pub - Bucuresti
0212113151; 0766625805 David Emanuel , Nr. 4A, Sector 1, Bucuresti |
||
| 9. |
Pasterra - Restaurant cu mancare specifica din Abruzzo, Bucuresti
0751222668 strada Comandor Eugen Botez, Nr. 27, sector 2 |
||
| 10. |
Ciorbe si Placinte - Restaurant cu specific romanesc, Bucuresti
0755993070 B-dul Iancu de Hunedoara, Nr. 64, sector 1 |
||
| 11. |
Japanos - Restaurant cu specific japonez, Bucuresti
0771621192 Calea Dorobantilor, nr. 116-122, spatiul comercial nr. 3, parter, sector 1 |
||
| 12. |
Torna Fratre Restaurant - Bucuresti
0212103557; 0784111890 Tunari, Nr. 34, Sector 2, Bucuresti |
||
| 13. |
Die Deutsche Kneipe - Restaurant cu specific german
0722284560 Str. Stockholm, nr. 9, sector 1, |
||
| 14. |
Game On - Restaurant Bucuresti
0745055137 Calea Floreasca, Nr. 91-111, sector 1 |
||
| 15. |
Templul Soarelui, Restaurant chinezesc - Bucuresti
0212111693; 0723743878 Vasile Lascar, Nr. 205, Sector 2, Bucuresti |
||
| 16. |
Ciorbarie - Restaurant cu supe si ciorbe, Bucuresti
0785610628 Calea Dorobanti, Nr. 73, sector 1 |
||
| 17. |
Templul Soarelui, Restaurant chinezesc - Bucuresti
0212111693; 0723743878 Vasile Lascar, Nr. 205, Sector 2, Bucuresti |
||
| 18. |
Sara, Restaurant si Bacanie - Bucuresti
0749770770 Calea Floreasca, Nr. 111-113, Sector 2, Bucuresti |
||
| 19. |
Lolita - Boutique de dulciuri Bucuresti
0757013453 Strada Vasile Lascar, Nr. 212, sector 2 |
||
| 20. |
VacaMuuu - Restaurant cu specific american, Bucuresti
0731351135 Calea Floreasca, Nr.111, sector 1 |
||
| 21. |
VacaMuuu - Restaurant si bacanie Bucuresti
0731351135 Calea Floreasca, Nr. 111, sector 1 |
||
| 22. |
Nicolai To Go - Bistro Bucuresti
0741600006 Calea Dorobantilor, Nr. 67, sector 1 |
||
| 23. |
Capital Plaza, Hotel si Restaurant - Bucuresti
0372080050; 0372080081 Bd.Iancu de Hunedoara, Nr. 54, Sector 1, Bucuresti |
||
| 24. |
Acuarela Bufet - Bucuresti
0745662889; 0741403238; 0721483051 Polona, Nr. 40,Sector 1, Bucuresti |
||
| 25. |
Geste - Cofetarie Bucuresti
0730743783 Strada Dobrota, Nr. 16, Sector 2 |
||
| 26. |
Circus Pub - Restaurant cu burgeri, Bucuresti
0725180680 Bulevardul Lacul Tei, Nr 65, sector 2 |
||
| 27. |
Dorobanti 140, Cofetarie - Bucuresti
0723500025 Calea Dorobantilor, Nr.140,Sector 1, Bucuresti |
||
| 28. |
Donerboom - Fast food Bucuresti
0749043440 Str.Barbu Vacarescu, Nr. 102, Sector 2, |
||
| 29. |
Marshal Garden, Restaurant - Bucuresti
0213194444; 0213194445; 0758105310 Calea Dorobantilor, Nr. 50 B, Sector 1, Bucuresti |
||
| 30. |
Trattoria Mezzaluna - Restaurant specific italian Bucuresti
0729591469 Calea Dorobanti, Nr. 63, sector 1 |
||
| 31. |
Rekolta - Restaurant, Bucuresti
0721334564 Calea Floreasca, Nr. 102, sector 1 |
||
| 32. |
Pasticceria Giuseppina Cofetarie - Bucuresti
0730283947 Soseaua Stefan cel Mare, Nr.46, Sector 2, Bucuresti |
||
| 33. |
BistroMar - Restaurant pescaresc, Bucuresti
0740085088 Strada Banul Antonache, Nr. 55-27, sector 1 |
||
| 34. |
Gradina Eden - Terasa Bucuresti
0722185368 Calea Dorobanti, Nr. 44-46 sector 1 |
||
| 35. |
Capital Plaza, Hotel si Restaurant - Bucuresti
0372080080; Fax: 0372080081 Bd. Iancu de Hunedoara, Nr. 54, Sector 1, Bucuresti |
||
| 36. |
Aphrodisia - Ceainarie Bucuresti
0788129291 Intrarea Tudor Stefan, nr. 39, sector 1 |
||
| 37. |
Skybar - Bucuresti
0724759227 Calea Dorobanti, Nr. 155, Etaj 5, sector 1 |
||
| 38. |
Pot Stories - Restaurant, Bucuresti
0753348248 Calea Floreasca, nr. 111-113, sector 1 |
||
| 39. |
Shiva Coffee&Tea - Cafenea Bucuresti
0748874482 Strada Mihai Eminescu, Nr. 73, sector 2 |
||
| 40. |
VINO - Bar de vinuri, Bucuresti
0799944999 Strada Mihai Eminescu, Nr. 71 |
||
| 41. |
La Impinge Tava - Bucuresti
0721150452 Str. Mihai Eminescu, Nr. 73, Sector 2 |
||
| 42. |
Mozzafiato - Restaurant Bucuresti
0741190190 Calea Floreasca, Nr. 133-137, Sector 1 |
||
| 43. |
Gelato Mio - Magazin de inghetata Bucuresti
0765799379; 0720044495; 0744555599 Str. Polona, Nr. 76, sector 1 |
||
| 44. |
Yoshi Sushi & Teppanyaky - Restaurant japonez Bucuresti
0314290280; 0749979521 Str. Banu Antonache, Nr. 40-44, sector 1 |
||
| 45. |
Restaurant Sole - Bucuresti
0722587589 Bd. Iancu de Hunedoara, Nr. 48, etaj 15, sector 1 |
||
| 46. |
Ici et La - Restaurant cu specific francez Bucuresti
0731453608 Strada Domnita Ruxandra, Nr. 7, Sector 2 |
||
| 47. |
Moritz Eis - Gelaterie Bucuresti
0722363122 Strada Frederic Chopin, Nr. 10-12, Sector 2 |
||
| 48. |
Gabbiano - Restaurant cu specific italian Bucuresti
0757115272 Str. Banul Antonache, Nr. 40-44, sector 1 |
||
| 49. |
Tasting Room by Ethic Wine - Restaurant Bucuresti
0754993953 Putul lui Zamfir, Nr. 64, sector 1 |
||
| 50. |
Mon Cheri, Restaurant - Bucuresti
0748750029; 0771693817; 0212310908 Tudor Stefan, Nr. 16 (langa P-ta Dorobanti), sector 1, Bucuresti |
||
| 51. |
La Finca by Alioli - Restaurant Bucuresti
0767150500 Str. Caderea Bastiliei, Nr. 78, Sector 1, |
||
| 52. |
Delicii Gelato - Gelaterie artizanala Bucuresti
0721632019 Str. Constantin Aricescu, Nr. 65, sector 1 |
||
| 53. |
Grano - Restaurant cu specific italian, Bucuresti
0212312386 Strada Putul lui Zamfir, Nr. 40, sector 1 |
||
| 54. |
La Baraca - Bar & Grill Bucuresti
0758986045 Str. Pargarilor, Nr. 17bis, sector 2 |
||
| 55. |
Panik & Pub - Pub, Bucuresti
0728264360 Str. Mihai Eminescu, Nr. 33 |
||
| 56. |
Ceai la Vlaicu - Ceainarie Bucuresti
0727609699 Str. Aurel Vlaicu, Nr. 47, sector 2 |
||
| 57. |
Maccheroni - Restaurant Bucuresti
0722259360 Str. George Calinescu, Nr. 51, Sector 1, |
||
| 58. |
Refresh - Restaurant Bucuresti
0771189347 Strada Johann Sebastian Bach, Nr. 3, sector 2 |
||
| 59. |
Kanpai Bistro, Restaurant japonez si catering - Bucuresti
0755526724; 0371184961 George Calinescu, Nr.49, Sector 1, Bucuresti |
||
| 60. |
Maison des Crepes - Clatitarie Bucuresti
0770802524 Strada Mihai Eminescu, Nr. 38, Sector 2 |
||
| 61. |
Tuk Tuk - Restaurant cu specific thailandez, Bucuresti
0311099670;0741422489 Putul lui Zamfir, nr. 15, sector 1 |
||
| 62. |
Mon Paris Restaurant & Lounge - Restaurant cu specific european, Bucuresti
0799973783 Bd Dacia, Nr. 62, sector 2 |
||
| 63. |
Decadence - Bar & Restaurant
0741828489 Strada Constantin Daniel, nr. 11, sector 1 |
||
| 64. |
Dolce Principessa Cofetarie - Bucuresti
0212115155; 0735213101 Calea Dorobanti, nr. 50A, sector 1, Bucuresti |
||
| 65. |
Friddi - Gelaterie, Bucuresti
0314313295 Str. Vasile Alecsandri, Nr. 4, sector 1 |
||
| 66. |
Domino\'s Pizza - Bucuresti
0736500200 Bd. Iancu de Hunedoara, Nr. 38, Sector 1 , Bucuresti |
||
| 67. |
Domino\'s Pizza, Fast food - Bucuresti
0736500200 Bd. Iancu de Hunedoara, nr. 38, sector 1 , Bucuresti |
||
| 68. |
Ceramic Cafe - Bucuresti
0774007364 I.C. Visarion, Nr 20, sector 1 |
||
| 69. |
Benihana - Restaurant cu specific japonez
0751169889 Calea Dorobantilor, Nr. 5-7 Hotel Howard Johnson, sector 1, |
||
| 70. |
Zen Sushi - Restaurant japonez, Bucuresti
0722161718 Str. George Calinescu, nr. 15, Sector 1 |
||
| 71. |
White Horse Pub & Restaurant - Bucuresti
0212312795 George Calinescu , Nr. 4A, Sector 1, Bucuresti |
||
| 72. |
White Horse Pub & Restaurant - Bucuresti
0212312795; Fax.0212302151 George Calinescu , Nr. 4A, Sector 1 , Bucuresti |
||
| 73. |
Pizza Hut - Bucuresti
0740121901 Calea Dorobantilor , Nr. 5-7, Sector 1 , Bucuresti |
||
| 74. |
Pata Negra - Restaurant cu specific spaniol, Bucuresti
0734349076 Strada Washington, Nr 11, sector 1 |
||
| 75. |
Ana Cofetarie Bucuresti
0212300436; 0735554986 Lt. Av. Radu Beller, Nr. 6 Sector 1, Bucuresti |
||
| 76. |
Biscotto - Cofetarie Bucuresti
0212314099 Strada Nicolae Constantinescu, Nr. 8, Sector 1 |
||
| 77. |
Animaletto Pizza Bar - Bucuresti
0755019098 Strada Visarion, Nr 10, sector 1 |
||
| 78. |
China Town Restaurant - Bucuresti
0726130138; 0788671161; Tel/Fax:0212120239 Viitorului, Nr. 98, Sector 2, Bucuresti |
||
| 79. |
Blue Margarita - Restaurant cu specific mexican Bucuresti
0770944822 Strada Povernei, Nr. 15-17, sector 1 |
||
| 80. |
Casa Oamenilor de Stiinta - Restaurant, Bucuresti
0726664227; 0722926012; 0769293579 P-ta Lahovari, nr. 9, Sector 1 |
||
| 81. |
Nuba Cafe - Restaurant pentru mic dejun si brunch, Bucuresti
0736300000 Street Locotenent Aviator Radu Beller, Nr. 13, sector 1 |
||
| 82. |
La Cantine de Nicolai, Restaurant - Bucuresti
0725210608 Povernei, Nr. 15-17, Sector 1, Bucresti |
||
| 83. |
Shift Pub - Bucuresti
0212112272 Str. General Eremia Grigorescu, Nr.17 |
||
| 84. |
Fast Food Eminescu - Bucuresti
0723161166 Str. Mihai Eminescu, nr 137, sector 2 |
||
| 85. |
Cofetaria Casandra - Bucuresti
0757252466 B-dul. Magheru, Nr. 32-36, Sector 1 |
||
| 86. |
Point Hub - Hub Cultural, Bucuresti
0748291815 Str. General Eremia Grigorescu, nr. 10, sector 1, |
||
| 87. |
Casual Pub - Restaurant Bucuresti
0770841212 Bd. Dacia, Nr. 104, Sector 2 |
||
| 88. |
Lente - Restaurant pentru mic dejun si brunch, Bucuresti
0314107585 Dionisie Lupu, Nr 78, sector 1 |
||
| 89. |
Boema 33 - Restaurant, Bucuresti
0722295463 Bd. Dacia, nr. 33, sector 1 (Piata Romana) |
||
| 90. |
Sweet by MarVio - Cofetarie Bucuresti
0212105291 Soseaua Stefan cel Mare, Nr 31, sector 2 |
||
| 91. |
Suento - Restaurant cu specific european modern, Bucuresti
0787605362 Strada Toamnei, Nr. 101, sector 2 |
||
| 92. |
Bomb Doner Kebap - Restaurant fast-food, Bucuresti
0727771549 Strada Lizeanu, Nr. 5, sector 2 |
||
| 93. |
Veranda Casa Frumoasa - Restaurant Bucuresti
0733735932 Str. Clopotarii Vechi, Nr. 5, sector 1 |
||
| 94. |
KFC Romana, Fast Food - Bucuresti
0740121904 Bd. G-ral Gh. Magheru , Nr. 28-30, Sector 1 , Bucuresti |
||
| 95. |
B4 Market - Restaurant pentru mic dejun si brunch Bucuresti
0724588591 Strada Locotenent Aviator Radu Beller, Nr. 54, sector 1 |
||
| 96. |
Ciccio - Pizzerie Bucuresti
0745515510 Strada Henri Coanda, Nr. 28 sector 1 |
||
| 97. |
Nan Jing, Restaurant chinezesc - Bucuresti
0213181285; 0726103407 G-ral Gheorghe Manu, Nr. 2-4 (Hotel Minerva), Sector 1, Bucuresti |
||
| 98. |
Naser 2 - Restaurant traditional libanez Bucuresti
0799997111 Str. Maica Domnului, Nr. 5B, Sector 2 |
||
| 99. |
Unico Vero - Restaurant cu specific italian, Bucuresti
0212123338;0758110265 Strada Viitorului, Nr. 8, sector 2 |
||
| 100. |
Cofetaria Lush - Bucuresti
0720976019?; 0721605303 Soseaua Stefan cel Mare, Nr. 226, bloc.44, parter, sector 2 |
||
| 101. |
Barrio - Restaurant & bar, Bucuresti
0733222777 Biserica Amzei, Nr. 30, sector 1 |
||
| 102. |
Tonka Soul Café - Bucuresti
0371445255 Biserica Amzei , Nr. 19, Sector 1, Bucuresti |
||
| 103. |
Restaurant Ceaun
0756090680 Strada Maica Domnului, Nr. 54-56, sector 2 |
||
| 104. |
Ambasador, Restaurant - Hotel Ambasador, Bucuresti
0213159080 Bd. G-ral Ghe. Magheru, Nr. 8-10, Sector 1, Bucuresti |
||
| 105. |
Sara Green - Restaurant vegan, Bucuresti
0774962246;0765191076 Bulevardul Lascar Catargiu, Nr 43, Sector 1 |
||
| 106. |
Nido Kitchen & Wine - Restaurant cu specific international, Bucuresti
0374004488 Aleea Alexandru, Nr. 35 |
||
| 107. |
La Copac - Carciuma de jupani, Bucuresti
0722704445 str. Pitar Mos, nr. 23, sector 1 |
||
| 108. |
Restaurant Home - Bucatarie internationala, Bucuresti
0722509794; 0728708216; 0729811130 Str. Alexandru Xenopol, Nr. 1 (zona Gradina Icoanei), Sector 1, Bucuresti |
||
| 109. |
Camera din fata - Ceainaria Bucuresti
0213111512 Str. Mendeleev, Nr. 22, sector 1, langa Piata Amzei |
||
| 110. |
Pizzicato, Pizzerie si catering - Bucuresti
0212111213 Strada Icoanei, Nr. 2, Sector 2, Bucuresti |
||
| 111. |
Trattoria Buongiorno - Restaurant cu specific italian, Bucuresti
0722446766 Bdul. Lascar Catargiu, Nr. 56, sector 1 |
||
| 112. |
City Grill Restaurant - Bucuresti
0722446766; 0724599886 Bulevardul Lascar Catargiu, Nr. 56, Sector 1, Bucuresti |
||
| 113. |
Luna Cafe & Bistro - Bucuresti
0771609431; 0771211246 Str. Viitorului, Nr. 32, sector 2, |
||
| 114. |
Casa Jienilor, Restaurant - Bucuresti
0735994994; 0722916111 Str. Fainari, nr. 5, sector 2, |
||
| 115. |
Tropicana, Restaurant - Bucuresti
0724614723 (Niculae Adrian); 0724571502 (Niculae Valentina) Grigore Ionescu, Nr 94, Sector 2, Bucuresti |
||
| 116. |
El Pato - Restaurant Bucuresti
0730344810; 0311072033 Strada Dionisie Lupu, Nr. 48, sector 1 |
||
| 117. |
Bistro La Taifas, Restaurant - Bucuresti
0212127788; 0723197156 Gheorghe Manu, Nr. 16, Sector 1, Bucuresti |
||
| 118. |
Caro, Restaurant - Bucuresti
0212086128; 0212086100; 0212086196 Barbu Vacarescu, Nr. 164A, Sector 2, Bucuresti |
||
| 119. |
Refugiu - Restaurant Bucuresti
0763478438;0727626981 Strada Otesani, Nr 73 , Sector 2 |
||
| 120. |
Journey Pub - Bucuresti
0752285286 Strada George Enescu, Nr. 25, sector 1 |
||
| 121. |
Gelato D\'Amore - Magazin de inghetata Bucuresti
0771727627 Strada Maria Rosetti, Nr. 13, Sector 2 |
||
| 122. |
La Gafe - Restaurant traditional Bucuresti
0721389446 Str Dorin Pavel, Nr 1, sector 2 |
||
| 123. |
AVA Bistro - Restaurant si catering, Bucuresti
0770888222 Strada Dorin Pavel, Nr. 15, sector 2 |
||
| 124. |
5ENSI by BeanZ Cafe - Bucuresti
0733888555 Bd. Aviatorilor, Nr. 8A, sector 1, Bucuresti |
||
| 125. |
La Cena - Restaurant cu specific italian, Bucuresti
0212116717;0730210014 Maria Rosetti, Nr. 1, sector 2 |
||
| 126. |
Za Lokal - Restaurant pentru mic dejun si brunch, Bucuresti
0770557931 Calea Victoriei, Nr 214, sector 1 |
||
| 127. |
Mercato Kultur - Restaurant cu specific international, Bucuresti
0759134767 Gheorghe Demetriade, nr. 6-10, Aviatorilor, sector 1 |
||
| 128. |
Lugo - Restaurant cu specific mediteranean, Bucuresti
0785238910 George Enescu, Nr. 23, sector 1 |
||
| 129. |
Cafe Verona - Cafenea Bucuresti
0732003060 Str. Arthur Verona, Nr. 13, sector 1, |
||
| 130. |
M60 - Cafenea Bucuresti
0314100010 Strada Mendeleev, Nr 2, sector 1 |
||
| 131. |
Springtime, Restaurant - Bucuresti
0742224736; 0742224743; 0742224739 Piata Victoriei, Bl. A6 Sector 1, Bucuresti |
||
| 132. |
Trattoria Don Vito - Restaurant Bucuresti
0733333021 Str. Mendeleev, Nr. 1, Sector 1 |
||
| 133. |
The Artist Restaurant - Bucuresti
0728318871 Calea Victoriei, Nr.147, sector 1 |
||
| 134. |
Salon Golescu - Bar specializat in cocktailuri, Bucuresti
0314360338 Strada Nicolae Golescu, Nr 17, sector 1 |
||
| 135. |
Red Angus Steakhouse - Restaurant Bucuresti
0756600000 Piata Amzei, Nr. 10-22Sector 1, |
||
| 136. |
Ambasador, Bar si Restaurant - Bucuresti
0213159080; Fax 0213123595 Bd. G-ral Gh. Magheru, Nr. 8-10, Sector 1, Bucuresti |
||
| 137. |
Haveli, Restaurant - Bucuresti
0212110390; 0721721640 Episcopul Radu, Nr. 3, Sector 2, Bucuresti |
||
| 138. |
Coclinta Brasserie- Restaurant cu specific romanesc, Bucuresti
0770238774 Calea Victoriei, Nr. 153, sector 1 |
||
| 139. |
La Taifas, Restaurant - Bucuresti
0212127788; 0723197156 Gheorghe Manu, Nr. 16, sector 1 , Bucuresti |
||
| 140. |
Coolinart - Gastropub Bucuresti
0772017955 Calea Victoriei, Nr. 142-148, sector 1 |
||
| 141. |
Newton Bar, Bucuresti
0770718303; 0213150217 Jean Louis Calderon, Nr. 56 (Universitate), Sector 2, Bucuresti |
||
| 142. |
Fadel - Patiserie Bucuresti
0786309530; 0722919132 Strada Jean Louis Calderon, Nr. 56, Sector 2 |
||
| 143. |
Il Destino, Restaurant italian - Bucuresti
0212103039; 0758836278; 0744318094 (Pentru evenimente) Silvestru, Nr. 67, Sector 2, Bucuresti |
||
| 144. |
Bone - Restaurant Bucuresti
0733198200 Calea Floreasca, Nr. 198, sector 1 |
||
| 145. |
Casa Jienilor Fainari, Restaurant - Bucuresti
0212121951; 0735994994 Fainari, Nr. 5, Sector 2, Bucuresti |
||
| 146. |
Neopolis Family Pizza - Bucuresti
0734895330; 0770995973 Gheorghe Titeica, Nr. 101, Sector 2 |
||
| 147. |
Casa Jienilor, Restaurant - Bucuresti
0212121951; 0722916111 Fainari, Nr. 5, Sector 2, Bucuresti |
||
| 148. |
CAJU by Joseph Hadad - Braserie, Bucuresti
0751144545 Nicolae Golescu, Nr. 16, sector 1 |
||
| 149. |
Blunch Bistro - Restaurant, Bucuresti
0736898990 Mihai Eminescu, Nr.181, sector 2 |
||
| 150. |
Casa Jienilor, Restaurant - Bucuresti
0212121951; 0722916111; Fax 0212121951 Fainari, N. 5, Sector 2, Bucuresti |
||
| 151. |
Wine Ambassador - Bar de vinuri, Bucuresti
0733182037 Intrarea Biserica Alba, nr.1, sector 1 |
||
| 152. |
Sweetology - Gelaterie, Bucuresti
0734444889 Calea Victoriei, Nr. 122, sector 1 |
||
| 153. |
Nicoresti, Restaurant - Bucuresti
0212112480; 0724290550 Toamnei, Nr. 13 (colt cu Maria Rosetti nr. 40), Sector 2, Bucuresti |
||
| 154. |
Bar A1 - Bucuresti
0770901409 Piata Amzei, Nr 1, sector 1 |
||
| 155. |
French Bakery, Cofetarie - Bucuresti
0213114518 Benjamin Franklin, Nr. 9, Sector 1, Bucuresti |
||
| 156. |
Chocolat Ateneu - Boutique restaurant cu livrare de prajituri in Bucuresti
0743777807; 0744507506 Strada Episcopiei, Nr. 6, Sector 1, Bucuresti |
||
| 157. |
Pandoras Food - Restaurant fast-food Bucuresti
0760102012 Strada Gheorghe Titeica, Nr. 138, Sector 2 |
||
| 158. |
Creamier - Cafenea Bucuresti
0741234567 Strada Benjamin Franklin, Nr. 5, Sector 1 |
||
| 159. |
Velocita - Gelaterie, Bucuresti
0739889189 Calea Victoriei, Nr. 122, sector 1 |
||
| 160. |
Fika18 - Croissanterie, Bucuresti
0770663982 Calea Victoriei, Nr. 101, sector 1 |
||
| 161. |
Savart - Arta savorilor Gourmet, Bucuresti
0743575757 Str. George Enescu, Nr. 2-4, sector 1 |
||
| 162. |
Hatz Burger Studio - Restaurant cu burgeri
0770920018 Soseaua Stefan cel Mare, Nr. 240, Bl. 59A, Sector 2 |
||
| 163. |
Terminus - Pub, Bucuresti
0730222555 Str. George Enescu, nr. 5, sector 1, |
||
| 164. |
Primus Pub - Bucuresti
0732222666 George Enescu, Nr. 3, sector 1 |
||
| 165. |
Gusto e Passione - Gelateria Artigianale, Bucuresti
0755555453 Calea Victoriei, Nr. 87, sector 1 |
||
| 166. |
La Taifas, Bistro - Bucuresti
0723197156; 0212127788 Mihail Moxa, Nr. 12, Sector 1 , Bucuresti |
||
| 167. |
Tip Top, Cofetarii - Bucuresti
0212422414 Soseaua Colentina, Nr. 2, Sector 2 (magazinul Bucur-Obor), Bucuresti |
||
| 168. |
The President, Restaurant - Bucuresti
0720047541; 0760087384; 0766747379 Bd. Lacul Tei, nr. 145 (in Parcul Tei - pe malul lacului), Sector 2, Bucuresti |
||
| 169. |
Ciao Niki - Restaurant cu specific italian, Bucuresti
0734356217;0756044805 Strada Bocsa, Nr 4, sector 2 |
||
| 170. |
Prajituri de Casa - Cofetarie Bucuresti
0751135153 Calea Mosilor, Nr. 225, sector 2 |
||
| 171. |
Fatafit - Restaurant cu specific libanez, Bucuresti
0760445555 Calea Mosilor, Nr. 225, Sector 2 |
||
| 172. |
Trattoria Soleto - Restaurant cu specific italian
0734382419 Soseaua Colentina, nr. 1, sector 2 |
||
| 173. |
Miss Ale - Espresso Bar, Bucuresti
0371394059 Calea Victoriei, Nr. 100, sector 1 |
||
| 174. |
Osteria Zucca - Restaurant cu specific italian, Bucuresti
0770287979; 0314206814 Jean-Louis Calderon, Nr. 41, Sector 2, Bucuresti |
||
| 175. |
Brigitte - Cofetarie Bucuresti
0727891345; 0745779722 str. Cristea Mateescu, Nr.77, Sector 2 |
||
| 176. |
Trattoria Verdi, Restaurant italian - Bucuresti
0212225098 ; 0731333411 Bd. Aviatorilor, Nr. 19, Sector 1, Bucuresti |
||
| 177. |
QP Pub - Bucuresti
0736405451 Str. General David Praporgescu, Nr. 13, sector 2 |
||
| 178. |
Athénée Palace Hilton,Cafenea,Baruri - Bucuresti
0213033777; 0213152121; Fax: 0213152121 Episcopiei, Nr. 1-3, Sector 1 , Bucuresti |
||
| 179. |
Zeppelin Pub - Bucuresti
0722170024 Strada Marin Serghiescu, Nr. 7, sector 2 |
||
| 180. |
Zen Garden - Restaurant cu specific chinezesc, Bucuresti
0745102272 Strada Silvestru, Nr. 3, sector 2 |
||
| 181. |
Imperial Turkish Cuisine & Steakhouse- Restaurant Bucuresti
0720102222 Strada Jean Louis Calderon, Nr. 33, Sector 2 |
||
| 182. |
BEAT bar umanist - Bar, Bucuresti
0720854187 Vasile Lascar, Nr. 29, sector 2 |
||
| 183. |
Mio Cuisine - Restaurant & Home Delivery, Bucuresti
0743287437 Pictor Barbu Iscovescu, Nr. 19 ,Sector 1, Bucuresti |
||
| 184. |
Hambar Brasserie - Bucuresti
0212226422;0787896547 Aviatorilor, nr. 31, sector 1 |
||
| 185. |
Beautyfood - Bistro, Bucuresti
0759030609 Jean Louis Calderon, Nr. 34, sector 2 |
||
| 186. |
Armand, Cofetarie - Bucuresti
0310051187; 0741276263 Armand Calinescu , Nr. 25, Sector 2, Bucuresti |
||
| 187. |
Fratelli Social Club - Bucuresti
0722115115; 0730878300 Goldeni, Nr. 1-3, Sector 2, Bucuresti |
||
| 188. |
Casa Doina, Restaurant - Bucuresti
0745009009; 0212226717; 0212223179 Soseaua Pavel D. Kiseleff, Nr. 4, Sector 1, Bucuresti |
||
| 189. |
Casa Doina, Restaurant - Bucuresti
0212226717; 0745009009 Soseaua. Kiseleff , Nr. 4, Sector 1, Bucuresti |
||
| 190. |
Divan, Restaurant - Bucuresti
0316404450 Barbu Vacarescu, Nr.241A, Sector 1, Bucuresti |
||
| 191. |
KALI - Restaurant cu bufet, Bucuresti
0725988889 Strada Buzesti, Nr. 71, Sector 1 |
||
| 192. |
Fayn Urban Eatery - Restaurant, Bucuresti
0723257692 Strada Buzesti, nr. 71, sector 1 |
||
| 193. |
Rocca by The Jar - Gastropub Bucuresti
0770857841 Str. Pictor Theodor Aman, Nr. 36, sector 1 |
||
| 194. |
Refill - Bistro cu specific international, Bucuresti
0786372856 Bulevardul Mihalache, Nr. 12, sector 1 |
||
| 195. |
Joy House - Restaurant Bucuresti
0730443232 Str. Teiul Doamnei, Nr. 9A, Sector 2 |
||
| 196. |
DolciConi - Gelaterie Bucuresti
0753762549 Vasile Lascar, Nr 26-28, sector 2 |
||
| 197. |
Zexe Restaurant romanesc - Bucuresti
0722210844 Oltetului, Nr. 30, Sector 2, Bucuresti |
||
| 198. |
Terasa Florilor - Restaurant cu terasa, Bucuresti
0755097931 Str. Ion Maiorescu, nr. 42, sector 2 |
||
| 199. |
Dancing Lobster - Restaurant cu specific portughez, Bucuresti
0770690886 Str. Glodeni, Nr . 3 Cladirea C22, Sector 2, Bucuresti |
||
| 200. |
Sabatini Pizza - Bucuresti
0770227880; 0766606637; 0731876441 Teiul Doamnei, Nr. 15, Sector 2, Bucuresti |
||
| 201. |
Club Floreasca, Restaurant - Bucuresti
0213198177; 0755085967; Fax 0212307979 Mircea Eliade, Nr. 1, Sector 1, Bucuresti |
||
| 202. |
Sabatini Pizza - Bucuresti
0212428725; 0731876441; 0766606637 Teiul Doamnei , Nr 15, Sector 2, Bucuresti |
||
| 203. |
ChefBox - Restaurant, Bucuresti
0728800528 Buzesti, Nr. 57-59, sector 1 |
||
| 204. |
Coppa - Bar cu vinuri si cafea, Bucuresti
0741594545; 0756080004 Bd. Nicolae Titulescu, nr. 3, sector 1 |
||
| 205. |
DA Giulio - Pizzerie, Bucuresti
0212420385 Colentina, Nr. 23 A, sector 2 |
||
| 206. |
Buenasado SteakHouse - Restaurant Bucuresti
0747865210 Strada Glodeni, Nr. 3, sector 2 |
||
| 207. |
Paninaro - Restaurant pentru mic dejun si brunch
0771783619 Strada Luterana, Nr 3, sector 1 |
||
| 208. |
Club Floreasca Restaurant - Bucuresti
0213198177; 0755085967; Fax 0212307979 Mircea Eliade, Nr. 1, Sector 1, Bucuresti |
||
| 209. |
Casa Victor, hotel si Restaurant - Bucuresti
0212225723; 0733953910 Emanoil Porumbaru, Nr. 44, Sector 1 , Bucuresti |
||
| 210. |
Zexe Braserie - Bucuresti
0786778777 B-dul Aviatorilor, Nr. 65, Sector 1 |
||
| 211. |
Restaurant La Teu - Bucuresti
0723642022 Strada Titu Maiorescu, Nr.18, sector 2 |
||
| 212. |
Bistro Fum de Vorbe - Restaurant Bucuresti
0748628830; 0723686292 Vasile Lascar, Nr. 24, Sectorul 2 |
||
| 213. |
El Torito, Restaurant - Bucuresti
0212526688; 0728176059 Iancu Capitanu , Nr. 30, Sector 2, Bucuresti |
||
| 214. |
Gradina Urbana - Restaurant cu specific american, Bucuresti
0745250077 Strada Batistei, Nr. 14, sector 2 |
||
| 215. |
Gambino\'s Pizza - Bucuresti
0731707070; 0725271471; 0310050209 Vasile Lascar, Nr.24, Sector 2, Bucuresti |
||
| 216. |
PengYou - Restaurant specific chinezesc Bucuresti
0787748272 Str. Occidenului, Nr. 11, Sector 1 |
||
| 217. |
Hashtag Pub - Bucuresti
0771555444 Soseaua Mihai Bravu, Nr 32, sector 2 |
||
| 218. |
Mr. Cigkofte - Restaurant fast-food, Bucuresti
0720802181 Nicolae Balcescu, Nr. 18, sector 1 |
||
| 219. |
Banjo Jack - Restaurant cu burgeri, Bucuresti
0770653341 Strada Iancu Capitanu, Nr 26, sector 2 |
||
| 220. |
Bolta Rece Restaurant - Bucuresti
0212227258; 0722527077 Popa Savu, Nr. 53-55, Sector 1, Bucuresti |
||
| 221. |
Old Kitchen - Restaurant Bucuresti
0732773537 Str. Sfintii Voievozi, Nr. 13, Sector 1 |
||
| 222. |
Restaurant Burebista Traditional - Bucuresti
0755041484; 0212109704 Calea Mosilor, Nr 195, sector 2 |
||
| 223. |
Bolta Rece, Restaurant, Terasa - Bucuresti
0212227258; 0722527077 Popa Savu, Nr..53- 55, Sector 1, Bucuresti |
||
| 224. |
J\'ai Bistrot - Gastropub, Bucuresti
0790229922 Calea Grivitei, nr. 55, sector 1 |
||
| 225. |
Nice Touch - Restaurant cu meniu international, Bucuresti
0771568361 Strada Sperantei, nr.7, sector 2 |
||
| 226. |
Calderon 18 - Restaurant cu terasa, Bucuresti
0731886789 Str. Jean Louis Calderon, Nr.18, sector 2, |
||
| 227. |
FoodVibe - Serviciu de livrare mancare
0371333222 Strada Sperantei, nr. 7, sector 2 |
||
| 228. |
Fior di Latte - Restaurant cu specific italian, Bucuresti
0784420555 Bulevardul Primaverii, Nr. 19-21 |
||
| 229. |
Osho - Restaurant cu fripturi, Bucuresti
0758758750 Bulevardul Primaverii, Nr. 19-21, sector 1 |
||
| 230. |
Kane - Noua bucatarie romaneasca fina
0314100016 Str. Dianei, nr. 9 (Piata Rosetti), sector 2 |
||
| 231. |
Claus, Cofetarie Bucuresti
0212220218; 0721264900 Bd. Banu Manta, Nr. 21A, Sector 1, Bucuresti |
||
| 232. |
Frufru, Fresh, natural, yummy , Fast food - Bucuresti
0212221111; 0765346715 Batistei , Nr. 1-3, Sector 2, Bucuresti |
||
| 233. |
Angeline Cake Boutique - Cofetarie, Bucuresti
0753652144 Str. Doctor Iacob Felix, Nr. 59, Sector 1 |
||
| 234. |
Angelo Grasso - Restaurant cu specific italian, Bucuresti
0739955555 Strada Tudor Arghezi, 12-16, sector 2 |
||
| 235. |
Le Bab - Restaurant cu specific oriental, Bucuresti
0743179555 Charles de Gaulle, Nr. 3, sector 3-1, |
||
| 236. |
Excalibur, Restaurant - Bucuresti
0730190364; Tel Fax: 0213145670 Academiei, Nr. 39-41, Sector 1 , Bucuresti |
||
| 237. |
Poesia - Restaurant cu specific mediteranean, Bucuresti
0744502000 Bulevardul Aviatorilor, Nr. 76, sector 1 |
||
| 238. |
Black Habit - Cafenea
0770357382 Calea Grivitei, Nr. 77, sector 1 |
||
| 239. |
Time Out Cafe - Bar & Cafenea Bucuresti
0744644400 Strada Olari, Nr. 7, sector 2 , |
||
| 240. |
Pain Plaisir - Patiserie Bucuresti
0745645555 Strada Barbu Delavrancea, Nr. 1, sector 1 Pain Plaisir Kiseleff |
||
| 241. |
Arome - Restaurant vegetarian/vegan, Bucuresti
0749109639 Luigi Cazzavillan, Nr. 25, sector 1 |
||
| 242. |
OPUS TNB - Bar specializat in cocktailuri
0771595407 Bulevardul Nicolae Balcescu, Nr. 2, sector 1 |
||
| 243. |
Boutique Du Pain - Restaurant cu specific francez, Bucuresti
0728443300 Academiei, Nr. 28-30, sector 1 |
||
| 244. |
La Samuelle - Restaurant cu specific international, Bucuresti
0730173180 Piata Charles de Gaulle, Nr. 3-5, Sector 1 |
||
| 245. |
Bohemia Tea House, Ceainarie - Bucuresti
0727333631 Poiana Narciselor, Nr. 1 (vizavi de Conservator), Sector 1, Bucuresti |
||
| 246. |
Wicked Bar - Bucuresti
0722615188; 0723574895 Strada Spatarului, Nr. 4, Sector 2, Bucuresti |
||
| 247. |
Karishma, Restaurant indian - Bucuresti
0212525157; 0737519953 Iancu Capitanu, Nr. 36, Sector 2, Bucuresti |
||
| 248. |
The Soup Carousel - Restaurant cu supe si ciorbe, Bucuresti
0725356907 Sos. Nicolae Titulescu, Nr. 12, sector 1 |
||
| 249. |
Gradina Olari - Terasa, Bucuresti
0770147410 Strada Olari, nr.8, Sector 2 |
||
| 250. |
Bragageria Bogdania - Bistro, Bucuresti
0787877985 Str. Olari, Nr. 20, Sector 2 |
||
| 251. |
Buoni e Bravi - Pizzerie, Bucuresti
0735215224 Piata C. A. Rosetti, nr. 3, sector 2 |
||
| 252. |
Willy\'s Coffee Art - Bucuresti
0769911077 Bulevardul Carol I, Nr 62, sector 2, |
||
| 253. |
Ivy - Cafenea, Bucuresti
0755210748 Bulevardul Carol I, Nr. 23, sector 2 |
||
| 254. |
EXPRESS Food & Drink - Restaurant fast-food, Bucuresti
0732669922 Bd. CAROL I, Nr. 62, Sector 2 |
||
| 255. |
Sarazin - Carol Fast food Bucuresti
0787625505 Bulevardul Carol I, Nr. 66, Sector 2, |
||
| 256. |
Bellini Garden - Restaurant cu specific italian, Bucuresti
0722100111; 0314278776 str. General Henri Mathias Berthelot, nr. 44, sector 1 |
||
| 257. |
Bistro raw vegan, Restaurant - Bucuresti
0726605501 Transilvaniei, Nr. 11, Sector 1, Bucuresti |
||
| 258. |
Casa Veche - Restaurant, Ramnicu Valcea
0747875045 ; 0748702238; 0350418155 Stirbei Voda, Nr.162, Ramnicu Valcea, judetul Vilcea |
||
| 259. |
SwitchEat - Restaurant cu burgeri Bucuresti
0726023881 Strada Horei, Nr 34, sector 2 ( la doi pasi de Foisorul de Foc) |
||
| 260. |
Casa Ede - Restaurant & Beauty - Barber Salon Bucuresti
0772019516 Strada Armeneasca, Nr. 8, sector 2 |
||
| 261. |
Legere - Bar, Bucuresti
0730534373 Piata Rosetti, nr 5, sector 2 |
||
| 262. |
Bellini Pizza - Bucuresti
0314278776 General Henri Matias Berthelot, Nr. 44,Sector 1, Bucuresti |
||
| 263. |
Colosseum Pizza - Bucuresti
0721243613; 0213131860; 0213121020 Calea Victoriei, Nr. 48-50 (Pasajul Victoria), Sector 1, Bucuresti |
||
| 264. |
Seneca Anticafe - Cafenea, Bucuresti
0720331100 Strada Arhitect Ion Mincu, nr. 1, sector 1 |
||
| 265. |
Mesogios, Restaurant - Bucuresti
0722200232 Helesteului, Nr. 30, Sector 1, Bucuresti |
||
| 266. |
Rawyal brunch & cakes - Bucuresti
0730777221 Calea Mosilor, Nr 105, Sector 2 |
||
| 267. |
Velveto Ballrooms - Centru pentru evenimente Bucuresti
0752182255; 0734810385; 0764118347 Str. Oltetului, Nr. 30, sector 2 |
||
| 268. |
Mantuleasa 40 - Restaurant Bucuresti
0754045450; 0751133141 Str. Mantuleasa, Nr. 40, sector 2 |
||
| 269. |
Laur Express Food - Restaurant fast-food, Bucuresti
0732455089 Bulevardul Ferdinand I, Nr. 60, sector 2 |
||
| 270. |
SupaDupa - Restaurant cu supe si ciorbe, Bucuresti
0739344281 Strada Popa Tatu, Nr. 94, sector 1 |
||
| 271. |
Colosseum, Restaurant - Bucuresti
0721243613; 0213131860; 0219689 Calea Victoriei , Nr. 48-50 (Pasajul Victoria), sector 1, Bucuresti |
||
| 272. |
The Mark - Restaurant pub Bucuresti
0758505500 Calea Grivitei, Nr. 84-98, sector 1 |
||
| 273. |
Bistro Cafe Carbon 14 - Bucuresti
0790408777 Str. Dimitrie Racovita, Nr. 18, Sector 2 |
||
| 274. |
Edo Sushi - Restaurant cu specific japonez, Bucuresti
0735111095 Stirbei Voda, Nr 84A, sector 1 |
||
| 275. |
La Ciurucuri - Restaurant cu specific international, Bucuresti
0752850850 Piata Valter Maracineanu, Nr 1-3, sector 1 |
||
| 276. |
Vanilla, Cofetarie - Bucuresti
0733058058 Mihai Bravu, Nr. 47, Parter, Sector 2, Bucuresti |
||
| 277. |
La Matache Restaurant (comenzi online si livrari la domiciliu)
0213107327; 0213107337; 0213118888 P-ta. Dr. Haralambie Botescu, Nr. 2, Sector 1, Bucuresti |
||
| 278. |
Ramada Majestic, Hotel si Restaurant - Bucuresti
0213102715 Calea Victoriei, Nr. 38-40, Sector 1 , Bucuresti |
||
| 279. |
Papila Kitchen - Restaurant, Bucuresti
0753087799 Strada Sfintilor, Nr 6, sector 2 |
||
| 280. |
Chong Qing - Restaurant cu specific chinezesc, Bucuresti
0212525095; 0731383952 B-dul Pache Protopopescu, Nr.28, sector 2 |
||
| 281. |
Don Daniel Pizza
0737444999; 0766771117; Tel/Fax: 0212225034 Bd. Ion Mihalache, Nr. 60, Sector 1, Bucuresti |
||
| 282. |
Capitol Hotel si Restaurant - Bucuresti
0213158030; 0317107007 Calea Victoriei , Nr. 29, Sector 1 , Bucuresti |
||
| 283. |
Piccolo Mondo, Restaurant - Bucuresti
0722205020; 0212225755 Clucerului, Nr. 9, Sector 1 , Bucuresti |
||
| 284. |
The Old Sibiu - Restaurant evenimente Bucuresti
0723602560; 0723637769; 0721172390 Str. Ion Otetelesanu,, Nr. 3A-3B, Sector 1 |
||
| 285. |
Piccolo Mondo, Restaurant - Bucuresti
0722205020; 0212225755 Clucerului , Nr. 9, Sector 1 , Bucuresti |
||
| 286. |
Surubelnita - Club, Bucuresti
0768743593 Str. Calea Mosilor, nr. 100, sector 2 |
||
| 287. |
GinOteca - Bar, Bucuresti
0751446446 Strada Plantelor, Nr. 25, sector 2 |
||
| 288. |
Kuma Bar - Bucuresti
0766440936 Strada Coltei, Nr. 50, sector 3 |
||
| 289. |
Capsa Cofetarie Bucuresti
0213134038; 0213135999 Calea Victoriei, Nr. 36, Sector 1, Bucuresti |
||
| 290. |
Casa Capsa, Restaurant - Bucuresti
0213134038; Fax: 0213135999 Calea Victoriei, Nr. 36, Sector 1, Bucuresti |
||
| 291. |
Monte Carlo Cismigiu, Restaurant - Bucuresti
0213131344 Parc Cismigiu, Sector 1, Bucuresti |
||
| 292. |
Tulin, Restaurant libanez - Bucuresti
0213144001; 0762212675 Pictor Constantin Stahi, Nr. 2, Sector 1, Bucuresti |
||
| 293. |
Posh Birt Select - Pub, Bucuresti
0724004376 Strada Plantelor, Nr. 26, sector 2 |
||
| 294. |
Pizza PPH - Pizza si catering, Bucuresti
0319441 Str. Lirei, Nr. 13, sector 2 |
||
| 295. |
Monte Carlo Cismigiu, Restaurant - Bucuresti
0213131344 Parcul Cismigiu, Parcul Cismigiu, Sector 1 , Bucuresti |
||
| 296. |
The Pub - Bucuresti
0728843782 Bulevardul Regina Elisabeta, Nr. 9, sector 3 |
||
| 297. |
The Owl Cocktail House - Bar specializat in cocktailuri, Bucuresti
0743260923 str. Stirbei Voda, Nr. 104-106, sector 1 |
||
| 298. |
Simbio - Restaurant Bucuresti
0756746246 Str Negustori, nr. 26, sector 2 |
||
| 299. |
Le Boutique Food Concept Store - Bucuresti
0722538274; 0314380044 Str. Sfantul Stefan, Nr. 13, sector 2 |
||
| 300. |
Rowa Garden - Locatie pentru spectacole si evenimente
0766666600 Parc Herastrau, |
||
| 301. |
Jos Palaria Cafe - Bucuresti
0314321029 Toma Caragiu , Nr. 3, Sector 3 , Bucuresti |
||
| 302. |
La Giuggiola - Gelateria artizanala italiana Bucuresti
0770107183 Bulevardul Pache Protopopescu, Nr. 57, Sector 2 |
||
| 303. |
Cercul Militar National, Restaurant - Bucuresti
0213143735; 0213149551; Fax: 0372874921 Constantin Mille, Nr.1-3, Sector 1, Bucuresti |
||
| 304. |
Grivita - Pub&Grill, Bucuresti
0724748482 Calea Grivita, Nr. 130 (Parter Eurohotels), |
||
| 305. |
Ublo Bistro - Bucuresti
0743447476 Clucerului, Nr. 54, sector 1 |
||
| 306. |
Paque Bistro - Restaurant cu bar, Bucuresti
0722330607 Bulevardul Pache Protopopescu, nr.60, sector 2 |
||
| 307. |
Cuptorul cu Lemne - Restaurant pizzerie Bucuresti
0219363 Bd. Pache Protopopescu, Nr 65, sector 2 |
||
| 308. |
La Cristi - Fast Food si catering, Bucuresti
0729266850 Strada Frosa Sarandy, Nr. 17, Sector 1 |
||
| 309. |
Cuptorul cu Lemne, Pizza - Bucuresti
021.9363; 0212524493; (021) 9363 - tasta 0 Bd. Pache Protopopescu, Nr. 63, Sector 2, Bucuresti |
||
| 310. |
The Place Pub - Pub, Bucuresti
0743951281 Mr. Alexandru Campeanu, nr.36, sector 1 |
||
| 311. |
Coftale Coffee Shop - Cafenea, Bucuresti
0746420874 Strada Profesor Stefan Mihaileanu, Nr.42, sector 2 |
||
| 312. |
Saint Gelato - Gelaterie Bucuresti
0745205405 Bulevardul Regina Elisabeta, Nr. 26, Sector 3 |
||
| 313. |
Aria Gourmet Burger - Fast food Bucuresti
0773778860; 0773778860 Strada Slanic, Nr. 2, Sector 3 |
||
| 314. |
Noua - Restaurant cu specific romanesc, Bucuresti
0217943294 Strada Popa Nan, Nr. 7, sector 2 |
||
| 315. |
Trattoria Della Nonna - Restaurant cu specific italian, Bucuresti
0771697503 Strada Popa Nan, Nr. 5, sector 2 |
||
| 316. |
Naser - Restaurant specific libanez Bucuresti
0799980001; 0799980002; 0213135060 Str. Fluierului, Nr. 18, sector 2 (colt cu Str. Matasari, in spatele PRO TV) |
||
| 317. |
No10 - Restaurant cu specific italian
0741210003 Strada Austrului, Nr. 10, sector 2 |
||
| 318. |
Lloyds Pub - Bucuresti
0723133786 Str. Coltei, Nr. 16, Sector 3 |
||
| 319. |
Leonidas Cofetarie - Bucuresti
0740014695; 0213141377 Doamnei, Nr. 27 , Sector 3, Bucuresti |
||
| 320. |
Pizza Hut - Bucuresti
0740121903 Bd. Regina Elisabeta, nr. 15-19, sector 3 , |
||
| 321. |
Jadoo Restaurant - Bucuresti
0724365583; 0212220502 Nicolae Racota, Nr. 3, Sector 1, Bucuresti |
||
| 322. |
Bistro HB - Restaurant Bucuresti
0735011736; 0735011735; 0735011737 Strada Matasari, Nr. 49 Sector2 |
||
| 323. |
Godai - Restaurant cu specific asiatic fusion, Bucuresti
0786030888; 0785300555 Str.Fabrica de Glucoza, nr. 7, sector 2 |
||
| 324. |
Jack Pot - Bar specializat in cocktailuri, Bucuresti
0372916947; 0770776777 Zborului, nr. 2, sector 3 |
||
| 325. |
Sweet Sophie - Cofetarie
0748309063 Strada Popa Nan, Nr. 22, sector 2 |
||
| 326. |
Jadoo Restaurant - Bucuresti
0212220502; 0724365583 Nicolae Racota, Nr. 3, Sector 1, Bucuresti |
||
| 327. |
Noa Restoclub - Restaurant Bucuresti
0799747557 Calea Victoriei, Nr 26 Sector 3 |
||
| 328. |
Gastronomika - Restaurant cu specific international, Bucuresti
0737940512 Str. Ion Neculce, Nr. 63, Sector 1 |
||
| 329. |
Elisabeta, Restaurant - Bucuresti
0727703703; 0724323132 Bd. Regina Elisabeta, Nr. 45, Sector, Bucuresti |
||
| 330. |
Beirut Restaurant - Bucuresti
0722302320; Tel/Fax: 0212220169 Nicolae Racota, Nr. 3A, Sector 1, Bucuresti |
||
| 331. |
Sale Dolce, Restaurant - Bucuresti
0736858430; 0735123687 Matei Voievod, Nr. 20, Sector 2, Bucuresti |
||
| 332. |
Belli Siciliani - Restaurant autentic sicilian, Bucuresti
0799090601 Str. Matasari, Nr. 47, sevtor 2, |
||
| 333. |
Hygge - Restaurant Bucuresti
0771114875 Calea Victoriei, Nr. 21, sector 3 |
||
| 334. |
Valea Regilor - Cafenea, Bucuresti
0213112969 Calea Victoriei, 16-20, Centrul Vechi, sector 3 |
||
| 335. |
Vilacrosse, Bistro, Restaurant - Bucuresti
0728358304; 0744796894 Eugeniu Carada, Nr. 7, Sector 3, Bucuresti |
||
| 336. |
Q Marttinez - Restaurant cu specific european, Bucuresti
0725682944 Eugeniu Carada, Nr. 7, sector 3 |
||
| 337. |
Barocco Bar - Bucuresti
0755028028; 0740114132 Domnita Anastasia, Nr.10 (In spatele McDonalds Regina Elsiabeta), Bucuresti |
||
| 338. |
Nabu - Bar Bucuresti
0787407043 Pache Protopopescu, Nr. 97, sector 2 |
||
| 339. |
Vilacrosse, Restaurant Cafe Bistro - Bucuresti
0728358304 Str. Eugen Carada, nr. 7, sector 3, |
||
| 340. |
Urban Bistro - Restaurant cu fripturi, Bucuresti
0769918510 Strada Piata Sfantu Stefan, Nr 6, sector 2 |
||
| 341. |
Bemolle Cafe - Bucuresti
0213118382; 0723188953 Calea Victoriei , Nr.16-18-20 (Pasaj Villacrosse), Sector 3, Bucuresti |
||
| 342. |
WHYS - Bar, Bucuresti
0785059173 Pasajul Macca-Villacrosse, sector 3 |
||
| 343. |
Hugo Bar - Cafenea cu narghilele, Bucuresti
0732397953 Calea Victoriei, 16-18-20, sector 3 |
||
| 344. |
Miss Ale - Bar specializat in cocktailuri
0745089700 Constantin F Robescu, Nr 2, sector 3 |
||
| 345. |
Thors Hammer - Bar Bucuresti
0729176724 Str Blanari, Nr. 12, sector 3 |
||
| 346. |
Pekin, Restaurant chinezesc - Bucuresti
0213103160; 0723233169; 0769414020 Calea Victoriei, Nr. 16-20, pasaj Villa Cross, Sector 3, Bucuresti |
||
| 347. |
Pescarus, Restaurant - Bucuresti
0731330034; 0731491849 Aleea Pescarus, Parcul Herastrau), Sector 1 , Bucuresti |
||
| 348. |
Taverna Racilor - Restaurant pescaresc Bucuresti
0729825528 Parc Herastrau, Nr. 2, sector 1, |
||
| 349. |
Zaitoone - Restaurant cu specific libanez, Bucuresti
0737299900;0376203741;0376203742 Strada Nicolae Caramfil, Nr.2, sector 1 |
||
| 350. |
Pescarus, Restaurant - Bucuresti
0731330034; 0731491849 Aleea Pescarus (Parcul Herastrau), Sector 1 , Bucuresti |
||
| 351. |
Argentin - Restaurant Bucuresti
0774462430; 0774462431 Strada Blanari, Nr. 11-15, Sector 3 |
||
| 352. |
SanThe Fitoceainarie - Ceainarie, Bucuresti
0730370290 Lipscani, nr 104, sector 3, |
||
| 353. |
Paine si Vin - Bar cu vinuri, Bucuresti
0755028448 Str. Actor Ion Brezoianu, Nr. 4, sector 5 |
||
| 354. |
Scovergaria Micai - Patiserie, cofetarie Bucuresti
0314253670 Calea Victoriei, Nr. 14 colt cu Lipscani 19, sector 3 |
||
| 355. |
Linea - Closer To The Moon, Bucuresti
0757824298 Calea Victoriei, nr. 17, sector 3 |
||
| 356. |
Origo Coffee Shop - Bucuresti
0757086689 Lipscani, Nr. 9,Sector 3, Bucuresti |
||
| 357. |
Robescu 14 - Bar specializat in cocktailuri
0773741922 Strada Robescu F. Constantin, Nr. 14, sector 3 |
||
| 358. |
Energiea - Pub Bucuresti
0736374432 Str. Actor Ion Brezoianu, Nr. 4, Sector 5 |
||
| 359. |
The Drunken Lords - Pub, Bucuresti
0736238815 Intr. Selari, Nr. 3-5, sector 3 |
||
| 360. |
Times Cocktail Bar - Pub, Bucuresti
0731032330 Intrarea Nicolae Selari, nr.1,sector 3, |
||
| 361. |
Nor Sky Casual Restaurant - Bucuresti
0310056056 Barbu Vacarescu, Nr. 201, Sector 2, Bucuresti |
||
| 362. |
Saray - Restaurant cu specific turcesc, Bucuresti
0733135834 Lipscani, Nr. 21, sector 3 |
||
| 363. |
Tag Aperitivo Bar - Bucuresti
0721888522 Strada Lipscani, nr. 27, sector 3 |
||
| 364. |
Latin Pizza - Pizzerie, Bucuresti
0751896358 Bulevardul Ion C. Bratianu, Nr. 34, sector 3 |
||
| 365. |
Green Tea Ceainarie - Bucuresti
0213209396; 0749090202 Dr. Burghelea, Nr. 24, Sector 2, Bucuresti |
||
| 366. |
Gilda Music Lounge - Restaurant club Bucuresti
0786770941 Strada Lipscani, Nr. 53, sector 3 |
||
| 367. |
Mao Pub - Bucuresti
0771305995 Str. Lipscani, Nr. 69, Sector 3 |
||
| 368. |
Manasia Hub - Bar Bucuresti
0736760063 Str. Stelea Spatarul, Nr. 13, sector 3 |
||
| 369. |
Burger Peter - Restaurant cu burgeri Bucuresti
0799981031 Strada Popa Nan, Nr. 48, sector 2 |
||
| 370. |
Artist Cafe - Cafenea Bucuresti
0756777577 Str. Lipscani, Nr. 30-34, sector 3 |
||
| 371. |
Extra Time - Pub Bucuresti
0732166605 Strada Lipscani, Nr. 82A, sector 3 |
||
| 372. |
Borgo Stagioni - Restaurant Bucuresti
0732163287; 0722220223 Calea Calarasi, Nr. 78, Sector 3 |
||
| 373. |
Hard Rock Cafe Bucharest
0212066261; 0754400900 Sos. Kiseleff, Nr. 32C, Sector 1, Bucuresti |
||
| 374. |
Xclusive Pub - Bar & Grill, Bucuresti
0723166463 Str. Lipscani, nr. 36, sector 3 |
||
| 375. |
Old Habits - Club de noapte si de dans
0728776699 Strada Lipscani, Nr. 38, sector 3 |
||
| 376. |
Pizzeria La Coco - Bucuresti
0731744444 Str. Gabroveni, Nr. 31, Sector 3 |
||
| 377. |
Caru\' cu Bere, Restaurant - Bucuresti
0213137560; 0726cubere; 0726282373 Stavropoleos , Nr. 3-5, Sector 3, Bucuresti |
||
| 378. |
Naive - Restaurant cu bar, Bucuresti
0725550333 Bd. I.C. Bratianu, Nr. 36, sector 3 |
||
| 379. |
La Birlic - Terasa, Bucuresti
0722318168; 0752318168; 0212525151 Bulevardul Pache Protopopescu, Nr. 125, sector 2 |
||
| 380. |
So! Coffee, Cafenea - Bucuresti
0372285718; 0314078250 Piata Garii de Nord, Nr.1-5 (In fata peroanelor 4-5), Sector 1, Bucuresti |
||
| 381. |
UAU Il Gelato - Gelaterie Bucuresti
0723135015 Str. Gabroveni, Nr. 1-3, sector 3, |
||
| 382. |
Bere si Bere - Pub, bere craft si muzica rock
0723280040 Str. Gabroveni, Nr. 4, sector 3 |
||
| 383. |
Dulce a la Radu - Cofetarie
0726465690 Bucuresti, |
||
| 384. |
Kiosque des Douceurs - Cofetarie Bucuresti
0758090763 Str. Selari, Nr. 3, Sector. 3, Centrul Vechi |
||
| 385. |
Gyros Thessalonikis
0770302148 Strada Gabroveni, Nr. 2,sector 3 |
||
| 386. |
Patrick Irish Pub & Restaurant - Bucuresti
0213130336; 0314360112; 0755110008 Smardan, Nr. 23-25, sector 3, Bucuresti |
||
| 387. |
Mojo Music Club - Bucuresti
0737220220 Gabroveni, Nr.14, Sector 3, Bucuresti |
||
| 388. |
Politica si Delicateturi Bucuresti - Restaurant cu specific romanesc
0785516681 Str. Prof. Dr. Mihail Georgescu, Nr. 24, sector 2 |
||
| 389. |
La 100 de Beri - Bar specializat in bere, Bucuresti
0733282598 Str. Gabroveni, Nr.61, sector 3 |
||
| 390. |
Taverna Covaci - Restaurant cu specific romanesc, Bucuresti
0747226677 Str. Covaci, Nr. 1, sector 3 |
||
| 391. |
iDracula - Restaurant tematic, Bucuresti
0753476142;0752559457 Str. Selari, Nr. 10-12, Centrul Vechi, sector 3 |
||
| 392. |
Bruno Wine Bar - Bar cu vinuri, Bucuresti
0751220229 Strada Covaci, Nr. 3, Centrul Vechi |
||
| 393. |
Sinners - Pub, Bucuresti
0737343210 Covaci, nr.2 , Centrul Vechi, sector 3 |
||
| 394. |
Cofetaria Madlene - Bucuresti
0753223222 Str. Traian, Nr.103, sector 2 |
||
| 395. |
Boulevard Pub - Bucuresti
0753966961 Strada Covaci, Nr. 4, sector 3 |
||
| 396. |
Storage Room - Bar, Bucuresti
0732363712 Strada Smardan, Nr. 35, sector 3 |
||
| 397. |
Aubergine Healthy Food - Restaurant cu mancare sanatoasa, Bucuresti
0213137548 (Smardan); 0771358661 (Aviatorilor) Strada Smardan, Nr 33, sector 3, Bucuresti |
||
| 398. |
Level Up - Restaurant raw vegan, Bucuresti
0721085582 Str Sf. Vineri, Nr 10, sector 3 |
||
| 399. |
Les Bourgeois - Bucuresti
0720132994; 0213106052 Smardan, Nr. 20, Sector 3, Bucuresti |
||
| 400. |
Distrikt 42 - Restaurant Bucuresti
0213156699 Str. Sfantul Dumitru, Nr. 3, sector 3 |
||
| 401. |
Fire Club Pub - Bucuresti
0732166604 Covaci, Nr. 7, Sector 3, Bucuresti |
||
| 402. |
1974 Niste Domni si Fii - Bar Restaurant Bucuresti
0721551099; 0723629306 Covaci, Nr. 7, Sector 3, Bucuresti |
||
| 403. |
Curtea Berarilor, Bar & Grill - Bucuresti
0213137532; 0735861682 (Radu); 0735861681 (Sorina) Selari, Nr. 9-11,Sector 3 (Zona Lipscani), Bucuresti |
||
| 404. |
Intermacedonia, Restaurant - Bucuresti
0212522010; 0212527331; 0212522190 Sos. Mihai Bravu, Nr.95-100, Sector 2 (P-ta Iancului) , Bucuresti |
||
| 405. |
Vivo Fusion Food Bar - Restaurant cu specific american, Bucuresti
0787709154 Strada Calea Floreasca, numarul 246, cladirea Globalworth Tower, parter, sector 1 |
||
| 406. |
Freddo Pub - Club de noapte si de dans, Bucuresti
0722373336 Str Smardan, nr 24, sector 3, |
||
| 407. |
Ana Pan Cofetarie - Bucuresti
0216373536; 0730262726; 0212332241 Stirbei Voda, Nr. 166,Sector 1, Bucuresti |
||
| 408. |
Burger si Scoici - Restaurant cu burgeri Bucuresti
0753300333 Strada Smardan, Nr. 41, Sector 3 |
||
| 409. |
Bazaar - Restaurant Bucuresti
0721999999 Strada Covaci, Nr. 10, sector 3 |
||
| 410. |
Bodega La Mahala - Restaurant Bucuresti
0732166606 Covaci, Nr. 8, Sector 3 |
||
| 411. |
Curtea Berarilor, Restaurant terasa - Bucuresti
0213137532 Selari, Nr.9-11, sector 3, Bucuresti |
||
| 412. |
Arcade Cafe - Bucuresti
0722777674 Smardan, Nr.30, (Centrul vechi), Sector 4, Bucuresti |
||
| 413. |
Private Hell - Club, Bucuresti
0757508336 Str. Soarelui, nr. 5, Sector 3 |
||
| 414. |
Industry Wine Bar- Bar cu vinuri, Bucuresti
0722777222 str. Sepcari, Nr. 19, sector 3 |
||
| 415. |
Borsalino - Pizzerie Bucuresti
0729954911; 0729954912 Bulevardul Ion C. Bratianu, Nr. 44, Sector 3 |
||
| 416. |
Krishna Caffe - Cafenea Bucuresti
0729745988;0740133254 Bd. Mihail Kogalniceanu, Nr. 17, sector 5, |
||
| 417. |
Lacrimi si Sfinti, Restaurant - Bucuresti
0725558286; 0372773999 Sepcari, Nr.16 (Centrul Vechi) Sector 3, Bucuresti |
||
| 418. |
Nomad Skybar - Restaurant, bar, club, Bucuresti
0735448080 Strada Smardan, Nr 30, sector 3 |
||
| 419. |
BaKings - Cofetarie Bucuresti
0744642929 Strada Ilarie Chendi, Nr. 28, sector 2 |
||
| 420. |
Della Casa Pizza - Bucuresti
0721312666; 0746577383; 0768720228 Sos. Gherase, Nr. 96, (Zona Doamna Ghica) Sector 2, Bucuresti |
||
| 421. |
Shoteria - Shotbar, Bucuresti
0721203039; 0372916947 Strada Selari, Nr. 17, sector 3 |
||
| 422. |
Il Peccato, Restaurant - Bucuresti
0213116767; 0765301300 Franceza, Nr. 30,Sector 3, Bucuresti |
||
| 423. |
Zoomserie - Cofetarie Bucuresti
0751222265 Sf. Vineri, Nr. 23, sector 3, intersectia Coposu (Calarasilor), |
||
| 424. |
Delicii Libaneze - Gelaterie, cofetarie, ciocolaterie Bucuresti
0725115811 Str. Franceza, Nr. 13, sector 3 |
||
| 425. |
Calif - Restaurant fast-food, Bucuresti
0756200325 Selari, Nr. 19, sector 3, |
||
| 426. |
Modelier - Bistro, cocktails Bucuresti
0799630693 Strada Duzilor, Nr. 12, sector 2 |
||
| 427. |
Kilkenny Irish Pub - Bucuresti
0751041110 Str Franceza, Nr. 46-48, sector 3 |
||
| 428. |
Bread & Spices - Restaurant pentru mic dejun si brunch
0770695416; 0314147777 Soseaua Pipera, Nr. 4, sector 1 |
||
| 429. |
Hanul lui Manuc, Restaurant - Bucuresti
0730188653; 0213122811; 0769075844 Franceza , Nr. 62-64, Sector 3 , Bucuresti |
||
| 430. |
Club Art Papillon Restaurant - Bucuresti
0212522520; 0732582278; 0722240930 Matei Voievod , Nr. 66A Sector 2, Bucuresti |
||
| 431. |
La Nenea Iancu - Restaurant cu specific romanesc, Bucuresti
0745140786 Str. Romulus, nr. 55, sector 3 |
||
| 432. |
Pasta Del Popolo - Restaurant cu specific italian, Bucuresti
0752010583 Zagazului, 21-25, sector 1 |
||
| 433. |
Hanul lui Manuc, Restaurant si Cafenea - Bucuresti
0213131411; 0769075844; 0730188653 Franceza, Nr. 62-64, Sector 3 , Bucuresti |
||
| 434. |
Mica Elvetie Restaurant - Bucuresti
0212245017 Franceza, Nr. 60-62, Sector 3, Bucuresti |
||
| 435. |
Alceva - Restaurant, Bucuresti
0770844125 Matei Voievod, Nr. 79, sector 2, |
||
| 436. |
Anika - Restaurant cu specific romanesc Bucuresti
0726400148 Str. Pictor Nicolae Tonitza, Nr.10, sector 3 |
||
| 437. |
Mica Elvetie Restaurant
0212245017 Franceza, Nr. 60-62, Sector 3, Bucuresti |
||
| 438. |
Big Ben - Pub cu specific britanic, Bucuresti
0756110089 Str. Franceza, nr. 52, sector 3 |
||
| 439. |
Encore Club - Bar specializat in bere
0786247745 Nicolae Tonitza, nr. 13, sector 3 |
||
| 440. |
The Urbanist - Bar specializat in cocktailuri, Bucuresti
0741392558 Strada Caldarari, Nr. 3, sector 3 |
||
| 441. |
Velluto - Gelaterie, Bucuresti
0728991969 Splaiul Independentei, Nr 2J, sector 3 |
||
| 442. |
Efendi Doner - Restaurant fast-food, Bucuresti
0730578472 Str. Selari, nr. 2, sector 3 |
||
| 443. |
Sublimmme - Restaurant vegetarian/vegan, Bucuresti
0771135605 Splaiul Independentei, NR 2F, sector 3 |
||
| 444. |
Restaurant La Senna - Bucuresti
0212333738; 0756199774 Bulevardul Nicolae Caramfil, Nr 33, sector 1 |
||
| 445. |
Hanul lui Manuc, Restaurant - Bucuresti
0213131411; 0769075844; 0730188653 Franceza, Nr. 62-64, Sector 3, Bucuresti |
||
| 446. |
Emozia coffee manifesto - Cafenea, Bucuresti
0742023590;0726201527 Strada Halelor, nr. 17, sector 3 |
||
| 447. |
Time to Lunch
0763200900 Strada Patriei, Nr 4, sector 3 |
||
| 448. |
Dodo Pizza - Bucuresti
0760263636 Sos. Pipera, Nr. 44, Sector 1 |
||
| 449. |
Hangar by Ground Zero - Pub, Bucuresti
0742642749 Soseaua Pipera, Nr 44 |
||
| 450. |
Maria & Constance Cofetarie - Bucuresti
0212330360 ; 0787512520 Soseaua Pipera, Nr. 5, bl. 1E, Parter, Sector 1, Bucuresti |
||
| 451. |
Old School, Restaurant - Bucuresti
0744105445; 0745110362 Calea Plevnei, Nr. 61, Sector 6, Bucuresti |
||
| 452. |
Bucatarasul cel Dibaci - Restaurant cu specific romanesc, Bucuresti
0730340436;0760966360 Strada Olteni, Nr 3, sector 3 |
||
| 453. |
Turquoise Bakery - Bucuresti
0739037919 Str. Matei Voievod, nr.101, Sector 2 |
||
| 454. |
Isoletta, Restaurant - Bucuresti
0212322188; 0212323223 Sos. Nordului, Nr. 7-9, Sector 1, Bucuresti |
||
| 455. |
Mezze, Restaurant libanez - Bucuresti
0213116633; 0720044469 Mircea Vulcanescu, Nr.153 B,Sector 1 , Bucuresti |
||
| 456. |
Si-Lounge - Restaurant, Bucuresti
0799919911 Str. George Constantinescu, Nr 2-4, sector 2 |
||
| 457. |
Barfly Bucuresti
0727394131; 0721652899 Olteni , Nr. 3, Sector 3, Bucuresti |
||
| 458. |
Oktoberfest Pub - Bucuresti
0724333233 Popa Nan, Nr. 95, Sector 3, Bucuresti |
||
| 459. |
Dada Restaurant - Bucuresti
0729997405; 0724015800 Str. Matei Voievod , nr. 94bis, sector 2, |
||
| 460. |
McDonald\'s
0372701091 Piata Unirii 1, Unirea Shopping Center, Bucuresti |
||
| 461. |
Krisperie - Restaurant fast-food, Bucuresti
0762888844 Strada Doamna Ghica, Nr. 235, sector 2 |
||
| 462. |
Fabio Pizza - Bucuresti
0372188330 Turda, Nr. 117, Sector 1, Bucuresti |
||
| 463. |
Chaya TeaHouse - Ceainarie Bucuresti
0755331000 Strada Radu Ceaus, Nr. 7, sector 3 |
||
| 464. |
Alice, Cofetarie - Bucuresti
0744486465 Sos. Mihai Bravu, Nr. 123-135, Sector 2, (zona Piata Iancului - langa Sectia 8 de Politie), Bucuresti |
||
| 465. |
Cristal - Cofetarie
0760090324 Str. Matei Voievod, nr. 108, sector 2 |
||
| 466. |
Stadio Restaurant - Bucuresti
0733444800 Soseaua Nordului , Nr.7-9, Parcul Herastrau, Sector 1, Bucuresti |
||
| 467. |
Stadio Park, Restaurant - Bucuresti
0733444800 Soseaua Nordului, Nr.7-9, Parcul Herastrau, Sector 1, Bucuresti |
||
| 468. |
Triana - Cofetarie, Bucuresti
0740302404 Soseaua Orhideelor, Nr. 46, sector 1 |
||
| 469. |
Hanul Berarilor Interbelic, Restaurant - Bucuresti
0213368009; 0729400800 Poenaru Bordea , Nr. 2, Sector 5, Bucuresti |
||
| 470. |
Complex Herastrau, Restaurant - Bucuresti
0212322128 (Restaurant); 0786778800 (Evenimente); 0729080686 (Hotel) Soseaua Nordului , Nr. 7-9, Sector 1, Bucuresti |
||
| 471. |
Delice Grill - Restaurant fast-food Bucuresti
0721112244 Soseaua Mihai Bravu, Nr 139-145, sector 2 |
||
| 472. |
Amnezia Caffe - Bistrou romanesc Bucuresti
0770917737; 0724140931 Str. Sf. Apostoli, Nr. 21, sector 4, |
||
| 473. |
Seoul - Restaurant cu specific coreean Bucuresti
0216672119; 0725498366 Str. Lt. Av. Mircea Zorileanu, Nr. 89, sector 1 |
||
| 474. |
Fabrica de mancare - Restaurant cu supe si ciorbe, Bucuresti
0744123123 B-dul Unirii, nr. 31, sector 3 |
||
| 475. |
Sugarography - Atelier de dulciuri Bucuresti
Bucuresti, |
||
| 476. |
Cofetaria Macarons - Bucuresti
0771425575 Bucuresti, |
||
| 477. |
Noeme - Restaurant Bucuresti
0721490270 Anton Pann, Nr. 29, sector 3 |
||
| 478. |
Ergo - Restaurant vegan, Bucuresti
0770747559 Bd. Unirii, Nr 5, sector 4 |
||
| 479. |
The Gate, Restaurant si Cafenea Bucuresti
0728434283; 0314259425 Aleea Primo Nebiolo , Nr. 1, (vis-a-vis Agronomie), sector 1, Bucuresti |
||
| 480. |
Tarta Ta - Delicii traditionale, Bucuresti
0771522117 Bulevardul Mircea Voda, Nr. 52, sector 3 |
||
| 481. |
Berestroika - Beer Revolution - Bucuresti
0722560300; 0721100000; 0733200000 Aleea Cauzasi, Nr. 57, Sector 2, Bucuresti |
||
| 482. |
Casa Mara, Restaurant evenimente - Bucuresti
0722675766; 0768793155 Primo Nebiolo , Nr.1, Sector 1, Bucuresti |
||
| 483. |
Vis a Vis - Restaurant Bucuresti
0722102223 Bd. I. C. Bratianu, |
||
| 484. |
La Mama - Restaurant Bucuresti
0721526262 Strada Delea Veche, Nr. 51, sector 2 |
||
| 485. |
The Clique Bistro - Restaurant cu specific international, Bucuresti
0784901000 Splaiul Unirii, sector 3 |
||
| 486. |
Bocca Lupo - Restaurant cu specific italian, Bucuresti
0314050050 Strada Dr. Lister, nr. 1, sector 5 |
||
| 487. |
Moon Brasserie - Restaurant Bucuresti
0723093170 Bulevardul Unirii, Nr. 33, sector 3 |
||
| 488. |
Get Naked by Bordello - Restaurant pentru mic dejun si brunch, Bucuresti
0748881086 Bd. Unirii, intre Bd Dimitrie Cantemir si Bd Mircea Voda |
||
| 489. |
The Dock - Lounge, Bucuresti
0743680336 Bulevardul Unirii, nr. 30, sector 3 |
||
| 490. |
JO Lounge - Bar, Bucuresti
0721811995 Bd. Unirii, sector 3 |
||
| 491. |
#Aici - Bar, Bucuresti
0799124330 Bulevardul Unirii, Nr 35, Sector 3, Bucuresti |
||
| 492. |
Cherhanaua Ancora - Restaurant pescaresc, Bucuresti
0721335555 Soseaua Nordului, Nr. 7-9, sector 1 |
||
| 493. |
Fast Food Plevnei - Restaurant Fast Food Bucuresti
0761046444 Calea Plevnei, Nr. 230, sector 1 |
||
| 494. |
Murad - Cafe-Restaurant, Bucuresti
0725777000 Str. Panait Istrati, nr, 101, sector 1 |
||
| 495. |
Haute Pepper - Restaurant cu specific international, Bucuresti
0726284280 Bd. Unirii, nr 2, sector 4 |
||
| 496. |
Coin Vert - Restaurant cu specific libanez, Bucuresti
0721331465; 0744518200 Str. Sandu Aldeea, nr. 75, sector 1 |
||
| 497. |
Maroon - Maroon Restaurant Cafe
0742420000; 0764900000 Bulevardul Unirii, Nr. 47 C, Sector 3 |
||
| 498. |
La Coana Mare - Cofetarie Bucuresti
0771512035 Strada Magura Vulturului, Nr. 2, sector 2 |
||
| 499. |
Restaurant Karta - Bucuresti
0744391111 Bd. Unirii, Nr. 22, sector 3 |
||
| 500. |
Nori Sushi - Restaurant cu specific japonez, Bucuresti
0771179714 Splaiul Unirii, nr 6, bl B3A, etaj 7-8 |
||
| 501. |
Trattoria Fresca - Restaurant cu specific italian, Bucuresti
0731333410 Str.Popa Nan, nr.140, Sector 2 |
||
| 502. |
BOA, Beat of Angels Club - Bucuresti
0736300700 Soseaua Pavel D. Kiseleff , N.32, Sector 1, Bucuresti |
||
| 503. |
Horoscop, Restaurant, Pizzerie - Bucuresti
0767562215 Bd.Dimitrie Cantemir, Nr 2, Sector 4, Bucuresti |
||
| 504. |
Aristocrat Events Hall - Organizare evenimente - Bucuresti
0733880757; 0733880756 Soseaua Pipera, Nr. 48, Sector 2, Bucuresti |
||
| 505. |
Terasa Marius - Bar & Grill, Bucuresti
0745777799 Sos. Pantelimon, Nr. 115-117, sector 2 |
||
| 506. |
Kicen - Ciorbe de casa, Bucuresti
0751012221 str. Dr. Staicovici, nr. 43, sector 5 |
||
| 507. |
Casa Lefter - Restaurant Bucuresti
0723568402; 0743127330 Strada Lt. Ionescu Baican, Nr. 57, sector 2 |
||
| 508. |
Beraria H, Restaurant - Bucuresti
0743345345; 0725345345 Soseaua Pavel D. Kiseleff, Nr.32, (Parc Herastrau, fostul Pavilion H), Sector 1, Bucuresti |
||
| 509. |
Herastrau, Restaurant - Bucuresti
0786042404; 0212322182 Soseau Nordului, Nr. 7-9, Sector 1, Bucuresti |
||
| 510. |
Koffeev - Cafenea, Bucuresti
0767195222 Bulevardul Unirii, Nr. 57, sector 3 |
||
| 511. |
Pe Baricade
Radu Voda, nr. 23A, sector 4 |
||
| 512. |
TrickSHOT Food Market - Restaurant Bucuresti
0755056556;0755056558 Bd. Dimitrie Pompeiu, 9-9A, Iride Business Park, cladirea 20, sector 2 |
||
| 513. |
Meadows - Restaurant & Events Bucuresti
0732302303 Kiseleff, Nr. 32, sector 1, in parcul Herastrau |
||
| 514. |
Mandaloun - Restaurant specific libanez, Bucuresti
0314336557; 0747020469 Strada Nicolae G. Caramfil, Nr. 89, Sector 1 |
||
| 515. |
Jaristea, Restaurant - Bucuresti
0721961936 ; 0775609233 ; 0770948868 George Georgescu, Nr. 50-52, Sector 4, Bucuresti |
||
| 516. |
La Ceaunu Crapat - Restaurant Bucuresti
0730614108; 0724744953 Bld. Pavel Dimitrievici Kiseleff, Nr. 32, sector 1 |
||
| 517. |
Restaurant Grill Verdetei 5 - Restaurant cu preparate la gratar, Bucuresti
0766411338 Strada Verdetei, nr. 5, sector 3 |
||
| 518. |
Burgeria Cotroceni - Restaurant fast-food, Bucuresti
0314214777 Soseaua Cotroceni, Nr. 9, sector 6 |
||
| 519. |
Victoria, Cofetarie Bucuresti
0212242033 Bd. Ion Mihalache, Nr. 233, Sector 1, Bucuresti |
||
| 520. |
Parliament, Restaurant - Bucuresti
0214119990; 0214119991; 0721332397 Izvor , Nr. 106, Sector 5 , Bucuresti |
||
| 521. |
Il Capo, Restaurant italian - Bucuresti
0314121121 Virgil Madgearu, Nr.11, Sector 1, Bucuresti |
||
| 522. |
Parliament, Restaurant - Bucuresti
0214119990; 0214119991; 0721332397 Str. Izvor, Nr. 106, Sector 5 , Bucuresti |
||
| 523. |
Bistro Turturelelor - Restaurant, Bucuresti
0726310583; 0758887454 Strada Turturelelor, 11A, corpC, Parter, Sector 3 |
||
| 524. |
Lucky Point Pub
0742181263 Splaiul Independentei, 204,sect.6, Bucuresti |
||
| 525. |
Nadasan - Restaurant de sushi, Bucuresti
0745042042 Strada Virgil Madgearu, Nr. 27, sector 1 |
||
| 526. |
La petite bouffe - Cafenea, Bucuresti
0733669344 Strada Doctor Louis Pasteur, nr 38, sector 5 |
||
| 527. |
Kral CigKofte - Restaurant vegan, Bucuresti
0725025700 Soseaua Andronache, Nr. 5, sector 2 |
||
| 528. |
Comics Club - Stand Up, Bucuresti
0741426426 Str. Nerva Traian, Numarul 4. sector 3 |
||
| 529. |
Gran Gelato Italiano - Gelaterie Bucuresti
0730057909 Str. Radu Voda, Nr 28 A, Sector 4 |
||
| 530. |
Hong Kong - Restaurant chinezesc, Ilfov
0213107134; 0727834877 Calea Grivitei, nr. 81 (langa Biserica Sf. Voievozi), sector 1, , judetul Ilfov |
||
| 531. |
Casa Jienilor Agricultori, Restaurant - Bucuresti
0735994994 Agricultori, Nr.12, Sector 2, Bucuresti |
||
| 532. |
Player Club de noapte si de dans - Bucuresti
0720734734 Piata.Montreal, Nr.1, sector 1, Bucuresti |
||
| 533. |
Beraria Centrala - Restaurant Bucuresti
0740959311 Strada Nerva Traian, Nr. 2, Sector 3 |
||
| 534. |
Jazz Book - Club de jazz si blues, Bucuresti
0752206746 Doctor Carol Davila, Nr. 1, Cotroceni, sector 5 |
||
| 535. |
Victorita Pescarita - Restaurant pescaresc, Bucuresti
0764400437 Sos Andronache, Nr 17, sector 2 |
||
| 536. |
Santorini - Restaurant specific grecesc Bucuresti
0748333334 Bulevardul Mihai Bravu, Nr. 209, Sector 2 |
||
| 537. |
Trattoria Adagio - Restaurant cu specific italian Bucuresti
0311061067; 0751218482 Bd. Mircea Voda, Nr. 34, sector 3 |
||
| 538. |
Restaurant Ali Baba - Specific oriental, Bucuresti
0213274810; 0722707208 Sos. Mihai Bravu, Nr. 213, sector 2, Bucuresti |
||
| 539. |
Turquoise - Restaurant cu specific oriental, Bucuresti
0731826222 Strada Theodor D. Sperantia, Nr. 96, sector 3 |
||
| 540. |
Twillight Events - Restaurant, evenimente Bucuresti
0786386435 Strada Piata Montreal, Nr. 10, sector 1 |
||
| 541. |
Kvala - Restaurant grecesc, Bucuresti
0726731663 str Louis Pasteur, nr 63, sector 5 |
||
| 542. |
Duman - Restaurant cu specific oriental, Bucuresti
0738170063 Bulevardul Decebal, Nr. 13, sector 3 |
||
| 543. |
18 Lounge - Restaurant cu specific european modern, Bucuresti
0312294675; 0738869093; 0312294675 Piata Presei Libere, Nr. 3-5, Sector 1 (City Gate - South Tower, et. 18), Bucuresti |
||
| 544. |
Funky Lounge - Terasa, Bucuresti
0755505505 Bd. Decebal, nr 9, sector 3 |
||
| 545. |
Derby Pub & Restaurant - Bucuresti
0214108545 Bd. Eroilor Sanitari , Nr. 49A,sector 5, Bucuresti |
||
| 546. |
Padthai - Restaurant Bucuresti
0726637747 Bulevardul Decebal, Nr. 3, sector 3 |
||
| 547. |
Sfeir Lebanese Cuisine - Bar & Grill
0722311805 Mircea Voda, Nr. 36, sector 3 |
||
| 548. |
Snap - Restaurant, Bucuresti
0738888885 Bulevard Decebal, nr. 13, sector 3 |
||
| 549. |
Agio Bistrot - Bistro, Bucuresti
0763528818 Bd. Decebal, Nr. 9, sector 3 |
||
| 550. |
Rich Vip Lounge - Restaurant Bucuresti
0771790764 Bd.Decebal, Nr 9, sector 3 |
||
| 551. |
Tress Caffe&Lounge - Bucuresti
0721988801 Bulevardul Decebal, Nr 3, sector 3 |
||
| 552. |
Casa Lica - Cofetarie Bucuresti
0725761188 Bulevardul Decebal, Nr. 5, Sector 3 |
||
| 553. |
XO Lounge - Restaurant Bucuresti
0725585388 B-dul Decebal, Nr. 5, sector 3 |
||
| 554. |
Lotus Cafe - Cafenea restaurant Bucuresti
0722808389 Bd. Decebal, Nr 1, sector 3 |
||
| 555. |
Margineni, Restaurant - Bucuresti
0733986867; 0212405631; 0720679350 Sos. Fundeni , Nr. 185, Sector 2, Bucuresti |
||
| 556. |
Events by Tonyo - Restaurant Bucuresti
0723170007 Aleea Hobita, Nr 1 Sector 2 |
||
| 557. |
Kunnai - Restaurant cu specific thailandez
0722687343; 0722687454 Strada Copilului, Nr. 6-12, sector 1 |
||
| 558. |
Hanul Hangitei, Restaurant - Bucuresti
0744827323; 0758043355 Bd. Marasesti, Nr.70-72, Sector 4 , Bucuresti |
||
| 559. |
Gallo Nero, Restaurant - Bucuresti
0726544889; 0213268128 Bd. Decebal, Nr. 12, Sector 3, Bucuresti |
||
| 560. |
Galletto Ristorante, Restaurant italian, catering - Bucuresti
0212112276; 0770407519 Soseaua Orhideelor, Nr.1 (podul nou Basarab,langa cladirile de birouri The Bridge, Sector 6, Bucuresti |
||
| 561. |
M&I Clasic Cuisine - Fast-food si catering Bucuresti
0732948408 Strada Baicului, Nr 104 Sector 2 |
||
| 562. |
Graffiti Urban Food, Bucuresti
0749433433; 0733695443; 0769180180 Str.Carol Davila, Nr. 56A, Sector 5, Bucuresti |
||
| 563. |
14th Lane - Restaurant cu mancaruri fine, organizare evenimente, Bucuresti
0737776777 Sos. Orhideelor, Nr. 15D, sector 6, Bucuresti |
||
| 564. |
Edessa - Restaurant cu specific turcesc
0735636363;0723656325 Soseaua Colentina, Nr. 281A, sector 2 |
||
| 565. |
Aleppo Sweet - Cofetarie specializata in briose, Bucuresti
0731800000; 0767609329 Soseaua Andronache, nr. 53, sector 2 |
||
| 566. |
Cofetaria Zora - Bucuresti
0771119563 Strada Uranus, Nr. 100, Sector 5 |
||
| 567. |
The Temple Social Pub - Bucuresti
0723469118 Bd. Marasesti, Nr. 71-73 sector 4 |
||
| 568. |
Bike Boutique and More - Magazin, terasa, service, Bucuresti
0752405152 Strada Profesor Doctor Victor Babes, Nr. 2, sector 5 |
||
| 569. |
Agora Restaurant - Bucuresti
0212242482; 0722304431 Str. Tintasului , Nr. 27, Sector 1, Bucuresti |
||
| 570. |
Arogant - Restaurant & Lounge, Bucuresti
0732764268 Piata Alba Iulia Piata Alba Iulia, nr 8, sector 3 |
||
| 571. |
Zatara - Restaurant cu influente mediteraneene, Bucuresti
0771670756 Vatra Luminoasa, Nr. 108, sector 2 |
||
| 572. |
MagiCake - Atelier de dulciuri artizanale, Bucuresti
0772072072 Strada Alexandru Moruzzi, Nr. 4A, sector 3 |
||
| 573. |
Restaurant Diplomat
0720880330 Bucuresti-Ploiesti, nr 2B, |
||
| 574. |
Andreea, Cofetarie, torturi si patiserie - Bucuresti
0728877033; 0213228845 Bulevardul Mihai Bravu, Nr. 286, Sector 3, Bucuresti |
||
| 575. |
Cofetaria Andreea
0213228845; 0728877033 Sos. Mihai Bravu , Nr. 286, sector 3, Bucuresti |
||
| 576. |
King Rolls - Fast Food Bucuresti
0747887206 Calea Vitan, Nr. 17A, sector 3 |
||
| 577. |
Rainbow - Bar & Grill, Bucuresti
0743205054 Cornul Caprei, nr.53, sector 3 |
||
| 578. |
El Bacha, Restaurant - Bucuresti
0212691392; 0722833333 P-ta Alba Iulia, nr.6 bl.15, sector 3, |
||
| 579. |
Club B52 - Bucuresti
0753315563 11 Iunie, N. 50, Sector 5, Bucuresti |
||
| 580. |
Nikos Greek Taverna, Restaurant - Bucuresti
0730001008 (Restaurant); 0215999099 (Livrari) B-dul Burebista, Nr 2 (Piata Alba Iulia), Sector 3, Bucuresti |
||
| 581. |
Mahala - Restaurant Bucuresti
0729003002 Calea Rahovei, Nr. 147- 153, sector 5 |
||
| 582. |
Yesterday, Hotel si Restaurant - Bucuresti
0213408585; 0737001008 Economu Cezarescu, Nr. 8, Sector 6, Bucuresti |
||
| 583. |
Costelaria, Restaurant - Bucuresti
0314055095 Calea Rahovei, Nr. 147-150 , Sector 5, Bucuresti |
||
| 584. |
Sardin - Restaurant cu specific italian, Bucuresti
0729520111 Bulevardul Mircea Voda, Nr. 39H sector 3, Bucuresti |
||
| 585. |
Terasa Sport House - Restaurant fast-food, Bucuresti
0755080224 Maior Ion Coravu, numarul 34, sector 2 |
||
| 586. |
Gio Cafe - Bucuresti
0730030757 Bd. Burebista, Nr.2 , Sector 3, Bucuresti |
||
| 587. |
Greekos Urban Food - Restaurant fast-food, Bucuresti
0726646976 Soseaua Mihai Bravu, Nr. 247, sector 3 |
||
| 588. |
Pizza Venetia, Pizzerie si catering - Bucuresti
0720800100; 0213204424; Fax: 0720800100 Dristorului, Nr.59, Sector 3, Bucuresti |
||
| 589. |
Riviera Park, Restaurant - Bucuresti
0732408408 Bd. Basarabia , Nr. 23 (Parcul National), Sector 2, Bucuresti |
||
| 590. |
Efes - Restaurant cu specific turcesc, Bucuresti
0737018590 Bulevardul Nerva Traian, Nr. 17 - 19, sector 3 |
||
| 591. |
Fabrica, Club,Pub, Tersa - Bucuresti
0753227422; 0753315563; 0749116508 11 iunie, Nr,50, Sector 5, Bucuresti |
||
| 592. |
Baroque Events & Garden - Restaurant Bucuresti
0726350802 Calea Rahovei, Nr. 145, Sector 5 |
||
| 593. |
Flair Angel - Bar specializat in cocktailuri, Bucuresti
0769771991 Calea Rahovei, Nr. 147-153, sector 5 |
||
| 594. |
Human Coffee - Cafenea Bucuresti
0734744429 Str. Elena Cuza, Nr. 8, Sector 4 |
||
| 595. |
Din Fu - Restaurant chinezesc Bucuresti
0729313338; 0213260127 Str. Alexandru Moruzzi, Nr. 76A, Sector 3 |
||
| 596. |
Ceainaria Infinitea
0723175300 Str. Dr. Grigore Romniceanu, Nr.7, ap.2, sector 5 |
||
| 597. |
Potcoava 9 Mai, Restaurant - Bucuresti
0212202208; 0721065347 Str. 9 Mai , Nr. 51, Sector 6, Bucuresti |
||
| 598. |
Suzana Ribs & Wings - Restaurant cu specialitati texane, Bucuresti
0785444466 Calea Rahovei, Nr. 147-153, Sector 5, Palatul Bragadiru |
||
| 599. |
La Machedoni - Restaurant cu specific traditional romanesc si american
0721512236 Anastasie Panu, nr. 10, sector 3 |
||
| 600. |
Roxy Pub - Bucuresti
0742033944; 0723327117; 0785224508 Splaiul Independentei, Nr. 290, Complex Studentesc Regie, Bucuresti |
||
| 601. |
Giorginio Cofetarie - Bucuresti
0722434002 Calea Dudesti, Nr. 129 (colt cu str. Scoala Ciocanul) Sector 3, Bucuresti |
||
| 602. |
Quantic Pub - Bucuresti
0314321742 Soseaua Grozavesti, Nr. 82, sector 6 |
||
| 603. |
Quartier - Restaurant, Bucuresti
0758222244 Bd. Mircea Voda, Nr. 43, sector 3 |
||
| 604. |
Grapes - Bar cu vinuri, Bucuresti
0770463287 Bdul. Marasesti, nr.2B, sector 4 |
||
| 605. |
La Patrascu - Restaurant Bucuresti
0771635003; 0767561149; 0754422491 Str. Prof. Stefan Nicolau, Nr. 2A, Sector 3 |
||
| 606. |
Madame B - Tea & Pancake House, Bucuresti
0746030670 Splaiul Unirii, nr.49,sector 3, |
||
| 607. |
Trofic - Restaurant pentru mic dejun si brunch
0751276600 Bd. Mircea Voda, nr. 52, sector 3 |
||
| 608. |
Gusteau\'s - Restaurant Baneasa
0722966072 Strada Pechea, Nr 20, Sector 1 |
||
| 609. |
Trattoria 20 - Restaurant Bucuresti
0757534928; 0751267451 Splaiul Independentei, Nr. 290, Campus Regie, sector 6 |
||
| 610. |
B3ton - RestoBar, Bucuresti
0217963684 Bulevardul Marasesti, Nr. 2B, sector 4 |
||
| 611. |
Tarab - Restaurant cu specific libanez, Bucuresti
0774411111 Strada Nerva Traian, Sector 3 |
||
| 612. |
Kitchen - Restaurant Baneasa
0733305989 Str. Pechea, Nr. 32-36, Parter, Sector 1 |
||
| 613. |
Pizza Dobrogea - Pizzerie, Bucuresti
0736615212 Bulevardul Ficusului, nr 5-7, sector 1 |
||
| 614. |
Pui de Urs, Restaurant - Bucuresti
0213166289; 0724622226; 0765166266 Econom Cezarescu, Nr. 42 (Grozavesti), Sector 6 , Bucuresti |
||
| 615. |
Crowne Plaza, Restaurant - Bucuresti
0372135000; 0212240034 Bd. Poligrafiei, Nr. 1, Sector 1, Bucuresti |
||
| 616. |
La Maria si Ion, Restaurant - Bucuresti
0762295737; 0753473781 Splaiul Independentei, Nr. 290, Complex Studentesc Regie, Sector 6, Bucuresti |
||
| 617. |
Resto Aperto, Restaurant - Bucuresti
0738741118 Calea Vitan, Nr.55-59 (Bucuresti Mall) Sector 3, Bucuresti |
||
| 618. |
Resto Aperto, Restaurant - Bucuresti
0738741118 Calea Vitan , Nr.55-59(Bucuresti Mall) Sector 3, Bucuresti |
||
| 619. |
Pajo Garden - Restaurant Bucuresti
0751227228 Bulevardul Basarabiei, Nt. 37-39, sector 2 |
||
| 620. |
Shorley Restaurant - Bucuresti
0765377308; 0724710385; 0213124312 Econom Cezarescu, Nr. 50, Sector 6 , Bucuresti |
||
| 621. |
7 Days - Restaurant cu terasa, organizari evenimente, Bucuresti
0769042751; 0213241358 Str. Campia Libertatii, Nr. 23, Sector 3, Bucuresti |
||
| 622. |
Pub 18 Restaurant - Bucuresti
0722441586 (Manager Pub Oana Valeanu) Splaiul Independentei, Nr. 290, bl. P18, parter, Sector 6, Bucuresti |
||
| 623. |
Vecchia Napoli Pizzeria - Bucuresti
0723970317; 0212246629; 0754043666 Calea Grivitei, Nr. 371, Sector 1, Bucuresti |
||
| 624. |
Saidoun - Restaurant cu specific libanez, Bucuresti
0755132812 Bulevardul Alexandru Serbanescu, nr. 87, sector 1 |
||
| 625. |
Pub 18 Restaurant - Bucuresti
0722441586 Splaiul Independentei, Nr. 290, bl. P18, parter, sector 6 , Bucuresti |
||
| 626. |
Taverna Sarbului, Restaurant - Bucuresti
0214906050; 0743353353 Tipografilor, Nr. 31, Sector 1 , Bucuresti |
||
| 627. |
Thalia - Restaurant cu bucatarie internationala
0219993 Strada Cuza Voda, Nr. 147, sector 4 |
||
| 628. |
Ivan Pescar & Scrumbia Bar - Restaurant pescaresc, Bucuresti
0729384828 Str. Uranus, nr 150, cladirea The Ark, parter, sector 5 |
||
| 629. |
Mechano Pub - Bucuresti
0722990992 Splaiul Independentei, Nr. 290, sector 6 |
||
| 630. |
D&L Cuisine - Restaurant, Bucuresti
0740305159 Bd. Expozitiei, nr. 2, corp C3, etaj 1, sector 1 |
||
| 631. |
Christine -Cofetarie Bucuresti
0728212199 Strada George Valentin Bibescu, Nr. 49, sector 1 (colt cu Bd-ul Ficusului) |
||
| 632. |
Il Cantuccio, Restaurant - Bucuresti
0722572957 (Sef unitate: Baieticu Ioana); 0735281669 (Sef unitate: Otvos Gabriela); 0724540839 (Manager: Florea Valentin) Fabrica de Chibrituri , Nr. 2, Rond Autogara Filaret, sector 4, Bucuresti |
||
| 633. |
La Nasu, Restaurant - Bucuresti
0212214285; 0722257923; 0728984754 Calea Crangasi, Nr. 29, Sector 6, Bucuresti |
||
| 634. |
Il Cantuccio, Restaurant - Bucuresti
0722572957 (Sef unitate: Baieticu Ioana); 0735281669 (Sef unitate: Otvos Gabriela); 0724540839 Manager: Florea Valentin) Fabrica de Chibrituri, Nr. 2, Rond Autogara Filaret, sector 4, Bucuresti |
||
| 635. |
Bistro 37-39 - Restaurant Bucuresti
0731355939 Bulevardul Basarabia, Nr. 37-39 , Sector 3 |
||
| 636. |
Pizza Bar - Pizzerie, Bucuresti
0746013623 Lanariei, nr. 5, sector 4 |
||
| 637. |
Old Mike Pub si Restaurant - Bucuresti
0787366166 Morilor, Nr. 46 Sector 3, Bucuresti |
||
| 638. |
Trenta Pizza - Bucuresti
0219645 Bd.Chisinau, Nr.5 , sector 2 , Bucuresti |
||
| 639. |
Taverna Baba Novac, Restaurant - Bucuresti
0771544334; 0760010784 Intrarea Baba Novac, Nr. 3, Sector 3, Bucuresti |
||
| 640. |
Adore Cakes - Cofetarie Bucuresti
0744440787; 0740231123 Strada Baiculesti, Nr 1, sector 1 |
||
| 641. |
Cald si Bun, Catering - Bucuresti
0212339457; 0737526215 Hatmanul Arbore, Nr. 11, Sector 1, Bucuresti |
||
| 642. |
L\'Amande - Deserturi fara gluten, Bucuresti
0744639549 Str. Lanariei, Nr. 93-95, sector 4 |
||
| 643. |
Mateo Fast Food
0728199827; 0752777333; 0314362033 Strada Dristorului, Nr. 87, sector 3 |
||
| 644. |
Qian Bao, Restaurant chinezesc - Bucuresti
0722622865; 0314306616 Intrarea Baba Novac, Nr. 2, Sector 3, Bucuresti |
||
| 645. |
Passione - Restaurant Ilfov
0799584104 Sos. Bucuresti Nord, Voluntari |
||
| 646. |
Bouzouki - Restaurant specific grecesc, Bucuresti
0787528003 Bulevardul Sincai Gheorghe, Nr. 3, sector 4 |
||
| 647. |
Voievodal - Restaurant cu specific romanesc, Bucuresti
0212324582;0737202492;0733159846 Sos Bucuresti-Ploiesti, nr. 10, Sector 1 |
||
| 648. |
Stejarului 57 - Social Bar, Bucuresti
0748701058 Strada Fildesului, Nr. 2, sector 3 |
||
| 649. |
Sare si Piper - Restaurant cu specific italian, Bucuresti
0744663451 Str. Viorele, nr. 26, zona Timpuri Noi, sector 4, Bucuresti |
||
| 650. |
Casa Dragonului, Restaurant Bucuresti
0213202666; 0761929019 Calea Dudesti, nr. 198, sector 3, Bucuresti |
||
| 651. |
Green Bistro - Terasa Bucuresti
0728237731 Parcul Gheorghe Patrascu, |
||
| 652. |
Armonia Cofetarie - Bucuresti
0213244020 ; 0722616180 Campia Libertatii, Nr. 46 , bl. 52 , Parter , Sector 3, Bucuresti |
||
| 653. |
Gili Pizza - Bucuresti
0213242387 Str. Baba Novac, Nr. 9-11, Sector 3 |
||
| 654. |
Patiseria Tineretului - Bucuresti
0761116622 Bd. Gheorghe Sincai, Nr 2A, sector 4 |
||
| 655. |
Cofetaria Ina - Bucuresti
0723300213 Str. C-tin Radulescu Motru, Nr. 6, Sector 4 |
||
| 656. |
Pizzeria Alessandro - Bucuresti
0721886488; 0721887488 Drumul Sarii, Nr.150, sector 6 |
||
| 657. |
Damascus Palace - Restaurant Bucuresti
0746696666; 0756616666 Bld. Basarabia, Nr. 98, sector 2, |
||
| 658. |
La Sediu - Restaurant Bucuresti
0760729007 Campia Libertatii, Nr. 54, sector 3 |
||
| 659. |
Naan Project - Restaurant, Bucuresti
0730707119 Strada Progresului, Nr. 1-3 (Razoare), sector 5 |
||
| 660. |
Golden Blitz, Restaurant - Bucuresti
0214105100 Razoare , Nr. 32, Sector 6 , Bucuresti |
||
| 661. |
Golden Blitz, Restaurant - Bucuresti
0214105100 Razoare , Nr. 32, Sector 6 , Bucuresti |
||
| 662. |
Erra - Restaurant cu specific european modern, Bucuresti
0734983984 Str. Constantin Nottara, Nr 13, sector 3 |
||
| 663. |
Sham Sweet, Cofetarie - Bucuresti
0748242455 Bd. Basarabia, Nr.98, Sector 3, Bucuresti |
||
| 664. |
Kungfu Pizza - Bucuresti
0774428631; 0216656866; 0314251995 Ceahlau, Nr.17 B, Sector 6, Bucuresti |
||
| 665. |
Strada Rustica - Pizzerie Bucuresti
0213248303; 0768676765; 0728886914 Str. Baba Novac, Nr 9, Complex Rucar, Sector 3 |
||
| 666. |
Pizza Apetito - Bucuresti
0770225215 Eufrosina Popescu, Nr. 57, sector 3, |
||
| 667. |
Citylicious - Restaurant Bucuresti
0771707709 Bld Tudor Vladimirescu, Nr. 29, sector 5 |
||
| 668. |
De Cartier - Restaurant de tip familial, Bucuresti
0213305556 Str. Viorele, Nr. 57A, sector 4 |
||
| 669. |
Tabiet 41 - Restaurant, Bucuresti
0314260278 Strada Viorele, nr.59, sector 4 |
||
| 670. |
Friends Pub - Bucuresti
0728197287 Bucovina , Nr. 6, Sector 3, Bucuresti |
||
| 671. |
Pizza Real - Delivery Bucuresti
0760170649; 0725470701 Calea Crangasi, Nr. 90, Sector 6 |
||
| 672. |
Trattoria la Nave - Restaurant Bucuresti
0743454626 Sos. Pantelimon, Nr. 264, Sector 2 |
||
| 673. |
Casa Tosca, Cofetarie - Bucuresti
0213461297 Bd. Camil Ressu, Nr. 1, Sector 3, Bucuresti |
||
| 674. |
Contesa, Restaurant - Bucuresti
0731831891; 0722244214; 0213317171 Sibiel, Nr. 5, sector 4, Bucuresti |
||
| 675. |
Sabatini Pizza, Restaurant - Bucuresti
0314266069; 0737148520; 0784699751 B-dul Basarabia, Nr. 108, Bucuresti |
||
| 676. |
IDM Club Sportiv - Bucuresti
0213161052; 0722454273 Splaiul Independentei, Nr. 319 B, (Vizavi de campusul studentesc Regie) Sector 6, Bucuresti |
||
| 677. |
La Gil, Restaurant - Bucuresti
0722534117 Bd. Aerogarii, Nr. 21-23, Sector 1, Bucuresti |
||
| 678. |
Turkish Clasis - Restaurant, Bucuresti
0721503011 Sos Viilor, nr.27, sector 5 |
||
| 679. |
Ubuntu Coffee - Terasa, Bucuresti
0758635771 Splaiul Unirii, Nr. 195, sector 3 |
||
| 680. |
Babylon Fast Food - Bucuresti
0799666267 Soseaua Pantelimon, nr. 255, sector 2 |
||
| 681. |
Dines, Restaurant evenimente - Bucuresti
0213362474; 0723634741; 0727968325 (Predescu Constantin) Cutitul de Argint, Nr.12 (langa Arenele Romane) Sector 4, Bucuresti |
||
| 682. |
Papaciu - Bistro, Bucuresti
0724200070; 0724955952 Strada Complexului, Nr 3A, sector 3 |
||
| 683. |
O sole Mio - Pizzerie Bucuresti
0212403089 Sos. Colentina, Nr. 414, Sector 2 |
||
| 684. |
La Cocosatu, Restaurant romanesc - Bucuresti
0212328796; 0736445737 Str. Neagoe Voda, nr. 52A, |
||
| 685. |
Dum Dum Food - Restaurant fast food, Bucuresti
0735 270 402 Calea Giulesti, Nr. 123, sector 6 |
||
| 686. |
La Dolceria, Cofetarie - Bucuresti
0724315256 Basarabia, Nr.55, M22, Sector 3, Bucuresti |
||
| 687. |
Cucina di casa - Pizzerie, Bucuresti
0735868318 Calea Vacaresti, Nr. 230, sector 4 |
||
| 688. |
Arancini - Restaurant cu specific sicilian
0756490490 Str. Papadiei, Nr. 16-18, sector 3 |
||
| 689. |
Colosal - Fast Food, Bucuresti
0737698255 Strada Mihail Sebastian, Nr. 133, sector 5 |
||
| 690. |
Bravu Burger & Crepes - Restaurant fast-food, Bucuresti
0722118100 Soseaua Mihai Bravu, Nr 452 - 460, sector 2 |
||
| 691. |
Monza, Trattorie si Restaurant - Bucuresti
0722661166; 0769200002; 0724802802 Baba Novac, Nr. 25, Sector 3, Bucuresti |
||
| 692. |
Volare - Pizzerie, Bucuresti
0730622600 Calea Vacaresti, Nr.203B, sector 4 |
||
| 693. |
Terasa Oasis - Restaurant Bucuresti
0733638577 Mihail Sebastian, Nr.102. Sector 5, Bucuresti |
||
| 694. |
Mazzaj Cafe - Restaurant cu specific libanez, Bucuresti
0757292398 Splaiul Unirii, Nr. 162, sector 4 |
||
| 695. |
La Placinte - Restaurant cu specific romanesc, Bucuresti
0756207005 Bd. Vasile Milea, 4F (Afi Park 2) |
||
| 696. |
La Calinescu - Restaurant cu specific romanesc, Bucuresti
0788472725; 0213310750 Strada Piscului, Nr. 16, sector 4 |
||
| 697. |
Casa Diham - Restaurant Bucuresti
0213406006; 0727171220 Bd. Nicolae Grigorescu, Nr. 1 A, Sector 3 |
||
| vezi mai multe | |||
| 1. |
GALERIA MARIO PLAZA
Tel/Fax. 021.230.47.71 Calea Dorobantilor, nr. 172, sector 1, Bucuresti |
||
| 2. |
SUPERMARKET LA NEA NICU
Tel. 230.64.80 Str. Putul lui Zamfir nr. 59, sector 1 |
||
| 3. |
DENISA MARKET
Tel. 021.211.71.70; 0722.691.595; 0749.263.036; Fax 021.211.71.70 Str. Rasuri nr. 1, sector 2 |
||
| 4. |
SONMEZ MARKT 4
Tel. 211.65.39; Fax 210.13.25 Bd. Iancu de Hunedoara nr. 64, sector 1 |
||
| 5. |
PRESTIGE SHOPPING CENTER
Tel. 230.16.12; 230.17.13; Fax 230.67.53 Calea Floreasca nr. 111-113, sector 1 |
||
| 6. |
GEMINI
Tel/Fax 230.25.49 Calea Floreasca nr. 111-113 (Complex Prestige), sector 1 |
||
| 7. |
BUCUR OBOR
021.252.59.34; 021.252.59.35; 021.252.63.82 Sos.Colentina, nr. 2, sector 2 , Bucuresti |
||
| 8. |
FONZI
Tel. 260.21.28; 0729.005.261; Fax 260.15.31 Sos. Nicolae Titulescu nr. 121 (Fonzi Junior), sector 1 |
||
| 9. |
Cocor Luxury Store
021.312.43.10; Fax: 021.313.98.48 Bd. I.C. Bratianu, nr. 29-33, sector 3, |
||
| 10. |
CARREFOUR
Tel. 0374.145.800; Fax 021.307.66.96 Bd. Corneliu Coposu nr. 2, sector 3, |
||
| 11. |
COCOR
Tel. 021.313.14.03; 021.313.92.39; 021.314.96.64; 021.314.96.65; Fax 021.313.98.48 Bd. I.C. Bratianu nr. 29-33, sector 3, |
||
| 12. |
Mobexpert, Bucuresti - Mobilier si decoratiuni exterioare
0316305333 (Comenzi online); 0212421040 Sos. Fabrica de Glucoza, Nr. 21, Sector 2, Bucuresti |
||
| 13. |
KAUFLAND
Tel. 0372.091.001 Sos. Colentina nr. 6, sector 2, |
||
| 14. |
CONCORD 2002
Tel/Fax 323.90.87 Bd. Decebal nr. 7, sector 3 |
||
| 15. |
FOR YOU
Tel. 0745.094.433 Bd. Decebal nr. 24, sector 3 |
||
| 16. |
FONZI SUPERMARKET
Tel. 0729.005.260; Tel/Fax 021.323.67.52 Str. Nerva Traian, nr. 17-19, sector 3, |
||
| 17. |
MEGA MALL
Str. Pierre de Coubertin, nr. 3-5, langa Arena Nationala, |
||
| 18. |
Wini Imobili
Tel.021.307.60.50; 0742.144.034, 0755.068.669; Fax.021.307.60.51 Pierre de Coubertin, nr. 3-5, sector 2, Bucuresti |
||
| 19. |
WORLD TRADE PLAZA SHOPPING GALLERY
Tel. 202.44.50; Fax 202.43.11 P-ta Montreal nr10, sector 1 |
||
| 20. |
GMARKET
Bucuresti |
||
| 21. |
Penny Market XXL
0800.110.111 Sos.Fundeni, nr. 38-40, sector 2, Bucuresti |
||
| 22. |
NICK CENTER
Tel. 410.06.14; Fax 410.18.94 Calea 13 Septembrie nr. 190, sector 5 |
||
| 23. |
THE GRAND AVENUE AT BUCHAREST MARRIOTT GRAND HOTEL
Tel.021. 403.40.98 Calea 13 Septembrie nr. 90, sector 5 , |
||
| 24. |
GRANT SHOPPING CENTER
Tel/Fax 021.220.42.65 Sos.Virtutii, nr. 148, sector 6, Bucuresti |
||
| 25. |
BUCURESTI MALL
Tel. 021.327.67.00; 021.327.61.00; 021.327.61.02; Fax 021.320.92.09 Calea Vitan nr. 55-59, sector 3, |
||
| 26. |
SUPERMARKET MAICOM
Tel. 0722.322.573; Fax 321.78.36 Str. Vitan nr. 104, sector 3 |
||
| 27. |
LIBERTY CENTER
0213699871; 0213699835 Sos. Progresului, nr. 151-171, sector 5, Bucuresti |
||
| 28. |
AFI Cotroceni - Mall, Bucuresti
0314257510; 0314257511; Fax 0314257513 Vasile Milea, Nr. 4, Sector 6 (intersectia Bd. Timisoara cu Str. Vasile Milea), Bucuresti |
||
| vezi mai multe | |||
Sunteti de acord sa fiti contactat prin mesageria Anuntul.ro
de persoana care a adaugat acest anunt?
Vezi istoricul preţurilor din zona
Vezi email
Distribuie Facebook
Anunţurile utilizatoruluiPagina pe care doriti sa o accesati poate sa contina elemente care nu sunt recomandate minorilor!
Va rugam sa confirmati ca aveti peste 18 ani!

135
,461
2 min.
46