Metrou Piața Unirii ...
1 min.
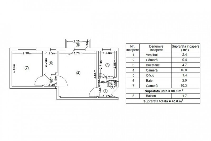
calculeaza distantaUnirii, Hanul lui Manuc, apartament 2 camere pentru investitie, 41 mp. P-ta Unirii - Hanul lui Manuc, apartament 2 camere pentru investitie, 41 mp.
Pozitionare ultracentrala, la cateva minute de statia metrou Unirii si Hanul lui Manuc, cu vedere libera pe spate, catre Biserica Sf. Anton si Curtea Veche. Apartament situat la etajul 6, intr-un imobil din 1958 bine intretinut, situat pe I.C.Bratianu 44, potrivit pentru locuinta sau investitie. Interior in stare buna, bine compartimentat si confortabil, se preda mobilat conform fotografiilor.
Detalii:
• Apartament 2 camere, semidecomandat, suprafata utila 39 mp, plus balcon de 1.7 mp, aflat la etajul 6.
• Imobil de 7 etaje din 1958, cu spatii comune curate si ingrijite;
• Imobil incadrat RS2 pe lista imobilelor expertizate.
• Tamplarie PVC cu geam termopan;
• Interior in stare buna.
• Cadastru intocmit de data recenta, acte pregatite pentru vanzare, predare imediata.
• Certificat Energetic in lucru.
• Se vinde cu comision 0 pentru cumparator.
Statii metrou |
Timp | |
![]() |
Metrou Piața Unirii | 1 min. |
![]() |
Muzeul de istorie | 10 min. |
![]() |
Izvor | 19 min. |
Statii STB |
Timp |
|
Piața Unirii
104
,117
,123
,232
,312
,385
,N109
,N115
,N120
,N122
,N
|
2 min. |
|
Piața Unirii 5
|
3 min. |
|
Piața Unirii 4
|
3 min. |
|
Piața Unirii 2
|
4 min. |
|
Piața Unirii 1
|
5 min. |
|
Piața Sfânta Vineri
73
116
,117
,312
|
5 min. |
|
Bulevardul I.C. Brătianu
73
104
,116
,117
,123
,104123385
,N104
,N111
|
7 min. |
|
Piața Sfântul Gheorghe
381
|
7 min. |
|
Piața Sf. Gheorghe
|
8 min. |
|
Piața Unirii 3
|
8 min. |
|
Piața Națiunile Unite
104
,123
,124
,385
|
9 min. |
| 1. |
Copacelul Vietii - Gradinita Bucuresti
0721464185 Str. Radu Calomfirescu, nr. 9, sector 3 |
||
| 2. |
Prikindel - Cresa, Gradinita & After School - Bucuresti
0314059269; 0722522198 Str. Sf. Ilie, nr. 5, sector 4, |
||
| 3. |
Micii Poznasi - Cresa, Gradinita Bucuresti
0725911233 Calea Serban Voda, Nr. 22-24, Sector 4 |
||
| 4. |
Lauder-Reut Kindergarten - Gradinita Bucuresti
0318055772; 0723098800; 0735505395 Str. Iuliu Barasch, Nr. 15, Sector 3, Bucuresti |
||
| 5. |
Pisicile Aristocrate - Gradinita sector 4
0213350635; 0213363680 Bd. Regina Maria, nr. 28-30, Sector 4 |
||
| 6. |
Ina School - Gradinita si scoala primara, Bucuresti
0722500899 Str. Lacul Gorgova, nr. 2, Sector 2 |
||
| 7. |
Centrul multifunctional Cresa Craiasa Zapezii sector 4
0371360117; 0371360127 Str. Oitelor, nr. 50, sector 4 |
||
| 8. |
Ray of Light Montessori - Gradinita, Bucuresti
Str. Gladiolelor, Nr. 15, sector 4 |
||
| 9. |
Lumea lui Momo - Gradinita Bucuresti
0748055255 Str. Ipotesti, Nr. 23, Sector 4 |
||
| 10. |
Gradinita nr. 30 sector 4
0213362078 Bd. Dimitrie Cantemir, nr. 16A, Sector 4 |
||
| 11. |
Mihai Ionescu - Gradinita, Scoala, Liceu Bucuresti
0213235495 Str. Parfumului, Nr. 31, Sector 2, Bucuresti |
||
| 12. |
Copii de Poveste - Gradinita sector 4
0740051582 Str. Poterasi, nr. 5, sector 4 |
||
| 13. |
Central Art Studio - After School/Cursuri Pentru Copii/Scoala de Vara Bucuresti
0745633737; 0765454244 Str. Popa Soare, nr. 29, sector 2 |
||
| 14. |
Montessori Edu - Centru educational, Bucuresti
0721833901 Str. Mantuleasa, nr. 21, sector 2 |
||
| 15. |
Buna Vestire - Gradinita, After School sector 4
0787435172 Str. Episcopul Chesarie, nr. 9, Sector 4 |
||
| 16. |
Clubul Boreal, Gradinita - Bucuresti
0721124249 Str. Valerian Prescurea, Nr. 5, Sector 4, Bucuresti |
||
| 17. |
Copiii Montessori - Gradinita sector 3
0721204642 Str. Labirint, nr. 95, Sector 3 |
||
| 18. |
Children\'s Joy, Gradinita & After School - Bucuresti
0731258277; 0754317732 Str. Gramont, Nr. 3, Sector 4, Bucuresti |
||
| 19. |
Gradinita Nr. 203 Bucuresti
0213112352 Str. C. A. Rosetti, nr. 32, Sector 1 |
||
| 20. |
Scufita Rosie - Gradinita sector 4
0766541207 Calea Serban Voda, nr. 170 , sector 4 |
||
| 21. |
Licurici - Gradinita sector 4
0314377556; 0767503191 Str. Cuza Voda, nr. 141 A, Sector 4 |
||
| 22. |
Gradinita nr. 73 sector 5
0213154355 Splaiul Independentei, nr. 68, sector 5 |
||
| 23. |
Gradinita Magica, Bucuresti
0765221341; 0723892378 Str. Stefan Mihaileanu, Nr. 33, Sector 2, Bucuresti |
||
| 24. |
Genius Academy - Cresa, Gradinita , Scoala Primara si After School Bucuresti
0724111678; 0744638435 Calea Serban Voda, nr. 145, sector 4 |
||
| 25. |
Sf. Imparati Constantin si Elena, Gradinita Bucuresti
0722237110; 0722293056; 0213261361 Str. Labirint, Nr. 137 B , Sector 3, Bucuresti |
||
| 26. |
Roxy Baby - Cresa Particulara Bucuresti
0314254309; 0723274924 Str. Slobozia, Nr. 29 , Sector 4, Bucuresti |
||
| 27. |
Melba - Centru Educational Bucuresti
0722461015 Str. Lanariei, Nr. 117 , Sector 4, Bucuresti |
||
| 28. |
Acorns British Style Nursery, Gradinita & After School, Bucuresti
0722476581; 0788418186 Str. Popa Soare, Nr. 63, Sector 2, Bucuresti |
||
| 29. |
Gradinita Nr. 257 Alice sector 2
0212114524 Str. Alexandru Donici, Nr. 23, sector 2 |
||
| 30. |
Taramul Cunoasterii - Cresa si Gradinita Bucuresti
0724278826 Str. Ioan G. Bibicescu, Nr. 11, Sector 1, Bucuresti |
||
| 31. |
Mell - Gradinita cu Program Normal sector 3
0744564426; 0722958683 Str. Vlad Dracu, nr. 43, sector 3 |
||
| 32. |
Elite - Cresa, Gradinita Bucuresti
0766687691 Str. Lanariei, Nr. 136, Sector 4, Bucuresti |
||
| 33. |
Don Quijote - Afterschool Bucuresti
0725737793 Str. Ioan Slavici, nr. 4, sector 1 |
||
| 34. |
Rainbow Kids - Gradinita si scoala primara Bucuresti
0737081690; 0773349170 Str. Ion Dragalina, Nr. 8, Sector 5, Bucuresti |
||
| 35. |
Waldorf Christophori - Gradinita Bucuresti
0770861602 Str. Putul cu Plopi, Nr. 8, (langa Parcul Cismigiu) - sector 1, Bucuresti |
||
| 36. |
Maria International School - Gradinita, Scoala primara si afterschool Bucuresti
0730432092 Str. Piata Amzei, Nr. 6, Sector 1, Bucuresti |
||
| 37. |
Noel - Gradinita & After School Bucuresti
0728459857; 0725839363 Str. Trifoi, Nr. 10, Sector 3, Bucuresti |
||
| 38. |
Academia Fantastica - Gradinita, Before & After School sector 3
0731027321; 0723337393; 0213065370 Str. Moise Nicoara, Nr. 7, Sector 3 |
||
| 39. |
Aurora - Gradinita & After School sector 3
0744317320; 0213224168 Str. Moise Nicoar?, nr. 9-11, sector 3 |
||
| 40. |
Ioanid - Gradinita Bucuresti
0758054441 Str. Polona, Nr. 4, Sector 1, |
||
| 41. |
Gradinita Nr. 133 sector 2
0212116749 Str. Aurel Vlaicu, nr. 30 - 32, sector 2 |
||
| 42. |
Puisor - Gradinita Nr. 268 Bucuresti
0214104010 Str. Ion Creanga, Nr. 8, Sector 5, Bucuresti |
||
| 43. |
Gradinita MAPN Nr. 2 Bucuresti
0213156889 Str. Constantin Cristescu, nr. 5, sector 1 |
||
| 44. |
Palatul Copiilor - Gradinita, After School sector 3
0740673742; 0314251635 Str. Morilor, Nr. 19, sector 3 |
||
| 45. |
Centrul Social Multifunctional Cresa Scufita Rosie sector 4
0733200109; 0372874267; 0372715100, 0372715101 Aleea Tohani, nr. 1, bl.30, sc. 1, parter, sector 4 |
||
| 46. |
Edu Friends - Before & After School Bucuresti
0783080096 Str. Berzei, Nr. 5, Sector 1 |
||
| 47. |
Ana Lugojana - Gradinite, Scoala Primara, Gimnaziala si After School Bucuresti
0724342409 Str. Constantin Miculescu, nr. 10, sector 5, Bucuresti |
||
| 48. |
Gradinita nr. 269 sector 5
0213354544 Str. Constantin Miculescu, nr. 12, sector 5 |
||
| 49. |
Arlechino & Friends - Gradinita si afterschool - Bucuresti
0723264032; 0749028820; 0213260584 Str. Cezar Boliac, Nr. 22-24, Sector 3, Bucuresti |
||
| 50. |
Fridolin - Gradinita, Scoala Germana Bucuresti
0723219616; 0723584872 Str. Temisana, Nr. 1, Sector 1, Bucuresti |
||
| 51. |
Dani\'s Children, Cresa, Gradinita, After School - Bucuresti
0721800099 Str. Silvestru, Nr. 42, Sector 2, Bucuresti |
||
| 52. |
Clubul Micul Print - afterschool Bucuresti
0733750795 Str. Dr. Nicolae Staicovici, Nr. 51, Sector 5, Bucuresti |
||
| 53. |
PRO Academy Afterschool
0744501156 Str. Sibiel, nr. 6, Sector 4 |
||
| 54. |
Paradisul Copiilor - Gradinita & After School Bucuresti
0730007062 Str. G-ral. Haralambie Nicolae, Nr. 38, Sector 4, Bucuresti |
||
| 55. |
Centrul Educational Nordic sector 4
0786391446 Splaiul Unirii, Nr. 176, Corp D3, Sector 4 |
||
| 56. |
Bambi Step by Step- Gradinita Bucuresti
0213273256; 0317102928 Str. Gh. Dem Teodorescu, Nr.16 bis, Sector 3, Bucuresti |
||
| 57. |
Licurici - Gradinita Bucuresti
0212104790 Bd. Dacia, Nr. 134, Sector2, Bucuresti |
||
| 58. |
Academia Gifted International, Gradinita & After School - Bucuresti
0724381661; 0722277090 Str. Sold. Simion Stefan, nr. 39, sector 4, Bucuresti |
||
| 59. |
Sfantul Nicolae, Gradinita & After School - Bucuresti
0729611918 Str. Sirenelor, Nr. 56-58, Sector 5, Bucuresti |
||
| 60. |
My Universe - Afterschool si gradinita, Bucuresti
0788416164 Str. Costache Negri, Nr. 9-11, sector 5 |
||
| 61. |
Gradinita Montessori Livada cu copii sector 2
0757467127; 0721204642 Str. Toamnei, nr. 76-78, sector 2 |
||
| 62. |
Family Kids, Gradinita si After School - Bucuresti
0722565657; 0723281551 Str. Mugur Mugurel, Nr. 21, Sector 3, Bucuresti |
||
| 63. |
Puzzle Edu Center - Centru educational sector 2
0724536293 Str. Gheorghe Pop de Basesti, nr. 17, Sector 2 |
||
| 64. |
Kindi - Centru de educatie timpurie Montessori, Bucuresti
0726876873 Str. Delea Veche, Nr 35, sector 2 |
||
| 65. |
Bell - Gradinita, Afterschool Bucuresti
0728694516 Str. Mecet, Nr. 53, Sector 2 |
||
| 66. |
Iepurasul cel Istet - Cresa, Gradinita, After School sector 2
0731488715; 0722121779 Str. Mihai Eminescu, nr. 179, sector 2 |
||
| 67. |
Kiga 99 Luftballons - Gradinita, After School in limba germana Bucuresti
0722395197; 0745423467 Str. Theodor Sperantia, nr. 81, sector 3 |
||
| 68. |
Copil Dorit - Gradinita Bucuresti
0736820068; 0722166358 Sos. Viilor, Nr. 33, Sector 5, Bucuresti |
||
| 69. |
Casuta cu ferestre - Gradinita Bucuresti
0721660052 Str. Gheorghe Lupu, nr. 19, sector 4 |
||
| 70. |
Castelul Bucuriei - Gradinita Bucuresti
0730515181 Str. Vasile Voiculescu, nr. 30, sector 3 |
||
| 71. |
Gradinita Nr.161 (Brandusa) sector 3
0314250834; 0314250835 Str. Branduselor, Nr. 37/43, sector 3 |
||
| 72. |
Max und Moritz Kinder - Gradinita limba germana & After School Bucuresti
0726374434 Str. Plugarilor, Nr. 24, Sector 4, Bucuresti |
||
| 73. |
Dreamland - Gradinita Bucuresti
0787521511 Str. Plugarilor, nr. 20-22, Sector 4, Bucuresti |
||
| 74. |
Oxigen Sport - Befor School, After School Bucuresti
0722529429 Str. Duzilor, Nr. 23, sector 2, Bucuresti |
||
| 75. |
Sonnenblume Kinderinstitut - Gradinita, Cresa Montessori Bucuresti
0726471469 Str. Calusei, nr. 36, sector 2 |
||
| 76. |
Olga Gudynn, Gradinita si Scoala Cotroceni - Bucuresti
0734411332; 0214106995 Str. Fagaras, Nr. 6, Sector 1, Bucuresti |
||
| 77. |
Abcdino, Gradinita - Bucuresti
0213231070; 0725929616; 0745397739 Str. Chiparosului, Nr. 31, Sector 3, Bucuresti |
||
| 78. |
Don Castor, Gradinita & After School - Bucuresti
0757073929; 0217945396 Str. Vaselor, Nr. 17A, Sector 2, Bucuresti |
||
| 79. |
Smart Kinder Villa - Before & After School Bucuresti
0726285699; 0728472197 Str. Nicolae Beldiceanu, nr. 2, sector 1 |
||
| 80. |
Bob de Grau, Gradinita si Cresa - Bucuresti
0720446942 Str. Agricultori, Nr. 142, Sector 3, Bucuresti |
||
| 81. |
Big Smile - Gradinita, scoala primara, After School Bucuresti
0722557333 Str. Cutitul de Argint, nr. 74, sector 4, Bucuresti |
||
| 82. |
Kinderakademie - Gradinita & After School Bucuresti
0724661760; 0727427004 Str. Sfintii Voievozi, Nr. 28, Sector 1, Bucuresti |
||
| 83. |
Alfred Fronius - Gradinita si afterschool in limba germana Bucuresti
0729699619; 0726715499 Str. Tunari, Nr. 39, Sector 2, Bucuresti |
||
| 84. |
Castelino Baby - Gradinita Bucuresti
0731995600 Str. Prof. Ion Ursu, nr. 21, sector 2, |
||
| 85. |
Alfred Fronius - Gradinita si afterschool in limba germana Bucuresti
0372978427; 0726715499 Str. Tunari, Nr. 39 (zona Stefan Cel Mare), sector 2 |
||
| 86. |
WhizKidz Hub - Afterschool, Centru educational Bucuresti
0742602260 Str. Gradinarilor, nr. 14, Sector 3 |
||
| 87. |
Nicoland - Cresa, Gradinita Bucuresti
0766237114 Str. Raspantiilor, Nr. 7, Sector 2 |
||
| 88. |
Cei Trei Muschetari - Before si After School, Bucuresti
0724384924 Str. Vaselor, Nr. 40, Sector 2, Bucuresti |
||
| 89. |
Jolly Pepe - Club educational pentru copii si adulti, Before&After School sector 4
0748080088 Str. Mitropolit Grigore, nr. 4A, parter, sector 4 |
||
| 90. |
Little Princess 1 - Cresa, Gradinita Bucuresti
0756070390; 0744321574; 0744703973 Str. Popa Stoica Farcas, Nr. 64-66, Sector 3, Bucuresti |
||
| 91. |
Asociatia Conil - Gradinita pentru copii cu nevoi speciale Bucuresti
0784412222; 0217466704; 0735847526 Str. Dr. Victor Poloni , nr 14, Sector 5, Bucuresti |
||
| 92. |
Cartea cu Povesti - Gradinita Bucuresti
0766237114 Str. Aurel Vlaicu, nr. 127A, sector 2, |
||
| 93. |
Gradinita Nr. 252 Bucuresti
0212302296 Calea Dorobantilor, nr. 60, sector 1 |
||
| 94. |
Maria Ward - Gradinita sector 4
0722789787 Calea Serban Voda, nr. 223, sector 4 |
||
| 95. |
Tom Sawyer - Gradinita sector 2
0722529958 Str. Bratului, nr. 14, sector 2 |
||
| 96. |
Gradinita nr. 138 sector 2
0212106377 Str. Tunari, nr. 52, sector 2 |
||
| 97. |
Teach Little People - Centru educational, Bucuresti
0727401433 Str. Alexander von Humboldt, nr. 2, sector 3 |
||
| 98. |
Clubul Copiilor Sector 2 - Bucuresti
0212106432 Intr. Cobilitei, Nr. 8, Sector 2, Bucuresti |
||
| 99. |
Scoala Italiana Aldo Moro - Gradinita,scoala, liceu, Bucuresti
0212104684 Intr. Blaj, nr. 1, Sector 1, Bucuresti |
||
| 100. |
Once Upon a Time - Centrul educational adlerian Bucuresti
0770590487 Str. Ciobanasului, Nr. 22A, Sector 2 |
||
| 101. |
Bulgarasi de Aur - Before & After School Bucuresti
0723398829 Str. Cogalnic, nr. 30, sector 3 |
||
| 102. |
Cresa Ciobanasului
0213223085 Str. Ciobanasului, nr. 23, sector 2, |
||
| 103. |
Electromagnetica - Gradinita sector 5
0218915699; 0214232110 Calea Rahovei, nr. 266, sector 5 |
||
| 104. |
Gradinita Nr. 168 sector 5
0213363515 Sos. Viilor, nr. 99, sector 5 |
||
| 105. |
Little Primary Education - Gradinita Bucuresti
0733331333 Intr. Docherilor, Nr. 3, Sector 2 |
||
| 106. |
Montessima Educational - Afterschool zona Iancului, Bucuresti
0771421104 Str. Constantin Zlatescu, nr. 12, sector 2 |
||
| 107. |
Mami si Tati - Gradinita, Before & After School Bucuresti
0721177543; 0762616442 Str. Grigore Alexandrescu, Nr. 58, sector 1, Bucuresti |
||
| 108. |
ERA Kinderland - Gradinita, after school in limba germana sector 3
0728850073; 0213207697 Str. Dristorului, nr. 67, sector 3 |
||
| 109. |
Legolas - Centru Educational sector 3
0787322298; 0787460258; 0787298295 Str. Nucului, nr. 55, sector 3 |
||
| 110. |
Kids Power - Centru educational holistic pentru copii Bucuresti
0741248260 Str. Nucului, nr. 55, sector 3 |
||
| 111. |
International Kindergarten & Nursery - Gradinita Bucuresti
0723248978; 0314327798 Str. Claudiu, Nr. 26, Sector 2, Bucuresti |
||
| 112. |
Mica Printesa - Gradinita, after school Bucuresti
0744321574; 0744703973 Str. Vulcan Judetu, nr. 16, sector 3, |
||
| 113. |
Little Princess 2 - After School / Before School Bucuresti
0744703973; 0744321574; 0756070390 Str. Vulcan Judetu, Nr. 16, Sector 3, Bucuresti |
||
| 114. |
Capsunica - Gradinita sector 3
0765516162 Str. Constantin Nottara, nr. 27, sector 3 |
||
| 115. |
Iuladi Kids - Cresa, gradinita Bucuresti
0769088777 Str. Breaza, Nr. 78, Sector 3 |
||
| 116. |
Gradinita nr. 271 sector 5
0214109024 Bd. Eroii Sanitari, nr. 77, sector 5 |
||
| 117. |
Discover Me- Gradinita Bucuresti
0747774809 Str. Constantin Noica, Nr. 120, sector 6, Bucuresti |
||
| 118. |
Little Oaks Academy - Gradinita sector 3
0766572126; 0766572127 Sos. Mihai Bravu, Sos. Mihai Bravu nr. 286, sector 3 |
||
| 119. |
Gradinita M.Ap.N. nr. 1 sector 6
0213196009; 0766298724 Calea Plevnei, nr. 137B, sector 6 |
||
| 120. |
Little Team - Gradinita / After School Bucuresti
0799774767 Calea 13 Septembrie, nr. 191, sector 5 |
||
| 121. |
Luminita - Gradinita sector 2
0212503180 Sos. Iancului, nr. 4A, sector 2 |
||
| 122. |
Adnan, Gradinita - Bucuresti
0744606010; 0722205243 Intr. Buturugeni, Nr. 7 Sector 5, Bucuresti |
||
| 123. |
Arc-en-Ciel, Gradinita - Bucuresti
0212524665; 0725519386; 0726126808 Str. Ion Heliade Radulescu, Nr. 18, Sector 2, Bucuresti |
||
| 124. |
Kinderträume - Gradinita Bucuresti
0744507988 Splaiul Independentei, Nr. 195, sector 6, Bucuresti |
||
| 125. |
Just4Kids - Scoala Gimnaziala cu nivel gimnazial, primar si prescolar Bucuresti
0739674601 Str. Vantului, Nr. 27, Sector 3, Bucuresti |
||
| 126. |
Little Star - Gradinita, After School sector 3
0745531279; 0724506631 Str. Alexandru Magatti, nr. 13 A , sector 3 |
||
| 127. |
LTN Liceul Teoretic National - Gradinita, Gimnaziu, Liceu - Bucuresti
0720000171; 0732151931 Str. Dr. Iacob Felix, nr. 49, Sector 1, Bucuresti |
||
| 128. |
Gradinita Nr. 239 sector 3
0213245490 Str. Dristorului, nr. 102, sector 3 |
||
| 129. |
Pick Me Academy - Gradinita si scoala, Bucuresti
0726000640 Str. Slt. Pompiliu Manoliu, Nr. 7,Sector 2, Bucuresti |
||
| 130. |
CoolTure MindS - After School Bucuresti
0743359307 Bd. Alexandru Ioan Cuza, nr. 37, Sector 1 |
||
| 131. |
Smart Steps - Gradinita , After School sector 3
0733965133 Str. Dristorului, nr. 91-95, bl. E, Parter, sector 3 |
||
| 132. |
Kids\' World Nursery School - Gradinita Bucuresti
0771242641 Bd. Basarabia, Nr. 2, Sector 3 |
||
| 133. |
Gradinita nr. 205 sector 5
0214233610 Calea Ferentari, nr. 2, sector 5 |
||
| 134. |
KeiKo AfterSchool Bucuresti
0748880866 Str. Magura Vulturului, nr. 6, Sector 2 |
||
| 135. |
Puiutul Pufos - Gradinita Bucuresti
0740140968; 0213440010 Str. Emanoil Marius Buteica, Nr. 30, Sector 3, Bucuresti |
||
| 136. |
Centrul Educational Fecioara Maria - Cresa, Gradinita Bucuresti
0799741474; 0770574645 Str. Eufrosina Popescu, Nr. 30, Sector 3, Bucuresti |
||
| 137. |
Super Start - Gradinita, After School sector 2
0720528738 Bd. Ferdinand I, nr. 156, Sector 2 |
||
| 138. |
Zum Zum - Gradinita Bucuresti
0745685556; 0740704922 Str. Vespasian, Nr. 37, Sector 1, Bucuresti |
||
| 139. |
Clopotel - Gradinita Bucuresti
0212502197 Str. Elev Dridu Georgescu, nr. 2, sector 2 |
||
| 140. |
Top Kids - Gradinita sector 5
0214237723; 0737215703 ; 0764392790 Str. Sergent Gheorghe Donici, Nr. 26-28, Sector 5 |
||
| 141. |
Gradinita nr. 206 - Gradinita cu program prelungit Bucuresti
0212229287 Str. Constantin Disescu, nr. 37, sector 1 |
||
| 142. |
Gradinita Nr. 256 Bucuresti
0212506222 Str. Atanase Ionescu, Nr. 25, Sector 2 |
||
| 143. |
Springfield Education - Gradinita si After School Bucuresti
0734710573; 0721707879 Str. Soltuzului, Nr. 10, Sector 2, Bucuresti |
||
| 144. |
Happy Kids - Gradinita si after school Bucuresti
0770708392 Str. Scoala Floreasca, Nr. 3, Sector 1, Bucuresti |
||
| 145. |
Oskar - Before and After School Piata Victoriei
0730948470 Str. Monetariei, Nr. 14, Sector 1, Bucuresti |
||
| 146. |
Oskar - Before&After School Bucuresti
0734040227; 0730948470 Str. Monetariei, nr. 12, sector 1 |
||
| 147. |
Aristokids, Gradinita & After School - Bucuresti
0722648885 Str. Lebedei, Nr. 25, Sector 1, Bucuresti |
||
| 148. |
Creative Minds Kindergarten - Gradinita Bucuresti
0726152551 Str. Alexandru Deparateanu, nr. 38, sector 1 |
||
| 149. |
Plusica - Gradinita & Afterschool sector 3
0768596856 Str. Drumeagului, nr. 51, sector 3 |
||
| 150. |
Dumbo Kids Academy - Cresa, Gradinita, Before & After School sector 3
0722320023 Intr. Patinoarului, nr. 42A, sector 3 |
||
| 151. |
Gradinita Nr. 248 Bucuresti
0212224120 Str. Artur Vartejeanu, Nr. 15, Sector 1 |
||
| 152. |
Analesia - Gradinita & AfterSchool in limba germana Bucuresti
0741332222; 0741332226 Str. Paris, nr. 57, sector 1 |
||
| 153. |
Piccolo Grande - After School, loc de joaca sector 3
0754200258 Intr. Patinoarului, nr. 52, Sector 3 |
||
| 154. |
Gradinita nr. 54 sector 5
0214231217 Calea Ferentari, nr. 96, sector 5 |
||
| 155. |
Kids First - Gradinita Bucuresti
0748880866; Varnavelena@gmail.com Str. Sica Alexandrescu, nr. 20, Sector 2, |
||
| 156. |
Orhideea Kids - Gradinita & After School Bucuresti
0748595311 Calea Plevnei, Nr. 145B, sector 1, Bucuresti |
||
| 157. |
Land of Kids Afterschool sector 2
0766831831; 0726733314 Str. Constantin Tanase, Nr. 22, Sector 2 |
||
| 158. |
Gradinita Nr. 251 Bucuresti
0212301417 Str. Venezuela, nr. 11, sector 1 |
||
| 159. |
Smiley After School sector 2
0727401829 Bd. Basarabia, nr. 62A, sector 2 |
||
| 160. |
Praslea cel Voinic - Gradinita & After School Bucuresti
0722773103; 0733839824 Str. Competitiei, Nr. 38, Sector 2, Bucuresti |
||
| 161. |
Martisor AfterSchool sector 4
0727017553 Str. Cararuia, nr. 1, sector 4 |
||
| 162. |
Sincron - Gradinita, After School Sector 3
0722243877 Calea Vitan, nr. 206, sector 3 |
||
| 163. |
City Kids - Gradinita si afterschool Bucuresti
0756862825 Str. Ruschita, Nr. 41, sector 2 |
||
| 164. |
Funny Clown, Gradinita & After School - Bucuresti
0740806356 Str. Ruschita, Nr. 41, Sector 2, Bucuresti |
||
| 165. |
Gradinita Nr. 178 Flori de Tei sector 5
0214234065 Str. Iancu Jianu, Nr. 26, Sector 5 |
||
| 166. |
Castelul Fermecat - Gradinita, After School Bucuresti
0745770001; 0752314458; 0765957032 Drumul Murgului, Nr. 32, Sector 3, Bucuresti |
||
| 167. |
Monteclaris - Gradinita, before si afterschool Bucuresti
0724671560; 0784606075 Str. Maria Hagi Moscu, Nr. 29, Sector 1 |
||
| 168. |
Sofia - Gradinita Bucuresti
0721006006; 0212311505 Str. Sofia, Nr. 20, Sector 1 |
||
| 169. |
Gradinita cu program prelungit Nr. 135
0212421805 Str. Masina de Paine, nr. 65, sector 2 |
||
| 170. |
Saga Kid - After School sector 3
0743266500; 0756169135 Str. Campia Libertatii, nr. 44, sector 3, |
||
| 171. |
Kids Palace - Gradinita & After School Bucuresti
0722612031 Str. Obolului, Nr. 10, Sector 4, Bucuresti |
||
| 172. |
Edu & Care - After School, cursuri pentru copii Bucuresti
0721571086 Str. Chopin, nr. 2 B, sector 2 |
||
| 173. |
Steaua Nordului - Before and Afterschool Bucuresti
0745040940 Str. Andrei Muresanu, nr. 27, sector 1 |
||
| 174. |
Domino - Gradinita Bucuresti
0722492047 Str. Constantin Georgian,, nr. 27, sector 2, Bucuresti |
||
| 175. |
Junior School - Gradinita Bucuresti
0751223159 Str. Calimachi, nr. 17, Sector 2, |
||
| 176. |
Castelul Copiilor din Tei, Gradinita - Bucuresti
0212109962; 0764738888; 0739770707 Str. Sfanta Treime, Nr. 28, Sector 2, Bucuresti |
||
| 177. |
Rio - Gradinita & After School Bucuresti
0740025434; 0748633314 Str. Luigi Galvani, Nr. 13A, Sector 2, Bucuresti |
||
| 178. |
Alexandra Kids, Gradinita, After School - Bucuresti
0722151836; 0214206927 Str. Petre Ispirescu, Nr. 69, Sector 5, Bucuresti |
||
| 179. |
Kinderium - Before & After School Bucuresti
0726177868 Drumul Sarii, nr. 4A, sector 6 |
||
| 180. |
Happy Planet Kids - Gradinita Bucuresti
0214106984; 0722319863; 0740843914 Str. Lt. Col. C-tin Marinescu, Nr. 17B, Sector 6, Bucuresti |
||
| 181. |
OLIMPIA KIDS - gradinita particulara, cresa si after school Bucuresti
0731680372 Drumul intre Vii, Nr. 24, Sector 3 |
||
| 182. |
Apostol - After School sector 2
0740951411 Str. Seneslav Voievod, Nr. 55, Sector 2 |
||
| 183. |
Castelul Fermecat Olimpia - Gradinita, scoala primara, Afterschool, Bucuresti
0731680372 Drumul intre Vii, Nr. 24, Sector 3, Bucuresti |
||
| 184. |
Martisor - Gradinita sector 4
0213325936 Str. Daracului, Nr. 11, Sector 4 |
||
| 185. |
Pitiricky - Clubul celor mici - Bucuresti
0724648513 Str. Ialomicioarei, Nr. 13, Sector 1, Bucuresti |
||
| 186. |
Zuppy - Gradinita, After School sector 2
0753915058 Str. Otesani, nr. 69, Sector 2 |
||
| 187. |
Gradinita Floare de colt (nr. 64) sector 3
0213464899 Str. Schitului, nr. 1D, sector 3 |
||
| 188. |
Zoom Kids Academy - Afterschool Sector 4
0756155660 Str. Stejarisului, nr. 13, Sector 4 |
||
| 189. |
Happy Kids Project - After school si before school, Bucuresti
0745152802 Sos. Iancului, Nr. 110, Sector 2, Bucuresti |
||
| 190. |
Betty-Mar House - After / Before School, Bucuresti
0732871827 Str. Otescu Ion Nonna, nr. 23, sector 6 |
||
| 191. |
Centrul Educational Nectarel - Afterschool Bucuresti
0740221854 Str. Baba Novac, nr. 17, sector 3 |
||
| 192. |
Gradinita Nr. 7 Bucuresti
0212421714 Str. Maica Domnului, Nr. 61 - 63, Sector 2 |
||
| 193. |
Veverita Jucausa - Gradinita sector 2
0726224859 Str. Litovoi Voievod, Nr. 38, Sector 2 |
||
| 194. |
Teddy Club - Club educational , After school Bucuresti
0732138368; 0723188995 Str. Duminicii, nr. 16, sector 4 |
||
| 195. |
Micul Lord Gradinita - Bucuresti
0730093603; 0745101507 Str. Lespezi, nr. 4 , sector 5, |
||
| 196. |
Elefantelul curios- Afterschool & more, sector 4
0767332115; 0727222015 Bd. Constantin Brancoveanu, Nr. 7D, sector 4 |
||
| 197. |
Centrul Multifunctional Cresa Dumbrava Minunata sector 4
0733200115; 0372715100; 0372715101 Str. Stoian Militaru, nr. 84, sector 4 |
||
| 198. |
Miro Kids World - Cresa, gradinita Bucuresti
0767331173; 0756199161 Str. Miroslavei, nr. 9, Sector 5 |
||
| 199. |
Ciupercuta - Gradinita sector 4
0213324431 Str. Stoian Militaru, nr. 86-90, sector 4 |
||
| 200. |
Gradinita nr. 72 sector 5
0214233920 Str. Sergent Scarlat, nr. 19, sector 5 |
||
| 201. |
Gradinita din Povesti - Bucuresti
0724987747 Str. Costache Marinescu, Nr. 1A, Sector 1 |
||
| 202. |
Gradinita Nr. 255 sector 3
0213462996; 0213462994 Bd. Energeticienilor, Nr. 3, sector 3 |
||
| 203. |
Lill put - Centru de educatie nonformala pentru prescolari, Bucuresti
0722647423 Str. Sarafinesti, Nr. 29, sector 2 |
||
| 204. |
Marchengarten - Gradinita cu predare bilingva sector 6
0744378796 Str. G-ral Ioan Culcer, nr. 49, sector 6 |
||
| 205. |
Albinuta - Gradinita sector 2
0212303377 Str. Dinu Lipatti, nr. 1, sector 2 |
||
| 206. |
Dandi Kids, Gradinita & After School - Bucuresti
0726758303 Str. Rasovita, Nr. 18, Sector 3, Bucuresti |
||
| 207. |
Casuta cu Pitici Mari si Mici - Gradinita, Afterschool Bucuresti
0722626268 Str. Silvia, nr. 11, Sector 2, Bucuresti |
||
| 208. |
RosaMaria - Gradinita, cresa Bucuresti
0746808080 Str. Silvia, Nr. 18, Sector 2 |
||
| 209. |
Gradinita nr. 262 Alba ca Zapada si Piticii sector 4
0213324435 Str. Crisul Alb, nr. 30, sector 4 |
||
| 210. |
INNA Kids Academy - Before & Afterschool Bucuresti
0723290372 Str. Johann Sebastian Bach, nr. 10, Sector 2 |
||
| 211. |
Hands-On - Centru educational Bucuresti
0725977815 Bd. Iuliu Maniu, nr. 7, Cotroceni Business Center, Corp U, parter, sector 6 |
||
| 212. |
Gradinita nr. 24 sector 3
0213441760 Str. Locotenent Pascu Nicolae, nr. 12, sector 3 |
||
| 213. |
A&M afterschool Bucuresti
0723371319 Bd. Camil Ressu, Nr. 33, bl. N4, sc. 1, ap. 4, int. 4, sector 3, |
||
| 214. |
Gradinita nr. 233 sector 2
0216884518 Str. Antonescu Petre, nr. 20, Sector 2 |
||
| 215. |
Gradinita nr. 3 - sector 3
0213464112 Str. Plt. Nedelcu Ion, Nr. 31, sector 3 |
||
| 216. |
BritAcademy, Gradinita in limba engleza - Bucuresti
0740329105 Str. Olimpiadei, Nr. 36, Sector 2, Bucuresti |
||
| 217. |
Gradinita nr. 188 Castel sector 2
0212504180; 0213179946 Bd. Pierre de Coubertin, nr. 1, sector 2 |
||
| 218. |
Gradinita cu Program Normal si Prelungit nr. 242 sector 5
0214502538 Str. Magurei, nr. 8, sector 5 |
||
| 219. |
Sarida Kids Club - Prescolari, After school, Scoala de vara, Cursuri, Bucuresti
0726528844; 0760132301 Str. Crisul Alb, Nr. 9-13, Sector 4, Bucuresti |
||
| 220. |
Gradinita Floarea Soarelui sector 5
0214202148 Str. M?rgeanului, nr. 81, sector 5 |
||
| 221. |
Club Clever Kids - After School sector 4
0723791058 Str. Preda Buzescu, nr. 12, Sector 4 |
||
| 222. |
Casuta Fermecata - Gradinita sector 5
0214562082; 0214562083 Str. Amurgului, nr. 2, sector 5 |
||
| 223. |
Go Kids Go - Before and After-School Bucuresti
0723076434; 0766480774 Str. Clucerului, nr. 21, sector 1 |
||
| 224. |
Teddybar - Gradinita, Bucuresti
0212224455; 0723048602 Str. Soimarestilor, nr. 29, sector 1, Bucuresti |
||
| 225. |
Gradinita nr. 276 Bucuresti
0212423280 Str. Corabia, nr. 57, sector 2 |
||
| 226. |
Piticul Curajos - Gradinita, After School sector 3
0749607276; 0314373583; 0213240124 Str. Copaceni, Nr. 64, sector 3 |
||
| 227. |
Step Up After School
0723795703; 0723544019 Str. Vultureni, nr. 85, Sector 4 |
||
| 228. |
Cresa Teiul Doamnei Bucuresti
0314104891 Str. Teiul Doamnei, nr. 99, Sector 2 |
||
| 229. |
Smiley Kindergarten, Gradinita & After School - Bucuresti
0314366138; 0722541744 Str. Gabriel Cioran, nr. 6, sector 6, |
||
| 230. |
The Little Artist - Gradinita Bucuresti
0737365283; 0743814767; 0722680765 Str. Ing. Zablovschi, Nr. 7, Sector 1, Bucuresti |
||
| 231. |
Iulia Pantazi - Centrul psihologic pentru copii Bucuresti
0745480458; 0317304741 Str. Cernauti, Nr.1, Sector 2, Bucuresti |
||
| 232. |
Maya si Prietenii - Cresa, Gradinita sector 2
0755359162 Str. Herta, nr. 32A, Sector 2, |
||
| 233. |
Madi AfterSchool sector 2
0757837644 Str. Herta, nr. 32A, Sector 2 |
||
| 234. |
Gradinita Quiz
0751425562 Str. Abrud, nr. 134-136, sector 1 |
||
| 235. |
Sfera Kinderzentrum - Gradinita, Before & After School Bucuresti
0728024897 Calea Grivitei, nr. 194, sector 1 |
||
| 236. |
Gradinita nr. 34 sector 5
0214504937 Str. Lacul Bucura, nr. 26, Sector 5 |
||
| 237. |
Bufnita din Tei - Club de educatie nonformala si activitati recreative
0751020362 Str. Sg. Nitu Vasile, nr. 26, Sector 4 |
||
| 238. |
Dora - gradinita particulara, After School Bucuresti
0740156885; 0744644705 Str. Farului, nr. 3, sector 4, Bucuresti |
||
| 239. |
Luca - Gradinita si Cresa, After school, Scoala primara si gimnaziala, Liceu teoretic, Bucuresti
0721335161; 0744894206 Str. Sanmedru, Nr. 25, Sector 2, Bucuresti |
||
| 240. |
Gradinita nr. 274 sector 6
0213163345 Bd. Iuliu Maniu, nr. 11D, sector 6 |
||
| 241. |
Gargarita - Gradinita sector 4
0744393654 Str. Dumbr?veni, nr. 35, Sector 4, judetul Brasov |
||
| 242. |
Universul Zambetelor - Gradinita si Cresa Bucuresti
0765410512 Str. Lunca Dunarii, nr. 7, sector 3 |
||
| 243. |
Amadeus - Afterschool Bucuresti
0770896313; 0721841416 Str. Amidonul, nr. 2, Sector 2 |
||
| 244. |
Taramul Magic Voi Reusi - After School sector 2
0727540913 Bd. Chisinau, nr. 6-8, sector 2 |
||
| 245. |
Cresa Potcoava (Titan II) sector 3
0213244810; 0213244880 Str. Pictor Gheorghe Tattarescu, nr. 10, sector 3 |
||
| 246. |
Centrul social multifunctional cresa Degetica sector 4
0733200060 Aleea Mirea Mioara Luiza, nr. 1A, sector 4 |
||
| 247. |
Cresa Sinaia sector 2
0212403528 Aleea Sinaia, nr. 4, sector 2 |
||
| 248. |
Gradinita nr. 69 sector 3
0213244141; 0213240000 Bd. Pictor Nicolae Grigorescu, nr. 14, sector 3 |
||
| 249. |
Cami - Gradinita particulara si afterschool Bucuresti
0757402573 Str. Carol Knappe, nr. 45,sector 1, Bucuresti |
||
| 250. |
Cami Gradinita & After School - Bucuresti
0757402573; 0749018642 Str. Carol Knappe, Nr. 45, Sector 1, Bucuresti |
||
| 251. |
Olga Gudynn International School - Gradinita, scoala si liceu, Bucuresti
0734411359; 0212311202 Str. Ancuta Baneasa, Nr. 8, sector 1, Bucuresti |
||
| 252. |
Prichindel, Gradinita & After School - Bucuresti
0216861856; 0745022748 Str. Grigore Voda, Nr. 28, Sector 4, Bucuresti |
||
| 253. |
Gradinita nr. 97 Bucuresti
0212241162 Str. Islaz, nr. 13, Sector 1 |
||
| 254. |
Gradinita Nr. 111 sector 6
0214135161 Str. Sibiu, Nr. 8, Sector 6 |
||
| 255. |
Gradinita Nr. 35 sector 5
0214207995 Str. Crizantemelor, nr. 2, sector 5 |
||
| 256. |
Colt de Rai - Gradinita sector 6
0217965203; 0752645946 Str. Garleni, Nr. 10, Sector 6 |
||
| 257. |
WonderKids - Centru Educational Bucuresti
0724258876 Str. Crizantemelor, Nr. 7 sector 5 |
||
| 258. |
Gradinita nr. 71 sector 3
0213480894 Aleea Fuiorului, nr. 9 , sector 3 |
||
| 259. |
Gradinita nr. 185 sector 5
0214200667; 0214205180 Str. Garoafei, nr. 12, sector 5 |
||
| 260. |
Aron\'s Education Center - Gradinita si After School, Bucuresti
0734709613 Str. Luminoasa, Nr. 8, sector 4, Bucuresti |
||
| 261. |
Gradinita nr. 244 sector 5
0723919980; 0214234008; 0769 444 163 Str. Humulesti, nr. 31, sector 5 |
||
| 262. |
Garmy Kids - Gradinita si After School Bucuresti
0311060294; 0745342225; 0734784673 Sos. Vitan Birzesti, Nr. 7D-7E, sector 4 |
||
| 263. |
Iepurasul Bocanila - Scoala si Gradinita sector 4
0722320773; 0722239508; 0214602246 Str. Iarba Campului, nr. 91, sector 4, judetul Brasov |
||
| 264. |
Ingenius Club - After School Bucuresti
0729164275; 0733975456 Str. Virgil Plesoianu, nr. 108, sector 1 |
||
| 265. |
Corina Club - After School Bucuresti
0744353015; 0766332833 Str. Garleni, Nr. 11A, Sector 6, Bucuresti |
||
| 266. |
Iilo - Gradinita & After School Bucuresti
0720702910 Str. Iarba Campului, Nr. 4, Sector 4, Bucuresti |
||
| 267. |
Gradinita nr. 137 sector 2
0212407581; 0217960289 Str. Plumbuita, nr. 5, sector 2 |
||
| 268. |
B-Happy Afterschool sector 3
0722396590 Intr. Horbotei, nr. 12, bl. 4, parter, sector 3 |
||
| 269. |
Gradinita Happy Junior - Bucuresti
0724229250; 0730309647 Sos. Berceni, Nr. 8, Sector 4, Bucuresti |
||
| 270. |
Good Family - Gradinita Bucuresti
0748224225 Str. Nicolae Filimon, Nr. 73A, sector 6 |
||
| 271. |
Centrul Social Multifunctional Cresa Micii Magicieni sector 4
0371360128 Str. Izvorul Muresului, nr. 4 |
||
| 272. |
Gradinita nr. 225 Veseliei sector 4
0214502917; 0214502915 Str. Izvorul Muresului, nr. 6, sector 4 |
||
| 273. |
Gradinita nr. 53 sector 5
0214232145 Aleea Bacau, nr. 2A, sector 5 |
||
| 274. |
Robotics School - After School, ateliere de robotica Bucuresti
0721861565 Aleea Barajul Cucuteni, nr. 2, Bl M4A, sector 3 |
||
| 275. |
Hänsel und Gretel - Gradinita & After School Bucuresti
0212247704; 0743332447 Str. Mr. Av. Stefan Sanatescu, Nr. 19, sector 1, Bucuresti |
||
| 276. |
Paradisul Verde - Gradinita sector 5
0214232570 Str. Pucheni, nr. 55, sector 5 |
||
| 277. |
Avenor - Gradinita Bucuresti
0737043475 Str. Alexandru Constantinescu, nr. 65, sector 1 |
||
| 278. |
Piticot - Gradinita sector 4
0214503827 Str. Spinis, nr. 1, sector 4 |
||
| 279. |
Gradinita nr. 41 sector 6
0214134988 Str. Constantin Titel Petrescu, nr. 12, sector 6 |
||
| 280. |
Young Academics - AfterSchool Bucuresti
0755095974 Str. Trotusului, nr. 39, sector 1 |
||
| 281. |
Gradinita nr. 245 sector 5
0214237424 Str. Tunsu Petre, nr. 9, sector 5 |
||
| 282. |
Gradinita Nr. 280 sector 2
0212557980; 0212550205 Str. Delfinului, nr. 4, sector 2 |
||
| 283. |
Cresa Sf. Stelian sector 5
0214205630; 0736500544 Str. Leresti, nr. 22, sector 5 |
||
| vezi mai multe | |||
| 1. |
Euromedics Stem Life
0800.800.855 (Apel gratuit); 021 311 55 92 Str. Lipscani, Nr. 90A, et. 3, Sector 3 , |
||
| 2. |
Institutul National de Recuperare, Medicina Fizica si Balneologie
Tel.0311302300 Str. Sf. Dumitru, nr. 2 - ambulatoriu de recuperare clinica I si II, sector 3, |
||
| 3. |
Centrul Medical Proctoline-Bucuresti
0213017686- programari Bd. Dimitrie Cantemir , nr. 1, bl. B2, sc. 3, et. 2, sector 4, |
||
| 4. |
Centrul Medical Psoremiss-Bucuresti
0213017696 Bd. Dimitrie Cantemir, nr. 1, bl. B2, sc. 3, et. 2, sector 4, |
||
| 5. |
Centrul de Diagnostic romano-german Medinst
0319902 Str.Sfanta Vineri, nr. 29, sector 3, |
||
| 6. |
Spitalul Clinic Coltea
Tel. 0213874100; Fax 0213874101 Bd. I.C. Bratianu, nr. 1, sector 3, |
||
| 7. |
Clinica Medicala Sfantul Spiridon Vechi-Bucuresti
0213351378; 0213351379; 0787820066 Piata Natiunilor Unite, nr 5-7, sector 4, Bucuresti |
||
| 8. |
Spitalul Clinic Coltea
Tel. 0213874100; Fax 0213874101 Bd. I.C. Bratianu, nr. 1, sector 3, |
||
| 9. |
Prof. Dr. Dimitrie Gerota, Spitalul de Urgenta MAI - Bucuresti
0212523334 Str. Vasile Vasilievici Stroescu, nr. 29-31, sector 2, |
||
| 10. |
Policlinica Eforie-Bucuresti
Tel. 0213139922 Str. Eforie, nr. 4, sector 5, |
||
| 11. |
Spitalul Prof. Dr. Constantin Angelescu
0213233040; 0213233041 Aleea Cauzasi, nr. 49 - 51 sector 3, |
||
| 12. |
SPITALUL PROF. DR. CONSTANTIN ANGELESCU
0213233040; 0213233041 Aleea Cauzasi, nr. 49-51, sector 3, |
||
| 13. |
Centrul Medical Veridia-Bucuresti
0213029434 Str. Matei Basarab, nr. 45, sector 3, |
||
| 14. |
Clinica Medicala On
.0213017676 Bd. Dimitrie Cantemir nr. 1, bl. B2, sc. 3, et. 2, sector 4, |
||
| 15. |
Podologica - Salon tratament pentru afectiunile picioarelor sector 4
0771458874 Bd. Dimitrie Cantemir, nr. 15, bl.9, sc.6, sector 4, |
||
| 16. |
POLICLINICA CU PLATA NR. 1
Tel. 021.314.81.15; Fax 021.314.81.14 Str. Bati?tei nr. 27, sector 2, |
||
| 17. |
CENTRUL MEDICAL BATISTEI
021.313.34.80; 021.313.14.55; 021.315.46.05 Str. Tudor Arghezi nr. 28, sector 2 , |
||
| 18. |
Standard Med-Bucuresti
0722435435; 0314053950 Bd. Carol, nr. 45, ap.5, parter, sector 2, |
||
| 19. |
RomGerMed - Clinica Medicala Bucuresti
Tel. 0213110075; 0725302475 Calea Plevnei, nr. 137C, sector 6, |
||
| 20. |
Omnia Medical Center - Clinica medicala, Bucuresti
0213230034; 0728841841 Bd. Octavian Goga, Nr. 14, Bl. M61, Parter, Sector 3, Bucuresti |
||
| 21. |
Centrul Medical Dr. Stoia Ion- Bucuresti
0212116848 int.219; 0213175025 Str. Thomas Masaryk , nr. 5, sector 2 , |
||
| 22. |
Cron Phoenix - Centru de Reabilitare Ortopedica si Neurologica pentru copii Bucuresti
0721567186; 0790667941 Piata Pache Protopopescu, nr. 9, sector 2 |
||
| 23. |
Spitalul Clinic de Chirurgie Oro-Maxilo-Faciala -Bucuresti
Tel/Fax. 0213158855; 0213155217 Calea Plevnei, nr. 17-21, sector 1 , |
||
| 24. |
Spitalul Clinic de Chirurgie Oro-Maxilo-Faciala \"Prof. Dr. Dan Theodorescu\"
Tel/Fax. 0213158855; 0213155217 Calea Plevnei, nr. 17-21, sector 1, |
||
| 25. |
Village Medical Clinic - Centru medical Bucuresti
0212323580 Str. Constantin Kiritescu, nr. 27, sector 2, |
||
| 26. |
Policlinica Regina Maria - Enescu
0219268 Str. George Enescu, nr.12, sector 1, |
||
| 27. |
Institutul National de Diabet, Nutritie si Boli Metabolice \"Prof. Dr. N. Paulescu\"
Tel. 0212108499 (centrala); 0212106460 (secretariat); Fax 0212109092 Str. Ion Movila, nr. 5-7, sector 2 , |
||
| 28. |
Institutul National de Diabet, Nutritie si Boli Metabolice \"Prof. Dr. N. Paulescu\"
0212106460 (secretariat); 0212109092 Str. Ion Movila, nr.5-7, sector 2, |
||
| 29. |
Clinica Medicala Data Plus-Bucuresti
0213131491 Str.Cobalcescu Grigore, nr. 35,sector 1, |
||
| 30. |
Spitalul Clinic Dr. I. Cantacuzino
Tel. 0212107100; 0212108499 (diabetologie) Str. Ioan Movila, nr. 5-7, sector 2, Bucuresti |
||
| 31. |
Spitalul Clinic Dr. I. Cantacuzino-Bucuresti
Tel.0212107100; Fax.0212106435 Str. Ion Movila nr. 5-7, sector 2 , |
||
| 32. |
Optim Sano - Centrul Medical Dr. Ion Socoteanu-Bucuresti
0728955844 Str. Salcamilor, Nr. 6A, sector 2, |
||
| 33. |
Spitalul de Urgente Oftalmologice + Ambulatoriu
0213192751; 0213192752 P-ta Lahovari nr. 1, sector 1, |
||
| 34. |
Spitalul de Urgente Oftalmologice + Ambulatoriu
0213192751; 0213192753 P-ta Lahovari, nr. 1, sector 1, |
||
| 35. |
Spitalul Clinic de Ortopedie Traumatologie Foisor-Bucuresti
Tel.0212520057; Fax.0212521387; 0310056786(progamari consultatii) Bd. Ferdinand, nr. 35-37, sector 2 , |
||
| 36. |
Spitalul Clinic de Ortopedie Traumatologie \"Foisor\" + ambulatoriu
Tel. 0310056786; 0212520057; Fax 0212521387 Bd. Ferdinand, nr. 35-37, sector 2, |
||
| 37. |
Centrul Medical Bio Terra Med- Bucuresti
0726243473; 0724262110; 0774022961 Calea Grivitei, nr. 3, Sector 1, |
||
| 38. |
Spitalul de Urgenta Prof. Doctor Dimitrie Gerota
0212523334; Fax 0212522829 Str. Vasile Vasilievici Stroescu, nr. 29-31, sector 2, |
||
| 39. |
Spitalul Clinic de Nefrologie - Dr. Carol Davila
Tel. 0213189184 (centrala) Calea Grivitei, nr. 4, sector 1, |
||
| 40. |
Policlinica pentru copii Regina Maria - Opera
0219268 Str. Costache Negri, nr. 1-5, sector 5, |
||
| 41. |
Bioderm Medical Cente- Bucuresti
Tel. 0722338383 Str. Mihai Eminescu, nr. 42, sector 1, |
||
| 42. |
Donna Medical Center-Bucuresti
0219732 Str. Traian , nr. 234, et.1, sector 2, |
||
| 43. |
Rytmomed - Clinica medicala Bucuresti
0737181511 Str. Popa Tatu, nr. 35, Sector 1 |
||
| 44. |
Vitan Policlinica, Grupare de cabinete medicale - Bucuresti
0727451211; 0213234970; 0213221208 Calea Dudesti, Nr. 104-124, sector 3, Bucuresti |
||
| 45. |
Cabinet Medical Persepolis- Bucuresti
0749065961; 0751011893 Str. Vasile Toneanu , nr. 20, sector 3, |
||
| 46. |
Clinica Life-Med-Bucuresti
0319981 Str. Plugarilor , nr. 18,sector 4, |
||
| 47. |
Societatea Civila Medicala Doctor Popescu Daniel si Asociatii
Tel/Fax 021.336.55.03 Calea Serban Voda, nr. 211, sector 4 , |
||
| 48. |
Clinica Medicala Estet Laser Medical Center
Tel/Fax 0212531797; 0721241772; 0733625687 Str. Calusei nr. 11, sector 2, |
||
| 49. |
PriMed - Clinica Medicala Bucuresti
0219986; 0720034774 Bd. Dinicu Golescu, nr.10, sector 1 |
||
| 50. |
Emergency Medical Care - Servicii medicale de urgenta la domiciliu Bucuresti & Ilfov
0799058058; 0732528136; 0314250213 Calea Vitan, Nr. 109B-109D, Sector 3, Bucuresti |
||
| 51. |
Imuno Medica - Centrul de preventie, diagnostic si tratament Sf. Ioan Botezatorul
0314050350; 0771771333 Str. Virgiliu nr. 81, sector 1 |
||
| 52. |
Professional Klinic, Bucuresti - Tratament si analize
0314250805 ; 0742207755 Str.Agricultori, Nr. 115, bloc 79, Parter, Sector 3, Bucuresti |
||
| 53. |
Clinica Memento Med-Bucuresti
0213260081 Str. Brailita, nr. 1, sector 3, |
||
| 54. |
Ambulatoriul Spitalului Universitar de Urgenta
Tel. 0213180519/29; 0212026147 Splaiul Independentei, nr. 169, sector 5 , |
||
| 55. |
Centrul Medical Apolo- Bucuresti
Tel. 0214101770; 0214101615; 0744377034 Str. Coriolan Caius Marcius, nr. 41 (lang? benzinaria MOL Tudor Vladimirescu), sector 5, |
||
| 56. |
Spitalul Clinic \"Prof. Dr. Theodor Burghele\" + Ambulatoriu
Tel. 0214106910; Fax 0214111055 Sos. Panduri nr. 20, sector 5, |
||
| 57. |
Gral Medical - Centrul Medical, Bucuresti
0213230000; 0724242259 (programari radiologie); Fax 0213230002 Str.Traian Popovici (fosta Unitatii), Nr. 79-91, Sector 3, Bucuresti |
||
| 58. |
RomGerMed - Clinica Medicala Bucuresti
Tel. 0213110075; 0727999602 Calea Plevnei, 137 C, sector 6, |
||
| 59. |
Spitalul Clinic \"Prof. Dr. Theodor Burghele\" + Ambulatoriu
Tel.0214106910; Fax.0214111055 Sos. Panduri, nr. 20, sector 5, |
||
| 60. |
Centru Medical Mediclass - Cotroceni
0214102727; 0214120128; 0214120129 Str. Elefterie, nr. 47-49 (Complex Comercial Cotroceni), sector 5, |
||
| 61. |
Institutul National pentru medicina complementara si alternativa
Tel.0783002934; 0214102419 Sos. Panduri , nr. 22, sector 5, |
||
| 62. |
Spitalul Universitar de Urgenta Bucuresti - SUUB
Tel. 0213180519; Fax 0213180554 Splaiul Independentei, nr. 169, sector 5 , |
||
| 63. |
Spitalul Universitar de Urgenta Bucuresti - SUUB
Tel. 0213180519; 0213180554 Splaiul Independentei nr. 169, sector 5, |
||
| 64. |
Centrul Medical Romedical Int
Tel. 0212100381; 0723288108 Str. Fainari nr. 35, sector 2, |
||
| 65. |
Spitalul Clinic de Urgenta pentru Copii \"Grigore Alexandrescu\"
0213169366:Centrala telefonica; 0213110994:Unitatea Primiri Urgente Bd.Iancu de Hunedoara, nr. 30-32, sector 1, Bucuresti |
||
| 66. |
Centrul Medical Panduri-Bucuresti
0731806118; 0219901 Str. Dr. Ioan Atanasiu, nr. 34, sector 5, |
||
| 67. |
Clinica Medicala Blaj Stefan-Bucuresti
0742010636 Str.Ciprian Porumbescu, nr. 12, sector 1, |
||
| 68. |
Spitalul Clinic de Urgenta pentru Copii \"Grigore Alexandrescu\"
Tel. 0213169366; 0213169366 int. 133/155; UPU.0213110994 Bd. Iancu de Hunedoara, nr. 30-32, sector 1 , |
||
| 69. |
Spitalul Clinic de Urgenta pentru Copii \"Grigore Alexandrescu\"
0213169366:Centrala telefonica; 0213110994 :Unitatea Primiri Urgente Bd. Iancu de Hunedoara, nr. 30-32, sector 1, Bucuresti |
||
| 70. |
SPITALUL SF. STEFAN + ambulatoriu
021.210.39.36 Sos. Stefan cel Mare nr. 11, sector 2, |
||
| 71. |
SPITALUL SF. STEFAN + ambulatoriu
0212103936 Sos. Stefan cel Mare, nr. 11, sector 2, |
||
| 72. |
Spitalul de Urgenta Floreasca
Tel. 0215992300; 0215992308; Fax.0215992257 Calea Floreasca nr. 8, sector 1, |
||
| 73. |
Spitalul de Urgenta Floreasca + ambulatoriu-Bucuresti
Tel.021.5992300; Fax.021.5992257 Calea Floreasca, nr. 8, sector 1, |
||
| 74. |
Ambulatoriul Spitalului Clinic Colentina
0213167320 ; 0213173245 / interior 5732; Fax: 0213161952 Sos.Stefan cel Mare, nr. 19-21, sector 2, Bucuresti |
||
| 75. |
Euroclinic
0219268; 0219208 Calea Floreasca, 14 A, Sector 1, Bucuresti |
||
| 76. |
Spitalul Clinic Colentina + Ambulatoriu
0213167320; 0213173245 ; Fax: 0213161952 Sos. Stefan cel Mare, nr. 19-21, sector 2 , |
||
| 77. |
Spitalul Clinic de Nefrologie - Dr. Carol Davila
Tel. 0213189184 (centrala); Fax 0213189184 Calea Grivitei nr. 4, sector 1, |
||
| 78. |
Spitalul Clinic de Boli Infectioase si Tropicale Dr. Victor Babes
0213172727 / .28 / .29/ .30 (Centrala); 0213172721 Sos. Mihai Bravu, nr. 281, sector 3, |
||
| 79. |
Dr. Carol Davila, Spitalul Universitar de Urgenta Militar Central Bucuresti + ambulatoriu
Tel. 0213193052/60; 0213193030 Str. Calea Plevnei , nr. 134, sector 1, |
||
| 80. |
Ambulatoriul Spitalului Euroclinic
0219208; Call Center:0219268 Calea Floreasca, nr. 14A, sector 1, Bucuresti |
||
| 81. |
Spitalul Clinic Colentina + Ambulatoriu
Tel. 0213167320; 0213173245; 0213165895 Sos. Stefan cel Mare, nr. 19-21, sector 2, |
||
| 82. |
Spitalul Euroclinic + ambulatoriu
0219208 Calea Floreasca, nr. 14 A, sector 1, Bucuresti |
||
| 83. |
Spitalul Universitar de Urgenta Militar Central Dr. Carol Davila
Tel. 0213193052/60; Fax.0213193030 Str. Calea Plevnei, nr. 134, sector 1, Bucuresti |
||
| 84. |
Policlinica Baba Novac
0770218336; 0748175572 Str. Baba Novac, nr. 2, sector 3 |
||
| 85. |
Marius Nasta, Institutul de Pneumoftiziologie Bucuresti
0213356910; Fax 0213373801 Sos.Viilor , nr. 90, sector 5 , |
||
| 86. |
Marius Nasta, Institutul de Pneumoftiziologie + Ambulatoriu Bucuresti
0213356910; 0213373801 Sos.Viilor nr. 90, sector 5 , |
||
| 87. |
Centrul Medical Sanador-Bucuresti
Tel. 0219699 |
||
| 88. |
Centrul Medical Sana-Bucuresti
0212128222 Str. Dr. Sergiu Dumitru, nr. 3, sector 1, |
||
| 89. |
Dr. Victor Babes, Spitalul Clinic de Boli Infectioase si Tropicale Bucuresti
0213172727 / .28 / .29/ .30 (Centrala); Fax 021 3172721 Sos. Mihai Bravu, nr. 281, sector 3 , |
||
| 90. |
Spitalul Clinic CF Witting + ambulatoriu
Tel. 0213129530; 0213129531; 0213176280 Calea Plevnei nr. 142-144, sector 6, |
||
| 91. |
Centrul Medical M Hospital-Bucuresti
0219136; 0744812330; 0213162049 Str.Witting, nr. 10-12, sector 1, Bucurestu |
||
| 92. |
Policlinica Iancului-Bucuresti
Tel.0314255277 (laborator); 0212508490 (O.R.L.); 0212503333 Sos. Iancului , nr. 3, sector 2 , |
||
| 93. |
Centrul Medical Dr. Victor Babes-Bucuresti
0213179503; Fax: 0213179502 Sos. Mihai Bravu nr. 281, sector 3 , |
||
| 94. |
Centrul Medical M Hospital-Bucuresti
Tel.0219136 Str. Witing, nr. 10-12, sector 1 , |
||
| 95. |
Clinica de Excelenta in Patologia Somnului Somnolog-Bucuresti
0213118822; 0784442277 Str.Dr.Leonte Anastasievici, nr.11, sector 5, |
||
| 96. |
Centrul Medical Rom Med 2000
0726366370; 0213270441; Tel/Fax 0213206087 Intr. Baba Novac, nr. 4 A, Sector 3, |
||
| 97. |
LookClinic, Bucuresti - Centre de diagnosticare,preventie si implant de par
0213203477 Calea Dorobantilor, nr.188-190, sector 1, |
||
| 98. |
Scanmed - Clinica Medicala Bucuresti
0219215; 0317100141; 0729202202 Sos. Panduri, nr. 71, Parter, Sector 5 |
||
| 99. |
Institutul National de Boli Infectioase Prof. Dr. Matei Bals
Tel.0212010980; 0213186091 Str. Dr. Calistrat Grozovici, nr. 1, sector 2, |
||
| 100. |
Centrul Medical Hiperdia-Bucuresti
0219338; Fax 0212507320 Str.Ritmului, nr. 24, sector 2, Bucuresti |
||
| 101. |
Centrul Medical Endocenter-Bucuresti
Tel.0764671233; Fax 0213267660 Str. Arh. G. Sterian, nr. 8, sector 2, |
||
| 102. |
Centrul Medical de Diagnostic, Tratament Ambulator si Medicina Preventiva
0212300402; 0212302980; 0212305923 Str. Washington, nr. 8-10, sector 1, |
||
| 103. |
Centru Medical Stb-Bucuresti
0213183430 (centrala); Str. Dr. Grozovici, nr. 6, sector 2 , |
||
| 104. |
Institutul National de Boli Infectioase Prof. Dr. Matei Bals
0212010980 (centrala); 0213186090 Str. Dr. Grozovici, Nr. 1, sector 2, |
||
| 105. |
Centrul Medical Prain
0212113430; 0212108476; 0723237430 Calea Dorobantilor, nr. 32A,7,ET 1, |
||
| 106. |
Spitalul clinic de copii Dr. Victor Gomoiu
0314136700; 0314136701 Bd. Basarabia nr. 21, sector 2, |
||
| 107. |
Dr. V. Gomoiu, Spitalul de Copii - Ambulatoriul de specialitate Bucuresti
0314136700; 0314136701; 0314136706 Bd. Basarabia, nr. 21, sector 2, |
||
| 108. |
Policlinica Regina Maria - Cotroceni
0219268 Sos. Cotroceni, nr. 20, sector 6, |
||
| 109. |
Centrul Medical Amicus Med
Tel. 0766424841; Tel/Fax 0212508585 Sos. Iancului nr. 17, bl. 106C, sc. 1, ap. 4, sector 2, |
||
| 110. |
POLICLINICA MASINA DE PAINE
Tel.021. 242.07.82 ; 021.242.00.96 (oftalmologie); 021.242.67.04 (neuropsihiatrie) Str. Masina de Paine nr. 47, sector 2 , |
||
| 111. |
Centrul Medical Ioana-Bucuresti
0212233810; 0786486156 Str. Alexandru Ioan Cuza, nr. 81,, et. 1,sector 1, Bucuresti |
||
| 112. |
Ioana Medical Center
0212233810; 0786486156 Bd. Alexandru Ioan Cuza, nr 81, et 1, sector 1 |
||
| 113. |
Centrul de Transfuzie Sanguina Bucuresti
Tel. 0314053660; 0314053661; 0314053662 Str. Constantin Caracas nr. 2-8, sector 1, |
||
| 114. |
Policlinica Rahova-Bucuresti
0214232080; 0214232081; 0214232082 Str.Malcoci., nr. 4, sector 5 , Bucuresti |
||
| 115. |
Clinica Medicala Elite-Bucuresti
Tel. 0720260024; 0212339776 Str. Tudor Stefan, nr. 42-44, sector 1, |
||
| 116. |
Medisan Family Clinic - Clinica medicala Bucuresti
0217955980 Str. Dr. Calin Ottoi, nr. 20-22, sector 2 |
||
| 117. |
Policlinica Regina Maria Sun Plaza
0219268 Calea Vacaresti, nr.391, sector 4, mall Sun Plaza, etaj 2, intrarea prin mall, |
||
| 118. |
Clinica Regina Maria - Perla-Bucuresti
0219268 Calea Dorobanti, nr. 126-130, sector 1, |
||
| 119. |
Spitalul Clinic Sfanta Maria + ambulatoriu-Bucuresti
Tel. 0212223550; 0212223553 Bd. Ion Mihalache nr. 37-39, sector 1, |
||
| 120. |
Centrul Medical Focus
0753035038 Str. Dinicu Golescu, nr. 23-25 , sector 1, |
||
| 121. |
Clinica Sanamed-Bucuresti
0219442 Calea Plevnei, Nr. 159,corpul B ,Sector 6, |
||
| 122. |
Centrul Medical Focus
Tel. 0317111515; 0733072910 Bd. Ferdinand nr. 141, sector 2, |
||
| 123. |
Spitalul Clinic Sfanta Maria + ambulatoriu
Tel. 0212223553; 0212223550 Bd. Ion Mihalache, nr. 37-39, sector 1, |
||
| 124. |
Institutul National de Endocrinologie C. I. Parhon
Tel. 0213172041; 0213172042; Fax 0213170607 Bd. Aviatorilor nr. 34-36, sector 1 , |
||
| 125. |
Institutul National de Endocrinologie C. I. Parhon
Tel. 0213172041; 0213172042; Fax 0213170607 Bd. Aviatorilor, nr. 34-36, sector 1 , |
||
| 126. |
Institutul National de Medicina Sportiva
0213184704 ; 0213184705 ; 0213184706 Bd. Basarabia, nr. 37-39, sector 2, Bucuresti |
||
| 127. |
Clinica Psiho-Armonie-Bucuresti
0730028680; 0311063523 Str. N. Constantinescu, nr. 11, bl.11, sc.1, parter, ap.2, interfon 02,sector 1, |
||
| 128. |
Prof.Dr. Agrippa Ionescu, Spitalul Clinic de Urgenta Bucuresti
0377720000; Fax 0377726169 Str. Arh. Ion Mincu , nr. 7, sector 1, |
||
| 129. |
Clinica Nova ORL - Dr. Voda Ioana Alexandra-Bucuresti
0213254422; 0799848484 Str. Pictor Gh. Tattarascu , nr. 2, subsol Policlinica Globului, in spatele cinematografului Gloria, Baba Novac, sector 3, |
||
| 130. |
Clinica Medicover-Bucuresti
0219896 Str. Sergent Constantin Ghercu,, nr. 1A, sector 1, |
||
| 131. |
Medicine Park International by Tuncay Öztürk - Centru de kinetoterapie si recuperare
0727464464 Str. Grigore Mora, nr. 19, Sector 1 |
||
| 132. |
Alfred Rusescu, Institutul pentru ocrotirea mamei si copilului (I.O.M.C.) Bucuresti
Tel.0219365 Bd. Lacul Tei, nr. 120, sector 2 , |
||
| 133. |
Prof. Dr. Panait Sirbu, Spitalul Clinic de Obstetrica-Ginecologie Bucuresti
0213161281; 0213161283 Calea Giulesti, nr. 5, sector 6 , |
||
| 134. |
Centrul Medical Cutera Medical Center-Bucuresti
Tel. 0746141620 Str. Giacomo Puccini , nr. 8 A, sector 1, |
||
| 135. |
Cord Blood Center-Bucuresti
0739853208 Str. Ramuri Tei, nr. 20, sector 2, |
||
| 136. |
Institutul national pentru sanatatea mamei si copilului Alfred Rusescu
Tel.0219365 Bd. Lacul Tei, nr. 120, sector 2, |
||
| 137. |
Clinica Lil Med-Bucuresti
0214206055; Fax:0214212231 Str. Suzana , nr. 7, corp 1,sector 5, |
||
| 138. |
Prof. Dr. Panait Sirbu, Spitalul Clinic de Obstetrica-Ginecologie Bucuresti
0213161281; 0213161283; 0213161287 Calea Giulesti, nr. 5, sector 6, bucuresti |
||
| 139. |
Spitalul Euroclinic
Tel. 0219268; 0219208 Calea Floreasca nr. 14 A, sector 1, |
||
| 140. |
Cabinet Medical Alfa
Tel.0319495 Sos. Oltenitei, nr. 220, bl. 8, sc. 2, ap. 58, sector 4, |
||
| 141. |
Clinica Medicala Provita Diagnostic si Tratament-Bucuresti
Tel. 0219432 Str.Alexandrina, nr. 20 , sector 1, |
||
| 142. |
Clinica Medicala Alco San
021.211.41.12; 0755.050.055; Fax 021.211.41.13 Str. Barbu Vacarescu, nr. 67, sector 2, |
||
| 143. |
Spitalul Clinic Judetean de Urgenta Ilfov
Tel.0213243312; 0213241161; Fax 0213243296 Bd. Basarabia nr. 49-51, sector 2, |
||
| 144. |
Spitalul Clinic Judetean de Urgenta Ilfov + ambulatoriu-Bucuresti
Tel.021.3243312; 0213241161; Fax .0213243296 Bd. Basarabia nr. 49-51, sector 2 , |
||
| 145. |
Centrul medical Ghencea Medical Center- Bucuresti
0219838; 0752493636 ; 0756045204 Bd. Ghencea , Nr. 43 B, sector 6, Bucuresti |
||
| 146. |
Cabinet Medical dr. Jovin
Tel. 0746418043; Tel/Fax 0212312116 Str. Wolfgang Amadeus Mozart nr. 31, sector 2, |
||
| 147. |
Spitalul Clinic de Urgenta pentru Copii - M.S. Curie (Budimex) + ambulatoriu
0214603026; 0214601035 (Primiri Urgente); 0214604260 (Ambulatoriul) Bd. Constantin Brancoveanu, Nr. 20, Sector 4, Bucuresti |
||
| 148. |
Doris - centru de testare COVID 19 Bucuresti
0732684319 Bd. Iuliu Maniu, nr. 11, sector 6, |
||
| 149. |
Spitalul Clinic de Urgenta pentru Copii M.S. Curie + ambulatoriu
Tel. 0214604260; 0214603026 Bd. Constantin Brancoveanu, nr. 20, sector 4, |
||
| 150. |
Hipocrat 2000-clinica medicala-Bucuresti
0219605 Bd. Chisinau, nr. 16, sector 2, |
||
| 151. |
Policlinica Alfa Medical
0214604144; 0319495 Izvorul Rece, Nr. 18A, Sector 4, Bucuresti |
||
| 152. |
Centrul medical PoeMedica Bucuresti
0214139387; 0217461632; 0757109599 Bd. 1 Mai, nr. 24, sector 6, |
||
| 153. |
Clinica Medicala Medlife-Bucuresti
0219646; 0742299843 Str.Liviu Rebreanu, nr. 8,sector 3, |
||
| 154. |
Spitalul Universitar de Urgenta Elias
0213161600; Fax 0213161602 Bd.Marasti, nr. 17, sector 1, |
||
| 155. |
Dr. V. Gomoiu, Centrul Medical Bucuresti
0314136700; 0314136701 Bd. Basarabia nr. 21, sector 2, |
||
| 156. |
Spitalul Universitar de Urgenta Elias
0213161600; Fax 0213161602; 0213112444 Bd. Marasti nr. 17, sector 1, |
||
| 157. |
Centrul Medical Nicomed-Bucuresti
0216372458; 0731338524 Calea Crangasi, nr. 23, ap.1, sector 6, |
||
| 158. |
Centrul Medical Nicomed
0216372458; 0731338524 Calea Crangasi nr. 23, bl. 13, sc. 2, ap. 1, sector 6, |
||
| 159. |
Centrul Medical Hiperdia
0213021160; Tel/Fax: 0213340030 Sos. Berceni, Nr. 10-12, sector 4 (incinta Spitalului de Urgenta Bagdasar Arseni), Bucuresti |
||
| vezi mai multe | |||
| 1. |
Laude-Reut, Complex Educational Bucuresti
0314382046; 0318055772 Str. Clucerul Udricani, Nr. 12, Sector 3, Bucuresti |
||
| 2. |
AWEsome Primary School - Scoala clasele primare Bucuresti
0750460737 Str. Ienachita Vacarescu, nr. 22B, sector 4 |
||
| 3. |
Kretzulescu Nicolae, Scoala Superioara Comerciala - Bucuresti
0213139082 Bd. Hriso Botev, Nr. 17, Sector 3, Bucuresti |
||
| 4. |
Ion Creanga Colegiu National - Bucuresti
0213362695 Str. Cuza Voda, Nr. 51, sector 4, Bucuresti |
||
| 5. |
Barbu Delavrancea, Scoala Gimnaziala Nr.73 - Bucuresti
0213237390 Str. Matei Basarab, Nr. 28-30, Sector 3, Bucuresti |
||
| 6. |
Scoala Gimnaziala Nr. 79 - Bucuresti
0314257884 Str. Cuza Voda, Nr. 51, Sector 4, Bucuresti |
||
| 7. |
Seminarul Teologic Ortodox Bucuresti
0213305754; 0731205629; 0213305754 Str. Radu Voda, Nr. 24 A, Sector 4, Bucuresti |
||
| 8. |
Matei Basarab, Colegiul National - Bucuresti
0213216640 Str. Matei Basarab, Nr. 32, Sector 3, Bucuresti |
||
| 9. |
Mihai Ionescu, Scoala Primara, Gimnaziu, Liceu - Bucuresti
0213235495 Str. Cauzasi, Nr. 43, Sector 3, Bucuresti |
||
| 10. |
Mihai Ionescu, Gradinita, Gimnaziu si Liceu - Bucuresti
0213235495; 0314054929 Cauzasi, Nr. 43, Sector 3 , Bucuresti |
||
| 11. |
Scoala Gimnaziala Ienachita Vacarescu, Bucuresti
0213355705 Calea Serban Voda, Nr. 62-64, sector 4, Bucuresti |
||
| 12. |
Colegiul National de Arte Dinu Lipatti - Bucuresti
0213363588 Str. Principatele Unite, Nr. 63, Sector 4, Bucuresti |
||
| 13. |
Floria Capsali, Liceul de Coregrafie - Bucuresti
0213363792 Str. Capitan Preotescu, Nr. 9, Sector 4, Bucuresti |
||
| 14. |
Spiru Haret, Colegiu National - Bucuresti
0213136462 Str. Italiana, Nr. 17, Sector 2, Bucuresti |
||
| 15. |
Scoala Gimnaziala Nr. 71 - Bucuresti
0213141395; 0213141391 Calea Mosilor, Nr. 148, Sector 2, Bucuresti |
||
| 16. |
Hermes, Colegiul Economic - Bucuresti
0213147645 Calea Mosilor, Nr. 152, Sector 2, Bucuresti |
||
| 17. |
Scoala de Arta Bucuresti
0213306700 Str. Cuza Voda, nr. 100, |
||
| 18. |
FEG, Scoala Postliceala in domeniului medical - Bucuresti
0213111054; 0314050362; 0788424314 Walter Maracineanu, Nr. 1-3, Intrarea 2, Etaj. 2,, Bucuresti |
||
| 19. |
Gheorghe Lazar, Colegiu National - Bucuresti
0213134756 Bd. Regina Elisabeta, Nr. 48, Sector 5, Bucuresti |
||
| 20. |
Tudor Arghezi, Scoala Gimnaziala Nr. 19 - Bucuresti
0213169187 Str. Tudor Arghezi, Nr. 46-50, Sector 2, Bucuresti |
||
| 21. |
Montessano - Scoala primara si gradinita, Bucuresti
0724924070; 0724919711 Str. Labirint, nr. 97-99, sector 3 |
||
| 22. |
Penticostal Emanuel, Liceul Teologic - Bucuresti
0213311669 Str. Cuza Voda, Nr. 116, Sector 4, Bucuresti |
||
| 23. |
Kids Kingdom - Before & After School Bucuresti
0799199627 Intrarea Traian Demetrescu, Nr. 8, sector 3 |
||
| 24. |
Scoala Gimnaziala Nr. 81 - Bucuresti
0213263220 Str. Nerva Traian, Nr. 33, Sector 3, Bucuresti |
||
| 25. |
Vasile Alecsandri, Scoala Gimnaziala (fosta Nr. 118) - Bucuresti
0213138287 Str. Stirbei Voda, Nr. 32-34, Sector 1, Bucuresti |
||
| 26. |
Mirunette Education, Consiliere si Programe Educationale - Bucuresti
0212101602 Valeriu Braniste, Nr. 37-39, Etaj 1, Ap. 3, Cam. 3, Sector 3, Bucuresti |
||
| 27. |
Gheorghe Sincai, Colegiul National - Bucuresti
0213369004; 0213361455 Calea Serban Voda, Nr. 167, Sector 4, Bucuresti |
||
| 28. |
Colegiul National - Scoala Centrala - Bucuresti
0212118484; 0787288528 Str. Icoanei, Nr. 3-5, Sector 2, Bucuresti |
||
| 29. |
Sf. Sava, Colegiul National - Bucuresti
0213149294; 0213126821 Str. G-ral Berthelot, Nr. 23, Sector 1, Bucuresti |
||
| 30. |
Scoala Gimnaziala nr. 5 - Bucuresti
0213169918 Calea Victoriei, Nr. 114, Sector 1, Bucuresti |
||
| 31. |
A.D. Xenopol, Colegiul Economic - Bucuresti
0213205719 Str. Traian, Nr. 165, Sector 2, Bucuresti |
||
| 32. |
George Cosbuc, Colegiul National Bilingv - Bucuresti
0212528080 Str. Olari, Nr. 29-31, Sector 2, Bucuresti |
||
| 33. |
Miguel de Cervantes, Liceul Bilingv - Bucuresti
0213149311 Calea Plevnei, Nr. 38-40, Sector 1, Bucuresti |
||
| 34. |
Sfantul Silvestru, Scoala Gimnaziala Nr. 23 - Bucuresti
0212102045 Str. Oltarului, Nr. 11, Sector 2, Bucuresti |
||
| 35. |
Monterra - Scoala primara Bucuresti
0743119481 Str. Vasile Lascar, nr. 87, sector 2 |
||
| 36. |
Victoria, Liceu Teoretic - Bucuresti
0314250543; 0759478014 Str. Turturelelor, nr. 11A, sector 3, Bucuresti |
||
| 37. |
Scoala Gimnaziala Nr. 128 - Bucuresti
0214102219 Str. Ion Creanga, Nr. 6, Sector 5, Bucuresti |
||
| 38. |
Scoala Gimnaziala Nr. 97 - Bucuresti
0213302545 Str. Viorele, Nr. 7, Sector 4, Bucuresti |
||
| 39. |
Anastasia Popescu, Liceu Pedagogic Ortodox - Bucuresti
0212524665; 0725519386; 0722805777 Popa Nan, 47 B, Sector 2, Bucuresti |
||
| 40. |
Virgil Madgearu, Colegiul Economic - Bucuresti
0212117256 Bd. Dacia, Nr. 34, Sector 1, Bucuresti |
||
| 41. |
Scoala Gimnaziala Iancului Nr. 52
0212522260 Bd. Pache Protopopescu, Nr. 50, Sector 2, Bucuresti |
||
| 42. |
Cantemir Voda, Colegiul National - Bucuresti
0212106935 Str. Viitorului, Nr. 60, Sector 2, Bucuresti |
||
| 43. |
Mihai Eminescu, Colegiul National - Bucuresti
0213304001 Str. V.V. Stanciu, Nr. 6 , Sector 4, Bucuresti |
||
| 44. |
Mihai Viteazu, Colegiul National - Bucuresti
0212525700; 0212525871 Bd. Pache Protopopescu, Nr. 62, Sector 2, Bucuresti |
||
| 45. |
EFI Bucarest - Scoala Franceza Internationala din Bucuresti
0749098867 Bulevardul Dacia, Nr. 12, Sector 1 |
||
| 46. |
Colegiul Tehnic Petru Rares - Bucuresti
0213304001 Str. V. V. Stanciu, nr. 6, sector 4 |
||
| 47. |
Institutul de matematica Simion Stoilow
0213196506; 0213117780; Fax: 0213196505 Calea Grivitei, Nr. 21, Sector 1, Bucuresti |
||
| 48. |
Sweet Babies - Cresa, gradinita, after school, Bucuresti
0785810011 Strada Teleajen, 26B, sector 2 |
||
| 49. |
Scoala Gimnaziala Nr. 95 - Bucuresti
0770503408; 0213235185 Str. Foisorului, Nr. 111-113, Sector 3, Bucuresti |
||
| 50. |
Scoala Ioanid, Gradinita, Gimnaziu, Liceu - Bucuresti
0758054401 Str. Nicolae Iorga, nr. 21, Sector 1, Bucuresti |
||
| 51. |
Elena Vacarescu, Scoala Gimnaziala - Bucuresti
0213163630 Str. Stanislav Cihoschi, nr. 15, sector 1, Bucuresti |
||
| 52. |
Viilor, Colegiul Economic - Bucuresti
0213160973; 0213160966 Sos. Viilor, Nr. 38, Sector 5, Bucuresti |
||
| 53. |
Fridolin, scoala primara si gimnaziala germana - Bucuresti
0723584872 (Adina Stoenescu); 0722502522 (Christian Comsa) Fagaras, Nr. 9-13, Sector 1, Bucuresti |
||
| 54. |
Goethe, Colegiul German - Bucuresti
0212113425 Str. Stanislav Cihoschi, Nr. 17, Sector 1, Bucuresti |
||
| 55. |
Scoala Gimnaziala Nr. 150 - Bucuresti
0214108408 Bd. Eroii Sanitari, Nr. 29-31, Sector 5, Bucuresti |
||
| 56. |
Phoenix, Liceu Teoretic - Bucuresti
0214341364; 0770911516 Virgiliu, Nr. 40, Sector 1, Bucuresti |
||
| 57. |
Serban, Scoala de Meserii - Bucuresti
0722302252; 0212520382 Intrarea Baritonului, Nr. 9 (prin Str. Matei Voievod Nr. 81-83), Sector 2, Bucuresti |
||
| 58. |
Ady Endre, Liceu Teoretic - Bucuresti
0212520192 Bd. Ferdinand I, Nr. 89, Sector 2, Bucuresti |
||
| 59. |
Uruguay, Scoala Gimnaziala - Bucuresti
0216370361 Str. Virgiliu, Nr. 40, Sector 1, Bucuresti |
||
| 60. |
George Enescu, Colegiu National de Muzica - Bucuresti
0760665312; 0213108871 Str. General Gheorghe Manu, Nr. 30, Sector 1, Bucuresti |
||
| 61. |
Scoala Gimnaziala Nr. 24 - Bucuresti
0212107185 Str. Tunari, Nr. 52, Sector 2, Bucuresti |
||
| 62. |
Pick Me Academy - Scoala Primara Bucuresti
0726000640; 0722391000 Strada Agricultori, Nr. 79, Sector 2, Scoala Primara |
||
| 63. |
Maica Domnului, Scoala Gimnaziala Nr. 50 - Bucuresti
0212520310 Str. Ion Maiorescu, Nr. 32, Sector 2, Bucuresti |
||
| 64. |
I.N.Socolescu, Colegiul Tehnic de Arhitectura si Lucrari Publice - Bucuresti
0213108958 Occidentului, Nr. 12, Sector 1, Bucuresti |
||
| 65. |
Iulia Hasdeu, Colegiu National - Bucuresti
0212524508 Bd. Ferdinand, Nr. 91, Sector 2, Bucuresti |
||
| 66. |
Carol Davila, Scoala Sanitara Postliceala - Bucuresti
0216107068 Str. Agricultori, nr. 35, 37-39 (cladirea Codecs), sector 2, |
||
| 67. |
International British School - Bucuresti
0212531698; 0745340841 Str. Agricultori, Nr. 21-25, Sector 2, Bucuresti |
||
| 68. |
Scoala Gimnaziala Nr. 56 - Bucuresti
0212524125; 0733087815 Bd. Pache Protopopescu, Nr. 109A, Sector 2, Bucuresti |
||
| 69. |
Aldo Moro, Scoala Italiana - Bucuresti
0212104684 Intr. Blaj, nr. 1, Sector 1, Bucuresti |
||
| 70. |
Liceul Teoretic National
0720000171 Str. Buzesti, Nr. 14-18; Sector 1, Bucuresti |
||
| 71. |
Scoala Gimnaziala Nr. 85
0212524520 Str. Dr. Constantin Zlatescu, Nr. 7A, sector 2, Bucuresti |
||
| 72. |
Smart Koala Kids Club
0771638419; 0771638425 Calea 13 Septembrie, Nr.126A, bl.P43, sc.1, parter, ap. 2, sector 5, Bucuresti |
||
| 73. |
Magia Copilariei - After-school Bucuresti
0761912892 Strada Nucului, Nr. 55, Sector 3 |
||
| 74. |
Grigore Chercez, Colegiul Tehnologic - Bucuresti
0213365890 Calea Serban Voda, Nr. 280, Sector 5, Bucuresti |
||
| 75. |
Scoala Gimnaziala Nr. 1 - Sfintii Voievozi
0213127572; 0213164206; 0213179916 Str. Atelierului, Nr. 25, Sector 1, Bucuresti |
||
| 76. |
Colegiul Tehnic de Industrie Alimentara Dumitru Motoc - Bucuresti
0215552876 Str. Spatarul Preda, Nr. 16, sector 5 |
||
| 77. |
Cuib - After school, Bucuresti
0751088396 Str. Fainari, Nr. 45A, sector 2 |
||
| 78. |
Cezar Bolliac, Scoala Gimnaziala Nr. 70 - Bucuresti
0314040172 Intr. Tiglina, Nr. 37, Sector 3, Bucuresti |
||
| 79. |
Alexandra Kids, Gradinita, After School - Bucuresti
0788461573; 0214206927 Calea Rahovei, Nr. 266-268, Sector 5, Bucuresti |
||
| 80. |
Scoala Gimnaziala Nr. 80 - Bucuresti
0213214256 Calea Dudesti, Nr. 191, Sector 3, Bucuresti |
||
| 81. |
Scoala Gimnaziala Nr. 307 - Bucuresti
0212100012 Str. Luncsoara, Nr. 3, Sector 2, Bucuresti |
||
| 82. |
Liceul Teoretic Hyperion - Bucuresti
0311032803 Sos. Mihai Bravu, nr. 288C, sector 2 |
||
| 83. |
Scoala Gimnaziala Nr. 115
0213163793; 0786401588 Calea 13 Septembrie, Nr. 177, Sector 5, Bucuresti |
||
| 84. |
Scoala Generala nr. 84 Nicolae Balcescu - Bucuresti
0213216391 Calea Vitan, Nr. 135, sector 3 |
||
| 85. |
I.G. Duca, Scoala Gimnaziala 146 - Bucuresti
0214100881 Sos. Panduri, Nr. 42, Sector 5, Bucuresti |
||
| 86. |
Colegiul Tehnic Mihai Bravu - Bucuresti
0213217699 Sos. Mihai Bravu, Nr. 428, Sector 3 |
||
| 87. |
Scoala Gimnaziala Luceafarul - Bucuresti
0214230480 Str. Doina, Nr. 1, sector 5 |
||
| 88. |
Emil Racovita, Colegiul National - Bucuresti
0213217092; Fax 0213217092 Sos. Mihai Bravu , nr. 169, sector 2, |
||
| 89. |
Scoala Gimnaziala de Arte nr. 2 - Bucuresti
0212525703 Bd. Ferdinand I, Nr. 128, Sectorul 2 |
||
| 90. |
Scoala 114 Principesa Margareta - Bucuresti
0735679210/ 0213351405 Str. Pandele Rosca, Nr. 2-4, sector 5 |
||
| 91. |
Nicolae Tonitza, Liceu de Arte Plastice - Bucuresti
0212302793 Bd. Iancu de Hunedoara, Nr. 27, Sector 1, Bucuresti |
||
| 92. |
Scoala Gimnaziala Nr. 28 - Bucuresti
0212105910 Aleea Circului, Nr. 1, sector 2 |
||
| 93. |
Ada School - Bucuresti
0723595916; 0721424485 Dr. Carol Davila, Nr. 101, Bucuresti |
||
| 94. |
Scoala Gimnaziala Grigore Tocilescu - Bucuresti
0214231140 Str. Grigore Tocilescu, Nr. 20, sector 5 |
||
| 95. |
Mihail Sadoveanu, Liceu teoretic - Bucuresti
0212527856 Str. Popa Lazar, Nr. 8A, Sector 2, Bucuresti |
||
| 96. |
About Scoala Metropolitana A.R.C
0314254343; 0722522198 Str. Esarfei, nr. 63-71, sector 3, |
||
| 97. |
Ion I.C. Bratianu, Liceu Tehnologic - Bucuresti
0310699448 Str. Popa Lazar, Nr. 8A, Sector 2, Bucuresti |
||
| 98. |
Dimitrie Gusti, Liceu Tehnologic - Bucuresti
0214562050 Str. Samuil Vulcan, Nr. 8, Sector 5, Bucuresti |
||
| 99. |
Colegiul Romano-Catolic Sfantul Iosif - Bucuresti
0213326602 Sos. Oltenitei, Nr. 3-7, Sector 4, Bucuresti |
||
| 100. |
Scoala Gimnaziala Nr. 280 - Bucuresti
0214234068 Str. Sergent Gheorghe Donici, Nr. 4A, Sector 5 |
||
| 101. |
Iosif Sava, Scoala Gimnaziala de Arte - Bucuresti
0212312470 Str. Constantin Disescu, Nr. 37, Sector 1, Bucuresti |
||
| 102. |
Liceul Teoretic Alexandru Vlahuta Bucuresti
0212305292 Str. Scoala Floreasca, nr. 5, sector 1 |
||
| 103. |
I.L. Caragiale, Colegiul National - Bucuresti
0212301021 Calea Dorobantilor, nr. 163, sector 1, Bucurersti |
||
| 104. |
Heliade Radulescu, Scoala Gimnaziala Nr. 11 - Bucuresti
0213163633 Sos. Kiseleff, nr. 5, sector 1, Bucuresti |
||
| 105. |
Liceul Tehnologic Nikola Tesla - Bucuresti
0212527886 Sos. Pantelimon, Nr. 25, sector 2 |
||
| 106. |
Nicolae Titulescu, Scoala Gimnaziala - Bucuresti
0212236393 Sos. Nicolae Titulescu, nr. 50-52, Sector 1, Bucuresti |
||
| 107. |
Titu Maiorescu, Scoala Gimnaziala Nr.45 - Bucuresti
0212301673 Calea Dorobantilor, Nr. 163, Sector 1, Bucuresti |
||
| 108. |
Mihai Botez, Scoala Gimnaziala Nr. 87 - Bucuresti
0213462361 Str. Ramnicu Valcea, Nr. 32, Sector 3, Bucuresti |
||
| 109. |
Ion Barbu, Liceu Teoretic - Bucuresti
0214102332 Str. Nabucului, Nr. 18, Sector 5, Bucuresti |
||
| 110. |
Dimitrie Bolintineanu, Liceu Teoretic - Bucuresti
0214234060 Calea Rahovei, Nr. 315, Sector 5, Bucuresti |
||
| 111. |
Stefan Odobleja, Liceu teoretic - Bucuresti
0214112213 Str. Dorneasca, Nr. 7A, Sector 5, Bucuresti |
||
| 112. |
Montessori - Scoala si gradinita, Bucuresti
0754054402 Str. Maior Ion Coravu, Nr. 53, Sector 2 |
||
| 113. |
Leonardo Da Vinci, Scoala Gimnaziala Nr.75 - Bucuresti
0213248676 Str. Pictor Gheorghe Petrascu, Nr. 55, Sector 3, Bucuresti |
||
| 114. |
Scoala Gimnaziala Nr. 49 - Bucuresti
0212502444 Str. Vatra Luminoasa, Nr. 99, Sector 2, Bucuresti |
||
| 115. |
Scoala Gimnaziala Nr. 27 Principesa Ileana - Bucuresti
0212421645 Str. Masina de Paine, nr. 65, sector 2 |
||
| 116. |
Scoala Gimnaziala Nr. 86 - Bucuresti
0314250608 Intr. Reconstructiei, Nr. 6A, Sector 3, Bucuresti |
||
| 117. |
Scoala Gimnaziala Nr. 46 - Bucuresti
0212502527 Str. Stanescu Gheorghe, Nr. 2-18, sector 2 |
||
| 118. |
Scoala Gimnaziala Nr. 120 Martisor - Bucuresti
0213325811 Str. Martisor, Nr. 39, sector 4 |
||
| 119. |
Traian, Liceu Teoretic - Bucuresti
0212106598; 0212105920 Str. Luigi Galvani, Nr. 20, sector 2, Bucuresti |
||
| 120. |
Tudor Vianu, Colegiul National de Informatica - Bucuresti
0212226670 Str. Arh. Ion Mincu, Nr. 10, sector 1, Bucuresti |
||
| 121. |
Scoala Gimnaziala Nr. 64 Ferdinand I - Bucuresti
0213351410 Bd. Garii Obor, Nr. 16, Sector 2 |
||
| 122. |
Ion Neculce, Colegiul National Bucuresti
0212224145; 0212224179 Str. Ion Neculce, Nr. 2, Sector 1, Bucuresti |
||
| 123. |
Scoala Gimnaziala George Bacovia - Bucuresti
0213323396 Str. Stoian Militaru, nr. 72, Sector 4 |
||
| 124. |
Scoala Gimnaziala Luca Bucuresti
0721335161; 0744894206 Str. Sfantul Petru Tei, Nr. 67 A- 71, Sector 2, Bucuresti |
||
| 125. |
Scoala Gimnaziala SEB - Bucuresti
0314249675; 074502274 Str. Martisor, Nr. 22, sector 4 |
||
| 126. |
Scoala Gimnaziala de Arte nr. 4 - Bucuresti
0212421450 Str. Maica Domnului, Nr. 61-63, Sector 2 |
||
| 127. |
Scoala Gimnaziala Nr.188 - Bucuresti
0214500161 Str. Tufisului, Nr. 13, Sector 5, Bucuresti |
||
| 128. |
Scoala Gimnaziala Nr. 31 - Bucuresti
0212421712; 0736613908 Bd. Lacul Tei, Nr. 116, sector 2 |
||
| 129. |
George Calinescu, Scoala Gimnaziala 148 - Bucuresti
0214232889 Str. Bachus, Nr. 42, Sector 5, Bucuresti |
||
| 130. |
Liceul tehnologic special Regina Elisabeta - Bucuresti
0212506220 Str. Vatra Luminoasa, Nr. 108, sector 2 |
||
| 131. |
Maria Rosetti, Scoala Gimnaziala - Bucuresti
0212305276 Str. Garibaldi, nr. 3, Sector 2, Bucuresti |
||
| 132. |
Benjamin Franklin, Liceu teoretic - Bucuresti
0213244890; 0213243010 Str. Pictor Gh. Tattarescu, Nr. 1, sector 3, Bucuresti |
||
| 133. |
Scoala Gimnaziala Nr. 25 - Bucuresti
0212422695 Str. Silvia, Nr. 54 Sector 2 |
||
| 134. |
Happy Drive Lucky - Scoala de soferi, Bucuresti
0755766849 Strada Inginerilor Tei, Nr.9, sector 2 |
||
| 135. |
Scoala Gimnaziala Nr. 88 - Bucuresti
0213480445 Str. Odobesti, Nr. 3, Sector 3, |
||
| 136. |
UCECOM, Colegiul Spiru Haret - Bucuresti
0213166195; 0213166196 Str. Economu Cezarescu, Nr. 47-59, Sector 6, Bucuresti |
||
| 137. |
Scoala Gimnaziala Nr. 54 - Bucuresti
0213465143; 0310699824 Str. Istriei, Nr. 19, Sector 3 |
||
| 138. |
Scoala Gimnaziala nr. 143 - Bucuresti
0214202440 Str. Banu Maracine, Nr. 16, Sector 5 |
||
| 139. |
Scoala Gimnaziala Ion I. C. Bratianu - Bucuresti
0214233390 Str. Amurgului, Nr. 35, Sector 5 |
||
| 140. |
Pia Bratianu - Scoala Gimnaziala Nr. 17
0212226590 Str. Petofi Sandor, Nr. 14-16, Sector 1, Bucuresti |
||
| 141. |
Jean Monnet, Liceu teoretic - Bucuresti
0212305078 Str. Jean Monnet, Nr. 2, Sector 1, Bucuresti |
||
| 142. |
Orizont, Scoala Gimnaziala Nr. 193 - Bucuresti
0214132355 Str. Mihaela Ruxandra Marcu, Nr. 3, Sector 6, Bucuresti |
||
| 143. |
Dimitrie Leonida, Colegiul Tehnic - Bucuresti
0213243294; 0213243295; 0213243293; 0213246902 Bd. Basarabia, Nr. 47, Sector 2, Bucuresti |
||
| 144. |
Colegiul Tehnic Petru Maior - Bucuresti
0736627798 Bd. Timisoara, Nr. 6, Sector 6 |
||
| 145. |
Decebal, Liceul Bilingv - Bucuresti
0213469233 Bd. Energeticienilor, Nr. 9-11, Sector 3, Bucuresti |
||
| 146. |
Liceul Tehnologic Sfantul Pantelimon - Bucuresti
0212559943 Str. Hambarului, Nr. 12A, sector 2 |
||
| 147. |
Geo Bogza, Scoala Gimnaziala Nr. 170 - Bucuresti
0212223072 Str. Barbu Lautaru, Nr. 4, Sector 1, Bucuresti |
||
| 148. |
Scoala Gimnaziala Nr. 4 - Bucuresti
0212556425 Str. Herta, Nr. 14 A, Sector 2, Bucuresti |
||
| 149. |
Scoala Gimnaziala Nr. 190 - Bucuresti
0213324689 Str. Nitu Vasile, Nr. 16, Sector 4, Bucuresti |
||
| 150. |
C.A. Rosetti, Liceu teoretic - Bucuresti
0212304873 Str. Giuseppe Garibaldi, Nr. 11, Sector 2, Bucuresti |
||
| 151. |
Grigore Ghica Voievod, Scoala Gimnaziala Nr. 30 - Bucuresti
0212421160 Str. Laptari Tei, Nr. 23, Sector 2, Bucuresti |
||
| 152. |
Scoala Gimnaziala Nr. 2 Bucuresti
0214501192 Str. Lacul Bucura, Nr. 14, Sector 5, Bucuresti |
||
| 153. |
Complex Scoalr Cronos Bucuresti
0212225050; 0758107705 Str. Chibzuintei, Nr. 15-17, Sector 1, Bucuresti |
||
| 154. |
Ghelmez Petre, Scoala gimnaziala Nr. 58 - Bucuresti
0213245135 Str. Pescarusului, Nr. 124, Sector 2, Bucuresti |
||
| 155. |
Scoala Gimnaziala Nr. 145 - Bucuresti
0212407036 Str. Heliade Intre Vii, Nr. 36, sector 2 |
||
| 156. |
Scoala Gimnaziala Nr. 168 - Bucuresti
0314326090 Str. Alizeului, Nr. 9, Sector 6, Bucuresti |
||
| 157. |
Scoala Gimnaziala Rut - Bucuresti
0214510035; 0787358929 Str. Lacul Bucura, Nr. 9-13, Sector 5 |
||
| 158. |
Scoala Gimnaziala Nr. 51 - Bucuresti
0212554060 Str. Herta, Nr. 1, Sector 2, Bucuresti |
||
| 159. |
Colegiul Tehnic Dinicu Golescu - Bucuresti
0216370484 Calea Giulesti, Nr. 10, Sector 1 |
||
| 160. |
Scoala Gimnaziala Nr. 96 Bucuresti
0214610108 Str. Rezonantei, nr. 2, sector 4, |
||
| 161. |
Petre Ispirescu - Scoala Gimnaziala Nr. 171 - Bucuresti
0212241163 Str. Vasile Gherghel, Nr. 2, Sector 1, Bucuresti |
||
| 162. |
Liceul cu Program Sportiv Mircea Eliade - Bucuresti
0213141389 Splaiul Independentei, Nr. 315-317, Sector 6 |
||
| 163. |
Anghel Saligny, Colegiu Tehnic - Bucuresti
0213402654 Bd. Nicolae Grigorescu, Nr. 12, Sector 3, Bucuresti |
||
| 164. |
Alexandru Ioan Cuza, Scoala Gimnaziala Nr. 199 - Bucuresti
0213243970 Bd. Nicolae Grigorescu, Nr. 14, Sector 3, Bucuresti |
||
| 165. |
Scoala Gimnaziala Nr. 124 - Bucuresti
0214206365 Str. Margeanului, Nr. 25A, Sector 5, Bucuresti |
||
| 166. |
Scoala Gimnaziala Nr. 113
0213322347 Str. Parincea, Nr. 4, Sector 4, Bucuresti |
||
| 167. |
Liceul Teoretic Sfintii Trei Ierarhi - Bucuresti
0763688448 Str. Oltetului, nr. 15, sector 2 |
||
| 168. |
Kidos - Before & after school, Bucuresti
0770775730 Bulevardul Nicolae Grigorescu, nr. 2 D, sector 3 |
||
| 169. |
Serban Voda, Scoala Gimnaziala - Bucuresti
0214503450 Str. Petre Tutea, Nr. 3, Sector 4, Bucuresti |
||
| 170. |
Waldorf, Liceul Teoretic - Bucuresti
0212553051 Str. Sold. Marin Savu, Nr. 29, Sector 2, Bucuresti |
||
| 171. |
George Toparceanu, Scoala Gimnaziala Nr. 110 - Bucuresti
0214503823 Str. Argeselu, Nr. 6, sector 4, Bucuresti |
||
| 172. |
Little Genius - Scoala primara Bucuresti
0724245249 Str. Carol Knappe, Nr. 95, sector 1 |
||
| 173. |
Dante Alighieri, Liceu teoretic - Bucuresti
0213481950; 0213481545 Aleea Fuiorului, Nr. 9, Sector 3, Bucuresti |
||
| 174. |
Scoala Gimnaziala Nr. 311- Bucuresti
0214133440 Str. Garleni, Nr. 10, Sector 6, Bucuresti |
||
| 175. |
Santimbreanu Mircea, Scoala Gimnaziala Nr. 139 - Bucuresti
0214206795 Sos. Alexandriei, Nr. 21, Sector 5, Bucuresti |
||
| 176. |
Scoala Gimnaziala Nr. 136 - Bucuresti
0214501892 Prelungirea Ferentari, Nr. 74, Sector 5, Bucuresti |
||
| 177. |
Hamburg, Scoala Gimnaziala Nr.195 - Bucuresti
0318058603 Str. Lunca Bradului, Nr. 2, sector 3, Bucuresti |
||
| 178. |
Alegra - After-school Bucuresti
0729987920; 0726487124 Str. Portaresti, Nr. 11, etaj 1, sector 6 |
||
| 179. |
Colegiul Tehnic Energetic - Bucuresti
0214500630; 0214502805 Aleea Podul Giurgiului, nr. 5, sector 5 |
||
| 180. |
Nicolae Iorga, Liceu teoretic - Bucuresti
0212242026 Bd. Ion Mihalache, Nr. 126, Sector 1, Bucuresti |
||
| 181. |
Scoala Gimnaziala Nr. 197 - Bucuresti
0214134330; 0786332028 Str. Obcina Mare, Nr. 2, Sector 6, Bucuresti |
||
| 182. |
Scoala Gimnaziala Nr. 308 - Bucuresti
0214503162 Str. Raul Soimului, Nr. 8, Sector 4, Bucuresti |
||
| 183. |
Tudor Vladimirescu, Colegiu National - Bucuresti
0214103831 Bd. Iuliu Maniu, Nr. 15, Sector 6, Bucuresti |
||
| 184. |
Scoala Gimnaziala Nr. 59
0314252104 Str. Vladeasa, Nr. 9, Sector 6, Bucuresti |
||
| 185. |
Nicolae Labis, Scoala Gimnaziala Nr. 89 - Bucuresti
0213486271 Str. Firidei, Nr. 2, Sector 3, Bucuresti |
||
| 186. |
Colegiul National Octav Onicescu - Bucuresti
0214603544 Str. Trivale, Nr. 29, Sector 4 |
||
| 187. |
Scoala nr. 147 Petrache Poenaru - Bucuresti
0214233987; 0214233991 Str. Bacau, Nr. 1, sector 5 |
||
| 188. |
Scoala Gimnaziala Nr. 129 - Elena Farago
0214503775 Str. Izvorul Crisului, Nr. 6, Sector 4, Bucuresti |
||
| 189. |
Scoala Gimnaziala Nr. 127 - Bucuresti
0214231092 Str. Muntii Carpati, nr. 68, sector 5 |
||
| 190. |
Grigore Moisil, Colegiu National - Bucuresti
0214132696; 0768191964 Bd. Timisoara, Nr. 33, Sector 6, Bucuresti |
||
| 191. |
Neagoe Basarab Voievod, Scoala Gimnaziala (fosta Nr.16) - Bucuresti
0213403313; 0374464076 Intr. Constantin Brancusi, nr. 7, sector 3, Bucuresti |
||
| 192. |
Sfantul Ioan, Scoala Postliceala Sanitara - Bucuresti
0724355298; 0787889809 Str. Ilioara, nr. 16, et. 2, sector 3, Bucuresti |
||
| 193. |
Scoala Gimnaziala Nr. 126
0214203645 Str. Leresti, Nr. 12, Sector 5, Bucuresti |
||
| 194. |
Marin Sorescu, Scoala Gimnaziala Nr. 194 - Bucuresti
0214610790 Bd. Alexandru Obregia, Nr. 3A, Sector 4, Bucuresti |
||
| 195. |
Profesia, Liceu profil Economic - Bucuresti
0213486638; 0787889809 Ilioara , Nr. 16 (in cladirea Scolii de Soferi), et. 2, sector 3 , Bucuresti |
||
| vezi mai multe | |||
| 1. |
Emozia coffee manifesto - Cafenea, Bucuresti
0742023590;0726201527 Strada Halelor, nr. 17, sector 3 |
||
| 2. |
Hanul lui Manuc, Restaurant - Bucuresti
0213131411; 0769075844; 0730188653 Franceza, Nr. 62-64, Sector 3, Bucuresti |
||
| 3. |
Hanul lui Manuc, Restaurant si Cafenea - Bucuresti
0213131411; 0769075844; 0730188653 Franceza, Nr. 62-64, Sector 3 , Bucuresti |
||
| 4. |
Mica Elvetie Restaurant - Bucuresti
0212245017 Franceza, Nr. 60-62, Sector 3, Bucuresti |
||
| 5. |
Hanul lui Manuc, Restaurant - Bucuresti
0730188653; 0213122811; 0769075844 Franceza , Nr. 62-64, Sector 3 , Bucuresti |
||
| 6. |
The Urbanist - Bar specializat in cocktailuri, Bucuresti
0741392558 Strada Caldarari, Nr. 3, sector 3 |
||
| 7. |
McDonald\'s
0372701091 Piata Unirii 1, Unirea Shopping Center, Bucuresti |
||
| 8. |
Time to Lunch
0763200900 Strada Patriei, Nr 4, sector 3 |
||
| 9. |
Borsalino - Pizzerie Bucuresti
0729954911; 0729954912 Bulevardul Ion C. Bratianu, Nr. 44, Sector 3 |
||
| 10. |
Lacrimi si Sfinti, Restaurant - Bucuresti
0725558286; 0372773999 Sepcari, Nr.16 (Centrul Vechi) Sector 3, Bucuresti |
||
| 11. |
Mica Elvetie Restaurant
0212245017 Franceza, Nr. 60-62, Sector 3, Bucuresti |
||
| 12. |
Industry Wine Bar- Bar cu vinuri, Bucuresti
0722777222 str. Sepcari, Nr. 19, sector 3 |
||
| 13. |
Bazaar - Restaurant Bucuresti
0721999999 Strada Covaci, Nr. 10, sector 3 |
||
| 14. |
1974 Niste Domni si Fii - Bar Restaurant Bucuresti
0721551099; 0723629306 Covaci, Nr. 7, Sector 3, Bucuresti |
||
| 15. |
Bodega La Mahala - Restaurant Bucuresti
0732166606 Covaci, Nr. 8, Sector 3 |
||
| 16. |
Fire Club Pub - Bucuresti
0732166604 Covaci, Nr. 7, Sector 3, Bucuresti |
||
| 17. |
Private Hell - Club, Bucuresti
0757508336 Str. Soarelui, nr. 5, Sector 3 |
||
| 18. |
La 100 de Beri - Bar specializat in bere, Bucuresti
0733282598 Str. Gabroveni, Nr.61, sector 3 |
||
| 19. |
Mojo Music Club - Bucuresti
0737220220 Gabroveni, Nr.14, Sector 3, Bucuresti |
||
| 20. |
Big Ben - Pub cu specific britanic, Bucuresti
0756110089 Str. Franceza, nr. 52, sector 3 |
||
| 21. |
Shoteria - Shotbar, Bucuresti
0721203039; 0372916947 Strada Selari, Nr. 17, sector 3 |
||
| 22. |
Calif - Restaurant fast-food, Bucuresti
0756200325 Selari, Nr. 19, sector 3, |
||
| 23. |
Curtea Berarilor, Restaurant terasa - Bucuresti
0213137532 Selari, Nr.9-11, sector 3, Bucuresti |
||
| 24. |
Boulevard Pub - Bucuresti
0753966961 Strada Covaci, Nr. 4, sector 3 |
||
| 25. |
Curtea Berarilor, Bar & Grill - Bucuresti
0213137532; 0735861682 (Radu); 0735861681 (Sorina) Selari, Nr. 9-11,Sector 3 (Zona Lipscani), Bucuresti |
||
| 26. |
Bruno Wine Bar - Bar cu vinuri, Bucuresti
0751220229 Strada Covaci, Nr. 3, Centrul Vechi |
||
| 27. |
Naive - Restaurant cu bar, Bucuresti
0725550333 Bd. I.C. Bratianu, Nr. 36, sector 3 |
||
| 28. |
Kilkenny Irish Pub - Bucuresti
0751041110 Str Franceza, Nr. 46-48, sector 3 |
||
| 29. |
Efendi Doner - Restaurant fast-food, Bucuresti
0730578472 Str. Selari, nr. 2, sector 3 |
||
| 30. |
Taverna Covaci - Restaurant cu specific romanesc, Bucuresti
0747226677 Str. Covaci, Nr. 1, sector 3 |
||
| 31. |
Nomad Skybar - Restaurant, bar, club, Bucuresti
0735448080 Strada Smardan, Nr 30, sector 3 |
||
| 32. |
Sinners - Pub, Bucuresti
0737343210 Covaci, nr.2 , Centrul Vechi, sector 3 |
||
| 33. |
Bere si Bere - Pub, bere craft si muzica rock
0723280040 Str. Gabroveni, Nr. 4, sector 3 |
||
| 34. |
Extra Time - Pub Bucuresti
0732166605 Strada Lipscani, Nr. 82A, sector 3 |
||
| 35. |
Sugarography - Atelier de dulciuri Bucuresti
Bucuresti, |
||
| 36. |
Delicii Libaneze - Gelaterie, cofetarie, ciocolaterie Bucuresti
0725115811 Str. Franceza, Nr. 13, sector 3 |
||
| 37. |
Cofetaria Macarons - Bucuresti
0771425575 Bucuresti, |
||
| 38. |
Arcade Cafe - Bucuresti
0722777674 Smardan, Nr.30, (Centrul vechi), Sector 4, Bucuresti |
||
| 39. |
Burger si Scoici - Restaurant cu burgeri Bucuresti
0753300333 Strada Smardan, Nr. 41, Sector 3 |
||
| 40. |
Pizzeria La Coco - Bucuresti
0731744444 Str. Gabroveni, Nr. 31, Sector 3 |
||
| 41. |
iDracula - Restaurant tematic, Bucuresti
0753476142;0752559457 Str. Selari, Nr. 10-12, Centrul Vechi, sector 3 |
||
| 42. |
Level Up - Restaurant raw vegan, Bucuresti
0721085582 Str Sf. Vineri, Nr 10, sector 3 |
||
| 43. |
Mao Pub - Bucuresti
0771305995 Str. Lipscani, Nr. 69, Sector 3 |
||
| 44. |
Kiosque des Douceurs - Cofetarie Bucuresti
0758090763 Str. Selari, Nr. 3, Sector. 3, Centrul Vechi |
||
| 45. |
Gyros Thessalonikis
0770302148 Strada Gabroveni, Nr. 2,sector 3 |
||
| 46. |
UAU Il Gelato - Gelaterie Bucuresti
0723135015 Str. Gabroveni, Nr. 1-3, sector 3, |
||
| 47. |
Latin Pizza - Pizzerie, Bucuresti
0751896358 Bulevardul Ion C. Bratianu, Nr. 34, sector 3 |
||
| 48. |
Old Habits - Club de noapte si de dans
0728776699 Strada Lipscani, Nr. 38, sector 3 |
||
| 49. |
Freddo Pub - Club de noapte si de dans, Bucuresti
0722373336 Str Smardan, nr 24, sector 3, |
||
| 50. |
Sublimmme - Restaurant vegetarian/vegan, Bucuresti
0771135605 Splaiul Independentei, NR 2F, sector 3 |
||
| 51. |
Les Bourgeois - Bucuresti
0720132994; 0213106052 Smardan, Nr. 20, Sector 3, Bucuresti |
||
| 52. |
Storage Room - Bar, Bucuresti
0732363712 Strada Smardan, Nr. 35, sector 3 |
||
| 53. |
Aubergine Healthy Food - Restaurant cu mancare sanatoasa, Bucuresti
0213137548 (Smardan); 0771358661 (Aviatorilor) Strada Smardan, Nr 33, sector 3, Bucuresti |
||
| 54. |
Fabrica de mancare - Restaurant cu supe si ciorbe, Bucuresti
0744123123 B-dul Unirii, nr. 31, sector 3 |
||
| 55. |
Gilda Music Lounge - Restaurant club Bucuresti
0786770941 Strada Lipscani, Nr. 53, sector 3 |
||
| 56. |
Vis a Vis - Restaurant Bucuresti
0722102223 Bd. I. C. Bratianu, |
||
| 57. |
Xclusive Pub - Bar & Grill, Bucuresti
0723166463 Str. Lipscani, nr. 36, sector 3 |
||
| 58. |
Zoomserie - Cofetarie Bucuresti
0751222265 Sf. Vineri, Nr. 23, sector 3, intersectia Coposu (Calarasilor), |
||
| 59. |
Distrikt 42 - Restaurant Bucuresti
0213156699 Str. Sfantul Dumitru, Nr. 3, sector 3 |
||
| 60. |
Patrick Irish Pub & Restaurant - Bucuresti
0213130336; 0314360112; 0755110008 Smardan, Nr. 23-25, sector 3, Bucuresti |
||
| 61. |
Artist Cafe - Cafenea Bucuresti
0756777577 Str. Lipscani, Nr. 30-34, sector 3 |
||
| 62. |
The Clique Bistro - Restaurant cu specific international, Bucuresti
0784901000 Splaiul Unirii, sector 3 |
||
| 63. |
Argentin - Restaurant Bucuresti
0774462430; 0774462431 Strada Blanari, Nr. 11-15, Sector 3 |
||
| 64. |
Times Cocktail Bar - Pub, Bucuresti
0731032330 Intrarea Nicolae Selari, nr.1,sector 3, |
||
| 65. |
Thors Hammer - Bar Bucuresti
0729176724 Str Blanari, Nr. 12, sector 3 |
||
| 66. |
Il Peccato, Restaurant - Bucuresti
0213116767; 0765301300 Franceza, Nr. 30,Sector 3, Bucuresti |
||
| 67. |
SanThe Fitoceainarie - Ceainarie, Bucuresti
0730370290 Lipscani, nr 104, sector 3, |
||
| 68. |
The Drunken Lords - Pub, Bucuresti
0736238815 Intr. Selari, Nr. 3-5, sector 3 |
||
| 69. |
Manasia Hub - Bar Bucuresti
0736760063 Str. Stelea Spatarul, Nr. 13, sector 3 |
||
| 70. |
Moon Brasserie - Restaurant Bucuresti
0723093170 Bulevardul Unirii, Nr. 33, sector 3 |
||
| 71. |
Tag Aperitivo Bar - Bucuresti
0721888522 Strada Lipscani, nr. 27, sector 3 |
||
| 72. |
Velluto - Gelaterie, Bucuresti
0728991969 Splaiul Independentei, Nr 2J, sector 3 |
||
| 73. |
The Dock - Lounge, Bucuresti
0743680336 Bulevardul Unirii, nr. 30, sector 3 |
||
| 74. |
Horoscop, Restaurant, Pizzerie - Bucuresti
0767562215 Bd.Dimitrie Cantemir, Nr 2, Sector 4, Bucuresti |
||
| 75. |
Encore Club - Bar specializat in bere
0786247745 Nicolae Tonitza, nr. 13, sector 3 |
||
| 76. |
Get Naked by Bordello - Restaurant pentru mic dejun si brunch, Bucuresti
0748881086 Bd. Unirii, intre Bd Dimitrie Cantemir si Bd Mircea Voda |
||
| 77. |
Anika - Restaurant cu specific romanesc Bucuresti
0726400148 Str. Pictor Nicolae Tonitza, Nr.10, sector 3 |
||
| 78. |
Leonidas Cofetarie - Bucuresti
0740014695; 0213141377 Doamnei, Nr. 27 , Sector 3, Bucuresti |
||
| 79. |
JO Lounge - Bar, Bucuresti
0721811995 Bd. Unirii, sector 3 |
||
| 80. |
Lloyds Pub - Bucuresti
0723133786 Str. Coltei, Nr. 16, Sector 3 |
||
| 81. |
Caru\' cu Bere, Restaurant - Bucuresti
0213137560; 0726cubere; 0726282373 Stavropoleos , Nr. 3-5, Sector 3, Bucuresti |
||
| 82. |
Nori Sushi - Restaurant cu specific japonez, Bucuresti
0771179714 Splaiul Unirii, nr 6, bl B3A, etaj 7-8 |
||
| 83. |
Bucatarasul cel Dibaci - Restaurant cu specific romanesc, Bucuresti
0730340436;0760966360 Strada Olteni, Nr 3, sector 3 |
||
| 84. |
Amnezia Caffe - Bistrou romanesc Bucuresti
0770917737; 0724140931 Str. Sf. Apostoli, Nr. 21, sector 4, |
||
| 85. |
Barfly Bucuresti
0727394131; 0721652899 Olteni , Nr. 3, Sector 3, Bucuresti |
||
| 86. |
Aria Gourmet Burger - Fast food Bucuresti
0773778860; 0773778860 Strada Slanic, Nr. 2, Sector 3 |
||
| 87. |
Saray - Restaurant cu specific turcesc, Bucuresti
0733135834 Lipscani, Nr. 21, sector 3 |
||
| 88. |
Miss Ale - Bar specializat in cocktailuri
0745089700 Constantin F Robescu, Nr 2, sector 3 |
||
| 89. |
Vilacrosse, Restaurant Cafe Bistro - Bucuresti
0728358304 Str. Eugen Carada, nr. 7, sector 3, |
||
| 90. |
Pekin, Restaurant chinezesc - Bucuresti
0213103160; 0723233169; 0769414020 Calea Victoriei, Nr. 16-20, pasaj Villa Cross, Sector 3, Bucuresti |
||
| 91. |
Vilacrosse, Bistro, Restaurant - Bucuresti
0728358304; 0744796894 Eugeniu Carada, Nr. 7, Sector 3, Bucuresti |
||
| 92. |
Bemolle Cafe - Bucuresti
0213118382; 0723188953 Calea Victoriei , Nr.16-18-20 (Pasaj Villacrosse), Sector 3, Bucuresti |
||
| 93. |
WHYS - Bar, Bucuresti
0785059173 Pasajul Macca-Villacrosse, sector 3 |
||
| 94. |
#Aici - Bar, Bucuresti
0799124330 Bulevardul Unirii, Nr 35, Sector 3, Bucuresti |
||
| 95. |
Q Marttinez - Restaurant cu specific european, Bucuresti
0725682944 Eugeniu Carada, Nr. 7, sector 3 |
||
| 96. |
Hugo Bar - Cafenea cu narghilele, Bucuresti
0732397953 Calea Victoriei, 16-18-20, sector 3 |
||
| 97. |
Valea Regilor - Cafenea, Bucuresti
0213112969 Calea Victoriei, 16-20, Centrul Vechi, sector 3 |
||
| 98. |
Scovergaria Micai - Patiserie, cofetarie Bucuresti
0314253670 Calea Victoriei, Nr. 14 colt cu Lipscani 19, sector 3 |
||
| 99. |
Jos Palaria Cafe - Bucuresti
0314321029 Toma Caragiu , Nr. 3, Sector 3 , Bucuresti |
||
| 100. |
Pe Baricade
Radu Voda, nr. 23A, sector 4 |
||
| 101. |
Robescu 14 - Bar specializat in cocktailuri
0773741922 Strada Robescu F. Constantin, Nr. 14, sector 3 |
||
| 102. |
Noa Restoclub - Restaurant Bucuresti
0799747557 Calea Victoriei, Nr 26 Sector 3 |
||
| 103. |
Linea - Closer To The Moon, Bucuresti
0757824298 Calea Victoriei, nr. 17, sector 3 |
||
| 104. |
Hanul Berarilor Interbelic, Restaurant - Bucuresti
0213368009; 0729400800 Poenaru Bordea , Nr. 2, Sector 5, Bucuresti |
||
| 105. |
Restaurant Karta - Bucuresti
0744391111 Bd. Unirii, Nr. 22, sector 3 |
||
| 106. |
Hygge - Restaurant Bucuresti
0771114875 Calea Victoriei, Nr. 21, sector 3 |
||
| 107. |
The Pub - Bucuresti
0728843782 Bulevardul Regina Elisabeta, Nr. 9, sector 3 |
||
| 108. |
Kuma Bar - Bucuresti
0766440936 Strada Coltei, Nr. 50, sector 3 |
||
| 109. |
Jack Pot - Bar specializat in cocktailuri, Bucuresti
0372916947; 0770776777 Zborului, nr. 2, sector 3 |
||
| 110. |
Ergo - Restaurant vegan, Bucuresti
0770747559 Bd. Unirii, Nr 5, sector 4 |
||
| 111. |
Surubelnita - Club, Bucuresti
0768743593 Str. Calea Mosilor, nr. 100, sector 2 |
||
| 112. |
Papila Kitchen - Restaurant, Bucuresti
0753087799 Strada Sfintilor, Nr 6, sector 2 |
||
| 113. |
Tarta Ta - Delicii traditionale, Bucuresti
0771522117 Bulevardul Mircea Voda, Nr. 52, sector 3 |
||
| 114. |
Origo Coffee Shop - Bucuresti
0757086689 Lipscani, Nr. 9,Sector 3, Bucuresti |
||
| 115. |
Capsa Cofetarie Bucuresti
0213134038; 0213135999 Calea Victoriei, Nr. 36, Sector 1, Bucuresti |
||
| 116. |
Casa Capsa, Restaurant - Bucuresti
0213134038; Fax: 0213135999 Calea Victoriei, Nr. 36, Sector 1, Bucuresti |
||
| 117. |
Energiea - Pub Bucuresti
0736374432 Str. Actor Ion Brezoianu, Nr. 4, Sector 5 |
||
| 118. |
Cercul Militar National, Restaurant - Bucuresti
0213143735; 0213149551; Fax: 0372874921 Constantin Mille, Nr.1-3, Sector 1, Bucuresti |
||
| 119. |
Jaristea, Restaurant - Bucuresti
0721961936 ; 0775609233 ; 0770948868 George Georgescu, Nr. 50-52, Sector 4, Bucuresti |
||
| 120. |
Paine si Vin - Bar cu vinuri, Bucuresti
0755028448 Str. Actor Ion Brezoianu, Nr. 4, sector 5 |
||
| 121. |
Gran Gelato Italiano - Gelaterie Bucuresti
0730057909 Str. Radu Voda, Nr 28 A, Sector 4 |
||
| 122. |
Capitol Hotel si Restaurant - Bucuresti
0213158030; 0317107007 Calea Victoriei , Nr. 29, Sector 1 , Bucuresti |
||
| 123. |
Ivy - Cafenea, Bucuresti
0755210748 Bulevardul Carol I, Nr. 23, sector 2 |
||
| 124. |
Saint Gelato - Gelaterie Bucuresti
0745205405 Bulevardul Regina Elisabeta, Nr. 26, Sector 3 |
||
| 125. |
Legere - Bar, Bucuresti
0730534373 Piata Rosetti, nr 5, sector 2 |
||
| 126. |
Ramada Majestic, Hotel si Restaurant - Bucuresti
0213102715 Calea Victoriei, Nr. 38-40, Sector 1 , Bucuresti |
||
| 127. |
Haute Pepper - Restaurant cu specific international, Bucuresti
0726284280 Bd. Unirii, nr 2, sector 4 |
||
| 128. |
Buoni e Bravi - Pizzerie, Bucuresti
0735215224 Piata C. A. Rosetti, nr. 3, sector 2 |
||
| 129. |
Hanul Hangitei, Restaurant - Bucuresti
0744827323; 0758043355 Bd. Marasesti, Nr.70-72, Sector 4 , Bucuresti |
||
| 130. |
Colosseum, Restaurant - Bucuresti
0721243613; 0213131860; 0219689 Calea Victoriei , Nr. 48-50 (Pasajul Victoria), sector 1, Bucuresti |
||
| 131. |
Barocco Bar - Bucuresti
0755028028; 0740114132 Domnita Anastasia, Nr.10 (In spatele McDonalds Regina Elsiabeta), Bucuresti |
||
| 132. |
Colosseum Pizza - Bucuresti
0721243613; 0213131860; 0213121020 Calea Victoriei, Nr. 48-50 (Pasajul Victoria), Sector 1, Bucuresti |
||
| 133. |
OPUS TNB - Bar specializat in cocktailuri
0771595407 Bulevardul Nicolae Balcescu, Nr. 2, sector 1 |
||
| 134. |
Pizza Hut - Bucuresti
0740121903 Bd. Regina Elisabeta, nr. 15-19, sector 3 , |
||
| 135. |
Berestroika - Beer Revolution - Bucuresti
0722560300; 0721100000; 0733200000 Aleea Cauzasi, Nr. 57, Sector 2, Bucuresti |
||
| 136. |
Elisabeta, Restaurant - Bucuresti
0727703703; 0724323132 Bd. Regina Elisabeta, Nr. 45, Sector, Bucuresti |
||
| 137. |
Angelo Grasso - Restaurant cu specific italian, Bucuresti
0739955555 Strada Tudor Arghezi, 12-16, sector 2 |
||
| 138. |
The Old Sibiu - Restaurant evenimente Bucuresti
0723602560; 0723637769; 0721172390 Str. Ion Otetelesanu,, Nr. 3A-3B, Sector 1 |
||
| 139. |
The Temple Social Pub - Bucuresti
0723469118 Bd. Marasesti, Nr. 71-73 sector 4 |
||
| 140. |
Frufru, Fresh, natural, yummy , Fast food - Bucuresti
0212221111; 0765346715 Batistei , Nr. 1-3, Sector 2, Bucuresti |
||
| 141. |
Simbio - Restaurant Bucuresti
0756746246 Str Negustori, nr. 26, sector 2 |
||
| 142. |
La Nenea Iancu - Restaurant cu specific romanesc, Bucuresti
0745140786 Str. Romulus, nr. 55, sector 3 |
||
| 143. |
Trattoria Adagio - Restaurant cu specific italian Bucuresti
0311061067; 0751218482 Bd. Mircea Voda, Nr. 34, sector 3 |
||
| 144. |
Noeme - Restaurant Bucuresti
0721490270 Anton Pann, Nr. 29, sector 3 |
||
| 145. |
Kane - Noua bucatarie romaneasca fina
0314100016 Str. Dianei, nr. 9 (Piata Rosetti), sector 2 |
||
| 146. |
Casa Ede - Restaurant & Beauty - Barber Salon Bucuresti
0772019516 Strada Armeneasca, Nr. 8, sector 2 |
||
| 147. |
Gradina Urbana - Restaurant cu specific american, Bucuresti
0745250077 Strada Batistei, Nr. 14, sector 2 |
||
| 148. |
Calderon 18 - Restaurant cu terasa, Bucuresti
0731886789 Str. Jean Louis Calderon, Nr.18, sector 2, |
||
| 149. |
Mr. Cigkofte - Restaurant fast-food, Bucuresti
0720802181 Nicolae Balcescu, Nr. 18, sector 1 |
||
| 150. |
Sfeir Lebanese Cuisine - Bar & Grill
0722311805 Mircea Voda, Nr. 36, sector 3 |
||
| 151. |
Boutique Du Pain - Restaurant cu specific francez, Bucuresti
0728443300 Academiei, Nr. 28-30, sector 1 |
||
| 152. |
Maroon - Maroon Restaurant Cafe
0742420000; 0764900000 Bulevardul Unirii, Nr. 47 C, Sector 3 |
||
| 153. |
FoodVibe - Serviciu de livrare mancare
0371333222 Strada Sperantei, nr. 7, sector 2 |
||
| 154. |
Gambino\'s Pizza - Bucuresti
0731707070; 0725271471; 0310050209 Vasile Lascar, Nr.24, Sector 2, Bucuresti |
||
| 155. |
Rawyal brunch & cakes - Bucuresti
0730777221 Calea Mosilor, Nr 105, Sector 2 |
||
| 156. |
Nice Touch - Restaurant cu meniu international, Bucuresti
0771568361 Strada Sperantei, nr.7, sector 2 |
||
| 157. |
Chaya TeaHouse - Ceainarie Bucuresti
0755331000 Strada Radu Ceaus, Nr. 7, sector 3 |
||
| 158. |
Bistro Fum de Vorbe - Restaurant Bucuresti
0748628830; 0723686292 Vasile Lascar, Nr. 24, Sectorul 2 |
||
| 159. |
Excalibur, Restaurant - Bucuresti
0730190364; Tel Fax: 0213145670 Academiei, Nr. 39-41, Sector 1 , Bucuresti |
||
| 160. |
DolciConi - Gelaterie Bucuresti
0753762549 Vasile Lascar, Nr 26-28, sector 2 |
||
| 161. |
Beautyfood - Bistro, Bucuresti
0759030609 Jean Louis Calderon, Nr. 34, sector 2 |
||
| 162. |
QP Pub - Bucuresti
0736405451 Str. General David Praporgescu, Nr. 13, sector 2 |
||
| 163. |
Human Coffee - Cafenea Bucuresti
0734744429 Str. Elena Cuza, Nr. 8, Sector 4 |
||
| 164. |
Borgo Stagioni - Restaurant Bucuresti
0732163287; 0722220223 Calea Calarasi, Nr. 78, Sector 3 |
||
| 165. |
Imperial Turkish Cuisine & Steakhouse- Restaurant Bucuresti
0720102222 Strada Jean Louis Calderon, Nr. 33, Sector 2 |
||
| 166. |
Wicked Bar - Bucuresti
0722615188; 0723574895 Strada Spatarului, Nr. 4, Sector 2, Bucuresti |
||
| 167. |
Club B52 - Bucuresti
0753315563 11 Iunie, N. 50, Sector 5, Bucuresti |
||
| 168. |
La Ciurucuri - Restaurant cu specific international, Bucuresti
0752850850 Piata Valter Maracineanu, Nr 1-3, sector 1 |
||
| 169. |
Willy\'s Coffee Art - Bucuresti
0769911077 Bulevardul Carol I, Nr 62, sector 2, |
||
| 170. |
EXPRESS Food & Drink - Restaurant fast-food, Bucuresti
0732669922 Bd. CAROL I, Nr. 62, Sector 2 |
||
| 171. |
Urban Bistro - Restaurant cu fripturi, Bucuresti
0769918510 Strada Piata Sfantu Stefan, Nr 6, sector 2 |
||
| 172. |
Fabrica, Club,Pub, Tersa - Bucuresti
0753227422; 0753315563; 0749116508 11 iunie, Nr,50, Sector 5, Bucuresti |
||
| 173. |
BEAT bar umanist - Bar, Bucuresti
0720854187 Vasile Lascar, Nr. 29, sector 2 |
||
| 174. |
Osteria Zucca - Restaurant cu specific italian, Bucuresti
0770287979; 0314206814 Jean-Louis Calderon, Nr. 41, Sector 2, Bucuresti |
||
| 175. |
Armand, Cofetarie - Bucuresti
0310051187; 0741276263 Armand Calinescu , Nr. 25, Sector 2, Bucuresti |
||
| 176. |
Koffeev - Cafenea, Bucuresti
0767195222 Bulevardul Unirii, Nr. 57, sector 3 |
||
| 177. |
Mantuleasa 40 - Restaurant Bucuresti
0754045450; 0751133141 Str. Mantuleasa, Nr. 40, sector 2 |
||
| 178. |
Grapes - Bar cu vinuri, Bucuresti
0770463287 Bdul. Marasesti, nr.2B, sector 4 |
||
| 179. |
Sardin - Restaurant cu specific italian, Bucuresti
0729520111 Bulevardul Mircea Voda, Nr. 39H sector 3, Bucuresti |
||
| 180. |
Sarazin - Carol Fast food Bucuresti
0787625505 Bulevardul Carol I, Nr. 66, Sector 2, |
||
| 181. |
Comics Club - Stand Up, Bucuresti
0741426426 Str. Nerva Traian, Numarul 4. sector 3 |
||
| 182. |
Zeppelin Pub - Bucuresti
0722170024 Strada Marin Serghiescu, Nr. 7, sector 2 |
||
| 183. |
GinOteca - Bar, Bucuresti
0751446446 Strada Plantelor, Nr. 25, sector 2 |
||
| 184. |
Posh Birt Select - Pub, Bucuresti
0724004376 Strada Plantelor, Nr. 26, sector 2 |
||
| 185. |
Beraria Centrala - Restaurant Bucuresti
0740959311 Strada Nerva Traian, Nr. 2, Sector 3 |
||
| 186. |
Le Boutique Food Concept Store - Bucuresti
0722538274; 0314380044 Str. Sfantul Stefan, Nr. 13, sector 2 |
||
| 187. |
Newton Bar, Bucuresti
0770718303; 0213150217 Jean Louis Calderon, Nr. 56 (Universitate), Sector 2, Bucuresti |
||
| 188. |
Fadel - Patiserie Bucuresti
0786309530; 0722919132 Strada Jean Louis Calderon, Nr. 56, Sector 2 |
||
| 189. |
Green Tea Ceainarie - Bucuresti
0213209396; 0749090202 Dr. Burghelea, Nr. 24, Sector 2, Bucuresti |
||
| 190. |
B3ton - RestoBar, Bucuresti
0217963684 Bulevardul Marasesti, Nr. 2B, sector 4 |
||
| 191. |
Ciao Niki - Restaurant cu specific italian, Bucuresti
0734356217;0756044805 Strada Bocsa, Nr 4, sector 2 |
||
| 192. |
Bistro Cafe Carbon 14 - Bucuresti
0790408777 Str. Dimitrie Racovita, Nr. 18, Sector 2 |
||
| 193. |
Madame B - Tea & Pancake House, Bucuresti
0746030670 Splaiul Unirii, nr.49,sector 3, |
||
| 194. |
Quartier - Restaurant, Bucuresti
0758222244 Bd. Mircea Voda, Nr. 43, sector 3 |
||
| 195. |
Creamier - Cafenea Bucuresti
0741234567 Strada Benjamin Franklin, Nr. 5, Sector 1 |
||
| 196. |
French Bakery, Cofetarie - Bucuresti
0213114518 Benjamin Franklin, Nr. 9, Sector 1, Bucuresti |
||
| 197. |
Efes - Restaurant cu specific turcesc, Bucuresti
0737018590 Bulevardul Nerva Traian, Nr. 17 - 19, sector 3 |
||
| 198. |
Athénée Palace Hilton,Cafenea,Baruri - Bucuresti
0213033777; 0213152121; Fax: 0213152121 Episcopiei, Nr. 1-3, Sector 1 , Bucuresti |
||
| 199. |
Politica si Delicateturi Bucuresti - Restaurant cu specific romanesc
0785516681 Str. Prof. Dr. Mihail Georgescu, Nr. 24, sector 2 |
||
| 200. |
Zen Garden - Restaurant cu specific chinezesc, Bucuresti
0745102272 Strada Silvestru, Nr. 3, sector 2 |
||
| 201. |
Ambasador, Bar si Restaurant - Bucuresti
0213159080; Fax 0213123595 Bd. G-ral Gh. Magheru, Nr. 8-10, Sector 1, Bucuresti |
||
| 202. |
MagiCake - Atelier de dulciuri artizanale, Bucuresti
0772072072 Strada Alexandru Moruzzi, Nr. 4A, sector 3 |
||
| 203. |
Trofic - Restaurant pentru mic dejun si brunch
0751276600 Bd. Mircea Voda, nr. 52, sector 3 |
||
| 204. |
Thalia - Restaurant cu bucatarie internationala
0219993 Strada Cuza Voda, Nr. 147, sector 4 |
||
| 205. |
La Cena - Restaurant cu specific italian, Bucuresti
0212116717;0730210014 Maria Rosetti, Nr. 1, sector 2 |
||
| 206. |
Monte Carlo Cismigiu, Restaurant - Bucuresti
0213131344 Parcul Cismigiu, Parcul Cismigiu, Sector 1 , Bucuresti |
||
| 207. |
Gelato D\'Amore - Magazin de inghetata Bucuresti
0771727627 Strada Maria Rosetti, Nr. 13, Sector 2 |
||
| 208. |
Monte Carlo Cismigiu, Restaurant - Bucuresti
0213131344 Parc Cismigiu, Sector 1, Bucuresti |
||
| 209. |
CAJU by Joseph Hadad - Braserie, Bucuresti
0751144545 Nicolae Golescu, Nr. 16, sector 1 |
||
| 210. |
Gradina Olari - Terasa, Bucuresti
0770147410 Strada Olari, nr.8, Sector 2 |
||
| 211. |
Chocolat Ateneu - Boutique restaurant cu livrare de prajituri in Bucuresti
0743777807; 0744507506 Strada Episcopiei, Nr. 6, Sector 1, Bucuresti |
||
| 212. |
Mahala - Restaurant Bucuresti
0729003002 Calea Rahovei, Nr. 147- 153, sector 5 |
||
| 213. |
Cofetaria Madlene - Bucuresti
0753223222 Str. Traian, Nr.103, sector 2 |
||
| 214. |
Costelaria, Restaurant - Bucuresti
0314055095 Calea Rahovei, Nr. 147-150 , Sector 5, Bucuresti |
||
| 215. |
El Pato - Restaurant Bucuresti
0730344810; 0311072033 Strada Dionisie Lupu, Nr. 48, sector 1 |
||
| 216. |
Bohemia Tea House, Ceainarie - Bucuresti
0727333631 Poiana Narciselor, Nr. 1 (vizavi de Conservator), Sector 1, Bucuresti |
||
| 217. |
Time Out Cafe - Bar & Cafenea Bucuresti
0744644400 Strada Olari, Nr. 7, sector 2 , |
||
| 218. |
Krishna Caffe - Cafenea Bucuresti
0729745988;0740133254 Bd. Mihail Kogalniceanu, Nr. 17, sector 5, |
||
| 219. |
Pizzicato, Pizzerie si catering - Bucuresti
0212111213 Strada Icoanei, Nr. 2, Sector 2, Bucuresti |
||
| 220. |
Miss Ale - Espresso Bar, Bucuresti
0371394059 Calea Victoriei, Nr. 100, sector 1 |
||
| 221. |
Restaurant Home - Bucatarie internationala, Bucuresti
0722509794; 0728708216; 0729811130 Str. Alexandru Xenopol, Nr. 1 (zona Gradina Icoanei), Sector 1, Bucuresti |
||
| 222. |
Flair Angel - Bar specializat in cocktailuri, Bucuresti
0769771991 Calea Rahovei, Nr. 147-153, sector 5 |
||
| 223. |
Baroque Events & Garden - Restaurant Bucuresti
0726350802 Calea Rahovei, Nr. 145, Sector 5 |
||
| 224. |
Restaurant Burebista Traditional - Bucuresti
0755041484; 0212109704 Calea Mosilor, Nr 195, sector 2 |
||
| 225. |
Coftale Coffee Shop - Cafenea, Bucuresti
0746420874 Strada Profesor Stefan Mihaileanu, Nr.42, sector 2 |
||
| 226. |
Paninaro - Restaurant pentru mic dejun si brunch
0771783619 Strada Luterana, Nr 3, sector 1 |
||
| 227. |
Tarab - Restaurant cu specific libanez, Bucuresti
0774411111 Strada Nerva Traian, Sector 3 |
||
| 228. |
Pizza Bar - Pizzerie, Bucuresti
0746013623 Lanariei, nr. 5, sector 4 |
||
| 229. |
Cald si Bun, Catering - Bucuresti
0212339457; 0737526215 Hatmanul Arbore, Nr. 11, Sector 1, Bucuresti |
||
| 230. |
L\'Amande - Deserturi fara gluten, Bucuresti
0744639549 Str. Lanariei, Nr. 93-95, sector 4 |
||
| 231. |
Cafe Verona - Cafenea Bucuresti
0732003060 Str. Arthur Verona, Nr. 13, sector 1, |
||
| 232. |
Bragageria Bogdania - Bistro, Bucuresti
0787877985 Str. Olari, Nr. 20, Sector 2 |
||
| 233. |
Suzana Ribs & Wings - Restaurant cu specialitati texane, Bucuresti
0785444466 Calea Rahovei, Nr. 147-153, Sector 5, Palatul Bragadiru |
||
| 234. |
Savart - Arta savorilor Gourmet, Bucuresti
0743575757 Str. George Enescu, Nr. 2-4, sector 1 |
||
| 235. |
Bouzouki - Restaurant specific grecesc, Bucuresti
0787528003 Bulevardul Sincai Gheorghe, Nr. 3, sector 4 |
||
| 236. |
La Copac - Carciuma de jupani, Bucuresti
0722704445 str. Pitar Mos, nr. 23, sector 1 |
||
| 237. |
Terminus - Pub, Bucuresti
0730222555 Str. George Enescu, nr. 5, sector 1, |
||
| 238. |
Salon Golescu - Bar specializat in cocktailuri, Bucuresti
0314360338 Strada Nicolae Golescu, Nr 17, sector 1 |
||
| 239. |
Il Cantuccio, Restaurant - Bucuresti
0722572957 (Sef unitate: Baieticu Ioana); 0735281669 (Sef unitate: Otvos Gabriela); 0724540839 (Manager: Florea Valentin) Fabrica de Chibrituri , Nr. 2, Rond Autogara Filaret, sector 4, Bucuresti |
||
| 240. |
Primus Pub - Bucuresti
0732222666 George Enescu, Nr. 3, sector 1 |
||
| 241. |
Wine Ambassador - Bar de vinuri, Bucuresti
0733182037 Intrarea Biserica Alba, nr.1, sector 1 |
||
| 242. |
Nicoresti, Restaurant - Bucuresti
0212112480; 0724290550 Toamnei, Nr. 13 (colt cu Maria Rosetti nr. 40), Sector 2, Bucuresti |
||
| 243. |
Il Cantuccio, Restaurant - Bucuresti
0722572957 (Sef unitate: Baieticu Ioana); 0735281669 (Sef unitate: Otvos Gabriela); 0724540839 Manager: Florea Valentin) Fabrica de Chibrituri, Nr. 2, Rond Autogara Filaret, sector 4, Bucuresti |
||
| 244. |
M60 - Cafenea Bucuresti
0314100010 Strada Mendeleev, Nr 2, sector 1 |
||
| 245. |
Cofetaria Zora - Bucuresti
0771119563 Strada Uranus, Nr. 100, Sector 5 |
||
| 246. |
Lugo - Restaurant cu specific mediteranean, Bucuresti
0785238910 George Enescu, Nr. 23, sector 1 |
||
| 247. |
Trattoria Don Vito - Restaurant Bucuresti
0733333021 Str. Mendeleev, Nr. 1, Sector 1 |
||
| 248. |
Restaurant Grill Verdetei 5 - Restaurant cu preparate la gratar, Bucuresti
0766411338 Strada Verdetei, nr. 5, sector 3 |
||
| 249. |
Journey Pub - Bucuresti
0752285286 Strada George Enescu, Nr. 25, sector 1 |
||
| 250. |
La Machedoni - Restaurant cu specific traditional romanesc si american
0721512236 Anastasie Panu, nr. 10, sector 3 |
||
| 251. |
Patiseria Tineretului - Bucuresti
0761116622 Bd. Gheorghe Sincai, Nr 2A, sector 4 |
||
| 252. |
Ambasador, Restaurant - Hotel Ambasador, Bucuresti
0213159080 Bd. G-ral Ghe. Magheru, Nr. 8-10, Sector 1, Bucuresti |
||
| 253. |
Unico Vero - Restaurant cu specific italian, Bucuresti
0212123338;0758110265 Strada Viitorului, Nr. 8, sector 2 |
||
| 254. |
Gusto e Passione - Gelateria Artigianale, Bucuresti
0755555453 Calea Victoriei, Nr. 87, sector 1 |
||
| 255. |
Red Angus Steakhouse - Restaurant Bucuresti
0756600000 Piata Amzei, Nr. 10-22Sector 1, |
||
| 256. |
Cofetaria Ina - Bucuresti
0723300213 Str. C-tin Radulescu Motru, Nr. 6, Sector 4 |
||
| 257. |
Lente - Restaurant pentru mic dejun si brunch, Bucuresti
0314107585 Dionisie Lupu, Nr 78, sector 1 |
||
| 258. |
Point Hub - Hub Cultural, Bucuresti
0748291815 Str. General Eremia Grigorescu, nr. 10, sector 1, |
||
| 259. |
Tulin, Restaurant libanez - Bucuresti
0213144001; 0762212675 Pictor Constantin Stahi, Nr. 2, Sector 1, Bucuresti |
||
| 260. |
Din Fu - Restaurant chinezesc Bucuresti
0729313338; 0213260127 Str. Alexandru Moruzzi, Nr. 76A, Sector 3 |
||
| 261. |
Velocita - Gelaterie, Bucuresti
0739889189 Calea Victoriei, Nr. 122, sector 1 |
||
| 262. |
Sweetology - Gelaterie, Bucuresti
0734444889 Calea Victoriei, Nr. 122, sector 1 |
||
| 263. |
Shift Pub - Bucuresti
0212112272 Str. General Eremia Grigorescu, Nr.17 |
||
| 264. |
Sare si Piper - Restaurant cu specific italian, Bucuresti
0744663451 Str. Viorele, nr. 26, zona Timpuri Noi, sector 4, Bucuresti |
||
| 265. |
Bar A1 - Bucuresti
0770901409 Piata Amzei, Nr 1, sector 1 |
||
| 266. |
Camera din fata - Ceainaria Bucuresti
0213111512 Str. Mendeleev, Nr. 22, sector 1, langa Piata Amzei |
||
| 267. |
Luna Cafe & Bistro - Bucuresti
0771609431; 0771211246 Str. Viitorului, Nr. 32, sector 2, |
||
| 268. |
Fika18 - Croissanterie, Bucuresti
0770663982 Calea Victoriei, Nr. 101, sector 1 |
||
| 269. |
De Cartier - Restaurant de tip familial, Bucuresti
0213305556 Str. Viorele, Nr. 57A, sector 4 |
||
| 270. |
Tabiet 41 - Restaurant, Bucuresti
0314260278 Strada Viorele, nr.59, sector 4 |
||
| 271. |
Chong Qing - Restaurant cu specific chinezesc, Bucuresti
0212525095; 0731383952 B-dul Pache Protopopescu, Nr.28, sector 2 |
||
| 272. |
Edo Sushi - Restaurant cu specific japonez, Bucuresti
0735111095 Stirbei Voda, Nr 84A, sector 1 |
||
| 273. |
Bistro Turturelelor - Restaurant, Bucuresti
0726310583; 0758887454 Strada Turturelelor, 11A, corpC, Parter, Sector 3 |
||
| 274. |
King Rolls - Fast Food Bucuresti
0747887206 Calea Vitan, Nr. 17A, sector 3 |
||
| 275. |
Parliament, Restaurant - Bucuresti
0214119990; 0214119991; 0721332397 Izvor , Nr. 106, Sector 5 , Bucuresti |
||
| 276. |
No10 - Restaurant cu specific italian
0741210003 Strada Austrului, Nr. 10, sector 2 |
||
| 277. |
Parliament, Restaurant - Bucuresti
0214119990; 0214119991; 0721332397 Str. Izvor, Nr. 106, Sector 5 , Bucuresti |
||
| 278. |
Bellini Garden - Restaurant cu specific italian, Bucuresti
0722100111; 0314278776 str. General Henri Mathias Berthelot, nr. 44, sector 1 |
||
| 279. |
Trattoria Fresca - Restaurant cu specific italian, Bucuresti
0731333410 Str.Popa Nan, nr.140, Sector 2 |
||
| 280. |
Il Destino, Restaurant italian - Bucuresti
0212103039; 0758836278; 0744318094 (Pentru evenimente) Silvestru, Nr. 67, Sector 2, Bucuresti |
||
| 281. |
KFC Romana, Fast Food - Bucuresti
0740121904 Bd. G-ral Gh. Magheru , Nr. 28-30, Sector 1 , Bucuresti |
||
| 282. |
Oktoberfest Pub - Bucuresti
0724333233 Popa Nan, Nr. 95, Sector 3, Bucuresti |
||
| 283. |
Bellini Pizza - Bucuresti
0314278776 General Henri Matias Berthelot, Nr. 44,Sector 1, Bucuresti |
||
| 284. |
Burger Peter - Restaurant cu burgeri Bucuresti
0799981031 Strada Popa Nan, Nr. 48, sector 2 |
||
| 285. |
Casa Veche - Restaurant, Ramnicu Valcea
0747875045 ; 0748702238; 0350418155 Stirbei Voda, Nr.162, Ramnicu Valcea, judetul Vilcea |
||
| 286. |
Barrio - Restaurant & bar, Bucuresti
0733222777 Biserica Amzei, Nr. 30, sector 1 |
||
| 287. |
Cofetaria Casandra - Bucuresti
0757252466 B-dul. Magheru, Nr. 32-36, Sector 1 |
||
| 288. |
Sweet Sophie - Cofetarie
0748309063 Strada Popa Nan, Nr. 22, sector 2 |
||
| 289. |
Casa Oamenilor de Stiinta - Restaurant, Bucuresti
0726664227; 0722926012; 0769293579 P-ta Lahovari, nr. 9, Sector 1 |
||
| 290. |
Tonka Soul Café - Bucuresti
0371445255 Biserica Amzei , Nr. 19, Sector 1, Bucuresti |
||
| 291. |
Old Mike Pub si Restaurant - Bucuresti
0787366166 Morilor, Nr. 46 Sector 3, Bucuresti |
||
| 292. |
Trattoria Della Nonna - Restaurant cu specific italian, Bucuresti
0771697503 Strada Popa Nan, Nr. 5, sector 2 |
||
| 293. |
Noua - Restaurant cu specific romanesc, Bucuresti
0217943294 Strada Popa Nan, Nr. 7, sector 2 |
||
| 294. |
Mon Paris Restaurant & Lounge - Restaurant cu specific european, Bucuresti
0799973783 Bd Dacia, Nr. 62, sector 2 |
||
| 295. |
Ivan Pescar & Scrumbia Bar - Restaurant pescaresc, Bucuresti
0729384828 Str. Uranus, nr 150, cladirea The Ark, parter, sector 5 |
||
| 296. |
Coolinart - Gastropub Bucuresti
0772017955 Calea Victoriei, Nr. 142-148, sector 1 |
||
| 297. |
Casual Pub - Restaurant Bucuresti
0770841212 Bd. Dacia, Nr. 104, Sector 2 |
||
| 298. |
The Owl Cocktail House - Bar specializat in cocktailuri, Bucuresti
0743260923 str. Stirbei Voda, Nr. 104-106, sector 1 |
||
| 299. |
Kicen - Ciorbe de casa, Bucuresti
0751012221 str. Dr. Staicovici, nr. 43, sector 5 |
||
| 300. |
Contesa, Restaurant - Bucuresti
0731831891; 0722244214; 0213317171 Sibiel, Nr. 5, sector 4, Bucuresti |
||
| 301. |
Ceai la Vlaicu - Ceainarie Bucuresti
0727609699 Str. Aurel Vlaicu, Nr. 47, sector 2 |
||
| 302. |
Benihana - Restaurant cu specific japonez
0751169889 Calea Dorobantilor, Nr. 5-7 Hotel Howard Johnson, sector 1, |
||
| 303. |
Dolce Principessa Cofetarie - Bucuresti
0212115155; 0735213101 Calea Dorobanti, nr. 50A, sector 1, Bucuresti |
||
| 304. |
Pizza Hut - Bucuresti
0740121901 Calea Dorobantilor , Nr. 5-7, Sector 1 , Bucuresti |
||
| 305. |
Dines, Restaurant evenimente - Bucuresti
0213362474; 0723634741; 0727968325 (Predescu Constantin) Cutitul de Argint, Nr.12 (langa Arenele Romane) Sector 4, Bucuresti |
||
| 306. |
Karishma, Restaurant indian - Bucuresti
0212525157; 0737519953 Iancu Capitanu, Nr. 36, Sector 2, Bucuresti |
||
| 307. |
Maison des Crepes - Clatitarie Bucuresti
0770802524 Strada Mihai Eminescu, Nr. 38, Sector 2 |
||
| 308. |
Sale Dolce, Restaurant - Bucuresti
0736858430; 0735123687 Matei Voievod, Nr. 20, Sector 2, Bucuresti |
||
| 309. |
Rocca by The Jar - Gastropub Bucuresti
0770857841 Str. Pictor Theodor Aman, Nr. 36, sector 1 |
||
| 310. |
Bistro raw vegan, Restaurant - Bucuresti
0726605501 Transilvaniei, Nr. 11, Sector 1, Bucuresti |
||
| 311. |
Arome - Restaurant vegetarian/vegan, Bucuresti
0749109639 Luigi Cazzavillan, Nr. 25, sector 1 |
||
| 312. |
Panik & Pub - Pub, Bucuresti
0728264360 Str. Mihai Eminescu, Nr. 33 |
||
| 313. |
Boema 33 - Restaurant, Bucuresti
0722295463 Bd. Dacia, nr. 33, sector 1 (Piata Romana) |
||
| 314. |
Arogant - Restaurant & Lounge, Bucuresti
0732764268 Piata Alba Iulia Piata Alba Iulia, nr 8, sector 3 |
||
| 315. |
Paque Bistro - Restaurant cu bar, Bucuresti
0722330607 Bulevardul Pache Protopopescu, nr.60, sector 2 |
||
| 316. |
La Giuggiola - Gelateria artizanala italiana Bucuresti
0770107183 Bulevardul Pache Protopopescu, Nr. 57, Sector 2 |
||
| 317. |
Old School, Restaurant - Bucuresti
0744105445; 0745110362 Calea Plevnei, Nr. 61, Sector 6, Bucuresti |
||
| 318. |
Blunch Bistro - Restaurant, Bucuresti
0736898990 Mihai Eminescu, Nr.181, sector 2 |
||
| 319. |
Resto Aperto, Restaurant - Bucuresti
0738741118 Calea Vitan, Nr.55-59 (Bucuresti Mall) Sector 3, Bucuresti |
||
| 320. |
Haveli, Restaurant - Bucuresti
0212110390; 0721721640 Episcopul Radu, Nr. 3, Sector 2, Bucuresti |
||
| 321. |
Banjo Jack - Restaurant cu burgeri, Bucuresti
0770653341 Strada Iancu Capitanu, Nr 26, sector 2 |
||
| 322. |
Bocca Lupo - Restaurant cu specific italian, Bucuresti
0314050050 Strada Dr. Lister, nr. 1, sector 5 |
||
| 323. |
Ubuntu Coffee - Terasa, Bucuresti
0758635771 Splaiul Unirii, Nr. 195, sector 3 |
||
| 324. |
Cuptorul cu Lemne, Pizza - Bucuresti
021.9363; 0212524493; (021) 9363 - tasta 0 Bd. Pache Protopopescu, Nr. 63, Sector 2, Bucuresti |
||
| 325. |
El Torito, Restaurant - Bucuresti
0212526688; 0728176059 Iancu Capitanu , Nr. 30, Sector 2, Bucuresti |
||
| 326. |
Shiva Coffee&Tea - Cafenea Bucuresti
0748874482 Strada Mihai Eminescu, Nr. 73, sector 2 |
||
| 327. |
VINO - Bar de vinuri, Bucuresti
0799944999 Strada Mihai Eminescu, Nr. 71 |
||
| 328. |
La Mama - Restaurant Bucuresti
0721526262 Strada Delea Veche, Nr. 51, sector 2 |
||
| 329. |
La Impinge Tava - Bucuresti
0721150452 Str. Mihai Eminescu, Nr. 73, Sector 2 |
||
| 330. |
Cuptorul cu Lemne - Restaurant pizzerie Bucuresti
0219363 Bd. Pache Protopopescu, Nr 65, sector 2 |
||
| 331. |
Fast Food Eminescu - Bucuresti
0723161166 Str. Mihai Eminescu, nr 137, sector 2 |
||
| 332. |
Resto Aperto, Restaurant - Bucuresti
0738741118 Calea Vitan , Nr.55-59(Bucuresti Mall) Sector 3, Bucuresti |
||
| 333. |
Turkish Clasis - Restaurant, Bucuresti
0721503011 Sos Viilor, nr.27, sector 5 |
||
| 334. |
Modelier - Bistro, cocktails Bucuresti
0799630693 Strada Duzilor, Nr. 12, sector 2 |
||
| 335. |
Turquoise - Restaurant cu specific oriental, Bucuresti
0731826222 Strada Theodor D. Sperantia, Nr. 96, sector 3 |
||
| 336. |
Nikos Greek Taverna, Restaurant - Bucuresti
0730001008 (Restaurant); 0215999099 (Livrari) B-dul Burebista, Nr 2 (Piata Alba Iulia), Sector 3, Bucuresti |
||
| 337. |
Gio Cafe - Bucuresti
0730030757 Bd. Burebista, Nr.2 , Sector 3, Bucuresti |
||
| 338. |
Lotus Cafe - Cafenea restaurant Bucuresti
0722808389 Bd. Decebal, Nr 1, sector 3 |
||
| 339. |
Giorginio Cofetarie - Bucuresti
0722434002 Calea Dudesti, Nr. 129 (colt cu str. Scoala Ciocanul) Sector 3, Bucuresti |
||
| 340. |
Cucina di casa - Pizzerie, Bucuresti
0735868318 Calea Vacaresti, Nr. 230, sector 4 |
||
| 341. |
Pizza PPH - Pizza si catering, Bucuresti
0319441 Str. Lirei, Nr. 13, sector 2 |
||
| 342. |
Prajituri de Casa - Cofetarie Bucuresti
0751135153 Calea Mosilor, Nr. 225, sector 2 |
||
| 343. |
Laur Express Food - Restaurant fast-food, Bucuresti
0732455089 Bulevardul Ferdinand I, Nr. 60, sector 2 |
||
| 344. |
Padthai - Restaurant Bucuresti
0726637747 Bulevardul Decebal, Nr. 3, sector 3 |
||
| 345. |
Acuarela Bufet - Bucuresti
0745662889; 0741403238; 0721483051 Polona, Nr. 40,Sector 1, Bucuresti |
||
| 346. |
Tress Caffe&Lounge - Bucuresti
0721988801 Bulevardul Decebal, Nr 3, sector 3 |
||
| 347. |
Animaletto Pizza Bar - Bucuresti
0755019098 Strada Visarion, Nr 10, sector 1 |
||
| 348. |
Ana Pan Cofetarie - Bucuresti
0216373536; 0730262726; 0212332241 Stirbei Voda, Nr. 166,Sector 1, Bucuresti |
||
| 349. |
El Bacha, Restaurant - Bucuresti
0212691392; 0722833333 P-ta Alba Iulia, nr.6 bl.15, sector 3, |
||
| 350. |
La Calinescu - Restaurant cu specific romanesc, Bucuresti
0788472725; 0213310750 Strada Piscului, Nr. 16, sector 4 |
||
| 351. |
J\'ai Bistrot - Gastropub, Bucuresti
0790229922 Calea Grivitei, nr. 55, sector 1 |
||
| 352. |
Fatafit - Restaurant cu specific libanez, Bucuresti
0760445555 Calea Mosilor, Nr. 225, Sector 2 |
||
| 353. |
Volare - Pizzerie, Bucuresti
0730622600 Calea Vacaresti, Nr.203B, sector 4 |
||
| 354. |
Ciccio - Pizzerie Bucuresti
0745515510 Strada Henri Coanda, Nr. 28 sector 1 |
||
| 355. |
Jazz Book - Club de jazz si blues, Bucuresti
0752206746 Doctor Carol Davila, Nr. 1, Cotroceni, sector 5 |
||
| 356. |
China Town Restaurant - Bucuresti
0726130138; 0788671161; Tel/Fax:0212120239 Viitorului, Nr. 98, Sector 2, Bucuresti |
||
| 357. |
Ici et La - Restaurant cu specific francez Bucuresti
0731453608 Strada Domnita Ruxandra, Nr. 7, Sector 2 |
||
| 358. |
XO Lounge - Restaurant Bucuresti
0725585388 B-dul Decebal, Nr. 5, sector 3 |
||
| 359. |
Rainbow - Bar & Grill, Bucuresti
0743205054 Cornul Caprei, nr.53, sector 3 |
||
| 360. |
Suento - Restaurant cu specific european modern, Bucuresti
0787605362 Strada Toamnei, Nr. 101, sector 2 |
||
| 361. |
Casa Lica - Cofetarie Bucuresti
0725761188 Bulevardul Decebal, Nr. 5, Sector 3 |
||
| 362. |
SwitchEat - Restaurant cu burgeri Bucuresti
0726023881 Strada Horei, Nr 34, sector 2 ( la doi pasi de Foisorul de Foc) |
||
| 363. |
La Taifas, Bistro - Bucuresti
0723197156; 0212127788 Mihail Moxa, Nr. 12, Sector 1 , Bucuresti |
||
| 364. |
Ceramic Cafe - Bucuresti
0774007364 I.C. Visarion, Nr 20, sector 1 |
||
| 365. |
Gradina Eden - Terasa Bucuresti
0722185368 Calea Dorobanti, Nr. 44-46 sector 1 |
||
| 366. |
Torna Fratre Restaurant - Bucuresti
0212103557; 0784111890 Tunari, Nr. 34, Sector 2, Bucuresti |
||
| 367. |
Club Art Papillon Restaurant - Bucuresti
0212522520; 0732582278; 0722240930 Matei Voievod , Nr. 66A Sector 2, Bucuresti |
||
| 368. |
Black Habit - Cafenea
0770357382 Calea Grivitei, Nr. 77, sector 1 |
||
| 369. |
Casa Jienilor Agricultori, Restaurant - Bucuresti
0735994994 Agricultori, Nr.12, Sector 2, Bucuresti |
||
| 370. |
Agio Bistrot - Bistro, Bucuresti
0763528818 Bd. Decebal, Nr. 9, sector 3 |
||
| 371. |
Decadence - Bar & Restaurant
0741828489 Strada Constantin Daniel, nr. 11, sector 1 |
||
| 372. |
La petite bouffe - Cafenea, Bucuresti
0733669344 Strada Doctor Louis Pasteur, nr 38, sector 5 |
||
| 373. |
Casa Brancoveanu Restaurant - Bucuresti
0724640000; 0314245890; 0762643010 Caramidarii de Jos, Nr.14, Sector 5, Bucuresti |
||
| 374. |
Alceva - Restaurant, Bucuresti
0770844125 Matei Voievod, Nr. 79, sector 2, |
||
| 375. |
Funky Lounge - Terasa, Bucuresti
0755505505 Bd. Decebal, nr 9, sector 3 |
||
| 376. |
Mazzaj Cafe - Restaurant cu specific libanez, Bucuresti
0757292398 Splaiul Unirii, Nr. 162, sector 4 |
||
| 377. |
Nabu - Bar Bucuresti
0787407043 Pache Protopopescu, Nr. 97, sector 2 |
||
| 378. |
Trattoria Mezzaluna - Restaurant specific italian Bucuresti
0729591469 Calea Dorobanti, Nr. 63, sector 1 |
||
| 379. |
Rich Vip Lounge - Restaurant Bucuresti
0771790764 Bd.Decebal, Nr 9, sector 3 |
||
| 380. |
Citylicious - Restaurant Bucuresti
0771707709 Bld Tudor Vladimirescu, Nr. 29, sector 5 |
||
| 381. |
Belli Siciliani - Restaurant autentic sicilian, Bucuresti
0799090601 Str. Matasari, Nr. 47, sevtor 2, |
||
| 382. |
Nan Jing, Restaurant chinezesc - Bucuresti
0213181285; 0726103407 G-ral Gheorghe Manu, Nr. 2-4 (Hotel Minerva), Sector 1, Bucuresti |
||
| 383. |
Gallo Nero, Restaurant - Bucuresti
0726544889; 0213268128 Bd. Decebal, Nr. 12, Sector 3, Bucuresti |
||
| 384. |
La Cantine de Nicolai, Restaurant - Bucuresti
0725210608 Povernei, Nr. 15-17, Sector 1, Bucresti |
||
| 385. |
Bistro HB - Restaurant Bucuresti
0735011736; 0735011735; 0735011737 Strada Matasari, Nr. 49 Sector2 |
||
| 386. |
La Taifas, Restaurant - Bucuresti
0212127788; 0723197156 Gheorghe Manu, Nr. 16, sector 1 , Bucuresti |
||
| 387. |
Bistro La Taifas, Restaurant - Bucuresti
0212127788; 0723197156 Gheorghe Manu, Nr. 16, Sector 1, Bucuresti |
||
| 388. |
Old Kitchen - Restaurant Bucuresti
0732773537 Str. Sfintii Voievozi, Nr. 13, Sector 1 |
||
| 389. |
Naser - Restaurant specific libanez Bucuresti
0799980001; 0799980002; 0213135060 Str. Fluierului, Nr. 18, sector 2 (colt cu Str. Matasari, in spatele PRO TV) |
||
| 390. |
Friddi - Gelaterie, Bucuresti
0314313295 Str. Vasile Alecsandri, Nr. 4, sector 1 |
||
| 391. |
Nicolai To Go - Bistro Bucuresti
0741600006 Calea Dorobantilor, Nr. 67, sector 1 |
||
| 392. |
Blue Margarita - Restaurant cu specific mexican Bucuresti
0770944822 Strada Povernei, Nr. 15-17, sector 1 |
||
| 393. |
Kvala - Restaurant grecesc, Bucuresti
0726731663 str Louis Pasteur, nr 63, sector 5 |
||
| 394. |
SupaDupa - Restaurant cu supe si ciorbe, Bucuresti
0739344281 Strada Popa Tatu, Nr. 94, sector 1 |
||
| 395. |
Turquoise Bakery - Bucuresti
0739037919 Str. Matei Voievod, nr.101, Sector 2 |
||
| 396. |
Ciorbarie - Restaurant cu supe si ciorbe, Bucuresti
0785610628 Calea Dorobanti, Nr. 73, sector 1 |
||
| 397. |
Ceainaria Infinitea
0723175300 Str. Dr. Grigore Romniceanu, Nr.7, ap.2, sector 5 |
||
| 398. |
La Matache Restaurant (comenzi online si livrari la domiciliu)
0213107327; 0213107337; 0213118888 P-ta. Dr. Haralambie Botescu, Nr. 2, Sector 1, Bucuresti |
||
| 399. |
Dada Restaurant - Bucuresti
0729997405; 0724015800 Str. Matei Voievod , nr. 94bis, sector 2, |
||
| 400. |
Trafalgar Pub - Bucuresti
0212113151; 0766625805 David Emanuel , Nr. 4A, Sector 1, Bucuresti |
||
| 401. |
Duman - Restaurant cu specific oriental, Bucuresti
0738170063 Bulevardul Decebal, Nr. 13, sector 3 |
||
| 402. |
Snap - Restaurant, Bucuresti
0738888885 Bulevard Decebal, nr. 13, sector 3 |
||
| 403. |
Bike Boutique and More - Magazin, terasa, service, Bucuresti
0752405152 Strada Profesor Doctor Victor Babes, Nr. 2, sector 5 |
||
| 404. |
Pizza Venetia, Pizzerie si catering - Bucuresti
0720800100; 0213204424; Fax: 0720800100 Dristorului, Nr.59, Sector 3, Bucuresti |
||
| 405. |
Casa Jienilor, Restaurant - Bucuresti
0212121951; 0722916111 Fainari, Nr. 5, Sector 2, Bucuresti |
||
| 406. |
Hop Garden - Restaurant cu preparate la gratar, Bucuresti
0770448443 Splaiul Unirii, Nr. 225, sector 3 |
||
| 407. |
Veranda Casa Frumoasa - Restaurant Bucuresti
0733735932 Str. Clopotarii Vechi, Nr. 5, sector 1 |
||
| 408. |
Restaurant La Teu - Bucuresti
0723642022 Strada Titu Maiorescu, Nr.18, sector 2 |
||
| 409. |
Casa Jienilor Fainari, Restaurant - Bucuresti
0212121951; 0735994994 Fainari, Nr. 5, Sector 2, Bucuresti |
||
| 410. |
Casa Jienilor, Restaurant - Bucuresti
0212121951; 0722916111; Fax 0212121951 Fainari, N. 5, Sector 2, Bucuresti |
||
| 411. |
The Artist Restaurant - Bucuresti
0728318871 Calea Victoriei, Nr.147, sector 1 |
||
| 412. |
Lolita - Boutique de dulciuri Bucuresti
0757013453 Strada Vasile Lascar, Nr. 212, sector 2 |
||
| 413. |
Templul Soarelui, Restaurant chinezesc - Bucuresti
0212111693; 0723743878 Vasile Lascar, Nr. 205, Sector 2, Bucuresti |
||
| 414. |
Templul Soarelui, Restaurant chinezesc - Bucuresti
0212111693; 0723743878 Vasile Lascar, Nr. 205, Sector 2, Bucuresti |
||
| 415. |
Cristal - Cofetarie
0760090324 Str. Matei Voievod, nr. 108, sector 2 |
||
| 416. |
PengYou - Restaurant specific chinezesc Bucuresti
0787748272 Str. Occidenului, Nr. 11, Sector 1 |
||
| 417. |
La Finca by Alioli - Restaurant Bucuresti
0767150500 Str. Caderea Bastiliei, Nr. 78, Sector 1, |
||
| 418. |
La Birlic - Terasa, Bucuresti
0722318168; 0752318168; 0212525151 Bulevardul Pache Protopopescu, Nr. 125, sector 2 |
||
| 419. |
Sara Green - Restaurant vegan, Bucuresti
0774962246;0765191076 Bulevardul Lascar Catargiu, Nr 43, Sector 1 |
||
| 420. |
Za Lokal - Restaurant pentru mic dejun si brunch, Bucuresti
0770557931 Calea Victoriei, Nr 214, sector 1 |
||
| 421. |
Hashtag Pub - Bucuresti
0771555444 Soseaua Mihai Bravu, Nr 32, sector 2 |
||
| 422. |
Derby Pub & Restaurant - Bucuresti
0214108545 Bd. Eroilor Sanitari , Nr. 49A,sector 5, Bucuresti |
||
| 423. |
BaKings - Cofetarie Bucuresti
0744642929 Strada Ilarie Chendi, Nr. 28, sector 2 |
||
| 424. |
The Mark - Restaurant pub Bucuresti
0758505500 Calea Grivitei, Nr. 84-98, sector 1 |
||
| 425. |
Vanilla, Cofetarie - Bucuresti
0733058058 Mihai Bravu, Nr. 47, Parter, Sector 2, Bucuresti |
||
| 426. |
Capital Plaza, Hotel si Restaurant - Bucuresti
0372080080; Fax: 0372080081 Bd. Iancu de Hunedoara, Nr. 54, Sector 1, Bucuresti |
||
| 427. |
Terasa Florilor - Restaurant cu terasa, Bucuresti
0755097931 Str. Ion Maiorescu, nr. 42, sector 2 |
||
| 428. |
Mezze, Restaurant libanez - Bucuresti
0213116633; 0720044469 Mircea Vulcanescu, Nr.153 B,Sector 1 , Bucuresti |
||
| 429. |
Ciorbe si Placinte - Restaurant cu specific romanesc, Bucuresti
0755993070 B-dul Iancu de Hunedoara, Nr. 64, sector 1 |
||
| 430. |
Casa Jienilor, Restaurant - Bucuresti
0735994994; 0722916111 Str. Fainari, nr. 5, sector 2, |
||
| 431. |
Restaurant Sole - Bucuresti
0722587589 Bd. Iancu de Hunedoara, Nr. 48, etaj 15, sector 1 |
||
| 432. |
Amareto, Cofetarie - Bucuresti
0736659592; 0723830104; 0723830104 whatsapp Sos. Stefan cel Mare , Nr. 36, Sector 2 (vis-a-vis de Circul Metropolitan Bucuresti), Bucuresti |
||
| 433. |
Graffiti Urban Food, Bucuresti
0749433433; 0733695443; 0769180180 Str.Carol Davila, Nr. 56A, Sector 5, Bucuresti |
||
| 434. |
Erra - Restaurant cu specific european modern, Bucuresti
0734983984 Str. Constantin Nottara, Nr 13, sector 3 |
||
| 435. |
Capital Plaza, Hotel si Restaurant - Bucuresti
0372080050; 0372080081 Bd.Iancu de Hunedoara, Nr. 54, Sector 1, Bucuresti |
||
| 436. |
Casa Dragonului, Restaurant Bucuresti
0213202666; 0761929019 Calea Dudesti, nr. 198, sector 3, Bucuresti |
||
| 437. |
Domino\'s Pizza, Fast food - Bucuresti
0736500200 Bd. Iancu de Hunedoara, nr. 38, sector 1 , Bucuresti |
||
| 438. |
Coclinta Brasserie- Restaurant cu specific romanesc, Bucuresti
0770238774 Calea Victoriei, Nr. 153, sector 1 |
||
| 439. |
Pasticceria Giuseppina Cofetarie - Bucuresti
0730283947 Soseaua Stefan cel Mare, Nr.46, Sector 2, Bucuresti |
||
| 440. |
Domino\'s Pizza - Bucuresti
0736500200 Bd. Iancu de Hunedoara, Nr. 38, Sector 1 , Bucuresti |
||
| 441. |
City Grill Restaurant - Bucuresti
0722446766; 0724599886 Bulevardul Lascar Catargiu, Nr. 56, Sector 1, Bucuresti |
||
| 442. |
Trattoria Buongiorno - Restaurant cu specific italian, Bucuresti
0722446766 Bdul. Lascar Catargiu, Nr. 56, sector 1 |
||
| 443. |
Hatz Burger Studio - Restaurant cu burgeri
0770920018 Soseaua Stefan cel Mare, Nr. 240, Bl. 59A, Sector 2 |
||
| 444. |
Intermacedonia, Restaurant - Bucuresti
0212522010; 0212527331; 0212522190 Sos. Mihai Bravu, Nr.95-100, Sector 2 (P-ta Iancului) , Bucuresti |
||
| 445. |
Delice Grill - Restaurant fast-food Bucuresti
0721112244 Soseaua Mihai Bravu, Nr 139-145, sector 2 |
||
| 446. |
Die Deutsche Kneipe - Restaurant cu specific german
0722284560 Str. Stockholm, nr. 9, sector 1, |
||
| 447. |
Grivita - Pub&Grill, Bucuresti
0724748482 Calea Grivita, Nr. 130 (Parter Eurohotels), |
||
| 448. |
Alice, Cofetarie - Bucuresti
0744486465 Sos. Mihai Bravu, Nr. 123-135, Sector 2, (zona Piata Iancului - langa Sectia 8 de Politie), Bucuresti |
||
| 449. |
KALI - Restaurant cu bufet, Bucuresti
0725988889 Strada Buzesti, Nr. 71, Sector 1 |
||
| 450. |
Fayn Urban Eatery - Restaurant, Bucuresti
0723257692 Strada Buzesti, nr. 71, sector 1 |
||
| 451. |
ChefBox - Restaurant, Bucuresti
0728800528 Buzesti, Nr. 57-59, sector 1 |
||
| 452. |
Cofetaria Andreea
0213228845; 0728877033 Sos. Mihai Bravu , Nr. 286, sector 3, Bucuresti |
||
| 453. |
Andreea, Cofetarie, torturi si patiserie - Bucuresti
0728877033; 0213228845 Bulevardul Mihai Bravu, Nr. 286, Sector 3, Bucuresti |
||
| 454. |
Bravu Burger & Crepes - Restaurant fast-food, Bucuresti
0722118100 Soseaua Mihai Bravu, Nr 452 - 460, sector 2 |
||
| 455. |
Cofetaria Lush - Bucuresti
0720976019?; 0721605303 Soseaua Stefan cel Mare, Nr. 226, bloc.44, parter, sector 2 |
||
| 456. |
Burgeria Cotroceni - Restaurant fast-food, Bucuresti
0314214777 Soseaua Cotroceni, Nr. 9, sector 6 |
||
| 457. |
Restaurant Ali Baba - Specific oriental, Bucuresti
0213274810; 0722707208 Sos. Mihai Bravu, Nr. 213, sector 2, Bucuresti |
||
| 458. |
Santorini - Restaurant specific grecesc Bucuresti
0748333334 Bulevardul Mihai Bravu, Nr. 209, Sector 2 |
||
| 459. |
Dabeef - Restaurant Bucuresti
0739835658 Calea Floreasca, Nr. 111-113, Sector 1 |
||
| 460. |
E3 by Entourage - Restaurant Bucuresti
0734966889 Calea Floreasca, Nr. 111-113, Sector 1 |
||
| 461. |
Mateo Fast Food
0728199827; 0752777333; 0314362033 Strada Dristorului, Nr. 87, sector 3 |
||
| 462. |
Bellagio Villa Restaurant - Bucuresti
0213440661; 0771120177 Vrejului, Nr. 21, Sector 3, Bucuresti |
||
| 463. |
Castronul Gustos - Restaurant, Bucuresti
0749011588 Str. Nasaud, nr. 97, Sector 5 |
||
| 464. |
Sweet by MarVio - Cofetarie Bucuresti
0212105291 Soseaua Stefan cel Mare, Nr 31, sector 2 |
||
| 465. |
Greekos Urban Food - Restaurant fast-food, Bucuresti
0726646976 Soseaua Mihai Bravu, Nr. 247, sector 3 |
||
| 466. |
Qian Bao, Restaurant chinezesc - Bucuresti
0722622865; 0314306616 Intrarea Baba Novac, Nr. 2, Sector 3, Bucuresti |
||
| 467. |
Taverna Baba Novac, Restaurant - Bucuresti
0771544334; 0760010784 Intrarea Baba Novac, Nr. 3, Sector 3, Bucuresti |
||
| 468. |
Tip Top, Cofetarii - Bucuresti
0212422414 Soseaua Colentina, Nr. 2, Sector 2 (magazinul Bucur-Obor), Bucuresti |
||
| 469. |
Bomb Doner Kebap - Restaurant fast-food, Bucuresti
0727771549 Strada Lizeanu, Nr. 5, sector 2 |
||
| 470. |
Casa Tosca, Cofetarie - Bucuresti
0213461297 Bd. Camil Ressu, Nr. 1, Sector 3, Bucuresti |
||
| 471. |
Alouette - Restaurant cu specific international, Bucuresti
0746339793 Splaiul Unirii, Nr. 168, sector 4, |
||
| 472. |
Japanos - Restaurant cu specific japonez, Bucuresti
0771621192 Calea Dorobantilor, nr. 116-122, spatiul comercial nr. 3, parter, sector 1 |
||
| 473. |
Bacania Veche - Bistro si pravalie Bucuresti
0752202103; 0212101222 Barbu Vacarescu, Nr. 49, sector 2 |
||
| 474. |
Gustul Pasiunii Cofetarie - Bucuresti
0728941816 Racari, Nr. 5, sector 3, Bucuresti |
||
| 475. |
La Patrascu - Restaurant Bucuresti
0771635003; 0767561149; 0754422491 Str. Prof. Stefan Nicolau, Nr. 2A, Sector 3 |
||
| 476. |
Trattoria Soleto - Restaurant cu specific italian
0734382419 Soseaua Colentina, nr. 1, sector 2 |
||
| 477. |
Fresh Chicken - Restaurant cu preparate la gratar
0724392216 Str Mihail Sebastian, nr 48, sector 5 |
||
| 478. |
Botanic - Fine dining, Bucuresti
0721261262 Calea Piscului, sector 4 |
||
| 479. |
Elzada - Restaurant Bucuresti
0724519898; 0722214001; 0723019747 Soseaua Oltenitei, Nr. 13-15, Sector 4 |
||
| 480. |
So! Coffee, Cafenea - Bucuresti
0372285718; 0314078250 Piata Garii de Nord, Nr.1-5 (In fata peroanelor 4-5), Sector 1, Bucuresti |
||
| 481. |
Coppa - Bar cu vinuri si cafea, Bucuresti
0741594545; 0756080004 Bd. Nicolae Titulescu, nr. 3, sector 1 |
||
| 482. |
Angeline Cake Boutique - Cofetarie, Bucuresti
0753652144 Str. Doctor Iacob Felix, Nr. 59, Sector 1 |
||
| 483. |
Springtime, Restaurant - Bucuresti
0742224736; 0742224743; 0742224739 Piata Victoriei, Bl. A6 Sector 1, Bucuresti |
||
| 484. |
5ENSI by BeanZ Cafe - Bucuresti
0733888555 Bd. Aviatorilor, Nr. 8A, sector 1, Bucuresti |
||
| 485. |
La Coana Mare - Cofetarie Bucuresti
0771512035 Strada Magura Vulturului, Nr. 2, sector 2 |
||
| 486. |
Casa Bia - Restaurant Bucuresti
0761241623 Str. Sebastian Mihail, Nr. 19, sector 5 |
||
| 487. |
Terasa Oasis - Restaurant Bucuresti
0733638577 Mihail Sebastian, Nr.102. Sector 5, Bucuresti |
||
| 488. |
Yasmin Bakery - Cofetarie, Bucuresti
0721076376; 0760272225 Calea Rahovei, nr.322 sector 5 |
||
| 489. |
The Canteen - Restaurant Bucuresti
0735517630 Str. Barbu Vacarescu, Nr. 44, Bl. 7 Sector 2 |
||
| 490. |
Pata Negra - Restaurant cu specific spaniol, Bucuresti
0734349076 Strada Washington, Nr 11, sector 1 |
||
| 491. |
Ganesha Caffe & Garden - Bucuresti
0764263742 Str. Barbu Vacarescu, nr. 71, sector 2, |
||
| 492. |
Casa Lefter - Restaurant Bucuresti
0723568402; 0743127330 Strada Lt. Ionescu Baican, Nr. 57, sector 2 |
||
| 493. |
Dorobanti 140, Cofetarie - Bucuresti
0723500025 Calea Dorobantilor, Nr.140,Sector 1, Bucuresti |
||
| 494. |
Marshal Garden, Restaurant - Bucuresti
0213194444; 0213194445; 0758105310 Calea Dorobantilor, Nr. 50 B, Sector 1, Bucuresti |
||
| 495. |
La Colt - Bar & Grill, Bucuresti
0371179862 Strada Telita, Nr 1, sector 5 |
||
| 496. |
La Baraca - Bar & Grill Bucuresti
0758986045 Str. Pargarilor, Nr. 17bis, sector 2 |
||
| 497. |
Pizza Apetito - Bucuresti
0770225215 Eufrosina Popescu, Nr. 57, sector 3, |
||
| 498. |
Trattoria Angoli - Restaurant cu specific italian, Bucuresti
0728264654 Calea Piscului, Oraselul Copiilor, Sector 4 |
||
| 499. |
Trei Camile - Restaurant Bucuresti
0747641564 Blv. Pieptanari, Nr. 43, sector 5 |
||
| 500. |
The Soup Carousel - Restaurant cu supe si ciorbe, Bucuresti
0725356907 Sos. Nicolae Titulescu, Nr. 12, sector 1 |
||
| 501. |
Cofetaria Eduard - Bucuresti
0760944165 Bulevardul Pieptanari, Nr. 53, sector 4 |
||
| 502. |
Colosal - Fast Food, Bucuresti
0737698255 Strada Mihail Sebastian, Nr. 133, sector 5 |
||
| 503. |
Skybar - Bucuresti
0724759227 Calea Dorobanti, Nr. 155, Etaj 5, sector 1 |
||
| 504. |
Vivono Pizza - Pizzerie, Bucuresti
0784000212 Strada Telita, Nr.54, Sector 5 |
||
| 505. |
Papaciu - Bistro, Bucuresti
0724200070; 0724955952 Strada Complexului, Nr 3A, sector 3 |
||
| 506. |
Cofetaria Dinalex - Bucuresti
0214237928; 0785137937 Calea Ferentari, Nr. 162, sector 5 |
||
| 507. |
Gelato Mio - Magazin de inghetata Bucuresti
0765799379; 0720044495; 0744555599 Str. Polona, Nr. 76, sector 1 |
||
| 508. |
Cannoleria - Cafenea Bucuresti
0753325071 Str.Cornescu, Nr. 4, sector 1, |
||
| 509. |
Cofetariile Georgy\'s, Cofetarie,torturi - Bucuresti
0733060230; 0730618742 Ramnicu Valcea, Nr. 14, Sector 3, Bucuresti |
||
| 510. |
Refill - Bistro cu specific international, Bucuresti
0786372856 Bulevardul Mihalache, Nr. 12, sector 1 |
||
| 511. |
Stejarului 57 - Social Bar, Bucuresti
0748701058 Strada Fildesului, Nr. 2, sector 3 |
||
| 512. |
Naan Project - Restaurant, Bucuresti
0730707119 Strada Progresului, Nr. 1-3 (Razoare), sector 5 |
||
| 513. |
Riviera Park, Restaurant - Bucuresti
0732408408 Bd. Basarabia , Nr. 23 (Parcul National), Sector 2, Bucuresti |
||
| 514. |
Gili Pizza - Bucuresti
0213242387 Str. Baba Novac, Nr. 9-11, Sector 3 |
||
| 515. |
Andy Park Ballroom - Salon de evenimente Bucuresti
0724607607 Soseaua Oltenitei, Nr. 13-15, Sector 4 |
||
| 516. |
Restaurant Interbelic - Bucuresti
0733413133 Str Petre Ispirescu, Nr. 6A, sector 5 |
||
| 517. |
Pizzeria Alessandro - Bucuresti
0721886488; 0721887488 Drumul Sarii, Nr.150, sector 6 |
||
| 518. |
Naser 2 - Restaurant traditional libanez Bucuresti
0799997111 Str. Maica Domnului, Nr. 5B, Sector 2 |
||
| 519. |
Strada Rustica - Pizzerie Bucuresti
0213248303; 0768676765; 0728886914 Str. Baba Novac, Nr 9, Complex Rucar, Sector 3 |
||
| 520. |
Game On - Restaurant Bucuresti
0745055137 Calea Floreasca, Nr. 91-111, sector 1 |
||
| 521. |
Fendi Kebap - Restaurant fast-food, Bucuresti
0314051091 Str. Novaci, |
||
| 522. |
Circus Pub - Restaurant cu burgeri, Bucuresti
0725180680 Bulevardul Lacul Tei, Nr 65, sector 2 |
||
| 523. |
Claus, Cofetarie Bucuresti
0212220218; 0721264900 Bd. Banu Manta, Nr. 21A, Sector 1, Bucuresti |
||
| 524. |
Golden Blitz, Restaurant - Bucuresti
0214105100 Razoare , Nr. 32, Sector 6 , Bucuresti |
||
| 525. |
Mon Cheri, Restaurant - Bucuresti
0748750029; 0771693817; 0212310908 Tudor Stefan, Nr. 16 (langa P-ta Dorobanti), sector 1, Bucuresti |
||
| 526. |
Golden Blitz, Restaurant - Bucuresti
0214105100 Razoare , Nr. 32, Sector 6 , Bucuresti |
||
| 527. |
Aphrodisia - Ceainarie Bucuresti
0788129291 Intrarea Tudor Stefan, nr. 39, sector 1 |
||
| 528. |
Sara, Restaurant si Bacanie - Bucuresti
0749770770 Calea Floreasca, Nr. 111-113, Sector 2, Bucuresti |
||
| 529. |
Tropicana, Restaurant - Bucuresti
0724614723 (Niculae Adrian); 0724571502 (Niculae Valentina) Grigore Ionescu, Nr 94, Sector 2, Bucuresti |
||
| 530. |
VacaMuuu - Restaurant si bacanie Bucuresti
0731351135 Calea Floreasca, Nr. 111, sector 1 |
||
| 531. |
VacaMuuu - Restaurant cu specific american, Bucuresti
0731351135 Calea Floreasca, Nr.111, sector 1 |
||
| 532. |
Pasterra - Restaurant cu mancare specifica din Abruzzo, Bucuresti
0751222668 strada Comandor Eugen Botez, Nr. 27, sector 2 |
||
| 533. |
Casa Lazar - Restaurant Bucuresti
0764024444; 0738794310; 0735778229 Serg. Maj. Ion Nedeleanu, Nr. 8, sector 5 |
||
| 534. |
Nido Kitchen & Wine - Restaurant cu specific international, Bucuresti
0374004488 Aleea Alexandru, Nr. 35 |
||
| 535. |
Rai de Dulce - Laborator de cofetarie si patiserie Bucuresti
0735632709; 0731885888 Calea Rahovei, Nr. 374, sector 5 |
||
| 536. |
7 Days - Restaurant cu terasa, organizari evenimente, Bucuresti
0769042751; 0213241358 Str. Campia Libertatii, Nr. 23, Sector 3, Bucuresti |
||
| 537. |
BistroMar - Restaurant pescaresc, Bucuresti
0740085088 Strada Banul Antonache, Nr. 55-27, sector 1 |
||
| 538. |
Lucky Point Pub
0742181263 Splaiul Independentei, 204,sect.6, Bucuresti |
||
| 539. |
Hanul Haiducilor, Restaurant - Bucuresti
0213307207; 0771756566 Pridvorului, Nr. 25 (In incinta Strandul Copiilor Vacaresti) , Sector 4, Bucuresti |
||
| 540. |
Geste - Cofetarie Bucuresti
0730743783 Strada Dobrota, Nr. 16, Sector 2 |
||
| 541. |
DA Giulio - Pizzerie, Bucuresti
0212420385 Colentina, Nr. 23 A, sector 2 |
||
| 542. |
Britannia - Restaurant, Bucuresti
0725998899 Strada Petre Ispirescu, Numarul 9 b, Sector 5 |
||
| 543. |
Photo Cake Cofetarie Bucuresti
0729737619 ; 0723564103 Obolului, Nr.9, Sector 4, Bucuresti |
||
| 544. |
Rekolta - Restaurant, Bucuresti
0721334564 Calea Floreasca, Nr. 102, sector 1 |
||
| 545. |
Hanul Vacaresti - Restaurant fast-food, Bucuresti
0786200300 Strada Pridvorului, nr. 23, sector 4 |
||
| 546. |
La Sediu - Restaurant Bucuresti
0760729007 Campia Libertatii, Nr. 54, sector 3 |
||
| 547. |
Triana - Cofetarie, Bucuresti
0740302404 Soseaua Orhideelor, Nr. 46, sector 1 |
||
| 548. |
Terasa Sport House - Restaurant fast-food, Bucuresti
0755080224 Maior Ion Coravu, numarul 34, sector 2 |
||
| 549. |
Pot Stories - Restaurant, Bucuresti
0753348248 Calea Floreasca, nr. 111-113, sector 1 |
||
| 550. |
Armonia Cofetarie - Bucuresti
0213244020 ; 0722616180 Campia Libertatii, Nr. 46 , bl. 52 , Parter , Sector 3, Bucuresti |
||
| 551. |
Donerboom - Fast food Bucuresti
0749043440 Str.Barbu Vacarescu, Nr. 102, Sector 2, |
||
| 552. |
Chef Gabrielle - Restaurant, Bucuresti
0766066406 Strada Tomis, Nr. 5A, Sector 3 |
||
| 553. |
Fast Food Plevnei - Restaurant Fast Food Bucuresti
0761046444 Calea Plevnei, Nr. 230, sector 1 |
||
| 554. |
Said - Fast Food, Bucuresti
0772229461; 0773755896 Calea Rahovei, Nr. 390, sector 5 |
||
| 555. |
Grano - Restaurant cu specific italian, Bucuresti
0212312386 Strada Putul lui Zamfir, Nr. 40, sector 1 |
||
| 556. |
Tasting Room by Ethic Wine - Restaurant Bucuresti
0754993953 Putul lui Zamfir, Nr. 64, sector 1 |
||
| 557. |
Prajiturel - Cofetarie Bucuresti
0760858880 Strada Stoian Militaru, Nr. 63, sector 4 |
||
| 558. |
Tuk Tuk - Restaurant cu specific thailandez, Bucuresti
0311099670;0741422489 Putul lui Zamfir, nr. 15, sector 1 |
||
| 559. |
Yoshi Sushi & Teppanyaky - Restaurant japonez Bucuresti
0314290280; 0749979521 Str. Banu Antonache, Nr. 40-44, sector 1 |
||
| 560. |
Mozzafiato - Restaurant Bucuresti
0741190190 Calea Floreasca, Nr. 133-137, Sector 1 |
||
| 561. |
Gabbiano - Restaurant cu specific italian Bucuresti
0757115272 Str. Banul Antonache, Nr. 40-44, sector 1 |
||
| 562. |
Mercato Kultur - Restaurant cu specific international, Bucuresti
0759134767 Gheorghe Demetriade, nr. 6-10, Aviatorilor, sector 1 |
||
| 563. |
Pain Plaisir - Patiserie Bucuresti
0745645555 Strada Barbu Delavrancea, Nr. 1, sector 1 Pain Plaisir Kiseleff |
||
| 564. |
Quantic Pub - Bucuresti
0314321742 Soseaua Grozavesti, Nr. 82, sector 6 |
||
| 565. |
Ana Cofetarie Bucuresti
0212300436; 0735554986 Lt. Av. Radu Beller, Nr. 6 Sector 1, Bucuresti |
||
| 566. |
Delicii Gelato - Gelaterie artizanala Bucuresti
0721632019 Str. Constantin Aricescu, Nr. 65, sector 1 |
||
| 567. |
Casa Doina, Restaurant - Bucuresti
0212226717; 0745009009 Soseaua. Kiseleff , Nr. 4, Sector 1, Bucuresti |
||
| 568. |
White Horse Pub & Restaurant - Bucuresti
0212312795 George Calinescu , Nr. 4A, Sector 1, Bucuresti |
||
| 569. |
White Horse Pub & Restaurant - Bucuresti
0212312795; Fax.0212302151 George Calinescu , Nr. 4A, Sector 1 , Bucuresti |
||
| 570. |
Elena - Restaurant cu specific romanesc, cu terasa, organizare evenimente, Bucuresti
0747277232 Calea 13 Septembrie, Nr. 289, Sector 5, Bucuresti |
||
| 571. |
Casa Doina, Restaurant - Bucuresti
0745009009; 0212226717; 0212223179 Soseaua Pavel D. Kiseleff, Nr. 4, Sector 1, Bucuresti |
||
| 572. |
Zen Sushi - Restaurant japonez, Bucuresti
0722161718 Str. George Calinescu, nr. 15, Sector 1 |
||
| 573. |
Pajo Garden - Restaurant Bucuresti
0751227228 Bulevardul Basarabiei, Nt. 37-39, sector 2 |
||
| 574. |
Terasa Marius - Bar & Grill, Bucuresti
0745777799 Sos. Pantelimon, Nr. 115-117, sector 2 |
||
| 575. |
Moritz Eis - Gelaterie Bucuresti
0722363122 Strada Frederic Chopin, Nr. 10-12, Sector 2 |
||
| 576. |
Pizzeria Florina - Bucuresti
0219285 Strada Nicolae Pascu, nr.1A, sectorul 3 |
||
| 577. |
Kanpai Bistro, Restaurant japonez si catering - Bucuresti
0755526724; 0371184961 George Calinescu, Nr.49, Sector 1, Bucuresti |
||
| 578. |
Maccheroni - Restaurant Bucuresti
0722259360 Str. George Calinescu, Nr. 51, Sector 1, |
||
| 579. |
Biscotto - Cofetarie Bucuresti
0212314099 Strada Nicolae Constantinescu, Nr. 8, Sector 1 |
||
| 580. |
La Cristi - Fast Food si catering, Bucuresti
0729266850 Strada Frosa Sarandy, Nr. 17, Sector 1 |
||
| 581. |
Nuba Cafe - Restaurant pentru mic dejun si brunch, Bucuresti
0736300000 Street Locotenent Aviator Radu Beller, Nr. 13, sector 1 |
||
| 582. |
Piticot, Cofetarie Bucuresti
0214206670; 0726714865 Whatsapp Petre Ispirescu, Nr. 77, Sector 5, Bucuresti |
||
| 583. |
The Place Pub - Pub, Bucuresti
0743951281 Mr. Alexandru Campeanu, nr.36, sector 1 |
||
| 584. |
Cofetaria Maia Artizan Bakery - Bucuresti
0762298622 Str. Margeanului, Nr. 115, sector 5 |
||
| 585. |
Restaurant Ceaun
0756090680 Strada Maica Domnului, Nr. 54-56, sector 2 |
||
| 586. |
Cesme - Restaurant cu specific turcesc, Bucuresti
0721163176 Str. Calea 13 Septembrie, Nr 272, sector 5 |
||
| 587. |
Cuibul Randunelelor - Restaurant Bucuresti
0214244218 Strada Focsani, Nr. 38, sector 5 |
||
| 588. |
Influence - Restaurant, Bucuresti
0745172403 Soseaua Oltenitei, Nr. 39-41, sector 4 |
||
| 589. |
Panorama Kebap - Restaurant fast food, Bucuresti
0766244009 Str Margeanului, Nr.115, sector 5 |
||
| 590. |
Refugiu - Restaurant Bucuresti
0763478438;0727626981 Strada Otesani, Nr 73 , Sector 2 |
||
| 591. |
Excellence - Restaurant Bucuresti
0723888822 Strada Petre Ispirescu, Nr. 110-112, sector 5 |
||
| 592. |
Casa Banil Restaurant - Bucuresti
0214105716; 0723391161; 0724159949 Petre Ispirescu , Nr. 95, Sector 5, Bucuresti |
||
| 593. |
Green Bistro - Terasa Bucuresti
0728237731 Parcul Gheorghe Patrascu, |
||
| 594. |
Jerry\'s Pizza - Bucuresti
0373303030 Calea Vitan, Nr. 236, Sector 3, Bucuresti |
||
| 595. |
Refresh - Restaurant Bucuresti
0771189347 Strada Johann Sebastian Bach, Nr. 3, sector 2 |
||
| 596. |
Yesterday, Hotel si Restaurant - Bucuresti
0213408585; 0737001008 Economu Cezarescu, Nr. 8, Sector 6, Bucuresti |
||
| 597. |
Seneca Anticafe - Cafenea, Bucuresti
0720331100 Strada Arhitect Ion Mincu, nr. 1, sector 1 |
||
| 598. |
La Gafe - Restaurant traditional Bucuresti
0721389446 Str Dorin Pavel, Nr 1, sector 2 |
||
| 599. |
Cartofisserie - Restaurant cu bufet Bucuresti
0726330960;0740215433 Liviu Rebreanu, Nr. 4 (ParkLake Shopping Center Mall) |
||
| 600. |
Oby - Fast Food, Bucuresti
0768955169 Calea Ferentari, nr. 177, sector 5 |
||
| 601. |
Casa Nica, Restaurant - Bucuresti
0724373558; 0723641985 Peroni, Nr. 28 (vis-a-vis de benzinaria Lukoil), sector 4, Bucuresti |
||
| 602. |
Galletto Ristorante, Restaurant italian, catering - Bucuresti
0212112276; 0770407519 Soseaua Orhideelor, Nr.1 (podul nou Basarab,langa cladirile de birouri The Bridge, Sector 6, Bucuresti |
||
| 603. |
Gloria Jean\'s Coffees Romania
0760107884 Bd.Liviu Rebreanu, nr. 4, sector 3 - Mall Park Lake, Bucuresti |
||
| 604. |
AVA Bistro - Restaurant si catering, Bucuresti
0770888222 Strada Dorin Pavel, Nr. 15, sector 2 |
||
| 605. |
Trattoria Verdi, Restaurant italian - Bucuresti
0212225098 ; 0731333411 Bd. Aviatorilor, Nr. 19, Sector 1, Bucuresti |
||
| 606. |
Zatara - Restaurant cu influente mediteraneene, Bucuresti
0771670756 Vatra Luminoasa, Nr. 108, sector 2 |
||
| 607. |
Royal Kebap - Restaurant fast-food, Bucuresti
0730242360 Strada Margeanului, Nr. 105 C, sector 4 |
||
| 608. |
14th Lane - Restaurant cu mancaruri fine, organizare evenimente, Bucuresti
0737776777 Sos. Orhideelor, Nr. 15D, sector 6, Bucuresti |
||
| 609. |
Andros - Cofetarie, Bucuresti
0748888847 Str. Antiaeriana, nr. 5, sector 5, |
||
| 610. |
Joy House - Restaurant Bucuresti
0730443232 Str. Teiul Doamnei, Nr. 9A, Sector 2 |
||
| 611. |
Don Daniel Pizza
0737444999; 0766771117; Tel/Fax: 0212225034 Bd. Ion Mihalache, Nr. 60, Sector 1, Bucuresti |
||
| 612. |
Bistro 37-39 - Restaurant Bucuresti
0731355939 Bulevardul Basarabia, Nr. 37-39 , Sector 3 |
||
| 613. |
La Tramvai - Terasa Bucuresti
0729166021 Parcul Alexandru Ioan Cuza (I.O.R). intersectie Campia Libertatii, sector 3 |
||
| 614. |
Gastronomika - Restaurant cu specific international, Bucuresti
0737940512 Str. Ion Neculce, Nr. 63, Sector 1 |
||
| 615. |
Hambar Brasserie - Bucuresti
0212226422;0787896547 Aviatorilor, nr. 31, sector 1 |
||
| 616. |
B4 Market - Restaurant pentru mic dejun si brunch Bucuresti
0724588591 Strada Locotenent Aviator Radu Beller, Nr. 54, sector 1 |
||
| 617. |
Arancini - Restaurant cu specific sicilian
0756490490 Str. Papadiei, Nr. 16-18, sector 3 |
||
| 618. |
La Placinte - Restaurant cu specific romanesc, Bucuresti
0756207005 Bd. Vasile Milea, 4F (Afi Park 2) |
||
| 619. |
Ressu Restaurant & Lounge - Bucuresti
0723774485; 0731607646; B-dul Camil Ressu, Nr. 70 A, Sector 3, Bucuresti |
||
| 620. |
Sham Sweet, Cofetarie - Bucuresti
0748242455 Bd. Basarabia, Nr.98, Sector 3, Bucuresti |
||
| 621. |
Piccolo Mondo, Restaurant - Bucuresti
0722205020; 0212225755 Clucerului, Nr. 9, Sector 1 , Bucuresti |
||
| 622. |
Sabatini Pizza - Bucuresti
0770227880; 0766606637; 0731876441 Teiul Doamnei, Nr. 15, Sector 2, Bucuresti |
||
| 623. |
Piccolo Mondo, Restaurant - Bucuresti
0722205020; 0212225755 Clucerului , Nr. 9, Sector 1 , Bucuresti |
||
| 624. |
Pui de Urs, Restaurant - Bucuresti
0213166289; 0724622226; 0765166266 Econom Cezarescu, Nr. 42 (Grozavesti), Sector 6 , Bucuresti |
||
| 625. |
Sabatini Pizza - Bucuresti
0212428725; 0731876441; 0766606637 Teiul Doamnei , Nr 15, Sector 2, Bucuresti |
||
| 626. |
Damascus Palace - Restaurant Bucuresti
0746696666; 0756616666 Bld. Basarabia, Nr. 98, sector 2, |
||
| 627. |
Shorley Restaurant - Bucuresti
0765377308; 0724710385; 0213124312 Econom Cezarescu, Nr. 50, Sector 6 , Bucuresti |
||
| 628. |
Big Mic - Restaurant, terasa si pizzerie, Bucuresti
0739244642 Str. Gospodinelor, Nr. 31, sectorul 4 |
||
| 629. |
Casa Victor, hotel si Restaurant - Bucuresti
0212225723; 0733953910 Emanoil Porumbaru, Nr. 44, Sector 1 , Bucuresti |
||
| 630. |
Friends Pub - Bucuresti
0728197287 Bucovina , Nr. 6, Sector 3, Bucuresti |
||
| 631. |
Brigitte - Cofetarie Bucuresti
0727891345; 0745779722 str. Cristea Mateescu, Nr.77, Sector 2 |
||
| 632. |
Events by Tonyo - Restaurant Bucuresti
0723170007 Aleea Hobita, Nr 1 Sector 2 |
||
| 633. |
Monza, Trattorie si Restaurant - Bucuresti
0722661166; 0769200002; 0724802802 Baba Novac, Nr. 25, Sector 3, Bucuresti |
||
| 634. |
The President, Restaurant - Bucuresti
0720047541; 0760087384; 0766747379 Bd. Lacul Tei, nr. 145 (in Parcul Tei - pe malul lacului), Sector 2, Bucuresti |
||
| 635. |
Kentucky Fried Chicken KFC, Fast Food - Bucuresti
0757015948; 0212039030; 0213120023 Soseaua Oltenitei, Nr.85, Sector 4, Bucuresti |
||
| 636. |
Roxy Pub - Bucuresti
0742033944; 0723327117; 0785224508 Splaiul Independentei, Nr. 290, Complex Studentesc Regie, Bucuresti |
||
| 637. |
Bolta Rece Restaurant - Bucuresti
0212227258; 0722527077 Popa Savu, Nr. 53-55, Sector 1, Bucuresti |
||
| 638. |
Monza, Trattorie si Restaurant - Bucuresti
0724802802; 0722661166; 0769200002 Baba Novac, Nr. 25, Sector 3, Bucuresti |
||
| 639. |
Bolta Rece, Restaurant, Terasa - Bucuresti
0212227258; 0722527077 Popa Savu, Nr..53- 55, Sector 1, Bucuresti |
||
| 640. |
Ublo Bistro - Bucuresti
0743447476 Clucerului, Nr. 54, sector 1 |
||
| 641. |
Delarte Pizza, Pasta & Grill - Bucuresti
0733352783; 0755487273; 0217802500 Corbita, Nr.3,Sector 5, Bucuresti |
||
| 642. |
Zexe Braserie - Bucuresti
0786778777 B-dul Aviatorilor, Nr. 65, Sector 1 |
||
| 643. |
Della Casa Pizza - Bucuresti
0721312666; 0746577383; 0768720228 Sos. Gherase, Nr. 96, (Zona Doamna Ghica) Sector 2, Bucuresti |
||
| 644. |
Sabatini Pizza, Restaurant - Bucuresti
0314266069; 0737148520; 0784699751 B-dul Basarabia, Nr. 108, Bucuresti |
||
| 645. |
Mio Cuisine - Restaurant & Home Delivery, Bucuresti
0743287437 Pictor Barbu Iscovescu, Nr. 19 ,Sector 1, Bucuresti |
||
| 646. |
Caro, Restaurant - Bucuresti
0212086128; 0212086100; 0212086196 Barbu Vacarescu, Nr. 164A, Sector 2, Bucuresti |
||
| 647. |
Fabio Pizza - Bucuresti
0372188330 Turda, Nr. 117, Sector 1, Bucuresti |
||
| 648. |
Jadoo Restaurant - Bucuresti
0724365583; 0212220502 Nicolae Racota, Nr. 3, Sector 1, Bucuresti |
||
| 649. |
Jadoo Restaurant - Bucuresti
0212220502; 0724365583 Nicolae Racota, Nr. 3, Sector 1, Bucuresti |
||
| 650. |
Le Bab - Restaurant cu specific oriental, Bucuresti
0743179555 Charles de Gaulle, Nr. 3, sector 3-1, |
||
| 651. |
Trattoria 20 - Restaurant Bucuresti
0757534928; 0751267451 Splaiul Independentei, Nr. 290, Campus Regie, sector 6 |
||
| 652. |
Krisperie - Restaurant fast-food, Bucuresti
0762888844 Strada Doamna Ghica, Nr. 235, sector 2 |
||
| 653. |
Beirut Restaurant - Bucuresti
0722302320; Tel/Fax: 0212220169 Nicolae Racota, Nr. 3A, Sector 1, Bucuresti |
||
| 654. |
Neopolis Family Pizza - Bucuresti
0734895330; 0770995973 Gheorghe Titeica, Nr. 101, Sector 2 |
||
| 655. |
La Samuelle - Restaurant cu specific international, Bucuresti
0730173180 Piata Charles de Gaulle, Nr. 3-5, Sector 1 |
||
| 656. |
Pub 18 Restaurant - Bucuresti
0722441586 (Manager Pub Oana Valeanu) Splaiul Independentei, Nr. 290, bl. P18, parter, Sector 6, Bucuresti |
||
| 657. |
La Maria si Ion, Restaurant - Bucuresti
0762295737; 0753473781 Splaiul Independentei, Nr. 290, Complex Studentesc Regie, Sector 6, Bucuresti |
||
| 658. |
Pandoras Food - Restaurant fast-food Bucuresti
0760102012 Strada Gheorghe Titeica, Nr. 138, Sector 2 |
||
| 659. |
Bone - Restaurant Bucuresti
0733198200 Calea Floreasca, Nr. 198, sector 1 |
||
| 660. |
Ai Sapori - Restaurant cu specific italian Bucuresti
0372713635 Bd Timisoara, Nr. 21, sector 6, Bucuresti |
||
| 661. |
Poesia - Restaurant cu specific mediteranean, Bucuresti
0744502000 Bulevardul Aviatorilor, Nr. 76, sector 1 |
||
| 662. |
Pub 18 Restaurant - Bucuresti
0722441586 Splaiul Independentei, Nr. 290, bl. P18, parter, sector 6 , Bucuresti |
||
| 663. |
M&I Clasic Cuisine - Fast-food si catering Bucuresti
0732948408 Strada Baicului, Nr 104 Sector 2 |
||
| 664. |
Fior di Latte - Restaurant cu specific italian, Bucuresti
0784420555 Bulevardul Primaverii, Nr. 19-21 |
||
| 665. |
Osho - Restaurant cu fripturi, Bucuresti
0758758750 Bulevardul Primaverii, Nr. 19-21, sector 1 |
||
| 666. |
Mechano Pub - Bucuresti
0722990992 Splaiul Independentei, Nr. 290, sector 6 |
||
| 667. |
La Dolceria, Cofetarie - Bucuresti
0724315256 Basarabia, Nr.55, M22, Sector 3, Bucuresti |
||
| 668. |
Club Floreasca, Restaurant - Bucuresti
0213198177; 0755085967; Fax 0212307979 Mircea Eliade, Nr. 1, Sector 1, Bucuresti |
||
| 669. |
Club Floreasca Restaurant - Bucuresti
0213198177; 0755085967; Fax 0212307979 Mircea Eliade, Nr. 1, Sector 1, Bucuresti |
||
| 670. |
You & Me - Restaurant cu specific international, Bucuresti
0733918474 Bd. Constantin Brancoveanu, Nr. 110 D (langa Spitalul de copii Marie Curie), Bucuresti |
||
| 671. |
Benjamins Restaurant - Nunti, botezuri, evenimente, Bucuresti
0724248428 Sos.Vitan-Barzesti, Nr. 5, Sector 4, Bucuresti |
||
| 672. |
Fratelli Social Club - Bucuresti
0722115115; 0730878300 Goldeni, Nr. 1-3, Sector 2, Bucuresti |
||
| 673. |
IDM Club Sportiv - Bucuresti
0213161052; 0722454273 Splaiul Independentei, Nr. 319 B, (Vizavi de campusul studentesc Regie) Sector 6, Bucuresti |
||
| 674. |
Nicola Cofetarie - Bucuresti
0214603678 Nitu Vasile , Nr. 50-54, in Complexul Pajistei (langa Taxe si Impozite) Sector 4 , Bucuresti |
||
| 675. |
Zexe Restaurant romanesc - Bucuresti
0722210844 Oltetului, Nr. 30, Sector 2, Bucuresti |
||
| 676. |
Casa Diham - Restaurant Bucuresti
0213406006; 0727171220 Bd. Nicolae Grigorescu, Nr. 1 A, Sector 3 |
||
| 677. |
Ribs Bar&Grill - Restaurant american, Bucuresti
0720788818 Str. Constantin Brancusi, Nr. 13, Complex Potcoava, sector 3 |
||
| 678. |
Divan, Restaurant - Bucuresti
0316404450 Barbu Vacarescu, Nr.241A, Sector 1, Bucuresti |
||
| 679. |
KLANdestin - Restaurant Bucuresti
0731954592 Str. Liviu Rebreanu, Nr. 6A, Sector 3 |
||
| 680. |
Trenta Pizza - Bucuresti
0219645 Bd.Chisinau, Nr.5 , sector 2 , Bucuresti |
||
| 681. |
Casa Dante - Restaurant cu specific italian, Bucuresti
0314358069 Strada Rotunda, nr 4C, sector 3 |
||
| 682. |
Hong Kong - Restaurant chinezesc, Ilfov
0213107134; 0727834877 Calea Grivitei, nr. 81 (langa Biserica Sf. Voievozi), sector 1, , judetul Ilfov |
||
| 683. |
Galeto - Restaurant Bucuresti
0765253555 Strada Nitu Vasile, Nr 61, sector 4 |
||
| 684. |
Dancing Lobster - Restaurant cu specific portughez, Bucuresti
0770690886 Str. Glodeni, Nr . 3 Cladirea C22, Sector 2, Bucuresti |
||
| 685. |
Trattoria Roma - Restaurant Bucuresti
0765723733; 0799772233 Str. Drumul Taberei, Nr. 26, Sector 6 |
||
| 686. |
Carina Sweets - Cofetarie Bucuresti
0771261485 Sos Oltenitei, Nr. 230, Sector 4 |
||
| 687. |
Il Grande - Pizzerie Bucuresti
0763544930; 0731581447 Str. Iacob Andrei, Nr. 26, sector 5 |
||
| 688. |
Mesogios, Restaurant - Bucuresti
0722200232 Helesteului, Nr. 30, Sector 1, Bucuresti |
||
| 689. |
Buenasado SteakHouse - Restaurant Bucuresti
0747865210 Strada Glodeni, Nr. 3, sector 2 |
||
| 690. |
Gedi, Restaurant - Bucuresti
0371119901; 0734207029 Bd. Basarabia, Nr. 176 B, Sector 2, Bucuresti |
||
| 691. |
Dream Pizza - Restaurant Bucuresti
0785070079 Drumul Taberei, Nr. 28, sector 6, |
||
| 692. |
Ivan\'s bar & grill - Restaurant traditional, Bucuresti
0723893545;0737276284 Bulevardul Basarabia, Nr. 170 - 174, sector 2 |
||
| 693. |
Michelle - Cofetarie, Bucuresti
0213340084; 0723384312 Soseaua Berceni, Nr. 35, bl. 104, sector 4 |
||
| 694. |
Cofetaria Ioana - Bucuresti
0217265762 Strada Vladeasa, Nr. 2, sector 6 |
||
| 695. |
Hard Rock Cafe Bucharest
0212066261; 0754400900 Sos. Kiseleff, Nr. 32C, Sector 1, Bucuresti |
||
| 696. |
Rowa Garden - Locatie pentru spectacole si evenimente
0766666600 Parc Herastrau, |
||
| 697. |
Trattoria la Nave - Restaurant Bucuresti
0743454626 Sos. Pantelimon, Nr. 264, Sector 2 |
||
| 698. |
Restaurant Paunita - Bucuresti
0724145707 Bulevardul Nicolae Grigorescu, Nr. 31A, sector 3 |
||
| 699. |
Allegro Restaurant - Bucuresti
0751055536; 0744649177 Bd. Nicolae Grigorescu, Nr. 20A, Sector 3, Bucuresti |
||
| 700. |
Vio Cofetarie - Bucuresti
0213412082 Bd. Nicolae Grigorescu, Nr. 20, Sector 3, Bucuresti |
||
| 701. |
Shaormeria Titan - Fast food Bucuresti
0771332861; 0755864686 Bd. Nicolae Grigorescu, Nr. 20, Sector 3 |
||
| 702. |
Velveto Ballrooms - Centru pentru evenimente Bucuresti
0752182255; 0734810385; 0764118347 Str. Oltetului, Nr. 30, sector 2 |
||
| 703. |
Potcoava 9 Mai, Restaurant - Bucuresti
0212202208; 0721065347 Str. 9 Mai , Nr. 51, Sector 6, Bucuresti |
||
| 704. |
Hanul Drumetului, Restaurant - Bucuresti
0214133430; 0722555083 Bd. 1 Mai(Compozitorilor), Nr. 28, Sector 6, Bucuresti |
||
| 705. |
Murad - Cafe-Restaurant, Bucuresti
0725777000 Str. Panait Istrati, nr, 101, sector 1 |
||
| 706. |
Ilioara - Restaurant si piscina Bucuresti
0766379289; 0721244247 Strada Ilioara, Nr. 16L, sector 3 |
||
| 707. |
Babylon Fast Food - Bucuresti
0799666267 Soseaua Pantelimon, nr. 255, sector 2 |
||
| 708. |
Irina Casa cu Prajituri, Cofetarie - Bucuresti
0731323192 Liviu Rebreanu, Nr.12, bl. K2, Cartier Titan Sector 3, Bucuresti |
||
| 709. |
La Nasu, Restaurant - Bucuresti
0212214285; 0722257923; 0728984754 Calea Crangasi, Nr. 29, Sector 6, Bucuresti |
||
| 710. |
Nasu & Finu, Restaurant - Bucuresti
0727933656 ; 0768101345; 0214602572 Cimpoierilor, Nr. 12, Sector 4, Bucuresti |
||
| 711. |
Nasu & Finu, Restaurant
0739648277; 0727933656; 0768101345 Cimpoierilor , Nr. 12, Sector 4, Bucuresti |
||
| vezi mai multe | |||
| 1. |
COCOR
Tel. 021.313.14.03; 021.313.92.39; 021.314.96.64; 021.314.96.65; Fax 021.313.98.48 Bd. I.C. Bratianu nr. 29-33, sector 3, |
||
| 2. |
Cocor Luxury Store
021.312.43.10; Fax: 021.313.98.48 Bd. I.C. Bratianu, nr. 29-33, sector 3, |
||
| 3. |
CARREFOUR
Tel. 0374.145.800; Fax 021.307.66.96 Bd. Corneliu Coposu nr. 2, sector 3, |
||
| 4. |
FONZI SUPERMARKET
Tel. 0729.005.260; Tel/Fax 021.323.67.52 Str. Nerva Traian, nr. 17-19, sector 3, |
||
| 5. |
GMARKET
Bucuresti |
||
| 6. |
DENISA MARKET
Tel. 021.211.71.70; 0722.691.595; 0749.263.036; Fax 021.211.71.70 Str. Rasuri nr. 1, sector 2 |
||
| 7. |
CONCORD 2002
Tel/Fax 323.90.87 Bd. Decebal nr. 7, sector 3 |
||
| 8. |
FOR YOU
Tel. 0745.094.433 Bd. Decebal nr. 24, sector 3 |
||
| 9. |
LIBERTY CENTER
0213699871; 0213699835 Sos. Progresului, nr. 151-171, sector 5, Bucuresti |
||
| 10. |
NICK CENTER
Tel. 410.06.14; Fax 410.18.94 Calea 13 Septembrie nr. 190, sector 5 |
||
| 11. |
THE GRAND AVENUE AT BUCHAREST MARRIOTT GRAND HOTEL
Tel.021. 403.40.98 Calea 13 Septembrie nr. 90, sector 5 , |
||
| 12. |
BUCURESTI MALL
Tel. 021.327.67.00; 021.327.61.00; 021.327.61.02; Fax 021.320.92.09 Calea Vitan nr. 55-59, sector 3, |
||
| 13. |
SUPERMARKET MAICOM
Tel. 0722.322.573; Fax 321.78.36 Str. Vitan nr. 104, sector 3 |
||
| 14. |
INTERHOME
Tel. 021.456.31.85; Fax 021.456.31.80; 021.456.31.83 Str. Nasaud, nr. 97, sector 5, |
||
| 15. |
Ava Center
0769240700; 0213201626; 0730096166 Mihai Bravu, Nr. 540-564, Sector 3, Bucuresti |
||
| 16. |
SONMEZ MARKT 4
Tel. 211.65.39; Fax 210.13.25 Bd. Iancu de Hunedoara nr. 64, sector 1 |
||
| 17. |
BUCUR OBOR
021.252.59.34; 021.252.59.35; 021.252.63.82 Sos.Colentina, nr. 2, sector 2 , Bucuresti |
||
| 18. |
CITY MALL
Tel. 021.319.35.22; Fax 021.319.35.21 Sos.Oltenitei nr. 2, sector 4 |
||
| 19. |
SUPERMARKET PRIMiVARA
Tel. 031.402.58.20; Fax 021.410.96.96 Calea 13 Septembrie nr. 221-225, sector 5 - Complex Prosper, |
||
| 20. |
FONZI
Tel. 260.21.28; 0729.005.261; Fax 260.15.31 Sos. Nicolae Titulescu nr. 121 (Fonzi Junior), sector 1 |
||
| 21. |
GALERIA MARIO PLAZA
Tel/Fax. 021.230.47.71 Calea Dorobantilor, nr. 172, sector 1, Bucuresti |
||
| 22. |
SUPERMARKET LA NEA NICU
Tel. 230.64.80 Str. Putul lui Zamfir nr. 59, sector 1 |
||
| 23. |
AUCHAN
Tel. 0750.014.150 Calea Vitan nr. 236, sector 3, |
||
| 24. |
AFI Cotroceni - Mall, Bucuresti
0314257510; 0314257511; Fax 0314257513 Vasile Milea, Nr. 4, Sector 6 (intersectia Bd. Timisoara cu Str. Vasile Milea), Bucuresti |
||
| 25. |
Wini Imobili
Tel.021.307.60.50; 0742.144.034, 0755.068.669; Fax.021.307.60.51 Pierre de Coubertin, nr. 3-5, sector 2, Bucuresti |
||
| 26. |
MEGA MALL
Str. Pierre de Coubertin, nr. 3-5, langa Arena Nationala, |
||
| 27. |
SUN PLAZA MALL
021.233.17.45; 0720.200.582 Calea Vacaresti, nr. 391, Piata Sudului, sector 4, Bucuresti |
||
| 28. |
PRESTIGE SHOPPING CENTER
Tel. 230.16.12; 230.17.13; Fax 230.67.53 Calea Floreasca nr. 111-113, sector 1 |
||
| 29. |
GEMINI
Tel/Fax 230.25.49 Calea Floreasca nr. 111-113 (Complex Prestige), sector 1 |
||
| 30. |
ETHOS SUPERMARKET
Tel. 0735.808.451 Str. Margeanului nr. 48, sector 5, |
||
| 31. |
Complexul Comercial Rahova
Str. Glicinelor nr. 4-14, sector 5, |
||
| 32. |
TITAN
Tel. 0732.995.515 Str. Liviu Rebreanu nr. 6A, sector 3, |
||
| 33. |
PROFI
Tel. 0726.100.452; Tel/Fax 021.444.32.44 Bd. Ghencea nr. 38, bl. C63, sector 6, |
||
| 34. |
DANCA
Tel. 0722.546.268; Fax 212.74.84 Intr. Panificatiei nr. 2 (P-ta Gorjului), sector 6 |
||
| 35. |
Vitantis Shopping Center Bucuresti - Magazine retail Praktiker, Diego si Casa Rusu
0213104513; Fax: 0213150813 Soseaua Vitan-Barzesti, nr. 7A, sector 4, Bucuresti |
||
| vezi mai multe | |||
Sunteti de acord sa fiti contactat prin mesageria Anuntul.ro
de persoana care a adaugat acest anunt?
Vezi istoricul preţurilor din zona
Vezi email
Distribuie Facebook
Anunţurile utilizatoruluiPagina pe care doriti sa o accesati poate sa contina elemente care nu sunt recomandate minorilor!
Va rugam sa confirmati ca aveti peste 18 ani!

104
,117
,123
,232
,312
,385
,N109
,N115
,N120
,N122
,N
2 min.
73