1 Mai ...
8 min.
calculeaza distantaDomenii Apartament cochet Strada Lotru Comision 0% Cumparator!.
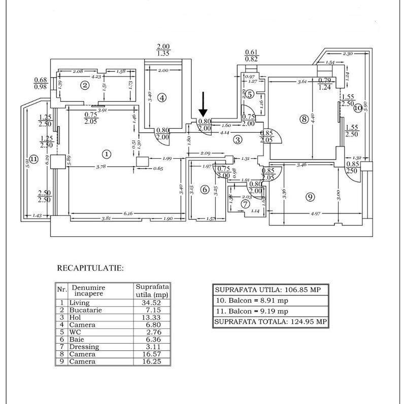
Am placerea a va prezenta spre tranzactionare un apartament cu Suprafata Utila Totala de 125mp situat la etajul 2 al unui imobil cu regim de inaltime D+P+2+M.
Imobilul este construit in anul 2000, cu structura pe cadre si plansee din beton armat si zidarie exterioara si interioara din caramida G.V.P., cu fundatie continua din beton armat. A fost achizitionat in 2017 de actualii proprietari si re-expertizat tehnic inclusiv pe structura.
Imobilul a fost renovat complet si extins cu mansarda in anul 2018, apartamentat in anul 2021 cu numere cadastrale separate si intabulate individual. Toate lucrarile au fost efectuate cu autorizatii si cu furnizori autorizati (constructor, instalatii electrice, instalatii sanitare, acoperis, izolatii, instalatii gaz, interfon, etc).
Se va oferi garantie completa pentru vicii ascunse 12 luni.
Renovarea a fost atat la exterior cat si la interior. Toate instalatiile electrice, termice si apa / canalizare au fost schimbate complet, inclusiv canalizare, camine, alimentare apa.
La exterior, imobilul este izolat complet cu vata bazaltica, iar acoperisul este din tigla, izolat de asemenea cu vata bazaltica. Geamurile si usile de la terase sunt tripan, iar usile de acces in apartamente sunt metalice. Scara comuna de acces este din marmura.
La interior, toate compartimentarile sunt din caramida. Usile de interior sunt Pinum. Toate obiectele sanitare / baterii / dus / cada sunt Ideal Standard.
Incalzirea se face cu centrala termica proprie Viesmann Vitodens 50, cu distributie automata Purmo catre calorifere si termostat programabil individual pentru fiecare camera, cu automatizare.
Utilitatile (gaz, electricitate) sunt separate pe fiecare apartament in parte, cu contracte de utilitati si contoare separate si cu citire la strada a contoarelor individuale. Toate reviziile (instalatie gaz, centrale termice) sunt efectuate la zi.
Parcarea se face la comun in rampa (2 locuri), in fata imobilului (2 locuri) sau pe strada.
Strada nu este aglomerata, fiind o strada cu o singura cale de acces, foarte linistita si ferita complet de trafic, cu o comunitate de vecini excelenta.
Pentru detalii suplimentare si stabilire vizionari nu ezitati a ma contacta!.
Statii metrou |
Timp | |
![]() |
1 Mai | 8 min. |
Statii STB |
Timp |
|
Aviator Popișteanu
|
5 min. |
|
R.A.R
65
86
,97
,105
|
5 min. |
|
Lainici
65
86
,97
,105
|
6 min. |
|
Clăbucet
65
86
,97
,105
,300
,780
|
8 min. |
|
Feroviarilor
65
86
,97105
|
8 min. |
|
Bd. Expoziției
105
|
8 min. |
|
1 Mai
|
9 min. |
|
Bd. Ion Mihalache
|
9 min. |
|
Grivița
|
10 min. |
| 1. |
Sunshine Edu - After School Bucuresti
0741123340 Str. Lt. Av. Vasile Fuica, nr. 42, Sector 1 |
||
| 2. |
Karin\'s Kids Academy - Gradinita Bucuresti
0212250005 Str. Hermann Oberth, Nr. 33, Sector 1, Bucuresti |
||
| 3. |
Gradinita nr. 222 Bucuresti
0721345993; 0216673480 Str. Arad, nr. 38 , sector 1 |
||
| 4. |
Equilibrum - Gradinita Bucuresti
0724064503; 0724862068 Bd. Expozitiei, Nr. 2, Sector 1 |
||
| 5. |
Iboo - Gradinita Bucuresti
0770325689; 0773975780 Bd. Expozitiei, nr. 2, sector 1 |
||
| 6. |
Innababy - Cresa, gradinita, afterschool Bucuresti
0722403847 Str. Tintasului, Nr. 3, Sector 1, Bucuresti |
||
| 7. |
Young Academics - AfterSchool Bucuresti
0755095974 Str. Trotusului, nr. 39, sector 1 |
||
| 8. |
Hänsel und Gretel - Gradinita & After School Bucuresti
0212247704; 0743332447 Str. Mr. Av. Stefan Sanatescu, Nr. 19, sector 1, Bucuresti |
||
| 9. |
Ingenius Club - After School Bucuresti
0729164275; 0733975456 Str. Virgil Plesoianu, nr. 108, sector 1 |
||
| 10. |
Gradinita nr. 97 Bucuresti
0212241162 Str. Islaz, nr. 13, Sector 1 |
||
| 11. |
Cami Gradinita & After School - Bucuresti
0757402573; 0749018642 Str. Carol Knappe, Nr. 45, Sector 1, Bucuresti |
||
| 12. |
Cami - Gradinita particulara si afterschool Bucuresti
0757402573 Str. Carol Knappe, nr. 45,sector 1, Bucuresti |
||
| 13. |
Smart & Fun After School Crangasi
0765518746; 0766891844 Intr. Sipetului, Nr. 3, Sector 6 |
||
| 14. |
Alegra, Gradinita - Bucuresti
0746167291 Str. Finta, Nr. 25, Sector 6, Bucuresti |
||
| 15. |
Gradinita nr. 40 sector 6
0212203340 Str. Tabla Butii, nr. 60, sector 6 |
||
| 16. |
Genius - Afterschool Bucuresti
0745045180 Intrarea Craiovei, Nr. 21, Sector 6 |
||
| 17. |
Avenor - Gradinita Bucuresti
0737043475 Str. Alexandru Constantinescu, nr. 65, sector 1 |
||
| 18. |
Sfera Kinderzentrum - Gradinita, Before & After School Bucuresti
0728024897 Calea Grivitei, nr. 194, sector 1 |
||
| 19. |
Gradinita Quiz
0751425562 Str. Abrud, nr. 134-136, sector 1 |
||
| 20. |
The Little Artist - Gradinita Bucuresti
0737365283; 0743814767; 0722680765 Str. Ing. Zablovschi, Nr. 7, Sector 1, Bucuresti |
||
| 21. |
Teddybar - Gradinita, Bucuresti
0212224455; 0723048602 Str. Soimarestilor, nr. 29, sector 1, Bucuresti |
||
| 22. |
Good Family - Gradinita Bucuresti
0748224225 Str. Nicolae Filimon, Nr. 73A, sector 6 |
||
| 23. |
Go Kids Go - Before and After-School Bucuresti
0723076434; 0766480774 Str. Clucerului, nr. 21, sector 1 |
||
| 24. |
Gradinita din Povesti - Bucuresti
0724987747 Str. Costache Marinescu, Nr. 1A, Sector 1 |
||
| 25. |
Smiley Kindergarten, Gradinita & After School - Bucuresti
0314366138; 0722541744 Str. Gabriel Cioran, nr. 6, sector 6, |
||
| 26. |
Fulg de Nea - Gradinita sector 6
0212203132 Sos. Ciurel, Nr. 9-11, sector 6 |
||
| 27. |
Pitiricky - Clubul celor mici - Bucuresti
0724648513 Str. Ialomicioarei, Nr. 13, Sector 1, Bucuresti |
||
| 28. |
Mickey\'s House - Before & After School sector 6
0785539018 Str. Pietrele Doamnei, nr. 18, Sector 6 |
||
| 29. |
Monteclaris - Gradinita, before si afterschool Bucuresti
0724671560; 0784606075 Str. Maria Hagi Moscu, Nr. 29, Sector 1 |
||
| 30. |
Ruffy Strumfi - Gradinita, Bucuresti
0721305824 Str. Pietei, Nr. 5, sector 1 |
||
| 31. |
Gradinita Nr. 248 Bucuresti
0212224120 Str. Artur Vartejeanu, Nr. 15, Sector 1 |
||
| 32. |
Creative Minds Kindergarten - Gradinita Bucuresti
0726152551 Str. Alexandru Deparateanu, nr. 38, sector 1 |
||
| 33. |
Aristokids, Gradinita & After School - Bucuresti
0722648885 Str. Lebedei, Nr. 25, Sector 1, Bucuresti |
||
| 34. |
Gradinita nr. 206 - Gradinita cu program prelungit Bucuresti
0212229287 Str. Constantin Disescu, nr. 37, sector 1 |
||
| 35. |
Oskar - Before&After School Bucuresti
0734040227; 0730948470 Str. Monetariei, nr. 12, sector 1 |
||
| 36. |
Oskar - Before and After School Piata Victoriei
0730948470 Str. Monetariei, Nr. 14, Sector 1, Bucuresti |
||
| 37. |
Wings - Centru Educational Bucuresti
0730170389; 0726353003 Str. Neajlovului, nr. 8, sector 1 |
||
| 38. |
Ursuletul - Gradinita & After School Bucuresti
0765472054 Str. Diaconu Coresi, Nr. 1, sector 1, Bucuresti |
||
| 39. |
Apple Tree Kindergarten, Gradinita - Bucuresti
0213302011; 0756151434 Str. Maicanesti, Nr. 22, sector 1, Bucuresti |
||
| 40. |
CoolTure MindS - After School Bucuresti
0743359307 Bd. Alexandru Ioan Cuza, nr. 37, Sector 1 |
||
| 41. |
Orhideea Kids - Gradinita & After School Bucuresti
0748595311 Calea Plevnei, Nr. 145B, sector 1, Bucuresti |
||
| 42. |
LTN Liceul Teoretic National - Gradinita, Gimnaziu, Liceu - Bucuresti
0720000171; 0732151931 Str. Dr. Iacob Felix, nr. 49, Sector 1, Bucuresti |
||
| 43. |
Zum Zum - Gradinita Bucuresti
0745685556; 0740704922 Str. Vespasian, Nr. 37, Sector 1, Bucuresti |
||
| 44. |
FourKids - Before School si After School Bucuresti
0765589081; 0771183397 Str. Munteniei, nr. 80, Sector 1 |
||
| 45. |
Montessori Orizonturi Libere - Gradinita si scoala, Bucuresti
0726766663; 0733914286; 0787829354 Str. Unditei, nr. 11, Sector 1 |
||
| 46. |
Gradinita Nr. 251 Bucuresti
0212301417 Str. Venezuela, nr. 11, sector 1 |
||
| 47. |
Genesis College, Gradinita si Scoala primara - Bucuresti
0724505889 Sos. Straulesti, nr. 89A, sector 1, Bucuresti |
||
| 48. |
Mary Poppins - Gradinita & After School Bucuresti
0212333868; 0723597206; 0745285826 Str. Aron Cotrus, Nr. 69 E, Sector 1, Bucuresti |
||
| 49. |
Sofia - Gradinita Bucuresti
0721006006; 0212311505 Str. Sofia, Nr. 20, Sector 1 |
||
| 50. |
Steaua Nordului - Before and Afterschool Bucuresti
0745040940 Str. Andrei Muresanu, nr. 27, sector 1 |
||
| 51. |
Tichiuta - Cresa, Gradinita Bucuresti
0212333661; 0727384401 Str. Garlei, nr. 64, sector 1 |
||
| 52. |
Smart Kids - Scoala Gimnaziala, Scoala Primara si Gradinita Bucuresti
0745022714 Str. C-tin Dobrogeanu Gherea, Nr. 22A, Sector 1, Bucuresti |
||
| 53. |
Analesia - Gradinita & AfterSchool in limba germana Bucuresti
0741332222; 0741332226 Str. Paris, nr. 57, sector 1 |
||
| 54. |
Elly\'s - Before & After School sector 6
0763188937 Str. Cetatea de Balta, nr. 155, Sector 6 |
||
| 55. |
Academia Einstein Afterschool & Beforeschool Bucuresti
0734193424 Str. Somesul Rece, nr. 9, Sector 1 |
||
| 56. |
Brightivity Montessori - Gradinita, Bucuresti
0753111065 Str. Somesul Rece, Nr. 9 Sector 1 |
||
| 57. |
Gradinita lui David - Bucuresti
0751103010; 0769245552 Intr. Catedrei, Nr. 10, sector 1, Bucuresti |
||
| 58. |
Gradinita M.Ap.N. nr. 1 sector 6
0213196009; 0766298724 Calea Plevnei, nr. 137B, sector 6 |
||
| 59. |
Little Leaders Academy - Cresa, gradinita, Afterschool Bucuresti, Ilfov
0721777488 Str. Constantin Dobrogeanu Gherea, nr. 78, Sector 1 |
||
| 60. |
LifeKids Club Afterschool
0774458673 Str. Crisul Repede, nr. 28, sector 6 |
||
| 61. |
Fata din Dafin - Gradinita Bucuresti
0723669539 Str. Garlei nr. 45 A, Sector 1, Nr 8, Sector 1 |
||
| 62. |
Discover Me- Gradinita Bucuresti
0747774809 Str. Constantin Noica, Nr. 120, sector 6, Bucuresti |
||
| 63. |
Le Carrousel - Gradinita in limba franceza Bucuresti
0745101783 Str. Grigore Gafencu, nr. 14, sector 1 |
||
| 64. |
Kids Room - Servicii de before si after school, Ilfov
0732165558 Strada Mitropolit Andrei Saguna, Nr. 46 A Bucuresti-Noi, judetul Ilfov |
||
| 65. |
Kinderakademie - Gradinita & After School Bucuresti
0724661760; 0727427004 Str. Sfintii Voievozi, Nr. 28, Sector 1, Bucuresti |
||
| 66. |
Kinderträume - Gradinita Bucuresti
0744507988 Splaiul Independentei, Nr. 195, sector 6, Bucuresti |
||
| 67. |
Happy Kids - Gradinita si after school Bucuresti
0770708392 Str. Scoala Floreasca, Nr. 3, Sector 1, Bucuresti |
||
| 68. |
Rose Mary - Gradinita & After School Bucuresti
0747179897 Str. Baneasa, Nr. 27B, vila 3, Sector 1, Bucuresti |
||
| 69. |
After School Sector 1
0747179897 Str. Baneasa, Nr. 27, Sector 1, Bucuresti |
||
| 70. |
Bergman Nature Kindergarten - Bucuresti
0743918743 Str. Elena Caragiani, Nr. 21C, sector 1 |
||
| 71. |
Gradinita nr. 283 Bucuresti
0212322093 Bd. Ficusului, nr. 25, sector 1 |
||
| 72. |
Waldorf Eruditio - Gradinita sector 6
0723346791 Str. Orsova, nr. 77, sector 6 |
||
| 73. |
Teko - Gradinita
0753093322 Drumul Eugen Brote, nr. 29-31, vila 2, sector 1 |
||
| 74. |
Mami si Tati - Gradinita, Before & After School Bucuresti
0721177543; 0762616442 Str. Grigore Alexandrescu, Nr. 58, sector 1, Bucuresti |
||
| 75. |
Happy Angel Academy - Cresa, Gradinita, Afterschool
0743344344; 0745515253 Strada Smaranda Braescu, nr.36, sector 1 |
||
| 76. |
Dianva Kids - After School, Bucuresti
0721959335 Str. Orsova, Nr. 129, Sector 6 |
||
| 77. |
Montessori Kids at work - Gradinita Bucuresti
0723357063 Str. Smaranda Braescu, nr. 40A-42, sector 1 |
||
| 78. |
Scoala Italiana Aldo Moro - Gradinita,scoala, liceu, Bucuresti
0212104684 Intr. Blaj, nr. 1, Sector 1, Bucuresti |
||
| 79. |
Kids Club Baneasa, Gradinita & After School - Bucuresti
0746030320 Str. Neagoe Voda, Nr. 58, Sector 1, Bucuresti |
||
| 80. |
Guguta - Cresa, Gradinita Bucuresti
0769256924 Drumul Manastirea Sihastria, Nr. 11A, sector 6, Bucuresti |
||
| 81. |
Emerald - Gradinita Bucuresti
0722493479 Drumul Manastirea Sihastria, Nr. 13C, Sector 6, Bucuresti |
||
| 82. |
Montessori Universe - Gradinita Bucuresti
0723668084 Str. Sergent Petre Aurelian, nr. 12, sector 1 |
||
| 83. |
Scoala Gimnaziala, Gradinita si After School Nr. 181 - Bucuresti
0213105599 Str. Nazarcea, Nr. 30, Sector 1, Bucuresti |
||
| 84. |
Olga Gudynn, Gradinita si Scoala Cotroceni - Bucuresti
0734411332; 0214106995 Str. Fagaras, Nr. 6, Sector 1, Bucuresti |
||
| 85. |
Alba ca Zapada, Gradinita, After School sector 6
0723737939; 0773967033; 0214330220 Str. Cernisoara, Nr. 86A, Sector 6, Bucuresti |
||
| 86. |
Gradinita Nr. 246 sector 6
0316208173 Str. Fabricii, nr. 20, sector 6 |
||
| 87. |
Hands-On - Centru educational Bucuresti
0725977815 Bd. Iuliu Maniu, nr. 7, Cotroceni Business Center, Corp U, parter, sector 6 |
||
| 88. |
Gradinita nr. 197 Zana Florilor sector 6
0214302179 Str. Cetatuia, nr. 10, sector 6 |
||
| 89. |
Gradinita lui Matei - Bucuresti
0770144739 Sos.Gheorghe Ionescu Sisesti, Nr. 40, Sector 1, Bucuresti |
||
| 90. |
Fridolin - Gradinita, Scoala Germana Bucuresti
0723219616; 0723584872 Str. Temisana, Nr. 1, Sector 1, Bucuresti |
||
| 91. |
Sfantul Stelian - Gradinita, afterschool Ilfov
0734087549; 0737012035 Str. Marasesti, Nr. 2, Sat Rosu, Com. Chiajna |
||
| 92. |
INNA Kids Academy - Before & Afterschool Bucuresti
0723290372 Str. Johann Sebastian Bach, nr. 10, Sector 2 |
||
| 93. |
Albinuta - Gradinita sector 2
0212303377 Str. Dinu Lipatti, nr. 1, sector 2 |
||
| 94. |
Gradinita nr. 250 Sector 6
0316201847 Str. Dealul Tugulea, nr. 35, sector 6 |
||
| 95. |
Gradinita nr. 274 sector 6
0213163345 Bd. Iuliu Maniu, nr. 11D, sector 6 |
||
| 96. |
Gradinita nr. 271 sector 5
0214109024 Bd. Eroii Sanitari, nr. 77, sector 5 |
||
| 97. |
Gradinita Nr. 252 Bucuresti
0212302296 Calea Dorobantilor, nr. 60, sector 1 |
||
| 98. |
Olga Gudynn International School - Gradinita, scoala si liceu, Bucuresti
0734411359; 0212311202 Str. Ancuta Baneasa, Nr. 8, sector 1, Bucuresti |
||
| 99. |
Gradinita MAPN Nr. 2 Bucuresti
0213156889 Str. Constantin Cristescu, nr. 5, sector 1 |
||
| 100. |
International Kids Academy - Scoala Primara & Gradinita Rosu
0723027226 Str. Capitan Ion Ionescu, nr. 2, Rosu, judetul Ilfov |
||
| 101. |
Smart Kinder Villa - Before & After School Bucuresti
0726285699; 0728472197 Str. Nicolae Beldiceanu, nr. 2, sector 1 |
||
| 102. |
Edu Friends - Before & After School Bucuresti
0783080096 Str. Berzei, Nr. 5, Sector 1 |
||
| 103. |
Edu & Care - After School, cursuri pentru copii Bucuresti
0721571086 Str. Chopin, nr. 2 B, sector 2 |
||
| 104. |
Waldorf Christophori - Gradinita Bucuresti
0770861602 Str. Putul cu Plopi, Nr. 8, (langa Parcul Cismigiu) - sector 1, Bucuresti |
||
| 105. |
Planeta Copiilor - Gradinita Bucuresti
0724212887 Str. Gabriela Szabo, Nr. 3 - 11, Sector 6, Bucuresti |
||
| 106. |
Maria International School - Gradinita, Scoala primara si afterschool Bucuresti
0730432092 Str. Piata Amzei, Nr. 6, Sector 1, Bucuresti |
||
| 107. |
Don Quijote - Afterschool Bucuresti
0725737793 Str. Ioan Slavici, nr. 4, sector 1 |
||
| 108. |
Harap Alb - Cresa sector 6
0376203298 Str. Estacadei, Nr. 13 A, Sector 6 |
||
| 109. |
Cartea cu Povesti - Gradinita Bucuresti
0766237114 Str. Aurel Vlaicu, nr. 127A, sector 2, |
||
| 110. |
Creative Kidz - Afterschool Rosu
0735246217 Str. Gospodari, Nr. 46, Sat Rosu, Com. Chiajna, judetul Ilfov |
||
| 111. |
My Universe - Afterschool si gradinita, Bucuresti
0788416164 Str. Costache Negri, Nr. 9-11, sector 5 |
||
| 112. |
Taramul Cunoasterii - Cresa si Gradinita Bucuresti
0724278826 Str. Ioan G. Bibicescu, Nr. 11, Sector 1, Bucuresti |
||
| 113. |
Gradinita nr. 138 sector 2
0212106377 Str. Tunari, nr. 52, sector 2 |
||
| 114. |
Asociatia Conil - Gradinita pentru copii cu nevoi speciale Bucuresti
0784412222; 0217466704; 0735847526 Str. Dr. Victor Poloni , nr 14, Sector 5, Bucuresti |
||
| 115. |
Lilo Club - Cresa si gradinita Ilfov
0765149367; 0747068562 Intr. Nuferilor, nr. 1, Rosu, Chiajna, judetul Ilfov |
||
| 116. |
Alfred Fronius - Gradinita si afterschool in limba germana Bucuresti
0729699619; 0726715499 Str. Tunari, Nr. 39, Sector 2, Bucuresti |
||
| 117. |
Alfred Fronius - Gradinita si afterschool in limba germana Bucuresti
0372978427; 0726715499 Str. Tunari, Nr. 39 (zona Stefan Cel Mare), sector 2 |
||
| 118. |
Gradinita nr. 73 sector 5
0213154355 Splaiul Independentei, nr. 68, sector 5 |
||
| 119. |
Nicoland - Cresa, Gradinita Bucuresti
0766237114 Str. Raspantiilor, Nr. 7, Sector 2 |
||
| 120. |
Albinutele - Gradinita cu program prelungit sector 6
0311010031 Str. Centurii, nr. 4, sector 6 |
||
| 121. |
Ioanid - Gradinita Bucuresti
0758054441 Str. Polona, Nr. 4, Sector 1, |
||
| 122. |
Clubul Micul Print - afterschool Bucuresti
0733750795 Str. Dr. Nicolae Staicovici, Nr. 51, Sector 5, Bucuresti |
||
| 123. |
Rio - Gradinita & After School Bucuresti
0740025434; 0748633314 Str. Luigi Galvani, Nr. 13A, Sector 2, Bucuresti |
||
| 124. |
Priki - Gradinita sector 6
0753936611; 0742292143 Str. Sergent Apostol Constantin, nr. 14, sector 6 |
||
| 125. |
Rainbow Kids - Gradinita si scoala primara Bucuresti
0737081690; 0773349170 Str. Ion Dragalina, Nr. 8, Sector 5, Bucuresti |
||
| 126. |
Ada - Gradinita Bucuresti
0723595916 Str. Gheorghe Spacu, nr. 21, sector 6, Bucuresti |
||
| 127. |
Little Primary Education - Gradinita Bucuresti
0733331333 Intr. Docherilor, Nr. 3, Sector 2 |
||
| 128. |
Adnan, Gradinita - Bucuresti
0744606010; 0722205243 Intr. Buturugeni, Nr. 7 Sector 5, Bucuresti |
||
| 129. |
Kids Learning Center - centru cultural-educativ Ilfov
0762669907; 0765440404 Drumul Bacriului, nr. 101, Rosu - Chiajna, judetul Ilfov |
||
| 130. |
Tom Sawyer - Gradinita sector 2
0722529958 Str. Bratului, nr. 14, sector 2 |
||
| 131. |
Gradinita Nr. 133 sector 2
0212116749 Str. Aurel Vlaicu, nr. 30 - 32, sector 2 |
||
| 132. |
Gradinita nr. 272 sector 6
0311070199; 0214133878 Bd. Timisoara, nr. 39, sector 6 |
||
| 133. |
HappyKidz - Before & Afterschool sector 6
0726348591 Str. Albitei, Nr. 2K, Sector 6 |
||
| 134. |
Dumbrava Minunilor - Gradinita sector 6
0217962807 Str. Apusului, nr. 71-73 , sector 6 |
||
| 135. |
Luca - Gradinita si Cresa, After school, Scoala primara si gimnaziala, Liceu teoretic, Bucuresti
0721335161; 0744894206 Str. Sanmedru, Nr. 25, Sector 2, Bucuresti |
||
| 136. |
Amadeus - Afterschool Bucuresti
0770896313; 0721841416 Str. Amidonul, nr. 2, Sector 2 |
||
| 137. |
Gradinita Nr. 203 Bucuresti
0213112352 Str. C. A. Rosetti, nr. 32, Sector 1 |
||
| 138. |
Kids Joy Land - Gradinita si after school, Ilfov
0721216194 Str. 1 Decembrie 1918, Nr. 181 A - Sediul 1, Comuna Chiajna, judetul Ilfov |
||
| 139. |
Castelul Voinicilor - Cresa, Gradinita After School Militari sector 6
0760991977 Str. Rosiori de Vede, nr. 12A, Sector 6 |
||
| 140. |
David Mihai - Gradinita, Ilfov
0767817041; 0766305131; 0765703632; 0784203520 Drumul Bacriului, nr. 42 B, Rosu, com. Chiajna, judetul Ilfov |
||
| 141. |
Gradinita nr. 57 Hillary Clinton sector 6
0214133928 Aleea Pravat, nr. 16, sector 6 |
||
| 142. |
Springfield Education - Gradinita si After School Bucuresti
0734710573; 0721707879 Str. Soltuzului, Nr. 10, Sector 2, Bucuresti |
||
| 143. |
Casuta Strumfilor - Gradinita Bucuresti
0733194605 Intr. Jarului, Nr. 3, Sector 6 |
||
| 144. |
Paradisul Piticilor - Gradinita sector 6
0214341214; 0214341213 Str. Moinesti, nr. 9, sector 6 |
||
| 145. |
Lumea Piticilor - Gradinita, Ilfov
0723660168 Str. Crinului, nr. 37A, Chiajna, judetul Ilfov |
||
| 146. |
Montessori British School - Gradinita, Ilfov
0756100116 Str. Rasaritului, nr. 3, Chiajna, judetul Ilfov |
||
| vezi mai multe | |||
| 1. |
Spitalul de Urgenta de Chirurgie Plastica, Reparatorie si Arsuri-Bucuresti
0212240946; 02.2240947; Tel/Fax 0212241800 Calea Grivitei , nr. 218, sector 1 , |
||
| 2. |
Spitalul de Urgenta de Chirurgie Plastica, Reparatorie si Arsuri
0212240946; 0212240947; Tel/Fax 0212241800 Calea Grivitei nr. 218, sector 1, |
||
| 3. |
Spitalul Clinic C.F. 2 - Bucuresti + ambulatoriu
Tel. 0372298711; Fax 0372298761 Bd. Marasti nr. 63, sector 1 , |
||
| 4. |
Spitalul Clinic C.F. 2 - Bucuresti
Tel. 0372298711 Bd. Marasti nr. 63, sector 1, |
||
| 5. |
Spitalul Universitar de Urgenta Elias
0213161600; Fax 0213161602; 0213112444 Bd. Marasti nr. 17, sector 1, |
||
| 6. |
Spitalul Universitar de Urgenta Elias
0213161600; Fax 0213161602 Bd.Marasti, nr. 17, sector 1, |
||
| 7. |
Centrul Medical Nicomed
0216372458; 0731338524 Calea Crangasi nr. 23, bl. 13, sc. 2, ap. 1, sector 6, |
||
| 8. |
Centrul Medical Nicomed-Bucuresti
0216372458; 0731338524 Calea Crangasi, nr. 23, ap.1, sector 6, |
||
| 9. |
Prof. Dr. Panait Sirbu, Spitalul Clinic de Obstetrica-Ginecologie Bucuresti
0213161281; 0213161283; 0213161287 Calea Giulesti, nr. 5, sector 6, bucuresti |
||
| 10. |
Prof. Dr. Panait Sirbu, Spitalul Clinic de Obstetrica-Ginecologie Bucuresti
0213161281; 0213161283 Calea Giulesti, nr. 5, sector 6 , |
||
| 11. |
Clinica Medicala Provita Diagnostic si Tratament-Bucuresti
Tel. 0219432 Str.Alexandrina, nr. 20 , sector 1, |
||
| 12. |
Prof.Dr. Agrippa Ionescu, Spitalul Clinic de Urgenta Bucuresti
0377720000; Fax 0377726169 Str. Arh. Ion Mincu , nr. 7, sector 1, |
||
| 13. |
Spitalul Clinic Sfanta Maria + ambulatoriu
Tel. 0212223553; 0212223550 Bd. Ion Mihalache, nr. 37-39, sector 1, |
||
| 14. |
Spitalul Clinic Sfanta Maria + ambulatoriu-Bucuresti
Tel. 0212223550; 0212223553 Bd. Ion Mihalache nr. 37-39, sector 1, |
||
| 15. |
Centrul Medical Focus
0753035038 Str. Dinicu Golescu, nr. 23-25 , sector 1, |
||
| 16. |
Centrul Medical Ioana-Bucuresti
0212233810; 0786486156 Str. Alexandru Ioan Cuza, nr. 81,, et. 1,sector 1, Bucuresti |
||
| 17. |
Ioana Medical Center
0212233810; 0786486156 Bd. Alexandru Ioan Cuza, nr 81, et 1, sector 1 |
||
| 18. |
Centrul de Transfuzie Sanguina Bucuresti
Tel. 0314053660; 0314053661; 0314053662 Str. Constantin Caracas nr. 2-8, sector 1, |
||
| 19. |
Clinica Sanamed-Bucuresti
0219442 Calea Plevnei, Nr. 159,corpul B ,Sector 6, |
||
| 20. |
Clinica Medicover-Bucuresti
0219896 Str. Sergent Constantin Ghercu,, nr. 1A, sector 1, |
||
| 21. |
Medicine Park International by Tuncay Öztürk - Centru de kinetoterapie si recuperare
0727464464 Str. Grigore Mora, nr. 19, Sector 1 |
||
| 22. |
Institutul National de Endocrinologie C. I. Parhon
Tel. 0213172041; 0213172042; Fax 0213170607 Bd. Aviatorilor, nr. 34-36, sector 1 , |
||
| 23. |
Institutul National de Endocrinologie C. I. Parhon
Tel. 0213172041; 0213172042; Fax 0213170607 Bd. Aviatorilor nr. 34-36, sector 1 , |
||
| 24. |
Centrul Medical Sana-Bucuresti
0212128222 Str. Dr. Sergiu Dumitru, nr. 3, sector 1, |
||
| 25. |
Centrul Medical Sanador-Bucuresti
Tel. 0219699 |
||
| 26. |
Centrul Medical M Hospital-Bucuresti
Tel.0219136 Str. Witing, nr. 10-12, sector 1 , |
||
| 27. |
Centrul Medical M Hospital-Bucuresti
0219136; 0744812330; 0213162049 Str.Witting, nr. 10-12, sector 1, Bucurestu |
||
| 28. |
Spitalul Clinic CF Witting + ambulatoriu
Tel. 0213129530; 0213129531; 0213176280 Calea Plevnei nr. 142-144, sector 6, |
||
| 29. |
Centrul Medical de Diagnostic, Tratament Ambulator si Medicina Preventiva
0212300402; 0212302980; 0212305923 Str. Washington, nr. 8-10, sector 1, |
||
| 30. |
Spitalul Clinic de Nefrologie - Dr. Carol Davila
Tel. 0213189184 (centrala); Fax 0213189184 Calea Grivitei nr. 4, sector 1, |
||
| 31. |
Clinica Regina Maria - Perla-Bucuresti
0219268 Calea Dorobanti, nr. 126-130, sector 1, |
||
| 32. |
Dr. Carol Davila, Spitalul Universitar de Urgenta Militar Central Bucuresti + ambulatoriu
Tel. 0213193052/60; 0213193030 Str. Calea Plevnei , nr. 134, sector 1, |
||
| 33. |
Miko Med
021.233.44.66; 0722.525.472 Str. Nicolae Caramfil, nr.51,sector 1, |
||
| 34. |
Spitalul Universitar de Urgenta Militar Central Dr. Carol Davila
Tel. 0213193052/60; Fax.0213193030 Str. Calea Plevnei, nr. 134, sector 1, Bucuresti |
||
| 35. |
Centrul Medical Ponderas-Bucuresti
0219886 Str. Nicolae Caramfil, nr. 85A, sector 1, |
||
| 36. |
Lifeline Services-Bucuresti
0212221651; 0722279756 Sos. Virtutii, nr. 19 D, Virtutii Business Center, Sector 6, |
||
| 37. |
Clinica Psiho-Armonie-Bucuresti
0730028680; 0311063523 Str. N. Constantinescu, nr. 11, bl.11, sc.1, parter, ap.2, interfon 02,sector 1, |
||
| 38. |
LookClinic, Bucuresti - Centre de diagnosticare,preventie si implant de par
0213203477 Calea Dorobantilor, nr.188-190, sector 1, |
||
| 39. |
Spitalul Clinic de Urgenta pentru Copii \"Grigore Alexandrescu\"
Tel. 0213169366; 0213169366 int. 133/155; UPU.0213110994 Bd. Iancu de Hunedoara, nr. 30-32, sector 1 , |
||
| 40. |
Spitalul Clinic de Urgenta pentru Copii \"Grigore Alexandrescu\"
0213169366:Centrala telefonica; 0213110994 :Unitatea Primiri Urgente Bd. Iancu de Hunedoara, nr. 30-32, sector 1, Bucuresti |
||
| 41. |
Spitalul Clinic de Urgenta pentru Copii \"Grigore Alexandrescu\"
0213169366:Centrala telefonica; 0213110994:Unitatea Primiri Urgente Bd.Iancu de Hunedoara, nr. 30-32, sector 1, Bucuresti |
||
| 42. |
Centrul Medical Prain
0212113430; 0212108476; 0723237430 Calea Dorobantilor, nr. 32A,7,ET 1, |
||
| 43. |
Clinica Medicala Elite-Bucuresti
Tel. 0720260024; 0212339776 Str. Tudor Stefan, nr. 42-44, sector 1, |
||
| 44. |
Policlinica Regina Maria Baneasa
0219268 Str. Ion Ionescu de la Brad, nr. 5B, sector 1, |
||
| 45. |
PriMed - Clinica Medicala Bucuresti
0219986; 0720034774 Bd. Dinicu Golescu, nr.10, sector 1 |
||
| 46. |
Clinica Medicala Blaj Stefan-Bucuresti
0742010636 Str.Ciprian Porumbescu, nr. 12, sector 1, |
||
| 47. |
RomGerMed - Clinica Medicala Bucuresti
Tel. 0213110075; 0727999602 Calea Plevnei, 137 C, sector 6, |
||
| 48. |
Imuno Medica - Centrul de preventie, diagnostic si tratament Sf. Ioan Botezatorul
0314050350; 0771771333 Str. Virgiliu nr. 81, sector 1 |
||
| 49. |
Policlinica Regina Maria - Cotroceni
0219268 Sos. Cotroceni, nr. 20, sector 6, |
||
| 50. |
Rytmomed - Clinica medicala Bucuresti
0737181511 Str. Popa Tatu, nr. 35, Sector 1 |
||
| 51. |
Spitalul Euroclinic
Tel. 0219268; 0219208 Calea Floreasca nr. 14 A, sector 1, |
||
| 52. |
Clinica de Excelenta in Patologia Somnului Somnolog-Bucuresti
0213118822; 0784442277 Str.Dr.Leonte Anastasievici, nr.11, sector 5, |
||
| 53. |
Enayati Medical City - Primul Oras Medical din Bucuresti
0219362 Sos. Gh. I. Sisesti, Nr. 8A, Sector 1, Bucuresti |
||
| 54. |
Centrul Medical Cutera Medical Center-Bucuresti
Tel. 0746141620 Str. Giacomo Puccini , nr. 8 A, sector 1, |
||
| 55. |
Spitalul Universitar de Urgenta Bucuresti - SUUB
Tel. 0213180519; Fax 0213180554 Splaiul Independentei, nr. 169, sector 5 , |
||
| 56. |
Spitalul Universitar de Urgenta Bucuresti - SUUB
Tel. 0213180519; 0213180554 Splaiul Independentei nr. 169, sector 5, |
||
| 57. |
Spitalul Clinic de Nefrologie - Dr. Carol Davila
Tel. 0213189184 (centrala) Calea Grivitei, nr. 4, sector 1, |
||
| 58. |
Centrul Medical Bio Terra Med- Bucuresti
0726243473; 0724262110; 0774022961 Calea Grivitei, nr. 3, Sector 1, |
||
| 59. |
Doris - centru de testare COVID 19 Bucuresti
0732684319 Bd. Iuliu Maniu, nr. 11, sector 6, |
||
| 60. |
Spitalul Euroclinic + ambulatoriu
0219208 Calea Floreasca, nr. 14 A, sector 1, Bucuresti |
||
| 61. |
Ambulatoriul Spitalului Universitar de Urgenta
Tel. 0213180519/29; 0212026147 Splaiul Independentei, nr. 169, sector 5 , |
||
| 62. |
Euroclinic
0219268; 0219208 Calea Floreasca, 14 A, Sector 1, Bucuresti |
||
| 63. |
Ambulatoriul Spitalului Euroclinic
0219208; Call Center:0219268 Calea Floreasca, nr. 14A, sector 1, Bucuresti |
||
| 64. |
Spitalul de Urgenta Floreasca + ambulatoriu-Bucuresti
Tel.021.5992300; Fax.021.5992257 Calea Floreasca, nr. 8, sector 1, |
||
| 65. |
Spitalul de Urgenta Floreasca
Tel. 0215992300; 0215992308; Fax.0215992257 Calea Floreasca nr. 8, sector 1, |
||
| 66. |
Clinica Medicala Data Plus-Bucuresti
0213131491 Str.Cobalcescu Grigore, nr. 35,sector 1, |
||
| 67. |
Centru Medical Mediclass - Cotroceni
0214102727; 0214120128; 0214120129 Str. Elefterie, nr. 47-49 (Complex Comercial Cotroceni), sector 5, |
||
| 68. |
Cabinet Medical dr. Jovin
Tel. 0746418043; Tel/Fax 0212312116 Str. Wolfgang Amadeus Mozart nr. 31, sector 2, |
||
| 69. |
Clinica Medicala Alco San
021.211.41.12; 0755.050.055; Fax 021.211.41.13 Str. Barbu Vacarescu, nr. 67, sector 2, |
||
| 70. |
SPITALUL SF. STEFAN + ambulatoriu
021.210.39.36 Sos. Stefan cel Mare nr. 11, sector 2, |
||
| 71. |
SPITALUL SF. STEFAN + ambulatoriu
0212103936 Sos. Stefan cel Mare, nr. 11, sector 2, |
||
| 72. |
Bioderm Medical Cente- Bucuresti
Tel. 0722338383 Str. Mihai Eminescu, nr. 42, sector 1, |
||
| 73. |
Policlinica Regina Maria - Enescu
0219268 Str. George Enescu, nr.12, sector 1, |
||
| 74. |
Spitalul de Urgente Oftalmologice + Ambulatoriu
0213192751; 0213192753 P-ta Lahovari, nr. 1, sector 1, |
||
| 75. |
Spitalul de Urgente Oftalmologice + Ambulatoriu
0213192751; 0213192752 P-ta Lahovari nr. 1, sector 1, |
||
| 76. |
Spitalul Clinic de Chirurgie Oro-Maxilo-Faciala -Bucuresti
Tel/Fax. 0213158855; 0213155217 Calea Plevnei, nr. 17-21, sector 1 , |
||
| 77. |
Spitalul Clinic de Chirurgie Oro-Maxilo-Faciala \"Prof. Dr. Dan Theodorescu\"
Tel/Fax. 0213158855; 0213155217 Calea Plevnei, nr. 17-21, sector 1, |
||
| 78. |
Policlinica pentru copii Regina Maria - Opera
0219268 Str. Costache Negri, nr. 1-5, sector 5, |
||
| 79. |
Clinica Regina Maria - Pipera-Bucuresti
0219268 Bd. Dimitrie Pompeiu, nr. 9-9A, cladirea 1, parter, sector 2, |
||
| 80. |
Polimed Apaca - Policlinica, Bucuresti
0214348003; 0214348026; 0213113810 Str.Dezrobirii, Nr. 13, Sector 6, Bucuresti |
||
| 81. |
Scanmed - Clinica Medicala Bucuresti
0219215; 0317100141; 0729202202 Sos. Panduri, nr. 71, Parter, Sector 5 |
||
| 82. |
Cord Blood Center-Bucuresti
0739853208 Str. Ramuri Tei, nr. 20, sector 2, |
||
| 83. |
Centrul Medical Gorjului- Bucuresti
0214341557 Bd. Iuliu Maniu, nr. 65, sector 6 , |
||
| 84. |
RomGerMed - Clinica Medicala Bucuresti
Tel. 0213110075; 0725302475 Calea Plevnei, nr. 137C, sector 6, |
||
| 85. |
Clinica Regina Maria -Bucharest Business Park
0219268 Sos. Bucuresti-Ploiesti, nr.1 A, corp A, parter, sector 1, |
||
| 86. |
Centrul Medical Panduri-Bucuresti
0731806118; 0219901 Str. Dr. Ioan Atanasiu, nr. 34, sector 5, |
||
| 87. |
Ambulatoriul Spitalului Clinic Colentina
0213167320 ; 0213173245 / interior 5732; Fax: 0213161952 Sos.Stefan cel Mare, nr. 19-21, sector 2, Bucuresti |
||
| 88. |
Spitalul Clinic Colentina + Ambulatoriu
0213167320; 0213173245 ; Fax: 0213161952 Sos. Stefan cel Mare, nr. 19-21, sector 2 , |
||
| 89. |
Spitalul Clinic \"Prof. Dr. Theodor Burghele\" + Ambulatoriu
Tel. 0214106910; Fax 0214111055 Sos. Panduri nr. 20, sector 5, |
||
| 90. |
Spitalul Clinic Colentina + Ambulatoriu
Tel. 0213167320; 0213173245; 0213165895 Sos. Stefan cel Mare, nr. 19-21, sector 2, |
||
| 91. |
Policlinica Regina Maria - Lujerului
0219268 Bd. Iuliu Maniu, nr. 51, sector , |
||
| 92. |
Institutul National de Boli Infectioase Prof. Dr. Matei Bals
Tel.0212010980; 0213186091 Str. Dr. Calistrat Grozovici, nr. 1, sector 2, |
||
| 93. |
Centru Medical Stb-Bucuresti
0213183430 (centrala); Str. Dr. Grozovici, nr. 6, sector 2 , |
||
| 94. |
Institutul National pentru medicina complementara si alternativa
Tel.0783002934; 0214102419 Sos. Panduri , nr. 22, sector 5, |
||
| 95. |
Institutul National de Boli Infectioase Prof. Dr. Matei Bals
0212010980 (centrala); 0213186090 Str. Dr. Grozovici, Nr. 1, sector 2, |
||
| vezi mai multe | |||
| 1. |
Colegiul Tehnic Mecanic Grivita - Bucuresti
0212240770 Calea Grivitei, Nr. 363, Sector 1, Bucuresti |
||
| 2. |
Colegiul Tehnic Mircea cel Batran - Bucuresti
0212242376 Str. Feroviarilor, Nr. 37, Sector 1 |
||
| 3. |
Sfantul Nicolae, Scoala Gimnaziala Nr. 175 - Bucuresti
0212241846 Str. Lainici, Nr. 4-8, Sector 1, Bucuresti |
||
| 4. |
Eugen Barbu, Scoala Gimnaziala Nr. 173 - Bucuresti
0212240937 Str. Ivan Petrovici Pavlov, Nr. 2-4, Sector 1, Bucuresti |
||
| 5. |
Timotei Cipariu, Liceul Greco-Catolic - Bucuresti
0216678434 Str. Bucegi, Nr. 97, Sector 1, Bucuresti |
||
| 6. |
Scoala Gimnaziala nr 180 - Bucuresti
0216671835 Bucegi, nr. 97, sector 1 |
||
| 7. |
SEB, Scoala Europeana, Invatamant primar, gimnazial si liceal - Bucuresti
0314381212; 0720068490 Bd. Expozitiei, Nr. 24D, sector 1, Bucuresti |
||
| 8. |
Scoala Gimnaziala Nr.163 - Bucuresti
0212201018 Calea Giulesti, Nr. 54, Sector 6, Bucuresti |
||
| 9. |
Petre Ispirescu - Scoala Gimnaziala Nr. 171 - Bucuresti
0212241163 Str. Vasile Gherghel, Nr. 2, Sector 1, Bucuresti |
||
| 10. |
Little Genius - Scoala primara Bucuresti
0724245249 Str. Carol Knappe, Nr. 95, sector 1 |
||
| 11. |
Carol I, Colegiu Tehnic - Bucuresti
0212202750 Str. Porumbacu, Nr. 52, Sector 6, Bucuresti |
||
| 12. |
Marin Preda, Liceu teoretic - Bucuresti
0212202344 Str. Rusetu, Nr. 17, Sector 6, Bucuresti |
||
| 13. |
Geo Bogza, Scoala Gimnaziala Nr. 170 - Bucuresti
0212223072 Str. Barbu Lautaru, Nr. 4, Sector 1, Bucuresti |
||
| 14. |
Colegiul Tehnic Dinicu Golescu - Bucuresti
0216370484 Calea Giulesti, Nr. 10, Sector 1 |
||
| 15. |
Constantin Brancoveanu, Liceu teoretic - Bucuresti
0216670890 Str. Pajurei, Nr. 9, Sector 1, Bucuresti |
||
| 16. |
Alexandru Costescu - Scoala Gimnaziala Nr. 182 - Bucuresti
0216674540 Str. Amintirii, Nr. 26, Sector 1, Bucuresti |
||
| 17. |
Scoala Gimnaziala Nr. 178 - Bucuresti
0216670335 Str. Dridu, Nr. 2, Sector 1, Bucuresti |
||
| 18. |
Dimitrie Paciurea, Liceu Vocational Artistic - Bucuresti
0216670195 Str. Baiculesti, Nr. 29, Sector 1, Bucuresti |
||
| 19. |
Alegra - After-school Bucuresti
0729987920; 0726487124 Str. Portaresti, Nr. 11, etaj 1, sector 6 |
||
| 20. |
Scoala Gimnaziala Nr. 162
0212205484 Str. Copsa Mica, Nr. 1A, Sector 1, Bucuresti |
||
| 21. |
Colegiul Tehnic Media Arta si Tehnologie - Bucuresti
0216675585 Str. Jiului, Nr. 163, Sector 1 |
||
| 22. |
Scoala Gimnaziala Nr. 168 - Bucuresti
0314326090 Str. Alizeului, Nr. 9, Sector 6, Bucuresti |
||
| 23. |
Pia Bratianu - Scoala Gimnaziala Nr. 17
0212226590 Str. Petofi Sandor, Nr. 14-16, Sector 1, Bucuresti |
||
| 24. |
Scoala Gimnaziala Nr. 167 - Bucuresti
0212205770 Calea Crangasi, Nr. 140, Sector 6, Bucuresti |
||
| 25. |
Ion Neculce, Colegiul National Bucuresti
0212224145; 0212224179 Str. Ion Neculce, Nr. 2, Sector 1, Bucuresti |
||
| 26. |
Scoala Gimnaziala Speciala Nr. 8 - Bucuresti
0216675295 Str. Victor Daimaca, Nr. 2, Sector 1, Bucuresti |
||
| 27. |
Tudor Vianu, Colegiul National de Informatica - Bucuresti
0212226670 Str. Arh. Ion Mincu, Nr. 10, sector 1, Bucuresti |
||
| 28. |
Complex Scoalr Cronos Bucuresti
0212225050; 0758107705 Str. Chibzuintei, Nr. 15-17, Sector 1, Bucuresti |
||
| 29. |
Scoala Gimnaziala Nicolae Grigorescu
0216671547 Str. Coralilor, Nr. 1, Sector 1 |
||
| 30. |
Nicolae Titulescu, Scoala Gimnaziala - Bucuresti
0212236393 Sos. Nicolae Titulescu, nr. 50-52, Sector 1, Bucuresti |
||
| 31. |
Scoala Gimnaziala Nr. 192 - Bucuresti
0732137634; 0216670296 Str. Munteniei, Nr. 32, Sector 1, Bucuresti |
||
| 32. |
Iosif Sava, Scoala Gimnaziala de Arte - Bucuresti
0212312470 Str. Constantin Disescu, Nr. 37, Sector 1, Bucuresti |
||
| 33. |
Scoala Gimnaziala 179 - Bucuresti
0216670247 Str. Ardealului, Nr. 34, sector 1 |
||
| 34. |
Scoala Gimnaziala Nr. 183 - Bucuresti
0216673280 Str. Dunei, Nr. 1, Sector 1 |
||
| 35. |
Heliade Radulescu, Scoala Gimnaziala Nr. 11 - Bucuresti
0213163633 Sos. Kiseleff, nr. 5, sector 1, Bucuresti |
||
| 36. |
Liceul cu Program Sportiv Mircea Eliade - Bucuresti
0213141389 Splaiul Independentei, Nr. 315-317, Sector 6 |
||
| 37. |
Leapsa - After school, Bucuresti
0730332546 Str. Duetului, Nr 10-12, sector 1 |
||
| 38. |
Scoala Gimnaziala Nr. 153 Bucuresti
0212217651 Drumul Sabareni, Nr. 21, Sector 6, Bucuresti |
||
| 39. |
Genesis College, Scoala Gimnaziala si Liceu - Bucuresti
0314250563 Soseaua Straulesti, Nr.89A (Zona Baneasa) Sector 1, Bucuresti |
||
| 40. |
Jean Monnet, Liceu teoretic - Bucuresti
0212305078 Str. Jean Monnet, Nr. 2, Sector 1, Bucuresti |
||
| 41. |
UCECOM, Colegiul Spiru Haret - Bucuresti
0213166195; 0213166196 Str. Economu Cezarescu, Nr. 47-59, Sector 6, Bucuresti |
||
| 42. |
Scoala Gimnaziala Nr. 1 - Sfintii Voievozi
0213127572; 0213164206; 0213179916 Str. Atelierului, Nr. 25, Sector 1, Bucuresti |
||
| 43. |
Liceul Teoretic National
0720000171 Str. Buzesti, Nr. 14-18; Sector 1, Bucuresti |
||
| 44. |
Titu Maiorescu, Scoala Gimnaziala Nr.45 - Bucuresti
0212301673 Calea Dorobantilor, Nr. 163, Sector 1, Bucuresti |
||
| 45. |
I.N.Socolescu, Colegiul Tehnic de Arhitectura si Lucrari Publice - Bucuresti
0213108958 Occidentului, Nr. 12, Sector 1, Bucuresti |
||
| 46. |
Nicolae Tonitza, Liceu de Arte Plastice - Bucuresti
0212302793 Bd. Iancu de Hunedoara, Nr. 27, Sector 1, Bucuresti |
||
| 47. |
I.L. Caragiale, Colegiul National - Bucuresti
0212301021 Calea Dorobantilor, nr. 163, sector 1, Bucurersti |
||
| 48. |
Scoala Gimnaziala Nr. 6 - Bucuresti
0212332730 Str. Constantin Dobrogeanu Gherea, Nr. 74, Sector 1, Bucuresti |
||
| 49. |
George Enescu, Colegiu National de Muzica - Bucuresti
0760665312; 0213108871 Str. General Gheorghe Manu, Nr. 30, Sector 1, Bucuresti |
||
| 50. |
Scoala Gimnaziala Nr. 7 - Bucuresti
0212321531 Str. Neagoe Voda, Nr. 11, Sector 1, Bucuresti |
||
| 51. |
Liceul Tehnologic Particular Onicescu Mihoc - Bucuresti
0727222292 Str. Garlei, nr. 81, sector 1 |
||
| 52. |
Viaceslav Harnaj, Colegiul Tehnologic - Bucuresti
0212327165 Bd. Ficusului, Nr. 20-26, Sector 1, Bucuresti |
||
| 53. |
Arkedo - Gradinita, scoala si after school, Bucuresti
0753275336 Str. Daniel Danielopolu, nr. 42-44, sector 1 |
||
| 54. |
Liceul Teoretic Alexandru Vlahuta Bucuresti
0212305292 Str. Scoala Floreasca, nr. 5, sector 1 |
||
| 55. |
Scoala Gimnaziala Nr. 184 - Bucuresti
0216672225 Str. Stefan Magheri, Nr. 13, Sector 1 |
||
| 56. |
Uruguay, Scoala Gimnaziala - Bucuresti
0216370361 Str. Virgiliu, Nr. 40, Sector 1, Bucuresti |
||
| 57. |
Aldo Moro, Scoala Italiana - Bucuresti
0212104684 Intr. Blaj, nr. 1, Sector 1, Bucuresti |
||
| 58. |
Phoenix, Liceu Teoretic - Bucuresti
0214341364; 0770911516 Virgiliu, Nr. 40, Sector 1, Bucuresti |
||
| 59. |
Ada School - Bucuresti
0723595916; 0721424485 Dr. Carol Davila, Nr. 101, Bucuresti |
||
| 60. |
Scoala Gimnaziala Nr. 181 - Bucuresti
0213105599 Str. Nazarcea, Nr. 30, Sector 1, Bucuresti |
||
| 61. |
Scoala Gimnaziala Herastrau, Bucuresti
0212326613 Str. Borsa, Nr. 27, Sector 1 |
||
| 62. |
Scoala Gimnaziala Nr. 117
0214302040; 0784236131 Str. Fabricii, Nr. 22, Sector 6, Bucuresti |
||
| 63. |
Fridolin, scoala primara si gimnaziala germana - Bucuresti
0723584872 (Adina Stoenescu); 0722502522 (Christian Comsa) Fagaras, Nr. 9-13, Sector 1, Bucuresti |
||
| 64. |
Institutul de matematica Simion Stoilow
0213196506; 0213117780; Fax: 0213196505 Calea Grivitei, Nr. 21, Sector 1, Bucuresti |
||
| 65. |
Scoala Ioanid, Gradinita, Gimnaziu, Liceu - Bucuresti
0758054401 Str. Nicolae Iorga, nr. 21, Sector 1, Bucuresti |
||
| 66. |
Scoala de Aplicatie pentru Ofiteri a Jandarmeriei Romane Mihai Viteazul
0217696120; 0214349131; 0757099804 Str. 1 Decembrie 1918, Nr. 2-4, Sat Rosu, judetul Ilfov |
||
| 67. |
Doamna Chiajna, Liceul Tehnologic - Rosu
0730614950; 0214360404 Str. 1 Decembrie 1918, Nr. 90, Rosu, judetul Ilfov |
||
| 68. |
Scoala Mea, Liceu Teoretic - Bucuresti
0376203079 Str. Valiug, Nr. 12-18, Sector 1, Bucuresti |
||
| 69. |
EFI Bucarest - Scoala Franceza Internationala din Bucuresti
0749098867 Bulevardul Dacia, Nr. 12, Sector 1 |
||
| 70. |
Goethe, Colegiul German - Bucuresti
0212113425 Str. Stanislav Cihoschi, Nr. 17, Sector 1, Bucuresti |
||
| 71. |
Maria Rosetti, Scoala Gimnaziala - Bucuresti
0212305276 Str. Garibaldi, nr. 3, Sector 2, Bucuresti |
||
| 72. |
Elena Vacarescu, Scoala Gimnaziala - Bucuresti
0213163630 Str. Stanislav Cihoschi, nr. 15, sector 1, Bucuresti |
||
| 73. |
Tudor Vladimirescu, Colegiu National - Bucuresti
0214103831 Bd. Iuliu Maniu, Nr. 15, Sector 6, Bucuresti |
||
| 74. |
C.A. Rosetti, Liceu teoretic - Bucuresti
0212304873 Str. Giuseppe Garibaldi, Nr. 11, Sector 2, Bucuresti |
||
| 75. |
Planeta Copiilor , Scoala Primara si Gimnaziala - Bucuresti
0724212970; 0724212887; 0214330263 Gabriela Szabo, Nr. 3 - 11, Sector 6, Bucuresti |
||
| 76. |
Scoala Gimnaziala Nr. 156 - Bucuresti
0314040192 Str. Dealul Tugulea, Nr. 35, Sector 6 |
||
| 77. |
Colegiul Economic Costin C. Kiritescu - Bucuresti
0314016830 Str. Pestera Dambovicioarei, Nr. 12, Sector 6, Bucuresti |
||
| 78. |
Sf. Sava, Colegiul National - Bucuresti
0213149294; 0213126821 Str. G-ral Berthelot, Nr. 23, Sector 1, Bucuresti |
||
| 79. |
Scoala Gimnaziala Nr. 150 - Bucuresti
0214108408 Bd. Eroii Sanitari, Nr. 29-31, Sector 5, Bucuresti |
||
| 80. |
Miguel de Cervantes, Liceul Bilingv - Bucuresti
0213149311 Calea Plevnei, Nr. 38-40, Sector 1, Bucuresti |
||
| 81. |
Henri Coanda, Colegiul Tehnic de Aeronautica - Bucuresti
0212323616 Bd. Ficusului, Nr. 44, sector 1, Bucuresti |
||
| 82. |
Scoala Gimnaziala Regele Mihai I - Bucuresti
0311011373 Str. Dezrobirii, Nr. 41, Sector 6 |
||
| 83. |
Scoala Gimnaziala Nr. 161- Bucuresti
0212249328 Calea Giulesti, Nr. 486A, Sector 6, Bucuresti |
||
| 84. |
Scoala Gimnaziala nr. 5 - Bucuresti
0213169918 Calea Victoriei, Nr. 114, Sector 1, Bucuresti |
||
| 85. |
Vasile Alecsandri, Scoala Gimnaziala (fosta Nr. 118) - Bucuresti
0213138287 Str. Stirbei Voda, Nr. 32-34, Sector 1, Bucuresti |
||
| 86. |
Liceul Tehnologic Constantin Brancusi - Bucuresti
0212321275; 0787298171 Bd. Dimitrie Pompei, Nr. 1, Sector 2 |
||
| 87. |
Constantin Brancusi, Scoala Gimnaziala Nr. 174 - Bucuresti
0314052556 Str. Rosia Montana, Nr. 41, Sector 6, Bucuresti |
||
| 88. |
Virgil Madgearu, Colegiul Economic - Bucuresti
0212117256 Bd. Dacia, Nr. 34, Sector 1, Bucuresti |
||
| 89. |
Liceul Teoretic Bilingv Ita Wegman - Bucuresti
0769060529; 0212103391 Bd. Dimitrie Pompeiu, Nr. 3, CORP B, sector 2 |
||
| 90. |
Edmond Nicolau, Colegiul Tehnic - Bucuresti
0212331541; 0212331910 Bd. Dimitrie Pompeiu, Nr. 3, Sector 2, Bucuresti |
||
| 91. |
Colegiul Tehnic Petru Maior - Bucuresti
0736627798 Bd. Timisoara, Nr. 6, Sector 6 |
||
| 92. |
Scoala Gimnaziala Luca Bucuresti
0721335161; 0744894206 Str. Sfantul Petru Tei, Nr. 67 A- 71, Sector 2, Bucuresti |
||
| 93. |
Scoala Gimnaziala Nr. 24 - Bucuresti
0212107185 Str. Tunari, Nr. 52, Sector 2, Bucuresti |
||
| 94. |
Scoala Gimnaziala Aletheea - Bucuresti
0314056501; 0757054044 Drumul Piscul Mosului, Nr. 10, Sector 1 |
||
| 95. |
FEG, Scoala Postliceala in domeniului medical - Bucuresti
0213111054; 0314050362; 0788424314 Walter Maracineanu, Nr. 1-3, Intrarea 2, Etaj. 2,, Bucuresti |
||
| 96. |
Liceul Teoretic Sfintii Trei Ierarhi - Bucuresti
0763688448 Str. Oltetului, nr. 15, sector 2 |
||
| 97. |
Sfanta Treime, Scoala Gimnaziala - Bucuresti
0376203770 Aleea Ghirlandei, Nr. 7, Sector 6, Bucuresti |
||
| 98. |
Gheorghe Lazar, Colegiu National - Bucuresti
0213134756 Bd. Regina Elisabeta, Nr. 48, Sector 5, Bucuresti |
||
| 99. |
Scoala Gimnaziala Nr. 142 - Bucuresti
0314040196; 0214300511 Str. Centurii, Nr. 4, Sector 6, Bucuresti |
||
| 100. |
Orizont, Scoala Gimnaziala Nr. 193 - Bucuresti
0214132355 Str. Mihaela Ruxandra Marcu, Nr. 3, Sector 6, Bucuresti |
||
| 101. |
Scoala Gimnaziala Nr. 28 - Bucuresti
0212105910 Aleea Circului, Nr. 1, sector 2 |
||
| 102. |
Traian, Liceu Teoretic - Bucuresti
0212106598; 0212105920 Str. Luigi Galvani, Nr. 20, sector 2, Bucuresti |
||
| 103. |
I.G. Duca, Scoala Gimnaziala 146 - Bucuresti
0214100881 Sos. Panduri, Nr. 42, Sector 5, Bucuresti |
||
| 104. |
Grigore Moisil, Colegiu National - Bucuresti
0214132696; 0768191964 Bd. Timisoara, Nr. 33, Sector 6, Bucuresti |
||
| 105. |
Regina Maria, Scoala Gimnaziala Nr.198 - Bucuresti
0214340102; 0314040194 Str. Apusului, Nr. 71-73, Sector 6, Bucuresti |
||
| 106. |
Colegiul National - Scoala Centrala - Bucuresti
0212118484; 0787288528 Str. Icoanei, Nr. 3-5, Sector 2, Bucuresti |
||
| 107. |
Tudor Arghezi, Scoala Gimnaziala Nr. 19 - Bucuresti
0213169187 Str. Tudor Arghezi, Nr. 46-50, Sector 2, Bucuresti |
||
| 108. |
Scoala Gimnaziala Nr. 309 - Bucuresti
0314190747; 0214340426 Str. Moinesti, Nr. 9, Sector 6 |
||
| vezi mai multe | |||
| 1. |
Vecchia Napoli Pizzeria - Bucuresti
0723970317; 0212246629; 0754043666 Calea Grivitei, Nr. 371, Sector 1, Bucuresti |
||
| 2. |
Kunnai - Restaurant cu specific thailandez
0722687343; 0722687454 Strada Copilului, Nr. 6-12, sector 1 |
||
| 3. |
Agora Restaurant - Bucuresti
0212242482; 0722304431 Str. Tintasului , Nr. 27, Sector 1, Bucuresti |
||
| 4. |
D&L Cuisine - Restaurant, Bucuresti
0740305159 Bd. Expozitiei, nr. 2, corp C3, etaj 1, sector 1 |
||
| 5. |
Victoria, Cofetarie Bucuresti
0212242033 Bd. Ion Mihalache, Nr. 233, Sector 1, Bucuresti |
||
| 6. |
Murad - Cafe-Restaurant, Bucuresti
0725777000 Str. Panait Istrati, nr, 101, sector 1 |
||
| 7. |
Coin Vert - Restaurant cu specific libanez, Bucuresti
0721331465; 0744518200 Str. Sandu Aldeea, nr. 75, sector 1 |
||
| 8. |
Dum Dum Food - Restaurant fast food, Bucuresti
0735 270 402 Calea Giulesti, Nr. 123, sector 6 |
||
| 9. |
Hong Kong - Restaurant chinezesc, Ilfov
0213107134; 0727834877 Calea Grivitei, nr. 81 (langa Biserica Sf. Voievozi), sector 1, , judetul Ilfov |
||
| 10. |
Cinas - Restaurant Bucuresti
0726606212 Bucurestii Noi, Nr. 20-28, Sector 1 |
||
| 11. |
Seoul - Restaurant cu specific coreean Bucuresti
0216672119; 0725498366 Str. Lt. Av. Mircea Zorileanu, Nr. 89, sector 1 |
||
| 12. |
Potcoava 9 Mai, Restaurant - Bucuresti
0212202208; 0721065347 Str. 9 Mai , Nr. 51, Sector 6, Bucuresti |
||
| 13. |
Player Club de noapte si de dans - Bucuresti
0720734734 Piata.Montreal, Nr.1, sector 1, Bucuresti |
||
| 14. |
Twillight Events - Restaurant, evenimente Bucuresti
0786386435 Strada Piata Montreal, Nr. 10, sector 1 |
||
| 15. |
The Gate, Restaurant si Cafenea Bucuresti
0728434283; 0314259425 Aleea Primo Nebiolo , Nr. 1, (vis-a-vis Agronomie), sector 1, Bucuresti |
||
| 16. |
Crowne Plaza, Restaurant - Bucuresti
0372135000; 0212240034 Bd. Poligrafiei, Nr. 1, Sector 1, Bucuresti |
||
| 17. |
Casa Mara, Restaurant evenimente - Bucuresti
0722675766; 0768793155 Primo Nebiolo , Nr.1, Sector 1, Bucuresti |
||
| 18. |
Kungfu Pizza - Bucuresti
0774428631; 0216656866; 0314251995 Ceahlau, Nr.17 B, Sector 6, Bucuresti |
||
| 19. |
Perfekto Pizza - Bucuresti
0721090553 Strada Navigatiei, Nr. 9, Sector 1 |
||
| 20. |
Fabio Pizza - Bucuresti
0372188330 Turda, Nr. 117, Sector 1, Bucuresti |
||
| 21. |
18 Lounge - Restaurant cu specific european modern, Bucuresti
0312294675; 0738869093; 0312294675 Piata Presei Libere, Nr. 3-5, Sector 1 (City Gate - South Tower, et. 18), Bucuresti |
||
| 22. |
Story Pizza - Pizzerie, Bucuresti
0721985293; 0212201004; 0748581523 Calea Giulesti, nr 202, sector 6 |
||
| 23. |
Beirut Restaurant - Bucuresti
0722302320; Tel/Fax: 0212220169 Nicolae Racota, Nr. 3A, Sector 1, Bucuresti |
||
| 24. |
Meadows - Restaurant & Events Bucuresti
0732302303 Kiseleff, Nr. 32, sector 1, in parcul Herastrau |
||
| 25. |
La Nasu, Restaurant - Bucuresti
0212214285; 0722257923; 0728984754 Calea Crangasi, Nr. 29, Sector 6, Bucuresti |
||
| 26. |
Pizza Real - Delivery Bucuresti
0760170649; 0725470701 Calea Crangasi, Nr. 90, Sector 6 |
||
| 27. |
Jadoo Restaurant - Bucuresti
0212220502; 0724365583 Nicolae Racota, Nr. 3, Sector 1, Bucuresti |
||
| 28. |
La Ceaunu Crapat - Restaurant Bucuresti
0730614108; 0724744953 Bld. Pavel Dimitrievici Kiseleff, Nr. 32, sector 1 |
||
| 29. |
Jadoo Restaurant - Bucuresti
0724365583; 0212220502 Nicolae Racota, Nr. 3, Sector 1, Bucuresti |
||
| 30. |
Hard Rock Cafe Bucharest
0212066261; 0754400900 Sos. Kiseleff, Nr. 32C, Sector 1, Bucuresti |
||
| 31. |
Mamma Mia, Pizzerie - Bucuresti
0784614600 Calea Giulesti, Nr.230, Sector 6, Bucuresti |
||
| 32. |
BOA, Beat of Angels Club - Bucuresti
0736300700 Soseaua Pavel D. Kiseleff , N.32, Sector 1, Bucuresti |
||
| 33. |
Cafina, Cofetarie - Bucuresti
0316204070; 0729717717 Str. Jiului, Nr. 143, Sector 1, Bucuresti |
||
| 34. |
Beraria H, Restaurant - Bucuresti
0743345345; 0725345345 Soseaua Pavel D. Kiseleff, Nr.32, (Parc Herastrau, fostul Pavilion H), Sector 1, Bucuresti |
||
| 35. |
Giradiko - Restaurant Bucuresti
0770739490 Jiului, Nr. 145, Sector 1 |
||
| 36. |
Leos Burger - Restaurant fast-food, Bucuresti
0721377575 Strada Jiului, Nr. 159A, sector 1 |
||
| 37. |
Taverna Sarbului, Restaurant - Bucuresti
0214906050; 0743353353 Tipografilor, Nr. 31, Sector 1 , Bucuresti |
||
| 38. |
Ublo Bistro - Bucuresti
0743447476 Clucerului, Nr. 54, sector 1 |
||
| 39. |
Casa Antonie, Cofetarie - Bucuresti
0212202530; 0740150736; 0212202510 Mehadia, Nr. 39A, Sector 6, Bucuresti |
||
| 40. |
Gastronomika - Restaurant cu specific international, Bucuresti
0737940512 Str. Ion Neculce, Nr. 63, Sector 1 |
||
| 41. |
Piccolo Mondo, Restaurant - Bucuresti
0722205020; 0212225755 Clucerului , Nr. 9, Sector 1 , Bucuresti |
||
| 42. |
Piccolo Mondo, Restaurant - Bucuresti
0722205020; 0212225755 Clucerului, Nr. 9, Sector 1 , Bucuresti |
||
| 43. |
Don Daniel Pizza
0737444999; 0766771117; Tel/Fax: 0212225034 Bd. Ion Mihalache, Nr. 60, Sector 1, Bucuresti |
||
| 44. |
Adore Cakes - Cofetarie Bucuresti
0744440787; 0740231123 Strada Baiculesti, Nr 1, sector 1 |
||
| 45. |
The Place Pub - Pub, Bucuresti
0743951281 Mr. Alexandru Campeanu, nr.36, sector 1 |
||
| 46. |
La Cristi - Fast Food si catering, Bucuresti
0729266850 Strada Frosa Sarandy, Nr. 17, Sector 1 |
||
| 47. |
Seneca Anticafe - Cafenea, Bucuresti
0720331100 Strada Arhitect Ion Mincu, nr. 1, sector 1 |
||
| 48. |
Cherhanaua Ancora - Restaurant pescaresc, Bucuresti
0721335555 Soseaua Nordului, Nr. 7-9, sector 1 |
||
| 49. |
Adam, Restaurant - Bucuresti
0727140245; 0722413377; 0314352950 Piatra Morii, Nr. 16 Sector 1 (Cartier Damaroaia), Bucuresti |
||
| 50. |
Hot Woks - Restaurant fast-food, Bucuresti
0726393645 B-dul Bucurestii Noi, nr. 67, sector 1 |
||
| 51. |
Pain Plaisir - Patiserie Bucuresti
0745645555 Strada Barbu Delavrancea, Nr. 1, sector 1 Pain Plaisir Kiseleff |
||
| 52. |
Fresche Pizza - Bucuresti
0799168000 Soseaua Chitilei, Nr. 126, sector 1 |
||
| 53. |
Casa Victor, hotel si Restaurant - Bucuresti
0212225723; 0733953910 Emanoil Porumbaru, Nr. 44, Sector 1 , Bucuresti |
||
| 54. |
Bolta Rece Restaurant - Bucuresti
0212227258; 0722527077 Popa Savu, Nr. 53-55, Sector 1, Bucuresti |
||
| 55. |
La Samuelle - Restaurant cu specific international, Bucuresti
0730173180 Piata Charles de Gaulle, Nr. 3-5, Sector 1 |
||
| 56. |
Bolta Rece, Restaurant, Terasa - Bucuresti
0212227258; 0722527077 Popa Savu, Nr..53- 55, Sector 1, Bucuresti |
||
| 57. |
Pescarus, Restaurant - Bucuresti
0731330034; 0731491849 Aleea Pescarus, Parcul Herastrau), Sector 1 , Bucuresti |
||
| 58. |
Pescarus, Restaurant - Bucuresti
0731330034; 0731491849 Aleea Pescarus (Parcul Herastrau), Sector 1 , Bucuresti |
||
| 59. |
Herastrau, Restaurant - Bucuresti
0786042404; 0212322182 Soseau Nordului, Nr. 7-9, Sector 1, Bucuresti |
||
| 60. |
Le Bab - Restaurant cu specific oriental, Bucuresti
0743179555 Charles de Gaulle, Nr. 3, sector 3-1, |
||
| 61. |
Triana - Cofetarie, Bucuresti
0740302404 Soseaua Orhideelor, Nr. 46, sector 1 |
||
| 62. |
Rowa Garden - Locatie pentru spectacole si evenimente
0766666600 Parc Herastrau, |
||
| 63. |
Mechano Pub - Bucuresti
0722990992 Splaiul Independentei, Nr. 290, sector 6 |
||
| 64. |
Zexe Braserie - Bucuresti
0786778777 B-dul Aviatorilor, Nr. 65, Sector 1 |
||
| 65. |
Casa Doina, Restaurant - Bucuresti
0212226717; 0745009009 Soseaua. Kiseleff , Nr. 4, Sector 1, Bucuresti |
||
| 66. |
Casa Doina, Restaurant - Bucuresti
0745009009; 0212226717; 0212223179 Soseaua Pavel D. Kiseleff, Nr. 4, Sector 1, Bucuresti |
||
| 67. |
Claus, Cofetarie Bucuresti
0212220218; 0721264900 Bd. Banu Manta, Nr. 21A, Sector 1, Bucuresti |
||
| 68. |
Pub 18 Restaurant - Bucuresti
0722441586 Splaiul Independentei, Nr. 290, bl. P18, parter, sector 6 , Bucuresti |
||
| 69. |
Hambar Brasserie - Bucuresti
0212226422;0787896547 Aviatorilor, nr. 31, sector 1 |
||
| 70. |
Trattoria Verdi, Restaurant italian - Bucuresti
0212225098 ; 0731333411 Bd. Aviatorilor, Nr. 19, Sector 1, Bucuresti |
||
| 71. |
La Maria si Ion, Restaurant - Bucuresti
0762295737; 0753473781 Splaiul Independentei, Nr. 290, Complex Studentesc Regie, Sector 6, Bucuresti |
||
| 72. |
Fast Food Plevnei - Restaurant Fast Food Bucuresti
0761046444 Calea Plevnei, Nr. 230, sector 1 |
||
| 73. |
Poesia - Restaurant cu specific mediteranean, Bucuresti
0744502000 Bulevardul Aviatorilor, Nr. 76, sector 1 |
||
| 74. |
Taverna Racilor - Restaurant pescaresc Bucuresti
0729825528 Parc Herastrau, Nr. 2, sector 1, |
||
| 75. |
Trattoria 20 - Restaurant Bucuresti
0757534928; 0751267451 Splaiul Independentei, Nr. 290, Campus Regie, sector 6 |
||
| 76. |
Roxy Pub - Bucuresti
0742033944; 0723327117; 0785224508 Splaiul Independentei, Nr. 290, Complex Studentesc Regie, Bucuresti |
||
| 77. |
Complex Herastrau, Restaurant - Bucuresti
0212322128 (Restaurant); 0786778800 (Evenimente); 0729080686 (Hotel) Soseaua Nordului , Nr. 7-9, Sector 1, Bucuresti |
||
| 78. |
14th Lane - Restaurant cu mancaruri fine, organizare evenimente, Bucuresti
0737776777 Sos. Orhideelor, Nr. 15D, sector 6, Bucuresti |
||
| 79. |
Pub 18 Restaurant - Bucuresti
0722441586 (Manager Pub Oana Valeanu) Splaiul Independentei, Nr. 290, bl. P18, parter, Sector 6, Bucuresti |
||
| 80. |
Galletto Ristorante, Restaurant italian, catering - Bucuresti
0212112276; 0770407519 Soseaua Orhideelor, Nr.1 (podul nou Basarab,langa cladirile de birouri The Bridge, Sector 6, Bucuresti |
||
| 81. |
Refill - Bistro cu specific international, Bucuresti
0786372856 Bulevardul Mihalache, Nr. 12, sector 1 |
||
| 82. |
The Soup Carousel - Restaurant cu supe si ciorbe, Bucuresti
0725356907 Sos. Nicolae Titulescu, Nr. 12, sector 1 |
||
| 83. |
Restaurant Diplomat
0720880330 Bucuresti-Ploiesti, nr 2B, |
||
| 84. |
Stadio Park, Restaurant - Bucuresti
0733444800 Soseaua Nordului, Nr.7-9, Parcul Herastrau, Sector 1, Bucuresti |
||
| 85. |
Fior di Latte - Restaurant cu specific italian, Bucuresti
0784420555 Bulevardul Primaverii, Nr. 19-21 |
||
| 86. |
Mesogios, Restaurant - Bucuresti
0722200232 Helesteului, Nr. 30, Sector 1, Bucuresti |
||
| 87. |
Stadio Restaurant - Bucuresti
0733444800 Soseaua Nordului , Nr.7-9, Parcul Herastrau, Sector 1, Bucuresti |
||
| 88. |
Osho - Restaurant cu fripturi, Bucuresti
0758758750 Bulevardul Primaverii, Nr. 19-21, sector 1 |
||
| 89. |
Mio Cuisine - Restaurant & Home Delivery, Bucuresti
0743287437 Pictor Barbu Iscovescu, Nr. 19 ,Sector 1, Bucuresti |
||
| 90. |
Mercato Kultur - Restaurant cu specific international, Bucuresti
0759134767 Gheorghe Demetriade, nr. 6-10, Aviatorilor, sector 1 |
||
| 91. |
Angeline Cake Boutique - Cofetarie, Bucuresti
0753652144 Str. Doctor Iacob Felix, Nr. 59, Sector 1 |
||
| 92. |
Isoletta, Restaurant - Bucuresti
0212322188; 0212323223 Sos. Nordului, Nr. 7-9, Sector 1, Bucuresti |
||
| 93. |
Coppa - Bar cu vinuri si cafea, Bucuresti
0741594545; 0756080004 Bd. Nicolae Titulescu, nr. 3, sector 1 |
||
| 94. |
So! Coffee, Cafenea - Bucuresti
0372285718; 0314078250 Piata Garii de Nord, Nr.1-5 (In fata peroanelor 4-5), Sector 1, Bucuresti |
||
| 95. |
Lucky Point Pub
0742181263 Splaiul Independentei, 204,sect.6, Bucuresti |
||
| 96. |
Nido Kitchen & Wine - Restaurant cu specific international, Bucuresti
0374004488 Aleea Alexandru, Nr. 35 |
||
| 97. |
IDM Club Sportiv - Bucuresti
0213161052; 0722454273 Splaiul Independentei, Nr. 319 B, (Vizavi de campusul studentesc Regie) Sector 6, Bucuresti |
||
| 98. |
Springtime, Restaurant - Bucuresti
0742224736; 0742224743; 0742224739 Piata Victoriei, Bl. A6 Sector 1, Bucuresti |
||
| 99. |
Grivita - Pub&Grill, Bucuresti
0724748482 Calea Grivita, Nr. 130 (Parter Eurohotels), |
||
| 100. |
5ENSI by BeanZ Cafe - Bucuresti
0733888555 Bd. Aviatorilor, Nr. 8A, sector 1, Bucuresti |
||
| 101. |
ChefBox - Restaurant, Bucuresti
0728800528 Buzesti, Nr. 57-59, sector 1 |
||
| 102. |
Yesterday, Hotel si Restaurant - Bucuresti
0213408585; 0737001008 Economu Cezarescu, Nr. 8, Sector 6, Bucuresti |
||
| 103. |
KALI - Restaurant cu bufet, Bucuresti
0725988889 Strada Buzesti, Nr. 71, Sector 1 |
||
| 104. |
Fayn Urban Eatery - Restaurant, Bucuresti
0723257692 Strada Buzesti, nr. 71, sector 1 |
||
| 105. |
Club Floreasca, Restaurant - Bucuresti
0213198177; 0755085967; Fax 0212307979 Mircea Eliade, Nr. 1, Sector 1, Bucuresti |
||
| 106. |
Club Floreasca Restaurant - Bucuresti
0213198177; 0755085967; Fax 0212307979 Mircea Eliade, Nr. 1, Sector 1, Bucuresti |
||
| 107. |
Pui de Urs, Restaurant - Bucuresti
0213166289; 0724622226; 0765166266 Econom Cezarescu, Nr. 42 (Grozavesti), Sector 6 , Bucuresti |
||
| 108. |
Zaitoone - Restaurant cu specific libanez, Bucuresti
0737299900;0376203741;0376203742 Strada Nicolae Caramfil, Nr.2, sector 1 |
||
| 109. |
Shorley Restaurant - Bucuresti
0765377308; 0724710385; 0213124312 Econom Cezarescu, Nr. 50, Sector 6 , Bucuresti |
||
| 110. |
Voievodal - Restaurant cu specific romanesc, Bucuresti
0212324582;0737202492;0733159846 Sos Bucuresti-Ploiesti, nr. 10, Sector 1 |
||
| 111. |
Restaurant La Senna - Bucuresti
0212333738; 0756199774 Bulevardul Nicolae Caramfil, Nr 33, sector 1 |
||
| 112. |
The Mark - Restaurant pub Bucuresti
0758505500 Calea Grivitei, Nr. 84-98, sector 1 |
||
| 113. |
PengYou - Restaurant specific chinezesc Bucuresti
0787748272 Str. Occidenului, Nr. 11, Sector 1 |
||
| 114. |
Coclinta Brasserie- Restaurant cu specific romanesc, Bucuresti
0770238774 Calea Victoriei, Nr. 153, sector 1 |
||
| 115. |
Nuba Cafe - Restaurant pentru mic dejun si brunch, Bucuresti
0736300000 Street Locotenent Aviator Radu Beller, Nr. 13, sector 1 |
||
| 116. |
Ana Cofetarie Bucuresti
0212300436; 0735554986 Lt. Av. Radu Beller, Nr. 6 Sector 1, Bucuresti |
||
| 117. |
Pata Negra - Restaurant cu specific spaniol, Bucuresti
0734349076 Strada Washington, Nr 11, sector 1 |
||
| 118. |
City Grill Restaurant - Bucuresti
0722446766; 0724599886 Bulevardul Lascar Catargiu, Nr. 56, Sector 1, Bucuresti |
||
| 119. |
Trattoria Buongiorno - Restaurant cu specific italian, Bucuresti
0722446766 Bdul. Lascar Catargiu, Nr. 56, sector 1 |
||
| 120. |
Nadasan - Restaurant de sushi, Bucuresti
0745042042 Strada Virgil Madgearu, Nr. 27, sector 1 |
||
| 121. |
B4 Market - Restaurant pentru mic dejun si brunch Bucuresti
0724588591 Strada Locotenent Aviator Radu Beller, Nr. 54, sector 1 |
||
| 122. |
White Horse Pub & Restaurant - Bucuresti
0212312795 George Calinescu , Nr. 4A, Sector 1, Bucuresti |
||
| 123. |
White Horse Pub & Restaurant - Bucuresti
0212312795; Fax.0212302151 George Calinescu , Nr. 4A, Sector 1 , Bucuresti |
||
| 124. |
Biscotto - Cofetarie Bucuresti
0212314099 Strada Nicolae Constantinescu, Nr. 8, Sector 1 |
||
| 125. |
Pizza Volante - Bucuresti
0738592129; 0765401872 Strada Cernisoara, Nr. 151, sector 6 |
||
| 126. |
Pasta Del Popolo - Restaurant cu specific italian, Bucuresti
0752010583 Zagazului, 21-25, sector 1 |
||
| 127. |
Maria & Constance Cofetarie - Bucuresti
0212330360 ; 0787512520 Soseaua Pipera, Nr. 5, bl. 1E, Parter, Sector 1, Bucuresti |
||
| 128. |
La Matache Restaurant (comenzi online si livrari la domiciliu)
0213107327; 0213107337; 0213118888 P-ta. Dr. Haralambie Botescu, Nr. 2, Sector 1, Bucuresti |
||
| 129. |
Pizza Dobrogea - Pizzerie, Bucuresti
0736615212 Bulevardul Ficusului, nr 5-7, sector 1 |
||
| 130. |
Za Lokal - Restaurant pentru mic dejun si brunch, Bucuresti
0770557931 Calea Victoriei, Nr 214, sector 1 |
||
| 131. |
SupaDupa - Restaurant cu supe si ciorbe, Bucuresti
0739344281 Strada Popa Tatu, Nr. 94, sector 1 |
||
| 132. |
Bread & Spices - Restaurant pentru mic dejun si brunch
0770695416; 0314147777 Soseaua Pipera, Nr. 4, sector 1 |
||
| 133. |
The Artist Restaurant - Bucuresti
0728318871 Calea Victoriei, Nr.147, sector 1 |
||
| 134. |
Zen Sushi - Restaurant japonez, Bucuresti
0722161718 Str. George Calinescu, nr. 15, Sector 1 |
||
| 135. |
Il Capo, Restaurant italian - Bucuresti
0314121121 Virgil Madgearu, Nr.11, Sector 1, Bucuresti |
||
| 136. |
Tuk Tuk - Restaurant cu specific thailandez, Bucuresti
0311099670;0741422489 Putul lui Zamfir, nr. 15, sector 1 |
||
| 137. |
Sara Green - Restaurant vegan, Bucuresti
0774962246;0765191076 Bulevardul Lascar Catargiu, Nr 43, Sector 1 |
||
| 138. |
Old Kitchen - Restaurant Bucuresti
0732773537 Str. Sfintii Voievozi, Nr. 13, Sector 1 |
||
| 139. |
Mandaloun - Restaurant specific libanez, Bucuresti
0314336557; 0747020469 Strada Nicolae G. Caramfil, Nr. 89, Sector 1 |
||
| 140. |
Quantic Pub - Bucuresti
0314321742 Soseaua Grozavesti, Nr. 82, sector 6 |
||
| 141. |
Mezze, Restaurant libanez - Bucuresti
0213116633; 0720044469 Mircea Vulcanescu, Nr.153 B,Sector 1 , Bucuresti |
||
| 142. |
Mon Cheri, Restaurant - Bucuresti
0748750029; 0771693817; 0212310908 Tudor Stefan, Nr. 16 (langa P-ta Dorobanti), sector 1, Bucuresti |
||
| 143. |
Gelsomino - Restaurant, Bucuresti
0766441180 Str. Aeromodelului, Nr 11, sector 1 |
||
| 144. |
Skybar - Bucuresti
0724759227 Calea Dorobanti, Nr. 155, Etaj 5, sector 1 |
||
| 145. |
Black Habit - Cafenea
0770357382 Calea Grivitei, Nr. 77, sector 1 |
||
| 146. |
Christine -Cofetarie Bucuresti
0728212199 Strada George Valentin Bibescu, Nr. 49, sector 1 (colt cu Bd-ul Ficusului) |
||
| 147. |
Domino\'s Pizza, Fast food - Bucuresti
0736500200 Bd. Iancu de Hunedoara, nr. 38, sector 1 , Bucuresti |
||
| 148. |
Veranda Casa Frumoasa - Restaurant Bucuresti
0733735932 Str. Clopotarii Vechi, Nr. 5, sector 1 |
||
| 149. |
Domino\'s Pizza - Bucuresti
0736500200 Bd. Iancu de Hunedoara, Nr. 38, Sector 1 , Bucuresti |
||
| 150. |
La Taifas, Restaurant - Bucuresti
0212127788; 0723197156 Gheorghe Manu, Nr. 16, sector 1 , Bucuresti |
||
| 151. |
Bistro La Taifas, Restaurant - Bucuresti
0212127788; 0723197156 Gheorghe Manu, Nr. 16, Sector 1, Bucuresti |
||
| 152. |
Capricciosa, Restaurant - Bucuresti
0722659143; 0722224799 Ion Ionescu de la Brad, Nr. 2, Sector 1, Bucuresti |
||
| 153. |
Grano - Restaurant cu specific italian, Bucuresti
0212312386 Strada Putul lui Zamfir, Nr. 40, sector 1 |
||
| 154. |
Dorobanti 140, Cofetarie - Bucuresti
0723500025 Calea Dorobantilor, Nr.140,Sector 1, Bucuresti |
||
| 155. |
Marshal Garden, Restaurant - Bucuresti
0213194444; 0213194445; 0758105310 Calea Dorobantilor, Nr. 50 B, Sector 1, Bucuresti |
||
| 156. |
Aphrodisia - Ceainarie Bucuresti
0788129291 Intrarea Tudor Stefan, nr. 39, sector 1 |
||
| 157. |
Zenzero - Gelaterie Bucuresti
0729119911; 0725115511 Strada Dobrogeanu Gherea, Nr. 137, Sector 1, |
||
| 158. |
Kanpai Bistro, Restaurant japonez si catering - Bucuresti
0755526724; 0371184961 George Calinescu, Nr.49, Sector 1, Bucuresti |
||
| 159. |
La Taifas, Bistro - Bucuresti
0723197156; 0212127788 Mihail Moxa, Nr. 12, Sector 1 , Bucuresti |
||
| 160. |
J\'ai Bistrot - Gastropub, Bucuresti
0790229922 Calea Grivitei, nr. 55, sector 1 |
||
| 161. |
Nan Jing, Restaurant chinezesc - Bucuresti
0213181285; 0726103407 G-ral Gheorghe Manu, Nr. 2-4 (Hotel Minerva), Sector 1, Bucuresti |
||
| 162. |
Maccheroni - Restaurant Bucuresti
0722259360 Str. George Calinescu, Nr. 51, Sector 1, |
||
| 163. |
Delicii Gelato - Gelaterie artizanala Bucuresti
0721632019 Str. Constantin Aricescu, Nr. 65, sector 1 |
||
| 164. |
Burgeria Cotroceni - Restaurant fast-food, Bucuresti
0314214777 Soseaua Cotroceni, Nr. 9, sector 6 |
||
| 165. |
Saidoun - Restaurant cu specific libanez, Bucuresti
0755132812 Bulevardul Alexandru Serbanescu, nr. 87, sector 1 |
||
| 166. |
Tasting Room by Ethic Wine - Restaurant Bucuresti
0754993953 Putul lui Zamfir, Nr. 64, sector 1 |
||
| 167. |
Blue Margarita - Restaurant cu specific mexican Bucuresti
0770944822 Strada Povernei, Nr. 15-17, sector 1 |
||
| 168. |
Gabbiano - Restaurant cu specific italian Bucuresti
0757115272 Str. Banul Antonache, Nr. 40-44, sector 1 |
||
| 169. |
Dulce a la Radu - Cofetarie
0726465690 Bucuresti, |
||
| 170. |
La Gil, Restaurant - Bucuresti
0722534117 Bd. Aerogarii, Nr. 21-23, Sector 1, Bucuresti |
||
| 171. |
La Cantine de Nicolai, Restaurant - Bucuresti
0725210608 Povernei, Nr. 15-17, Sector 1, Bucresti |
||
| 172. |
Restaurant Sole - Bucuresti
0722587589 Bd. Iancu de Hunedoara, Nr. 48, etaj 15, sector 1 |
||
| 173. |
La Cocosatu, Restaurant romanesc - Bucuresti
0212328796; 0736445737 Str. Neagoe Voda, nr. 52A, |
||
| 174. |
Japanos - Restaurant cu specific japonez, Bucuresti
0771621192 Calea Dorobantilor, nr. 116-122, spatiul comercial nr. 3, parter, sector 1 |
||
| 175. |
BistroMar - Restaurant pescaresc, Bucuresti
0740085088 Strada Banul Antonache, Nr. 55-27, sector 1 |
||
| 176. |
Yoshi Sushi & Teppanyaky - Restaurant japonez Bucuresti
0314290280; 0749979521 Str. Banu Antonache, Nr. 40-44, sector 1 |
||
| 177. |
Pot Stories - Restaurant, Bucuresti
0753348248 Calea Floreasca, nr. 111-113, sector 1 |
||
| 178. |
Die Deutsche Kneipe - Restaurant cu specific german
0722284560 Str. Stockholm, nr. 9, sector 1, |
||
| 179. |
La Finca by Alioli - Restaurant Bucuresti
0767150500 Str. Caderea Bastiliei, Nr. 78, Sector 1, |
||
| 180. |
VacaMuuu - Restaurant si bacanie Bucuresti
0731351135 Calea Floreasca, Nr. 111, sector 1 |
||
| 181. |
Game On - Restaurant Bucuresti
0745055137 Calea Floreasca, Nr. 91-111, sector 1 |
||
| 182. |
Sara, Restaurant si Bacanie - Bucuresti
0749770770 Calea Floreasca, Nr. 111-113, Sector 2, Bucuresti |
||
| 183. |
Friddi - Gelaterie, Bucuresti
0314313295 Str. Vasile Alecsandri, Nr. 4, sector 1 |
||
| 184. |
Capital Plaza, Hotel si Restaurant - Bucuresti
0372080080; Fax: 0372080081 Bd. Iancu de Hunedoara, Nr. 54, Sector 1, Bucuresti |
||
| 185. |
VacaMuuu - Restaurant cu specific american, Bucuresti
0731351135 Calea Floreasca, Nr.111, sector 1 |
||
| 186. |
Mozzafiato - Restaurant Bucuresti
0741190190 Calea Floreasca, Nr. 133-137, Sector 1 |
||
| 187. |
Cannoleria - Cafenea Bucuresti
0753325071 Str.Cornescu, Nr. 4, sector 1, |
||
| 188. |
Zeama Buna - Local cu ciorbe si supe dupa retete traditionale, Bucuresti
0722254627 Gheorghe Ionescu Sisesti, Nr.11B, sector 1 |
||
| 189. |
Capital Plaza, Hotel si Restaurant - Bucuresti
0372080050; 0372080081 Bd.Iancu de Hunedoara, Nr. 54, Sector 1, Bucuresti |
||
| 190. |
Ciccio - Pizzerie Bucuresti
0745515510 Strada Henri Coanda, Nr. 28 sector 1 |
||
| 191. |
Rekolta - Restaurant, Bucuresti
0721334564 Calea Floreasca, Nr. 102, sector 1 |
||
| 192. |
Draft Pub - Bucuresti
0725277277 Soseaua Gheorghe Ionescu Sisesti, Nr. 23-25, sector 1 |
||
| 193. |
Bistro raw vegan, Restaurant - Bucuresti
0726605501 Transilvaniei, Nr. 11, Sector 1, Bucuresti |
||
| 194. |
Arome - Restaurant vegetarian/vegan, Bucuresti
0749109639 Luigi Cazzavillan, Nr. 25, sector 1 |
||
| 195. |
Casa Nasului - Restaurant Bucuresti
0727825165 Strada Cetatuia, Nr. 12, sector 6 |
||
| 196. |
Rocca by The Jar - Gastropub Bucuresti
0770857841 Str. Pictor Theodor Aman, Nr. 36, sector 1 |
||
| 197. |
Ana Pan Cofetarie - Bucuresti
0216373536; 0730262726; 0212332241 Stirbei Voda, Nr. 166,Sector 1, Bucuresti |
||
| 198. |
Decadence - Bar & Restaurant
0741828489 Strada Constantin Daniel, nr. 11, sector 1 |
||
| 199. |
Gusteau\'s - Restaurant Baneasa
0722966072 Strada Pechea, Nr 20, Sector 1 |
||
| 200. |
Ceramic Cafe - Bucuresti
0774007364 I.C. Visarion, Nr 20, sector 1 |
||
| 201. |
Geste - Cofetarie Bucuresti
0730743783 Strada Dobrota, Nr. 16, Sector 2 |
||
| 202. |
Ciorbe si Placinte - Restaurant cu specific romanesc, Bucuresti
0755993070 B-dul Iancu de Hunedoara, Nr. 64, sector 1 |
||
| 203. |
Bone - Restaurant Bucuresti
0733198200 Calea Floreasca, Nr. 198, sector 1 |
||
| 204. |
Pizzicheria - Pizzerie, Bucuresti
0770258714 Bd. Oaspetilor, nr. 4, sector 1 |
||
| 205. |
Kitchen - Restaurant Baneasa
0733305989 Str. Pechea, Nr. 32-36, Parter, Sector 1 |
||
| 206. |
Pizza KA - Bucuresti
0219894 B-dul Uverturii, Nr. 98, Sector 6 |
||
| 207. |
La Foc Iute - Bucuresti
0784739566; 0741955143; 0723032872 Bd. Oaspetilor, nr. 8, sector 1 |
||
| 208. |
Papion, Restaurant - Bucuresti
0736246905; 0767790900; 0775396776 Sos. Gheorghe Ionescu Sisesti,, Nr. 38 A, Sector 1, Bucuresti |
||
| 209. |
Refresh - Restaurant Bucuresti
0771189347 Strada Johann Sebastian Bach, Nr. 3, sector 2 |
||
| 210. |
The Owl Cocktail House - Bar specializat in cocktailuri, Bucuresti
0743260923 str. Stirbei Voda, Nr. 104-106, sector 1 |
||
| 211. |
Animaletto Pizza Bar - Bucuresti
0755019098 Strada Visarion, Nr 10, sector 1 |
||
| 212. |
Dabeef - Restaurant Bucuresti
0739835658 Calea Floreasca, Nr. 111-113, Sector 1 |
||
| 213. |
E3 by Entourage - Restaurant Bucuresti
0734966889 Calea Floreasca, Nr. 111-113, Sector 1 |
||
| 214. |
Vivo Fusion Food Bar - Restaurant cu specific american, Bucuresti
0787709154 Strada Calea Floreasca, numarul 246, cladirea Globalworth Tower, parter, sector 1 |
||
| 215. |
Weiss Beer Garden - Terasa, Bucuresti
0733582852 Bulevardul Uverturii, nr. 132, sector 6 |
||
| 216. |
Aniela - Cofetarie, Bucuresti
0760237463 Bd. Uverturi, Nr.83, sector 6 |
||
| 217. |
Timeout Cafe - Bucuresti
0763700031 Strada Reveriei, nr. 11, Sector 6 |
||
| 218. |
Casa Colosseum - Restaurant Bucuresti
0731974010 Strada 16 Februarie, Nr 48 sector 1 |
||
| 219. |
Bellini Pizza - Bucuresti
0314278776 General Henri Matias Berthelot, Nr. 44,Sector 1, Bucuresti |
||
| 220. |
Ciorbarie - Restaurant cu supe si ciorbe, Bucuresti
0785610628 Calea Dorobanti, Nr. 73, sector 1 |
||
| 221. |
Coolinart - Gastropub Bucuresti
0772017955 Calea Victoriei, Nr. 142-148, sector 1 |
||
| 222. |
Bellini Garden - Restaurant cu specific italian, Bucuresti
0722100111; 0314278776 str. General Henri Mathias Berthelot, nr. 44, sector 1 |
||
| 223. |
Nicolai To Go - Bistro Bucuresti
0741600006 Calea Dorobantilor, Nr. 67, sector 1 |
||
| 224. |
Trafalgar Pub - Bucuresti
0212113151; 0766625805 David Emanuel , Nr. 4A, Sector 1, Bucuresti |
||
| 225. |
Trattoria Mezzaluna - Restaurant specific italian Bucuresti
0729591469 Calea Dorobanti, Nr. 63, sector 1 |
||
| 226. |
Boema 33 - Restaurant, Bucuresti
0722295463 Bd. Dacia, nr. 33, sector 1 (Piata Romana) |
||
| 227. |
Edo Sushi - Restaurant cu specific japonez, Bucuresti
0735111095 Stirbei Voda, Nr 84A, sector 1 |
||
| 228. |
Old School, Restaurant - Bucuresti
0744105445; 0745110362 Calea Plevnei, Nr. 61, Sector 6, Bucuresti |
||
| 229. |
Fika18 - Croissanterie, Bucuresti
0770663982 Calea Victoriei, Nr. 101, sector 1 |
||
| 230. |
Moritz Eis - Gelaterie Bucuresti
0722363122 Strada Frederic Chopin, Nr. 10-12, Sector 2 |
||
| 231. |
Nor Sky Casual Restaurant - Bucuresti
0310056056 Barbu Vacarescu, Nr. 201, Sector 2, Bucuresti |
||
| 232. |
Gradina Eden - Terasa Bucuresti
0722185368 Calea Dorobanti, Nr. 44-46 sector 1 |
||
| 233. |
Tonka Soul Café - Bucuresti
0371445255 Biserica Amzei , Nr. 19, Sector 1, Bucuresti |
||
| 234. |
Tulin, Restaurant libanez - Bucuresti
0213144001; 0762212675 Pictor Constantin Stahi, Nr. 2, Sector 1, Bucuresti |
||
| 235. |
Bar A1 - Bucuresti
0770901409 Piata Amzei, Nr 1, sector 1 |
||
| 236. |
Velocita - Gelaterie, Bucuresti
0739889189 Calea Victoriei, Nr. 122, sector 1 |
||
| 237. |
Sweetology - Gelaterie, Bucuresti
0734444889 Calea Victoriei, Nr. 122, sector 1 |
||
| 238. |
Dodo Pizza - Bucuresti
0760263636 Sos. Pipera, Nr. 44, Sector 1 |
||
| 239. |
Barrio - Restaurant & bar, Bucuresti
0733222777 Biserica Amzei, Nr. 30, sector 1 |
||
| 240. |
Pasterra - Restaurant cu mancare specifica din Abruzzo, Bucuresti
0751222668 strada Comandor Eugen Botez, Nr. 27, sector 2 |
||
| 241. |
Derby Pub & Restaurant - Bucuresti
0214108545 Bd. Eroilor Sanitari , Nr. 49A,sector 5, Bucuresti |
||
| 242. |
Speed Pizza - Bucuresti
0219001 Iuliu Maniu, Nr.19, Sector 6, Bucuresti |
||
| 243. |
Graffiti Urban Food, Bucuresti
0749433433; 0733695443; 0769180180 Str.Carol Davila, Nr. 56A, Sector 5, Bucuresti |
||
| 244. |
Gusto e Passione - Gelateria Artigianale, Bucuresti
0755555453 Calea Victoriei, Nr. 87, sector 1 |
||
| 245. |
Hangar by Ground Zero - Pub, Bucuresti
0742642749 Soseaua Pipera, Nr 44 |
||
| 246. |
Ganesha Caffe & Garden - Bucuresti
0764263742 Str. Barbu Vacarescu, nr. 71, sector 2, |
||
| 247. |
Bacania Veche - Bistro si pravalie Bucuresti
0752202103; 0212101222 Barbu Vacarescu, Nr. 49, sector 2 |
||
| 248. |
Pizza Hut - Bucuresti
0740121901 Calea Dorobantilor , Nr. 5-7, Sector 1 , Bucuresti |
||
| 249. |
Donerboom - Fast food Bucuresti
0749043440 Str.Barbu Vacarescu, Nr. 102, Sector 2, |
||
| 250. |
Red Angus Steakhouse - Restaurant Bucuresti
0756600000 Piata Amzei, Nr. 10-22Sector 1, |
||
| 251. |
Cofetaria Casandra - Bucuresti
0757252466 B-dul. Magheru, Nr. 32-36, Sector 1 |
||
| 252. |
KFC Romana, Fast Food - Bucuresti
0740121904 Bd. G-ral Gh. Magheru , Nr. 28-30, Sector 1 , Bucuresti |
||
| 253. |
Camera din fata - Ceainaria Bucuresti
0213111512 Str. Mendeleev, Nr. 22, sector 1, langa Piata Amzei |
||
| 254. |
La Cave - Restaurant cu specific francez, Bucuresti
0746254444 Str. Margelelor, Nr. 139-143, sector 6 |
||
| 255. |
The Canteen - Restaurant Bucuresti
0735517630 Str. Barbu Vacarescu, Nr. 44, Bl. 7 Sector 2 |
||
| 256. |
Bocca Lupo - Restaurant cu specific italian, Bucuresti
0314050050 Strada Dr. Lister, nr. 1, sector 5 |
||
| 257. |
Benihana - Restaurant cu specific japonez
0751169889 Calea Dorobantilor, Nr. 5-7 Hotel Howard Johnson, sector 1, |
||
| 258. |
Primus Pub - Bucuresti
0732222666 George Enescu, Nr. 3, sector 1 |
||
| 259. |
Dolce Principessa Cofetarie - Bucuresti
0212115155; 0735213101 Calea Dorobanti, nr. 50A, sector 1, Bucuresti |
||
| 260. |
Paninaro - Restaurant pentru mic dejun si brunch
0771783619 Strada Luterana, Nr 3, sector 1 |
||
| 261. |
Bohemia Tea House, Ceainarie - Bucuresti
0727333631 Poiana Narciselor, Nr. 1 (vizavi de Conservator), Sector 1, Bucuresti |
||
| 262. |
Terminus - Pub, Bucuresti
0730222555 Str. George Enescu, nr. 5, sector 1, |
||
| 263. |
Caro, Restaurant - Bucuresti
0212086128; 0212086100; 0212086196 Barbu Vacarescu, Nr. 164A, Sector 2, Bucuresti |
||
| 264. |
Divan, Restaurant - Bucuresti
0316404450 Barbu Vacarescu, Nr.241A, Sector 1, Bucuresti |
||
| 265. |
Godai - Restaurant cu specific asiatic fusion, Bucuresti
0786030888; 0785300555 Str.Fabrica de Glucoza, nr. 7, sector 2 |
||
| 266. |
Wine Ambassador - Bar de vinuri, Bucuresti
0733182037 Intrarea Biserica Alba, nr.1, sector 1 |
||
| 267. |
Casa Oamenilor de Stiinta - Restaurant, Bucuresti
0726664227; 0722926012; 0769293579 P-ta Lahovari, nr. 9, Sector 1 |
||
| 268. |
La petite bouffe - Cafenea, Bucuresti
0733669344 Strada Doctor Louis Pasteur, nr 38, sector 5 |
||
| 269. |
Trattoria Don Vito - Restaurant Bucuresti
0733333021 Str. Mendeleev, Nr. 1, Sector 1 |
||
| 270. |
Maison des Crepes - Clatitarie Bucuresti
0770802524 Strada Mihai Eminescu, Nr. 38, Sector 2 |
||
| 271. |
Savart - Arta savorilor Gourmet, Bucuresti
0743575757 Str. George Enescu, Nr. 2-4, sector 1 |
||
| 272. |
Kvala - Restaurant grecesc, Bucuresti
0726731663 str Louis Pasteur, nr 63, sector 5 |
||
| 273. |
M60 - Cafenea Bucuresti
0314100010 Strada Mendeleev, Nr 2, sector 1 |
||
| 274. |
Journey Pub - Bucuresti
0752285286 Strada George Enescu, Nr. 25, sector 1 |
||
| 275. |
Monte Carlo Cismigiu, Restaurant - Bucuresti
0213131344 Parc Cismigiu, Sector 1, Bucuresti |
||
| 276. |
Lugo - Restaurant cu specific mediteranean, Bucuresti
0785238910 George Enescu, Nr. 23, sector 1 |
||
| 277. |
Miss Ale - Espresso Bar, Bucuresti
0371394059 Calea Victoriei, Nr. 100, sector 1 |
||
| 278. |
Panik & Pub - Pub, Bucuresti
0728264360 Str. Mihai Eminescu, Nr. 33 |
||
| 279. |
Monte Carlo Cismigiu, Restaurant - Bucuresti
0213131344 Parcul Cismigiu, Parcul Cismigiu, Sector 1 , Bucuresti |
||
| 280. |
Fratelli Social Club - Bucuresti
0722115115; 0730878300 Goldeni, Nr. 1-3, Sector 2, Bucuresti |
||
| 281. |
Acuarela Bufet - Bucuresti
0745662889; 0741403238; 0721483051 Polona, Nr. 40,Sector 1, Bucuresti |
||
| 282. |
Ambasador, Restaurant - Hotel Ambasador, Bucuresti
0213159080 Bd. G-ral Ghe. Magheru, Nr. 8-10, Sector 1, Bucuresti |
||
| 283. |
Golden Blitz, Restaurant - Bucuresti
0214105100 Razoare , Nr. 32, Sector 6 , Bucuresti |
||
| 284. |
La Placinte - Restaurant cu specific romanesc, Bucuresti
0756207005 Bd. Vasile Milea, 4F (Afi Park 2) |
||
| 285. |
Dancing Lobster - Restaurant cu specific portughez, Bucuresti
0770690886 Str. Glodeni, Nr . 3 Cladirea C22, Sector 2, Bucuresti |
||
| 286. |
Buenasado SteakHouse - Restaurant Bucuresti
0747865210 Strada Glodeni, Nr. 3, sector 2 |
||
| 287. |
Golden Blitz, Restaurant - Bucuresti
0214105100 Razoare , Nr. 32, Sector 6 , Bucuresti |
||
| 288. |
Salon Golescu - Bar specializat in cocktailuri, Bucuresti
0314360338 Strada Nicolae Golescu, Nr 17, sector 1 |
||
| 289. |
Mr Laziz Fast Food & Grill - Mancare libaneza
0720451176 Drumul Timonierului, nr. 3-5 sector 6 |
||
| 290. |
AS Garden - Restaurant Bar & Grill, Bucuresti
0736735244; 0731639017 Strada Timonierului, Nr. 3-5, sector 6 |
||
| 291. |
Cafe Verona - Cafenea Bucuresti
0732003060 Str. Arthur Verona, Nr. 13, sector 1, |
||
| 292. |
Athénée Palace Hilton,Cafenea,Baruri - Bucuresti
0213033777; 0213152121; Fax: 0213152121 Episcopiei, Nr. 1-3, Sector 1 , Bucuresti |
||
| 293. |
Bike Boutique and More - Magazin, terasa, service, Bucuresti
0752405152 Strada Profesor Doctor Victor Babes, Nr. 2, sector 5 |
||
| 294. |
Joy Pizza - Ilfov
0733360020 Str. 1 Decembrie, Nr 141 A, Chiajna, judetul Ilfov |
||
| 295. |
Chocolat Ateneu - Boutique restaurant cu livrare de prajituri in Bucuresti
0743777807; 0744507506 Strada Episcopiei, Nr. 6, Sector 1, Bucuresti |
||
| 296. |
Pizzeria Alessandro - Bucuresti
0721886488; 0721887488 Drumul Sarii, Nr.150, sector 6 |
||
| 297. |
CAJU by Joseph Hadad - Braserie, Bucuresti
0751144545 Nicolae Golescu, Nr. 16, sector 1 |
||
| 298. |
Krishna Caffe - Cafenea Bucuresti
0729745988;0740133254 Bd. Mihail Kogalniceanu, Nr. 17, sector 5, |
||
| 299. |
Jazz Book - Club de jazz si blues, Bucuresti
0752206746 Doctor Carol Davila, Nr. 1, Cotroceni, sector 5 |
||
| 300. |
Casa Roz - Restaurant, Bucuresti
0721542909; 0720624500 Str. Apusului, nr 44, sector 6 |
||
| 301. |
Shift Pub - Bucuresti
0212112272 Str. General Eremia Grigorescu, Nr.17 |
||
| 302. |
Casa Roz, Restaurant - Bucuresti
0721542909; 0720624500; 0723504103 Apusului, Nr. 44, Sector 6, Bucuresti |
||
| 303. |
Lente - Restaurant pentru mic dejun si brunch, Bucuresti
0314107585 Dionisie Lupu, Nr 78, sector 1 |
||
| 304. |
Creamier - Cafenea Bucuresti
0741234567 Strada Benjamin Franklin, Nr. 5, Sector 1 |
||
| 305. |
Naan Project - Restaurant, Bucuresti
0730707119 Strada Progresului, Nr. 1-3 (Razoare), sector 5 |
||
| 306. |
French Bakery, Cofetarie - Bucuresti
0213114518 Benjamin Franklin, Nr. 9, Sector 1, Bucuresti |
||
| 307. |
Kicen - Ciorbe de casa, Bucuresti
0751012221 str. Dr. Staicovici, nr. 43, sector 5 |
||
| 308. |
Circus Pub - Restaurant cu burgeri, Bucuresti
0725180680 Bulevardul Lacul Tei, Nr 65, sector 2 |
||
| 309. |
Torna Fratre Restaurant - Bucuresti
0212103557; 0784111890 Tunari, Nr. 34, Sector 2, Bucuresti |
||
| 310. |
La Copac - Carciuma de jupani, Bucuresti
0722704445 str. Pitar Mos, nr. 23, sector 1 |
||
| 311. |
Ambasador, Bar si Restaurant - Bucuresti
0213159080; Fax 0213123595 Bd. G-ral Gh. Magheru, Nr. 8-10, Sector 1, Bucuresti |
||
| 312. |
Candy bar by Kitty, Cofetarie - Bucuresti
0766628112 (Letan Elena) Iuliu Maniu, Nr.61, Sector 6, Bucuresti |
||
| 313. |
Pandoras Food - Restaurant fast-food Bucuresti
0760102012 Strada Gheorghe Titeica, Nr. 138, Sector 2 |
||
| 314. |
Ai Sapori - Restaurant cu specific italian Bucuresti
0372713635 Bd Timisoara, Nr. 21, sector 6, Bucuresti |
||
| 315. |
Point Hub - Hub Cultural, Bucuresti
0748291815 Str. General Eremia Grigorescu, nr. 10, sector 1, |
||
| 316. |
La Ciurucuri - Restaurant cu specific international, Bucuresti
0752850850 Piata Valter Maracineanu, Nr 1-3, sector 1 |
||
| 317. |
Impinge Tava - Ilfov
0722911963 Strada 1 Decembrie 1918, Nr.165, Rosu, judetul Ilfov |
||
| 318. |
Shiva Coffee&Tea - Cafenea Bucuresti
0748874482 Strada Mihai Eminescu, Nr. 73, sector 2 |
||
| 319. |
VINO - Bar de vinuri, Bucuresti
0799944999 Strada Mihai Eminescu, Nr. 71 |
||
| 320. |
Neopolis Family Pizza - Bucuresti
0734895330; 0770995973 Gheorghe Titeica, Nr. 101, Sector 2 |
||
| 321. |
La Impinge Tava - Bucuresti
0721150452 Str. Mihai Eminescu, Nr. 73, Sector 2 |
||
| 322. |
Ristorante Casale - Bucuresti
0725414055; 0753651955; 0765848494 Soseaua Gheorghe Ionescu Sisesti, Nr 236A, sector 1 |
||
| 323. |
Amareto, Cofetarie - Bucuresti
0736659592; 0723830104; 0723830104 whatsapp Sos. Stefan cel Mare , Nr. 36, Sector 2 (vis-a-vis de Circul Metropolitan Bucuresti), Bucuresti |
||
| 324. |
Restaurant Home - Bucatarie internationala, Bucuresti
0722509794; 0728708216; 0729811130 Str. Alexandru Xenopol, Nr. 1 (zona Gradina Icoanei), Sector 1, Bucuresti |
||
| 325. |
Capri Pizza, Pizzerie si catering - Bucuresti
0729442530; 0214442101 B-dul. Timisoara, Nr. 60C, Sector 6, Bucuresti |
||
| 326. |
Ceai la Vlaicu - Ceainarie Bucuresti
0727609699 Str. Aurel Vlaicu, Nr. 47, sector 2 |
||
| 327. |
Zexe Restaurant romanesc - Bucuresti
0722210844 Oltetului, Nr. 30, Sector 2, Bucuresti |
||
| 328. |
El Pato - Restaurant Bucuresti
0730344810; 0311072033 Strada Dionisie Lupu, Nr. 48, sector 1 |
||
| 329. |
Sweet Chocolate - Cofetarie, Bucuresti
0733944694 Bd. Iuliu Maniu, Nr.65, sector 6 |
||
| 330. |
Ceainaria Infinitea
0723175300 Str. Dr. Grigore Romniceanu, Nr.7, ap.2, sector 5 |
||
| 331. |
Mon Paris Restaurant & Lounge - Restaurant cu specific european, Bucuresti
0799973783 Bd Dacia, Nr. 62, sector 2 |
||
| 332. |
La Collina - Restaurant si pizzerie, Bucuresti
0720265462; 0761806890; 0722229700 Drumul Timonierului, nr. 26, sector 6 |
||
| 333. |
La Micutu - Fast Food, Bucuresti
0765099359 Bd Timisoara, Nr 18, sector 6 |
||
| 334. |
Aristocrat Events Hall - Organizare evenimente - Bucuresti
0733880757; 0733880756 Soseaua Pipera, Nr. 48, Sector 2, Bucuresti |
||
| 335. |
Cofetaria Elan - Bucuresti
0214343438 Bulevardul Iuliu Maniu, Nr. 73, sector 6 |
||
| 336. |
Excalibur, Restaurant - Bucuresti
0730190364; Tel Fax: 0213145670 Academiei, Nr. 39-41, Sector 1 , Bucuresti |
||
| 337. |
Parliament, Restaurant - Bucuresti
0214119990; 0214119991; 0721332397 Izvor , Nr. 106, Sector 5 , Bucuresti |
||
| 338. |
Parliament, Restaurant - Bucuresti
0214119990; 0214119991; 0721332397 Str. Izvor, Nr. 106, Sector 5 , Bucuresti |
||
| 339. |
Velveto Ballrooms - Centru pentru evenimente Bucuresti
0752182255; 0734810385; 0764118347 Str. Oltetului, Nr. 30, sector 2 |
||
| 340. |
Templul Soarelui, Restaurant chinezesc - Bucuresti
0212111693; 0723743878 Vasile Lascar, Nr. 205, Sector 2, Bucuresti |
||
| 341. |
Gelato Mio - Magazin de inghetata Bucuresti
0765799379; 0720044495; 0744555599 Str. Polona, Nr. 76, sector 1 |
||
| 342. |
LaSafi Lebanese Food - Bucuresti
0761021286; 0213611563; 0771696372 Sos. Bucuresti -Ploiesti , Nr. 42D, incinta Mall Baneasa, parter, Bucuresti |
||
| 343. |
Templul Soarelui, Restaurant chinezesc - Bucuresti
0212111693; 0723743878 Vasile Lascar, Nr. 205, Sector 2, Bucuresti |
||
| 344. |
Lolita - Boutique de dulciuri Bucuresti
0757013453 Strada Vasile Lascar, Nr. 212, sector 2 |
||
| 345. |
Boutique Du Pain - Restaurant cu specific francez, Bucuresti
0728443300 Academiei, Nr. 28-30, sector 1 |
||
| 346. |
The Old Sibiu - Restaurant evenimente Bucuresti
0723602560; 0723637769; 0721172390 Str. Ion Otetelesanu,, Nr. 3A-3B, Sector 1 |
||
| 347. |
Restaurant Doi Cocosi
0213122691 Sos. Bucuresti-Targoviste, Nr. 8, , judetul Ilfov |
||
| 348. |
Elisabeta, Restaurant - Bucuresti
0727703703; 0724323132 Bd. Regina Elisabeta, Nr. 45, Sector, Bucuresti |
||
| 349. |
Ici et La - Restaurant cu specific francez Bucuresti
0731453608 Strada Domnita Ruxandra, Nr. 7, Sector 2 |
||
| 350. |
Pizza Hut - Bucuresti
0740121903 Bd. Regina Elisabeta, nr. 15-19, sector 3 , |
||
| 351. |
Pizzicato, Pizzerie si catering - Bucuresti
0212111213 Strada Icoanei, Nr. 2, Sector 2, Bucuresti |
||
| 352. |
Cocosu Rosu - Restaurant cu specific romanesc Bucuresti
0747059315 Str. Margelelor, Nr. 61 ? 63, Sector 6 |
||
| 353. |
Barocco Bar - Bucuresti
0755028028; 0740114132 Domnita Anastasia, Nr.10 (In spatele McDonalds Regina Elsiabeta), Bucuresti |
||
| 354. |
Pasticceria Giuseppina Cofetarie - Bucuresti
0730283947 Soseaua Stefan cel Mare, Nr.46, Sector 2, Bucuresti |
||
| 355. |
Colosseum, Restaurant - Bucuresti
0721243613; 0213131860; 0219689 Calea Victoriei , Nr. 48-50 (Pasajul Victoria), sector 1, Bucuresti |
||
| 356. |
Newton Bar, Bucuresti
0770718303; 0213150217 Jean Louis Calderon, Nr. 56 (Universitate), Sector 2, Bucuresti |
||
| 357. |
Fadel - Patiserie Bucuresti
0786309530; 0722919132 Strada Jean Louis Calderon, Nr. 56, Sector 2 |
||
| 358. |
Colosseum Pizza - Bucuresti
0721243613; 0213131860; 0213121020 Calea Victoriei, Nr. 48-50 (Pasajul Victoria), Sector 1, Bucuresti |
||
| 359. |
La Cena - Restaurant cu specific italian, Bucuresti
0212116717;0730210014 Maria Rosetti, Nr. 1, sector 2 |
||
| 360. |
Saint Gelato - Gelaterie Bucuresti
0745205405 Bulevardul Regina Elisabeta, Nr. 26, Sector 3 |
||
| 361. |
Fortuna Pizza - Bucuresti
0764725328; 0725416126 Apusului, Nr. 82, Sector 6, Bucuresti |
||
| 362. |
Trattoria Roma - Restaurant Bucuresti
0765723733; 0799772233 Str. Drumul Taberei, Nr. 26, Sector 6 |
||
| 363. |
Mr. Cigkofte - Restaurant fast-food, Bucuresti
0720802181 Nicolae Balcescu, Nr. 18, sector 1 |
||
| 364. |
Ramada Majestic, Hotel si Restaurant - Bucuresti
0213102715 Calea Victoriei, Nr. 38-40, Sector 1 , Bucuresti |
||
| 365. |
La Baraca - Bar & Grill Bucuresti
0758986045 Str. Pargarilor, Nr. 17bis, sector 2 |
||
| 366. |
Capitol Hotel si Restaurant - Bucuresti
0213158030; 0317107007 Calea Victoriei , Nr. 29, Sector 1 , Bucuresti |
||
| 367. |
Cercul Militar National, Restaurant - Bucuresti
0213143735; 0213149551; Fax: 0372874921 Constantin Mille, Nr.1-3, Sector 1, Bucuresti |
||
| 368. |
Paine si Vin - Bar cu vinuri, Bucuresti
0755028448 Str. Actor Ion Brezoianu, Nr. 4, sector 5 |
||
| vezi mai multe | |||
| 1. |
WORLD TRADE PLAZA SHOPPING GALLERY
Tel. 202.44.50; Fax 202.43.11 P-ta Montreal nr10, sector 1 |
||
| 2. |
GRANT SHOPPING CENTER
Tel/Fax 021.220.42.65 Sos.Virtutii, nr. 148, sector 6, Bucuresti |
||
| 3. |
FONZI
Tel. 260.21.28; 0729.005.261; Fax 260.15.31 Sos. Nicolae Titulescu nr. 121 (Fonzi Junior), sector 1 |
||
| 4. |
GALERIA MARIO PLAZA
Tel/Fax. 021.230.47.71 Calea Dorobantilor, nr. 172, sector 1, Bucuresti |
||
| 5. |
SUPERMARKET LA NEA NICU
Tel. 230.64.80 Str. Putul lui Zamfir nr. 59, sector 1 |
||
| 6. |
SONMEZ MARKT 4
Tel. 211.65.39; Fax 210.13.25 Bd. Iancu de Hunedoara nr. 64, sector 1 |
||
| 7. |
PRESTIGE SHOPPING CENTER
Tel. 230.16.12; 230.17.13; Fax 230.67.53 Calea Floreasca nr. 111-113, sector 1 |
||
| 8. |
GEMINI
Tel/Fax 230.25.49 Calea Floreasca nr. 111-113 (Complex Prestige), sector 1 |
||
| 9. |
CENTRUL COMERCIAL SIR
Tel. 021.430.13.98; 021.430.01.27 Sos. Virtutii, nr. 1A (pasajul Lujerului, col? cu bd. Uverturii), sector 6, Bucuresti |
||
| 10. |
AFI Cotroceni - Mall, Bucuresti
0314257510; 0314257511; Fax 0314257513 Vasile Milea, Nr. 4, Sector 6 (intersectia Bd. Timisoara cu Str. Vasile Milea), Bucuresti |
||
| 11. |
PLAZA ROMANIA
Tel. 021.407.84.64; 021.407.84.65; 021.319.50.51 Bd. Timisoara , nr. 26, sector 6, |
||
| 12. |
BANEASA SHOPPING CITY
Tel. 021.361.15.66; Fax 021.361.13.88 Sos. Bucuresti-Ploiesti nr. 42D, sector 1, |
||
| 13. |
CENTRUL COMERCIAL FEERIA
Tel. 021.305.71.95; Carrefour: 311.89.00; 021.311.89.01; 021.311.82.02; Fax 021.311.89.03; 021.311.89.04 Sos. Bucuresti-Ploiesti nr. 44A, sector 1, |
||
| 14. |
IKEA, Bucuresti - Magazin de mobila si decoratiuni
0214074532; 0746694532 Soseaua Bucuresti-Ploiesti , Nr. 42A, sector 1, Bucuresti |
||
| 15. |
PLUS DISCOUNT
Tel. 021.402.28.67; Fax 021.402.28.66 Bd. Iuliu Maniu nr. 8B, sector 6, |
||
| vezi mai multe | |||
Sunteti de acord sa fiti contactat prin mesageria Anuntul.ro
de persoana care a adaugat acest anunt?
Vezi istoricul preţurilor din zona
Vezi email
Distribuie Facebook
Anunţurile utilizatoruluiPagina pe care doriti sa o accesati poate sa contina elemente care nu sunt recomandate minorilor!
Va rugam sa confirmati ca aveti peste 18 ani!

5 min.
65
86
,97
,105