Tudor Vladimirescu ...
9 min.
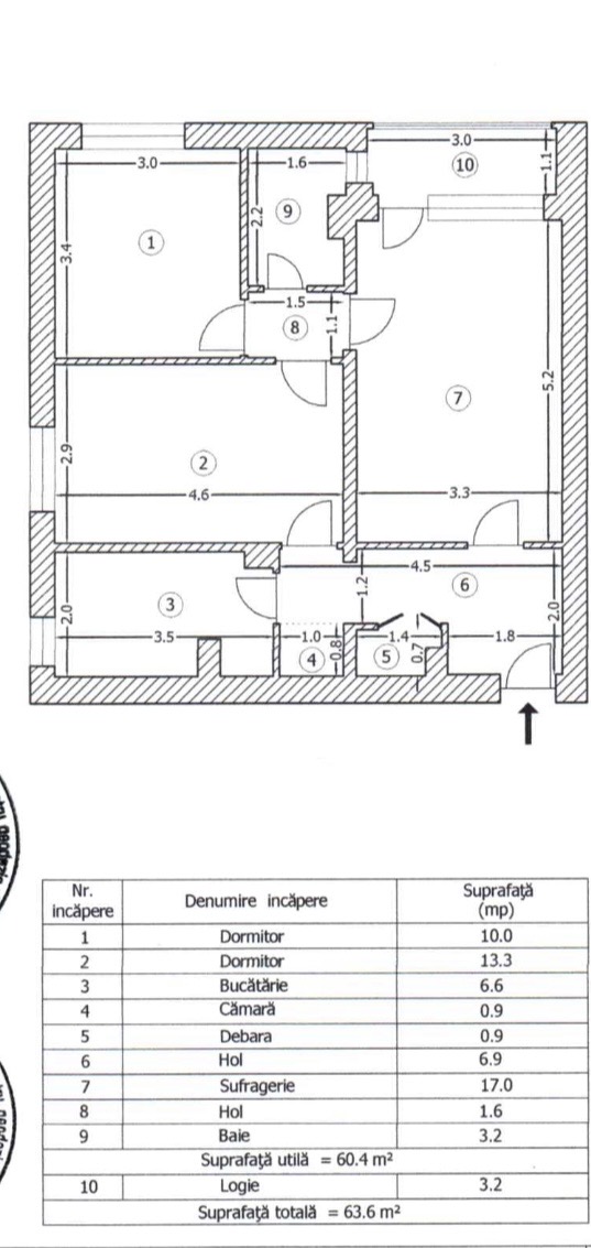
calculeaza distantaDrumul Taberei, Plaza, Moghioros, exclusivitate Public Imob suprafata 65 mp, an 1976, semidecomandat, etaj 2/10, optiuni interior: aer conditionat, apometre, inst. electrice noi inst. sanitare noi, renovat recent, repartitoare caldura, termopan, usa metalica,
Optiuni exterior: Interfon.
Descriere
apartament 3 camere confort 1, etaj 4/10, semidecomandat, bloc 1976 apartamentul a fost renovat in totalitate, termopan, gresie, faianta, parchet, instaltii sanitare, electrice noi, aer conditionat, finisaje 2025.
Este perfect pentru locuit, avand o pozitionare excelenta, 3 min. pana la Parc Moghioros, 2 min. pana la Plaza, in aproapiere de parcuri, scoli, gradinita, piata etc., dar si pentru investitie, chiria 600-700 euro.
Statii metrou |
Timp | |
![]() |
Tudor Vladimirescu | 9 min. |
![]() |
Tudor Vladimirescu | 11 min. |
![]() |
Tudor Vladimirescu | 12 min. |
Statii STB |
Timp |
|
Brașov
137
,138
,N110
,N120
|
4 min. |
|
Bd. Timișoara
|
6 min. |
|
Sergent Moise
137
,138
|
6 min. |
| 1. |
Gradinita nr. 272 sector 6
0311070199; 0214133878 Bd. Timisoara, nr. 39, sector 6 |
||
| 2. |
Gradinita nr. 57 Hillary Clinton sector 6
0214133928 Aleea Pravat, nr. 16, sector 6 |
||
| 3. |
Rosa Zangara - Gradinita sector 6
0760505738 Drumul Taberei, nr. 38A, sector 6 |
||
| 4. |
Priki - Gradinita sector 6
0753936611; 0742292143 Str. Sergent Apostol Constantin, nr. 14, sector 6 |
||
| 5. |
Ada - Gradinita Bucuresti
0723595916 Str. Gheorghe Spacu, nr. 21, sector 6, Bucuresti |
||
| 6. |
Degetica - Gradinita si After School, Bucuresti
0720222200; 0731313131; 0731313101 Str. Bolidului, Nr. 4-6, Sector 6, Bucuresti |
||
| 7. |
Gradinita Nr. 111 sector 6
0214135161 Str. Sibiu, Nr. 8, Sector 6 |
||
| 8. |
Cresa Pinochio (Cresa Drumul Taberei) sector 6
0376203313; 0376203312 Aleea Compozitorilor, nr. 20, sector 6 |
||
| 9. |
Gradinita nr. 94 sector 6
0214133574; 0724 531 595 Str. Targu Neamt, Nr. 4, Sector 6 |
||
| 10. |
Adeland - After school sector 6
0724531595 Str. Targu Neamt, nr. 4, sector 6 |
||
| 11. |
Albinutele - Gradinita cu program prelungit sector 6
0311010031 Str. Centurii, nr. 4, sector 6 |
||
| 12. |
Gradinita nr. 197 Zana Florilor sector 6
0214302179 Str. Cetatuia, nr. 10, sector 6 |
||
| 13. |
Gradinita Nr. 246 sector 6
0316208173 Str. Fabricii, nr. 20, sector 6 |
||
| 14. |
Gradinita nr. 274 sector 6
0213163345 Bd. Iuliu Maniu, nr. 11D, sector 6 |
||
| 15. |
Gradinita nr. 41 sector 6
0214134988 Str. Constantin Titel Petrescu, nr. 12, sector 6 |
||
| 16. |
Centrul Multifunctional Romania Kids - Gradinita & After School Bucuresti
0217770795; 0769060790 Str. Rasaritului, Nr. 59, Sector 6, Bucuresti |
||
| 17. |
After School Casuta Piticilor - Drumul Taberei, Militari
0720548870; 0723230720 Str. Sg. Maj. Alexandru Postolache, nr. 22, sector 6 |
||
| 18. |
Corina Club - After School Bucuresti
0744353015; 0766332833 Str. Garleni, Nr. 11A, Sector 6, Bucuresti |
||
| 19. |
Gradinita Nr. 87 Spiridusii sector 6
0214132440 Str. Valea Calugareasca, Nr. 6, Sector 6 |
||
| 20. |
Castelul Voinicilor - Cresa, Gradinita After School Militari sector 6
0760991977 Str. Rosiori de Vede, nr. 12A, Sector 6 |
||
| 21. |
Colt de Rai - Gradinita sector 6
0217965203; 0752645946 Str. Garleni, Nr. 10, Sector 6 |
||
| 22. |
Gradinita Nr. 209 sector 6
0214401115; 0214134731 Str. Pascani, nr. 15 bis, sector 6 |
||
| 23. |
Gradinita nr. 250 Sector 6
0316201847 Str. Dealul Tugulea, nr. 35, sector 6 |
||
| 24. |
Paradisul Piticilor - Gradinita sector 6
0214341214; 0214341213 Str. Moinesti, nr. 9, sector 6 |
||
| 25. |
Hands-On - Centru educational Bucuresti
0725977815 Bd. Iuliu Maniu, nr. 7, Cotroceni Business Center, Corp U, parter, sector 6 |
||
| 26. |
Neghinita - Centru de zi sector 6
0376203301; 0376203302 Aleea Craiesti, Nr. 1, Sector 6 |
||
| 27. |
Gradinita nr. 273 sector 6
0214133842; 0787731520 Str. Valea lui Mihai, nr. 1, sector 6 |
||
| 28. |
Marchengarten - Gradinita cu predare bilingva sector 6
0744378796 Str. G-ral Ioan Culcer, nr. 49, sector 6 |
||
| 29. |
Waldorf Eruditio - Gradinita sector 6
0723346791 Str. Orsova, nr. 77, sector 6 |
||
| 30. |
Gradinita Nr. 210 sector 6
0217787215; 0771131259 Aleea Arinis, nr. 1bis, sector 6 |
||
| 31. |
Miro Kids World - Cresa, gradinita Bucuresti
0767331173; 0756199161 Str. Miroslavei, nr. 9, Sector 5 |
||
| 32. |
Betty-Mar House - After / Before School, Bucuresti
0732871827 Str. Otescu Ion Nonna, nr. 23, sector 6 |
||
| 33. |
Happy Planet Kids - Gradinita Bucuresti
0214106984; 0722319863; 0740843914 Str. Lt. Col. C-tin Marinescu, Nr. 17B, Sector 6, Bucuresti |
||
| 34. |
Gradinita Nr. 230 sector 6
0217782808 Aleea Potaisa, Nr. 3, sector 6 |
||
| 35. |
Gradinita Nr. 229 sector 6
0214443400; 0214443301 Aleea Dealul Macinului, nr. 5, sector 6 |
||
| 36. |
Alba ca Zapada, Gradinita, After School sector 6
0723737939; 0773967033; 0214330220 Str. Cernisoara, Nr. 86A, Sector 6, Bucuresti |
||
| 37. |
Kinderium - Before & After School Bucuresti
0726177868 Drumul Sarii, nr. 4A, sector 6 |
||
| 38. |
Art\' Alegria - Gradinita, After School Bucuresti
0736163236 Intrarea Cascioarele, sector 6 |
||
| 39. |
Scooby and Friends, Gradinita & After School - Bucuresti
0214443344; 0766661001 Str. Corcodusului, Nr. 9D, Sector 6, Bucuresti |
||
| 40. |
Harap Alb - Cresa sector 6
0376203298 Str. Estacadei, Nr. 13 A, Sector 6 |
||
| 41. |
Gradinita nr. 208 sector 6
0217783025; 0741716 818 Str. Valea Oltului, nr. 14, sector 6 |
||
| 42. |
Elly\'s - Before & After School sector 6
0763188937 Str. Cetatea de Balta, nr. 155, Sector 6 |
||
| 43. |
Dumbrava Minunilor - Gradinita sector 6
0217962807 Str. Apusului, nr. 71-73 , sector 6 |
||
| 44. |
Gradinita nr. 195 Prichindel sector 6
0214304000 Bd. Iuliu Maniu, nr. 73-75, sector 6 |
||
| 45. |
Dianva Kids - After School, Bucuresti
0721959335 Str. Orsova, Nr. 129, Sector 6 |
||
| 46. |
Casuta Strumfilor - Gradinita Bucuresti
0733194605 Intr. Jarului, Nr. 3, Sector 6 |
||
| 47. |
Gradinita Nr. 218 sector 6
0314344484 Aleea Callatis, nr. 5, sector 6 |
||
| 48. |
Art & Play Kindergarten - Cresa, Gradinita Bucuresti
0760670599; 0760670980 Drumul Valea Danului, Nr. 22, Sector 6, Bucuresti |
||
| 49. |
Clubul Buburuzelor, Gradinita sector 6
0769626385; 0766634420 Drumul Valea Danului, Nr. 22, sector 6 |
||
| 50. |
Adnan, Gradinita - Bucuresti
0744606010; 0722205243 Intr. Buturugeni, Nr. 7 Sector 5, Bucuresti |
||
| 51. |
LifeKids Club Afterschool
0774458673 Str. Crisul Repede, nr. 28, sector 6 |
||
| 52. |
Casa Montessori Gradinita - Bucuresti
0726327159 Str. Valea Oltului, nr. 31-35, sector 6, Bucuresti |
||
| 53. |
Planeta Copiilor - Gradinita Bucuresti
0724212887 Str. Gabriela Szabo, Nr. 3 - 11, Sector 6, Bucuresti |
||
| 54. |
Roro - Gradinita sector 6
0731339933; 0735550500 Drumul Valea Argovei, nr. 3-9, Sector 6 |
||
| 55. |
Micul Lord Gradinita - Bucuresti
0730093603; 0745101507 Str. Lespezi, nr. 4 , sector 5, |
||
| 56. |
Centrul Educational Babylove - After School Bucuresti
0722542715 Aleea Muza Adormita, Nr. 12, Sector 6 |
||
| 57. |
Alexandra Kids, Gradinita, After School - Bucuresti
0722151836; 0214206927 Str. Petre Ispirescu, Nr. 69, Sector 5, Bucuresti |
||
| 58. |
Nicholas Kindergarten - Gradinita Bucuresti
0217786915; 0737504977; 0724809291 Drumul Valea Cricovului, Nr. 41-47, Sector 6, Bucuresti |
||
| 59. |
Mickey\'s House - Before & After School sector 6
0785539018 Str. Pietrele Doamnei, nr. 18, Sector 6 |
||
| 60. |
Gradinita Floarea Soarelui sector 5
0214202148 Str. M?rgeanului, nr. 81, sector 5 |
||
| 61. |
Little Team - Gradinita / After School Bucuresti
0799774767 Calea 13 Septembrie, nr. 191, sector 5 |
||
| 62. |
Guguta - Cresa, Gradinita Bucuresti
0769256924 Drumul Manastirea Sihastria, Nr. 11A, sector 6, Bucuresti |
||
| 63. |
Joy - After-school Bucuresti
0766055708 Strada Valea Furcii, Nr. 56, sector 6 |
||
| 64. |
Emerald - Gradinita Bucuresti
0722493479 Drumul Manastirea Sihastria, Nr. 13C, Sector 6, Bucuresti |
||
| 65. |
Gradinita nr. 271 sector 5
0214109024 Bd. Eroii Sanitari, nr. 77, sector 5 |
||
| 66. |
Fulg de Nea - Gradinita sector 6
0212203132 Sos. Ciurel, Nr. 9-11, sector 6 |
||
| 67. |
HappyKidz - Before & Afterschool sector 6
0726348591 Str. Albitei, Nr. 2K, Sector 6 |
||
| 68. |
International Kids Academy - Scoala Primara & Gradinita Rosu
0723027226 Str. Capitan Ion Ionescu, nr. 2, Rosu, judetul Ilfov |
||
| 69. |
Kinderträume - Gradinita Bucuresti
0744507988 Splaiul Independentei, Nr. 195, sector 6, Bucuresti |
||
| 70. |
Asociatia Conil - Gradinita pentru copii cu nevoi speciale Bucuresti
0784412222; 0217466704; 0735847526 Str. Dr. Victor Poloni , nr 14, Sector 5, Bucuresti |
||
| 71. |
Gradinita Nr. 35 sector 5
0214207995 Str. Crizantemelor, nr. 2, sector 5 |
||
| 72. |
Sf. Andrei - Gradinita & After School Bucuresti
0213116823; 0767817002 Str. Bulgarus, Nr. 44, Sector 5, Bucuresti |
||
| 73. |
Lilo Club - Cresa si gradinita Ilfov
0765149367; 0747068562 Intr. Nuferilor, nr. 1, Rosu, Chiajna, judetul Ilfov |
||
| 74. |
WonderKids - Centru Educational Bucuresti
0724258876 Str. Crizantemelor, Nr. 7 sector 5 |
||
| 75. |
GoodStart - Gradinita, After School sector 6
0723380015; 0744626716 Prelungirea Ghencea, nr. 109 B, Sector 6 |
||
| 76. |
Cresa Sf. Stelian sector 5
0214205630; 0736500544 Str. Leresti, nr. 22, sector 5 |
||
| 77. |
Orhideea Kids - Gradinita & After School Bucuresti
0748595311 Calea Plevnei, Nr. 145B, sector 1, Bucuresti |
||
| 78. |
Gradinita Nr. 178 Flori de Tei sector 5
0214234065 Str. Iancu Jianu, Nr. 26, Sector 5 |
||
| 79. |
Kids Learning Center - centru cultural-educativ Ilfov
0762669907; 0765440404 Drumul Bacriului, nr. 101, Rosu - Chiajna, judetul Ilfov |
||
| 80. |
Good Family - Gradinita Bucuresti
0748224225 Str. Nicolae Filimon, Nr. 73A, sector 6 |
||
| 81. |
Top Kids - Gradinita sector 5
0214237723; 0737215703 ; 0764392790 Str. Sergent Gheorghe Donici, Nr. 26-28, Sector 5 |
||
| 82. |
Smiley Kindergarten, Gradinita & After School - Bucuresti
0314366138; 0722541744 Str. Gabriel Cioran, nr. 6, sector 6, |
||
| 83. |
Discover Me- Gradinita Bucuresti
0747774809 Str. Constantin Noica, Nr. 120, sector 6, Bucuresti |
||
| 84. |
Gradinita M.Ap.N. nr. 1 sector 6
0213196009; 0766298724 Calea Plevnei, nr. 137B, sector 6 |
||
| 85. |
David Mihai - Gradinita, Ilfov
0767817041; 0766305131; 0765703632; 0784203520 Drumul Bacriului, nr. 42 B, Rosu, com. Chiajna, judetul Ilfov |
||
| 86. |
Casuta Fermecata - Gradinita sector 5
0214562082; 0214562083 Str. Amurgului, nr. 2, sector 5 |
||
| 87. |
Gradinita nr. 72 sector 5
0214233920 Str. Sergent Scarlat, nr. 19, sector 5 |
||
| 88. |
Gradinita nr. 185 sector 5
0214200667; 0214205180 Str. Garoafei, nr. 12, sector 5 |
||
| 89. |
Clubul Micul Print - afterschool Bucuresti
0733750795 Str. Dr. Nicolae Staicovici, Nr. 51, Sector 5, Bucuresti |
||
| 90. |
Sfantul Nicolae, Gradinita & After School - Bucuresti
0729611918 Str. Sirenelor, Nr. 56-58, Sector 5, Bucuresti |
||
| 91. |
My Universe - Afterschool si gradinita, Bucuresti
0788416164 Str. Costache Negri, Nr. 9-11, sector 5 |
||
| 92. |
Zum Zum - Gradinita Bucuresti
0745685556; 0740704922 Str. Vespasian, Nr. 37, Sector 1, Bucuresti |
||
| 93. |
Gradinita nr. 205 sector 5
0214233610 Calea Ferentari, nr. 2, sector 5 |
||
| 94. |
Magic World Kindergarten - Gradinita sector 6
0720777221 Drumul Bacriului, nr. 37B, sector 6 |
||
| 95. |
Sfantul Stelian - Gradinita, afterschool Ilfov
0734087549; 0737012035 Str. Marasesti, Nr. 2, Sat Rosu, Com. Chiajna |
||
| 96. |
Electromagnetica - Gradinita sector 5
0218915699; 0214232110 Calea Rahovei, nr. 266, sector 5 |
||
| 97. |
Gradinita nr. 40 sector 6
0212203340 Str. Tabla Butii, nr. 60, sector 6 |
||
| 98. |
Alegra, Gradinita - Bucuresti
0746167291 Str. Finta, Nr. 25, Sector 6, Bucuresti |
||
| 99. |
Maryl for kids - Gradinita, Cresa sector 5
0753157515 Sos. Alexandriei, nr. 202 A, sector 5 |
||
| 100. |
Ana si Strumfii - After school Bucuresti
0768185720; 0760193907 Prelungirea Ghencea, nr. 255A, sector 6 |
||
| 101. |
Puisor - Gradinita Nr. 268 Bucuresti
0214104010 Str. Ion Creanga, Nr. 8, Sector 5, Bucuresti |
||
| 102. |
Olga Gudynn, Gradinita si Scoala Cotroceni - Bucuresti
0734411332; 0214106995 Str. Fagaras, Nr. 6, Sector 1, Bucuresti |
||
| 103. |
Smart & Fun After School Crangasi
0765518746; 0766891844 Intr. Sipetului, Nr. 3, Sector 6 |
||
| 104. |
Rainbow Kids - Gradinita si scoala primara Bucuresti
0737081690; 0773349170 Str. Ion Dragalina, Nr. 8, Sector 5, Bucuresti |
||
| 105. |
Gradinita din Povesti - Bucuresti
0724987747 Str. Costache Marinescu, Nr. 1A, Sector 1 |
||
| 106. |
Sfera Kinderzentrum - Gradinita, Before & After School Bucuresti
0728024897 Calea Grivitei, nr. 194, sector 1 |
||
| 107. |
Lumea Piticilor - Gradinita, Ilfov
0723660168 Str. Crinului, nr. 37A, Chiajna, judetul Ilfov |
||
| 108. |
Edu Friends - Before & After School Bucuresti
0783080096 Str. Berzei, Nr. 5, Sector 1 |
||
| 109. |
Pitiricky - Clubul celor mici - Bucuresti
0724648513 Str. Ialomicioarei, Nr. 13, Sector 1, Bucuresti |
||
| 110. |
Teddybar - Gradinita, Bucuresti
0212224455; 0723048602 Str. Soimarestilor, nr. 29, sector 1, Bucuresti |
||
| 111. |
Taramul Cunoasterii - Cresa si Gradinita Bucuresti
0724278826 Str. Ioan G. Bibicescu, Nr. 11, Sector 1, Bucuresti |
||
| 112. |
Gradinita nr. 73 sector 5
0213154355 Splaiul Independentei, nr. 68, sector 5 |
||
| 113. |
Aventura Kids Club After School Chiajna
0740788017; 0741130233 Str. Acvilei, Nr.10, Rosu, Chiajna, judetul Ilfov |
||
| 114. |
Gradinita MAPN Nr. 2 Bucuresti
0213156889 Str. Constantin Cristescu, nr. 5, sector 1 |
||
| 115. |
Creative Minds Kindergarten - Gradinita Bucuresti
0726152551 Str. Alexandru Deparateanu, nr. 38, sector 1 |
||
| 116. |
Genius - Afterschool Bucuresti
0745045180 Intrarea Craiovei, Nr. 21, Sector 6 |
||
| 117. |
Paradisul Verde - Gradinita sector 5
0214232570 Str. Pucheni, nr. 55, sector 5 |
||
| 118. |
Don Quijote - Afterschool Bucuresti
0725737793 Str. Ioan Slavici, nr. 4, sector 1 |
||
| 119. |
Gradinita nr. 206 - Gradinita cu program prelungit Bucuresti
0212229287 Str. Constantin Disescu, nr. 37, sector 1 |
||
| 120. |
Copil Dorit - Gradinita Bucuresti
0736820068; 0722166358 Sos. Viilor, Nr. 33, Sector 5, Bucuresti |
||
| 121. |
Ana Lugojana - Gradinite, Scoala Primara, Gimnaziala si After School Bucuresti
0724342409 Str. Constantin Miculescu, nr. 10, sector 5, Bucuresti |
||
| 122. |
Gradinita nr. 269 sector 5
0213354544 Str. Constantin Miculescu, nr. 12, sector 5 |
||
| 123. |
Kids Joy Land - Gradinita si after school, Ilfov
0721216194 Str. 1 Decembrie 1918, Nr. 181 A - Sediul 1, Comuna Chiajna, judetul Ilfov |
||
| 124. |
CoolTure MindS - After School Bucuresti
0743359307 Bd. Alexandru Ioan Cuza, nr. 37, Sector 1 |
||
| 125. |
Carlida - Gradinita, After & Before School Bragadiru
0722807069 Str. Safirului, nr. 18C, Bragadiru, judetul Ilfov |
||
| 126. |
Roxy Baby - Cresa Particulara Bucuresti
0314254309; 0723274924 Str. Slobozia, Nr. 29 , Sector 4, Bucuresti |
||
| 127. |
Gradinita Nr. 248 Bucuresti
0212224120 Str. Artur Vartejeanu, Nr. 15, Sector 1 |
||
| 128. |
Circle Time - Cresa, Gradinita Bragadiru
0727585578 Str. Margelelor, nr. 10F, Bragadiru, judetul Ilfov |
||
| 129. |
Fridolin - Gradinita, Scoala Germana Bucuresti
0723219616; 0723584872 Str. Temisana, Nr. 1, Sector 1, Bucuresti |
||
| 130. |
Innababy - Cresa, gradinita, afterschool Bucuresti
0722403847 Str. Tintasului, Nr. 3, Sector 1, Bucuresti |
||
| 131. |
Kids Club Militari, Gradinita & After School - Bucuresti
0314362520; 0728200900 Str. Rezervelor, Nr. 91, Sector 6, Bucuresti |
||
| 132. |
Gradinita Kids Club Militari Bucuresti
0314362520; 0728200900 Str. Rezervelor, Nr. 91, Sector 6, Balotesti |
||
| 133. |
Gradinita nr. 97 Bucuresti
0212241162 Str. Islaz, nr. 13, Sector 1 |
||
| 134. |
Maria Montessori Home - Gradinita si cresa, Ilfov
0722599234 Str. Vartejului, Nr. 7A, Voluntari, judetul Ilfov |
||
| 135. |
Children\'s Joy, Gradinita & After School - Bucuresti
0731258277; 0754317732 Str. Gramont, Nr. 3, Sector 4, Bucuresti |
||
| 136. |
Waldorf Christophori - Gradinita Bucuresti
0770861602 Str. Putul cu Plopi, Nr. 8, (langa Parcul Cismigiu) - sector 1, Bucuresti |
||
| 137. |
LTN Liceul Teoretic National - Gradinita, Gimnaziu, Liceu - Bucuresti
0720000171; 0732151931 Str. Dr. Iacob Felix, nr. 49, Sector 1, Bucuresti |
||
| 138. |
Creative Kidz - Afterschool Rosu
0735246217 Str. Gospodari, Nr. 46, Sat Rosu, Com. Chiajna, judetul Ilfov |
||
| 139. |
Ray of Light Montessori - Gradinita, Bucuresti
Str. Gladiolelor, Nr. 15, sector 4 |
||
| 140. |
Gradinita nr. 54 sector 5
0214231217 Calea Ferentari, nr. 96, sector 5 |
||
| 141. |
Cambridge Success - Gradinita Bucuresti
0764474152 Str. Rezervelor, Nr. 24C, Sector 6 |
||
| 142. |
Happy Kiddo - Gradinita, Cresa si After School
0763033010 Str. Padurii, Nr. 5, Sat Dudu, Com. Chiajna, judetul Ilfov |
||
| 143. |
Cami - Gradinita particulara si afterschool Bucuresti
0757402573 Str. Carol Knappe, nr. 45,sector 1, Bucuresti |
||
| 144. |
Aristokids, Gradinita & After School - Bucuresti
0722648885 Str. Lebedei, Nr. 25, Sector 1, Bucuresti |
||
| 145. |
Gradinita nr. 244 sector 5
0723919980; 0214234008; 0769 444 163 Str. Humulesti, nr. 31, sector 5 |
||
| 146. |
Cami Gradinita & After School - Bucuresti
0757402573; 0749018642 Str. Carol Knappe, Nr. 45, Sector 1, Bucuresti |
||
| 147. |
Kinderakademie - Gradinita & After School Bucuresti
0724661760; 0727427004 Str. Sfintii Voievozi, Nr. 28, Sector 1, Bucuresti |
||
| 148. |
Buna Vestire - Gradinita, After School sector 4
0787435172 Str. Episcopul Chesarie, nr. 9, Sector 4 |
||
| 149. |
Young Academics - AfterSchool Bucuresti
0755095974 Str. Trotusului, nr. 39, sector 1 |
||
| 150. |
Bwell Education School - Afterschool Ilfov
0752272566 Str. Margelelor, Nr. 12, Bragadiru, judetul Ilfov |
||
| 151. |
Gradinita nr. 53 sector 5
0214232145 Aleea Bacau, nr. 2A, sector 5 |
||
| 152. |
Monteclaris - Gradinita, before si afterschool Bucuresti
0724671560; 0784606075 Str. Maria Hagi Moscu, Nr. 29, Sector 1 |
||
| 153. |
Degetica Royal Palace - Gradinita Chiajna
0731313131; 0733003300; 0769904269 Str. Rezervelor, nr. 42B, Chiajna, judetul Ilfov |
||
| 154. |
Iris Smart - After, Before School Bucuresti
0765263865 Str. Pucheni, nr.123 A , Sector 5 |
||
| 155. |
Gradinita Nr. 3 cu Program Prelungit Bragadiru
0214480386 Str. Coralului, Nr. 8, Bragadiru, judetul Ilfov |
||
| 156. |
The Little Artist - Gradinita Bucuresti
0737365283; 0743814767; 0722680765 Str. Ing. Zablovschi, Nr. 7, Sector 1, Bucuresti |
||
| 157. |
Gradinita Quiz
0751425562 Str. Abrud, nr. 134-136, sector 1 |
||
| 158. |
Montessori British School - Gradinita, Ilfov
0756100116 Str. Rasaritului, nr. 3, Chiajna, judetul Ilfov |
||
| 159. |
Oskar - Before and After School Piata Victoriei
0730948470 Str. Monetariei, Nr. 14, Sector 1, Bucuresti |
||
| 160. |
Tara lui Piticot - Cresa, Gradinita Bragadiru
0721445694; 0770276743 Str. Crisul Repede, nr. 33, Bragadiru, judetul Ilfov |
||
| 161. |
Oskar - Before&After School Bucuresti
0734040227; 0730948470 Str. Monetariei, nr. 12, sector 1 |
||
| 162. |
Pisicile Aristocrate - Gradinita sector 4
0213350635; 0213363680 Bd. Regina Maria, nr. 28-30, Sector 4 |
||
| 163. |
Ingenius Club - After School Bucuresti
0729164275; 0733975456 Str. Virgil Plesoianu, nr. 108, sector 1 |
||
| 164. |
Prikindel - Cresa, Gradinita & After School - Bucuresti
0314059269; 0722522198 Str. Sf. Ilie, nr. 5, sector 4, |
||
| 165. |
Karin\'s Kids Academy - Gradinita Bucuresti
0212250005 Str. Hermann Oberth, Nr. 33, Sector 1, Bucuresti |
||
| 166. |
Lumea lui Momo - Gradinita Bucuresti
0748055255 Str. Ipotesti, Nr. 23, Sector 4 |
||
| 167. |
Maria International School - Gradinita, Scoala primara si afterschool Bucuresti
0730432092 Str. Piata Amzei, Nr. 6, Sector 1, Bucuresti |
||
| 168. |
Gradinita nr. 222 Bucuresti
0721345993; 0216673480 Str. Arad, nr. 38 , sector 1 |
||
| 169. |
Piticii Nostri - Gradinita, Cresa, After School Bragadiru
0749177710 Str. Smardan, Nr. 10, (Cartier Independentei, Bragadiru), Bragadiru, judetul Ilfov |
||
| 170. |
Go Kids Go - Before and After-School Bucuresti
0723076434; 0766480774 Str. Clucerului, nr. 21, sector 1 |
||
| 171. |
Andreea\'s Kindergarten - Gradinita Bragadiru
0768390146 Str. Rasaritului, Nr. 2-4, Bragadiru, judetul Ilfov |
||
| 172. |
Gradinita Nr. 168 sector 5
0213363515 Sos. Viilor, nr. 99, sector 5 |
||
| vezi mai multe | |||
| 1. |
Doris - centru de testare COVID 19 Bucuresti
0732684319 Bd. Iuliu Maniu, nr. 11, sector 6, |
||
| 2. |
Centrul medical PoeMedica Bucuresti
0214139387; 0217461632; 0757109599 Bd. 1 Mai, nr. 24, sector 6, |
||
| 3. |
Clinica Medicala Rosana Medical-Bucuresti
Tel. 0214140220; 0372734300 Str. Cetatea Histria , nr. 12, sector 6, |
||
| 4. |
Centrul Medical Gorjului- Bucuresti
0214341557 Bd. Iuliu Maniu, nr. 65, sector 6 , |
||
| 5. |
Polimed Apaca - Policlinica, Bucuresti
0214348003; 0214348026; 0213113810 Str.Dezrobirii, Nr. 13, Sector 6, Bucuresti |
||
| 6. |
Centrul medical Ghencea Medical Center- Bucuresti
0219838; 0752493636 ; 0756045204 Bd. Ghencea , Nr. 43 B, sector 6, Bucuresti |
||
| 7. |
Lifeline Services-Bucuresti
0212221651; 0722279756 Sos. Virtutii, nr. 19 D, Virtutii Business Center, Sector 6, |
||
| 8. |
Policlinica Regina Maria - Lujerului
0219268 Bd. Iuliu Maniu, nr. 51, sector , |
||
| 9. |
Scanmed - Clinica Medicala Bucuresti
0219215; 0317100141; 0729202202 Sos. Panduri, nr. 71, Parter, Sector 5 |
||
| 10. |
Policlinica Regina Maria - Cotroceni
0219268 Sos. Cotroceni, nr. 20, sector 6, |
||
| 11. |
Clinica Lil Med-Bucuresti
0214206055; Fax:0214212231 Str. Suzana , nr. 7, corp 1,sector 5, |
||
| 12. |
Clinica de Excelenta in Patologia Somnului Somnolog-Bucuresti
0213118822; 0784442277 Str.Dr.Leonte Anastasievici, nr.11, sector 5, |
||
| 13. |
Centrul Medical Panduri-Bucuresti
0731806118; 0219901 Str. Dr. Ioan Atanasiu, nr. 34, sector 5, |
||
| 14. |
Clinica Medicover-Bucuresti
0219896 Str. Sergent Constantin Ghercu,, nr. 1A, sector 1, |
||
| 15. |
Clinica Doctor Acasa-Bucuresti
0784276950; 0788629415; 0788676433 Str.Prelungirea Ghencea, nr. 53 bis, lot1, bloc F3, scara A, etaj 1, sector 6, |
||
| 16. |
Institutul National pentru medicina complementara si alternativa
Tel.0783002934; 0214102419 Sos. Panduri , nr. 22, sector 5, |
||
| 17. |
Centru Medical Mediclass - Cotroceni
0214102727; 0214120128; 0214120129 Str. Elefterie, nr. 47-49 (Complex Comercial Cotroceni), sector 5, |
||
| 18. |
Spitalul Clinic \"Prof. Dr. Theodor Burghele\" + Ambulatoriu
Tel.0214106910; Fax.0214111055 Sos. Panduri, nr. 20, sector 5, |
||
| 19. |
Spitalul Clinic \"Prof. Dr. Theodor Burghele\" + Ambulatoriu
Tel. 0214106910; Fax 0214111055 Sos. Panduri nr. 20, sector 5, |
||
| 20. |
Centrul Medical Brancusi
0319119 Str. Valea Doftanei, Nr. 113, Sector 6 |
||
| 21. |
Spitalul Universitar de Urgenta Bucuresti - SUUB
Tel. 0213180519; Fax 0213180554 Splaiul Independentei, nr. 169, sector 5 , |
||
| 22. |
Spitalul Universitar de Urgenta Bucuresti - SUUB
Tel. 0213180519; 0213180554 Splaiul Independentei nr. 169, sector 5, |
||
| 23. |
Centrul Medical Apolo- Bucuresti
Tel. 0214101770; 0214101615; 0744377034 Str. Coriolan Caius Marcius, nr. 41 (lang? benzinaria MOL Tudor Vladimirescu), sector 5, |
||
| 24. |
Ambulatoriul Spitalului Universitar de Urgenta
Tel. 0213180519/29; 0212026147 Splaiul Independentei, nr. 169, sector 5 , |
||
| 25. |
Centrul Medical Nicomed-Bucuresti
0216372458; 0731338524 Calea Crangasi, nr. 23, ap.1, sector 6, |
||
| 26. |
Clinica Sanamed-Bucuresti
0219442 Calea Plevnei, Nr. 159,corpul B ,Sector 6, |
||
| 27. |
Prof. Dr. Panait Sirbu, Spitalul Clinic de Obstetrica-Ginecologie Bucuresti
0213161281; 0213161283 Calea Giulesti, nr. 5, sector 6 , |
||
| 28. |
Centrul Medical Nicomed
0216372458; 0731338524 Calea Crangasi nr. 23, bl. 13, sc. 2, ap. 1, sector 6, |
||
| 29. |
Prof. Dr. Panait Sirbu, Spitalul Clinic de Obstetrica-Ginecologie Bucuresti
0213161281; 0213161283; 0213161287 Calea Giulesti, nr. 5, sector 6, bucuresti |
||
| 30. |
Ais companie medical farmaceutica
0219909 Sos. Alexandriei , nr. 144, sector 5, Bucuresti |
||
| 31. |
Spitalul Universitar de Urgenta Militar Central Dr. Carol Davila
Tel. 0213193052/60; Fax.0213193030 Str. Calea Plevnei, nr. 134, sector 1, Bucuresti |
||
| 32. |
Spitalul Clinic CF Witting + ambulatoriu
Tel. 0213129530; 0213129531; 0213176280 Calea Plevnei nr. 142-144, sector 6, |
||
| 33. |
RomGerMed - Clinica Medicala Bucuresti
Tel. 0213110075; 0727999602 Calea Plevnei, 137 C, sector 6, |
||
| 34. |
Spitalul Clinic de Nefrologie - Dr. Carol Davila
Tel. 0213189184 (centrala); Fax 0213189184 Calea Grivitei nr. 4, sector 1, |
||
| 35. |
Dr. Carol Davila, Spitalul Universitar de Urgenta Militar Central Bucuresti + ambulatoriu
Tel. 0213193052/60; 0213193030 Str. Calea Plevnei , nr. 134, sector 1, |
||
| 36. |
Policlinica Rahova-Bucuresti
0214232080; 0214232081; 0214232082 Str.Malcoci., nr. 4, sector 5 , Bucuresti |
||
| 37. |
Policlinica pentru copii Regina Maria - Opera
0219268 Str. Costache Negri, nr. 1-5, sector 5, |
||
| 38. |
Centrul Medical M Hospital-Bucuresti
Tel.0219136 Str. Witing, nr. 10-12, sector 1 , |
||
| 39. |
Centrul Medical M Hospital-Bucuresti
0219136; 0744812330; 0213162049 Str.Witting, nr. 10-12, sector 1, Bucurestu |
||
| 40. |
Imuno Medica - Centrul de preventie, diagnostic si tratament Sf. Ioan Botezatorul
0314050350; 0771771333 Str. Virgiliu nr. 81, sector 1 |
||
| 41. |
Centrul Medical Focus
0753035038 Str. Dinicu Golescu, nr. 23-25 , sector 1, |
||
| 42. |
PriMed - Clinica Medicala Bucuresti
0219986; 0720034774 Bd. Dinicu Golescu, nr.10, sector 1 |
||
| 43. |
Clinica Medicala Data Plus-Bucuresti
0213131491 Str.Cobalcescu Grigore, nr. 35,sector 1, |
||
| 44. |
Spitalul Clinic de Chirurgie Oro-Maxilo-Faciala -Bucuresti
Tel/Fax. 0213158855; 0213155217 Calea Plevnei, nr. 17-21, sector 1 , |
||
| 45. |
Spitalul Clinic de Chirurgie Oro-Maxilo-Faciala \"Prof. Dr. Dan Theodorescu\"
Tel/Fax. 0213158855; 0213155217 Calea Plevnei, nr. 17-21, sector 1, |
||
| 46. |
Ioana Medical Center
0212233810; 0786486156 Bd. Alexandru Ioan Cuza, nr 81, et 1, sector 1 |
||
| 47. |
Centrul Medical Ioana-Bucuresti
0212233810; 0786486156 Str. Alexandru Ioan Cuza, nr. 81,, et. 1,sector 1, Bucuresti |
||
| 48. |
Rytmomed - Clinica medicala Bucuresti
0737181511 Str. Popa Tatu, nr. 35, Sector 1 |
||
| 49. |
RomGerMed - Clinica Medicala Bucuresti
Tel. 0213110075; 0725302475 Calea Plevnei, nr. 137C, sector 6, |
||
| 50. |
Spitalul de Urgenta de Chirurgie Plastica, Reparatorie si Arsuri-Bucuresti
0212240946; 02.2240947; Tel/Fax 0212241800 Calea Grivitei , nr. 218, sector 1 , |
||
| 51. |
Spitalul de Urgenta de Chirurgie Plastica, Reparatorie si Arsuri
0212240946; 0212240947; Tel/Fax 0212241800 Calea Grivitei nr. 218, sector 1, |
||
| 52. |
Centrul Medical Sanador-Bucuresti
Tel. 0219699 |
||
| 53. |
Centrul Medical Sana-Bucuresti
0212128222 Str. Dr. Sergiu Dumitru, nr. 3, sector 1, |
||
| 54. |
Centrul de Transfuzie Sanguina Bucuresti
Tel. 0314053660; 0314053661; 0314053662 Str. Constantin Caracas nr. 2-8, sector 1, |
||
| 55. |
Miramed Plus - Servicii medicale la domiciliu Bucuresti, Ilfov
0773760078 Str. Safirului, nr. 28, Bragadiru, judetul Ilfov |
||
| 56. |
Spitalul Clinic de Nefrologie - Dr. Carol Davila
Tel. 0213189184 (centrala) Calea Grivitei, nr. 4, sector 1, |
||
| 57. |
Spitalul Clinic Sfanta Maria + ambulatoriu-Bucuresti
Tel. 0212223550; 0212223553 Bd. Ion Mihalache nr. 37-39, sector 1, |
||
| 58. |
Clinica Medicala Sfantul Spiridon Vechi-Bucuresti
0213351378; 0213351379; 0787820066 Piata Natiunilor Unite, nr 5-7, sector 4, Bucuresti |
||
| 59. |
Centrul Medical Bio Terra Med- Bucuresti
0726243473; 0724262110; 0774022961 Calea Grivitei, nr. 3, Sector 1, |
||
| 60. |
Spitalul Clinic Sfanta Maria + ambulatoriu
Tel. 0212223553; 0212223550 Bd. Ion Mihalache, nr. 37-39, sector 1, |
||
| 61. |
Marius Nasta, Institutul de Pneumoftiziologie Bucuresti
0213356910; Fax 0213373801 Sos.Viilor , nr. 90, sector 5 , |
||
| 62. |
Marius Nasta, Institutul de Pneumoftiziologie + Ambulatoriu Bucuresti
0213356910; 0213373801 Sos.Viilor nr. 90, sector 5 , |
||
| 63. |
Policlinica Eforie-Bucuresti
Tel. 0213139922 Str. Eforie, nr. 4, sector 5, |
||
| 64. |
Prof.Dr. Agrippa Ionescu, Spitalul Clinic de Urgenta Bucuresti
0377720000; Fax 0377726169 Str. Arh. Ion Mincu , nr. 7, sector 1, |
||
| 65. |
Institutul National de Recuperare, Medicina Fizica si Balneologie
Tel.0311302300 Str. Sf. Dumitru, nr. 2 - ambulatoriu de recuperare clinica I si II, sector 3, |
||
| vezi mai multe | |||
| 1. |
Colegiul Tehnic Gheorghe Asachi - Bucuresti
0214130438; 0787858675; 0214134040 Aleea Pravat, Nr. 24, sector 6 |
||
| 2. |
Scoala Gimnaziala Nr. 164 Sfantul Calinic de la Cernica - Bucuresti
0214131160 Str. Pravat, Nr. 22, Sector 6, Bucuresti |
||
| 3. |
Grigore Moisil, Colegiu National - Bucuresti
0214132696; 0768191964 Bd. Timisoara, Nr. 33, Sector 6, Bucuresti |
||
| 4. |
Liceul Tehnologic Sfantul Antim Ivireanu - Bucuresti
0314380278 Aleea Poiana Muntelui, Nr. 1, Sector 6, Bucuresti |
||
| 5. |
Scoala Gimnaziala Nr. 197 - Bucuresti
0214134330; 0786332028 Str. Obcina Mare, Nr. 2, Sector 6, Bucuresti |
||
| 6. |
Tudor Vladimirescu, Colegiu National - Bucuresti
0214103831 Bd. Iuliu Maniu, Nr. 15, Sector 6, Bucuresti |
||
| 7. |
Adrian Paunescu, Scoala Gimnaziala - Bucuresti
0214133020 Aleea Valea Prahovei, Nr. 1, Sector 6, Bucuresti |
||
| 8. |
Colegiul Economic Costin C. Kiritescu - Bucuresti
0314016830 Str. Pestera Dambovicioarei, Nr. 12, Sector 6, Bucuresti |
||
| 9. |
Scoala Gimnaziala Nr. 142 - Bucuresti
0314040196; 0214300511 Str. Centurii, Nr. 4, Sector 6, Bucuresti |
||
| 10. |
Colegiul Tehnic Petru Maior - Bucuresti
0736627798 Bd. Timisoara, Nr. 6, Sector 6 |
||
| 11. |
Gh. Airinei, Colegiul Tehnic de Posta si Telecomunicatii - Bucuresti
0214134645 Str. Romancierilor, Nr. 6, Sector 1, Bucuresti |
||
| 12. |
Orizont, Scoala Gimnaziala Nr. 193 - Bucuresti
0214132355 Str. Mihaela Ruxandra Marcu, Nr. 3, Sector 6, Bucuresti |
||
| 13. |
Scoala Gimnaziala Nr. 117
0214302040; 0784236131 Str. Fabricii, Nr. 22, Sector 6, Bucuresti |
||
| 14. |
Scoala Gimnaziala Nr. 169 - Bucuresti
0214132431 Str. Pascani, Nr. 2, Sector 6, Bucuresti |
||
| 15. |
Scoala Gimnaziala Nr. 59
0314252104 Str. Vladeasa, Nr. 9, Sector 6, Bucuresti |
||
| 16. |
Scoala Gimnaziala Nr. 311- Bucuresti
0214133440 Str. Garleni, Nr. 10, Sector 6, Bucuresti |
||
| 17. |
Scoala Gimnaziala Nr. 156 - Bucuresti
0314040192 Str. Dealul Tugulea, Nr. 35, Sector 6 |
||
| 18. |
Sfintii Constantin si Elena, Scoala Gimnaziala Nr. 176 - Bucuresti
0214442515 Aleea Lunca Cernei, Nr. 3, Sector 6, Bucuresti |
||
| 19. |
Eugen Lovinescu, Liceu teoretic - Bucuresti
0214132947; 0214134195 Str. Valea lui Mihai, Nr. 6, Sector 6, Bucuresti |
||
| 20. |
Elena Cuza, Colegiul National - Bucuresti
0214132495; 0214134768 Str. Pestera Scarisoara, nr. 1, sector 6, Bucuresti |
||
| 21. |
Scoala Gimnaziala Nr. 309 - Bucuresti
0314190747; 0214340426 Str. Moinesti, Nr. 9, Sector 6 |
||
| 22. |
Constantin Brancusi, Scoala Gimnaziala Nr. 174 - Bucuresti
0314052556 Str. Rosia Montana, Nr. 41, Sector 6, Bucuresti |
||
| 23. |
Scoala Gimnaziala Regele Mihai I - Bucuresti
0311011373 Str. Dezrobirii, Nr. 41, Sector 6 |
||
| 24. |
Scoala Gimnaziala Nr. 206 - Bucuresti
0217773980 Aleea Arinis, Nr. 5, Sector 6, Bucuresti |
||
| 25. |
Scoala Gimnaziala Nr. 279 - Bucuresti
0217773164 Prelungirea Ghencea, Nr. 24, Sector 6, Bucuresti |
||
| 26. |
Sfantul Andrei, Scoala Gimnaziala 172 - Bucuresti
0217785959 Aleea Parva, Nr. 3- 5, Sector 6, Bucuresti |
||
| 27. |
Atlas, Scoala postliceala - Bucuresti
0214400708 Bd. Timisoara, Nr. 60D, Sector 6, Bucuresti |
||
| 28. |
Ion Dumitriu, Scoala Gimnaziala Nr. 157 - Bucuresti
0214340401 Str. Hanul Ancutei, Nr. 4, Sector 6, Bucuresti |
||
| 29. |
Ion Barbu, Liceu Teoretic - Bucuresti
0214102332 Str. Nabucului, Nr. 18, Sector 5, Bucuresti |
||
| 30. |
UCECOM, Colegiul Spiru Haret - Bucuresti
0213166195; 0213166196 Str. Economu Cezarescu, Nr. 47-59, Sector 6, Bucuresti |
||
| 31. |
Liceul cu Program Sportiv Mircea Eliade - Bucuresti
0213141389 Splaiul Independentei, Nr. 315-317, Sector 6 |
||
| 32. |
Regina Maria, Scoala Gimnaziala Nr.198 - Bucuresti
0214340102; 0314040194 Str. Apusului, Nr. 71-73, Sector 6, Bucuresti |
||
| 33. |
Scoala Gimnaziala Speciala Constantin Paunescu Bucuresti
0214442288 Aleea Istru, Nr. 4, Sector 6 |
||
| 34. |
Stefan Odobleja, Liceu teoretic - Bucuresti
0214112213 Str. Dorneasca, Nr. 7A, Sector 5, Bucuresti |
||
| 35. |
Scoala Profesionala Speciala pentru Deficienti de Auz Sfanta Maria - Bucuresti
0214440331; 0217787655 Aleea Istru, Nr. 6, Sector 6 |
||
| 36. |
Scoala Gimnaziala nr. 143 - Bucuresti
0214202440 Str. Banu Maracine, Nr. 16, Sector 5 |
||
| 37. |
Scoala Gimnaziala Nr. 144 - Bucuresti
0214442093 Str. Floarea de Gheata, Nr. 1B, Sector 5, Bucuresti |
||
| 38. |
Sfanta Treime, Scoala Gimnaziala - Bucuresti
0376203770 Aleea Ghirlandei, Nr. 7, Sector 6, Bucuresti |
||
| 39. |
Planeta Copiilor , Scoala Primara si Gimnaziala - Bucuresti
0724212970; 0724212887; 0214330263 Gabriela Szabo, Nr. 3 - 11, Sector 6, Bucuresti |
||
| 40. |
I.G. Duca, Scoala Gimnaziala 146 - Bucuresti
0214100881 Sos. Panduri, Nr. 42, Sector 5, Bucuresti |
||
| 41. |
Complex Scoalr Cronos Bucuresti
0212225050; 0758107705 Str. Chibzuintei, Nr. 15-17, Sector 1, Bucuresti |
||
| 42. |
Ada School - Bucuresti
0723595916; 0721424485 Dr. Carol Davila, Nr. 101, Bucuresti |
||
| 43. |
Scoala Gimnaziala Nr. 115
0213163793; 0786401588 Calea 13 Septembrie, Nr. 177, Sector 5, Bucuresti |
||
| 44. |
Dimitrie Gusti, Liceu Tehnologic - Bucuresti
0214562050 Str. Samuil Vulcan, Nr. 8, Sector 5, Bucuresti |
||
| 45. |
Scoala de Aplicatie pentru Ofiteri a Jandarmeriei Romane Mihai Viteazul
0217696120; 0214349131; 0757099804 Str. 1 Decembrie 1918, Nr. 2-4, Sat Rosu, judetul Ilfov |
||
| 46. |
Smart Koala Kids Club
0771638419; 0771638425 Calea 13 Septembrie, Nr.126A, bl.P43, sc.1, parter, ap. 2, sector 5, Bucuresti |
||
| 47. |
Scoala Gimnaziala Nr. 124 - Bucuresti
0214206365 Str. Margeanului, Nr. 25A, Sector 5, Bucuresti |
||
| 48. |
Scoala Gimnaziala Nr. 126
0214203645 Str. Leresti, Nr. 12, Sector 5, Bucuresti |
||
| 49. |
Scoala Gimnaziala Nr. 167 - Bucuresti
0212205770 Calea Crangasi, Nr. 140, Sector 6, Bucuresti |
||
| 50. |
Alegra - After-school Bucuresti
0729987920; 0726487124 Str. Portaresti, Nr. 11, etaj 1, sector 6 |
||
| 51. |
Scoala Gimnaziala Nr. 150 - Bucuresti
0214108408 Bd. Eroii Sanitari, Nr. 29-31, Sector 5, Bucuresti |
||
| 52. |
Scoala Gimnaziala Nr. 168 - Bucuresti
0314326090 Str. Alizeului, Nr. 9, Sector 6, Bucuresti |
||
| 53. |
Scoala Gimnaziala Nr. 280 - Bucuresti
0214234068 Str. Sergent Gheorghe Donici, Nr. 4A, Sector 5 |
||
| 54. |
Scoala Gimnaziala Grigore Tocilescu - Bucuresti
0214231140 Str. Grigore Tocilescu, Nr. 20, sector 5 |
||
| 55. |
ForEvEr - After school, Bucuresti
0733543937 Strada Drumul Valea Larga, nr. 24A, sector 6 |
||
| 56. |
Santimbreanu Mircea, Scoala Gimnaziala Nr. 139 - Bucuresti
0214206795 Sos. Alexandriei, Nr. 21, Sector 5, Bucuresti |
||
| 57. |
Dimitrie Bolintineanu, Liceu Teoretic - Bucuresti
0214234060 Calea Rahovei, Nr. 315, Sector 5, Bucuresti |
||
| 58. |
Scoala Gimnaziala Nr. 131 - Bucuresti
0214203905 Str. Gutuilor, Nr. 1, Sector 5, Bucuresti |
||
| 59. |
Doamna Chiajna, Liceul Tehnologic - Rosu
0730614950; 0214360404 Str. 1 Decembrie 1918, Nr. 90, Rosu, judetul Ilfov |
||
| 60. |
Alexandra Kids, Gradinita, After School - Bucuresti
0788461573; 0214206927 Calea Rahovei, Nr. 266-268, Sector 5, Bucuresti |
||
| 61. |
Colegiul Tehnic Dinicu Golescu - Bucuresti
0216370484 Calea Giulesti, Nr. 10, Sector 1 |
||
| 62. |
Uruguay, Scoala Gimnaziala - Bucuresti
0216370361 Str. Virgiliu, Nr. 40, Sector 1, Bucuresti |
||
| 63. |
Carol I, Colegiu Tehnic - Bucuresti
0212202750 Str. Porumbacu, Nr. 52, Sector 6, Bucuresti |
||
| 64. |
Phoenix, Liceu Teoretic - Bucuresti
0214341364; 0770911516 Virgiliu, Nr. 40, Sector 1, Bucuresti |
||
| 65. |
Fridolin, scoala primara si gimnaziala germana - Bucuresti
0723584872 (Adina Stoenescu); 0722502522 (Christian Comsa) Fagaras, Nr. 9-13, Sector 1, Bucuresti |
||
| 66. |
Scoala Gimnaziala Ion I. C. Bratianu - Bucuresti
0214233390 Str. Amurgului, Nr. 35, Sector 5 |
||
| 67. |
Scoala Gimnaziala Nr. 128 - Bucuresti
0214102219 Str. Ion Creanga, Nr. 6, Sector 5, Bucuresti |
||
| 68. |
Marin Preda, Liceu teoretic - Bucuresti
0212202344 Str. Rusetu, Nr. 17, Sector 6, Bucuresti |
||
| 69. |
Scoala Gimnaziala Luceafarul - Bucuresti
0214230480 Str. Doina, Nr. 1, sector 5 |
||
| 70. |
Geo Bogza, Scoala Gimnaziala Nr. 170 - Bucuresti
0212223072 Str. Barbu Lautaru, Nr. 4, Sector 1, Bucuresti |
||
| 71. |
Petru Poni, Liceul Tehnologic - Bucuresti
0213199316 Bd. Preciziei, Nr. 18, Sector 6, Bucuresti |
||
| 72. |
Miguel de Cervantes, Liceul Bilingv - Bucuresti
0213149311 Calea Plevnei, Nr. 38-40, Sector 1, Bucuresti |
||
| 73. |
Scoala Gimnaziala Nr. 1 - Sfintii Voievozi
0213127572; 0213164206; 0213179916 Str. Atelierului, Nr. 25, Sector 1, Bucuresti |
||
| 74. |
Maryland, Scoala Primara - Drumul Taberei, Bucuresti
0722418104 (Cristina Ignat Varlam); 0722257343 (Claudiu Ignat Varlam) Drumul Ghindarilor, Nr.150-154, Sector 5, Bucuresti |
||
| 75. |
Scoala Gimnaziala Nr.163 - Bucuresti
0212201018 Calea Giulesti, Nr. 54, Sector 6, Bucuresti |
||
| 76. |
Colegiul Tehnic de Industrie Alimentara Dumitru Motoc - Bucuresti
0215552876 Str. Spatarul Preda, Nr. 16, sector 5 |
||
| 77. |
Iosif Sava, Scoala Gimnaziala de Arte - Bucuresti
0212312470 Str. Constantin Disescu, Nr. 37, Sector 1, Bucuresti |
||
| 78. |
Scoala Gimnaziala Nr. 127 - Bucuresti
0214231092 Str. Muntii Carpati, nr. 68, sector 5 |
||
| 79. |
Petre Ispirescu - Scoala Gimnaziala Nr. 171 - Bucuresti
0212241163 Str. Vasile Gherghel, Nr. 2, Sector 1, Bucuresti |
||
| 80. |
Ion Neculce, Colegiul National Bucuresti
0212224145; 0212224179 Str. Ion Neculce, Nr. 2, Sector 1, Bucuresti |
||
| 81. |
Liceul Teoretic National
0720000171 Str. Buzesti, Nr. 14-18; Sector 1, Bucuresti |
||
| 82. |
Viilor, Colegiul Economic - Bucuresti
0213160973; 0213160966 Sos. Viilor, Nr. 38, Sector 5, Bucuresti |
||
| 83. |
Nicolae Titulescu, Scoala Gimnaziala - Bucuresti
0212236393 Sos. Nicolae Titulescu, nr. 50-52, Sector 1, Bucuresti |
||
| 84. |
I.N.Socolescu, Colegiul Tehnic de Arhitectura si Lucrari Publice - Bucuresti
0213108958 Occidentului, Nr. 12, Sector 1, Bucuresti |
||
| 85. |
Gheorghe Lazar, Colegiu National - Bucuresti
0213134756 Bd. Regina Elisabeta, Nr. 48, Sector 5, Bucuresti |
||
| 86. |
Eugen Barbu, Scoala Gimnaziala Nr. 173 - Bucuresti
0212240937 Str. Ivan Petrovici Pavlov, Nr. 2-4, Sector 1, Bucuresti |
||
| 87. |
Scoala Gimnaziala Nr. 125 - Bucuresti
0217765685 Sos. Bucuresti-Magurele, Nr. 45, sector 5 |
||
| 88. |
Scoala nr. 147 Petrache Poenaru - Bucuresti
0214233987; 0214233991 Str. Bacau, Nr. 1, sector 5 |
||
| 89. |
Institutul de matematica Simion Stoilow
0213196506; 0213117780; Fax: 0213196505 Calea Grivitei, Nr. 21, Sector 1, Bucuresti |
||
| 90. |
George Calinescu, Scoala Gimnaziala 148 - Bucuresti
0214232889 Str. Bachus, Nr. 42, Sector 5, Bucuresti |
||
| 91. |
Vasile Alecsandri, Scoala Gimnaziala (fosta Nr. 118) - Bucuresti
0213138287 Str. Stirbei Voda, Nr. 32-34, Sector 1, Bucuresti |
||
| 92. |
George Enescu, Colegiu National de Muzica - Bucuresti
0760665312; 0213108871 Str. General Gheorghe Manu, Nr. 30, Sector 1, Bucuresti |
||
| 93. |
Sf. Sava, Colegiul National - Bucuresti
0213149294; 0213126821 Str. G-ral Berthelot, Nr. 23, Sector 1, Bucuresti |
||
| 94. |
Sfantul Nicolae, Scoala Gimnaziala Nr. 175 - Bucuresti
0212241846 Str. Lainici, Nr. 4-8, Sector 1, Bucuresti |
||
| 95. |
Scoala Gimnaziala Nr. 162
0212205484 Str. Copsa Mica, Nr. 1A, Sector 1, Bucuresti |
||
| 96. |
FEG, Scoala Postliceala in domeniului medical - Bucuresti
0213111054; 0314050362; 0788424314 Walter Maracineanu, Nr. 1-3, Intrarea 2, Etaj. 2,, Bucuresti |
||
| 97. |
Colegiul Tehnic Mircea cel Batran - Bucuresti
0212242376 Str. Feroviarilor, Nr. 37, Sector 1 |
||
| 98. |
Colegiul Tehnic Mecanic Grivita - Bucuresti
0212240770 Calea Grivitei, Nr. 363, Sector 1, Bucuresti |
||
| 99. |
Floria Capsali, Liceul de Coregrafie - Bucuresti
0213363792 Str. Capitan Preotescu, Nr. 9, Sector 4, Bucuresti |
||
| 100. |
Colegiul National de Arte Dinu Lipatti - Bucuresti
0213363588 Str. Principatele Unite, Nr. 63, Sector 4, Bucuresti |
||
| 101. |
Tudor Vianu, Colegiul National de Informatica - Bucuresti
0212226670 Str. Arh. Ion Mincu, Nr. 10, sector 1, Bucuresti |
||
| 102. |
Little Genius - Scoala primara Bucuresti
0724245249 Str. Carol Knappe, Nr. 95, sector 1 |
||
| 103. |
Heliade Radulescu, Scoala Gimnaziala Nr. 11 - Bucuresti
0213163633 Sos. Kiseleff, nr. 5, sector 1, Bucuresti |
||
| 104. |
Scoala Gimnaziala nr. 5 - Bucuresti
0213169918 Calea Victoriei, Nr. 114, Sector 1, Bucuresti |
||
| 105. |
EFI Bucarest - Scoala Franceza Internationala din Bucuresti
0749098867 Bulevardul Dacia, Nr. 12, Sector 1 |
||
| 106. |
AWEsome Primary School - Scoala clasele primare Bucuresti
0750460737 Str. Ienachita Vacarescu, nr. 22B, sector 4 |
||
| 107. |
Nicolae Iorga, Liceu teoretic - Bucuresti
0212242026 Bd. Ion Mihalache, Nr. 126, Sector 1, Bucuresti |
||
| vezi mai multe | |||
| 1. |
La Micutu - Fast Food, Bucuresti
0765099359 Bd Timisoara, Nr 18, sector 6 |
||
| 2. |
Capri Pizza, Pizzerie si catering - Bucuresti
0729442530; 0214442101 B-dul. Timisoara, Nr. 60C, Sector 6, Bucuresti |
||
| 3. |
Dream Pizza - Restaurant Bucuresti
0785070079 Drumul Taberei, Nr. 28, sector 6, |
||
| 4. |
Amarillo, Restaurant - Bucuresti
0722215615; 0722244599 Drumul Taberei, Nr. 44A, Sector 6, Bucuresti |
||
| 5. |
Trattoria Roma - Restaurant Bucuresti
0765723733; 0799772233 Str. Drumul Taberei, Nr. 26, Sector 6 |
||
| 6. |
Speed Pizza - Bucuresti
0219001 Iuliu Maniu, Nr.19, Sector 6, Bucuresti |
||
| 7. |
Ai Sapori - Restaurant cu specific italian Bucuresti
0372713635 Bd Timisoara, Nr. 21, sector 6, Bucuresti |
||
| 8. |
La Collina - Restaurant si pizzerie, Bucuresti
0720265462; 0761806890; 0722229700 Drumul Timonierului, nr. 26, sector 6 |
||
| 9. |
Mr Laziz Fast Food & Grill - Mancare libaneza
0720451176 Drumul Timonierului, nr. 3-5 sector 6 |
||
| 10. |
AS Garden - Restaurant Bar & Grill, Bucuresti
0736735244; 0731639017 Strada Timonierului, Nr. 3-5, sector 6 |
||
| 11. |
La Saveur - Brutarie artizanala, patiserie, cofetarie Bucuresti
0770733292; 0722624525 Drumul Taberei, Nr 68, sector 6 |
||
| 12. |
Hanul Drumetului, Restaurant - Bucuresti
0214133430; 0722555083 Bd. 1 Mai(Compozitorilor), Nr. 28, Sector 6, Bucuresti |
||
| 13. |
Casa Nasului - Restaurant Bucuresti
0727825165 Strada Cetatuia, Nr. 12, sector 6 |
||
| 14. |
Nedelya - Cofetarie Bucuresti
0771420388 Strada Brasov, Nr. 25, sector 6, Centrul Comercial Drumul Taberelor |
||
| 15. |
La Felinare - Restaurant cu specific international, Bucuresti
0751028811 Strada Brasov, Nr. 25L, sector 6 |
||
| 16. |
Candy bar by Kitty, Cofetarie - Bucuresti
0766628112 (Letan Elena) Iuliu Maniu, Nr.61, Sector 6, Bucuresti |
||
| 17. |
La Placinte - Restaurant cu specific romanesc, Bucuresti
0756207005 Bd. Vasile Milea, 4F (Afi Park 2) |
||
| 18. |
Bulevard - Restaurant, Bucuresti
0728538273 Bulevardul Ghencea, nr.122, Bucuresti, Sectorul 6 |
||
| 19. |
Almondo Pizza - Pizzerie, Bucuresti
0726000222/ 0767227722 Str. Murguta, nr. 27, sector 6 |
||
| 20. |
Sweet Chocolate - Cofetarie, Bucuresti
0733944694 Bd. Iuliu Maniu, Nr.65, sector 6 |
||
| 21. |
Cofetaria Ioana - Bucuresti
0217265762 Strada Vladeasa, Nr. 2, sector 6 |
||
| 22. |
Fresh Food - Restaurant fast-food, Bucuresti
0761383536 Bulevardul Ghencea, nr. 79 (in incinta Complex Tamilia), sector 6 |
||
| 23. |
Aniela - Cofetarie, Bucuresti
0760237463 Bd. Uverturi, Nr.83, sector 6 |
||
| 24. |
Crosto Pizza - Pizzerie, Bucuresti
0786200100; 0723700300 Strada Condorului, Nr 3, Sector 5 |
||
| 25. |
Pizza KA - Bucuresti
0219894 B-dul Uverturii, Nr. 98, Sector 6 |
||
| 26. |
Cofetaria Elan - Bucuresti
0214343438 Bulevardul Iuliu Maniu, Nr. 73, sector 6 |
||
| 27. |
Kabo - Restaurant Bucuresti
0769276582 Strada Moinesti, Nr. 49, sector 6 |
||
| 28. |
Timeout Cafe - Bucuresti
0763700031 Strada Reveriei, nr. 11, Sector 6 |
||
| 29. |
Fast Food Selfie - Bucuresti
0723640514; 0766356486 Strada Moinesti, Nr. 75, sector 6 |
||
| 30. |
Alexia Garden - Restaurant Bucuresti
0374015050; Bulevardul Timisoara, Nr 58G, sector 6 |
||
| 31. |
Golden Blitz, Restaurant - Bucuresti
0214105100 Razoare , Nr. 32, Sector 6 , Bucuresti |
||
| 32. |
Golden Blitz, Restaurant - Bucuresti
0214105100 Razoare , Nr. 32, Sector 6 , Bucuresti |
||
| 33. |
Weiss Beer Garden - Terasa, Bucuresti
0733582852 Bulevardul Uverturii, nr. 132, sector 6 |
||
| 34. |
Pizzeria Alessandro - Bucuresti
0721886488; 0721887488 Drumul Sarii, Nr.150, sector 6 |
||
| 35. |
IDM Club Sportiv - Bucuresti
0213161052; 0722454273 Splaiul Independentei, Nr. 319 B, (Vizavi de campusul studentesc Regie) Sector 6, Bucuresti |
||
| 36. |
Cesme - Restaurant cu specific turcesc, Bucuresti
0721163176 Str. Calea 13 Septembrie, Nr 272, sector 5 |
||
| 37. |
Naan Project - Restaurant, Bucuresti
0730707119 Strada Progresului, Nr. 1-3 (Razoare), sector 5 |
||
| 38. |
Andros - Cofetarie, Bucuresti
0748888847 Str. Antiaeriana, nr. 5, sector 5, |
||
| 39. |
Elena - Restaurant cu specific romanesc, cu terasa, organizare evenimente, Bucuresti
0747277232 Calea 13 Septembrie, Nr. 289, Sector 5, Bucuresti |
||
| 40. |
Shorley Restaurant - Bucuresti
0765377308; 0724710385; 0213124312 Econom Cezarescu, Nr. 50, Sector 6 , Bucuresti |
||
| 41. |
Pui de Urs, Restaurant - Bucuresti
0213166289; 0724622226; 0765166266 Econom Cezarescu, Nr. 42 (Grozavesti), Sector 6 , Bucuresti |
||
| 42. |
Quantic Pub - Bucuresti
0314321742 Soseaua Grozavesti, Nr. 82, sector 6 |
||
| 43. |
PASSION CLUB
Tel. 021.444.36.67; 021.444.36.68; 0743.048.701; Fax 021.444.36.67 Str. Valea Oltului, nr. 117A, sector 6, |
||
| 44. |
Excellence - Restaurant Bucuresti
0723888822 Strada Petre Ispirescu, Nr. 110-112, sector 5 |
||
| 45. |
Urban Vibe Roastery - Cafenea, Bucuresti
0768082833 Valea Oltului, Nr 131-137, sector 6 |
||
| 46. |
Primo - Restaurant fast food, Bucuresti
Bulevardul Iului Maniu, Nr. 184, sector 6 |
||
| 47. |
Verbun Pizza & Shaorma - Restaurant fast-food, Bucuresti
0785161693 Valea Oltului, Nr. 131-137, sector 6 |
||
| 48. |
Passion Club, Restaurant - Bucuresti
0214443668; 0745111107 Valea Oltului, Nr. 117A,Sector 6, Bucuresti |
||
| 49. |
Passion Club, Restaurant - Bucuresti
0214443668; 0745111107 Valea Oltului, Nr. 117A, Sector 6, Bucuresti |
||
| 50. |
Fortuna Pizza - Bucuresti
0764725328; 0725416126 Apusului, Nr. 82, Sector 6, Bucuresti |
||
| 51. |
Pizza Volante - Bucuresti
0738592129; 0765401872 Strada Cernisoara, Nr. 151, sector 6 |
||
| 52. |
Casa Banil Restaurant - Bucuresti
0214105716; 0723391161; 0724159949 Petre Ispirescu , Nr. 95, Sector 5, Bucuresti |
||
| 53. |
Restaurant Passion Club
0214443668; 0745111107 Str. Valea Oltului, nr. 117A, sector 6, |
||
| 54. |
Casa Roz, Restaurant - Bucuresti
0721542909; 0720624500; 0723504103 Apusului, Nr. 44, Sector 6, Bucuresti |
||
| 55. |
Casa Roz - Restaurant, Bucuresti
0721542909; 0720624500 Str. Apusului, nr 44, sector 6 |
||
| 56. |
Basilico - Restaurant Bucuresti
0770898782 Valea Oltului, Nr. 61, Sector 6 |
||
| 57. |
Colosal - Fast Food, Bucuresti
0737698255 Strada Mihail Sebastian, Nr. 133, sector 5 |
||
| 58. |
Pub 18 Restaurant - Bucuresti
0722441586 (Manager Pub Oana Valeanu) Splaiul Independentei, Nr. 290, bl. P18, parter, Sector 6, Bucuresti |
||
| 59. |
Piticot, Cofetarie Bucuresti
0214206670; 0726714865 Whatsapp Petre Ispirescu, Nr. 77, Sector 5, Bucuresti |
||
| 60. |
Yesterday, Hotel si Restaurant - Bucuresti
0213408585; 0737001008 Economu Cezarescu, Nr. 8, Sector 6, Bucuresti |
||
| 61. |
Cofetaria Maia Artizan Bakery - Bucuresti
0762298622 Str. Margeanului, Nr. 115, sector 5 |
||
| 62. |
Panorama Kebap - Restaurant fast food, Bucuresti
0766244009 Str Margeanului, Nr.115, sector 5 |
||
| 63. |
La Maria si Ion, Restaurant - Bucuresti
0762295737; 0753473781 Splaiul Independentei, Nr. 290, Complex Studentesc Regie, Sector 6, Bucuresti |
||
| 64. |
La Cave - Restaurant cu specific francez, Bucuresti
0746254444 Str. Margelelor, Nr. 139-143, sector 6 |
||
| 65. |
Mechano Pub - Bucuresti
0722990992 Splaiul Independentei, Nr. 290, sector 6 |
||
| 66. |
Trattoria 20 - Restaurant Bucuresti
0757534928; 0751267451 Splaiul Independentei, Nr. 290, Campus Regie, sector 6 |
||
| 67. |
Pub 18 Restaurant - Bucuresti
0722441586 Splaiul Independentei, Nr. 290, bl. P18, parter, sector 6 , Bucuresti |
||
| 68. |
Fendi Kebap - Restaurant fast-food, Bucuresti
0314051091 Str. Novaci, |
||
| 69. |
Casa Lazar - Restaurant Bucuresti
0764024444; 0738794310; 0735778229 Serg. Maj. Ion Nedeleanu, Nr. 8, sector 5 |
||
| 70. |
Royal Kebap - Restaurant fast-food, Bucuresti
0730242360 Strada Margeanului, Nr. 105 C, sector 4 |
||
| 71. |
Roxy Pub - Bucuresti
0742033944; 0723327117; 0785224508 Splaiul Independentei, Nr. 290, Complex Studentesc Regie, Bucuresti |
||
| 72. |
Cocosu Rosu - Restaurant cu specific romanesc Bucuresti
0747059315 Str. Margelelor, Nr. 61 ? 63, Sector 6 |
||
| 73. |
Terasa Oasis - Restaurant Bucuresti
0733638577 Mihail Sebastian, Nr.102. Sector 5, Bucuresti |
||
| 74. |
Delarte Pizza, Pasta & Grill - Bucuresti
0733352783; 0755487273; 0217802500 Corbita, Nr.3,Sector 5, Bucuresti |
||
| 75. |
Graffiti Urban Food, Bucuresti
0749433433; 0733695443; 0769180180 Str.Carol Davila, Nr. 56A, Sector 5, Bucuresti |
||
| 76. |
Galletto Ristorante, Restaurant italian, catering - Bucuresti
0212112276; 0770407519 Soseaua Orhideelor, Nr.1 (podul nou Basarab,langa cladirile de birouri The Bridge, Sector 6, Bucuresti |
||
| 77. |
14th Lane - Restaurant cu mancaruri fine, organizare evenimente, Bucuresti
0737776777 Sos. Orhideelor, Nr. 15D, sector 6, Bucuresti |
||
| 78. |
Bike Boutique and More - Magazin, terasa, service, Bucuresti
0752405152 Strada Profesor Doctor Victor Babes, Nr. 2, sector 5 |
||
| 79. |
Derby Pub & Restaurant - Bucuresti
0214108545 Bd. Eroilor Sanitari , Nr. 49A,sector 5, Bucuresti |
||
| 80. |
Ceainaria Infinitea
0723175300 Str. Dr. Grigore Romniceanu, Nr.7, ap.2, sector 5 |
||
| 81. |
Casa Bia - Restaurant Bucuresti
0761241623 Str. Sebastian Mihail, Nr. 19, sector 5 |
||
| 82. |
Lucky Point Pub
0742181263 Splaiul Independentei, 204,sect.6, Bucuresti |
||
| 83. |
Burgeria Cotroceni - Restaurant fast-food, Bucuresti
0314214777 Soseaua Cotroceni, Nr. 9, sector 6 |
||
| 84. |
Kvala - Restaurant grecesc, Bucuresti
0726731663 str Louis Pasteur, nr 63, sector 5 |
||
| 85. |
Turbotequila, Restaurant - Bucuresti
0214344007; 0214301312 Bd. Iuliu Maniu, Nr. 220C, Sector 6, Bucuresti |
||
| 86. |
La petite bouffe - Cafenea, Bucuresti
0733669344 Strada Doctor Louis Pasteur, nr 38, sector 5 |
||
| 87. |
Jazz Book - Club de jazz si blues, Bucuresti
0752206746 Doctor Carol Davila, Nr. 1, Cotroceni, sector 5 |
||
| 88. |
Pizza Real - Delivery Bucuresti
0760170649; 0725470701 Calea Crangasi, Nr. 90, Sector 6 |
||
| 89. |
Cuibul Randunelelor - Restaurant Bucuresti
0214244218 Strada Focsani, Nr. 38, sector 5 |
||
| 90. |
Fresh Chicken - Restaurant cu preparate la gratar
0724392216 Str Mihail Sebastian, nr 48, sector 5 |
||
| 91. |
La Nasu, Restaurant - Bucuresti
0212214285; 0722257923; 0728984754 Calea Crangasi, Nr. 29, Sector 6, Bucuresti |
||
| 92. |
Restaurant Interbelic - Bucuresti
0733413133 Str Petre Ispirescu, Nr. 6A, sector 5 |
||
| 93. |
Rai de Dulce - Laborator de cofetarie si patiserie Bucuresti
0735632709; 0731885888 Calea Rahovei, Nr. 374, sector 5 |
||
| 94. |
One Minute Pizza
0732841587 Sos Alexandriei, Nr. 108, Bragadiru, judetul Ilfov |
||
| 95. |
Casa Antonie, Cofetarie - Bucuresti
0212202530; 0740150736; 0212202510 Mehadia, Nr. 39A, Sector 6, Bucuresti |
||
| 96. |
Britannia - Restaurant, Bucuresti
0725998899 Strada Petre Ispirescu, Numarul 9 b, Sector 5 |
||
| 97. |
Fast Food Plevnei - Restaurant Fast Food Bucuresti
0761046444 Calea Plevnei, Nr. 230, sector 1 |
||
| 98. |
Said - Fast Food, Bucuresti
0772229461; 0773755896 Calea Rahovei, Nr. 390, sector 5 |
||
| 99. |
Yasmin Bakery - Cofetarie, Bucuresti
0721076376; 0760272225 Calea Rahovei, nr.322 sector 5 |
||
| 100. |
Citylicious - Restaurant Bucuresti
0771707709 Bld Tudor Vladimirescu, Nr. 29, sector 5 |
||
| 101. |
La Colt - Bar & Grill, Bucuresti
0371179862 Strada Telita, Nr 1, sector 5 |
||
| 102. |
Mezze, Restaurant libanez - Bucuresti
0213116633; 0720044469 Mircea Vulcanescu, Nr.153 B,Sector 1 , Bucuresti |
||
| 103. |
Bocca Lupo - Restaurant cu specific italian, Bucuresti
0314050050 Strada Dr. Lister, nr. 1, sector 5 |
||
| 104. |
Dominum - Bar & Grill, Bucuresti
0761551233 Strada Neptun, Nr. 4, Sector 5 |
||
| 105. |
Kungfu Pizza - Bucuresti
0774428631; 0216656866; 0314251995 Ceahlau, Nr.17 B, Sector 6, Bucuresti |
||
| 106. |
Kicen - Ciorbe de casa, Bucuresti
0751012221 str. Dr. Staicovici, nr. 43, sector 5 |
||
| 107. |
Triana - Cofetarie, Bucuresti
0740302404 Soseaua Orhideelor, Nr. 46, sector 1 |
||
| 108. |
Parliament, Restaurant - Bucuresti
0214119990; 0214119991; 0721332397 Izvor , Nr. 106, Sector 5 , Bucuresti |
||
| 109. |
Parliament, Restaurant - Bucuresti
0214119990; 0214119991; 0721332397 Str. Izvor, Nr. 106, Sector 5 , Bucuresti |
||
| 110. |
Vulturul, Restaurant - Bucuresti
0722335116; 0213514149 Intrarea Blejoi, (B-dul Iuliu Maniu 408-410), Nr. 2, Sector 6, Bucuresti |
||
| 111. |
Vulturul, Restaurant - Bucuresti
0722335116; 0213514149 Intrarea Blejoi, Nr. 2, (B-dul Iuliu Maniu 408-410), Sector 6, Bucuresti |
||
| 112. |
Old School, Restaurant - Bucuresti
0744105445; 0745110362 Calea Plevnei, Nr. 61, Sector 6, Bucuresti |
||
| 113. |
Potcoava 9 Mai, Restaurant - Bucuresti
0212202208; 0721065347 Str. 9 Mai , Nr. 51, Sector 6, Bucuresti |
||
| 114. |
Ana Pan Cofetarie - Bucuresti
0216373536; 0730262726; 0212332241 Stirbei Voda, Nr. 166,Sector 1, Bucuresti |
||
| 115. |
Lara Sweets - Cofetarie Bucuresti
0374491733 Soseaua Alexandria, Nr. 197, Sectorul 5 |
||
| 116. |
Vivono Pizza - Pizzerie, Bucuresti
0784000212 Strada Telita, Nr.54, Sector 5 |
||
| 117. |
So! Coffee, Cafenea - Bucuresti
0372285718; 0314078250 Piata Garii de Nord, Nr.1-5 (In fata peroanelor 4-5), Sector 1, Bucuresti |
||
| 118. |
Joy Pizza - Ilfov
0733360020 Str. 1 Decembrie, Nr 141 A, Chiajna, judetul Ilfov |
||
| 119. |
Cofetaria Zora - Bucuresti
0771119563 Strada Uranus, Nr. 100, Sector 5 |
||
| 120. |
Casa Adam Events, Restaurant Evenimente - Bucuresti
0785112233; 0765801348 Sos. Alexandriei , Nr. 201F, Sector 5, Bucuresti |
||
| 121. |
Ivan Pescar & Scrumbia Bar - Restaurant pescaresc, Bucuresti
0729384828 Str. Uranus, nr 150, cladirea The Ark, parter, sector 5 |
||
| 122. |
Castronul Gustos - Restaurant, Bucuresti
0749011588 Str. Nasaud, nr. 97, Sector 5 |
||
| 123. |
Impinge Tava - Ilfov
0722911963 Strada 1 Decembrie 1918, Nr.165, Rosu, judetul Ilfov |
||
| 124. |
S\'Agapo Gyros - Restaurant fast-food, Bucuresti
0725532142; 0721533358 StradaTeius, numarul 84, sector 5 |
||
| 125. |
Dum Dum Food - Restaurant fast food, Bucuresti
0735 270 402 Calea Giulesti, Nr. 123, sector 6 |
||
| 126. |
Hong Kong - Restaurant chinezesc, Ilfov
0213107134; 0727834877 Calea Grivitei, nr. 81 (langa Biserica Sf. Voievozi), sector 1, , judetul Ilfov |
||
| 127. |
Grivita - Pub&Grill, Bucuresti
0724748482 Calea Grivita, Nr. 130 (Parter Eurohotels), |
||
| 128. |
Krishna Caffe - Cafenea Bucuresti
0729745988;0740133254 Bd. Mihail Kogalniceanu, Nr. 17, sector 5, |
||
| 129. |
Cofetaria Dinalex - Bucuresti
0214237928; 0785137937 Calea Ferentari, Nr. 162, sector 5 |
||
| 130. |
Panoramic Beer & Grill - Ilfov
0720327223 Str. Apeductului, Nr. 14, sat Rosu, comuna Chiajna, judetul Ilfov |
||
| 131. |
La Matache Restaurant (comenzi online si livrari la domiciliu)
0213107327; 0213107337; 0213118888 P-ta. Dr. Haralambie Botescu, Nr. 2, Sector 1, Bucuresti |
||
| 132. |
Suzana Ribs & Wings - Restaurant cu specialitati texane, Bucuresti
0785444466 Calea Rahovei, Nr. 147-153, Sector 5, Palatul Bragadiru |
||
| 133. |
Baroque Events & Garden - Restaurant Bucuresti
0726350802 Calea Rahovei, Nr. 145, Sector 5 |
||
| 134. |
Flair Angel - Bar specializat in cocktailuri, Bucuresti
0769771991 Calea Rahovei, Nr. 147-153, sector 5 |
||
| 135. |
The Owl Cocktail House - Bar specializat in cocktailuri, Bucuresti
0743260923 str. Stirbei Voda, Nr. 104-106, sector 1 |
||
| 136. |
SupaDupa - Restaurant cu supe si ciorbe, Bucuresti
0739344281 Strada Popa Tatu, Nr. 94, sector 1 |
||
| 137. |
Costelaria, Restaurant - Bucuresti
0314055095 Calea Rahovei, Nr. 147-150 , Sector 5, Bucuresti |
||
| 138. |
Baffi Cafe - Pizzerie, Ilfov
0756021501; 0756021510 Str. Safirului, Nr. 69R, Bragadiru, judetul Ilfov |
||
| 139. |
The Mark - Restaurant pub Bucuresti
0758505500 Calea Grivitei, Nr. 84-98, sector 1 |
||
| 140. |
Mahala - Restaurant Bucuresti
0729003002 Calea Rahovei, Nr. 147- 153, sector 5 |
||
| 141. |
Capri, Restaurant - Bucuresti
0769812778; 022797639; 0730094662 Iuliu Maniu, Nr.484, (inaintea benzinariei Petrom - Metro Militari), Bucuresti |
||
| 142. |
Turkish Clasis - Restaurant, Bucuresti
0721503011 Sos Viilor, nr.27, sector 5 |
||
| 143. |
Opa Opa Greek Fast Food - Bucuresti
0746072527 Bd. Preciziei, Nr. 24, Sector 6 |
||
| 144. |
Tulin, Restaurant libanez - Bucuresti
0213144001; 0762212675 Pictor Constantin Stahi, Nr. 2, Sector 1, Bucuresti |
||
| 145. |
Fabio Pizza - Bucuresti
0372188330 Turda, Nr. 117, Sector 1, Bucuresti |
||
| 146. |
Bistro raw vegan, Restaurant - Bucuresti
0726605501 Transilvaniei, Nr. 11, Sector 1, Bucuresti |
||
| 147. |
Edo Sushi - Restaurant cu specific japonez, Bucuresti
0735111095 Stirbei Voda, Nr 84A, sector 1 |
||
| 148. |
Cuptorul Dulce - Cofetarie, Ilfov
0752086166 Prelungirea Ghencea, nr.262, Bragadiru, judetul Ilfov |
||
| 149. |
Black Habit - Cafenea
0770357382 Calea Grivitei, Nr. 77, sector 1 |
||
| 150. |
Bellini Pizza - Bucuresti
0314278776 General Henri Matias Berthelot, Nr. 44,Sector 1, Bucuresti |
||
| 151. |
Bellini Garden - Restaurant cu specific italian, Bucuresti
0722100111; 0314278776 str. General Henri Mathias Berthelot, nr. 44, sector 1 |
||
| 152. |
Arome - Restaurant vegetarian/vegan, Bucuresti
0749109639 Luigi Cazzavillan, Nr. 25, sector 1 |
||
| 153. |
Monte Carlo Cismigiu, Restaurant - Bucuresti
0213131344 Parc Cismigiu, Sector 1, Bucuresti |
||
| 154. |
Monte Carlo Cismigiu, Restaurant - Bucuresti
0213131344 Parcul Cismigiu, Parcul Cismigiu, Sector 1 , Bucuresti |
||
| 155. |
J\'ai Bistrot - Gastropub, Bucuresti
0790229922 Calea Grivitei, nr. 55, sector 1 |
||
| 156. |
Old Kitchen - Restaurant Bucuresti
0732773537 Str. Sfintii Voievozi, Nr. 13, Sector 1 |
||
| 157. |
Agora Restaurant - Bucuresti
0212242482; 0722304431 Str. Tintasului , Nr. 27, Sector 1, Bucuresti |
||
| 158. |
PengYou - Restaurant specific chinezesc Bucuresti
0787748272 Str. Occidenului, Nr. 11, Sector 1 |
||
| 159. |
Militari Residence Ballroom - Bucuresti
0723333508; 0760150392 Rezervelor, Nr. 70, Sector 6, Chiajna, judetul Ilfov |
||
| 160. |
The Soup Carousel - Restaurant cu supe si ciorbe, Bucuresti
0725356907 Sos. Nicolae Titulescu, Nr. 12, sector 1 |
||
| 161. |
Story Pizza - Pizzerie, Bucuresti
0721985293; 0212201004; 0748581523 Calea Giulesti, nr 202, sector 6 |
||
| 162. |
Angeline Cake Boutique - Cofetarie, Bucuresti
0753652144 Str. Doctor Iacob Felix, Nr. 59, Sector 1 |
||
| 163. |
La Cristi - Fast Food si catering, Bucuresti
0729266850 Strada Frosa Sarandy, Nr. 17, Sector 1 |
||
| 164. |
ChefBox - Restaurant, Bucuresti
0728800528 Buzesti, Nr. 57-59, sector 1 |
||
| 165. |
The Place Pub - Pub, Bucuresti
0743951281 Mr. Alexandru Campeanu, nr.36, sector 1 |
||
| 166. |
Rocca by The Jar - Gastropub Bucuresti
0770857841 Str. Pictor Theodor Aman, Nr. 36, sector 1 |
||
| 167. |
Haute Pepper - Restaurant cu specific international, Bucuresti
0726284280 Bd. Unirii, nr 2, sector 4 |
||
| 168. |
KALI - Restaurant cu bufet, Bucuresti
0725988889 Strada Buzesti, Nr. 71, Sector 1 |
||
| 169. |
Fayn Urban Eatery - Restaurant, Bucuresti
0723257692 Strada Buzesti, nr. 71, sector 1 |
||
| 170. |
Coppa - Bar cu vinuri si cafea, Bucuresti
0741594545; 0756080004 Bd. Nicolae Titulescu, nr. 3, sector 1 |
||
| 171. |
Mamma Mia, Pizzerie - Bucuresti
0784614600 Calea Giulesti, Nr.230, Sector 6, Bucuresti |
||
| 172. |
Ev Don Fusion - Restaurant Ilfov
0775500777 Strada Rezervelor 63, Chiajna, Dudu, judetul Ilfov |
||
| 173. |
Mai Mult Decat Un Dulce - Cofetarie, Bucuresti
0785688229 Str. Rezervelor, Nr.5nr.56 , bl.4, parter,sector 6, |
||
| 174. |
Red Wok - Restaurant cu specific chinezesc, Bucuresti
0786644125 Prelungirea Ghencea, nr. 45, sector 6 |
||
| 175. |
Bohemia Tea House, Ceainarie - Bucuresti
0727333631 Poiana Narciselor, Nr. 1 (vizavi de Conservator), Sector 1, Bucuresti |
||
| 176. |
Vecchia Napoli Pizzeria - Bucuresti
0723970317; 0212246629; 0754043666 Calea Grivitei, Nr. 371, Sector 1, Bucuresti |
||
| 177. |
Gastronomika - Restaurant cu specific international, Bucuresti
0737940512 Str. Ion Neculce, Nr. 63, Sector 1 |
||
| 178. |
Ergo - Restaurant vegan, Bucuresti
0770747559 Bd. Unirii, Nr 5, sector 4 |
||
| 179. |
La Taifas, Bistro - Bucuresti
0723197156; 0212127788 Mihail Moxa, Nr. 12, Sector 1 , Bucuresti |
||
| 180. |
Il Cantuccio, Restaurant - Bucuresti
0722572957 (Sef unitate: Baieticu Ioana); 0735281669 (Sef unitate: Otvos Gabriela); 0724540839 (Manager: Florea Valentin) Fabrica de Chibrituri , Nr. 2, Rond Autogara Filaret, sector 4, Bucuresti |
||
| 181. |
Il Cantuccio, Restaurant - Bucuresti
0722572957 (Sef unitate: Baieticu Ioana); 0735281669 (Sef unitate: Otvos Gabriela); 0724540839 Manager: Florea Valentin) Fabrica de Chibrituri, Nr. 2, Rond Autogara Filaret, sector 4, Bucuresti |
||
| 182. |
Jaristea, Restaurant - Bucuresti
0721961936 ; 0775609233 ; 0770948868 George Georgescu, Nr. 50-52, Sector 4, Bucuresti |
||
| 183. |
Elisabeta, Restaurant - Bucuresti
0727703703; 0724323132 Bd. Regina Elisabeta, Nr. 45, Sector, Bucuresti |
||
| 184. |
La Ciurucuri - Restaurant cu specific international, Bucuresti
0752850850 Piata Valter Maracineanu, Nr 1-3, sector 1 |
||
| 185. |
Kunnai - Restaurant cu specific thailandez
0722687343; 0722687454 Strada Copilului, Nr. 6-12, sector 1 |
||
| 186. |
Barocco Bar - Bucuresti
0755028028; 0740114132 Domnita Anastasia, Nr.10 (In spatele McDonalds Regina Elsiabeta), Bucuresti |
||
| 187. |
Hanul Berarilor Interbelic, Restaurant - Bucuresti
0213368009; 0729400800 Poenaru Bordea , Nr. 2, Sector 5, Bucuresti |
||
| 188. |
Trattoria Roz Cafe - Restaurant Bucuresti
0774481284; 0726616358 Strada Rezervelor, Nr. 52 bis, sector 6 |
||
| 189. |
Energiea - Pub Bucuresti
0736374432 Str. Actor Ion Brezoianu, Nr. 4, Sector 5 |
||
| 190. |
Paine si Vin - Bar cu vinuri, Bucuresti
0755028448 Str. Actor Ion Brezoianu, Nr. 4, sector 5 |
||
| 191. |
Dines, Restaurant evenimente - Bucuresti
0213362474; 0723634741; 0727968325 (Predescu Constantin) Cutitul de Argint, Nr.12 (langa Arenele Romane) Sector 4, Bucuresti |
||
| 192. |
Pizza Hut - Bucuresti
0740121903 Bd. Regina Elisabeta, nr. 15-19, sector 3 , |
||
| 193. |
Paninaro - Restaurant pentru mic dejun si brunch
0771783619 Strada Luterana, Nr 3, sector 1 |
||
| 194. |
Claus, Cofetarie Bucuresti
0212220218; 0721264900 Bd. Banu Manta, Nr. 21A, Sector 1, Bucuresti |
||
| 195. |
Origo Coffee Shop - Bucuresti
0757086689 Lipscani, Nr. 9,Sector 3, Bucuresti |
||
| 196. |
Fabrica, Club,Pub, Tersa - Bucuresti
0753227422; 0753315563; 0749116508 11 iunie, Nr,50, Sector 5, Bucuresti |
||
| 197. |
Club B52 - Bucuresti
0753315563 11 Iunie, N. 50, Sector 5, Bucuresti |
||
| 198. |
Refill - Bistro cu specific international, Bucuresti
0786372856 Bulevardul Mihalache, Nr. 12, sector 1 |
||
| 199. |
La Taifas, Restaurant - Bucuresti
0212127788; 0723197156 Gheorghe Manu, Nr. 16, sector 1 , Bucuresti |
||
| 200. |
Torturi de vis - Cofetarie Bucuresti
0744364900 Str. Rezervelor, Nr 44A, Chiajna, judetul Ilfov |
||
| 201. |
Rabah - Fast food, Bucuresti
0771225412 Strada Tineretului, nr 29, bloc 6 sc A, comuna Chiajna |
||
| 202. |
Coclinta Brasserie- Restaurant cu specific romanesc, Bucuresti
0770238774 Calea Victoriei, Nr. 153, sector 1 |
||
| 203. |
Amnezia Caffe - Bistrou romanesc Bucuresti
0770917737; 0724140931 Str. Sf. Apostoli, Nr. 21, sector 4, |
||
| 204. |
Don Daniel Pizza
0737444999; 0766771117; Tel/Fax: 0212225034 Bd. Ion Mihalache, Nr. 60, Sector 1, Bucuresti |
||
| 205. |
The Artist Restaurant - Bucuresti
0728318871 Calea Victoriei, Nr.147, sector 1 |
||
| 206. |
Fika18 - Croissanterie, Bucuresti
0770663982 Calea Victoriei, Nr. 101, sector 1 |
||
| 207. |
Pain Plaisir - Patiserie Bucuresti
0745645555 Strada Barbu Delavrancea, Nr. 1, sector 1 Pain Plaisir Kiseleff |
||
| 208. |
The Old Sibiu - Restaurant evenimente Bucuresti
0723602560; 0723637769; 0721172390 Str. Ion Otetelesanu,, Nr. 3A-3B, Sector 1 |
||
| 209. |
Saint Gelato - Gelaterie Bucuresti
0745205405 Bulevardul Regina Elisabeta, Nr. 26, Sector 3 |
||
| 210. |
Za Lokal - Restaurant pentru mic dejun si brunch, Bucuresti
0770557931 Calea Victoriei, Nr 214, sector 1 |
||
| 211. |
Coolinart - Gastropub Bucuresti
0772017955 Calea Victoriei, Nr. 142-148, sector 1 |
||
| 212. |
Seneca Anticafe - Cafenea, Bucuresti
0720331100 Strada Arhitect Ion Mincu, nr. 1, sector 1 |
||
| 213. |
Gusto e Passione - Gelateria Artigianale, Bucuresti
0755555453 Calea Victoriei, Nr. 87, sector 1 |
||
| 214. |
Bistro La Taifas, Restaurant - Bucuresti
0212127788; 0723197156 Gheorghe Manu, Nr. 16, Sector 1, Bucuresti |
||
| 215. |
Encore Club - Bar specializat in bere
0786247745 Nicolae Tonitza, nr. 13, sector 3 |
||
| 216. |
Velocita - Gelaterie, Bucuresti
0739889189 Calea Victoriei, Nr. 122, sector 1 |
||
| 217. |
Petritis Gyros- Restaurant fast-food, Ilfov
0754745168 Tineretului, Nr. 63 Rosu, Militari Residence, Comuna Chiajna, judetul Ilfov |
||
| 218. |
Anika - Restaurant cu specific romanesc Bucuresti
0726400148 Str. Pictor Nicolae Tonitza, Nr.10, sector 3 |
||
| 219. |
Bar A1 - Bucuresti
0770901409 Piata Amzei, Nr 1, sector 1 |
||
| 220. |
Linea - Closer To The Moon, Bucuresti
0757824298 Calea Victoriei, nr. 17, sector 3 |
||
| 221. |
Sweetology - Gelaterie, Bucuresti
0734444889 Calea Victoriei, Nr. 122, sector 1 |
||
| 222. |
Liana - Cofetarie, Ilfov
0770507598 Strada Tineretului, Nr 63, Comuna Chiajna, judetul Ilfov |
||
| 223. |
B3ton - RestoBar, Bucuresti
0217963684 Bulevardul Marasesti, Nr. 2B, sector 4 |
||
| 224. |
Grapes - Bar cu vinuri, Bucuresti
0770463287 Bdul. Marasesti, nr.2B, sector 4 |
||
| 225. |
Velluto - Gelaterie, Bucuresti
0728991969 Splaiul Independentei, Nr 2J, sector 3 |
||
| 226. |
Scovergaria Micai - Patiserie, cofetarie Bucuresti
0314253670 Calea Victoriei, Nr. 14 colt cu Lipscani 19, sector 3 |
||
| 227. |
Cercul Militar National, Restaurant - Bucuresti
0213143735; 0213149551; Fax: 0372874921 Constantin Mille, Nr.1-3, Sector 1, Bucuresti |
||
| 228. |
Murad - Cafe-Restaurant, Bucuresti
0725777000 Str. Panait Istrati, nr, 101, sector 1 |
||
| 229. |
Planet Trattoria - Restaurant, Bucuresti
0319462; 0767657065 Soseaua Salaj, Nr. 363, Sector 5, Confort Urban Residence, Bucuresti |
||
| 230. |
Piccolo Mondo, Restaurant - Bucuresti
0722205020; 0212225755 Clucerului, Nr. 9, Sector 1 , Bucuresti |
||
| 231. |
Primus Pub - Bucuresti
0732222666 George Enescu, Nr. 3, sector 1 |
||
| 232. |
Victoria, Cofetarie Bucuresti
0212242033 Bd. Ion Mihalache, Nr. 233, Sector 1, Bucuresti |
||
| 233. |
Piccolo Mondo, Restaurant - Bucuresti
0722205020; 0212225755 Clucerului , Nr. 9, Sector 1 , Bucuresti |
||
| 234. |
Caru\' cu Bere, Restaurant - Bucuresti
0213137560; 0726cubere; 0726282373 Stavropoleos , Nr. 3-5, Sector 3, Bucuresti |
||
| 235. |
Hygge - Restaurant Bucuresti
0771114875 Calea Victoriei, Nr. 21, sector 3 |
||
| 236. |
Athénée Palace Hilton,Cafenea,Baruri - Bucuresti
0213033777; 0213152121; Fax: 0213152121 Episcopiei, Nr. 1-3, Sector 1 , Bucuresti |
||
| 237. |
Terminus - Pub, Bucuresti
0730222555 Str. George Enescu, nr. 5, sector 1, |
||
| 238. |
Miss Ale - Espresso Bar, Bucuresti
0371394059 Calea Victoriei, Nr. 100, sector 1 |
||
| 239. |
City Grill Restaurant - Bucuresti
0722446766; 0724599886 Bulevardul Lascar Catargiu, Nr. 56, Sector 1, Bucuresti |
||
| 240. |
Sara Green - Restaurant vegan, Bucuresti
0774962246;0765191076 Bulevardul Lascar Catargiu, Nr 43, Sector 1 |
||
| 241. |
Trattoria Buongiorno - Restaurant cu specific italian, Bucuresti
0722446766 Bdul. Lascar Catargiu, Nr. 56, sector 1 |
||
| 242. |
Hugo Bar - Cafenea cu narghilele, Bucuresti
0732397953 Calea Victoriei, 16-18-20, sector 3 |
||
| 243. |
Capitol Hotel si Restaurant - Bucuresti
0213158030; 0317107007 Calea Victoriei , Nr. 29, Sector 1 , Bucuresti |
||
| 244. |
Il Peccato, Restaurant - Bucuresti
0213116767; 0765301300 Franceza, Nr. 30,Sector 3, Bucuresti |
||
| 245. |
Noa Restoclub - Restaurant Bucuresti
0799747557 Calea Victoriei, Nr 26 Sector 3 |
||
| 246. |
Saray - Restaurant cu specific turcesc, Bucuresti
0733135834 Lipscani, Nr. 21, sector 3 |
||
| 247. |
Bemolle Cafe - Bucuresti
0213118382; 0723188953 Calea Victoriei , Nr.16-18-20 (Pasaj Villacrosse), Sector 3, Bucuresti |
||
| 248. |
Di Vino Pizza - Bucuresti
0769316151; 0733832277 Prelungirea Ghencea, nr. 83C, sector 6 |
||
| 249. |
Pekin, Restaurant chinezesc - Bucuresti
0213103160; 0723233169; 0769414020 Calea Victoriei, Nr. 16-20, pasaj Villa Cross, Sector 3, Bucuresti |
||
| 250. |
Springtime, Restaurant - Bucuresti
0742224736; 0742224743; 0742224739 Piata Victoriei, Bl. A6 Sector 1, Bucuresti |
||
| 251. |
Valea Regilor - Cafenea, Bucuresti
0213112969 Calea Victoriei, 16-20, Centrul Vechi, sector 3 |
||
| 252. |
Capsa Cofetarie Bucuresti
0213134038; 0213135999 Calea Victoriei, Nr. 36, Sector 1, Bucuresti |
||
| 253. |
Casa Capsa, Restaurant - Bucuresti
0213134038; Fax: 0213135999 Calea Victoriei, Nr. 36, Sector 1, Bucuresti |
||
| 254. |
Ramada Majestic, Hotel si Restaurant - Bucuresti
0213102715 Calea Victoriei, Nr. 38-40, Sector 1 , Bucuresti |
||
| 255. |
Savart - Arta savorilor Gourmet, Bucuresti
0743575757 Str. George Enescu, Nr. 2-4, sector 1 |
||
| 256. |
WHYS - Bar, Bucuresti
0785059173 Pasajul Macca-Villacrosse, sector 3 |
||
| 257. |
Wine Ambassador - Bar de vinuri, Bucuresti
0733182037 Intrarea Biserica Alba, nr.1, sector 1 |
||
| 258. |
Sublimmme - Restaurant vegetarian/vegan, Bucuresti
0771135605 Splaiul Independentei, NR 2F, sector 3 |
||
| 259. |
Nan Jing, Restaurant chinezesc - Bucuresti
0213181285; 0726103407 G-ral Gheorghe Manu, Nr. 2-4 (Hotel Minerva), Sector 1, Bucuresti |
||
| 260. |
Colosseum, Restaurant - Bucuresti
0721243613; 0213131860; 0219689 Calea Victoriei , Nr. 48-50 (Pasajul Victoria), sector 1, Bucuresti |
||
| 261. |
Vilacrosse, Bistro, Restaurant - Bucuresti
0728358304; 0744796894 Eugeniu Carada, Nr. 7, Sector 3, Bucuresti |
||
| 262. |
5ENSI by BeanZ Cafe - Bucuresti
0733888555 Bd. Aviatorilor, Nr. 8A, sector 1, Bucuresti |
||
| 263. |
Q Marttinez - Restaurant cu specific european, Bucuresti
0725682944 Eugeniu Carada, Nr. 7, sector 3 |
||
| 264. |
Ciccio - Pizzerie Bucuresti
0745515510 Strada Henri Coanda, Nr. 28 sector 1 |
||
| 265. |
Vilacrosse, Restaurant Cafe Bistro - Bucuresti
0728358304 Str. Eugen Carada, nr. 7, sector 3, |
||
| 266. |
Distrikt 42 - Restaurant Bucuresti
0213156699 Str. Sfantul Dumitru, Nr. 3, sector 3 |
||
| 267. |
Red Angus Steakhouse - Restaurant Bucuresti
0756600000 Piata Amzei, Nr. 10-22Sector 1, |
||
| 268. |
Excalibur, Restaurant - Bucuresti
0730190364; Tel Fax: 0213145670 Academiei, Nr. 39-41, Sector 1 , Bucuresti |
||
| 269. |
Veranda Casa Frumoasa - Restaurant Bucuresti
0733735932 Str. Clopotarii Vechi, Nr. 5, sector 1 |
||
| 270. |
Les Bourgeois - Bucuresti
0720132994; 0213106052 Smardan, Nr. 20, Sector 3, Bucuresti |
||
| 271. |
Patrick Irish Pub & Restaurant - Bucuresti
0213130336; 0314360112; 0755110008 Smardan, Nr. 23-25, sector 3, Bucuresti |
||
| 272. |
Freddo Pub - Club de noapte si de dans, Bucuresti
0722373336 Str Smardan, nr 24, sector 3, |
||
| 273. |
Delicii Libaneze - Gelaterie, cofetarie, ciocolaterie Bucuresti
0725115811 Str. Franceza, Nr. 13, sector 3 |
||
| 274. |
Arcade Cafe - Bucuresti
0722777674 Smardan, Nr.30, (Centrul vechi), Sector 4, Bucuresti |
||
| 275. |
Storage Room - Bar, Bucuresti
0732363712 Strada Smardan, Nr. 35, sector 3 |
||
| 276. |
Kilkenny Irish Pub - Bucuresti
0751041110 Str Franceza, Nr. 46-48, sector 3 |
||
| 277. |
Efendi Doner - Restaurant fast-food, Bucuresti
0730578472 Str. Selari, nr. 2, sector 3 |
||
| 278. |
Aubergine Healthy Food - Restaurant cu mancare sanatoasa, Bucuresti
0213137548 (Smardan); 0771358661 (Aviatorilor) Strada Smardan, Nr 33, sector 3, Bucuresti |
||
| 279. |
Ublo Bistro - Bucuresti
0743447476 Clucerului, Nr. 54, sector 1 |
||
| 280. |
Nomad Skybar - Restaurant, bar, club, Bucuresti
0735448080 Strada Smardan, Nr 30, sector 3 |
||
| 281. |
Colosseum Pizza - Bucuresti
0721243613; 0213131860; 0213121020 Calea Victoriei, Nr. 48-50 (Pasajul Victoria), Sector 1, Bucuresti |
||
| 282. |
Jadoo Restaurant - Bucuresti
0212220502; 0724365583 Nicolae Racota, Nr. 3, Sector 1, Bucuresti |
||
| vezi mai multe | |||
| 1. |
PLAZA ROMANIA
Tel. 021.407.84.64; 021.407.84.65; 021.319.50.51 Bd. Timisoara , nr. 26, sector 6, |
||
| 2. |
VENGA
Tel. 021.425.05.70; Fax 021.425.05.25 Drumul Taberei nr. 24, sector 6 |
||
| 3. |
CENTRUL COMERCIAL SIR
Tel. 021.430.13.98; 021.430.01.27 Sos. Virtutii, nr. 1A (pasajul Lujerului, col? cu bd. Uverturii), sector 6, Bucuresti |
||
| 4. |
AFI Cotroceni - Mall, Bucuresti
0314257510; 0314257511; Fax 0314257513 Vasile Milea, Nr. 4, Sector 6 (intersectia Bd. Timisoara cu Str. Vasile Milea), Bucuresti |
||
| 5. |
Home & Design Mall, Bucuresti - Mobilier, covoare, mochete, perdele
0214130742; 0214132046; Fax.0214130741 Bulevardul Ghencea, Nr. 126-132, Sector 6, Bucuresti |
||
| 6. |
PROFI
Tel. 0726.100.452; Tel/Fax 021.444.32.44 Bd. Ghencea nr. 38, bl. C63, sector 6, |
||
| 7. |
IOVIROM
Tel. 444.18.66; Fax 444.18.69 Bd. Timisoara nr. 84, sector 6 |
||
| 8. |
PLUS DISCOUNT
Tel. 021.402.28.67; Fax 021.402.28.66 Bd. Iuliu Maniu nr. 8B, sector 6, |
||
| 9. |
SUPERMARKET PRIMiVARA
Tel. 031.402.58.20; Fax 021.410.96.96 Calea 13 Septembrie nr. 221-225, sector 5 - Complex Prosper, |
||
| 10. |
ETHOS SUPERMARKET
Tel. 0735.808.451 Str. Margeanului nr. 48, sector 5, |
||
| 11. |
Complexul Comercial Rahova
Str. Glicinelor nr. 4-14, sector 5, |
||
| 12. |
GRANT SHOPPING CENTER
Tel/Fax 021.220.42.65 Sos.Virtutii, nr. 148, sector 6, Bucuresti |
||
| 13. |
NICK CENTER
Tel. 410.06.14; Fax 410.18.94 Calea 13 Septembrie nr. 190, sector 5 |
||
| 14. |
THE GRAND AVENUE AT BUCHAREST MARRIOTT GRAND HOTEL
Tel.021. 403.40.98 Calea 13 Septembrie nr. 90, sector 5 , |
||
| 15. |
LIBERTY CENTER
0213699871; 0213699835 Sos. Progresului, nr. 151-171, sector 5, Bucuresti |
||
| 16. |
DANCA
Tel. 0722.546.268; Fax 212.74.84 Intr. Panificatiei nr. 2 (P-ta Gorjului), sector 6 |
||
| 17. |
INTERHOME
Tel. 021.456.31.85; Fax 021.456.31.80; 021.456.31.83 Str. Nasaud, nr. 97, sector 5, |
||
| 18. |
BUENO SUPERMARKET
Tel/Fax 420.29.20 Sos. Alexandriei nr. 92-94, sector 5 |
||
| 19. |
MILITARI SHOPPING
021.380.87.82 Bd. Iuliu Maniu nr. 546-560, sector 6, |
||
| 20. |
FONZI
Tel. 260.21.28; 0729.005.261; Fax 260.15.31 Sos. Nicolae Titulescu nr. 121 (Fonzi Junior), sector 1 |
||
| vezi mai multe | |||
Sunteti de acord sa fiti contactat prin mesageria Anuntul.ro
de persoana care a adaugat acest anunt?
Vezi istoricul preţurilor din zona
Distribuie Facebook
Anunţurile utilizatoruluiPagina pe care doriti sa o accesati poate sa contina elemente care nu sunt recomandate minorilor!
Va rugam sa confirmati ca aveti peste 18 ani!

137
,138
,N110
,N120
4 min.