Păcii ...
8 min.
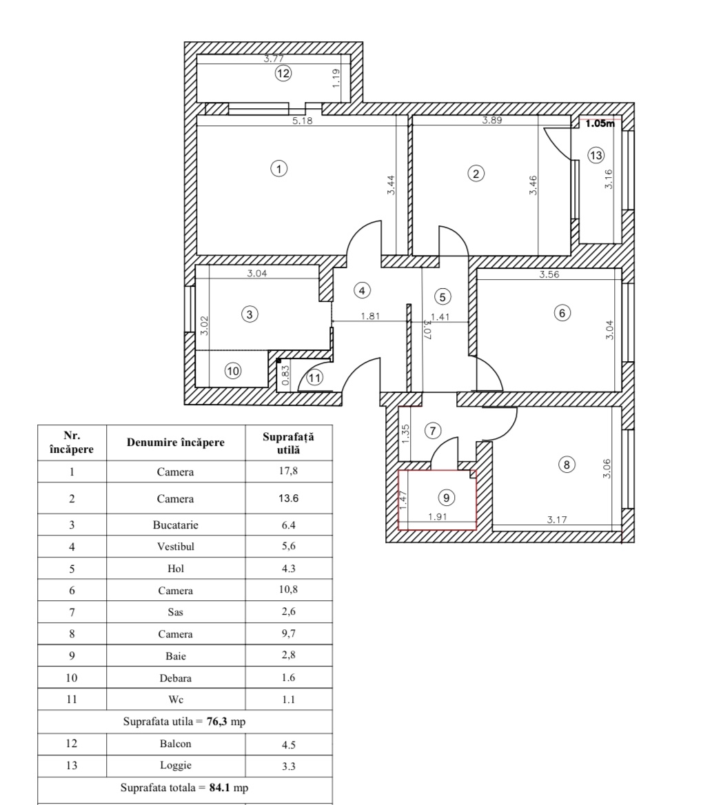
calculeaza distantaMilitari (intre Gorjului si Pacii), oferta 4 camere, confort 1, Decomandat, etaj 3 din 4, supraf. 84 mp, constructie 1976, are 2 bai, si 2 balcoane, renovat recent, cu toate imbunatatirile, bloc anvelopat termic, liber-nelocuit, este la 2-3 min.de Gradinita “Prichindel” nr. 195, la 4-5 min. de Scoala Generala nr. 157, intre Gorjului si Pacii, la 8-10 minute de mers pana la metrou Pacii, si 12-15 minute de mers pana la metrou Gorjului,
Statii metrou |
Timp | |
![]() |
Păcii | 8 min. |
![]() |
Gorjului | 14 min. |
Statii STB |
Timp |
|
Apusului
61
62
,136
,137
,138
,236
,336
|
4 min. |
|
Iuliu Maniu
|
4 min. |
|
Autogara Militari
61
62
,136
,137
,138
,178
,236
|
5 min. |
|
Valea Lungă
|
7 min. |
|
Bd. Preciziei
136
|
8 min. |
|
Valea Cascadelor
61
62
,137
,138
,178
,278
,429
,431
,432
,433
|
8 min. |
|
Păcii
429
,431
,432
,433
|
9 min. |
| 1. |
Gradinita nr. 195 Prichindel sector 6
0214304000 Bd. Iuliu Maniu, nr. 73-75, sector 6 |
||
| 2. |
Casuta Strumfilor - Gradinita Bucuresti
0733194605 Intr. Jarului, Nr. 3, Sector 6 |
||
| 3. |
Dumbrava Minunilor - Gradinita sector 6
0217962807 Str. Apusului, nr. 71-73 , sector 6 |
||
| 4. |
Paradisul Piticilor - Gradinita sector 6
0214341214; 0214341213 Str. Moinesti, nr. 9, sector 6 |
||
| 5. |
Scooby and Friends, Gradinita & After School - Bucuresti
0214443344; 0766661001 Str. Corcodusului, Nr. 9D, Sector 6, Bucuresti |
||
| 6. |
HappyKidz - Before & Afterschool sector 6
0726348591 Str. Albitei, Nr. 2K, Sector 6 |
||
| 7. |
Castelul Voinicilor - Cresa, Gradinita After School Militari sector 6
0760991977 Str. Rosiori de Vede, nr. 12A, Sector 6 |
||
| 8. |
Harap Alb - Cresa sector 6
0376203298 Str. Estacadei, Nr. 13 A, Sector 6 |
||
| 9. |
Centrul Multifunctional Romania Kids - Gradinita & After School Bucuresti
0217770795; 0769060790 Str. Rasaritului, Nr. 59, Sector 6, Bucuresti |
||
| 10. |
Gradinita Nr. 229 sector 6
0214443400; 0214443301 Aleea Dealul Macinului, nr. 5, sector 6 |
||
| 11. |
Kids Learning Center - centru cultural-educativ Ilfov
0762669907; 0765440404 Drumul Bacriului, nr. 101, Rosu - Chiajna, judetul Ilfov |
||
| 12. |
Magic World Kindergarten - Gradinita sector 6
0720777221 Drumul Bacriului, nr. 37B, sector 6 |
||
| 13. |
Lilo Club - Cresa si gradinita Ilfov
0765149367; 0747068562 Intr. Nuferilor, nr. 1, Rosu, Chiajna, judetul Ilfov |
||
| 14. |
Centrul Educational Babylove - After School Bucuresti
0722542715 Aleea Muza Adormita, Nr. 12, Sector 6 |
||
| 15. |
Planeta Copiilor - Gradinita Bucuresti
0724212887 Str. Gabriela Szabo, Nr. 3 - 11, Sector 6, Bucuresti |
||
| 16. |
David Mihai - Gradinita, Ilfov
0767817041; 0766305131; 0765703632; 0784203520 Drumul Bacriului, nr. 42 B, Rosu, com. Chiajna, judetul Ilfov |
||
| 17. |
Neghinita - Centru de zi sector 6
0376203301; 0376203302 Aleea Craiesti, Nr. 1, Sector 6 |
||
| 18. |
Albinutele - Gradinita cu program prelungit sector 6
0311010031 Str. Centurii, nr. 4, sector 6 |
||
| 19. |
Gradinita Nr. 210 sector 6
0217787215; 0771131259 Aleea Arinis, nr. 1bis, sector 6 |
||
| 20. |
Degetica - Gradinita si After School, Bucuresti
0720222200; 0731313131; 0731313101 Str. Bolidului, Nr. 4-6, Sector 6, Bucuresti |
||
| 21. |
International Kids Academy - Scoala Primara & Gradinita Rosu
0723027226 Str. Capitan Ion Ionescu, nr. 2, Rosu, judetul Ilfov |
||
| 22. |
Alba ca Zapada, Gradinita, After School sector 6
0723737939; 0773967033; 0214330220 Str. Cernisoara, Nr. 86A, Sector 6, Bucuresti |
||
| 23. |
Gradinita nr. 208 sector 6
0217783025; 0741716 818 Str. Valea Oltului, nr. 14, sector 6 |
||
| 24. |
Gradinita nr. 250 Sector 6
0316201847 Str. Dealul Tugulea, nr. 35, sector 6 |
||
| 25. |
Ada - Gradinita Bucuresti
0723595916 Str. Gheorghe Spacu, nr. 21, sector 6, Bucuresti |
||
| 26. |
Priki - Gradinita sector 6
0753936611; 0742292143 Str. Sergent Apostol Constantin, nr. 14, sector 6 |
||
| 27. |
Dianva Kids - After School, Bucuresti
0721959335 Str. Orsova, Nr. 129, Sector 6 |
||
| 28. |
Guguta - Cresa, Gradinita Bucuresti
0769256924 Drumul Manastirea Sihastria, Nr. 11A, sector 6, Bucuresti |
||
| 29. |
Art & Play Kindergarten - Cresa, Gradinita Bucuresti
0760670599; 0760670980 Drumul Valea Danului, Nr. 22, Sector 6, Bucuresti |
||
| 30. |
Emerald - Gradinita Bucuresti
0722493479 Drumul Manastirea Sihastria, Nr. 13C, Sector 6, Bucuresti |
||
| 31. |
Clubul Buburuzelor, Gradinita sector 6
0769626385; 0766634420 Drumul Valea Danului, Nr. 22, sector 6 |
||
| 32. |
Lumea Piticilor - Gradinita, Ilfov
0723660168 Str. Crinului, nr. 37A, Chiajna, judetul Ilfov |
||
| 33. |
Waldorf Eruditio - Gradinita sector 6
0723346791 Str. Orsova, nr. 77, sector 6 |
||
| 34. |
Gradinita nr. 94 sector 6
0214133574; 0724 531 595 Str. Targu Neamt, Nr. 4, Sector 6 |
||
| 35. |
Aventura Kids Club After School Chiajna
0740788017; 0741130233 Str. Acvilei, Nr.10, Rosu, Chiajna, judetul Ilfov |
||
| 36. |
Gradinita Nr. 209 sector 6
0214401115; 0214134731 Str. Pascani, nr. 15 bis, sector 6 |
||
| 37. |
Adeland - After school sector 6
0724531595 Str. Targu Neamt, nr. 4, sector 6 |
||
| 38. |
Nicholas Kindergarten - Gradinita Bucuresti
0217786915; 0737504977; 0724809291 Drumul Valea Cricovului, Nr. 41-47, Sector 6, Bucuresti |
||
| 39. |
LifeKids Club Afterschool
0774458673 Str. Crisul Repede, nr. 28, sector 6 |
||
| 40. |
Sfantul Stelian - Gradinita, afterschool Ilfov
0734087549; 0737012035 Str. Marasesti, Nr. 2, Sat Rosu, Com. Chiajna |
||
| 41. |
Kids Club Militari, Gradinita & After School - Bucuresti
0314362520; 0728200900 Str. Rezervelor, Nr. 91, Sector 6, Bucuresti |
||
| 42. |
Gradinita Kids Club Militari Bucuresti
0314362520; 0728200900 Str. Rezervelor, Nr. 91, Sector 6, Balotesti |
||
| 43. |
Roro - Gradinita sector 6
0731339933; 0735550500 Drumul Valea Argovei, nr. 3-9, Sector 6 |
||
| 44. |
Gradinita nr. 197 Zana Florilor sector 6
0214302179 Str. Cetatuia, nr. 10, sector 6 |
||
| 45. |
Joy - After-school Bucuresti
0766055708 Strada Valea Furcii, Nr. 56, sector 6 |
||
| 46. |
Gradinita Nr. 218 sector 6
0314344484 Aleea Callatis, nr. 5, sector 6 |
||
| 47. |
Elly\'s - Before & After School sector 6
0763188937 Str. Cetatea de Balta, nr. 155, Sector 6 |
||
| 48. |
Casa Montessori Gradinita - Bucuresti
0726327159 Str. Valea Oltului, nr. 31-35, sector 6, Bucuresti |
||
| 49. |
Gradinita Nr. 246 sector 6
0316208173 Str. Fabricii, nr. 20, sector 6 |
||
| 50. |
Kids Joy Land - Gradinita si after school, Ilfov
0721216194 Str. 1 Decembrie 1918, Nr. 181 A - Sediul 1, Comuna Chiajna, judetul Ilfov |
||
| 51. |
Gradinita Nr. 230 sector 6
0217782808 Aleea Potaisa, Nr. 3, sector 6 |
||
| 52. |
Cambridge Success - Gradinita Bucuresti
0764474152 Str. Rezervelor, Nr. 24C, Sector 6 |
||
| 53. |
Gradinita nr. 272 sector 6
0311070199; 0214133878 Bd. Timisoara, nr. 39, sector 6 |
||
| 54. |
Degetica Royal Palace - Gradinita Chiajna
0731313131; 0733003300; 0769904269 Str. Rezervelor, nr. 42B, Chiajna, judetul Ilfov |
||
| 55. |
Gradinita nr. 57 Hillary Clinton sector 6
0214133928 Aleea Pravat, nr. 16, sector 6 |
||
| 56. |
Rosa Zangara - Gradinita sector 6
0760505738 Drumul Taberei, nr. 38A, sector 6 |
||
| 57. |
Gradinita nr. 273 sector 6
0214133842; 0787731520 Str. Valea lui Mihai, nr. 1, sector 6 |
||
| 58. |
GoodStart - Gradinita, After School sector 6
0723380015; 0744626716 Prelungirea Ghencea, nr. 109 B, Sector 6 |
||
| 59. |
Gradinita Nr. 87 Spiridusii sector 6
0214132440 Str. Valea Calugareasca, Nr. 6, Sector 6 |
||
| 60. |
Happy Kiddo - Gradinita, Cresa si After School
0763033010 Str. Padurii, Nr. 5, Sat Dudu, Com. Chiajna, judetul Ilfov |
||
| 61. |
Sf. Andrei - Gradinita & After School Bucuresti
0213116823; 0767817002 Str. Bulgarus, Nr. 44, Sector 5, Bucuresti |
||
| 62. |
Art\' Alegria - Gradinita, After School Bucuresti
0736163236 Intrarea Cascioarele, sector 6 |
||
| 63. |
Ana si Strumfii - After school Bucuresti
0768185720; 0760193907 Prelungirea Ghencea, nr. 255A, sector 6 |
||
| 64. |
Creative Kidz - Afterschool Rosu
0735246217 Str. Gospodari, Nr. 46, Sat Rosu, Com. Chiajna, judetul Ilfov |
||
| 65. |
Cresa Pinochio (Cresa Drumul Taberei) sector 6
0376203313; 0376203312 Aleea Compozitorilor, nr. 20, sector 6 |
||
| 66. |
Montessori British School - Gradinita, Ilfov
0756100116 Str. Rasaritului, nr. 3, Chiajna, judetul Ilfov |
||
| 67. |
Gradinita nr. 274 sector 6
0213163345 Bd. Iuliu Maniu, nr. 11D, sector 6 |
||
| 68. |
After School Casuta Piticilor - Drumul Taberei, Militari
0720548870; 0723230720 Str. Sg. Maj. Alexandru Postolache, nr. 22, sector 6 |
||
| 69. |
Gradinita Nr. 111 sector 6
0214135161 Str. Sibiu, Nr. 8, Sector 6 |
||
| 70. |
Gradinita nr. 41 sector 6
0214134988 Str. Constantin Titel Petrescu, nr. 12, sector 6 |
||
| 71. |
Clubul Micilor Ghinde - Centru de joaca educativa Ilfov
0720050205 Str. Ion Luca Caragiale, nr. 43A, Dudu, judetul Ilfov |
||
| 72. |
Mickey\'s House - Before & After School sector 6
0785539018 Str. Pietrele Doamnei, nr. 18, Sector 6 |
||
| 73. |
Corina Club - After School Bucuresti
0744353015; 0766332833 Str. Garleni, Nr. 11A, Sector 6, Bucuresti |
||
| 74. |
Colt de Rai - Gradinita sector 6
0217965203; 0752645946 Str. Garleni, Nr. 10, Sector 6 |
||
| 75. |
Fulg de Nea - Gradinita sector 6
0212203132 Sos. Ciurel, Nr. 9-11, sector 6 |
||
| 76. |
Hands-On - Centru educational Bucuresti
0725977815 Bd. Iuliu Maniu, nr. 7, Cotroceni Business Center, Corp U, parter, sector 6 |
||
| 77. |
Marchengarten - Gradinita cu predare bilingva sector 6
0744378796 Str. G-ral Ioan Culcer, nr. 49, sector 6 |
||
| 78. |
Circle Time - Cresa, Gradinita Bragadiru
0727585578 Str. Margelelor, nr. 10F, Bragadiru, judetul Ilfov |
||
| 79. |
Good Family - Gradinita Bucuresti
0748224225 Str. Nicolae Filimon, Nr. 73A, sector 6 |
||
| 80. |
Casuta cu ghidusii - Gradinita privata Chiajna
0744307260 Str. Vlad Tepes, nr. 63, Chiajna, judetul Ilfov |
||
| 81. |
Happy Feet Education - Gradinita & Afterschool Chiajna
0770342098 Str. Vlad Tepes, nr. 63, Chiajna, judetul Ilfov |
||
| 82. |
My Baby - Gradinita, After School Chiajna, Ilfov
0732061947 Intrarea Busuiocului, Nr. 4C, Chiajna, judetul Ilfov |
||
| 83. |
Miro Kids World - Cresa, gradinita Bucuresti
0767331173; 0756199161 Str. Miroslavei, nr. 9, Sector 5 |
||
| 84. |
Betty-Mar House - After / Before School, Bucuresti
0732871827 Str. Otescu Ion Nonna, nr. 23, sector 6 |
||
| 85. |
Smart & Fun After School Crangasi
0765518746; 0766891844 Intr. Sipetului, Nr. 3, Sector 6 |
||
| 86. |
Genius - Afterschool Bucuresti
0745045180 Intrarea Craiovei, Nr. 21, Sector 6 |
||
| 87. |
TuMi School - gradinita, cresa si afterschool Chiajna
0721111442 Str. Libertatii, nr. 27, Chiajna, judetul Ilfov |
||
| 88. |
Happy Planet Kids - Gradinita Bucuresti
0214106984; 0722319863; 0740843914 Str. Lt. Col. C-tin Marinescu, Nr. 17B, Sector 6, Bucuresti |
||
| 89. |
Gradinita nr. 40 sector 6
0212203340 Str. Tabla Butii, nr. 60, sector 6 |
||
| 90. |
Bwell Education School - Afterschool Ilfov
0752272566 Str. Margelelor, Nr. 12, Bragadiru, judetul Ilfov |
||
| 91. |
Alegra, Gradinita - Bucuresti
0746167291 Str. Finta, Nr. 25, Sector 6, Bucuresti |
||
| 92. |
Kinderium - Before & After School Bucuresti
0726177868 Drumul Sarii, nr. 4A, sector 6 |
||
| 93. |
Carlida - Gradinita, After & Before School Bragadiru
0722807069 Str. Safirului, nr. 18C, Bragadiru, judetul Ilfov |
||
| 94. |
Smiley Kindergarten, Gradinita & After School - Bucuresti
0314366138; 0722541744 Str. Gabriel Cioran, nr. 6, sector 6, |
||
| 95. |
Adnan, Gradinita - Bucuresti
0744606010; 0722205243 Intr. Buturugeni, Nr. 7 Sector 5, Bucuresti |
||
| 96. |
Micul Lord Gradinita - Bucuresti
0730093603; 0745101507 Str. Lespezi, nr. 4 , sector 5, |
||
| 97. |
Orhideea Kids - Gradinita & After School Bucuresti
0748595311 Calea Plevnei, Nr. 145B, sector 1, Bucuresti |
||
| 98. |
Alexandra Kids, Gradinita, After School - Bucuresti
0722151836; 0214206927 Str. Petre Ispirescu, Nr. 69, Sector 5, Bucuresti |
||
| 99. |
Gradinita Nr. 3 cu Program Prelungit Bragadiru
0214480386 Str. Coralului, Nr. 8, Bragadiru, judetul Ilfov |
||
| 100. |
Gradinita Floarea Soarelui sector 5
0214202148 Str. M?rgeanului, nr. 81, sector 5 |
||
| 101. |
Kinderträume - Gradinita Bucuresti
0744507988 Splaiul Independentei, Nr. 195, sector 6, Bucuresti |
||
| 102. |
Gradinita nr. 271 sector 5
0214109024 Bd. Eroii Sanitari, nr. 77, sector 5 |
||
| 103. |
Maryl for kids - Gradinita, Cresa sector 5
0753157515 Sos. Alexandriei, nr. 202 A, sector 5 |
||
| 104. |
Cresa Sf. Stelian sector 5
0214205630; 0736500544 Str. Leresti, nr. 22, sector 5 |
||
| 105. |
Gradinita Nr. 35 sector 5
0214207995 Str. Crizantemelor, nr. 2, sector 5 |
||
| 106. |
WonderKids - Centru Educational Bucuresti
0724258876 Str. Crizantemelor, Nr. 7 sector 5 |
||
| 107. |
Little Team - Gradinita / After School Bucuresti
0799774767 Calea 13 Septembrie, nr. 191, sector 5 |
||
| 108. |
Sfera Kinderzentrum - Gradinita, Before & After School Bucuresti
0728024897 Calea Grivitei, nr. 194, sector 1 |
||
| 109. |
Asociatia Conil - Gradinita pentru copii cu nevoi speciale Bucuresti
0784412222; 0217466704; 0735847526 Str. Dr. Victor Poloni , nr 14, Sector 5, Bucuresti |
||
| 110. |
Discover Me- Gradinita Bucuresti
0747774809 Str. Constantin Noica, Nr. 120, sector 6, Bucuresti |
||
| 111. |
Gradinita M.Ap.N. nr. 1 sector 6
0213196009; 0766298724 Calea Plevnei, nr. 137B, sector 6 |
||
| 112. |
Gradinita din Povesti - Bucuresti
0724987747 Str. Costache Marinescu, Nr. 1A, Sector 1 |
||
| 113. |
Zum Zum - Gradinita Bucuresti
0745685556; 0740704922 Str. Vespasian, Nr. 37, Sector 1, Bucuresti |
||
| vezi mai multe | |||
| 1. |
Policlinica Regina Maria - Lujerului
0219268 Bd. Iuliu Maniu, nr. 51, sector , |
||
| 2. |
Polimed Apaca - Policlinica, Bucuresti
0214348003; 0214348026; 0213113810 Str.Dezrobirii, Nr. 13, Sector 6, Bucuresti |
||
| 3. |
Centrul Medical Gorjului- Bucuresti
0214341557 Bd. Iuliu Maniu, nr. 65, sector 6 , |
||
| 4. |
Clinica Medicala Rosana Medical-Bucuresti
Tel. 0214140220; 0372734300 Str. Cetatea Histria , nr. 12, sector 6, |
||
| 5. |
Centrul Medical Brancusi
0319119 Str. Valea Doftanei, Nr. 113, Sector 6 |
||
| 6. |
Lifeline Services-Bucuresti
0212221651; 0722279756 Sos. Virtutii, nr. 19 D, Virtutii Business Center, Sector 6, |
||
| 7. |
Clinica Doctor Acasa-Bucuresti
0784276950; 0788629415; 0788676433 Str.Prelungirea Ghencea, nr. 53 bis, lot1, bloc F3, scara A, etaj 1, sector 6, |
||
| 8. |
Doris - centru de testare COVID 19 Bucuresti
0732684319 Bd. Iuliu Maniu, nr. 11, sector 6, |
||
| 9. |
Centrul medical PoeMedica Bucuresti
0214139387; 0217461632; 0757109599 Bd. 1 Mai, nr. 24, sector 6, |
||
| 10. |
Centrul medical Ghencea Medical Center- Bucuresti
0219838; 0752493636 ; 0756045204 Bd. Ghencea , Nr. 43 B, sector 6, Bucuresti |
||
| 11. |
Centrul Medical Nicomed
0216372458; 0731338524 Calea Crangasi nr. 23, bl. 13, sc. 2, ap. 1, sector 6, |
||
| 12. |
Centrul Medical Nicomed-Bucuresti
0216372458; 0731338524 Calea Crangasi, nr. 23, ap.1, sector 6, |
||
| 13. |
Clinica Medicover-Bucuresti
0219896 Str. Sergent Constantin Ghercu,, nr. 1A, sector 1, |
||
| 14. |
Policlinica Regina Maria - Cotroceni
0219268 Sos. Cotroceni, nr. 20, sector 6, |
||
| 15. |
Prof. Dr. Panait Sirbu, Spitalul Clinic de Obstetrica-Ginecologie Bucuresti
0213161281; 0213161283; 0213161287 Calea Giulesti, nr. 5, sector 6, bucuresti |
||
| 16. |
Scanmed - Clinica Medicala Bucuresti
0219215; 0317100141; 0729202202 Sos. Panduri, nr. 71, Parter, Sector 5 |
||
| 17. |
Miramed Plus - Servicii medicale la domiciliu Bucuresti, Ilfov
0773760078 Str. Safirului, nr. 28, Bragadiru, judetul Ilfov |
||
| 18. |
Prof. Dr. Panait Sirbu, Spitalul Clinic de Obstetrica-Ginecologie Bucuresti
0213161281; 0213161283 Calea Giulesti, nr. 5, sector 6 , |
||
| 19. |
Clinica de Excelenta in Patologia Somnului Somnolog-Bucuresti
0213118822; 0784442277 Str.Dr.Leonte Anastasievici, nr.11, sector 5, |
||
| 20. |
Clinica Sanamed-Bucuresti
0219442 Calea Plevnei, Nr. 159,corpul B ,Sector 6, |
||
| 21. |
Clinica Lil Med-Bucuresti
0214206055; Fax:0214212231 Str. Suzana , nr. 7, corp 1,sector 5, |
||
| 22. |
Ais companie medical farmaceutica
0219909 Sos. Alexandriei , nr. 144, sector 5, Bucuresti |
||
| 23. |
Centrul Medical Panduri-Bucuresti
0731806118; 0219901 Str. Dr. Ioan Atanasiu, nr. 34, sector 5, |
||
| 24. |
Centru Medical Mediclass - Cotroceni
0214102727; 0214120128; 0214120129 Str. Elefterie, nr. 47-49 (Complex Comercial Cotroceni), sector 5, |
||
| 25. |
Spitalul Universitar de Urgenta Bucuresti - SUUB
Tel. 0213180519; Fax 0213180554 Splaiul Independentei, nr. 169, sector 5 , |
||
| 26. |
Spitalul Universitar de Urgenta Bucuresti - SUUB
Tel. 0213180519; 0213180554 Splaiul Independentei nr. 169, sector 5, |
||
| 27. |
Institutul National pentru medicina complementara si alternativa
Tel.0783002934; 0214102419 Sos. Panduri , nr. 22, sector 5, |
||
| 28. |
Centrul Medical Focus
0753035038 Str. Dinicu Golescu, nr. 23-25 , sector 1, |
||
| 29. |
Spitalul de Urgenta de Chirurgie Plastica, Reparatorie si Arsuri-Bucuresti
0212240946; 02.2240947; Tel/Fax 0212241800 Calea Grivitei , nr. 218, sector 1 , |
||
| 30. |
Spitalul Clinic \"Prof. Dr. Theodor Burghele\" + Ambulatoriu
Tel.0214106910; Fax.0214111055 Sos. Panduri, nr. 20, sector 5, |
||
| 31. |
Spitalul Universitar de Urgenta Militar Central Dr. Carol Davila
Tel. 0213193052/60; Fax.0213193030 Str. Calea Plevnei, nr. 134, sector 1, Bucuresti |
||
| 32. |
Spitalul de Urgenta de Chirurgie Plastica, Reparatorie si Arsuri
0212240946; 0212240947; Tel/Fax 0212241800 Calea Grivitei nr. 218, sector 1, |
||
| vezi mai multe | |||
| 1. |
Ion Dumitriu, Scoala Gimnaziala Nr. 157 - Bucuresti
0214340401 Str. Hanul Ancutei, Nr. 4, Sector 6, Bucuresti |
||
| 2. |
Regina Maria, Scoala Gimnaziala Nr.198 - Bucuresti
0214340102; 0314040194 Str. Apusului, Nr. 71-73, Sector 6, Bucuresti |
||
| 3. |
Scoala Gimnaziala Nr. 309 - Bucuresti
0314190747; 0214340426 Str. Moinesti, Nr. 9, Sector 6 |
||
| 4. |
Sfanta Treime, Scoala Gimnaziala - Bucuresti
0376203770 Aleea Ghirlandei, Nr. 7, Sector 6, Bucuresti |
||
| 5. |
Atlas, Scoala postliceala - Bucuresti
0214400708 Bd. Timisoara, Nr. 60D, Sector 6, Bucuresti |
||
| 6. |
Constantin Brancusi, Scoala Gimnaziala Nr. 174 - Bucuresti
0314052556 Str. Rosia Montana, Nr. 41, Sector 6, Bucuresti |
||
| 7. |
Scoala Gimnaziala Regele Mihai I - Bucuresti
0311011373 Str. Dezrobirii, Nr. 41, Sector 6 |
||
| 8. |
Sfintii Constantin si Elena, Scoala Gimnaziala Nr. 176 - Bucuresti
0214442515 Aleea Lunca Cernei, Nr. 3, Sector 6, Bucuresti |
||
| 9. |
Scoala Gimnaziala Nr. 206 - Bucuresti
0217773980 Aleea Arinis, Nr. 5, Sector 6, Bucuresti |
||
| 10. |
Scoala Gimnaziala Nr. 142 - Bucuresti
0314040196; 0214300511 Str. Centurii, Nr. 4, Sector 6, Bucuresti |
||
| 11. |
Planeta Copiilor , Scoala Primara si Gimnaziala - Bucuresti
0724212970; 0724212887; 0214330263 Gabriela Szabo, Nr. 3 - 11, Sector 6, Bucuresti |
||
| 12. |
Gh. Airinei, Colegiul Tehnic de Posta si Telecomunicatii - Bucuresti
0214134645 Str. Romancierilor, Nr. 6, Sector 1, Bucuresti |
||
| 13. |
Scoala Gimnaziala Nr. 156 - Bucuresti
0314040192 Str. Dealul Tugulea, Nr. 35, Sector 6 |
||
| 14. |
Petru Poni, Liceul Tehnologic - Bucuresti
0213199316 Bd. Preciziei, Nr. 18, Sector 6, Bucuresti |
||
| 15. |
Scoala de Aplicatie pentru Ofiteri a Jandarmeriei Romane Mihai Viteazul
0217696120; 0214349131; 0757099804 Str. 1 Decembrie 1918, Nr. 2-4, Sat Rosu, judetul Ilfov |
||
| 16. |
Colegiul Economic Costin C. Kiritescu - Bucuresti
0314016830 Str. Pestera Dambovicioarei, Nr. 12, Sector 6, Bucuresti |
||
| 17. |
Sfantul Andrei, Scoala Gimnaziala 172 - Bucuresti
0217785959 Aleea Parva, Nr. 3- 5, Sector 6, Bucuresti |
||
| 18. |
Scoala Gimnaziala Nr. 169 - Bucuresti
0214132431 Str. Pascani, Nr. 2, Sector 6, Bucuresti |
||
| 19. |
Liceul Tehnologic Sfantul Antim Ivireanu - Bucuresti
0314380278 Aleea Poiana Muntelui, Nr. 1, Sector 6, Bucuresti |
||
| 20. |
Doamna Chiajna, Liceul Tehnologic - Rosu
0730614950; 0214360404 Str. 1 Decembrie 1918, Nr. 90, Rosu, judetul Ilfov |
||
| 21. |
Elena Cuza, Colegiul National - Bucuresti
0214132495; 0214134768 Str. Pestera Scarisoara, nr. 1, sector 6, Bucuresti |
||
| 22. |
Scoala Gimnaziala Nr. 117
0214302040; 0784236131 Str. Fabricii, Nr. 22, Sector 6, Bucuresti |
||
| 23. |
Scoala Profesionala Speciala pentru Deficienti de Auz Sfanta Maria - Bucuresti
0214440331; 0217787655 Aleea Istru, Nr. 6, Sector 6 |
||
| 24. |
Scoala Gimnaziala Speciala Constantin Paunescu Bucuresti
0214442288 Aleea Istru, Nr. 4, Sector 6 |
||
| 25. |
Colegiul Tehnic Gheorghe Asachi - Bucuresti
0214130438; 0787858675; 0214134040 Aleea Pravat, Nr. 24, sector 6 |
||
| 26. |
Eugen Lovinescu, Liceu teoretic - Bucuresti
0214132947; 0214134195 Str. Valea lui Mihai, Nr. 6, Sector 6, Bucuresti |
||
| 27. |
Scoala Gimnaziala Nr. 164 Sfantul Calinic de la Cernica - Bucuresti
0214131160 Str. Pravat, Nr. 22, Sector 6, Bucuresti |
||
| 28. |
ForEvEr - After school, Bucuresti
0733543937 Strada Drumul Valea Larga, nr. 24A, sector 6 |
||
| 29. |
Scoala Gimnaziala Nr. 279 - Bucuresti
0217773164 Prelungirea Ghencea, Nr. 24, Sector 6, Bucuresti |
||
| 30. |
Scoala Gimnaziala Nr. 144 - Bucuresti
0214442093 Str. Floarea de Gheata, Nr. 1B, Sector 5, Bucuresti |
||
| 31. |
Tudor Vladimirescu, Colegiu National - Bucuresti
0214103831 Bd. Iuliu Maniu, Nr. 15, Sector 6, Bucuresti |
||
| 32. |
Grigore Moisil, Colegiu National - Bucuresti
0214132696; 0768191964 Bd. Timisoara, Nr. 33, Sector 6, Bucuresti |
||
| 33. |
Adrian Paunescu, Scoala Gimnaziala - Bucuresti
0214133020 Aleea Valea Prahovei, Nr. 1, Sector 6, Bucuresti |
||
| 34. |
Scoala Gimnaziala Nr. 197 - Bucuresti
0214134330; 0786332028 Str. Obcina Mare, Nr. 2, Sector 6, Bucuresti |
||
| 35. |
Scoala Gimnaziala Nr. 59
0314252104 Str. Vladeasa, Nr. 9, Sector 6, Bucuresti |
||
| 36. |
Colegiul Tehnic Petru Maior - Bucuresti
0736627798 Bd. Timisoara, Nr. 6, Sector 6 |
||
| 37. |
Maryland, Scoala Primara - Drumul Taberei, Bucuresti
0722418104 (Cristina Ignat Varlam); 0722257343 (Claudiu Ignat Varlam) Drumul Ghindarilor, Nr.150-154, Sector 5, Bucuresti |
||
| 38. |
Orizont, Scoala Gimnaziala Nr. 193 - Bucuresti
0214132355 Str. Mihaela Ruxandra Marcu, Nr. 3, Sector 6, Bucuresti |
||
| 39. |
Scoala Gimnaziala Nr. 167 - Bucuresti
0212205770 Calea Crangasi, Nr. 140, Sector 6, Bucuresti |
||
| 40. |
Liceul cu Program Sportiv Mircea Eliade - Bucuresti
0213141389 Splaiul Independentei, Nr. 315-317, Sector 6 |
||
| 41. |
Scoala Gimnaziala Nr. 311- Bucuresti
0214133440 Str. Garleni, Nr. 10, Sector 6, Bucuresti |
||
| 42. |
UCECOM, Colegiul Spiru Haret - Bucuresti
0213166195; 0213166196 Str. Economu Cezarescu, Nr. 47-59, Sector 6, Bucuresti |
||
| 43. |
Alexandru Odobescu, Scoala Gimnaziala - Chiajna
0372552412 Str. Pacii, Nr. 72, Chiajna, judetul Ilfov |
||
| 44. |
Complex Scoalr Cronos Bucuresti
0212225050; 0758107705 Str. Chibzuintei, Nr. 15-17, Sector 1, Bucuresti |
||
| 45. |
Marin Preda, Liceu teoretic - Bucuresti
0212202344 Str. Rusetu, Nr. 17, Sector 6, Bucuresti |
||
| 46. |
Alegra - After-school Bucuresti
0729987920; 0726487124 Str. Portaresti, Nr. 11, etaj 1, sector 6 |
||
| 47. |
Carol I, Colegiu Tehnic - Bucuresti
0212202750 Str. Porumbacu, Nr. 52, Sector 6, Bucuresti |
||
| 48. |
Scoala Gimnaziala Nr. 161- Bucuresti
0212249328 Calea Giulesti, Nr. 486A, Sector 6, Bucuresti |
||
| 49. |
Scoala Gimnaziala Nr. 168 - Bucuresti
0314326090 Str. Alizeului, Nr. 9, Sector 6, Bucuresti |
||
| 50. |
Scoala Gimnaziala Nr. 162
0212205484 Str. Copsa Mica, Nr. 1A, Sector 1, Bucuresti |
||
| 51. |
Scoala Gimnaziala Nr.163 - Bucuresti
0212201018 Calea Giulesti, Nr. 54, Sector 6, Bucuresti |
||
| 52. |
Ion Barbu, Liceu Teoretic - Bucuresti
0214102332 Str. Nabucului, Nr. 18, Sector 5, Bucuresti |
||
| 53. |
Scoala Gimnaziala Nr. 153 Bucuresti
0212217651 Drumul Sabareni, Nr. 21, Sector 6, Bucuresti |
||
| 54. |
Stefan Odobleja, Liceu teoretic - Bucuresti
0214112213 Str. Dorneasca, Nr. 7A, Sector 5, Bucuresti |
||
| 55. |
Colegiul Tehnic Dinicu Golescu - Bucuresti
0216370484 Calea Giulesti, Nr. 10, Sector 1 |
||
| 56. |
Scoala Gimnaziala nr. 143 - Bucuresti
0214202440 Str. Banu Maracine, Nr. 16, Sector 5 |
||
| 57. |
Ada School - Bucuresti
0723595916; 0721424485 Dr. Carol Davila, Nr. 101, Bucuresti |
||
| 58. |
I.G. Duca, Scoala Gimnaziala 146 - Bucuresti
0214100881 Sos. Panduri, Nr. 42, Sector 5, Bucuresti |
||
| 59. |
Scoala Gimnaziala Nr. 126
0214203645 Str. Leresti, Nr. 12, Sector 5, Bucuresti |
||
| 60. |
Scoala Gimnaziala Nr. 124 - Bucuresti
0214206365 Str. Margeanului, Nr. 25A, Sector 5, Bucuresti |
||
| 61. |
Scoala Gimnaziala Nr. 115
0213163793; 0786401588 Calea 13 Septembrie, Nr. 177, Sector 5, Bucuresti |
||
| 62. |
Geo Bogza, Scoala Gimnaziala Nr. 170 - Bucuresti
0212223072 Str. Barbu Lautaru, Nr. 4, Sector 1, Bucuresti |
||
| 63. |
Dimitrie Gusti, Liceu Tehnologic - Bucuresti
0214562050 Str. Samuil Vulcan, Nr. 8, Sector 5, Bucuresti |
||
| 64. |
Eugen Barbu, Scoala Gimnaziala Nr. 173 - Bucuresti
0212240937 Str. Ivan Petrovici Pavlov, Nr. 2-4, Sector 1, Bucuresti |
||
| 65. |
Smart Koala Kids Club
0771638419; 0771638425 Calea 13 Septembrie, Nr.126A, bl.P43, sc.1, parter, ap. 2, sector 5, Bucuresti |
||
| vezi mai multe | |||
| 1. |
Primo - Restaurant fast food, Bucuresti
Bulevardul Iului Maniu, Nr. 184, sector 6 |
||
| 2. |
Fortuna Pizza - Bucuresti
0764725328; 0725416126 Apusului, Nr. 82, Sector 6, Bucuresti |
||
| 3. |
Cocosu Rosu - Restaurant cu specific romanesc Bucuresti
0747059315 Str. Margelelor, Nr. 61 ? 63, Sector 6 |
||
| 4. |
Kabo - Restaurant Bucuresti
0769276582 Strada Moinesti, Nr. 49, sector 6 |
||
| 5. |
Turbotequila, Restaurant - Bucuresti
0214344007; 0214301312 Bd. Iuliu Maniu, Nr. 220C, Sector 6, Bucuresti |
||
| 6. |
Cofetaria Elan - Bucuresti
0214343438 Bulevardul Iuliu Maniu, Nr. 73, sector 6 |
||
| 7. |
Fast Food Selfie - Bucuresti
0723640514; 0766356486 Strada Moinesti, Nr. 75, sector 6 |
||
| 8. |
Casa Roz, Restaurant - Bucuresti
0721542909; 0720624500; 0723504103 Apusului, Nr. 44, Sector 6, Bucuresti |
||
| 9. |
Almondo Pizza - Pizzerie, Bucuresti
0726000222/ 0767227722 Str. Murguta, nr. 27, sector 6 |
||
| 10. |
Casa Roz - Restaurant, Bucuresti
0721542909; 0720624500 Str. Apusului, nr 44, sector 6 |
||
| 11. |
Sweet Chocolate - Cofetarie, Bucuresti
0733944694 Bd. Iuliu Maniu, Nr.65, sector 6 |
||
| 12. |
Alexia Garden - Restaurant Bucuresti
0374015050; Bulevardul Timisoara, Nr 58G, sector 6 |
||
| 13. |
Candy bar by Kitty, Cofetarie - Bucuresti
0766628112 (Letan Elena) Iuliu Maniu, Nr.61, Sector 6, Bucuresti |
||
| 14. |
La Cave - Restaurant cu specific francez, Bucuresti
0746254444 Str. Margelelor, Nr. 139-143, sector 6 |
||
| 15. |
Vulturul, Restaurant - Bucuresti
0722335116; 0213514149 Intrarea Blejoi, (B-dul Iuliu Maniu 408-410), Nr. 2, Sector 6, Bucuresti |
||
| 16. |
Vulturul, Restaurant - Bucuresti
0722335116; 0213514149 Intrarea Blejoi, Nr. 2, (B-dul Iuliu Maniu 408-410), Sector 6, Bucuresti |
||
| 17. |
La Collina - Restaurant si pizzerie, Bucuresti
0720265462; 0761806890; 0722229700 Drumul Timonierului, nr. 26, sector 6 |
||
| 18. |
Timeout Cafe - Bucuresti
0763700031 Strada Reveriei, nr. 11, Sector 6 |
||
| 19. |
Weiss Beer Garden - Terasa, Bucuresti
0733582852 Bulevardul Uverturii, nr. 132, sector 6 |
||
| 20. |
Pizza KA - Bucuresti
0219894 B-dul Uverturii, Nr. 98, Sector 6 |
||
| 21. |
Aniela - Cofetarie, Bucuresti
0760237463 Bd. Uverturi, Nr.83, sector 6 |
||
| 22. |
Mr Laziz Fast Food & Grill - Mancare libaneza
0720451176 Drumul Timonierului, nr. 3-5 sector 6 |
||
| 23. |
AS Garden - Restaurant Bar & Grill, Bucuresti
0736735244; 0731639017 Strada Timonierului, Nr. 3-5, sector 6 |
||
| 24. |
Urban Vibe Roastery - Cafenea, Bucuresti
0768082833 Valea Oltului, Nr 131-137, sector 6 |
||
| 25. |
La Saveur - Brutarie artizanala, patiserie, cofetarie Bucuresti
0770733292; 0722624525 Drumul Taberei, Nr 68, sector 6 |
||
| 26. |
Verbun Pizza & Shaorma - Restaurant fast-food, Bucuresti
0785161693 Valea Oltului, Nr. 131-137, sector 6 |
||
| 27. |
PASSION CLUB
Tel. 021.444.36.67; 021.444.36.68; 0743.048.701; Fax 021.444.36.67 Str. Valea Oltului, nr. 117A, sector 6, |
||
| 28. |
Passion Club, Restaurant - Bucuresti
0214443668; 0745111107 Valea Oltului, Nr. 117A,Sector 6, Bucuresti |
||
| 29. |
Restaurant Passion Club
0214443668; 0745111107 Str. Valea Oltului, nr. 117A, sector 6, |
||
| 30. |
Passion Club, Restaurant - Bucuresti
0214443668; 0745111107 Valea Oltului, Nr. 117A, Sector 6, Bucuresti |
||
| 31. |
Capri, Restaurant - Bucuresti
0769812778; 022797639; 0730094662 Iuliu Maniu, Nr.484, (inaintea benzinariei Petrom - Metro Militari), Bucuresti |
||
| 32. |
Opa Opa Greek Fast Food - Bucuresti
0746072527 Bd. Preciziei, Nr. 24, Sector 6 |
||
| 33. |
Panoramic Beer & Grill - Ilfov
0720327223 Str. Apeductului, Nr. 14, sat Rosu, comuna Chiajna, judetul Ilfov |
||
| 34. |
Speed Pizza - Bucuresti
0219001 Iuliu Maniu, Nr.19, Sector 6, Bucuresti |
||
| 35. |
Pizza Volante - Bucuresti
0738592129; 0765401872 Strada Cernisoara, Nr. 151, sector 6 |
||
| 36. |
Joy Pizza - Ilfov
0733360020 Str. 1 Decembrie, Nr 141 A, Chiajna, judetul Ilfov |
||
| 37. |
Basilico - Restaurant Bucuresti
0770898782 Valea Oltului, Nr. 61, Sector 6 |
||
| 38. |
Impinge Tava - Ilfov
0722911963 Strada 1 Decembrie 1918, Nr.165, Rosu, judetul Ilfov |
||
| 39. |
Militari Residence Ballroom - Bucuresti
0723333508; 0760150392 Rezervelor, Nr. 70, Sector 6, Chiajna, judetul Ilfov |
||
| 40. |
La Micutu - Fast Food, Bucuresti
0765099359 Bd Timisoara, Nr 18, sector 6 |
||
| 41. |
Amarillo, Restaurant - Bucuresti
0722215615; 0722244599 Drumul Taberei, Nr. 44A, Sector 6, Bucuresti |
||
| 42. |
Capri Pizza, Pizzerie si catering - Bucuresti
0729442530; 0214442101 B-dul. Timisoara, Nr. 60C, Sector 6, Bucuresti |
||
| 43. |
Casa Nasului - Restaurant Bucuresti
0727825165 Strada Cetatuia, Nr. 12, sector 6 |
||
| 44. |
Mai Mult Decat Un Dulce - Cofetarie, Bucuresti
0785688229 Str. Rezervelor, Nr.5nr.56 , bl.4, parter,sector 6, |
||
| 45. |
Ev Don Fusion - Restaurant Ilfov
0775500777 Strada Rezervelor 63, Chiajna, Dudu, judetul Ilfov |
||
| 46. |
Rabah - Fast food, Bucuresti
0771225412 Strada Tineretului, nr 29, bloc 6 sc A, comuna Chiajna |
||
| 47. |
Trattoria Roz Cafe - Restaurant Bucuresti
0774481284; 0726616358 Strada Rezervelor, Nr. 52 bis, sector 6 |
||
| 48. |
Torturi de vis - Cofetarie Bucuresti
0744364900 Str. Rezervelor, Nr 44A, Chiajna, judetul Ilfov |
||
| 49. |
Petritis Gyros- Restaurant fast-food, Ilfov
0754745168 Tineretului, Nr. 63 Rosu, Militari Residence, Comuna Chiajna, judetul Ilfov |
||
| 50. |
Liana - Cofetarie, Ilfov
0770507598 Strada Tineretului, Nr 63, Comuna Chiajna, judetul Ilfov |
||
| 51. |
Nedelya - Cofetarie Bucuresti
0771420388 Strada Brasov, Nr. 25, sector 6, Centrul Comercial Drumul Taberelor |
||
| 52. |
La Felinare - Restaurant cu specific international, Bucuresti
0751028811 Strada Brasov, Nr. 25L, sector 6 |
||
| 53. |
Crosto Pizza - Pizzerie, Bucuresti
0786200100; 0723700300 Strada Condorului, Nr 3, Sector 5 |
||
| 54. |
Dream Pizza - Restaurant Bucuresti
0785070079 Drumul Taberei, Nr. 28, sector 6, |
||
| 55. |
Trattoria Roma - Restaurant Bucuresti
0765723733; 0799772233 Str. Drumul Taberei, Nr. 26, Sector 6 |
||
| 56. |
Fresh Food - Restaurant fast-food, Bucuresti
0761383536 Bulevardul Ghencea, nr. 79 (in incinta Complex Tamilia), sector 6 |
||
| 57. |
14iil Bistro Caffe - Bucuresti
0767945297 Str. Orhideelor, Nr. 36 Comuna Chiajna, judetul Ilfov |
||
| 58. |
Ai Sapori - Restaurant cu specific italian Bucuresti
0372713635 Bd Timisoara, Nr. 21, sector 6, Bucuresti |
||
| 59. |
Hanul Drumetului, Restaurant - Bucuresti
0214133430; 0722555083 Bd. 1 Mai(Compozitorilor), Nr. 28, Sector 6, Bucuresti |
||
| 60. |
IDM Club Sportiv - Bucuresti
0213161052; 0722454273 Splaiul Independentei, Nr. 319 B, (Vizavi de campusul studentesc Regie) Sector 6, Bucuresti |
||
| 61. |
Cuptorul Dulce - Cofetarie, Ilfov
0752086166 Prelungirea Ghencea, nr.262, Bragadiru, judetul Ilfov |
||
| 62. |
Bulevard - Restaurant, Bucuresti
0728538273 Bulevardul Ghencea, nr.122, Bucuresti, Sectorul 6 |
||
| 63. |
Casa Antonie, Cofetarie - Bucuresti
0212202530; 0740150736; 0212202510 Mehadia, Nr. 39A, Sector 6, Bucuresti |
||
| 64. |
Cofetaria Ioana - Bucuresti
0217265762 Strada Vladeasa, Nr. 2, sector 6 |
||
| 65. |
La Placinte - Restaurant cu specific romanesc, Bucuresti
0756207005 Bd. Vasile Milea, 4F (Afi Park 2) |
||
| 66. |
Red Wok - Restaurant cu specific chinezesc, Bucuresti
0786644125 Prelungirea Ghencea, nr. 45, sector 6 |
||
| 67. |
Mechano Pub - Bucuresti
0722990992 Splaiul Independentei, Nr. 290, sector 6 |
||
| 68. |
Pub 18 Restaurant - Bucuresti
0722441586 (Manager Pub Oana Valeanu) Splaiul Independentei, Nr. 290, bl. P18, parter, Sector 6, Bucuresti |
||
| 69. |
Pub 18 Restaurant - Bucuresti
0722441586 Splaiul Independentei, Nr. 290, bl. P18, parter, sector 6 , Bucuresti |
||
| 70. |
Shorley Restaurant - Bucuresti
0765377308; 0724710385; 0213124312 Econom Cezarescu, Nr. 50, Sector 6 , Bucuresti |
||
| 71. |
Pizza Real - Delivery Bucuresti
0760170649; 0725470701 Calea Crangasi, Nr. 90, Sector 6 |
||
| 72. |
La Maria si Ion, Restaurant - Bucuresti
0762295737; 0753473781 Splaiul Independentei, Nr. 290, Complex Studentesc Regie, Sector 6, Bucuresti |
||
| 73. |
Pui de Urs, Restaurant - Bucuresti
0213166289; 0724622226; 0765166266 Econom Cezarescu, Nr. 42 (Grozavesti), Sector 6 , Bucuresti |
||
| 74. |
Trattoria 20 - Restaurant Bucuresti
0757534928; 0751267451 Splaiul Independentei, Nr. 290, Campus Regie, sector 6 |
||
| 75. |
Di Vino Pizza - Bucuresti
0769316151; 0733832277 Prelungirea Ghencea, nr. 83C, sector 6 |
||
| 76. |
Bucharest West, Restaurant si Motel - Domnesti / Ilfov
0213505621; 0743485055 Soseaua de Centura , Nr. 2,, Domnesti, judetul Ilfov |
||
| 77. |
La Nasu, Restaurant - Bucuresti
0212214285; 0722257923; 0728984754 Calea Crangasi, Nr. 29, Sector 6, Bucuresti |
||
| 78. |
Roxy Pub - Bucuresti
0742033944; 0723327117; 0785224508 Splaiul Independentei, Nr. 290, Complex Studentesc Regie, Bucuresti |
||
| 79. |
Kungfu Pizza - Bucuresti
0774428631; 0216656866; 0314251995 Ceahlau, Nr.17 B, Sector 6, Bucuresti |
||
| 80. |
Quantic Pub - Bucuresti
0314321742 Soseaua Grozavesti, Nr. 82, sector 6 |
||
| 81. |
Yesterday, Hotel si Restaurant - Bucuresti
0213408585; 0737001008 Economu Cezarescu, Nr. 8, Sector 6, Bucuresti |
||
| 82. |
Golden Blitz, Restaurant - Bucuresti
0214105100 Razoare , Nr. 32, Sector 6 , Bucuresti |
||
| 83. |
La Sotir Jr. Ballroom - Ilfov
0722911963; 0736560179; 0722329354 Str. Eroului, nr. 2A, Chiajna, judetul Ilfov |
||
| 84. |
Golden Blitz, Restaurant - Bucuresti
0214105100 Razoare , Nr. 32, Sector 6 , Bucuresti |
||
| 85. |
Pizzeria Alessandro - Bucuresti
0721886488; 0721887488 Drumul Sarii, Nr.150, sector 6 |
||
| 86. |
Naan Project - Restaurant, Bucuresti
0730707119 Strada Progresului, Nr. 1-3 (Razoare), sector 5 |
||
| 87. |
Dum Dum Food - Restaurant fast food, Bucuresti
0735 270 402 Calea Giulesti, Nr. 123, sector 6 |
||
| 88. |
14th Lane - Restaurant cu mancaruri fine, organizare evenimente, Bucuresti
0737776777 Sos. Orhideelor, Nr. 15D, sector 6, Bucuresti |
||
| 89. |
Mamma Mia, Pizzerie - Bucuresti
0784614600 Calea Giulesti, Nr.230, Sector 6, Bucuresti |
||
| 90. |
Galletto Ristorante, Restaurant italian, catering - Bucuresti
0212112276; 0770407519 Soseaua Orhideelor, Nr.1 (podul nou Basarab,langa cladirile de birouri The Bridge, Sector 6, Bucuresti |
||
| 91. |
Cesme - Restaurant cu specific turcesc, Bucuresti
0721163176 Str. Calea 13 Septembrie, Nr 272, sector 5 |
||
| 92. |
Story Pizza - Pizzerie, Bucuresti
0721985293; 0212201004; 0748581523 Calea Giulesti, nr 202, sector 6 |
||
| 93. |
Andros - Cofetarie, Bucuresti
0748888847 Str. Antiaeriana, nr. 5, sector 5, |
||
| 94. |
Baffi Cafe - Pizzerie, Ilfov
0756021501; 0756021510 Str. Safirului, Nr. 69R, Bragadiru, judetul Ilfov |
||
| 95. |
Elena - Restaurant cu specific romanesc, cu terasa, organizare evenimente, Bucuresti
0747277232 Calea 13 Septembrie, Nr. 289, Sector 5, Bucuresti |
||
| 96. |
Excellence - Restaurant Bucuresti
0723888822 Strada Petre Ispirescu, Nr. 110-112, sector 5 |
||
| 97. |
Potcoava 9 Mai, Restaurant - Bucuresti
0212202208; 0721065347 Str. 9 Mai , Nr. 51, Sector 6, Bucuresti |
||
| 98. |
Casa Banil Restaurant - Bucuresti
0214105716; 0723391161; 0724159949 Petre Ispirescu , Nr. 95, Sector 5, Bucuresti |
||
| 99. |
Lucky Point Pub
0742181263 Splaiul Independentei, 204,sect.6, Bucuresti |
||
| 100. |
Piticot, Cofetarie Bucuresti
0214206670; 0726714865 Whatsapp Petre Ispirescu, Nr. 77, Sector 5, Bucuresti |
||
| 101. |
Colosal - Fast Food, Bucuresti
0737698255 Strada Mihail Sebastian, Nr. 133, sector 5 |
||
| 102. |
Panorama Kebap - Restaurant fast food, Bucuresti
0766244009 Str Margeanului, Nr.115, sector 5 |
||
| 103. |
Cofetaria Maia Artizan Bakery - Bucuresti
0762298622 Str. Margeanului, Nr. 115, sector 5 |
||
| 104. |
Royal Kebap - Restaurant fast-food, Bucuresti
0730242360 Strada Margeanului, Nr. 105 C, sector 4 |
||
| 105. |
Fendi Kebap - Restaurant fast-food, Bucuresti
0314051091 Str. Novaci, |
||
| 106. |
Casa Lazar - Restaurant Bucuresti
0764024444; 0738794310; 0735778229 Serg. Maj. Ion Nedeleanu, Nr. 8, sector 5 |
||
| 107. |
Fast Food Plevnei - Restaurant Fast Food Bucuresti
0761046444 Calea Plevnei, Nr. 230, sector 1 |
||
| 108. |
Lara Sweets - Cofetarie Bucuresti
0374491733 Soseaua Alexandria, Nr. 197, Sectorul 5 |
||
| 109. |
Burgeria Cotroceni - Restaurant fast-food, Bucuresti
0314214777 Soseaua Cotroceni, Nr. 9, sector 6 |
||
| 110. |
Delarte Pizza, Pasta & Grill - Bucuresti
0733352783; 0755487273; 0217802500 Corbita, Nr.3,Sector 5, Bucuresti |
||
| 111. |
Casa Adam Events, Restaurant Evenimente - Bucuresti
0785112233; 0765801348 Sos. Alexandriei , Nr. 201F, Sector 5, Bucuresti |
||
| 112. |
Graffiti Urban Food, Bucuresti
0749433433; 0733695443; 0769180180 Str.Carol Davila, Nr. 56A, Sector 5, Bucuresti |
||
| 113. |
Terasa Oasis - Restaurant Bucuresti
0733638577 Mihail Sebastian, Nr.102. Sector 5, Bucuresti |
||
| 114. |
Derby Pub & Restaurant - Bucuresti
0214108545 Bd. Eroilor Sanitari , Nr. 49A,sector 5, Bucuresti |
||
| 115. |
Hong Kong - Restaurant chinezesc, Ilfov
0213107134; 0727834877 Calea Grivitei, nr. 81 (langa Biserica Sf. Voievozi), sector 1, , judetul Ilfov |
||
| 116. |
Bike Boutique and More - Magazin, terasa, service, Bucuresti
0752405152 Strada Profesor Doctor Victor Babes, Nr. 2, sector 5 |
||
| 117. |
One Minute Pizza
0732841587 Sos Alexandriei, Nr. 108, Bragadiru, judetul Ilfov |
||
| 118. |
Triana - Cofetarie, Bucuresti
0740302404 Soseaua Orhideelor, Nr. 46, sector 1 |
||
| 119. |
Dominum - Bar & Grill, Bucuresti
0761551233 Strada Neptun, Nr. 4, Sector 5 |
||
| 120. |
Ceainaria Infinitea
0723175300 Str. Dr. Grigore Romniceanu, Nr.7, ap.2, sector 5 |
||
| 121. |
Kvala - Restaurant grecesc, Bucuresti
0726731663 str Louis Pasteur, nr 63, sector 5 |
||
| 122. |
Casa Bia - Restaurant Bucuresti
0761241623 Str. Sebastian Mihail, Nr. 19, sector 5 |
||
| vezi mai multe | |||
| 1. |
PLUS DISCOUNT
Tel. 021.402.28.67; Fax 021.402.28.66 Bd. Iuliu Maniu nr. 8B, sector 6, |
||
| 2. |
IOVIROM
Tel. 444.18.66; Fax 444.18.69 Bd. Timisoara nr. 84, sector 6 |
||
| 3. |
PLAZA ROMANIA
Tel. 021.407.84.64; 021.407.84.65; 021.319.50.51 Bd. Timisoara , nr. 26, sector 6, |
||
| 4. |
CENTRUL COMERCIAL SIR
Tel. 021.430.13.98; 021.430.01.27 Sos. Virtutii, nr. 1A (pasajul Lujerului, col? cu bd. Uverturii), sector 6, Bucuresti |
||
| 5. |
MILITARI SHOPPING
021.380.87.82 Bd. Iuliu Maniu nr. 546-560, sector 6, |
||
| 6. |
VENGA
Tel. 021.425.05.70; Fax 021.425.05.25 Drumul Taberei nr. 24, sector 6 |
||
| 7. |
Home & Design Mall, Bucuresti - Mobilier, covoare, mochete, perdele
0214130742; 0214132046; Fax.0214130741 Bulevardul Ghencea, Nr. 126-132, Sector 6, Bucuresti |
||
| 8. |
AFI Cotroceni - Mall, Bucuresti
0314257510; 0314257511; Fax 0314257513 Vasile Milea, Nr. 4, Sector 6 (intersectia Bd. Timisoara cu Str. Vasile Milea), Bucuresti |
||
| 9. |
PROFI
Tel. 0726.100.452; Tel/Fax 021.444.32.44 Bd. Ghencea nr. 38, bl. C63, sector 6, |
||
| 10. |
GRANT SHOPPING CENTER
Tel/Fax 021.220.42.65 Sos.Virtutii, nr. 148, sector 6, Bucuresti |
||
| 11. |
SUPERMARKET PRIMiVARA
Tel. 031.402.58.20; Fax 021.410.96.96 Calea 13 Septembrie nr. 221-225, sector 5 - Complex Prosper, |
||
| 12. |
BUENO SUPERMARKET
Tel/Fax 420.29.20 Sos. Alexandriei nr. 92-94, sector 5 |
||
| 13. |
ETHOS SUPERMARKET
Tel. 0735.808.451 Str. Margeanului nr. 48, sector 5, |
||
| 14. |
Complexul Comercial Rahova
Str. Glicinelor nr. 4-14, sector 5, |
||
| vezi mai multe | |||
Sunteti de acord sa fiti contactat prin mesageria Anuntul.ro
de persoana care a adaugat acest anunt?
Vezi istoricul preţurilor din zona
Distribuie Facebook
Anunţurile utilizatoruluiPagina pe care doriti sa o accesati poate sa contina elemente care nu sunt recomandate minorilor!
Va rugam sa confirmati ca aveti peste 18 ani!

61
62
,136
,137
,138
,236
,336
4 min.