Anuntul Telefonic logo
  • Intra in cont Creare Cont
  •   Anunturile mele
  •   Cautari salvate
  •   Mesajele mele
  •   Anunturi favorite
  •   Alimentare cont
  •   Adauga Anunt
X închide
Text

Alba Iulia

24.000 €

6 poze

Alba Iulia Alba Iulia Alba Iulia Alba Iulia Alba Iulia Alba Iulia
  • Foto
  • |Harta
  • |Schita

Alba iulia, azi, 09:30 167 vizite

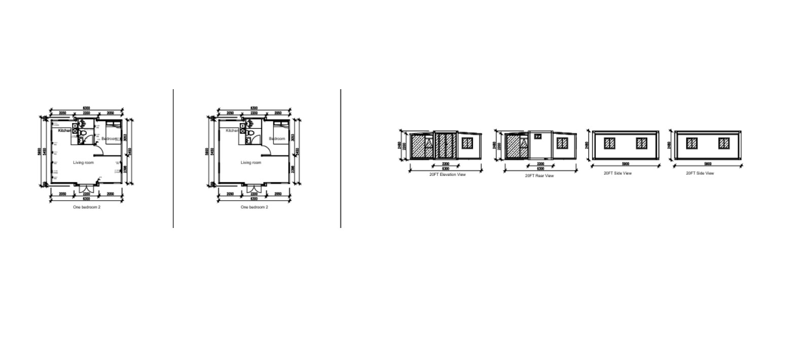
  • Suprafata utila 38 mp
  • Teren 1 mp
  • An 2025
  • 2 camere
  • La cheie

Descriere anunt

Alba Iulia Vand casa prefabricata extensibila noua.

Suprafata - 38 mp, formata din dormitor, baie si living cu bucatarie open space. Are 2 pereti de sticla, usa sticla, baie completa, mobila de bucatarie, finisata interior si exterior, pereti exteriori de panou sandwishcu Rockwool,sitabla embosata caramida rosie la exterior, cadru metalic si geamuri albe.

Nu necesita autorizatie de construire. Se monteaza pe: beton, dale, suporti de beton. Usor de conectat la apa, canalizare si curent. Casa se pliaza si se monteaza-demonteaza foarte usor.

Disponibila in stoc si pentru vizualizare in Jud Alba.

Casa prefabricata

Casa pe structura metalica

Casa container

Container de locuit

Casa modulara

Casa extensibila

Optiuni interior

Izolatie termica
Living
› Imobiliare vanzari / Case, vile
Atentie

Sunteti de acord sa fiti contactat prin mesageria Anuntul.ro
de persoana care a adaugat acest anunt?

Anunţuri din aceeași zonă
Vezi email
Distribuie Facebook
Anunţurile utilizatorului
0744.953.XXX
- vezi telefon -
Trimite mesaj privat

Selectati numarul de telefon

0744.953.090

Pagina pe care doriti sa o accesati poate sa contina elemente care nu sunt recomandate minorilor!
Va rugam sa confirmati ca aveti peste 18 ani!

Articole | Arhiva ziar | Termeni si conditii | Politica de confidentialitate | Contact | ANPC
Descarca aplicatiaGoogle Play
Copyright © 2024 ANUNTUL TELEFONIC
Toate drepturile rezervate.