Costin Georgian ...
7 min.
calculeaza distantaNicolae Grigorescu | Garsoniera | Decomandat | 41mp | B11802 Pyf018B11802 vanzare 1 camere
Pret: 71900 Euro
Zona: Titan, Bucuresti
Strada: Aleea Barsei
ID oferta: Pyf018B11802
Acasa incepe cu un sentiment.......Poate fi o lumina calda intr-o dupa-amiaza linistita, un balcon cu vedere sau o bucatarie unde iti savurezi cafeaua de dimineata.
Imagineaza-ti locuinta perfecta, care reflecta personalitatea ta si raspunde nevoilor tale zilnice.
Echipa PYF REAL ESTATE te ajuta sa gasesti acel loc special pe care il poti numi acasa. Portofoliul nostru cuprinde proprietati atent selectate, ideale pentru tine si familia ta.
Localizare:
Titan - ( Gradinita Veverita ), una dintre cele mai cautate zone din Bucuresti, cu acces rapid la mijloace de transport in comun (metrou, autobuz, zona comerciala, banca, supermarket, fastfood, piata, hotel, parc, scoala/gradinita), scoli, magazine, parcuri si centre comerciale.
Detalii proprietate:
Tip locuinta: Apartamente
Tip operatiune: vanzare
Numar camere: 1 camere (1 dormitoare)
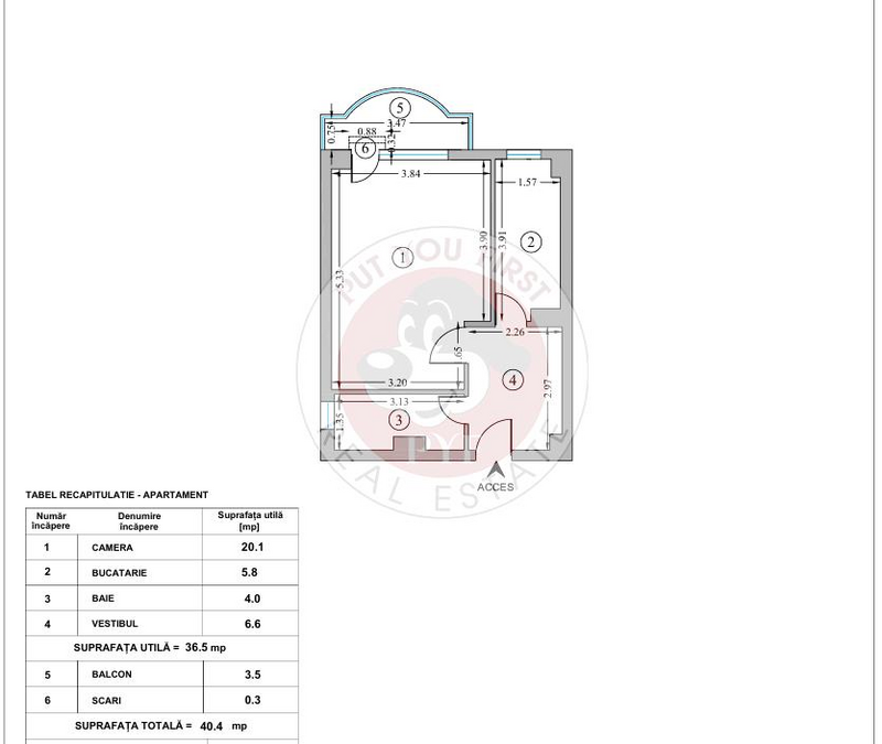
Suprafata utila: 36.5 mp
Suprafata totala: 40.4 mp
Etaj: parter / 8
Compartimentare: decomandat
Confort: 1
An constructie : 1988
Tip imobil: bloc mixt
Incalzire : termoficare
Dotari: calorifere: da; ferestre: pvc; incalzire: termoficare; pereti: faianta, lavabil; podele: parchet, gresie; usa intrare: metal
Bai: 1
Balcoane: 1 (4 mp)
Bucatarii: 1 (da, mobilata, utilata )
Finisaje: calorifere: da; ferestre: pvc; incalzire: termoficare; pereti: faianta, lavabil; podele: parchet, gresie; usa intrare: metal
Mobilare : semi mobilat
Podele: parchet, gresie | Pereti: faianta, lavabil | Ferestre: pvc
Stare generala: Stare Buna
Usa intrare: metal
Vedere: mixta
Destinatie: locuinta, birou, locuinta/birou
Acces rapid la mijloace de transport in comun ( metrou: [ Costin Georgian - 500m distanta / 6minute], autobuze: [ 101, 102, 243, 335 - 560m / 6 minute ], tramvaie: [ ] )
In apropiere: [ Mega Image - 400m distanta - Parc Basarabia - 300m distanta, Liceul Teoretic Nichita Stanescu - 460m distanta, Scoala de FInante Publice si Vama - 450m distanta, Piata Minis - 770m distanta ]
Parcare: posibilitate in strada ( 1 loc )
Apartamente pe palier: 4
Siguranta: interfon - interfon, lift - lift
Izolatii: exterior, interior
Agent responsabil: Robert T
Important de stiut:
Vizionarile se realizeaza in baza unui contract de prestari servicii, semnat intre client si agentie. Este necesara prezentarea unui act de identitate. Neprezentarea acestuia poate duce la anularea sau neprogramarea vizionarii.
Se percepe comision din partea cumparatorului conform politicii Pyf Real Estate
Din cauza numarului mare de oferte si a fluctuatiei pietei imobiliare informatiile din oferta pot suferi modificari atat in sens apreciativ, cat si in sens depreciativ, de asemenea, este posibil sa nu mai fie de actualitate la momentul prezentarii. Pentru clarificarea acestor aspecte va rugam solicitati actualizarea ofertei/ ofertelor dorite!
Alege PYF REAL ESTATE - partenerul tau de incredere in imobiliare.
Transforma visul tau in realitate - contacteaza-ne acum!
Statii metrou |
Timp | |
![]() |
Costin Georgian | 7 min. |
![]() |
Titan | 18 min. |
Statii STB |
Timp |
|
Liviu Rebreanu
101
,102
,253
,311
,330
,335
|
2 min. |
|
Bd. Nicolae Grigorescu
|
2 min. |
|
Titan
|
3 min. |
|
Policlinica Titan
101
,102
,311
|
7 min. |
|
Parcul Titan
101
,102
,202
,335
|
7 min. |
|
Barajul Dunării
|
8 min. |
|
Pod Lacuri
|
9 min. |
| 1. |
Robotics School - After School, ateliere de robotica Bucuresti
0721861565 Aleea Barajul Cucuteni, nr. 2, Bl M4A, sector 3 |
||
| 2. |
Gradinita Nr. 191 sector 3
0213403046; 0213401059 Str. Cozla, nr. 1, sector 3 |
||
| 3. |
Neverland Afterschool Bucuresti
0742139992 Str. Prisaca Dornei, nr. 16, sector 3 |
||
| 4. |
Gradinita nr. 69 sector 3
0213244141; 0213240000 Bd. Pictor Nicolae Grigorescu, nr. 14, sector 3 |
||
| 5. |
Clubul Diandra - Gradinita si After School, Bucuresti
0745075332 Str. Prisaca Dornei, Nr. 2H, Sector 3, Bucuresti |
||
| 6. |
Cresa Potcoava (Titan II) sector 3
0213244810; 0213244880 Str. Pictor Gheorghe Tattarescu, nr. 10, sector 3 |
||
| 7. |
Anna Afterschool sector 3
0733305865 Aleea Calistrat Hogas, nr. 28 D-E, Sector 3 |
||
| 8. |
Happy Tree - Gradinita & After School Bucuresti
0761600082; 0763630634; 0213401308 Aleea Calistrat Hogas, nr. 28A, sector 3, Bucuresti |
||
| 9. |
Gradinita Nr. 154 sector 3
0213400130 Aleea Barajul Uzului, Nr. 9, sector 3 |
||
| 10. |
Gradinita nr. 71 sector 3
0213480894 Aleea Fuiorului, nr. 9 , sector 3 |
||
| 11. |
Ghiocelul - Cresa sector 3
0729330319 Bd. 1 Decembrie 1918, nr. 12-14, sector 3 |
||
| 12. |
Piticul Curajos - Gradinita, After School sector 3
0749607276; 0314373583; 0213240124 Str. Copaceni, Nr. 64, sector 3 |
||
| 13. |
Gradinita nr. 216 sector 3
0213400395 Str. Barajul Rovinari, nr. 10, sector 3 |
||
| 14. |
B-Happy Afterschool sector 3
0722396590 Intr. Horbotei, nr. 12, bl. 4, parter, sector 3 |
||
| 15. |
Gradinita nr. 231 sector 3
0310699994; 0314370742 Str. Codrii Neamtului, nr. 68, sector 3 |
||
| 16. |
Dandi Kids, Gradinita & After School - Bucuresti
0726758303 Str. Rasovita, Nr. 18, Sector 3, Bucuresti |
||
| 17. |
Gradinita Nr. 241 (Pestisorul De Aur) sector 3
0213482910 Str. Rotunda, nr. 19, Sector 3 |
||
| 18. |
Centrul Educational Nectarel - Afterschool Bucuresti
0740221854 Str. Baba Novac, nr. 17, sector 3 |
||
| 19. |
Gradinita nr. 70 sector 3
0213400228 Str. Lucretiu Patrascanu, nr. 12, sector 3 |
||
| 20. |
A&M afterschool Bucuresti
0723371319 Bd. Camil Ressu, Nr. 33, bl. N4, sc. 1, ap. 4, int. 4, sector 3, |
||
| 21. |
Saga Kid - After School sector 3
0743266500; 0756169135 Str. Campia Libertatii, nr. 44, sector 3, |
||
| 22. |
Mini Club Condor - Gradinita, Bucuresti
0725211112; 0722368662; 0314310407 Str. Col Iosif Albu, Nr. 80 Sector 3, Bucuresti |
||
| 23. |
Iulia Pantazi - Centrul psihologic pentru copii Bucuresti
0745480458; 0317304741 Str. Cernauti, Nr.1, Sector 2, Bucuresti |
||
| 24. |
Gradinita Nr. 232 sector 3
0213485518 Str. Patriotilor, nr. 3, sector 3 |
||
| 25. |
Ramy\'s Kids - After School sector 3
0723523721 Bd. Nicolae Grigorescu, nr. 46, sector 3 |
||
| 26. |
Piccolo Grande - After School, loc de joaca sector 3
0754200258 Intr. Patinoarului, nr. 52, Sector 3 |
||
| 27. |
Gradinita nr. 3 - sector 3
0213464112 Str. Plt. Nedelcu Ion, Nr. 31, sector 3 |
||
| 28. |
Gradinita Nr. 196 sector 3
0213450636 Str. Plutonier Ionescu Petre, nr. 76, sector 3 |
||
| 29. |
Castelul Fermecat - Gradinita, After School Bucuresti
0745770001; 0752314458; 0765957032 Drumul Murgului, Nr. 32, Sector 3, Bucuresti |
||
| 30. |
Dumbo Kids Academy - Cresa, Gradinita, Before & After School sector 3
0722320023 Intr. Patinoarului, nr. 42A, sector 3 |
||
| 31. |
Smiley After School sector 2
0727401829 Bd. Basarabia, nr. 62A, sector 2 |
||
| 32. |
Ingerul Albastru - Centrul educational pentru copii, Bucuresti
0727868575 Str. Serg Cuibaru Ion, Nr. 44, sector 3 |
||
| 33. |
Smart Children - After School Bucuresti
0774613480; 0760757410 Str. Prevederii, nr. 6, bl. D2, Ap. 1, Interfon 1, Sector 3, |
||
| 34. |
La Turn - Gradinita sector 2
0212751772; 0732122336 Sos. Morarilor, Nr.1, Sector 2 |
||
| 35. |
Maya si Prietenii - Cresa, Gradinita sector 2
0755359162 Str. Herta, nr. 32A, Sector 2, |
||
| 36. |
Madi AfterSchool sector 2
0757837644 Str. Herta, nr. 32A, Sector 2 |
||
| 37. |
Gradinita Nr. 189 Malaxa Bucuresti
0212554870 Sos. Vergului, Nr. 12, Sector 2, Bucuresti |
||
| 38. |
Centrul Educational Fecioara Maria - Cresa, Gradinita Bucuresti
0799741474; 0770574645 Str. Eufrosina Popescu, Nr. 30, Sector 3, Bucuresti |
||
| 39. |
Gradinita nr. 277 Steluta sector 2
0212551195 Sos. Vergului, nr. 14, Sector 2 |
||
| 40. |
Smart Steps - Gradinita , After School sector 3
0733965133 Str. Dristorului, nr. 91-95, bl. E, Parter, sector 3 |
||
| 41. |
Alice si Taramul Fermecat - Afterschool, Bucuresti
0741495713; 0748013790 Str. Jean Alexandru Steriadi, Nr. 14D, Sector 3, Bucuresti |
||
| 42. |
Gradinita Nr. 211 sector 3
0213451165 Str. Trapezului, Nr. 1A, sector 3 |
||
| 43. |
Taramul Magic Voi Reusi - After School sector 2
0727540913 Bd. Chisinau, nr. 6-8, sector 2 |
||
| 44. |
Gradinita Floare de colt (nr. 64) sector 3
0213464899 Str. Schitului, nr. 1D, sector 3 |
||
| 45. |
Little Star - Gradinita, After School sector 3
0745531279; 0724506631 Str. Alexandru Magatti, nr. 13 A , sector 3 |
||
| 46. |
Kids\' World Nursery School - Gradinita Bucuresti
0771242641 Bd. Basarabia, Nr. 2, Sector 3 |
||
| 47. |
Gradinita Nr. 160 sector 3
0213453650 Aleea Perisoru, nr. 9, sector 3 |
||
| 48. |
Kids First - Gradinita Bucuresti
0748880866; Varnavelena@gmail.com Str. Sica Alexandrescu, nr. 20, Sector 2, |
||
| 49. |
BBIS Bucharest-Beirut International School
0744309199; 0314381572 Sos. Vergului, Nr. 14, Sector 2, Bucuresti |
||
| 50. |
Gradinita nr. 68, sector 3
0213450038; 0213450030 Str. Gura Ialomitei, nr. 20, sector 3 |
||
| 51. |
Land of Kids Afterschool sector 2
0766831831; 0726733314 Str. Constantin Tanase, Nr. 22, Sector 2 |
||
| 52. |
Strumfisor - Gradinita Bucuresti
0744709237 Bd. Nicolae Grigorescu, Nr. 105 - 109, Sector 3, Bucuresti |
||
| 53. |
Gradinita Nr. 239 sector 3
0213245490 Str. Dristorului, nr. 102, sector 3 |
||
| 54. |
Funny Clown, Gradinita & After School - Bucuresti
0740806356 Str. Ruschita, Nr. 41, Sector 2, Bucuresti |
||
| 55. |
City Kids - Gradinita si afterschool Bucuresti
0756862825 Str. Ruschita, Nr. 41, sector 2 |
||
| 56. |
Gradinita Nr. 280 sector 2
0212557980; 0212550205 Str. Delfinului, nr. 4, sector 2 |
||
| 57. |
Cresa Greierasul sector 3
0737799585 Str. Plutonier Major Marin Pazon, nr. 2, sector 3 |
||
| 58. |
Little Oaks Academy - Gradinita sector 3
0766572126; 0766572127 Sos. Mihai Bravu, Sos. Mihai Bravu nr. 286, sector 3 |
||
| 59. |
Diamond Kids - Cresa, Gradinita si After School Bucuresti
0751048000 Str. Trapezului, nr. 44, Sector 3 |
||
| 60. |
Gradinita nr. 24 sector 3
0213441760 Str. Locotenent Pascu Nicolae, nr. 12, sector 3 |
||
| 61. |
Marilank - Gradinita si cresa Bucuresti
0768316808 Strada Lemnisorului, Nr 21-27, Sector 3 |
||
| 62. |
Gradinita nr. 188 Castel sector 2
0212504180; 0213179946 Bd. Pierre de Coubertin, nr. 1, sector 2 |
||
| 63. |
Lill put - Centru de educatie nonformala pentru prescolari, Bucuresti
0722647423 Str. Sarafinesti, Nr. 29, sector 2 |
||
| 64. |
Puiutul Pufos - Gradinita Bucuresti
0740140968; 0213440010 Str. Emanoil Marius Buteica, Nr. 30, Sector 3, Bucuresti |
||
| 65. |
ERA Kinderland - Gradinita, after school in limba germana sector 3
0728850073; 0213207697 Str. Dristorului, nr. 67, sector 3 |
||
| 66. |
Centrul Educational BUBU
0735531156 Sos. Pantelimon, Nr. 355, sector 2 |
||
| 67. |
Gradinita nr. 23 sector 2
0216275013; 0212550840 Str. Soldat Gheorghe Raduta, nr. 1, sector 2 |
||
| 68. |
Bulgarasi de Aur - Before & After School Bucuresti
0723398829 Str. Cogalnic, nr. 30, sector 3 |
||
| 69. |
Mica Printesa - Gradinita, after school Bucuresti
0744321574; 0744703973 Str. Vulcan Judetu, nr. 16, sector 3, |
||
| 70. |
Little Princess 2 - After School / Before School Bucuresti
0744703973; 0744321574; 0756070390 Str. Vulcan Judetu, Nr. 16, Sector 3, Bucuresti |
||
| 71. |
Stelutele, After School - Bucuresti
0734716769 Str. Vitioara, Nr. 46, Sector 3, Bucuresti |
||
| 72. |
Zambete Colorate - Gradinita Ilfov
0749262383 Sos. Dobroesti, Nr. 30, judetul Ilfov |
||
| 73. |
Pick Me Academy - Gradinita si scoala, Bucuresti
0726000640 Str. Slt. Pompiliu Manoliu, Nr. 7,Sector 2, Bucuresti |
||
| 74. |
International Kindergarten & Nursery - Gradinita Bucuresti
0723248978; 0314327798 Str. Claudiu, Nr. 26, Sector 2, Bucuresti |
||
| 75. |
Aripi spre Succes - Gradinita si Afterschool sector 3
0740137944 Aleea Manastirea Agapia, nr. 32, Sector 3 |
||
| 76. |
Happy Kids Project - After school si before school, Bucuresti
0745152802 Sos. Iancului, Nr. 110, Sector 2, Bucuresti |
||
| 77. |
Gradinita Nr. 255 sector 3
0213462996; 0213462994 Bd. Energeticienilor, Nr. 3, sector 3 |
||
| 78. |
Capsunica - Gradinita sector 3
0765516162 Str. Constantin Nottara, nr. 27, sector 3 |
||
| 79. |
Praslea cel Voinic - Gradinita & After School Bucuresti
0722773103; 0733839824 Str. Competitiei, Nr. 38, Sector 2, Bucuresti |
||
| 80. |
Little Princess 1 - Cresa, Gradinita Bucuresti
0756070390; 0744321574; 0744703973 Str. Popa Stoica Farcas, Nr. 64-66, Sector 3, Bucuresti |
||
| 81. |
KeiKo AfterSchool Bucuresti
0748880866 Str. Magura Vulturului, nr. 6, Sector 2 |
||
| 82. |
Gradinita Nr. 256 Bucuresti
0212506222 Str. Atanase Ionescu, Nr. 25, Sector 2 |
||
| 83. |
Abcdino, Gradinita - Bucuresti
0213231070; 0725929616; 0745397739 Str. Chiparosului, Nr. 31, Sector 3, Bucuresti |
||
| 84. |
Gradinita Nr. 187 sector 3
0212560038 Str. Magnetului, nr. 1, sector 3 |
||
| 85. |
Bob de Grau, Gradinita si Cresa - Bucuresti
0720446942 Str. Agricultori, Nr. 142, Sector 3, Bucuresti |
||
| 86. |
Cresa Ciobanasului
0213223085 Str. Ciobanasului, nr. 23, sector 2, |
||
| 87. |
Iuladi Kids - Cresa, gradinita Bucuresti
0769088777 Str. Breaza, Nr. 78, Sector 3 |
||
| 88. |
Once Upon a Time - Centrul educational adlerian Bucuresti
0770590487 Str. Ciobanasului, Nr. 22A, Sector 2 |
||
| 89. |
Universul Zambetelor - Gradinita si Cresa Bucuresti
0765410512 Str. Lunca Dunarii, nr. 7, sector 3 |
||
| 90. |
Teach Little People - Centru educational, Bucuresti
0727401433 Str. Alexander von Humboldt, nr. 2, sector 3 |
||
| 91. |
Sincron - Gradinita, After School Sector 3
0722243877 Calea Vitan, nr. 206, sector 3 |
||
| 92. |
Kiga 99 Luftballons - Gradinita, After School in limba germana Bucuresti
0722395197; 0745423467 Str. Theodor Sperantia, nr. 81, sector 3 |
||
| 93. |
OLIMPIA KIDS - gradinita particulara, cresa si after school Bucuresti
0731680372 Drumul intre Vii, Nr. 24, Sector 3 |
||
| 94. |
I-kids - Club & Afterschool sector 3
0743355355 Sos. Dudesti - Pantelimon, nr. 99A, sector 3 |
||
| 95. |
Castelul Fermecat Olimpia - Gradinita, scoala primara, Afterschool, Bucuresti
0731680372 Drumul intre Vii, Nr. 24, Sector 3, Bucuresti |
||
| 96. |
BritAcademy, Gradinita in limba engleza - Bucuresti
0740329105 Str. Olimpiadei, Nr. 36, Sector 2, Bucuresti |
||
| 97. |
Clopotel - Gradinita Bucuresti
0212502197 Str. Elev Dridu Georgescu, nr. 2, sector 2 |
||
| 98. |
Luminita - Gradinita sector 2
0212503180 Sos. Iancului, nr. 4A, sector 2 |
||
| 99. |
Montessima Educational - Afterschool zona Iancului, Bucuresti
0771421104 Str. Constantin Zlatescu, nr. 12, sector 2 |
||
| 100. |
Bambi Step by Step- Gradinita Bucuresti
0213273256; 0317102928 Str. Gh. Dem Teodorescu, Nr.16 bis, Sector 3, Bucuresti |
||
| 101. |
Arlechino & Friends - Gradinita si afterschool - Bucuresti
0723264032; 0749028820; 0213260584 Str. Cezar Boliac, Nr. 22-24, Sector 3, Bucuresti |
||
| 102. |
Domino - Gradinita Bucuresti
0722492047 Str. Constantin Georgian,, nr. 27, sector 2, Bucuresti |
||
| 103. |
Plusica - Gradinita & Afterschool sector 3
0768596856 Str. Drumeagului, nr. 51, sector 3 |
||
| 104. |
Just4Kids - Scoala Gimnaziala cu nivel gimnazial, primar si prescolar Bucuresti
0739674601 Str. Vantului, Nr. 27, Sector 3, Bucuresti |
||
| 105. |
Legolas - Centru Educational sector 3
0787322298; 0787460258; 0787298295 Str. Nucului, nr. 55, sector 3 |
||
| 106. |
Kindi - Centru de educatie timpurie Montessori, Bucuresti
0726876873 Str. Delea Veche, Nr 35, sector 2 |
||
| 107. |
Kids Power - Centru educational holistic pentru copii Bucuresti
0741248260 Str. Nucului, nr. 55, sector 3 |
||
| 108. |
Oxigen Sport - Befor School, After School Bucuresti
0722529429 Str. Duzilor, Nr. 23, sector 2, Bucuresti |
||
| 109. |
Aurora - Gradinita & After School sector 3
0744317320; 0213224168 Str. Moise Nicoar?, nr. 9-11, sector 3 |
||
| 110. |
Academia Fantastica - Gradinita, Before & After School sector 3
0731027321; 0723337393; 0213065370 Str. Moise Nicoara, Nr. 7, Sector 3 |
||
| 111. |
Noel - Gradinita & After School Bucuresti
0728459857; 0725839363 Str. Trifoi, Nr. 10, Sector 3, Bucuresti |
||
| 112. |
Gradinita Nr.161 (Brandusa) sector 3
0314250834; 0314250835 Str. Branduselor, Nr. 37/43, sector 3 |
||
| 113. |
Bell - Gradinita, Afterschool Bucuresti
0728694516 Str. Mecet, Nr. 53, Sector 2 |
||
| 114. |
Super Start - Gradinita, After School sector 2
0720528738 Bd. Ferdinand I, nr. 156, Sector 2 |
||
| 115. |
Garmy Kids - Gradinita si After School Bucuresti
0311060294; 0745342225; 0734784673 Sos. Vitan Birzesti, Nr. 7D-7E, sector 4 |
||
| 116. |
Sf. Imparati Constantin si Elena, Gradinita Bucuresti
0722237110; 0722293056; 0213261361 Str. Labirint, Nr. 137 B , Sector 3, Bucuresti |
||
| 117. |
Gradinita nr. 1 Dobroesti
0212556121; 0212553765 Str. Nicolae Balcescu, nr. 16-18, Dobroesti, judetul Ilfov |
||
| 118. |
WhizKidz Hub - Afterschool, Centru educational Bucuresti
0742602260 Str. Gradinarilor, nr. 14, Sector 3 |
||
| 119. |
Family Kids, Gradinita si After School - Bucuresti
0722565657; 0723281551 Str. Mugur Mugurel, Nr. 21, Sector 3, Bucuresti |
||
| 120. |
Acorns British Style Nursery, Gradinita & After School, Bucuresti
0722476581; 0788418186 Str. Popa Soare, Nr. 63, Sector 2, Bucuresti |
||
| 121. |
Mell - Gradinita cu Program Normal sector 3
0744564426; 0722958683 Str. Vlad Dracu, nr. 43, sector 3 |
||
| 122. |
Copiii Montessori - Gradinita sector 3
0721204642 Str. Labirint, nr. 95, Sector 3 |
||
| 123. |
Arc-en-Ciel, Gradinita - Bucuresti
0212524665; 0725519386; 0726126808 Str. Ion Heliade Radulescu, Nr. 18, Sector 2, Bucuresti |
||
| 124. |
Castelul Bucuriei - Gradinita Bucuresti
0730515181 Str. Vasile Voiculescu, nr. 30, sector 3 |
||
| 125. |
Gradinita nr. 1 Pantelimon
0213513581; 0213513585 Bd. Biruintei, nr. 36, Pantelimon, judetul Ilfov |
||
| 126. |
Mihai Ionescu - Gradinita, Scoala, Liceu Bucuresti
0213235495 Str. Parfumului, Nr. 31, Sector 2, Bucuresti |
||
| 127. |
Gradinita Magica, Bucuresti
0765221341; 0723892378 Str. Stefan Mihaileanu, Nr. 33, Sector 2, Bucuresti |
||
| 128. |
Sonnenblume Kinderinstitut - Gradinita, Cresa Montessori Bucuresti
0726471469 Str. Calusei, nr. 36, sector 2 |
||
| 129. |
Puzzle Edu Center - Centru educational sector 2
0724536293 Str. Gheorghe Pop de Basesti, nr. 17, Sector 2 |
||
| 130. |
Palatul Copiilor - Gradinita, After School sector 3
0740673742; 0314251635 Str. Morilor, Nr. 19, sector 3 |
||
| 131. |
Cei Trei Muschetari - Before si After School, Bucuresti
0724384924 Str. Vaselor, Nr. 40, Sector 2, Bucuresti |
||
| 132. |
Don Castor, Gradinita & After School - Bucuresti
0757073929; 0217945396 Str. Vaselor, Nr. 17A, Sector 2, Bucuresti |
||
| 133. |
Centrul Educational Nordic sector 4
0786391446 Splaiul Unirii, Nr. 176, Corp D3, Sector 4 |
||
| 134. |
Max und Moritz Kinder - Gradinita limba germana & After School Bucuresti
0726374434 Str. Plugarilor, Nr. 24, Sector 4, Bucuresti |
||
| 135. |
Dreamland - Gradinita Bucuresti
0787521511 Str. Plugarilor, nr. 20-22, Sector 4, Bucuresti |
||
| 136. |
Central Art Studio - After School/Cursuri Pentru Copii/Scoala de Vara Bucuresti
0745633737; 0765454244 Str. Popa Soare, nr. 29, sector 2 |
||
| 137. |
Primii Pasi - Gradinita si Cresa Fundeni
0212400469; 0722522898 Str. Sucidava, nr. 27, Sector 2, Bucuresti |
||
| 138. |
Apostol - After School sector 2
0740951411 Str. Seneslav Voievod, Nr. 55, Sector 2 |
||
| 139. |
Montessori Edu - Centru educational, Bucuresti
0721833901 Str. Mantuleasa, nr. 21, sector 2 |
||
| 140. |
Spectrum - Gradinita, Scoala, After School Bucuresti
0213443344; 0722654161 Str. Balta Albina, Nr. 9, Sector 3, Bucuresti |
||
| 141. |
PRO Academy Afterschool
0744501156 Str. Sibiel, nr. 6, Sector 4 |
||
| 142. |
Lauder-Reut Kindergarten - Gradinita Bucuresti
0318055772; 0723098800; 0735505395 Str. Iuliu Barasch, Nr. 15, Sector 3, Bucuresti |
||
| 143. |
Iepurasul cel Istet - Cresa, Gradinita, After School sector 2
0731488715; 0722121779 Str. Mihai Eminescu, nr. 179, sector 2 |
||
| 144. |
Veverita Jucausa - Gradinita sector 2
0726224859 Str. Litovoi Voievod, Nr. 38, Sector 2 |
||
| 145. |
Dani\'s Children, Cresa, Gradinita, After School - Bucuresti
0721800099 Str. Silvestru, Nr. 42, Sector 2, Bucuresti |
||
| 146. |
Junior School - Gradinita Bucuresti
0751223159 Str. Calimachi, nr. 17, Sector 2, |
||
| 147. |
Licurici - Gradinita Bucuresti
0212104790 Bd. Dacia, Nr. 134, Sector2, Bucuresti |
||
| 148. |
Gradinita nr. 276 Bucuresti
0212423280 Str. Corabia, nr. 57, sector 2 |
||
| 149. |
RosaMaria - Gradinita, cresa Bucuresti
0746808080 Str. Silvia, Nr. 18, Sector 2 |
||
| 150. |
Casuta cu Pitici Mari si Mici - Gradinita, Afterschool Bucuresti
0722626268 Str. Silvia, nr. 11, Sector 2, Bucuresti |
||
| 151. |
Clubul Copiilor Sector 2 - Bucuresti
0212106432 Intr. Cobilitei, Nr. 8, Sector 2, Bucuresti |
||
| 152. |
Copacelul Vietii - Gradinita Bucuresti
0721464185 Str. Radu Calomfirescu, nr. 9, sector 3 |
||
| 153. |
Gradinita Montessori Livada cu copii sector 2
0757467127; 0721204642 Str. Toamnei, nr. 76-78, sector 2 |
||
| 154. |
Gradinita cu program prelungit Nr. 135
0212421805 Str. Masina de Paine, nr. 65, sector 2 |
||
| 155. |
Ortense - Gradinita si After School, Ilfov
0735642345 Intrarea Ciresului, 16c, Dobroesti, judetul Ilfov |
||
| 156. |
Centrul multifunctional Cresa Craiasa Zapezii sector 4
0371360117; 0371360127 Str. Oitelor, nr. 50, sector 4 |
||
| 157. |
Licurici - Gradinita sector 4
0314377556; 0767503191 Str. Cuza Voda, nr. 141 A, Sector 4 |
||
| 158. |
Centrul Social Multifunctional Cresa Scufita Rosie sector 4
0733200109; 0372874267; 0372715100, 0372715101 Aleea Tohani, nr. 1, bl.30, sc. 1, parter, sector 4 |
||
| 159. |
Ina School - Gradinita si scoala primara, Bucuresti
0722500899 Str. Lacul Gorgova, nr. 2, Sector 2 |
||
| 160. |
IQ-Est - Gradinita & After School Popesti Leordeni
0726758183 Str. Sfantul Gheorghe, nr. 5B, Popesti Leordeni, judetul Ilfov |
||
| 161. |
Gradinita nr. 233 sector 2
0216884518 Str. Antonescu Petre, nr. 20, Sector 2 |
||
| 162. |
Cresa Sinaia sector 2
0212403528 Aleea Sinaia, nr. 4, sector 2 |
||
| 163. |
Gradinita Nr. 257 Alice sector 2
0212114524 Str. Alexandru Donici, Nr. 23, sector 2 |
||
| 164. |
Castelino Baby - Gradinita Bucuresti
0731995600 Str. Prof. Ion Ursu, nr. 21, sector 2, |
||
| 165. |
Gradinita nr. 30 sector 4
0213362078 Bd. Dimitrie Cantemir, nr. 16A, Sector 4 |
||
| 166. |
Micii Poznasi - Cresa, Gradinita Bucuresti
0725911233 Calea Serban Voda, Nr. 22-24, Sector 4 |
||
| 167. |
Martisor AfterSchool sector 4
0727017553 Str. Cararuia, nr. 1, sector 4 |
||
| 168. |
Clubul Boreal, Gradinita - Bucuresti
0721124249 Str. Valerian Prescurea, Nr. 5, Sector 4, Bucuresti |
||
| 169. |
Copii de Poveste - Gradinita sector 4
0740051582 Str. Poterasi, nr. 5, sector 4 |
||
| 170. |
Sfanta Agnes - Gradinita cu program prelungit Popesti Leordeni
0213615041 Str. Oltenitei, nr. 6, Popesti-Leorden, judetul Ilfov |
||
| 171. |
Martisor - Gradinita sector 4
0213325936 Str. Daracului, Nr. 11, Sector 4 |
||
| 172. |
Rose Garden Kids - Gradinita, Ilfov
0727130130; 0762432222 Sos. Oltenitei, Nr. 32C-32G, Popesti-Leordeni, judetul Ilfov |
||
| vezi mai multe | |||
| 1. |
Clinica Medicala Medlife-Bucuresti
0219646; 0742299843 Str.Liviu Rebreanu, nr. 8,sector 3, |
||
| 2. |
Policlinica Titan
0213400335; Fax 0213400745 Bd. Nicolae Grigorescu, nr. 41, sector 3, |
||
| 3. |
Pandora Medical Center - Bucuresti
0213413098; 0732263626 Aleea Calistrat Hogas, Nr. 45B, sector 3 |
||
| 4. |
Clinica Nova ORL - Dr. Voda Ioana Alexandra-Bucuresti
0213254422; 0799848484 Str. Pictor Gh. Tattarascu , nr. 2, subsol Policlinica Globului, in spatele cinematografului Gloria, Baba Novac, sector 3, |
||
| 5. |
Spitalul Clinic Judetean de Urgenta Ilfov + ambulatoriu-Bucuresti
Tel.021.3243312; 0213241161; Fax .0213243296 Bd. Basarabia nr. 49-51, sector 2 , |
||
| 6. |
Dr. V. Gomoiu, Centrul Medical Bucuresti
0314136700; 0314136701 Bd. Basarabia nr. 21, sector 2, |
||
| 7. |
Spitalul Clinic Judetean de Urgenta Ilfov
Tel.0213243312; 0213241161; Fax 0213243296 Bd. Basarabia nr. 49-51, sector 2, |
||
| 8. |
Institutul National de Medicina Sportiva
0213184704 ; 0213184705 ; 0213184706 Bd. Basarabia, nr. 37-39, sector 2, Bucuresti |
||
| 9. |
Hipocrat 2000-clinica medicala-Bucuresti
0219605 Bd. Chisinau, nr. 16, sector 2, |
||
| 10. |
Spitalul Clinic Nicolae Malaxa + Ambulatoriu
0212555405; Fax: 0212555275 Sos. Vergului, Nr. 12, Sector 2 , Bucuresti |
||
| 11. |
Dr. V. Gomoiu, Spitalul de Copii - Ambulatoriul de specialitate Bucuresti
0314136700; 0314136701; 0314136706 Bd. Basarabia, nr. 21, sector 2, |
||
| 12. |
Centrul Medical Rom Med 2000
0726366370; 0213270441; Tel/Fax 0213206087 Intr. Baba Novac, nr. 4 A, Sector 3, |
||
| 13. |
Centrul Medical Dr. Victor Babes-Bucuresti
0213179503; Fax: 0213179502 Sos. Mihai Bravu nr. 281, sector 3 , |
||
| 14. |
Dr. Victor Babes, Spitalul Clinic de Boli Infectioase si Tropicale Bucuresti
0213172727 / .28 / .29/ .30 (Centrala); Fax 021 3172721 Sos. Mihai Bravu, nr. 281, sector 3 , |
||
| 15. |
Ambulatoriul spitalului Sf. Pantelimon
0212554090; Fax 0212554025 Sos. Pantelimon nr. 340-342, sector 2, |
||
| 16. |
Spitalul Clinic Nicolae Malaxa + Ambulatoriu
Tel. 0212555405; Fax 0212555275 Sos. Vergului, nr. 12, sector 2, |
||
| 17. |
Spitalul clinic de copii Dr. Victor Gomoiu
0314136700; 0314136701 Bd. Basarabia nr. 21, sector 2, |
||
| 18. |
Spitalul de Urgenta Sf. Pantelimon + ambulatoriu
0212554090; 0212554025 Sos. Pantelimon nr. 340-342, sector 2, |
||
| 19. |
Spitalul de Urgenta Sf. Pantelimon + ambulatoriu
0212554090; Fax .0212554099 Sos. Pantelimon nr. 340-342, sector 2, |
||
| 20. |
Spitalul Clinic de Boli Infectioase si Tropicale Dr. Victor Babes
0213172727 / .28 / .29/ .30 (Centrala); 0213172721 Sos. Mihai Bravu, nr. 281, sector 3, |
||
| 21. |
Policlinica Baba Novac
0770218336; 0748175572 Str. Baba Novac, nr. 2, sector 3 |
||
| 22. |
Medisan Family Clinic - Clinica medicala Bucuresti
0217955980 Str. Dr. Calin Ottoi, nr. 20-22, sector 2 |
||
| 23. |
Centrul Medical Endocenter-Bucuresti
Tel.0764671233; Fax 0213267660 Str. Arh. G. Sterian, nr. 8, sector 2, |
||
| 24. |
Gral Medical - Centrul Medical, Bucuresti
0213230000; 0724242259 (programari radiologie); Fax 0213230002 Str.Traian Popovici (fosta Unitatii), Nr. 79-91, Sector 3, Bucuresti |
||
| 25. |
Professional Klinic, Bucuresti - Tratament si analize
0314250805 ; 0742207755 Str.Agricultori, Nr. 115, bloc 79, Parter, Sector 3, Bucuresti |
||
| 26. |
Centrul Medical Amicus Med
Tel. 0766424841; Tel/Fax 0212508585 Sos. Iancului nr. 17, bl. 106C, sc. 1, ap. 4, sector 2, |
||
| 27. |
Clinica Memento Med-Bucuresti
0213260081 Str. Brailita, nr. 1, sector 3, |
||
| 28. |
Cabinet Medical Persepolis- Bucuresti
0749065961; 0751011893 Str. Vasile Toneanu , nr. 20, sector 3, |
||
| 29. |
Vitan Policlinica, Grupare de cabinete medicale - Bucuresti
0727451211; 0213234970; 0213221208 Calea Dudesti, Nr. 104-124, sector 3, Bucuresti |
||
| 30. |
Emergency Medical Care - Servicii medicale de urgenta la domiciliu Bucuresti & Ilfov
0799058058; 0732528136; 0314250213 Calea Vitan, Nr. 109B-109D, Sector 3, Bucuresti |
||
| 31. |
Policlinica Iancului-Bucuresti
Tel.0314255277 (laborator); 0212508490 (O.R.L.); 0212503333 Sos. Iancului , nr. 3, sector 2 , |
||
| 32. |
Centrul Medical Hiperdia-Bucuresti
0219338; Fax 0212507320 Str.Ritmului, nr. 24, sector 2, Bucuresti |
||
| 33. |
Centrul Medical Focus
Tel. 0317111515; 0733072910 Bd. Ferdinand nr. 141, sector 2, |
||
| 34. |
Spitalul de Urgenta Prof. Doctor Dimitrie Gerota
0212523334; Fax 0212522829 Str. Vasile Vasilievici Stroescu, nr. 29-31, sector 2, |
||
| 35. |
Village Medical Clinic - Centru medical Bucuresti
0212323580 Str. Constantin Kiritescu, nr. 27, sector 2, |
||
| 36. |
Omnia Medical Center - Clinica medicala, Bucuresti
0213230034; 0728841841 Bd. Octavian Goga, Nr. 14, Bl. M61, Parter, Sector 3, Bucuresti |
||
| 37. |
Spitalul Clinic de Ortopedie Traumatologie Foisor-Bucuresti
Tel.0212520057; Fax.0212521387; 0310056786(progamari consultatii) Bd. Ferdinand, nr. 35-37, sector 2 , |
||
| 38. |
Spitalul Clinic de Ortopedie Traumatologie \"Foisor\" + ambulatoriu
Tel. 0310056786; 0212520057; Fax 0212521387 Bd. Ferdinand, nr. 35-37, sector 2, |
||
| 39. |
Clinica Medicala Estet Laser Medical Center
Tel/Fax 0212531797; 0721241772; 0733625687 Str. Calusei nr. 11, sector 2, |
||
| 40. |
Centrul Medical Veridia-Bucuresti
0213029434 Str. Matei Basarab, nr. 45, sector 3, |
||
| 41. |
Donna Medical Center-Bucuresti
0219732 Str. Traian , nr. 234, et.1, sector 2, |
||
| 42. |
Cron Phoenix - Centru de Reabilitare Ortopedica si Neurologica pentru copii Bucuresti
0721567186; 0790667941 Piata Pache Protopopescu, nr. 9, sector 2 |
||
| 43. |
Clinica Life-Med-Bucuresti
0319981 Str. Plugarilor , nr. 18,sector 4, |
||
| 44. |
Spitalul Prof. Dr. Constantin Angelescu
0213233040; 0213233041 Aleea Cauzasi, nr. 49 - 51 sector 3, |
||
| 45. |
SPITALUL PROF. DR. CONSTANTIN ANGELESCU
0213233040; 0213233041 Aleea Cauzasi, nr. 49-51, sector 3, |
||
| 46. |
Spitalul Clinic de Urgenta \"Sf. Ioan\" Bucuresti
Tel. 0213345190; 0213345170; Tel/Fax 0213345970 Sos. Vitan-Barzesti nr. 13, sector 4, |
||
| 47. |
Spitalul Clinic de Urgenta Sfantul Ioan Bucuresti
Tel. 0213345190; 0213345170 Sos. Vitan Barzesti, nr. 13, sector 4, Bucuresti |
||
| 48. |
Spitalul Clinic de Urgenta \"Sf. Ioan\" Bucuresti
Tel. 0213345190; 0213345170; Fax 0213345970 Sos. Vitan Barzesti, nr.13, sector 4, |
||
| 49. |
Prof. Dr. Mina Minovici, Institutul de Medicina Legala Bucuresti
0314230708; 0213321156 Sos. Vitan Barzesti, nr. 9-11, sector 4, |
||
| 50. |
Institutul Clinic Fundeni
0212750500; Fax.0213180444; 0212750700 Sos.Fundeni, nr. 258, sector 2, |
||
| 51. |
Prof. Dr. Dimitrie Gerota, Spitalul de Urgenta MAI - Bucuresti
0212523334 Str. Vasile Vasilievici Stroescu, nr. 29-31, sector 2, |
||
| 52. |
Prof. Dr. Mina Minovici, Institutul de Medicina Legala Bucuresti
0314230700 ; 0213346260 Sos. Vitan Barzesti, nr. 9, sector 4, |
||
| 53. |
Policlinica Regina Maria Sun Plaza
0219268 Calea Vacaresti, nr.391, sector 4, mall Sun Plaza, etaj 2, intrarea prin mall, |
||
| 54. |
Centrul de Diagnostic romano-german Medinst
0319902 Str.Sfanta Vineri, nr. 29, sector 3, |
||
| 55. |
Institutul Clinic Fundeni
Tel. 0212750500; Fax.0212750700 Sos.Fundeni, nr. 258, sector 2, Bucuresti |
||
| 56. |
Standard Med-Bucuresti
0722435435; 0314053950 Bd. Carol, nr. 45, ap.5, parter, sector 2, |
||
| 57. |
Centrul Medical Romedical Int
Tel. 0212100381; 0723288108 Str. Fainari nr. 35, sector 2, |
||
| 58. |
POLICLINICA MASINA DE PAINE
Tel.021. 242.07.82 ; 021.242.00.96 (oftalmologie); 021.242.67.04 (neuropsihiatrie) Str. Masina de Paine nr. 47, sector 2 , |
||
| 59. |
Optim Sano - Centrul Medical Dr. Ion Socoteanu-Bucuresti
0728955844 Str. Salcamilor, Nr. 6A, sector 2, |
||
| 60. |
Centrul Medical Proctoline-Bucuresti
0213017686- programari Bd. Dimitrie Cantemir , nr. 1, bl. B2, sc. 3, et. 2, sector 4, |
||
| 61. |
Centrul Medical Psoremiss-Bucuresti
0213017696 Bd. Dimitrie Cantemir, nr. 1, bl. B2, sc. 3, et. 2, sector 4, |
||
| 62. |
Podologica - Salon tratament pentru afectiunile picioarelor sector 4
0771458874 Bd. Dimitrie Cantemir, nr. 15, bl.9, sc.6, sector 4, |
||
| 63. |
Clinica Medicala On
.0213017676 Bd. Dimitrie Cantemir nr. 1, bl. B2, sc. 3, et. 2, sector 4, |
||
| 64. |
Institutul National de Diabet, Nutritie si Boli Metabolice \"Prof. Dr. N. Paulescu\"
Tel. 0212108499 (centrala); 0212106460 (secretariat); Fax 0212109092 Str. Ion Movila, nr. 5-7, sector 2 , |
||
| 65. |
Cabinet Medical Alfa
Tel.0319495 Sos. Oltenitei, nr. 220, bl. 8, sc. 2, ap. 58, sector 4, |
||
| 66. |
Spitalul Clinic Dr. I. Cantacuzino
Tel. 0212107100; 0212108499 (diabetologie) Str. Ioan Movila, nr. 5-7, sector 2, Bucuresti |
||
| 67. |
Institutul National de Diabet, Nutritie si Boli Metabolice \"Prof. Dr. N. Paulescu\"
0212106460 (secretariat); 0212109092 Str. Ion Movila, nr.5-7, sector 2, |
||
| 68. |
Spitalul Clinic Dr. I. Cantacuzino-Bucuresti
Tel.0212107100; Fax.0212106435 Str. Ion Movila nr. 5-7, sector 2 , |
||
| 69. |
Euromedics Stem Life
0800.800.855 (Apel gratuit); 021 311 55 92 Str. Lipscani, Nr. 90A, et. 3, Sector 3 , |
||
| 70. |
Spitalul Clinic Coltea
Tel. 0213874100; Fax 0213874101 Bd. I.C. Bratianu, nr. 1, sector 3, |
||
| 71. |
Spitalul Clinic Coltea
Tel. 0213874100; Fax 0213874101 Bd. I.C. Bratianu, nr. 1, sector 3, |
||
| 72. |
Centrul Medical Dr. Stoia Ion- Bucuresti
0212116848 int.219; 0213175025 Str. Thomas Masaryk , nr. 5, sector 2 , |
||
| 73. |
POLICLINICA CU PLATA NR. 1
Tel. 021.314.81.15; Fax 021.314.81.14 Str. Bati?tei nr. 27, sector 2, |
||
| vezi mai multe | |||
| 1. |
Hamburg, Scoala Gimnaziala Nr.195 - Bucuresti
0318058603 Str. Lunca Bradului, Nr. 2, sector 3, Bucuresti |
||
| 2. |
Alexandru Ioan Cuza, Liceu Teoretic - Bucuresti
0213404811 Aleea Barajul Dunarii, Nr. 5, sector 3, Bucuresti |
||
| 3. |
Federico Garcia Lorca, Scoala Gimnaziala Nr.196
0213403710 Str. Cozla, nr. 2, sector 3, Bucuresti |
||
| 4. |
Alexandru Ioan Cuza, Scoala Gimnaziala Nr. 199 - Bucuresti
0213243970 Bd. Nicolae Grigorescu, Nr. 14, Sector 3, Bucuresti |
||
| 5. |
Liviu Rebreanu, Scoala Gimnaziala - Bucuresti
0213401845 Aleea Barajul Rovinari, Nr. 1, Sector 3, Bucuresti |
||
| 6. |
Scoala Gimnaziala Nr. 200 - Bucuresti
0213453119 Str. Postavarul, Nr. 13, Sector 3, Bucuresti |
||
| 7. |
Anghel Saligny, Colegiu Tehnic - Bucuresti
0213402654 Bd. Nicolae Grigorescu, Nr. 12, Sector 3, Bucuresti |
||
| 8. |
Dante Alighieri, Liceu teoretic - Bucuresti
0213481950; 0213481545 Aleea Fuiorului, Nr. 9, Sector 3, Bucuresti |
||
| 9. |
Neagoe Basarab Voievod, Scoala Gimnaziala (fosta Nr.16) - Bucuresti
0213403313; 0374464076 Intr. Constantin Brancusi, nr. 7, sector 3, Bucuresti |
||
| 10. |
Benjamin Franklin, Liceu teoretic - Bucuresti
0213244890; 0213243010 Str. Pictor Gh. Tattarescu, Nr. 1, sector 3, Bucuresti |
||
| 11. |
Liceul Teoretic Nichita Stanescu - Bucuresti
0213400440 Str. Lucretiu Patrascanu, Nr. 12, Sector 3, Bucuresti |
||
| 12. |
Mexic, Scoala Gimnaziala Nr. 22 - Bucuresti
0213401124 Bd. 1 Decembie 1918, Nr. 34, Sector 3, Bucuresti |
||
| 13. |
Nicolae Labis, Scoala Gimnaziala Nr. 89 - Bucuresti
0213486271 Str. Firidei, Nr. 2, Sector 3, Bucuresti |
||
| 14. |
Scoala Gimnaziala Mexic - Bucuresti
0213401124 Bd. 1 Decembrie 1918, Nr. 34, sector 3 |
||
| 15. |
Kidos - Before & after school, Bucuresti
0770775730 Bulevardul Nicolae Grigorescu, nr. 2 D, sector 3 |
||
| 16. |
Scoala Gimnaziala Nr. 112
0213483331 Str. Patulului, Nr. 2, Sector 3, Bucuresti |
||
| 17. |
Scoala Gimnaziala Nr. 88 - Bucuresti
0213480445 Str. Odobesti, Nr. 3, Sector 3, |
||
| 18. |
Dimitrie Leonida, Colegiul Tehnic - Bucuresti
0213243294; 0213243295; 0213243293; 0213246902 Bd. Basarabia, Nr. 47, Sector 2, Bucuresti |
||
| 19. |
Scoala Gimnaziala Nr. 86 - Bucuresti
0314250608 Intr. Reconstructiei, Nr. 6A, Sector 3, Bucuresti |
||
| 20. |
Ghelmez Petre, Scoala gimnaziala Nr. 58 - Bucuresti
0213245135 Str. Pescarusului, Nr. 124, Sector 2, Bucuresti |
||
| 21. |
Leonardo Da Vinci, Scoala Gimnaziala Nr.75 - Bucuresti
0213248676 Str. Pictor Gheorghe Petrascu, Nr. 55, Sector 3, Bucuresti |
||
| 22. |
Scoala Gimnaziala Nr. 82 - Bucuresti
0213450962 Jean Steriad, Nr. 17, Sector 3, Bucuresti |
||
| 23. |
Scoala Gimnaziala Nr. 92 - Bucuresti
0213480375 Aleea Vlahita, Nr. 1A, sector 3 |
||
| 24. |
Scoala Gimnaziala Nr. 54 - Bucuresti
0213465143; 0310699824 Str. Istriei, Nr. 19, Sector 3 |
||
| 25. |
Scoala Gimnaziala Nr. 4 - Bucuresti
0212556425 Str. Herta, Nr. 14 A, Sector 2, Bucuresti |
||
| 26. |
Profesia, Liceu profil Economic - Bucuresti
0213486638; 0787889809 Ilioara , Nr. 16 (in cladirea Scolii de Soferi), et. 2, sector 3 , Bucuresti |
||
| 27. |
Sfantul Ioan, Scoala Postliceala Sanitara - Bucuresti
0724355298; 0787889809 Str. Ilioara, nr. 16, et. 2, sector 3, Bucuresti |
||
| 28. |
Waldorf, Liceul Teoretic - Bucuresti
0212553051 Str. Sold. Marin Savu, Nr. 29, Sector 2, Bucuresti |
||
| 29. |
Liceul Teologic Baptist Logos Bucuresti
0213451072 Bd. Theodor Pallady, Nr. 26, sector 3, Bucuresti |
||
| 30. |
Montessori - Scoala si gradinita, Bucuresti
0754054402 Str. Maior Ion Coravu, Nr. 53, Sector 2 |
||
| 31. |
Liceul Tehnologic Sfantul Pantelimon - Bucuresti
0212559943 Str. Hambarului, Nr. 12A, sector 2 |
||
| 32. |
Costin D. Nenitescu, Colegiul Tehnic - Bucuresti
0213450920 Bd. Theodor Pallady, Nr. 26, Sector 3, Bucuresti |
||
| 33. |
Scoala Gimnaziala Nr. 116
0213450102 Str. Gura Ialomitei, Nr. 20, Sector 3, Bucuresti |
||
| 34. |
Scoala Gimnaziala Nr. 149 - Bucuresti
0213451985 Aleea Perisoru, nr. 4, Sector 3, Bucuresti |
||
| 35. |
Scoala Gimnaziala Nr. 51 - Bucuresti
0212554060 Str. Herta, Nr. 1, Sector 2, Bucuresti |
||
| 36. |
BBIS Bucharest - Beirut International School
0744309199 Sos. Vergului, Nr. 14, Sector 2, Bucuresti |
||
| 37. |
Scoala Gimnaziala Nr. 20 - Bucuresti
0213452485 Str. Prevederii, Nr. 19, Sector 3, Bucuresti |
||
| 38. |
Liceul tehnologic special Regina Elisabeta - Bucuresti
0212506220 Str. Vatra Luminoasa, Nr. 108, sector 2 |
||
| 39. |
Scoala Gimnaziala Nr. 62 - Bucuresti
0212553635 Str. Potarnichii, Nr. 3, Sector 2, Bucuresti |
||
| 40. |
Scoala Gimnaziala Nr. 66 - Bucuresti
0212554580 Str. Logofatul Dan, Nr. 1, Sector 2, Bucuresti |
||
| 41. |
Liceul Teoretic Hyperion - Bucuresti
0311032803 Sos. Mihai Bravu, nr. 288C, sector 2 |
||
| 42. |
Scoala Gimnaziala Nr. 77 - Bucuresti
0212553945 Sos. Pantelimon, Nr. 289, sector 2 |
||
| 43. |
Cezar Bolliac, Scoala Gimnaziala Nr. 70 - Bucuresti
0314040172 Intr. Tiglina, Nr. 37, Sector 3, Bucuresti |
||
| 44. |
Decebal, Liceul Bilingv - Bucuresti
0213469233 Bd. Energeticienilor, Nr. 9-11, Sector 3, Bucuresti |
||
| 45. |
Scoala Gimnaziala Nr. 80 - Bucuresti
0213214256 Calea Dudesti, Nr. 191, Sector 3, Bucuresti |
||
| 46. |
Scoala Gimnaziala Nr. 49 - Bucuresti
0212502444 Str. Vatra Luminoasa, Nr. 99, Sector 2, Bucuresti |
||
| 47. |
Lucian Blaga, Liceu teoretic - Bucuresti
0212551265; 0786108825 Sos. Pantelimon, Nr. 355, Sector 2, Bucuresti |
||
| 48. |
Colegiul Tehnic Mihai Bravu - Bucuresti
0213217699 Sos. Mihai Bravu, Nr. 428, Sector 3 |
||
| 49. |
Liceul Tehnologic Dragomir Hurmuzescu - Bucuresti
0212560083 Bd. Basarabia, Nr. 256, sector 3 |
||
| 50. |
Emil Racovita, Colegiul National - Bucuresti
0213217092; Fax 0213217092 Sos. Mihai Bravu , nr. 169, sector 2, |
||
| 51. |
Mihai Botez, Scoala Gimnaziala Nr. 87 - Bucuresti
0213462361 Str. Ramnicu Valcea, Nr. 32, Sector 3, Bucuresti |
||
| 52. |
Scoala Gimnaziala Nr. 46 - Bucuresti
0212502527 Str. Stanescu Gheorghe, Nr. 2-18, sector 2 |
||
| 53. |
Scoala Gimnaziala Nr. 67 - Bucuresti
0212560040 Str. Magnetului, Nr. 1-3, Sector 3, Bucuresti |
||
| 54. |
Scoala Generala nr. 84 Nicolae Balcescu - Bucuresti
0213216391 Calea Vitan, Nr. 135, sector 3 |
||
| 55. |
Pick Me Academy - Scoala Primara Bucuresti
0726000640; 0722391000 Strada Agricultori, Nr. 79, Sector 2, Scoala Primara |
||
| 56. |
Carol Davila, Scoala Sanitara Postliceala - Bucuresti
0216107068 Str. Agricultori, nr. 35, 37-39 (cladirea Codecs), sector 2, |
||
| 57. |
Scoala Gimnaziala Nr. 85
0212524520 Str. Dr. Constantin Zlatescu, Nr. 7A, sector 2, Bucuresti |
||
| 58. |
Serban, Scoala de Meserii - Bucuresti
0722302252; 0212520382 Intrarea Baritonului, Nr. 9 (prin Str. Matei Voievod Nr. 81-83), Sector 2, Bucuresti |
||
| 59. |
Magia Copilariei - After-school Bucuresti
0761912892 Strada Nucului, Nr. 55, Sector 3 |
||
| 60. |
Scoala Gimnaziala Nr. 64 Ferdinand I - Bucuresti
0213351410 Bd. Garii Obor, Nr. 16, Sector 2 |
||
| 61. |
International British School - Bucuresti
0212531698; 0745340841 Str. Agricultori, Nr. 21-25, Sector 2, Bucuresti |
||
| 62. |
Victoria, Liceu Teoretic - Bucuresti
0314250543; 0759478014 Str. Turturelelor, nr. 11A, sector 3, Bucuresti |
||
| 63. |
Sweet Babies - Cresa, gradinita, after school, Bucuresti
0785810011 Strada Teleajen, 26B, sector 2 |
||
| 64. |
Scoala Gimnaziala Nr. 55 - Bucuresti
0212561066 Sos. Industriilor, Nr. 46, Sector 3, Bucuresti |
||
| 65. |
Scoala Gimnaziala Nr. 78 - Bucuresti
0212563261 Sos. Gara Catelu, Nr. 50, Sector 3, Bucuresti |
||
| 66. |
Scoala Gimnaziala Nr. 78 - Bucuresti
0212563261 Sos. Garii Catelu, Nr. 50, Sector 3 |
||
| 67. |
Mirunette Education, Consiliere si Programe Educationale - Bucuresti
0212101602 Valeriu Braniste, Nr. 37-39, Etaj 1, Ap. 3, Cam. 3, Sector 3, Bucuresti |
||
| 68. |
Scoala Gimnaziala Nr. 56 - Bucuresti
0212524125; 0733087815 Bd. Pache Protopopescu, Nr. 109A, Sector 2, Bucuresti |
||
| 69. |
Anastasia Popescu, Liceu Pedagogic Ortodox - Bucuresti
0212524665; 0725519386; 0722805777 Popa Nan, 47 B, Sector 2, Bucuresti |
||
| 70. |
Scoala Gimnaziala de Arte nr. 2 - Bucuresti
0212525703 Bd. Ferdinand I, Nr. 128, Sectorul 2 |
||
| 71. |
About Scoala Metropolitana A.R.C
0314254343; 0722522198 Str. Esarfei, nr. 63-71, sector 3, |
||
| 72. |
Scoala Gimnaziala Nr. 95 - Bucuresti
0770503408; 0213235185 Str. Foisorului, Nr. 111-113, Sector 3, Bucuresti |
||
| 73. |
Mihail Sadoveanu, Liceu teoretic - Bucuresti
0212527856 Str. Popa Lazar, Nr. 8A, Sector 2, Bucuresti |
||
| 74. |
Liceul Tehnologic Nikola Tesla - Bucuresti
0212527886 Sos. Pantelimon, Nr. 25, sector 2 |
||
| 75. |
Ion I.C. Bratianu, Liceu Tehnologic - Bucuresti
0310699448 Str. Popa Lazar, Nr. 8A, Sector 2, Bucuresti |
||
| 76. |
Mihai Viteazu, Colegiul National - Bucuresti
0212525700; 0212525871 Bd. Pache Protopopescu, Nr. 62, Sector 2, Bucuresti |
||
| 77. |
Iulia Hasdeu, Colegiu National - Bucuresti
0212524508 Bd. Ferdinand, Nr. 91, Sector 2, Bucuresti |
||
| 78. |
Ady Endre, Liceu Teoretic - Bucuresti
0212520192 Bd. Ferdinand I, Nr. 89, Sector 2, Bucuresti |
||
| 79. |
Scoala Gimnaziala Iancului Nr. 52
0212522260 Bd. Pache Protopopescu, Nr. 50, Sector 2, Bucuresti |
||
| 80. |
Montessano - Scoala primara si gradinita, Bucuresti
0724924070; 0724919711 Str. Labirint, nr. 97-99, sector 3 |
||
| 81. |
Scoala Gimnaziala Nr. 145 - Bucuresti
0212407036 Str. Heliade Intre Vii, Nr. 36, sector 2 |
||
| 82. |
A.D. Xenopol, Colegiul Economic - Bucuresti
0213205719 Str. Traian, Nr. 165, Sector 2, Bucuresti |
||
| 83. |
Liceul Tehnologic Theodor Pallady - Bucuresti
0213453080 Bd. Theodor Pallady, Nr. 250, sector 3 |
||
| 84. |
Kids Kingdom - Before & After School Bucuresti
0799199627 Intrarea Traian Demetrescu, Nr. 8, sector 3 |
||
| 85. |
Traian Vuia, Liceu Tehnologic de Metrologie - Bucuresti
0213345915; 0372942097 Sos. Vitan Barzesti, Nr. 11, Sector 4, Bucuresti |
||
| 86. |
Scoala Gimnaziala Nr. 81 - Bucuresti
0213263220 Str. Nerva Traian, Nr. 33, Sector 3, Bucuresti |
||
| 87. |
Liceul Economic nr. 1 - Bucuresti
0371417419 Sos. Vitan Barzesti, Nr. 11, Sector 4, Bucuresti |
||
| 88. |
Maica Domnului, Scoala Gimnaziala Nr. 50 - Bucuresti
0212520310 Str. Ion Maiorescu, Nr. 32, Sector 2, Bucuresti |
||
| 89. |
Scoala Gimnaziala Nr. 47 - Bucuresti
0212564666; 0212561512 Sos. Garii Catelu, Nr. 132, Sector 3, Bucuresti |
||
| 90. |
George Cosbuc, Colegiul National Bilingv - Bucuresti
0212528080 Str. Olari, Nr. 29-31, Sector 2, Bucuresti |
||
| 91. |
Mihai Ionescu, Gradinita, Gimnaziu si Liceu - Bucuresti
0213235495; 0314054929 Cauzasi, Nr. 43, Sector 3 , Bucuresti |
||
| 92. |
Mihai Ionescu, Scoala Primara, Gimnaziu, Liceu - Bucuresti
0213235495 Str. Cauzasi, Nr. 43, Sector 3, Bucuresti |
||
| 93. |
Matei Basarab, Colegiul National - Bucuresti
0213216640 Str. Matei Basarab, Nr. 32, Sector 3, Bucuresti |
||
| 94. |
Colegiul Tehnic Petru Rares - Bucuresti
0213304001 Str. V. V. Stanciu, nr. 6, sector 4 |
||
| 95. |
Mihai Eminescu, Colegiul National - Bucuresti
0213304001 Str. V.V. Stanciu, Nr. 6 , Sector 4, Bucuresti |
||
| 96. |
Scoala Gimnaziala Nr. 25 - Bucuresti
0212422695 Str. Silvia, Nr. 54 Sector 2 |
||
| 97. |
International School of Bucharest - Liceu
0213069530; 0213069534; 0213069544 Soseaua Garii Catelu, Nr. 1R, Bucuresti |
||
| 98. |
Liceul Teoretic International de Informatica Bucuresti
0213275443; 0213276570 Str. Balta Albina, Nr. 9, Sector 3, Bucuresti |
||
| 99. |
Barbu Delavrancea, Scoala Gimnaziala Nr.73 - Bucuresti
0213237390 Str. Matei Basarab, Nr. 28-30, Sector 3, Bucuresti |
||
| 100. |
Spectrum, Scoala primara - Bucuresti
0213443344; 0722654161 Str. Balta Albina, Nr. 9, Sector 3, Bucuresti |
||
| 101. |
Victor Babes, Colegiul National - Bucuresti
0212407870 Sos. Fundeni, Nr. 254, Sector 2, Bucuresti |
||
| 102. |
Laude-Reut, Complex Educational Bucuresti
0314382046; 0318055772 Str. Clucerul Udricani, Nr. 12, Sector 3, Bucuresti |
||
| 103. |
Hermes, Colegiul Economic - Bucuresti
0213147645 Calea Mosilor, Nr. 152, Sector 2, Bucuresti |
||
| 104. |
Scoala Gimnaziala Nr. 71 - Bucuresti
0213141395; 0213141391 Calea Mosilor, Nr. 148, Sector 2, Bucuresti |
||
| 105. |
Sfantul Silvestru, Scoala Gimnaziala Nr. 23 - Bucuresti
0212102045 Str. Oltarului, Nr. 11, Sector 2, Bucuresti |
||
| 106. |
Scoala Postliceala Sanitara Fundeni - Bucuresti
0212405135 Sos. Fundeni, Nr. 254, Sector 2, Bucuresti |
||
| 107. |
Scoala Gimnaziala Nr. 307 - Bucuresti
0212100012 Str. Luncsoara, Nr. 3, Sector 2, Bucuresti |
||
| 108. |
Scoala Gimnaziala Nr. 97 - Bucuresti
0213302545 Str. Viorele, Nr. 7, Sector 4, Bucuresti |
||
| 109. |
Kretzulescu Nicolae, Scoala Superioara Comerciala - Bucuresti
0213139082 Bd. Hriso Botev, Nr. 17, Sector 3, Bucuresti |
||
| 110. |
Seminarul Teologic Ortodox Bucuresti
0213305754; 0731205629; 0213305754 Str. Radu Voda, Nr. 24 A, Sector 4, Bucuresti |
||
| 111. |
Scoala Gimnaziala Nr. 1 Pantelimon - Ilfov
0213135152 Str. Mioritei, nr. 24A, Pantelimon, judetul Ilfov |
||
| 112. |
Cuib - After school, Bucuresti
0751088396 Str. Fainari, Nr. 45A, sector 2 |
||
| 113. |
Ion Creanga Colegiu National - Bucuresti
0213362695 Str. Cuza Voda, Nr. 51, sector 4, Bucuresti |
||
| 114. |
Scoala Gimnaziala Nr. 79 - Bucuresti
0314257884 Str. Cuza Voda, Nr. 51, Sector 4, Bucuresti |
||
| 115. |
Scoala Gimnaziala Nr. 27 Principesa Ileana - Bucuresti
0212421645 Str. Masina de Paine, nr. 65, sector 2 |
||
| 116. |
Penticostal Emanuel, Liceul Teologic - Bucuresti
0213311669 Str. Cuza Voda, Nr. 116, Sector 4, Bucuresti |
||
| 117. |
Cantemir Voda, Colegiul National - Bucuresti
0212106935 Str. Viitorului, Nr. 60, Sector 2, Bucuresti |
||
| 118. |
Scoala de Arta Bucuresti
0213306700 Str. Cuza Voda, nr. 100, |
||
| 119. |
Monterra - Scoala primara Bucuresti
0743119481 Str. Vasile Lascar, nr. 87, sector 2 |
||
| 120. |
Spiru Haret, Colegiu National - Bucuresti
0213136462 Str. Italiana, Nr. 17, Sector 2, Bucuresti |
||
| 121. |
Scoala Gimnaziala SEB - Bucuresti
0314249675; 074502274 Str. Martisor, Nr. 22, sector 4 |
||
| 122. |
Scoala Gimnaziala Nr. 113
0213322347 Str. Parincea, Nr. 4, Sector 4, Bucuresti |
||
| 123. |
Scoala Gimnaziala Nr. 120 Martisor - Bucuresti
0213325811 Str. Martisor, Nr. 39, sector 4 |
||
| 124. |
Radu Popescu, Liceu Teoretic, Clasele I-XII si Gradinita - Popesti-Leordeni
0214673423; Fax 0213614022 Leordeni, Nr. 52, Popesti-Leordeni, judetul Ilfov |
||
| 125. |
Gheorghe Sincai, Colegiul National - Bucuresti
0213369004; 0213361455 Calea Serban Voda, Nr. 167, Sector 4, Bucuresti |
||
| 126. |
Scoala Gimaziala Nr. 133 - Bucuresti
0213325837 Str. Stanjeneilor, Nr. 3, sector 4, Bucuresti |
||
| 127. |
Scoala Gimnaziala Ienachita Vacarescu, Bucuresti
0213355705 Calea Serban Voda, Nr. 62-64, sector 4, Bucuresti |
||
| vezi mai multe | |||
| 1. |
Irina Casa cu Prajituri, Cofetarie - Bucuresti
0731323192 Liviu Rebreanu, Nr.12, bl. K2, Cartier Titan Sector 3, Bucuresti |
||
| 2. |
Restaurant Paunita - Bucuresti
0724145707 Bulevardul Nicolae Grigorescu, Nr. 31A, sector 3 |
||
| 3. |
KLANdestin - Restaurant Bucuresti
0731954592 Str. Liviu Rebreanu, Nr. 6A, Sector 3 |
||
| 4. |
Shaormeria Titan - Fast food Bucuresti
0771332861; 0755864686 Bd. Nicolae Grigorescu, Nr. 20, Sector 3 |
||
| 5. |
Vio Cofetarie - Bucuresti
0213412082 Bd. Nicolae Grigorescu, Nr. 20, Sector 3, Bucuresti |
||
| 6. |
Allegro Restaurant - Bucuresti
0751055536; 0744649177 Bd. Nicolae Grigorescu, Nr. 20A, Sector 3, Bucuresti |
||
| 7. |
Ribs Bar&Grill - Restaurant american, Bucuresti
0720788818 Str. Constantin Brancusi, Nr. 13, Complex Potcoava, sector 3 |
||
| 8. |
Camizo, Restaurant - Bucuresti
0733018778 Prisaca Dornei, Nr.10A, Sector 3, Bucuresti |
||
| 9. |
Alba, Restaurant - Bucuresti
0213404491; 0722820287 Liviu Rebreanu , Nr. 29 A, Sector. 3, Bucuresti |
||
| 10. |
Vibes Cafe - Restaurant terasa Bucuresti
0788221270 Liviu Rebreanu, Nr. 29, Sector 3 |
||
| 11. |
Monza, Trattorie si Restaurant - Bucuresti
0724802802; 0722661166; 0769200002 Baba Novac, Nr. 25, Sector 3, Bucuresti |
||
| 12. |
Casa Dante - Restaurant cu specific italian, Bucuresti
0314358069 Strada Rotunda, nr 4C, sector 3 |
||
| 13. |
Monza, Trattorie si Restaurant - Bucuresti
0722661166; 0769200002; 0724802802 Baba Novac, Nr. 25, Sector 3, Bucuresti |
||
| 14. |
Arancini - Restaurant cu specific sicilian
0756490490 Str. Papadiei, Nr. 16-18, sector 3 |
||
| 15. |
La Tramvai - Terasa Bucuresti
0729166021 Parcul Alexandru Ioan Cuza (I.O.R). intersectie Campia Libertatii, sector 3 |
||
| 16. |
L\'incontro, Restaurant - Bucuresti
0732113702; 0751906137; 0767241745 Postavarul, Nr. 92, Sector 3, Bucuresti |
||
| 17. |
Eleven - Restaurant Bucuresti
0723211222; 0786112411 Strada Postavarul, Nr. 86-90, sector 3 |
||
| 18. |
Myti Pizza - Pizzerie, Bucuresti
0734378358; 0744478578 Bulevardul 1 Decembrie, Nr 7 D, sector 3 |
||
| 19. |
Trattoria Venti - Restaurant Bucuresti
0731315513 Str Postavarului, Nr. 84, Sector 3 |
||
| 20. |
Casa Diham - Restaurant Bucuresti
0213406006; 0727171220 Bd. Nicolae Grigorescu, Nr. 1 A, Sector 3 |
||
| 21. |
Altfel, Cofetarie - Bucuresti
0213454005; 0744347848; 0741553448 Bd 1 Decembrie 1918, Nr 21 ,Sector 3, Bucuresti |
||
| 22. |
Friends Pub - Bucuresti
0728197287 Bucovina , Nr. 6, Sector 3, Bucuresti |
||
| 23. |
Ivan\'s bar & grill - Restaurant traditional, Bucuresti
0723893545;0737276284 Bulevardul Basarabia, Nr. 170 - 174, sector 2 |
||
| 24. |
Gedi, Restaurant - Bucuresti
0371119901; 0734207029 Bd. Basarabia, Nr. 176 B, Sector 2, Bucuresti |
||
| 25. |
Gloria Jean\'s Coffees Romania
0760107884 Bd.Liviu Rebreanu, nr. 4, sector 3 - Mall Park Lake, Bucuresti |
||
| 26. |
Cartofisserie - Restaurant cu bufet Bucuresti
0726330960;0740215433 Liviu Rebreanu, Nr. 4 (ParkLake Shopping Center Mall) |
||
| 27. |
Sabatini Pizza, Restaurant - Bucuresti
0314266069; 0737148520; 0784699751 B-dul Basarabia, Nr. 108, Bucuresti |
||
| 28. |
La Dolceria, Cofetarie - Bucuresti
0724315256 Basarabia, Nr.55, M22, Sector 3, Bucuresti |
||
| 29. |
Xanadu Restaurant, Pub - Bucuresti
0726212114; 0722621717 Postavarului, Nr. 102, Sector 3, Bucuresti |
||
| 30. |
Xanadu Restaurant - Bucuresti
0726212114; 0722621717 Postavarul, Nr. 102, Sector 3, Bucuresti |
||
| 31. |
Sham Sweet, Cofetarie - Bucuresti
0748242455 Bd. Basarabia, Nr.98, Sector 3, Bucuresti |
||
| 32. |
Tosca Food - Pizzerie Bucuresti
0756435785;0757170957 Strada Intrarea Muncii, Nr. 23, sector 3 |
||
| 33. |
Green Bistro - Terasa Bucuresti
0728237731 Parcul Gheorghe Patrascu, |
||
| 34. |
Damascus Palace - Restaurant Bucuresti
0746696666; 0756616666 Bld. Basarabia, Nr. 98, sector 2, |
||
| 35. |
Casa Anca 72, Restaurant - Bucuresti
0724334499; 0744777499 Bd. 1 Decembrie 1918 , Nr. 56A, Sector 3, Bucuresti |
||
| 36. |
Armonia Cofetarie - Bucuresti
0213244020 ; 0722616180 Campia Libertatii, Nr. 46 , bl. 52 , Parter , Sector 3, Bucuresti |
||
| 37. |
Savi - Restaurant si club biliard Bucuresti
0775123051; 0722418555 B-dul 1 Decembrie 1918, Nr. 56L, Sector 3 |
||
| 38. |
La Sediu - Restaurant Bucuresti
0760729007 Campia Libertatii, Nr. 54, sector 3 |
||
| 39. |
Bistro 37-39 - Restaurant Bucuresti
0731355939 Bulevardul Basarabia, Nr. 37-39 , Sector 3 |
||
| 40. |
Strada Rustica - Pizzerie Bucuresti
0213248303; 0768676765; 0728886914 Str. Baba Novac, Nr 9, Complex Rucar, Sector 3 |
||
| 41. |
Ressu Restaurant & Lounge - Bucuresti
0723774485; 0731607646; B-dul Camil Ressu, Nr. 70 A, Sector 3, Bucuresti |
||
| 42. |
7 Days - Restaurant cu terasa, organizari evenimente, Bucuresti
0769042751; 0213241358 Str. Campia Libertatii, Nr. 23, Sector 3, Bucuresti |
||
| 43. |
Pajo Garden - Restaurant Bucuresti
0751227228 Bulevardul Basarabiei, Nt. 37-39, sector 2 |
||
| 44. |
Gili Pizza - Bucuresti
0213242387 Str. Baba Novac, Nr. 9-11, Sector 3 |
||
| 45. |
Stejarului 57 - Social Bar, Bucuresti
0748701058 Strada Fildesului, Nr. 2, sector 3 |
||
| 46. |
BigBoy - Pizzerie Bucuresti
0725570450; 0760925495 Soseaua Vergului, Nr. 8, Sector 3 |
||
| 47. |
Pizza Apetito - Bucuresti
0770225215 Eufrosina Popescu, Nr. 57, sector 3, |
||
| 48. |
Marenka - Cofetarie Bucuresti
0728028827; 0736273652 Bulevardul Theodor Pallady, Nr. 21, Sector 3 |
||
| 49. |
Taverna Fierarilor - Restaurant Bucuresti
0758105629 Str.Ilioara, Nr. 18, Sector 3, |
||
| 50. |
Ilioara - Restaurant si piscina Bucuresti
0766379289; 0721244247 Strada Ilioara, Nr. 16L, sector 3 |
||
| 51. |
Papaciu - Bistro, Bucuresti
0724200070; 0724955952 Strada Complexului, Nr 3A, sector 3 |
||
| 52. |
Riviera Park, Restaurant - Bucuresti
0732408408 Bd. Basarabia , Nr. 23 (Parcul National), Sector 2, Bucuresti |
||
| 53. |
Chef Gabrielle - Restaurant, Bucuresti
0766066406 Strada Tomis, Nr. 5A, Sector 3 |
||
| 54. |
Terasa Sport House - Restaurant fast-food, Bucuresti
0755080224 Maior Ion Coravu, numarul 34, sector 2 |
||
| 55. |
La Patrascu - Restaurant Bucuresti
0771635003; 0767561149; 0754422491 Str. Prof. Stefan Nicolau, Nr. 2A, Sector 3 |
||
| 56. |
Casa Morarilor - Restaurant, Bucuresti
0765064409 Soseaua Morarilor, Nr. 2 |
||
| 57. |
Trattoria la Nave - Restaurant Bucuresti
0743454626 Sos. Pantelimon, Nr. 264, Sector 2 |
||
| 58. |
Greekos Urban Food - Restaurant fast-food, Bucuresti
0726646976 Soseaua Mihai Bravu, Nr. 247, sector 3 |
||
| 59. |
Taverna Baba Novac, Restaurant - Bucuresti
0771544334; 0760010784 Intrarea Baba Novac, Nr. 3, Sector 3, Bucuresti |
||
| 60. |
Mateo Fast Food
0728199827; 0752777333; 0314362033 Strada Dristorului, Nr. 87, sector 3 |
||
| 61. |
Qian Bao, Restaurant chinezesc - Bucuresti
0722622865; 0314306616 Intrarea Baba Novac, Nr. 2, Sector 3, Bucuresti |
||
| 62. |
Babylon Fast Food - Bucuresti
0799666267 Soseaua Pantelimon, nr. 255, sector 2 |
||
| 63. |
Cofetariile Georgy\'s, Cofetarie,torturi - Bucuresti
0733060230; 0730618742 Ramnicu Valcea, Nr. 14, Sector 3, Bucuresti |
||
| 64. |
Cofetaria Andreea
0213228845; 0728877033 Sos. Mihai Bravu , Nr. 286, sector 3, Bucuresti |
||
| 65. |
Andreea, Cofetarie, torturi si patiserie - Bucuresti
0728877033; 0213228845 Bulevardul Mihai Bravu, Nr. 286, Sector 3, Bucuresti |
||
| 66. |
Zatara - Restaurant cu influente mediteraneene, Bucuresti
0771670756 Vatra Luminoasa, Nr. 108, sector 2 |
||
| 67. |
Casa Tosca, Cofetarie - Bucuresti
0213461297 Bd. Camil Ressu, Nr. 1, Sector 3, Bucuresti |
||
| 68. |
Trenta Pizza - Bucuresti
0219645 Bd.Chisinau, Nr.5 , sector 2 , Bucuresti |
||
| 69. |
Paradis, Cofetarie - Bucuresti
0724398400 Sos Pantelimon, Nr.354,Bloc 2, Sector 2, Bucuresti |
||
| 70. |
Gemenii Pizza - Bucuresti
0766633686 Strada Fetesti, Nr. 11A, Sector 3 |
||
| 71. |
Restaurant Ali Baba - Specific oriental, Bucuresti
0213274810; 0722707208 Sos. Mihai Bravu, Nr. 213, sector 2, Bucuresti |
||
| 72. |
Santorini - Restaurant specific grecesc Bucuresti
0748333334 Bulevardul Mihai Bravu, Nr. 209, Sector 2 |
||
| 73. |
Pizza Venetia, Pizzerie si catering - Bucuresti
0720800100; 0213204424; Fax: 0720800100 Dristorului, Nr.59, Sector 3, Bucuresti |
||
| 74. |
Casa Luminita, Restaurant - Bucuresti
0749202000 (Lucian Ionescu); 0723500565 Theodor Pallady, Nr. 287, Sector 3 (zona Ozana), Bucuresti |
||
| 75. |
Snap - Restaurant, Bucuresti
0738888885 Bulevard Decebal, nr. 13, sector 3 |
||
| 76. |
Casa Dragonului, Restaurant Bucuresti
0213202666; 0761929019 Calea Dudesti, nr. 198, sector 3, Bucuresti |
||
| 77. |
Duman - Restaurant cu specific oriental, Bucuresti
0738170063 Bulevardul Decebal, Nr. 13, sector 3 |
||
| 78. |
Erra - Restaurant cu specific european modern, Bucuresti
0734983984 Str. Constantin Nottara, Nr 13, sector 3 |
||
| 79. |
Casa Lefter - Restaurant Bucuresti
0723568402; 0743127330 Strada Lt. Ionescu Baican, Nr. 57, sector 2 |
||
| 80. |
Gallo Nero, Restaurant - Bucuresti
0726544889; 0213268128 Bd. Decebal, Nr. 12, Sector 3, Bucuresti |
||
| 81. |
La Coana Mare - Cofetarie Bucuresti
0771512035 Strada Magura Vulturului, Nr. 2, sector 2 |
||
| 82. |
Pizzeria Florina - Bucuresti
0219285 Strada Nicolae Pascu, nr.1A, sectorul 3 |
||
| 83. |
Rich Vip Lounge - Restaurant Bucuresti
0771790764 Bd.Decebal, Nr 9, sector 3 |
||
| 84. |
Gustul Pasiunii Cofetarie - Bucuresti
0728941816 Racari, Nr. 5, sector 3, Bucuresti |
||
| 85. |
Funky Lounge - Terasa, Bucuresti
0755505505 Bd. Decebal, nr 9, sector 3 |
||
| 86. |
Agio Bistrot - Bistro, Bucuresti
0763528818 Bd. Decebal, Nr. 9, sector 3 |
||
| 87. |
Events by Tonyo - Restaurant Bucuresti
0723170007 Aleea Hobita, Nr 1 Sector 2 |
||
| 88. |
Casa Jienilor Agricultori, Restaurant - Bucuresti
0735994994 Agricultori, Nr.12, Sector 2, Bucuresti |
||
| 89. |
Casa Lica - Cofetarie Bucuresti
0725761188 Bulevardul Decebal, Nr. 5, Sector 3 |
||
| 90. |
XO Lounge - Restaurant Bucuresti
0725585388 B-dul Decebal, Nr. 5, sector 3 |
||
| 91. |
Rainbow - Bar & Grill, Bucuresti
0743205054 Cornul Caprei, nr.53, sector 3 |
||
| 92. |
Jerry\'s Pizza - Bucuresti
0373303030 Calea Vitan, Nr. 236, Sector 3, Bucuresti |
||
| 93. |
Tress Caffe&Lounge - Bucuresti
0721988801 Bulevardul Decebal, Nr 3, sector 3 |
||
| 94. |
Padthai - Restaurant Bucuresti
0726637747 Bulevardul Decebal, Nr. 3, sector 3 |
||
| 95. |
El Bacha, Restaurant - Bucuresti
0212691392; 0722833333 P-ta Alba Iulia, nr.6 bl.15, sector 3, |
||
| 96. |
Lotus Cafe - Cafenea restaurant Bucuresti
0722808389 Bd. Decebal, Nr 1, sector 3 |
||
| 97. |
Bravu Burger & Crepes - Restaurant fast-food, Bucuresti
0722118100 Soseaua Mihai Bravu, Nr 452 - 460, sector 2 |
||
| 98. |
Delice Grill - Restaurant fast-food Bucuresti
0721112244 Soseaua Mihai Bravu, Nr 139-145, sector 2 |
||
| 99. |
Talla - Cofetarie Bucuresti
0728314326 Str. Aleea Mizil, Sector 3 |
||
| 100. |
Terasa Marius - Bar & Grill, Bucuresti
0745777799 Sos. Pantelimon, Nr. 115-117, sector 2 |
||
| 101. |
Turquoise - Restaurant cu specific oriental, Bucuresti
0731826222 Strada Theodor D. Sperantia, Nr. 96, sector 3 |
||
| 102. |
Gio Cafe - Bucuresti
0730030757 Bd. Burebista, Nr.2 , Sector 3, Bucuresti |
||
| 103. |
Nikos Greek Taverna, Restaurant - Bucuresti
0730001008 (Restaurant); 0215999099 (Livrari) B-dul Burebista, Nr 2 (Piata Alba Iulia), Sector 3, Bucuresti |
||
| 104. |
Giorginio Cofetarie - Bucuresti
0722434002 Calea Dudesti, Nr. 129 (colt cu str. Scoala Ciocanul) Sector 3, Bucuresti |
||
| 105. |
Alice, Cofetarie - Bucuresti
0744486465 Sos. Mihai Bravu, Nr. 123-135, Sector 2, (zona Piata Iancului - langa Sectia 8 de Politie), Bucuresti |
||
| 106. |
Cristal - Cofetarie
0760090324 Str. Matei Voievod, nr. 108, sector 2 |
||
| 107. |
Arogant - Restaurant & Lounge, Bucuresti
0732764268 Piata Alba Iulia Piata Alba Iulia, nr 8, sector 3 |
||
| 108. |
Dada Restaurant - Bucuresti
0729997405; 0724015800 Str. Matei Voievod , nr. 94bis, sector 2, |
||
| 109. |
La Mama - Restaurant Bucuresti
0721526262 Strada Delea Veche, Nr. 51, sector 2 |
||
| 110. |
Turquoise Bakery - Bucuresti
0739037919 Str. Matei Voievod, nr.101, Sector 2 |
||
| 111. |
Bellagio Villa Restaurant - Bucuresti
0213440661; 0771120177 Vrejului, Nr. 21, Sector 3, Bucuresti |
||
| 112. |
M&I Clasic Cuisine - Fast-food si catering Bucuresti
0732948408 Strada Baicului, Nr 104 Sector 2 |
||
| 113. |
Casa Pedro, Restaurant - Bucuresti
0722502715; 0212560209; 0722533499 Soseaua Industriilor, Nr. 30 (colt cu Str. Rodnei) ,Sector 3 , Bucuresti |
||
| 114. |
BaKings - Cofetarie Bucuresti
0744642929 Strada Ilarie Chendi, Nr. 28, sector 2 |
||
| 115. |
Resto Aperto, Restaurant - Bucuresti
0738741118 Calea Vitan , Nr.55-59(Bucuresti Mall) Sector 3, Bucuresti |
||
| 116. |
Alceva - Restaurant, Bucuresti
0770844125 Matei Voievod, Nr. 79, sector 2, |
||
| 117. |
Casa Pedro - Restaurant si salon evenimente Bucuresti
0726456687 Strada Industriilor, Nr 30, sector 3 |
||
| 118. |
Club Art Papillon Restaurant - Bucuresti
0212522520; 0732582278; 0722240930 Matei Voievod , Nr. 66A Sector 2, Bucuresti |
||
| 119. |
Trattoria Fresca - Restaurant cu specific italian, Bucuresti
0731333410 Str.Popa Nan, nr.140, Sector 2 |
||
| 120. |
Resto Aperto, Restaurant - Bucuresti
0738741118 Calea Vitan, Nr.55-59 (Bucuresti Mall) Sector 3, Bucuresti |
||
| 121. |
Intermacedonia, Restaurant - Bucuresti
0212522010; 0212527331; 0212522190 Sos. Mihai Bravu, Nr.95-100, Sector 2 (P-ta Iancului) , Bucuresti |
||
| 122. |
Bistro Turturelelor - Restaurant, Bucuresti
0726310583; 0758887454 Strada Turturelelor, 11A, corpC, Parter, Sector 3 |
||
| 123. |
Modelier - Bistro, cocktails Bucuresti
0799630693 Strada Duzilor, Nr. 12, sector 2 |
||
| 124. |
La Birlic - Terasa, Bucuresti
0722318168; 0752318168; 0212525151 Bulevardul Pache Protopopescu, Nr. 125, sector 2 |
||
| 125. |
Oktoberfest Pub - Bucuresti
0724333233 Popa Nan, Nr. 95, Sector 3, Bucuresti |
||
| 126. |
King Rolls - Fast Food Bucuresti
0747887206 Calea Vitan, Nr. 17A, sector 3 |
||
| 127. |
Queen Events - Salon evenimente
0723154564; 0724605209 Splaiul Unirii, Nr. 773-777, Sector 3 |
||
| 128. |
Restaurant Grill Verdetei 5 - Restaurant cu preparate la gratar, Bucuresti
0766411338 Strada Verdetei, nr. 5, sector 3 |
||
| 129. |
Benjamins Restaurant - Nunti, botezuri, evenimente, Bucuresti
0724248428 Sos.Vitan-Barzesti, Nr. 5, Sector 4, Bucuresti |
||
| 130. |
Nabu - Bar Bucuresti
0787407043 Pache Protopopescu, Nr. 97, sector 2 |
||
| 131. |
Belli Siciliani - Restaurant autentic sicilian, Bucuresti
0799090601 Str. Matasari, Nr. 47, sevtor 2, |
||
| 132. |
Bistro HB - Restaurant Bucuresti
0735011736; 0735011735; 0735011737 Strada Matasari, Nr. 49 Sector2 |
||
| 133. |
Din Fu - Restaurant chinezesc Bucuresti
0729313338; 0213260127 Str. Alexandru Moruzzi, Nr. 76A, Sector 3 |
||
| 134. |
Burger Peter - Restaurant cu burgeri Bucuresti
0799981031 Strada Popa Nan, Nr. 48, sector 2 |
||
| 135. |
Naser - Restaurant specific libanez Bucuresti
0799980001; 0799980002; 0213135060 Str. Fluierului, Nr. 18, sector 2 (colt cu Str. Matasari, in spatele PRO TV) |
||
| 136. |
Sale Dolce, Restaurant - Bucuresti
0736858430; 0735123687 Matei Voievod, Nr. 20, Sector 2, Bucuresti |
||
| 137. |
La Machedoni - Restaurant cu specific traditional romanesc si american
0721512236 Anastasie Panu, nr. 10, sector 3 |
||
| 138. |
Cuptorul cu Lemne, Pizza - Bucuresti
021.9363; 0212524493; (021) 9363 - tasta 0 Bd. Pache Protopopescu, Nr. 63, Sector 2, Bucuresti |
||
| 139. |
Cuptorul cu Lemne - Restaurant pizzerie Bucuresti
0219363 Bd. Pache Protopopescu, Nr 65, sector 2 |
||
| 140. |
Sweet Sophie - Cofetarie
0748309063 Strada Popa Nan, Nr. 22, sector 2 |
||
| 141. |
Paque Bistro - Restaurant cu bar, Bucuresti
0722330607 Bulevardul Pache Protopopescu, nr.60, sector 2 |
||
| 142. |
Pizza PPH - Pizza si catering, Bucuresti
0319441 Str. Lirei, Nr. 13, sector 2 |
||
| 143. |
La Giuggiola - Gelateria artizanala italiana Bucuresti
0770107183 Bulevardul Pache Protopopescu, Nr. 57, Sector 2 |
||
| 144. |
Cofetaria Madlene - Bucuresti
0753223222 Str. Traian, Nr.103, sector 2 |
||
| 145. |
Noua - Restaurant cu specific romanesc, Bucuresti
0217943294 Strada Popa Nan, Nr. 7, sector 2 |
||
| 146. |
Vanilla, Cofetarie - Bucuresti
0733058058 Mihai Bravu, Nr. 47, Parter, Sector 2, Bucuresti |
||
| 147. |
Trattoria Della Nonna - Restaurant cu specific italian, Bucuresti
0771697503 Strada Popa Nan, Nr. 5, sector 2 |
||
| 148. |
Koffeev - Cafenea, Bucuresti
0767195222 Bulevardul Unirii, Nr. 57, sector 3 |
||
| 149. |
No10 - Restaurant cu specific italian
0741210003 Strada Austrului, Nr. 10, sector 2 |
||
| 150. |
Politica si Delicateturi Bucuresti - Restaurant cu specific romanesc
0785516681 Str. Prof. Dr. Mihail Georgescu, Nr. 24, sector 2 |
||
| 151. |
Beraria Centrala - Restaurant Bucuresti
0740959311 Strada Nerva Traian, Nr. 2, Sector 3 |
||
| 152. |
Alouette - Restaurant cu specific international, Bucuresti
0746339793 Splaiul Unirii, Nr. 168, sector 4, |
||
| 153. |
Comics Club - Stand Up, Bucuresti
0741426426 Str. Nerva Traian, Numarul 4. sector 3 |
||
| 154. |
Laur Express Food - Restaurant fast-food, Bucuresti
0732455089 Bulevardul Ferdinand I, Nr. 60, sector 2 |
||
| 155. |
Old Mike Pub si Restaurant - Bucuresti
0787366166 Morilor, Nr. 46 Sector 3, Bucuresti |
||
| 156. |
MagiCake - Atelier de dulciuri artizanale, Bucuresti
0772072072 Strada Alexandru Moruzzi, Nr. 4A, sector 3 |
||
| 157. |
SwitchEat - Restaurant cu burgeri Bucuresti
0726023881 Strada Horei, Nr 34, sector 2 ( la doi pasi de Foisorul de Foc) |
||
| 158. |
Chong Qing - Restaurant cu specific chinezesc, Bucuresti
0212525095; 0731383952 B-dul Pache Protopopescu, Nr.28, sector 2 |
||
| 159. |
Green Tea Ceainarie - Bucuresti
0213209396; 0749090202 Dr. Burghelea, Nr. 24, Sector 2, Bucuresti |
||
| 160. |
Hop Garden - Restaurant cu preparate la gratar, Bucuresti
0770448443 Splaiul Unirii, Nr. 225, sector 3 |
||
| 161. |
Coftale Coffee Shop - Cafenea, Bucuresti
0746420874 Strada Profesor Stefan Mihaileanu, Nr.42, sector 2 |
||
| 162. |
Anira - Cofetarie Ilfov
0212555961;0729964457 Str. Prof. Dr. V. Dumitrescu, Nr. 90 Comuna Dobroesti, judetul Ilfov |
||
| 163. |
Chaya TeaHouse - Ceainarie Bucuresti
0755331000 Strada Radu Ceaus, Nr. 7, sector 3 |
||
| 164. |
Casa Veche - Restaurant, Ramnicu Valcea
0747875045 ; 0748702238; 0350418155 Stirbei Voda, Nr.162, Ramnicu Valcea, judetul Vilcea |
||
| 165. |
Efes - Restaurant cu specific turcesc, Bucuresti
0737018590 Bulevardul Nerva Traian, Nr. 17 - 19, sector 3 |
||
| 166. |
Karishma, Restaurant indian - Bucuresti
0212525157; 0737519953 Iancu Capitanu, Nr. 36, Sector 2, Bucuresti |
||
| 167. |
Maroon - Maroon Restaurant Cafe
0742420000; 0764900000 Bulevardul Unirii, Nr. 47 C, Sector 3 |
||
| 168. |
Ubuntu Coffee - Terasa, Bucuresti
0758635771 Splaiul Unirii, Nr. 195, sector 3 |
||
| 169. |
Mazzaj Cafe - Restaurant cu specific libanez, Bucuresti
0757292398 Splaiul Unirii, Nr. 162, sector 4 |
||
| 170. |
Borgo Stagioni - Restaurant Bucuresti
0732163287; 0722220223 Calea Calarasi, Nr. 78, Sector 3 |
||
| 171. |
Noeme - Restaurant Bucuresti
0721490270 Anton Pann, Nr. 29, sector 3 |
||
| 172. |
Hashtag Pub - Bucuresti
0771555444 Soseaua Mihai Bravu, Nr 32, sector 2 |
||
| 173. |
Urban Bistro - Restaurant cu fripturi, Bucuresti
0769918510 Strada Piata Sfantu Stefan, Nr 6, sector 2 |
||
| 174. |
Krisperie - Restaurant fast-food, Bucuresti
0762888844 Strada Doamna Ghica, Nr. 235, sector 2 |
||
| 175. |
Restaurant La Teu - Bucuresti
0723642022 Strada Titu Maiorescu, Nr.18, sector 2 |
||
| 176. |
Berestroika - Beer Revolution - Bucuresti
0722560300; 0721100000; 0733200000 Aleea Cauzasi, Nr. 57, Sector 2, Bucuresti |
||
| 177. |
Banjo Jack - Restaurant cu burgeri, Bucuresti
0770653341 Strada Iancu Capitanu, Nr 26, sector 2 |
||
| 178. |
El Torito, Restaurant - Bucuresti
0212526688; 0728176059 Iancu Capitanu , Nr. 30, Sector 2, Bucuresti |
||
| 179. |
La Nenea Iancu - Restaurant cu specific romanesc, Bucuresti
0745140786 Str. Romulus, nr. 55, sector 3 |
||
| 180. |
Le Boutique Food Concept Store - Bucuresti
0722538274; 0314380044 Str. Sfantul Stefan, Nr. 13, sector 2 |
||
| 181. |
Posh Birt Select - Pub, Bucuresti
0724004376 Strada Plantelor, Nr. 26, sector 2 |
||
| 182. |
Terasa Florilor - Restaurant cu terasa, Bucuresti
0755097931 Str. Ion Maiorescu, nr. 42, sector 2 |
||
| 183. |
Tarab - Restaurant cu specific libanez, Bucuresti
0774411111 Strada Nerva Traian, Sector 3 |
||
| 184. |
GinOteca - Bar, Bucuresti
0751446446 Strada Plantelor, Nr. 25, sector 2 |
||
| 185. |
Bragageria Bogdania - Bistro, Bucuresti
0787877985 Str. Olari, Nr. 20, Sector 2 |
||
| 186. |
Bistro Cafe Carbon 14 - Bucuresti
0790408777 Str. Dimitrie Racovita, Nr. 18, Sector 2 |
||
| 187. |
Della Casa Pizza - Bucuresti
0721312666; 0746577383; 0768720228 Sos. Gherase, Nr. 96, (Zona Doamna Ghica) Sector 2, Bucuresti |
||
| 188. |
Quartier - Restaurant, Bucuresti
0758222244 Bd. Mircea Voda, Nr. 43, sector 3 |
||
| 189. |
Sardin - Restaurant cu specific italian, Bucuresti
0729520111 Bulevardul Mircea Voda, Nr. 39H sector 3, Bucuresti |
||
| 190. |
Trofic - Restaurant pentru mic dejun si brunch
0751276600 Bd. Mircea Voda, nr. 52, sector 3 |
||
| 191. |
Gradina Olari - Terasa, Bucuresti
0770147410 Strada Olari, nr.8, Sector 2 |
||
| 192. |
Tarta Ta - Delicii traditionale, Bucuresti
0771522117 Bulevardul Mircea Voda, Nr. 52, sector 3 |
||
| 193. |
Time Out Cafe - Bar & Cafenea Bucuresti
0744644400 Strada Olari, Nr. 7, sector 2 , |
||
| 194. |
Madame B - Tea & Pancake House, Bucuresti
0746030670 Splaiul Unirii, nr.49,sector 3, |
||
| 195. |
Prajituri de Casa - Cofetarie Bucuresti
0751135153 Calea Mosilor, Nr. 225, sector 2 |
||
| 196. |
Volare - Pizzerie, Bucuresti
0730622600 Calea Vacaresti, Nr.203B, sector 4 |
||
| 197. |
Fatafit - Restaurant cu specific libanez, Bucuresti
0760445555 Calea Mosilor, Nr. 225, Sector 2 |
||
| 198. |
Mantuleasa 40 - Restaurant Bucuresti
0754045450; 0751133141 Str. Mantuleasa, Nr. 40, sector 2 |
||
| 199. |
Sfeir Lebanese Cuisine - Bar & Grill
0722311805 Mircea Voda, Nr. 36, sector 3 |
||
| 200. |
Trattoria Adagio - Restaurant cu specific italian Bucuresti
0311061067; 0751218482 Bd. Mircea Voda, Nr. 34, sector 3 |
||
| 201. |
Restaurant Burebista Traditional - Bucuresti
0755041484; 0212109704 Calea Mosilor, Nr 195, sector 2 |
||
| 202. |
Sarazin - Carol Fast food Bucuresti
0787625505 Bulevardul Carol I, Nr. 66, Sector 2, |
||
| 203. |
Cucina di casa - Pizzerie, Bucuresti
0735868318 Calea Vacaresti, Nr. 230, sector 4 |
||
| 204. |
Sare si Piper - Restaurant cu specific italian, Bucuresti
0744663451 Str. Viorele, nr. 26, zona Timpuri Noi, sector 4, Bucuresti |
||
| 205. |
Hatz Burger Studio - Restaurant cu burgeri
0770920018 Soseaua Stefan cel Mare, Nr. 240, Bl. 59A, Sector 2 |
||
| 206. |
Casa Jienilor, Restaurant - Bucuresti
0212121951; 0722916111 Fainari, Nr. 5, Sector 2, Bucuresti |
||
| 207. |
TAP Pizza - Pizzerie, Ilfov
0771382184 Strada Doinei, 48, Sat Fundeni, Comuna Dobroesti, judetul Ilfov |
||
| 208. |
Casa Jienilor, Restaurant - Bucuresti
0212121951; 0722916111; Fax 0212121951 Fainari, N. 5, Sector 2, Bucuresti |
||
| 209. |
Casa Jienilor Fainari, Restaurant - Bucuresti
0212121951; 0735994994 Fainari, Nr. 5, Sector 2, Bucuresti |
||
| 210. |
Tip Top, Cofetarii - Bucuresti
0212422414 Soseaua Colentina, Nr. 2, Sector 2 (magazinul Bucur-Obor), Bucuresti |
||
| 211. |
Casa Brancoveanu Restaurant - Bucuresti
0724640000; 0314245890; 0762643010 Caramidarii de Jos, Nr.14, Sector 5, Bucuresti |
||
| 212. |
Contesa, Restaurant - Bucuresti
0731831891; 0722244214; 0213317171 Sibiel, Nr. 5, sector 4, Bucuresti |
||
| 213. |
Blunch Bistro - Restaurant, Bucuresti
0736898990 Mihai Eminescu, Nr.181, sector 2 |
||
| 214. |
EXPRESS Food & Drink - Restaurant fast-food, Bucuresti
0732669922 Bd. CAROL I, Nr. 62, Sector 2 |
||
| 215. |
Trattoria Soleto - Restaurant cu specific italian
0734382419 Soseaua Colentina, nr. 1, sector 2 |
||
| 216. |
Willy\'s Coffee Art - Bucuresti
0769911077 Bulevardul Carol I, Nr 62, sector 2, |
||
| 217. |
Simbio - Restaurant Bucuresti
0756746246 Str Negustori, nr. 26, sector 2 |
||
| 218. |
Haveli, Restaurant - Bucuresti
0212110390; 0721721640 Episcopul Radu, Nr. 3, Sector 2, Bucuresti |
||
| 219. |
Restaurant Karta - Bucuresti
0744391111 Bd. Unirii, Nr. 22, sector 3 |
||
| 220. |
Barfly Bucuresti
0727394131; 0721652899 Olteni , Nr. 3, Sector 3, Bucuresti |
||
| 221. |
Bucatarasul cel Dibaci - Restaurant cu specific romanesc, Bucuresti
0730340436;0760966360 Strada Olteni, Nr 3, sector 3 |
||
| 222. |
Wicked Bar - Bucuresti
0722615188; 0723574895 Strada Spatarului, Nr. 4, Sector 2, Bucuresti |
||
| 223. |
Rawyal brunch & cakes - Bucuresti
0730777221 Calea Mosilor, Nr 105, Sector 2 |
||
| 224. |
La Calinescu - Restaurant cu specific romanesc, Bucuresti
0788472725; 0213310750 Strada Piscului, Nr. 16, sector 4 |
||
| 225. |
Jack Pot - Bar specializat in cocktailuri, Bucuresti
0372916947; 0770776777 Zborului, nr. 2, sector 3 |
||
| 226. |
Gran Gelato Italiano - Gelaterie Bucuresti
0730057909 Str. Radu Voda, Nr 28 A, Sector 4 |
||
| 227. |
#Aici - Bar, Bucuresti
0799124330 Bulevardul Unirii, Nr 35, Sector 3, Bucuresti |
||
| 228. |
Robescu 14 - Bar specializat in cocktailuri
0773741922 Strada Robescu F. Constantin, Nr. 14, sector 3 |
||
| 229. |
Il Destino, Restaurant italian - Bucuresti
0212103039; 0758836278; 0744318094 (Pentru evenimente) Silvestru, Nr. 67, Sector 2, Bucuresti |
||
| 230. |
DA Giulio - Pizzerie, Bucuresti
0212420385 Colentina, Nr. 23 A, sector 2 |
||
| 231. |
Miorita Kebap - Fast food, Ilfov
0790086089 Strada Mioritei, Nr. 49, Pantelimon, judetul Ilfov |
||
| 232. |
Casa Jienilor, Restaurant - Bucuresti
0735994994; 0722916111 Str. Fainari, nr. 5, sector 2, |
||
| 233. |
JO Lounge - Bar, Bucuresti
0721811995 Bd. Unirii, sector 3 |
||
| 234. |
Grand Kebab - Restaurant fast food, Ilfov
0771770036 Strada Duzilor, nr.1, Oras Pantelimon, judetul Ilfov |
||
| 235. |
Zen Garden - Restaurant cu specific chinezesc, Bucuresti
0745102272 Strada Silvestru, Nr. 3, sector 2 |
||
| 236. |
De Cartier - Restaurant de tip familial, Bucuresti
0213305556 Str. Viorele, Nr. 57A, sector 4 |
||
| 237. |
Hanul Vacaresti - Restaurant fast-food, Bucuresti
0786200300 Strada Pridvorului, nr. 23, sector 4 |
||
| 238. |
Pe Baricade
Radu Voda, nr. 23A, sector 4 |
||
| 239. |
Hanul Haiducilor, Restaurant - Bucuresti
0213307207; 0771756566 Pridvorului, Nr. 25 (In incinta Strandul Copiilor Vacaresti) , Sector 4, Bucuresti |
||
| 240. |
Get Naked by Bordello - Restaurant pentru mic dejun si brunch, Bucuresti
0748881086 Bd. Unirii, intre Bd Dimitrie Cantemir si Bd Mircea Voda |
||
| 241. |
Casa Ede - Restaurant & Beauty - Barber Salon Bucuresti
0772019516 Strada Armeneasca, Nr. 8, sector 2 |
||
| 242. |
Zoomserie - Cofetarie Bucuresti
0751222265 Sf. Vineri, Nr. 23, sector 3, intersectia Coposu (Calarasilor), |
||
| 243. |
Nicoresti, Restaurant - Bucuresti
0212112480; 0724290550 Toamnei, Nr. 13 (colt cu Maria Rosetti nr. 40), Sector 2, Bucuresti |
||
| 244. |
Tabiet 41 - Restaurant, Bucuresti
0314260278 Strada Viorele, nr.59, sector 4 |
||
| 245. |
Miss Ale - Bar specializat in cocktailuri
0745089700 Constantin F Robescu, Nr 2, sector 3 |
||
| 246. |
Nori Sushi - Restaurant cu specific japonez, Bucuresti
0771179714 Splaiul Unirii, nr 6, bl B3A, etaj 7-8 |
||
| 247. |
Cofetaria Lush - Bucuresti
0720976019?; 0721605303 Soseaua Stefan cel Mare, Nr. 226, bloc.44, parter, sector 2 |
||
| 248. |
The Dock - Lounge, Bucuresti
0743680336 Bulevardul Unirii, nr. 30, sector 3 |
||
| 249. |
Human Coffee - Cafenea Bucuresti
0734744429 Str. Elena Cuza, Nr. 8, Sector 4 |
||
| 250. |
Surubelnita - Club, Bucuresti
0768743593 Str. Calea Mosilor, nr. 100, sector 2 |
||
| 251. |
Suento - Restaurant cu specific european modern, Bucuresti
0787605362 Strada Toamnei, Nr. 101, sector 2 |
||
| 252. |
Moon Brasserie - Restaurant Bucuresti
0723093170 Bulevardul Unirii, Nr. 33, sector 3 |
||
| 253. |
Zeppelin Pub - Bucuresti
0722170024 Strada Marin Serghiescu, Nr. 7, sector 2 |
||
| 254. |
Manasia Hub - Bar Bucuresti
0736760063 Str. Stelea Spatarul, Nr. 13, sector 3 |
||
| 255. |
Ciao Niki - Restaurant cu specific italian, Bucuresti
0734356217;0756044805 Strada Bocsa, Nr 4, sector 2 |
||
| 256. |
Hanul Hangitei, Restaurant - Bucuresti
0744827323; 0758043355 Bd. Marasesti, Nr.70-72, Sector 4 , Bucuresti |
||
| 257. |
Thalia - Restaurant cu bucatarie internationala
0219993 Strada Cuza Voda, Nr. 147, sector 4 |
||
| 258. |
Fabrica de mancare - Restaurant cu supe si ciorbe, Bucuresti
0744123123 B-dul Unirii, nr. 31, sector 3 |
||
| 259. |
Cofetaria Ina - Bucuresti
0723300213 Str. C-tin Radulescu Motru, Nr. 6, Sector 4 |
||
| 260. |
Kentucky Fried Chicken KFC, Fast Food - Bucuresti
0757015948; 0212039030; 0213120023 Soseaua Oltenitei, Nr.85, Sector 4, Bucuresti |
||
| 261. |
The Clique Bistro - Restaurant cu specific international, Bucuresti
0784901000 Splaiul Unirii, sector 3 |
||
| 262. |
Papila Kitchen - Restaurant, Bucuresti
0753087799 Strada Sfintilor, Nr 6, sector 2 |
||
| 263. |
Cofetaria Luiziana
0720738498 Str. Nicolae Balcescu, Nr. 29, Pantelimon, judetul Ilfov |
||
| 264. |
Level Up - Restaurant raw vegan, Bucuresti
0721085582 Str Sf. Vineri, Nr 10, sector 3 |
||
| 265. |
Luna Cafe & Bistro - Bucuresti
0771609431; 0771211246 Str. Viitorului, Nr. 32, sector 2, |
||
| 266. |
Armand, Cofetarie - Bucuresti
0310051187; 0741276263 Armand Calinescu , Nr. 25, Sector 2, Bucuresti |
||
| 267. |
Bomb Doner Kebap - Restaurant fast-food, Bucuresti
0727771549 Strada Lizeanu, Nr. 5, sector 2 |
||
| 268. |
FoodVibe - Serviciu de livrare mancare
0371333222 Strada Sperantei, nr. 7, sector 2 |
||
| 269. |
Pizza Bar - Pizzerie, Bucuresti
0746013623 Lanariei, nr. 5, sector 4 |
||
| 270. |
Nice Touch - Restaurant cu meniu international, Bucuresti
0771568361 Strada Sperantei, nr.7, sector 2 |
||
| 271. |
Sweet by MarVio - Cofetarie Bucuresti
0212105291 Soseaua Stefan cel Mare, Nr 31, sector 2 |
||
| 272. |
Margineni, Restaurant - Bucuresti
0733986867; 0212405631; 0720679350 Sos. Fundeni , Nr. 185, Sector 2, Bucuresti |
||
| 273. |
China Town Restaurant - Bucuresti
0726130138; 0788671161; Tel/Fax:0212120239 Viitorului, Nr. 98, Sector 2, Bucuresti |
||
| 274. |
La Mosu - Restaurant Bucuresti
0765523208; 0314382508 Soseaua Oltenitei, Nr. 197, Sector 4 |
||
| 275. |
Pizza Gotti - Pizzerie -Pantelimon
0723439445 Str. Sfantul Gheorghe, Nr. 11, Pantelimon, judetul Ilfov |
||
| 276. |
Kuma Bar - Bucuresti
0766440936 Strada Coltei, Nr. 50, sector 3 |
||
| 277. |
Vis a Vis - Restaurant Bucuresti
0722102223 Bd. I. C. Bratianu, |
||
| 278. |
Fast Food Eminescu - Bucuresti
0723161166 Str. Mihai Eminescu, nr 137, sector 2 |
||
| 279. |
Gambino\'s Pizza - Bucuresti
0731707070; 0725271471; 0310050209 Vasile Lascar, Nr.24, Sector 2, Bucuresti |
||
| 280. |
Bistro Fum de Vorbe - Restaurant Bucuresti
0748628830; 0723686292 Vasile Lascar, Nr. 24, Sectorul 2 |
||
| 281. |
DolciConi - Gelaterie Bucuresti
0753762549 Vasile Lascar, Nr 26-28, sector 2 |
||
| 282. |
Legere - Bar, Bucuresti
0730534373 Piata Rosetti, nr 5, sector 2 |
||
| 283. |
SanThe Fitoceainarie - Ceainarie, Bucuresti
0730370290 Lipscani, nr 104, sector 3, |
||
| 284. |
Time to Lunch
0763200900 Strada Patriei, Nr 4, sector 3 |
||
| 285. |
BEAT bar umanist - Bar, Bucuresti
0720854187 Vasile Lascar, Nr. 29, sector 2 |
||
| 286. |
NoName, Restaurant - Bucuresti
0761280642 (Mioara); 0732381801 (Adrian) Mariuca, Nr 1A,Sector 4, Bucuresti |
||
| 287. |
Buoni e Bravi - Pizzerie, Bucuresti
0735215224 Piata C. A. Rosetti, nr. 3, sector 2 |
||
| 288. |
Athos Pizza & Bistro - Livrare non stop, Bucuresti
0213344287; 0728276192 Sos Oltenitei, Nr. 250 Berceni Ira |
||
| 289. |
NoName, Restaurant si Terasa - Bucuresti
0761280642 Mariuca, Nr 1A,Sector 4, Bucuresti |
||
| 290. |
Casual Pub - Restaurant Bucuresti
0770841212 Bd. Dacia, Nr. 104, Sector 2 |
||
| 291. |
Carina Sweets - Cofetarie Bucuresti
0771261485 Sos Oltenitei, Nr. 230, Sector 4 |
||
| 292. |
Bouzouki - Restaurant specific grecesc, Bucuresti
0787528003 Bulevardul Sincai Gheorghe, Nr. 3, sector 4 |
||
| 293. |
McDonald\'s
0372701091 Piata Unirii 1, Unirea Shopping Center, Bucuresti |
||
| 294. |
Horoscop, Restaurant, Pizzerie - Bucuresti
0767562215 Bd.Dimitrie Cantemir, Nr 2, Sector 4, Bucuresti |
||
| 295. |
Patiseria Tineretului - Bucuresti
0761116622 Bd. Gheorghe Sincai, Nr 2A, sector 4 |
||
| 296. |
Ivy - Cafenea, Bucuresti
0755210748 Bulevardul Carol I, Nr. 23, sector 2 |
||
| 297. |
Kane - Noua bucatarie romaneasca fina
0314100016 Str. Dianei, nr. 9 (Piata Rosetti), sector 2 |
||
| 298. |
Aria Gourmet Burger - Fast food Bucuresti
0773778860; 0773778860 Strada Slanic, Nr. 2, Sector 3 |
||
| 299. |
Teos - Restaurant Bucuresti
0749562843 Soseaua Cernica, Nr. 9, Pantelimon, judetul Ilfov |
||
| 300. |
Lloyds Pub - Bucuresti
0723133786 Str. Coltei, Nr. 16, Sector 3 |
||
| 301. |
Unico Vero - Restaurant cu specific italian, Bucuresti
0212123338;0758110265 Strada Viitorului, Nr. 8, sector 2 |
||
| 302. |
Calderon 18 - Restaurant cu terasa, Bucuresti
0731886789 Str. Jean Louis Calderon, Nr.18, sector 2, |
||
| 303. |
Borsalino - Pizzerie Bucuresti
0729954911; 0729954912 Bulevardul Ion C. Bratianu, Nr. 44, Sector 3 |
||
| 304. |
Emozia coffee manifesto - Cafenea, Bucuresti
0742023590;0726201527 Strada Halelor, nr. 17, sector 3 |
||
| 305. |
Sugarography - Atelier de dulciuri Bucuresti
Bucuresti, |
||
| 306. |
Cofetaria Macarons - Bucuresti
0771425575 Bucuresti, |
||
| 307. |
Naive - Restaurant cu bar, Bucuresti
0725550333 Bd. I.C. Bratianu, Nr. 36, sector 3 |
||
| 308. |
La 100 de Beri - Bar specializat in bere, Bucuresti
0733282598 Str. Gabroveni, Nr.61, sector 3 |
||
| 309. |
Latin Pizza - Pizzerie, Bucuresti
0751896358 Bulevardul Ion C. Bratianu, Nr. 34, sector 3 |
||
| 310. |
Joy House - Restaurant Bucuresti
0730443232 Str. Teiul Doamnei, Nr. 9A, Sector 2 |
||
| 311. |
Industry Wine Bar- Bar cu vinuri, Bucuresti
0722777222 str. Sepcari, Nr. 19, sector 3 |
||
| 312. |
Tropicana, Restaurant - Bucuresti
0724614723 (Niculae Adrian); 0724571502 (Niculae Valentina) Grigore Ionescu, Nr 94, Sector 2, Bucuresti |
||
| 313. |
Lacrimi si Sfinti, Restaurant - Bucuresti
0725558286; 0372773999 Sepcari, Nr.16 (Centrul Vechi) Sector 3, Bucuresti |
||
| 314. |
Botanic - Fine dining, Bucuresti
0721261262 Calea Piscului, sector 4 |
||
| 315. |
Hanul lui Manuc, Restaurant si Cafenea - Bucuresti
0213131411; 0769075844; 0730188653 Franceza, Nr. 62-64, Sector 3 , Bucuresti |
||
| 316. |
The Temple Social Pub - Bucuresti
0723469118 Bd. Marasesti, Nr. 71-73 sector 4 |
||
| 317. |
L\'Amande - Deserturi fara gluten, Bucuresti
0744639549 Str. Lanariei, Nr. 93-95, sector 4 |
||
| 318. |
Hanul lui Manuc, Restaurant - Bucuresti
0213131411; 0769075844; 0730188653 Franceza, Nr. 62-64, Sector 3, Bucuresti |
||
| 319. |
Mojo Music Club - Bucuresti
0737220220 Gabroveni, Nr.14, Sector 3, Bucuresti |
||
| 320. |
Casa Pizza - Pizzerie, Bucuresti
0746544815; 0720923622 Str. Mariuca, nr. 23A, sector 4 |
||
| 321. |
Mica Elvetie Restaurant - Bucuresti
0212245017 Franceza, Nr. 60-62, Sector 3, Bucuresti |
||
| 322. |
Hanul lui Manuc, Restaurant - Bucuresti
0730188653; 0213122811; 0769075844 Franceza , Nr. 62-64, Sector 3 , Bucuresti |
||
| 323. |
Naser 2 - Restaurant traditional libanez Bucuresti
0799997111 Str. Maica Domnului, Nr. 5B, Sector 2 |
||
| 324. |
Mao Pub - Bucuresti
0771305995 Str. Lipscani, Nr. 69, Sector 3 |
||
| 325. |
Extra Time - Pub Bucuresti
0732166605 Strada Lipscani, Nr. 82A, sector 3 |
||
| 326. |
Gelato D\'Amore - Magazin de inghetata Bucuresti
0771727627 Strada Maria Rosetti, Nr. 13, Sector 2 |
||
| 327. |
Beautyfood - Bistro, Bucuresti
0759030609 Jean Louis Calderon, Nr. 34, sector 2 |
||
| 328. |
The Urbanist - Bar specializat in cocktailuri, Bucuresti
0741392558 Strada Caldarari, Nr. 3, sector 3 |
||
| 329. |
Thors Hammer - Bar Bucuresti
0729176724 Str Blanari, Nr. 12, sector 3 |
||
| 330. |
Cald si Bun, Catering - Bucuresti
0212339457; 0737526215 Hatmanul Arbore, Nr. 11, Sector 1, Bucuresti |
||
| 331. |
Bazaar - Restaurant Bucuresti
0721999999 Strada Covaci, Nr. 10, sector 3 |
||
| 332. |
1974 Niste Domni si Fii - Bar Restaurant Bucuresti
0721551099; 0723629306 Covaci, Nr. 7, Sector 3, Bucuresti |
||
| 333. |
Leonidas Cofetarie - Bucuresti
0740014695; 0213141377 Doamnei, Nr. 27 , Sector 3, Bucuresti |
||
| 334. |
OPUS TNB - Bar specializat in cocktailuri
0771595407 Bulevardul Nicolae Balcescu, Nr. 2, sector 1 |
||
| 335. |
Angelo Grasso - Restaurant cu specific italian, Bucuresti
0739955555 Strada Tudor Arghezi, 12-16, sector 2 |
||
| 336. |
Imperial Turkish Cuisine & Steakhouse- Restaurant Bucuresti
0720102222 Strada Jean Louis Calderon, Nr. 33, Sector 2 |
||
| 337. |
Agapi Bistro - Restaurant cu specific international, Popesti-Leordeni
0721462102 Sos. Oltenitei, Nr. 45, Popesti-Leordeni, , judetul Ilfov |
||
| 338. |
Bodega La Mahala - Restaurant Bucuresti
0732166606 Covaci, Nr. 8, Sector 3 |
||
| 339. |
Mica Elvetie Restaurant
0212245017 Franceza, Nr. 60-62, Sector 3, Bucuresti |
||
| 340. |
Fire Club Pub - Bucuresti
0732166604 Covaci, Nr. 7, Sector 3, Bucuresti |
||
| 341. |
Atelierul de dulciuri - Torturi de casa, Ilfov
0761622331 Sos.Oltenitei, nr 24, Popesti Leordeni, judetul Ilfov |
||
| 342. |
Argentin - Restaurant Bucuresti
0774462430; 0774462431 Strada Blanari, Nr. 11-15, Sector 3 |
||
| 343. |
Pizzeria La Coco - Bucuresti
0731744444 Str. Gabroveni, Nr. 31, Sector 3 |
||
| 344. |
Private Hell - Club, Bucuresti
0757508336 Str. Soarelui, nr. 5, Sector 3 |
||
| 345. |
Bere si Bere - Pub, bere craft si muzica rock
0723280040 Str. Gabroveni, Nr. 4, sector 3 |
||
| 346. |
Osteria Zucca - Restaurant cu specific italian, Bucuresti
0770287979; 0314206814 Jean-Louis Calderon, Nr. 41, Sector 2, Bucuresti |
||
| 347. |
La Cena - Restaurant cu specific italian, Bucuresti
0212116717;0730210014 Maria Rosetti, Nr. 1, sector 2 |
||
| 348. |
La Paraul Rece, Restaurant - Popesti Leordeni
0731003133; 0731003132 Soseaua Oltenitei , Nr.26A, Popesti-Leordeni , judetul Ilfov |
||
| vezi mai multe | |||
| 1. |
TITAN
Tel. 0732.995.515 Str. Liviu Rebreanu nr. 6A, sector 3, |
||
| 2. |
BILLA
Tel. 021.345.27.51; Fax 021.345.26.46 Str. Postavarul 24-52, sector 3 |
||
| 3. |
Penny Market
0800.110.111 Bd.1 Decembrie 1918, nr. 33, sector 3, |
||
| 4. |
IRIS SHOPPING CENTER
0314.38.29.70 Cine Grand Bd. 1 Decembrie 1918, nr. 33A, sector 3, Bucuresti |
||
| 5. |
IRIS SHOPPING CENTER
021.345.01.29 Bd. 1 Decembrie 1918, nr. 33A, sector 3, Bucuresti |
||
| 6. |
AUCHAN
Tel. 021.408.01.07; 021.408.01.08 Bd. 1 Decembrie 1918 nr. 33A, sector 3, |
||
| 7. |
CORA
Tel. 021.205.35.00 Sos. Vergului, nr. 20, sector 2, |
||
| 8. |
Wini Imobili
Tel.021.307.60.50; 0742.144.034, 0755.068.669; Fax.021.307.60.51 Pierre de Coubertin, nr. 3-5, sector 2, Bucuresti |
||
| 9. |
MEGA MALL
Str. Pierre de Coubertin, nr. 3-5, langa Arena Nationala, |
||
| 10. |
KIKA
0372330501; 0372330630; 0372330637 Bulevardul Theodor Pallady, 51 D ,Sector 3, Bucuresti |
||
| 11. |
CONCORD 2002
Tel/Fax 323.90.87 Bd. Decebal nr. 7, sector 3 |
||
| 12. |
FOR YOU
Tel. 0745.094.433 Bd. Decebal nr. 24, sector 3 |
||
| 13. |
AUCHAN
Tel. 0750.014.150 Calea Vitan nr. 236, sector 3, |
||
| 14. |
BUCURESTI MALL
Tel. 021.327.67.00; 021.327.61.00; 021.327.61.02; Fax 021.320.92.09 Calea Vitan nr. 55-59, sector 3, |
||
| 15. |
SUPERMARKET MAICOM
Tel. 0722.322.573; Fax 321.78.36 Str. Vitan nr. 104, sector 3 |
||
| 16. |
GMARKET
Bucuresti |
||
| 17. |
Ava Center
0769240700; 0213201626; 0730096166 Mihai Bravu, Nr. 540-564, Sector 3, Bucuresti |
||
| 18. |
FONZI SUPERMARKET
Tel. 0729.005.260; Tel/Fax 021.323.67.52 Str. Nerva Traian, nr. 17-19, sector 3, |
||
| 19. |
Vitantis Shopping Center Bucuresti - Magazine retail Praktiker, Diego si Casa Rusu
0213104513; Fax: 0213150813 Soseaua Vitan-Barzesti, nr. 7A, sector 4, Bucuresti |
||
| 20. |
BUCUR OBOR
021.252.59.34; 021.252.59.35; 021.252.63.82 Sos.Colentina, nr. 2, sector 2 , Bucuresti |
||
| 21. |
Penny Market XXL
0800.110.111 Sos.Fundeni, nr. 38-40, sector 2, Bucuresti |
||
| 22. |
CARREFOUR
Tel. 0374.145.800; Fax 021.307.66.96 Bd. Corneliu Coposu nr. 2, sector 3, |
||
| 23. |
SUN PLAZA MALL
021.233.17.45; 0720.200.582 Calea Vacaresti, nr. 391, Piata Sudului, sector 4, Bucuresti |
||
| 24. |
COCOR
Tel. 021.313.14.03; 021.313.92.39; 021.314.96.64; 021.314.96.65; Fax 021.313.98.48 Bd. I.C. Bratianu nr. 29-33, sector 3, |
||
| 25. |
DENISA MARKET
Tel. 021.211.71.70; 0722.691.595; 0749.263.036; Fax 021.211.71.70 Str. Rasuri nr. 1, sector 2 |
||
| 26. |
Cocor Luxury Store
021.312.43.10; Fax: 021.313.98.48 Bd. I.C. Bratianu, nr. 29-33, sector 3, |
||
| vezi mai multe | |||
Sunteti de acord sa fiti contactat prin mesageria Anuntul.ro
de persoana care a adaugat acest anunt?
Vezi istoricul preţurilor din zona
Vezi email
Distribuie Facebook
Anunţurile utilizatoruluiPagina pe care doriti sa o accesati poate sa contina elemente care nu sunt recomandate minorilor!
Va rugam sa confirmati ca aveti peste 18 ani!

101
,102
,253
,311
,330
,335
2 min.