Anuntul accesat este inactiv. Iti sugeram anunturi cu caracteristici asemanatoare.
Anunturi active sugerate
Suprafata utila 44 mp
Birouri
Ilfov, 12 Decembrie '25
Suprafata utila 400 mp
Birouri
Ilfov, 12 Decembrie '25
Suprafata utila 140 mp
Sp. depozitare
Bucuresti, azi; 17:36
Anunt inactiv
Galati, piata centrala
7 €
Galati, piata centrala
7 €
Caracteristici
Suprafata utila 200 mp
Detalii Suplimetare: Aer conditionat Alarma Apa centrala termica curent electric Gaze Grup sanitar Internet Parcare Renovat Vad comercial Vitrina stradala
Detalii Suplimetare: Aer conditionat Alarma Apa centrala termica curent electric Gaze Grup sanitar Internet Parcare Renovat Vad comercial Vitrina stradala
Descriere
spatiu pentru clinica stomatologica sau clinica medicala pe alta specialitate
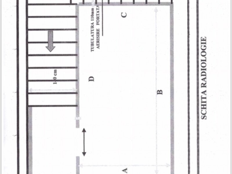
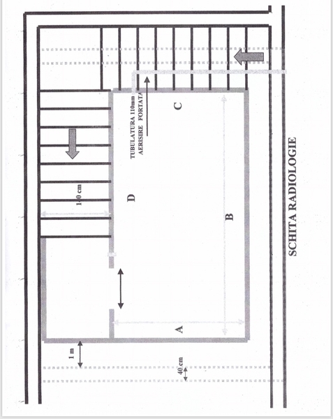
Spatiul are toate dotarile necesare uni clinici(scurgeri separate si circuitele necesare).Si un spatiu de radiologie omologat
Spatulul a fost folosit pentru o Cinica Stomatologica
Spatiul are in componenta sa o receptie cu 2 salai de asteptare,3 cabinete,3 bai dotate ,1 camera radiologie,1sala sterilizare si 1 vestiar
Spatiul are toate dotarile necesare uni clinici(scurgeri separate si circuitele necesare).Si un spatiu de radiologie omologat
Spatulul a fost folosit pentru o Cinica Stomatologica
Spatiul are in componenta sa o receptie cu 2 salai de asteptare,3 cabinete,3 bai dotate ,1 camera radiologie,1sala sterilizare si 1 vestiar
213 vizualizari
Galati, Galati, Publicat
Actualizat
Actualizat
Anunt inactiv
